Nowoczesny dom z poddaszem użytkowym i dachem dwuspadowym. Mieszkańców i gości wita duży wiatrołap, w którym od razu można poczuć się jak w domu. Z wiatrołapu jest bezpośrednie przejście do części gospodarczej: jednostanowiskowego garażu i kotłowni. Wszystkich jednak zapraszamy do najpiękniejszej części domu, jaką stanowi przestronna część dzienna z wydzielonymi półotwartymi strefami: przytulnego salonu z wyjściem na taras; obszernej jadalni – wspaniale doświetlonej dzięki wysokim oknom i optycznie powiększonej poprzez antresolę; kuchni oddzielonej ścianką od salonu, ale otwartej na jadalnię. Jest to idealne miejsce do spożywania rodzinnych posiłków, jak i podejmowania gości na małych i większych przyjęciach. Dodatkowo na parterze znajduje się gabinet, który dobrze sprawdzi się również w roli pokoju gościnnego oraz łazienka. Na komfortowo rozplanowanym poddaszu mieści się strefa nocna domu, podzielona na dwie części. Jedna z nich to sypialnia małżeńska i mniejsza łazienka, zaś druga to dwie sypialnie, duża łazienka z miejscem zarówno na wannę, jak i kabinę prysznicową oraz pomieszczenie gospodarcze z funkcją pralni. W projekcie przewidziano ogrzewanie kotłem na gaz. Możliwa jest zmiana ogrzewania na pompę ciepła.
| EUco = 21,39kWh/(m²rok) |
| EP = 55,91kWh/(m²rok) |
Projekt zgodny z WT2021
| 1.1 | Wiatrołap | 9,65m2 |
| 1.2 | Komunikacja | 7,61m2 (12,18m2) |
| 1.3 | Pokój | 10,85m2 |
| 1.4 | Jadalnia | 17,50m2 |
| 1.5 | Salon | 22,79m2 |
| 1.6 | Kuchnia | 9,75m2 |
| 1.7 | Łazienka | 2,88m2 |
| 1.8 | Spiżarnia | 2,68m2 |
| 1.9 | Garaż | 18,30m2 |
| 1.10 | Kotłownia | 5,96m2 |
| 1.11 | Podest | 6,48m2 |
| 1.12 | Taras | 20,95m2 |
| 1.1 | Wiatrołap | 9,65m2 |
| 1.2 | Komunikacja | 7,61m2 (12,18m2) |
| 1.3 | Pokój | 10,85m2 |
| 1.4 | Jadalnia | 17,50m2 |
| 1.5 | Salon | 22,79m2 |
| 1.6 | Kuchnia | 9,75m2 |
| 1.7 | Łazienka | 2,88m2 |
| 1.8 | Spiżarnia | 2,68m2 |
| 1.9 | Garaż | 18,30m2 |
| 1.10 | Kotłownia | 5,96m2 |
| 1.11 | Podest | 6,48m2 |
| 1.12 | Taras | 20,95m2 |
| 2.1 | Korytarz | 13,81m2 |
| 2.2 | Łazienka | 6,17m2 (9,04m2) |
| 2.3 | Pokój | 15,69m2 (19,08m2) |
| 2.4 | Łazienka | 3,75m2 (5,50m2) |
| 2.5 | Pralnia | 2,89m2 (4,23m2) |
| 2.6 | Pokój | 12,24m2 (16,42m2) |
| 2.7 | Pokój | 12,33m2 (16,51m2) |
| 2.8 | Schody | 5,55m2 (5,59m2) |
| 2.1 | Korytarz | 13,81m2 |
| 2.2 | Łazienka | 6,17m2 (9,04m2) |
| 2.3 | Pokój | 15,69m2 (19,08m2) |
| 2.4 | Łazienka | 3,75m2 (5,50m2) |
| 2.5 | Pralnia | 2,89m2 (4,23m2) |
| 2.6 | Pokój | 12,24m2 (16,42m2) |
| 2.7 | Pokój | 12,33m2 (16,51m2) |
| 2.8 | Schody | 5,55m2 (5,59m2) |
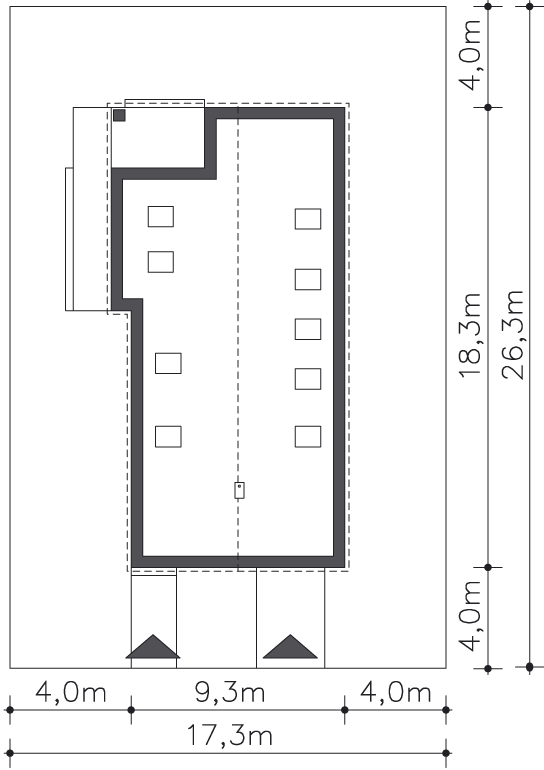
Grafika przedstawia minimalne wymiary działki. Aby sprawdzić, czy dom może być realizowany na konkretnej działce należy uzyskać Wypis i Wyrys z Miejscowego Planu Zagospodarowania Przestrzennego lub jeśli na danym terenie nie ma planu – Decyzję o warunkach zabudowy. Wszystkie projekty wymagają adaptacji do warunków miejscowych przez projektanta lokalnego.
Fundamenty - rozwiązanie o podwyższonej izolacji termicznej
Ściany zewnętrzne - Pustak ceramiczny 25 cm + styropian 20 cm
Strop - żelbetowy typu filigran
Dach - tradycyjna więźba ciesielska, pokrycie: blacha tytan-cynk
Ogrzewanie - c.o. podłogowe + c.w.u. - kocioł gazowy, c.w.u - kolektory słoneczne
Ogrzewanie - Wersja na zmówienie: c.o.+c.w.u. pompa ciepła powietrze woda
WENTYLACJA - rekuperacja
Na etapie adaptacji projektu istnieje możliwość zamiany materiałów na inne o podobnych właściwościach i parametrach technicznych. Pamiętaj! Projekt stanowi spójną całość i zmiana rozwiązań może wpłynąć na jego właściwości wytrzymałościowe i cieplne.
| Stan surowy zamknięty | 418 500 zł |
| Stan deweloperski | 662 400 zł |
Szacunkowa wycena netto. Biuro projektowe nie zajmuje się realizacją inwestycji.
- 400 zł
Brunico II
LMP345a129,74m2
Cena projektu:4490 zł4890 zł
Najniższa cena z 30 dni przed obniżką 4 890 zł
- 400 zł
Rejkiawik
DCP403142,68m2
Cena projektu:5170 zł5570 zł
Najniższa cena z 30 dni przed obniżką 5 570 zł
- 400 zł
Zadar
DCP404159,99m2
Cena projektu:7970 zł8370 zł
Najniższa cena z 30 dni przed obniżką 8 370 zł
- 400 zł
Nairobi
LMP334101,60m2
Cena projektu:4090 zł4490 zł
Najniższa cena z 30 dni przed obniżką 4 490 zł
- 400 zł
Trogir
DCP406165,02m2
Cena projektu:5570 zł5970 zł
Najniższa cena z 30 dni przed obniżką 5 970 zł
- 400 zł
Trogir II
DCP406a161,12m2
Cena projektu:5570 zł5970 zł
Najniższa cena z 30 dni przed obniżką 5 970 zł
- 400 zł
Lyon II
DCP378a110,17m2
Cena projektu:5370 zł5770 zł
Najniższa cena z 30 dni przed obniżką 5 770 zł
Opinie (0)
Opinie nie są weryfikowane pod kątem ich pochodzenia od konsumentów, którzy używali produktu lub go nabyli.