PROMOCJA
ULUBIONE

Projekt domu

Trogir 165,02m²

DCP406

PROMOCJA
- 400 zł
od 17 do 31 maja 2026

 

Karta projektu Podziel się:

Opis projektu

Inwestorom posiadającym wąską działkę, a marzącym o funkcjonalnym domu z poddaszem i dachem dwuspadowym, przedstawiamy projekt Trogir, który pomoże urzeczywistnić te marzenia. Główną przestrzeń parteru zajmuje duży salon z wyjściem na taras, z widną częścią wypoczynkową i wydzielonym miejscem na jadalnię oraz otwarta kuchnia ze spiżarnią. Efektowne, wysokie przeszklenia oraz podniesiony sufit nad jadalnią czynią to miejsce przestronnym i jasnym. Na parterze znajduje się również dodatkowy pokój, który można przeznaczyć na gabinet lub pokój gościnny oraz łazienka. Poddasze to trzy sypialnie, duża łazienka, pralnia i dodatkowe pomieszczenie gospodarcze, które z powodzeniem może pełnić funkcję garderoby. Część gospodarczą domu stanowią jednostanowiskowy garaż i kotłownia – oba pomieszczenia z wygodnym dostępem bezpośrednio z wiatrołapu. W projekcie przewidziano ogrzewanie kotłem na gaz. Możliwa jest zmiana ogrzewania na pompę ciepła.

Zapotrzebowanie Energetyczne

EUco = 19,78kWh/(m²rok)
EP = 53,89kWh/(m²rok)

Projekt zgodny z WT2021

Dowiedz się więcej  

Parter 110,48m2

Gotowy projekt domu Trogir rzut Parter - projekt Ludwika Juchniewicz-Lipińska

110,48m2

1.1 Wiatrołap 7,36m2
1.2 Komunikacja 10,87m2
1.3 Pokój 11,33m2
1.4 Salon, jadalnia 38,24m2
1.5 Kuchnia 12,20m2
1.6 Spiżarnia 3,24m2
1.7 Łazienka 3,24m2
1.8 Kotłownia 6,38m2
1.9 Garaż 17,62m2
1.10 Podest 12,28m2
1.11 Taras 27,09m2
1.1 Wiatrołap 7,36m2
1.2 Komunikacja 10,87m2
1.3 Pokój 11,33m2
1.4 Salon, jadalnia 38,24m2
1.5 Kuchnia 12,20m2
1.6 Spiżarnia 3,24m2
1.7 Łazienka 3,24m2
1.8 Kotłownia 6,38m2
1.9 Garaż 17,62m2
1.10 Podest 12,28m2
1.11 Taras 27,09m2

Poddasze 78,54m2

Gotowy projekt domu Trogir rzut Poddasze - projekt Ludwika Juchniewicz-Lipińska

78,54m2

2.1 Schody 5,26m2
2.2 Hall 10,45m2
2.3 Pokój 16,60m2 (20,05m2)
2.4 Łazienka 8,37m2 (10,85m2)
2.5 Schowek 3,28m2 (5,06m2)
2.6 Pokój 14,87m2 (19,05m2)
2.7 Pokój 14,71m2 (18,90m2)
2.8 Pralnia 5m2 (7,77m2)
2.1 Schody 5,26m2
2.2 Hall 10,45m2
2.3 Pokój 16,60m2 (20,05m2)
2.4 Łazienka 8,37m2 (10,85m2)
2.5 Schowek 3,28m2 (5,06m2)
2.6 Pokój 14,87m2 (19,05m2)
2.7 Pokój 14,71m2 (18,90m2)
2.8 Pralnia 5m2 (7,77m2)

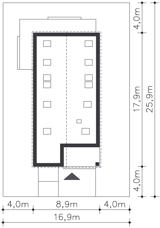
Wymiary działki

Gotowy projekt domu Trogir wymiary działki

Przekrój

Gotowy projekt domu Trogir przekrój

Elewacje

Gotowy projekt domu Trogir elewacja przód - projekt Ludwika Juchniewicz-Lipińska Gotowy projekt domu Trogir elewacja lewa - projekt Ludwika Juchniewicz-Lipińska Gotowy projekt domu Trogir elewacja tył - projekt Ludwika Juchniewicz-Lipińska Gotowy projekt domu Trogir elewacja prawa - projekt Ludwika Juchniewicz-Lipińska

Działka

Grafika przedstawia minimalne wymiary działki. Aby sprawdzić, czy dom może być realizowany na konkretnej działce należy uzyskać Wypis i Wyrys z Miejscowego Planu Zagospodarowania Przestrzennego lub jeśli na danym terenie nie ma planu – Decyzję o warunkach zabudowy. Wszystkie projekty wymagają adaptacji do warunków miejscowych przez projektanta lokalnego.

Dowiedz się więcej  

Technologia projektu

Fundamenty - rozwiązanie o podwyższonej izolacji termicznej

Ściany zewnętrzne - Pustak ceramiczny 25 cm + styropian 20 cm

Strop - monolityczny żelbetowy

Dach - tradycyjna więźba ciesielska,  pokrycie: dachówka cementowa lub ceramiczna

Ogrzewanie - c.o. podłogowe + c.w.u. - kocioł gazowy,  c.w.u - kolektory słoneczne

Ogrzewanie - Wersja na zmówienie: c.o.+c.w.u. pompa ciepła powietrze woda

WENTYLACJA - rekuperacja

Na etapie adaptacji projektu istnieje możliwość zamiany materiałów na inne o podobnych właściwościach i parametrach technicznych. Pamiętaj! Projekt stanowi spójną całość i zmiana rozwiązań może wpłynąć na jego właściwości wytrzymałościowe i cieplne.

Dowiedz się więcej  

Szacunkowe koszty realizacji

Stan surowy zamknięty 427 300 zł
Stan deweloperski 676 300 zł

Szacunkowa wycena netto. Biuro projektowe nie zajmuje się realizacją inwestycji.

Dowiedz się więcej  

Wyceń bezpłatnie budowę domu u wykonawcy  

Wersje projektu Trogir (1)

Gotowy projekt domu Trogir II

Nowość

Projekt
Energo
Oszczędny

- 400 zł

Trogir II

DCP406a161,12m2

Nowoczesny dom z poddaszem użytkowym z dużymi przeszkleniami, dach dwuspadowy bez okapu, garaż jednostanowiskowy, duża kotłownia, salon z jadalnią i z antresolą, kuchnia ze spiżarnią, dodatkowy pokój na parterze, 4 sypialnie, 2 łazienki, pralnia

Opinie (0)

Opinie nie są weryfikowane pod kątem ich pochodzenia od konsumentów, którzy używali produktu lub go nabyli.

Polecane rozwiązania

Podobne projekty (9)

projekt Trogir należy do kategorii

Ostatnio oglądane