Rejkiawik to nowoczesny dom na wąską działkę, z dużymi przeszkleniami i z wjazdem od wschodu, o prostej formie i urozmaiconym detalu. Zadaszone wejście do domu jest ulokowane od północy. Z niego wejdziemy do wiatrołapu, który graniczy z kotłownią i garażem, oraz ze strefą dzienną, w której znajduje się półotwarta kuchnia z kontuarem, wydzielona strefa jadalni i salon. Duże przeszklenia od południa oraz narożnikowe od zachodu sprawiają, że promienie słońca będą wpadać do tej przestrzeni przez cały dzień. Obok znajduje się gabinet ( lub pokój gościnny) i łazienka. Strefa sypialniana przewidziana jest na poddaszu i tworzą ją trzy wygodne sypialnie, duża łazienka, garderoba i pralnia.
| EUco = 19,57kWh/(m²rok) |
| EP = 55,74kWh/(m²rok) |
Projekt zgodny z WT2021
| 1.1 | Wiatrołap | 3,76m2 |
| 1.2 | Komunikacja | 10,21m2 |
| 1.3 | Kuchnia | 10,03m2 |
| 1.4 | Salon, jadalnia | 34,05m2 |
| 1.5 | Gabinet | 12,31m2 |
| 1.6 | Łazienka | 4,05m2 |
| 1.7 | Pom.gosp., c.o. | 5,62m2 |
| 1.8 | Garaż | 23,57m2 |
| 1.9 | Podest | 12,20m2 |
| 1.10 | Taras | 28,08m2 |
| 1.11 | Pokój | 12,62m2 |
| 1.1 | Wiatrołap | 3,76m2 |
| 1.2 | Komunikacja | 10,21m2 |
| 1.3 | Kuchnia | 10,03m2 |
| 1.4 | Salon, jadalnia | 34,05m2 |
| 1.5 | Gabinet | 12,31m2 |
| 1.6 | Łazienka | 4,05m2 |
| 1.7 | Pom.gosp., c.o. | 5,62m2 |
| 1.8 | Garaż | 23,57m2 |
| 1.9 | Podest | 12,20m2 |
| 1.10 | Taras | 28,08m2 |
| 1.11 | Pokój | 12,62m2 |
| 2.1 | Hall | 8,07m2 |
| 2.2 | Pokój | 13,24m2 (16,79m2) |
| 2.3 | Schowek | 3,17m2 (4,69m2) |
| 2.4 | Pokój | 12,58m2 (15,92m2) |
| 2.5 | Pokój | 12,58m2 (15,92m2) |
| 2.6 | Łazienka | 5,08m2 (7,55m2) |
| 2.7 | Pralnia | 3,43m2 (5,99m2) |
| 2.8 | Schody | 4,50m2 |
| 2.1 | Hall | 8,07m2 |
| 2.2 | Pokój | 13,24m2 (16,79m2) |
| 2.3 | Schowek | 3,17m2 (4,69m2) |
| 2.4 | Pokój | 12,58m2 (15,92m2) |
| 2.5 | Pokój | 12,58m2 (15,92m2) |
| 2.6 | Łazienka | 5,08m2 (7,55m2) |
| 2.7 | Pralnia | 3,43m2 (5,99m2) |
| 2.8 | Schody | 4,50m2 |
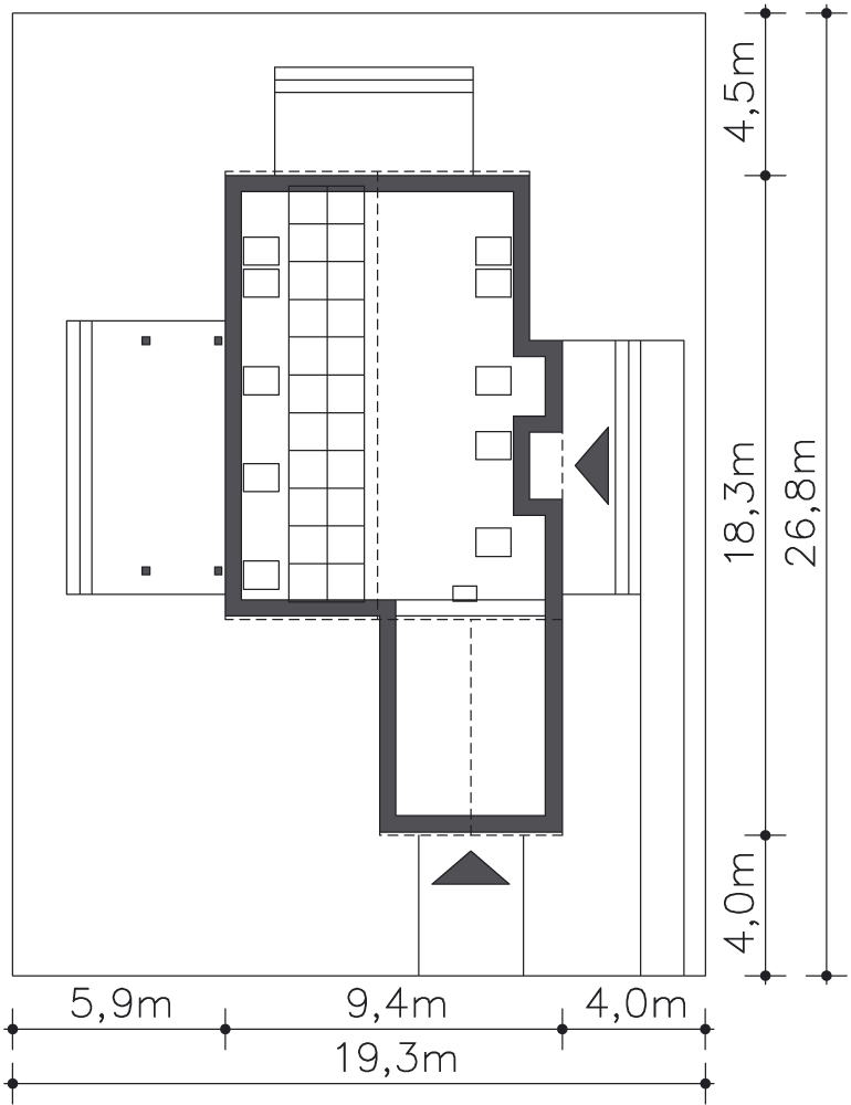
Grafika przedstawia minimalne wymiary działki. Aby sprawdzić, czy dom może być realizowany na konkretnej działce należy uzyskać Wypis i Wyrys z Miejscowego Planu Zagospodarowania Przestrzennego lub jeśli na danym terenie nie ma planu – Decyzję o warunkach zabudowy. Wszystkie projekty wymagają adaptacji do warunków miejscowych przez projektanta lokalnego.
Fundamenty - rozwiązanie o podwyższonej izolacji termicznej
Ściany zewnętrzne - Pustak ceramiczny 25 cm + styropian 20 cm
Strop - gęstożebrowy
Dach - tradycyjna więźba ciesielska
Ogrzewanie - c.o. podłogowe + c.w.u. - kocioł gazowy, c.w.u - kolektory słoneczne
WENTYLACJA - rekuperacja
Na etapie adaptacji projektu istnieje możliwość zamiany materiałów na inne o podobnych właściwościach i parametrach technicznych. Pamiętaj! Projekt stanowi spójną całość i zmiana rozwiązań może wpłynąć na jego właściwości wytrzymałościowe i cieplne.
| Stan surowy zamknięty | 390 700 zł |
| Stan deweloperski | 618 500 zł |
Szacunkowa wycena netto. Biuro projektowe nie zajmuje się realizacją inwestycji.
Rejkiawik II
DCP403a155,89m2
- 400 zł
Bergamo
DCP343138,43m2
Cena projektu:5170 zł5570 zł
Najniższa cena z 30 dni przed obniżką 5 570 zł
- 400 zł
Brunico II
LMP345a129,74m2
Cena projektu:4490 zł4890 zł
Najniższa cena z 30 dni przed obniżką 4 890 zł
- 400 zł
Luton
LMP346144,50m2
Cena projektu:5090 zł5490 zł
Najniższa cena z 30 dni przed obniżką 5 490 zł
- 400 zł
Tanger
DCP375132,15m2
Cena projektu:5570 zł5970 zł
Najniższa cena z 30 dni przed obniżką 5 970 zł
- 400 zł
Belfast IX
DCP268h123,98m2
Cena projektu:4870 zł5270 zł
Najniższa cena z 30 dni przed obniżką 5 270 zł
- 400 zł
Zadar
DCP404159,99m2
Cena projektu:7970 zł8370 zł
Najniższa cena z 30 dni przed obniżką 8 370 zł
- 400 zł
Medulin
DCP405156,05m2
Cena projektu:5470 zł5870 zł
Najniższa cena z 30 dni przed obniżką 5 870 zł
- 400 zł
Trogir II
DCP406a161,12m2
Cena projektu:5570 zł5970 zł
Najniższa cena z 30 dni przed obniżką 5 970 zł
- 400 zł
Valbella
DCP380145,89m2
Cena projektu:5370 zł5770 zł
Najniższa cena z 30 dni przed obniżką 5 770 zł
- 400 zł
Londyn
DCP377134,73m2
Cena projektu:5570 zł5970 zł
Najniższa cena z 30 dni przed obniżką 5 970 zł
- 400 zł
Helsinki
DCP381126,14m2
Cena projektu:5370 zł5770 zł
Najniższa cena z 30 dni przed obniżką 5 770 zł
Opinie (0)
Opinie nie są weryfikowane pod kątem ich pochodzenia od konsumentów, którzy używali produktu lub go nabyli.