PROMOCJA
ULUBIONE

Projekt domu

Tokio VII 151,45m²

DCP190f

 

Karta projektu Podziel się:

Opis projektu

Kolejna odsłona wygodnego projektu domu energooszczędnego z użytkowym poddaszem, o nowoczesnym rysie i bardzo funkcjonalnie rozplanowanym wnętrzu. Na parterze znajduje się przestronny salon oraz otwarta kuchnia z wyspą. Dzięki lokalizacji salonu od frontu dom z powodzeniem można zbudować na działce z wjazdem od strony południowej. Na parterze znajduje się także gabinet, łazienka, oraz pomieszczenie gospodarcze, w którym zlokalizowano pompę ciepła, z przejściem do garażu. Poddasze to wyraźna strefa nocna, z trzema sypialniami oraz dużą, komfortową łazienką. W tej wersji projektu przestrzeń nad garażem przerobiono na garderoby, dzięki czemu zapewniono dużo miejsca do przechowywania, niezbędnego w każdym domu.

Zapotrzebowanie Energetyczne

EUco = 20,91kWh/(m²rok)
EP = 69,72kWh/(m²rok)

Projekt zgodny z wt2021

Dowiedz się więcej  

Parter 95,28m2

Gotowy projekt domu Tokio VII rzut Parter

95,28m2

1.1 Wiatrołap 3,48m2
1.2 Komunikacja 3,77m2
1.3 Pokój dzienny 32,06m2
1.4 Kuchnia 9,68m2
1.5 Spiżarnia 0,93m2 (2,57m2)
1.6 Pokój 11,74m2
1.7 Łazienka 2,94m2
1.8 Pom.gosp. 3,20m2
1.9 Garaż 27,48m2
1.10 Taras 45,20m2
1.11 Podest 2,40m2
1.1 Wiatrołap 3,48m2
1.2 Komunikacja 3,77m2
1.3 Pokój dzienny 32,06m2
1.4 Kuchnia 9,68m2
1.5 Spiżarnia 0,93m2 (2,57m2)
1.6 Pokój 11,74m2
1.7 Łazienka 2,94m2
1.8 Pom.gosp. 3,20m2
1.9 Garaż 27,48m2
1.10 Taras 45,20m2
1.11 Podest 2,40m2

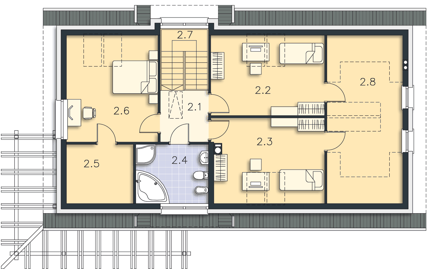
Poddasze 83,65m2

Gotowy projekt domu Tokio VII rzut Poddasze

83,65m2

2.1 Komunikacja 5,01m2
2.2 Pokój 13,31m2 (18,33m2)
2.3 Pokój 14,07m2 (18,94m2)
2.4 Łazienka 6,21m2 (8,58m2)
2.5 Garderoba 4,95m2 (7,89m2)
2.6 Pokój 15,52m2 (19,55m2)
2.7 Schody 5,76m2
2.8 Pokój 18,82m2 (25,49m2)
2.1 Komunikacja 5,01m2
2.2 Pokój 13,31m2 (18,33m2)
2.3 Pokój 14,07m2 (18,94m2)
2.4 Łazienka 6,21m2 (8,58m2)
2.5 Garderoba 4,95m2 (7,89m2)
2.6 Pokój 15,52m2 (19,55m2)
2.7 Schody 5,76m2
2.8 Pokój 18,82m2 (25,49m2)

Wymiary działki

Gotowy projekt domu Tokio VII wymiary działki

Przekrój

Gotowy projekt domu Tokio VII przekrój

Elewacje

Gotowy projekt domu Tokio VII elewacja przód Gotowy projekt domu Tokio VII elewacja lewa Gotowy projekt domu Tokio VII elewacja tył Gotowy projekt domu Tokio VII elewacja prawa

Działka

Grafika przedstawia minimalne wymiary działki. Aby sprawdzić, czy dom może być realizowany na konkretnej działce należy uzyskać Wypis i Wyrys z Miejscowego Planu Zagospodarowania Przestrzennego lub jeśli na danym terenie nie ma planu – Decyzję o warunkach zabudowy. Wszystkie projekty wymagają adaptacji do warunków miejscowych przez projektanta lokalnego.

Dowiedz się więcej  

Technologia projektu

Fundamenty - rozwiązanie o podwyższonej izolacji termicznej

Strop - gęstożebrowy

Dach - tradycyjna więźba ciesielska

Ogrzewanie - c.o. podłogowe + c.w.u. - pompa ciepła ze źródłem dolnym

WENTYLACJA - rekuperacja

Na etapie adaptacji projektu istnieje możliwość zamiany materiałów na inne o podobnych właściwościach i parametrach technicznych. Pamiętaj! Projekt stanowi spójną całość i zmiana rozwiązań może wpłynąć na jego właściwości wytrzymałościowe i cieplne.

Dowiedz się więcej  

Szacunkowe koszty realizacji

Stan surowy zamknięty 420 500 zł
Stan deweloperski 665 700 zł

Szacunkowa wycena netto. Biuro projektowe nie zajmuje się realizacją inwestycji.

Dowiedz się więcej  

Wyceń bezpłatnie budowę domu u wykonawcy  

Wersje projektu Tokio VII (6)

Gotowy projekt domu Tokio
Projekt
Energo
Oszczędny

- 400 zł

Tokio

DCP190128,83m2

Dom z poddaszem użytkowym i dachem dwuspadowym, odpowiedni na działki z wjazdem od południa, z czterema sypialniami i garażem jednostanowiskowym
Gotowy projekt domu Tokio II
Projekt
Energo
Oszczędny

- 400 zł

Tokio II

DCP190a128,83m2

Dom z poddaszem użytkowym i dachem dwuspadowym, odpowiedni na wąskie działki, z czterema sypialniami i garażem dwustanowiskowym, z wejściem od południa
Gotowy projekt domu Tokio III
Projekt
Energo
Oszczędny

- 400 zł

Tokio III

DCP190b129,08m2

Dom z poddaszem użytkowym i dachem dwuspadowym, z kuchnią od frontu, z czterema sypialniami i garażem jednostanowiskowym
Gotowy projekt domu Tokio IV
Projekt
Energo
Oszczędny

Tokio IV

DCP190c163,02m2

Dom z poddaszem użytkowym i dachem dwuspadowym, odpowiedni na działki z wjazdem od południa, z kotłownią za garażem, na rzucie prostokąta, z czterema sypialniami i garażem jednostanowiskowym
Gotowy projekt domu Tokio V
Projekt
Energo
Oszczędny

Tokio V

DCP190d136,03m2

Dom z poddaszem użytkowym i dachem dwuspadowym, odpowiedni na działki z wjazdem od południa, z piwnicą, z trzema sypialniami i garażem dwustanowiskowym
Gotowy projekt domu Tokio VI
Projekt
Energo
Oszczędny

Tokio VI

DCP190e129,08m2

Dom z poddaszem użytkowym i dachem dwuspadowym, odpowiedni na wąskie działki, z czterema sypialniami i garażem dwustanowiskowym, z wejściem od północy

Opinie (2)

18.07.2018

Lipińscy Domy

Po kliknięciu w wybrany rzut w prawym górnym rogu dostępna jest linijka.

Skomentuj

18.07.2018

dorota

Czy mozna na stronie sprawdzic wymiary pomieszczen?

Skomentuj

Opinie nie są weryfikowane pod kątem ich pochodzenia od konsumentów, którzy używali produktu lub go nabyli.

Polecane rozwiązania

Podobne projekty (6)

projekt Tokio VII należy do kategorii

Ostatnio oglądane