PROMOCJA
ULUBIONE

Projekt domu

Tokio VI 129,08m²

DCP190e

 

Karta projektu Podziel się:

Opis projektu

Ten dom jest propozycją na wąskie, miejskie działki – podobny do Tokio II, z tym, że w tej wersji wejście do domu jest z prawej strony garażu. Dom zatem pasuje na działki z wjazdem od wschodu. Cechą charakterystyczną domu jest duży i mocno przeszklony salon, który wraz z kuchnią i szeroką, oświetloną klatką schodową tworzy dzienną część domu. Taras dodatkowo powiększa tą przestrzeń, a drewniana pergola nadaje domu nowoczesny wygląd.

Zapotrzebowanie Energetyczne

EUco = 22,83kWh/(m²rok)
EP = 66,17kWh/(m²rok)

Projekt zgodny z wt2021

Dowiedz się więcej  

Parter 111,20m2

Gotowy projekt domu Tokio VI rzut Parter

111,20m2

1.1 Wiatrołap 4,20m2
1.2 Komunikacja 3,37m2
1.3 Pokój dzienny 36,19m2 (38,29m2)
1.4 Kuchnia 7,62m2
1.5 Spiżarnia 1,49m2
1.6 Pokój 10,56m2
1.7 Łazienka 2,94m2
1.8 Pom.gosp., c.o. 3,53m2
1.9 Garaż 41,30m2
1.10 Taras 39,07m2
1.11 Podest 3,40m2
1.12 Podest 2,40m2
1.1 Wiatrołap 4,20m2
1.2 Komunikacja 3,37m2
1.3 Pokój dzienny 36,19m2 (38,29m2)
1.4 Kuchnia 7,62m2
1.5 Spiżarnia 1,49m2
1.6 Pokój 10,56m2
1.7 Łazienka 2,94m2
1.8 Pom.gosp., c.o. 3,53m2
1.9 Garaż 41,30m2
1.10 Taras 39,07m2
1.11 Podest 3,40m2
1.12 Podest 2,40m2

Poddasze 59,18m2

Gotowy projekt domu Tokio VI rzut Poddasze

59,18m2

2.1 Komunikacja 5,18m2
2.2 Pokój 9,81m2 (13,69m2)
2.3 Pokój 11,46m2 (12,35m2)
2.4 Łazienka 6,37m2 (8,62m2)
2.5 Garderoba 5,06m2 (7,89m2)
2.6 Pokój 15,67m2 (19,55m2)
2.7 Schody 5,63m2
2.8 Taras 49,38m2
2.1 Komunikacja 5,18m2
2.2 Pokój 9,81m2 (13,69m2)
2.3 Pokój 11,46m2 (12,35m2)
2.4 Łazienka 6,37m2 (8,62m2)
2.5 Garderoba 5,06m2 (7,89m2)
2.6 Pokój 15,67m2 (19,55m2)
2.7 Schody 5,63m2
2.8 Taras 49,38m2

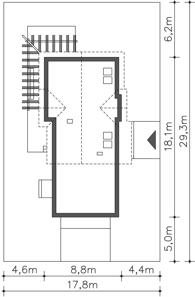
Wymiary działki

Gotowy projekt domu Tokio VI wymiary działki

Przekrój

Gotowy projekt domu Tokio VI przekrój

Elewacje

Gotowy projekt domu Tokio VI elewacja przód Gotowy projekt domu Tokio VI elewacja lewa Gotowy projekt domu Tokio VI elewacja tył Gotowy projekt domu Tokio VI elewacja prawa

Działka

Grafika przedstawia minimalne wymiary działki. Aby sprawdzić, czy dom może być realizowany na konkretnej działce należy uzyskać Wypis i Wyrys z Miejscowego Planu Zagospodarowania Przestrzennego lub jeśli na danym terenie nie ma planu – Decyzję o warunkach zabudowy. Wszystkie projekty wymagają adaptacji do warunków miejscowych przez projektanta lokalnego.

Dowiedz się więcej  

Technologia projektu

Fundamenty - rozwiązanie o podwyższonej izolacji termicznej

Ściany zewnętrzne - Bloczek silikatowy 24 cm + styropian 20 cm

Strop - gęstożebrowy

Dach - tradycyjna więźba ciesielska

Ogrzewanie - c.o. grzejnikowe + c.w.u. - kocioł gazowy

WENTYLACJA - grawitacyjna

Na etapie adaptacji projektu istnieje możliwość zamiany materiałów na inne o podobnych właściwościach i parametrach technicznych. Pamiętaj! Projekt stanowi spójną całość i zmiana rozwiązań może wpłynąć na jego właściwości wytrzymałościowe i cieplne.

Dowiedz się więcej  

Szacunkowe koszty realizacji

Stan surowy zamknięty 400 400 zł
Stan deweloperski 633 900 zł

Szacunkowa wycena netto. Biuro projektowe nie zajmuje się realizacją inwestycji.

Dowiedz się więcej  

Wyceń bezpłatnie budowę domu u wykonawcy  

Wersje projektu Tokio VI (6)

Gotowy projekt domu Tokio
Projekt
Energo
Oszczędny

Tokio

DCP190128,83m2

Dom z poddaszem użytkowym i dachem dwuspadowym, odpowiedni na działki z wjazdem od południa, z czterema sypialniami i garażem jednostanowiskowym
Gotowy projekt domu Tokio II
Projekt
Energo
Oszczędny

Tokio II

DCP190a128,83m2

Dom z poddaszem użytkowym i dachem dwuspadowym, odpowiedni na wąskie działki, z czterema sypialniami i garażem dwustanowiskowym, z wejściem od południa
Gotowy projekt domu Tokio III
Projekt
Energo
Oszczędny

Tokio III

DCP190b129,08m2

Dom z poddaszem użytkowym i dachem dwuspadowym, z kuchnią od frontu, z czterema sypialniami i garażem jednostanowiskowym
Gotowy projekt domu Tokio IV
Projekt
Energo
Oszczędny

Tokio IV

DCP190c163,02m2

Dom z poddaszem użytkowym i dachem dwuspadowym, odpowiedni na działki z wjazdem od południa, z kotłownią za garażem, na rzucie prostokąta, z czterema sypialniami i garażem jednostanowiskowym
Gotowy projekt domu Tokio V
Projekt
Energo
Oszczędny

Tokio V

DCP190d136,03m2

Dom z poddaszem użytkowym i dachem dwuspadowym, odpowiedni na działki z wjazdem od południa, z piwnicą, z trzema sypialniami i garażem dwustanowiskowym
Gotowy projekt domu Tokio VII
Projekt
Energo
Oszczędny

- 400 zł

Tokio VII

DCP190f151,45m2

Dom z poddaszem użytkowym i dachem dwuspadowym, odpowiedni na działki z wjazdem od południa, z czterema sypialniami, trzema garderobami i zadaszonym garażem jednostanowiskowym

Opinie (8)

17.07.2019

Lipińscy Domy

Wszystkie zmiany można wprowadzić w ramach adaptacji u lokalnego architekta.

Skomentuj

16.07.2019

Agata

Czy można zamienić kotłownię z łazienką i zrobić wejście do garażu przez kotłownię? Czy można zlikwidować 2 wykusze w tym okno przy schodach? C

Skomentuj

20.09.2018

Lipińscy Domy

Wszystkie zmiany można wprowadzić w ramach adaptacji lub u lokalnego architekta.

Skomentuj

20.09.2018

Mateusz

Ciekawy projekt! Ja bym zmodyfikowal to:
- kotlownie powiekszyc w powierzchnie garażu.
- zwezyc garaz od strony kotlowni,np. 480x520 zrobic,
- na poddaszu zamienić pom. 2.5+2.6 z pom. 2.3+2.4
- schody zelbetowe
I i pewnie pare zmian z drzwiami i oknami.
No i moglbym budowac :).

Skomentuj

29.03.2014

Lipińscy_Domy

Tak schody nie mają prawie żadnego znaczenia jeśli chodzi zapotrzebowanie cieplne budynku. Zmniejszenie okna klatki schodowej również prawie nic nie wpłynie na EUco, chociaż więcej jak zmiana konstrukcji schodów. Zależy jeszcze od strony świata, na którą to okno będzie wychodziło. Jeśli na północ to zmniejszone wręcz poprawi parametr Euco.

Skomentuj

16.03.2014

Tusmi

Czy w takim przypadku zamiany schodów z drewnianych ażurowych na żelbetowe dom wciąż spełnia normę EUco<40?

Skomentuj

22.11.2013

Lipinscy_Domy

Schody w projekcie są przewidziane jako drewniane ażurowe. Chcąc zrobić pod nimi schowek, trzeba by było raczej zrezygnować z dużego okna na klatce schodowej, a przynajmniej na wysokości schowka i przeprojektować schody na żelbetowe.

Skomentuj

20.11.2013

Romek

Czy pod schodami można by wygospodarować miejsce na schowek?

Skomentuj

Opinie nie są weryfikowane pod kątem ich pochodzenia od konsumentów, którzy używali produktu lub go nabyli.

Polecane rozwiązania

Podobne projekty (6)

projekt Tokio VI należy do kategorii

Ostatnio oglądane