PROMOCJA
ULUBIONE

Projekt domu

Startup 81,29m²

DCP368

PROMOCJA
- 400 zł
od 6 do 19 stycznia 2026

 

Karta projektu Podziel się:

Opis projektu

Nieduży, energooszczędny dom z płaskim dachem, o dwóch kondygnacjach, zwartej bryle i nowoczesnym wyglądzie. Niewielki metraż i funkcjonalnie rozplanowane wnętrze to idealna propozycja pierwszego domu dla niedużej rodziny lub pary – domu na życiowy start. Na parterze znajduje się salon z aneksem kuchennym i częścią jadalnianą, toaleta oraz pralnia, w której umieszczono kocioł gazowy. Druga kondygnacja, to strefa prywatna. Zlokalizowano w niej trzy ustawne sypialnie oraz wygodną łazienkę. Prosta bryła i architektura budynku sprawia, że jest on niedrogi w realizacji i późniejszej eksploatacji. W projekcie przewidziano ogrzewanie kotłem na gaz. Możliwa jest zmiana ogrzewania na pompę ciepła.

Zapotrzebowanie Energetyczne

EUco = 34,25kWh/(m²rok)
EP = 65,44kWh/(m²rok)

Projekt zgodny z wt2021

Dowiedz się więcej  

Parter 37,13m2

Gotowy projekt domu Startup rzut Parter

37,13m2

1.1 Wiatrołap 4,55m2
1.2 Komunikacja 1,71m2
1.3 Pokój dzienny 23,08m2
1.4 Wc 1,99m2 (2,14m2)
1.5 Pralnia, c.o. 5,80m2
1.6 Podest 8,64m2
1.7 Taras 16,59m2
1.8 Taras 11,90m2
1.9 Wiata garażowa 0m2
1.1 Wiatrołap 4,55m2
1.2 Komunikacja 1,71m2
1.3 Pokój dzienny 23,08m2
1.4 Wc 1,99m2 (2,14m2)
1.5 Pralnia, c.o. 5,80m2
1.6 Podest 8,64m2
1.7 Taras 16,59m2
1.8 Taras 11,90m2
1.9 Wiata garażowa 0m2

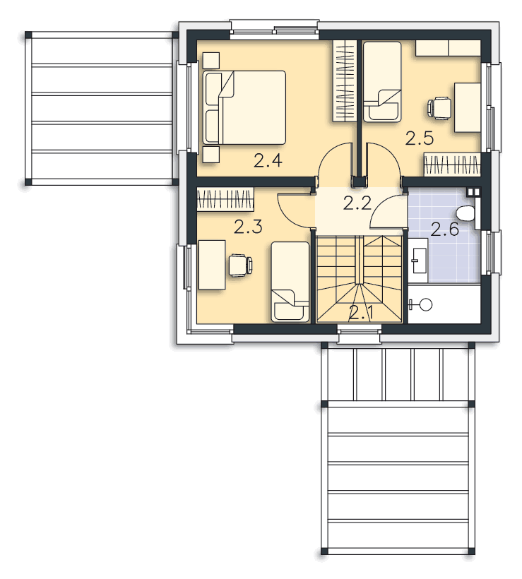
Piętro 44,16m2

Gotowy projekt domu Startup rzut Piętro

44,16m2

2.1 Schody 4,03m2
2.2 Komunikacja 2,46m2
2.3 Pokój 9,22m2
2.4 Pokój 12,99m2
2.5 Pokój 9,66m2
2.6 Łazienka 5,80m2
2.1 Schody 4,03m2
2.2 Komunikacja 2,46m2
2.3 Pokój 9,22m2
2.4 Pokój 12,99m2
2.5 Pokój 9,66m2
2.6 Łazienka 5,80m2

Wymiary działki

Gotowy projekt domu Startup wymiary działki

Przekrój

Gotowy projekt domu Startup przekrój

Elewacje

Gotowy projekt domu Startup elewacja przód Gotowy projekt domu Startup elewacja lewa Gotowy projekt domu Startup elewacja tył Gotowy projekt domu Startup elewacja prawa

Działka

Grafika przedstawia minimalne wymiary działki. Aby sprawdzić, czy dom może być realizowany na konkretnej działce należy uzyskać Wypis i Wyrys z Miejscowego Planu Zagospodarowania Przestrzennego lub jeśli na danym terenie nie ma planu – Decyzję o warunkach zabudowy. Wszystkie projekty wymagają adaptacji do warunków miejscowych przez projektanta lokalnego.

Dowiedz się więcej  

Technologia projektu

Fundamenty - rozwiązanie o podwyższonej izolacji termicznej

Strop - gęstożebrowy

Dach - stropodach żelbetowy

Ogrzewanie - c.o. podłogowe + c.w.u. - kocioł gazowy

Ogrzewanie - Wersja na zmówienie: c.o.+c.w.u. pompa ciepła powietrze woda

WENTYLACJA - rekuperacja

Na etapie adaptacji projektu istnieje możliwość zamiany materiałów na inne o podobnych właściwościach i parametrach technicznych. Pamiętaj! Projekt stanowi spójną całość i zmiana rozwiązań może wpłynąć na jego właściwości wytrzymałościowe i cieplne.

Dowiedz się więcej  

Szacunkowe koszty realizacji

Stan surowy zamknięty 191 100 zł
Stan deweloperski 302 400 zł

Szacunkowa wycena netto. Biuro projektowe nie zajmuje się realizacją inwestycji.

Dowiedz się więcej  

Wyceń bezpłatnie budowę domu u wykonawcy  

Opinie (27)

29.02.2024

XY

Z jakich warstw skład się pokrycie stropodachu? Warstwą wierzchnią jest papa czy mata EPDM? Jaki sposób odwodnienia dachu płaskiego przewidziano w projekcie?

Skomentuj

18.01.2024

OP

W jaki sposób przewidziana jest realizacja instalacja kanałów rekuperacji? Zatopione w stropie i stropodachu czy może podwieszane i ukryte w suficie podwieszanym?

22.01.2024

Lipińscy Domy

Projekt instalacji rekuperacji zawarty w dokumentacji nie jest projektem wykonawczym, wykonuje go firma dostarczająca rozwiązania. W związku z tym, że nie został przewidziany w projekcie sufit podwieszany i nie ma na niego miejsca, przewody będą musiały być przeprowadzone w stropie. Rozprowadzenie głównych kanałów należy wykonać wzdłuż ścian i podciągów. Po skończonym montażu instalację należy obudować płytami G-K.

Skomentuj

21.06.2023

Mateusz

Czy byłaby możliwość instalacji małego kominka w salonie? Na przykład w rogu ściany, na której na projekcie znajduje się TV?

21.06.2023

Lipińscy Domy

Jest możliwość doprojektowania kominka, ale trzeba uwzględnić, że komin zabierze trochę miejsca również w sypialni na piętrze, a nie jest ona zbyt duża.

Skomentuj

15.10.2020

Beata Bąk

Zmiany zamknięcia przedsionka Czy można zamknąć przedsionek przy wejściu w trakcie budowy?

16.10.2020

Lipińscy Domy

Tego typu zmianę trzeba wykonać na etapie projektowym w ramach adaptacji, ponieważ wymaga ona wykonania fundamentu pod ścianę zewnętrzną.

Skomentuj

25.06.2019

Lipińscy Domy

Możemy wydać bezpłatną zgodę na taką zmianę u lokalnego architekta w ramach adaptacji.

Skomentuj

20.06.2019

Michał

Czy możliwy jest projekt domu Startup z dachem jak w Belfast VIII?

Skomentuj

06.05.2019

Lipińscy Domy

Dwa wnętrza widoczne na karcie powyżej to wizualizacje komputerowe.

Skomentuj

06.05.2019

Grazyna

Te wnetrza sa komputerowe czy to forografie?

Skomentuj

30.04.2019

Lipińscy Domy

Można doprojektować garaż i zrobić dach odwrócony.
Więcej informacji w zakładce "Zmiany w projektach".

Skomentuj

29.04.2019

Ewa

Czy projekt przewiduje opcje z garazem?
Czy mozna zastosowac odwrocony dach, inna opcje dachu, etc ?

Skomentuj

18.04.2019

Lipińscy Domy

Projekt jest dostępny. Czas opracowania to około 4 tygodnie od zamówienia.

Skomentuj

18.04.2019

Cyr

"Projekt w trakcie opracowywania, prosimy o kontakt w celu podania orientacyjnego terminu realizacji zamówienia. "
Ten projekt jest już dostępny czy nie?

Skomentuj

18.03.2019

Lipińscy Domy

Możemy je wprowadzić za dodatkową opłatą lub wydać bezpłatną zgodę (szczegóły w zakładce dotyczącej zmian w projektach).

Skomentuj

15.03.2019

Magdalena K.

Witam, jak wyglądają zmiany w zakresie powiększenia tj wydłużenia bryły budynku? Mam na myśli powiększenie salonu i kuchni o 1-2metry, a tym samym powieszenie górnej części sypialnianej. Czy sa to zmiany do zrealizowania przez Państwa? Czy wymagają jedynie zgody?

Skomentuj

25.02.2019

Karol Wścieklicki

Witam.
Poszukuje kogos kto realizuje ten projekt w woj. mazowieckim.
pozdrawiam

Skomentuj

20.12.2018

Lipińscy Domy

Jest taka możliwość.
Wydamy bezpłatną zgodę na zmiany.

Skomentuj

18.12.2018

Darek

Czy byłaby możliwość zainstalowania dodatkowego wejścia z zewnętrzn do kotłowni i wykorzystanie miejsca pod schodami np. na rowery itp.?

Skomentuj

30.08.2018

wujek

Ja tam ten projekt bym zbudował w szkielecie drewnianym z tymi zmianami co poprzednio wypisałem i myślę że zapotrzebowanie na ciepło by spadło poniżej 20kWh/m2 lub nawet poniżej 15kWh/m2 przy grubszej izolacji.

Skomentuj

28.08.2018

Lipińscy Domy

Wszystkie zmiany można wprowadzić np. w ramach adaptacji.
Projektujemy uniwersalnie i szukamy kompromisu między kosztami budowy a kosztami eksploatacji.

Skomentuj

28.08.2018

Lipińscy Domy

Prawdopodobnie chodzi o kubaturę 6,5m3?

Skomentuj

25.08.2018

Sebastian

Witam, a jak ma się rozmiar kotłowni w powyższym projekcie do wymogów prawa budowlanego?
Przy ogrzewaniu gazowym (kocioł zamknięty) minimalna powierzchnia pomieszczenia to 6,5 m2.

Skomentuj

22.08.2018

wujek

Fajny projekt małego domku. Niby mały a wszystko mieści co trzeba. Jest ten projekt dostępny w wersji szkieletu drewnianego? Jak dla mnie bardzo dobry tylko w wersji lustrzanego odbicia. Wejście od północy, a ściana zachodnia bez okien aby przybliżyć się do granicy działki na 3m. Wtedy w salonie okno zachodnie przenosi się na południe, duże okno południowe zmniejsza się do 2m szerokości i oszczędza na cenie okna. W gospodarczym i łazience wystarczy okno 80x125cm z h=100cm i też niższa cena. Po co takie wielkie okna w tych pomieszczeniach? Wygląda to tylko ładnie ale mało praktyczne a zwiększa koszt. Na piętrze w pokoju 2.3 wywalić narożne okno które tylko mnoży koszty i dać zwykłe 180x140 z h=85cm na ścianie północnej. W pokoju 2.4 likwidacja okna na zachodniej ścianie a na południowej 200x140 h=85 oraz takie okno na południowej ścianie w pokoju 2.5 bez okna na wschodzie. Wtedy więcej okien od południa mamy przez co EUco będzie jeszcze niższe a jak do tego zrobi się płytę fundamentową to już wynik powinien spaść poniżej 20kWh/m2 przy dobrej izolacji, szczelności z WM i dobrych oknach. Cenowo będzie przystępnie i można mieć bardzo tanio fajny domek tani w utrzymaniu. Do ogrzewania można dać panele na podczerwień lub kable czy folie grzewcze przez co koszt inwestycji będzie niski, a przez dużą energooszczędność i mały metraż rachunki za dogrzanie będą niezauważalne. Jakby się jeszcze dało panele na dach to i nawet nic by się nie płaciło za prąd więc wypasik. To jest takie proste, więc dlaczego wy jako architekci nie proponujecie ludziom tanie i proste rozwiązania które mogą być dostępne dla nawet mniej zamożnych rodzin?

Skomentuj

18.07.2018

Lipińscy Domy

Tak, może to być spiżarnia z kotłem gazowym.

Skomentuj

18.07.2018

Karolina

Ale super lodówka. Pomieszczenie obok kuchni może też służyć jako spiżarnia? Kocioł gazowy?

Skomentuj

Opinie nie są weryfikowane pod kątem ich pochodzenia od konsumentów, którzy używali produktu lub go nabyli.

Polecane rozwiązania

Podobne projekty (7)

projekt Startup należy do kategorii

Ostatnio oglądane