PROMOCJA
ULUBIONE

Projekt domu

Belfast 103,83m²

DCP268

PROMOCJA
- 400 zł
od 3 do 17 marca 2026

 

Karta projektu Podziel się:

Opis projektu

Piętrowy dom energooszczędny, idealna propozycja dla miłośników nowoczesności. Jasna, prosta bryła ozdobiona została elementami z drewna i stali. Duże przeszklenia nadają wnętrzu przestronności i doskonale je doświetlają. Na parterze zaplanowano połączoną z salonem kuchnię, spiżarnię, sypialnię, łazienkę i pomieszczenie gospodarcze. Piętro mieści 3 sypialnie, garderobę i wygodną łazienkę. W bryłę domu wkomponowano garaż na dwa auta, na dachu którego znajduje się wygodny taras. Dom doskonale nadaje się na wąską działkę.

Zapotrzebowanie Energetyczne

EUco = 24,98kWh/(m²rok)
EP = 63,36kWh/(m²rok)

Projekt zgodny z wt2021

Dowiedz się więcej  

Parter 82,95m2

Gotowy projekt domu Belfast rzut Parter - projekt Ludwika Juchniewicz-Lipińska, Miłosz Lipiński

82,95m2

1.1 Wiatrołap 3,27m2
1.2 Komunikacja 2,27m2
1.3 Schody 2,11m2
1.4 Spiżarnia 1,05m2 (2,03m2)
1.5 Salon z kuchnią 28,23m2
1.6 Pokój 8,99m2
1.7 Łazienka 2,75m2
1.8 Pom.gosp. 2,41m2
1.9 Kotłownia 2,80m2
1.10 Garaż 29,07m2
1.11 Podest 5,28m2
1.12 Taras 18,96m2
1.1 Wiatrołap 3,27m2
1.2 Komunikacja 2,27m2
1.3 Schody 2,11m2
1.4 Spiżarnia 1,05m2 (2,03m2)
1.5 Salon z kuchnią 28,23m2
1.6 Pokój 8,99m2
1.7 Łazienka 2,75m2
1.8 Pom.gosp. 2,41m2
1.9 Kotłownia 2,80m2
1.10 Garaż 29,07m2
1.11 Podest 5,28m2
1.12 Taras 18,96m2

Piętro 52,75m2

Gotowy projekt domu Belfast rzut Piętro - projekt Ludwika Juchniewicz-Lipińska, Miłosz Lipiński

52,75m2

2.1 Komunikacja 4,72m2
2.2 Pokój 10,68m2
2.3 Pokój 9,27m2
2.4 Garderoba 2,92m2
2.5 Pokój 11,15m2
2.6 Łazienka 9,85m2
2.7 Schody 4,16m2
2.8 Taras 32,36m2
2.1 Komunikacja 4,72m2
2.2 Pokój 10,68m2
2.3 Pokój 9,27m2
2.4 Garderoba 2,92m2
2.5 Pokój 11,15m2
2.6 Łazienka 9,85m2
2.7 Schody 4,16m2
2.8 Taras 32,36m2

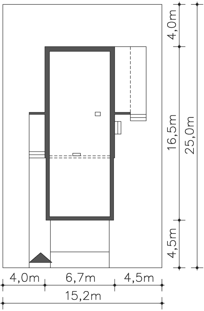
Wymiary działki

Gotowy projekt domu Belfast wymiary działki

Przekrój

Gotowy projekt domu Belfast przekrój

Elewacje

Gotowy projekt domu Belfast elewacja przód - projekt Ludwika Juchniewicz-Lipińska, Miłosz Lipiński Gotowy projekt domu Belfast elewacja lewa - projekt Ludwika Juchniewicz-Lipińska, Miłosz Lipiński Gotowy projekt domu Belfast elewacja tył - projekt Ludwika Juchniewicz-Lipińska, Miłosz Lipiński Gotowy projekt domu Belfast elewacja prawa - projekt Ludwika Juchniewicz-Lipińska, Miłosz Lipiński

Działka

Grafika przedstawia minimalne wymiary działki. Aby sprawdzić, czy dom może być realizowany na konkretnej działce należy uzyskać Wypis i Wyrys z Miejscowego Planu Zagospodarowania Przestrzennego lub jeśli na danym terenie nie ma planu – Decyzję o warunkach zabudowy. Wszystkie projekty wymagają adaptacji do warunków miejscowych przez projektanta lokalnego.

Dowiedz się więcej  

Technologia projektu

Fundamenty - płyta fundamentowa

Ściany zewnętrzne - Bloczek silikatowy 24 cm + styropian 20 cm

Strop - gęstożebrowy

Dach - stropodach gęstożebrowy

Ogrzewanie - c.o. podłogowe + c.w.u. - pompa ciepła ze źródłem dolnym

WENTYLACJA - rekuperacja

Na etapie adaptacji projektu istnieje możliwość zamiany materiałów na inne o podobnych właściwościach i parametrach technicznych. Pamiętaj! Projekt stanowi spójną całość i zmiana rozwiązań może wpłynąć na jego właściwości wytrzymałościowe i cieplne.

Dowiedz się więcej  

Szacunkowe koszty realizacji

Stan surowy zamknięty 318 900 zł
Stan deweloperski 504 900 zł

Szacunkowa wycena netto. Biuro projektowe nie zajmuje się realizacją inwestycji.

Dowiedz się więcej  

Wyceń bezpłatnie budowę domu u wykonawcy  

Wersje projektu Belfast (8)

Gotowy projekt domu Belfast II
Projekt
Energo
Oszczędny

Belfast II

DCP268a162,30m2

Nowoczesny, reprezentacyjny dom z piętrem i płaskim dachem: pokój dzienny z narożnikowym przeszkleniem, kuchnia z wyspą, cztery sypialnie, w tym master bedroom, pokój kąpielowy, garaż na dwa auta.
Gotowy projekt domu Belfast III
Projekt
Energo
Oszczędny

- 400 zł

Belfast III

DCP268b132,49m2

Nowoczesny dom pietrowy z płaskim dachem, z dużymi przeszkleniami nadającymi bryle lekkości i elegancji: pokój dzienny z kuchnią i jadalnią, gabinet, trzy sypialnie, dwie łazienki, garaż dwustanowiskowy.
Gotowy projekt domu Belfast IV
Projekt
Energo
Oszczędny

- 400 zł

Belfast IV

DCP268c132,49m2

Średniej wielkości, nowoczesny dom z piętrem i dachem dwuspadowym: pokój dzienny z kuchnią i jadalnią, cztery sypialnie, pokój kapielowy, garaż dwustanowiskowy.
Gotowy projekt domu Belfast V
Projekt
Energo
Oszczędny

- 400 zł

Belfast V

DCP268d103,83m2

Mały, nowoczesny dom z pełnym piętrem, przekryty dwuspadowym dachem, idealny na wąskie działki: pokój dzienny z kuchnią i spiżarką, cztery sypialnie, dwie łazienki, garaż dwustanowiskowy, pom.c.o. taras.
Gotowy projekt domu Belfast VI
Projekt
Energo
Oszczędny

- 400 zł

Belfast VI

DCP268e104,31m2

Mały, nowoczesny dom z pietrem i płaskim dachem, idealny dla miłośników prostoty i elegancji: pokój dzienny z narożnikowym przeszkleniem, otwartą kuchnią, cztery sypialnie, dwie łazienki , dwustanowiskowy garaż.
Gotowy projekt domu Belfast VII
Projekt
Energo
Oszczędny

Belfast VII

DCP268f162,30m2

Duży, nowoczesny dom energooszczędny, z piętrem i dachem kopertowym: pokój dzienny z narożnym przeszkleniem, kuchnia z wyspą, cztery sypialnie w tym master bedroom, pokój kąpielowy, garaż na dwa auta.
Gotowy projekt domu Belfast VIII
Projekt
Energo
Oszczędny

Belfast VIII

DCP268g168,84m2

Nowoczesny dom energooszczędny, z piętrem i dachem dwuspadowym: pokój dzienny z narożnikowym przeszkleniem, kuchnia z wyspą, cztery duże sypialnie, dwie łazienki, pralnia, garaż dwustanowiskowy.
Gotowy projekt domu Belfast IX
Projekt
Energo
Oszczędny

- 400 zł

Belfast IX

DCP268h123,98m2

Nowoczesny dom piętrowy z dwuspadowym dachem, idealny na wąskie działki: przeszklony pokój dzienny, otwarta kuchnia, cztery sypialnie, dwie łazienki, garaż dwustanowiskowy z pomieszczeniem c.o.

Opinie (128)

17.04.2018

Lipińscy Domy

Można zrobić np. kuchnię w miejscu sypialni 1.6 oraz wprowadzić zmiany w garażu.
Możemy wydać bezpłatną zgodę na takie zmiany w ramach adaptacji u lokalnego architekta.

Skomentuj

16.04.2018

JustynaMZ

Miałam na myśli o małe pomieszczenie dodatkowe z wejściem od strony garażu.

Skomentuj

16.04.2018

Justyna MZ

Witam,
Chciałabym zapytać, czy jest możliwość, aby na dole nie było sypialni, a w zamian za to przeorganizować większy salon z jadalnią, a częściowo powiększyć cześć garażową na małe dodatkowe pomieszczenie?

Skomentuj

22.05.2017

Lipinscy_Domy

Nie ma możliwości, żeby budynek miał 6m wysokości.
Można zwiększyć powierzchnię salonu.
Szczegóły: biuro@lipinscy.pl

Skomentuj

05.05.2017

Magda

Witam
Chciałabym zapytać czy jest możliwość zmiejszenia wysokości kalenicy do 6m i powiekszenia troche salonu aby zniescic się w powierzchni zabudowy 118m

Skomentuj

03.03.2017

iza

Witam,
Firma projektowo-wykonawcza nam bynajmniej odradziła podpiwniczenie ze względu na wysokie koszta do wersji Belfast 134m4 obliczyli na około 40 tyś. Mamy w planie dach 12/22st projektant jest na etapie wprowadzania zmian - dach będzie 22st. Mam przygotowaną również wizualizację dachu nad garażem - jesteśmy jeszcze na etapie decyzji czy zostawiamy taras czy zadaszamy :)

Skomentuj

16.01.2017

Michał

W stanie surowym otwartym budowa wyniosła mnie ok 150 000 zł. Najkosztowniejszy okazał się beton, natomiast na dach położyłem styropian, a nie watę jak w projekcje z powodu własnych złych doświadczeń z zawilgoceniem waty.

Skomentuj

09.01.2017

Lipinscy_Domy

Podane zmiany można nanosić w ramach adaptacji. Wycenę realną przygotować może firma wykonawcza.
My operujemy jedynie cenami z Sekocenbudu.

Skomentuj

09.01.2017

Kamil

Witam,
Czy taras nad garażem w projekcie Belfast może być lekkiej konstrukcji np. drewniany z racji niskich obciążeń?
Pozdrawiam

Skomentuj

08.01.2017

Kamil

Witam,

Czy dom Belfast można zbudować z keramzytu?
Czy można zamówić kosztorys właśnie z uwzględnieniem tej technologii?

Pozdrawiam

Skomentuj

30.12.2016

Lipinscy_Domy

Kontakt z budującymi na Facebooku:
https://www.facebook.com/groups/374753112914072/

Skomentuj

29.12.2016

Remigiusz

Witam. Prosze o podanie mi kosztów budowy takiego domu w stanie zamkniętym developrskim. Podoba mi się ten dom,ale nie wiem, czy moje zamiary są adekwatne do stanu portfela. Nie wierzę w wyliczenia projektanta,bo wiem,że real może być bolesny. Prosze o info, kogoś kto już jest w trakcie budowy, lub już po ;) Pozdrawiam.

Skomentuj

22.12.2016

Alek2004

Witam czy może mi ktoś naświetlić mniej więcej koszt w stanie surowym otwartym?
Działka jest a jestem na etapie wybierania projektu.

Pozdrawiam

Skomentuj

06.10.2016

Lipinscy_Domy

Zainteresowanych projektami Belfast zapraszamy do grupy na Facebooku:
https://www.facebook.com/groups/374753112914072/

Skomentuj

04.08.2016

sushina

Witam, czy ktoś już skończył budowę tego domu, albo jest w trakcie? chodzi mi o orientacyjne koszty oraz o zdjęcia.
ilonakoziel87@gmail,com

Skomentuj

13.07.2016

Lipinscy_Domy

Można dostosować projekt. Prosimy o kontakt: biuro@lipinscy.pl

Skomentuj

12.07.2016

kowal klara

mam pytanie czy dom belfast możne przeprojektować na dom dwu lokalowy

Skomentuj

30.06.2016

Renata

Witam. Czy ktos moze podac mi koszt budowy tego projectu? renia0114@wp.pl

Skomentuj

17.04.2016

Jagoda

Witam,
czy ktokolwiek orientuje się jak wyglądają orientacyjne koszty budowy tego projektu?
Najlepiej w stanie surowym, zamkniętym i pod klucz.
Z góry dziękuje!
poziome3ka@o2.pl

Skomentuj

09.02.2016

Emilia

witam, ale cudo!!! czy ktoś wybudował taki dom, bądź inny z płaskim dachem w okolicy Wrocławia?? urzędnicy straszą, że nie ma szans na płaski dach ze względu na PZP!

Skomentuj

29.12.2015

Lipinscy_Domy

Zdjęć niestety nie posiadamy. Jeśli chodzi o szczegóły dotyczące zmian prosimy o kontakt: biuro@lipinscy.pl

Skomentuj

19.12.2015

Iza

Dziękuję za poniższą odp. Mam kolejne pytania. Po pierwsze, co ktoś budował ten dom z podpiwniczeniem? Czy lepiej jest, aby było ono pod domem, czy pod garażem. Czy wówczas nie bedzie sytuacji, że obydwie części (dom i garaż) nie będą jednakowo "pracowały". Czy piwnica w tym projekcie jest w ogóle dobrym pomysłem ? Zastanawia mnie, czy nie lepiej zamiast tarasu zrobić nad garażem dachu, czy wówczas obniży to koszty? Czy mają państwo więcej zdjęć z realizacją tego projektu? Widziałam na fb w wersji z dachem dwuspadowym i na tym koniec. Ogólnie jesteśmy zdecydowani na ten projekt na 99%

Skomentuj

14.12.2015

Lipinscy_Domy

Można doprojektować piwnicę w ramach adaptacji i zmienić ogrzewanie na paliwo stałe.

Skomentuj

13.12.2015

Iza

Witam, czy jest możliwość uwzględnienia w tym projekcie częściowego podpiwniczenia (np. Pod garażem) w celu zastosowania ogrzewania na eko groszek lub tradycyjny węgiel? Jaki jest koszt naniesienia tych zmian?

Skomentuj

15.06.2015

dzudik77

Witam! Czy moze mi ktos napisac jaki jest koszt budowy domu w stanie surowym? Moj e-mail dzudik77@wp.pl

Skomentuj

15.06.2015

Lipinscy_Domy

Rekuperacja jest już uwzględniona.

Skomentuj

05.06.2015

Zuza

Czy roczne koszty ogrzewania domu są szacowane już z uwzględnieniem rekuperacji, czy dodatkowo można je obniżyć poprzez montaż takiej instalacji?

Skomentuj

27.05.2015

Kasia

Witam
czy ktoś już wybudował ten dom (Belfast) jeżeli tak proszę o kontakt k.matura@bcontrol.pl byłabym bardzo wdzięczna o kilka wskazówek oraz gdyby można było zobaczyć :)

Skomentuj

25.05.2015

Zuza

Jedyny! Marzę, by w nim zamieszkać :) Czy można gdzieś obejrzeć real foto z budowy, a może nawet gotowe aranżacje wnętrz?

Skomentuj

10.04.2015

Karol K

Projekt marzenie! Prosty, przemyślany i do tego piękny! :)

Skomentuj

26.02.2015

Lipinscy_Domy

Szanowni Inwestorzy, jeśli jest taka możliwość prosimy o przesłanie zdjęć z realizacji projektu na naszego maila: biuro@lipinscy.pl lub o publikację ich na naszym profilu na Facebooku https://pl-pl.facebook.com/Lipinscy.Domy

Skomentuj

20.02.2015

danso

do dawid- my zapłaciliśmy niecałe 30 tyś zł za okna

Skomentuj

22.11.2014

dawid

czy ktoś się orientuje ile ee kosztuje kompleta stolarka okienna ?

Skomentuj

15.10.2014

Marcin

Witam,

Jeśli można to proszę wysłać plan zagospodarowania na e-mail: agent12@poczta.onet.pl.

Skomentuj

09.09.2014

Elizap

Ja buduje na działce poniżej 13 m, trochę się nagimnastykowalam, ale to możliwe. Zgodnie z prawem budowlanym, jeśli działka ma poniżej 15m można budować w ostrej granic lub 1,5 metra od granicy.

Plan zagospodarowania mogę wysłać na priv.

Skomentuj

18.08.2014

Lipinscy_Domy

Możliwe jest przeprojektowanie dachu. Można również zastosować panele na konstrukcji wsporczej montowane pod odpowiednim kątem na dachu płaskim. Najlepiej zwrócić się z zapytaniem do firm wykonujących instalacje paneli fotowoltaicznych.

Skomentuj

17.08.2014

jurandooo

Witam czy istnieje możliwość pochylenia dachu na 15 stopni pod panele fotowoltaiczne bez zmian powierzchni tylko końcowka dachu w pokojach uchylona?

Skomentuj

25.07.2014

Katarzyna

Ja już czekam na pozwolenie na budowe pieknego Belfastu .Projekt w całości poszerzony o jeden metr wiele zmian na parterze kuchnia na miejscu kominka a w kuchni salon :) Piętro bez zmian w związku z tym tez okna trochę zmieniliśmy .Budować będziemy z prafabrykowanych ścian keramzytowych. Wymienie sie doświadczeniami jeśli ktos buduje też Belfast

Skomentuj

24.07.2014

Lipinscy_Domy

Tak. Można utworzyć czwarty pokój w miejscu dużej łazienki i małą łazienkę w miejscu garderoby. Wymaga to pewnych zmian instalacyjnych.

Skomentuj

24.07.2014

hanzlik

czy istnieje możliwość przeprojektowania tak, aby na piętrze były 4 sypialnie i łazienka?

Skomentuj

15.07.2014

Lipinscy_Domy

Projekt kwalifikuje się do programu jako dom do 100 mkw ze względu na sporo wbudowanych szaf, które w ujęciu programu pomniejszają powierzchnię użytkową.

Skomentuj

13.07.2014

Konrad

Dziękuję za szybką odpowiedź.
Mam pytanie co do programu Mdm i tego projektu.
Czy projekt kwalifikuje się do programu jako dom do 100m2 czy do 110m2 czyli wymagana jest trójka dzieci ?
Jeżeli do 110m2 to czy można to jakoś obejść żeby zmniejszyć powierzchnię poniżej 100m2 ? (np. w nazewnictwie pomieszczeń? -> http://mieszkaniedlamlodych.com/wp-content/uploads/2014/04/jak-obejsc-limity-w-programie-mdm-mieszkanie-dla-mlodych.gif


Skomentuj

11.07.2014

Lipinscy_Domy

Jest taka możliwość, ale trzeba będzie zmienić kierunek spadku tarasu "na bok" garażu, ponieważ teraz przewidziany jest w stronę wjazdu.

Skomentuj

11.07.2014

Lipinscy_Domy

Odległość od granicy 4,5 m wynika z przepisów, natomiast gdyby zwęzić taras o 0,5 m lub w ogóle zrezygnować z tarasu wylewanego i zrealizować go jako ziemny np. z kostki, to można by zrealizować ten dom na działce 14,9 m.

Skomentuj

11.07.2014

Konrad

Witam!

Mam spore potrzeby garażowe. Dwa samochody + dwa motocykle + rowery i masa narzędzi do obsługi wyżej wymienionych :)
Czy jest możliwość wydłużenia garażu o ok 4-5 metrów ? Mam działkę 24x52 więce killka metrów mniej mnie nie zbawi :)

Skomentuj

30.06.2014

Marcin

I z czego wynika to 4,5 m z jednej strony ?? moja działka jest wąska ale długa na ok. 30 m

Skomentuj

30.06.2014

Marcin

Witam,

Szerokość mojej działki to ok. 14,9 m. Czy będę mógł na takiej działce postawić ten dom ??

Skomentuj

30.05.2014

EditC

witam. mam do odsprzedania powiększony projekt Belfasta z opcją ogrodu na dachu . więcej informacji na EditC@poczta.onet.pl

Skomentuj

24.05.2014

Michal

Rowniez chetnie zobaczylbym jakies zdjecia;)

Skomentuj

23.05.2014

marek K

Będziecie robić fotorelację? :)

Skomentuj

17.04.2014

adamski

rusza budowa pozwolenie uzyskane jutro geodeci wytyczą budynek w razie pytań e mail adamski_79@o2.pl

Skomentuj

14.03.2014

Lipinscy_Domy

Można zmniejszyć garaż, ale odległość od drogi jest regulowana warunkami zabudowy, więc może się okazać, że trzeba będzie dom odsunąć bardziej niż 4,5 m od granicy i w takim przypadku, być może trzeba będzie w ogóle zrezygnować z garażu.

Skomentuj

14.03.2014

Lipinscy_Domy

Projekt nie przewiduje ani płyty fundamentowej, ani ogrzewania podłogowego, więc trzeba by było zaprojektować te elementy osobno. Rozwiązanie fundamentów jest bardzo podobne do tradycyjnego, a ogrzewanie c.o. jest grzejnikowe.

Skomentuj

10.03.2014

Aneta

Witam. Projekt jest rewelacyjny jak dla mnie:)Chciałam zapytać czy można w jakiś sposób zmniejszyć dom aby zmieścił sie na działce o szerokości 21m i długości 22,66m. Moze zmniejszyc garaz?

Skomentuj

02.03.2014

szulceer

Witam. Mam pytanie do pracowni czy ten dom jest budowany na płycie fundamentowej z ogrzewaniem podlogowym parteru ?? Jak to sie ma w projekcie czy trzeba do tego wykonac dodatkowy projekt takiej plyty fundamentowej.
Pozdrawiam.

Skomentuj

25.02.2014

Lipinscy_Domy

Długość ścianki wynosi 261 cm. Można ją zmierzyć klikając na rzut i na powiększeniu wybierając jako narzędzie miarkę.

Skomentuj

12.02.2014

Kasia

Proszę podać długość ścianki na której jest kominek .

Skomentuj

10.02.2014

Lipinscy_Domy

Możemy wysłać na prośbę mailową zestawienie stolarki, którą może Pani wycenić już w konkretnej firmie, bądź w kilku dla porównania.

Skomentuj

06.02.2014

Anna

Mam jedno pytanie czy mogą państwo podać wycenę stolarki okiennej dla całego projektu dziękuje.

Skomentuj

31.01.2014

Lipinscy_Domy

Wymiary pomieszczeń i poszczególnych elementów można pomierzyć powiększając rzut i korzystając z narzędzia "linijka" umieszczonego w prawym górnym rogu okna z powiększonym rzutem.

Skomentuj

24.01.2014

Kasia

Proszę podać długość ściany północnej do ściany z kominkiem

Skomentuj

18.01.2014

adams

witam,
jetem w trakcie budowy tego domu,trochę zmienionego wg własnych potrzeb, upodobań. Jeśli ktoś ma już skończony ten dom proszę o kilka zdjęc i kontakt na email aadams88@wp.pl ,gdzie wymienimy spostrzeżenia. pozdrawiam

Skomentuj

17.01.2014

Lipinscy_Domy

Szafa do zabudowy nie zmienia niestety sposobu użytkowania pom. w rozumieniu powierzchni użytkowej/nieużytkowej. Pow. nieużytkową są pomieszczenia techniczne, ale tylko uzasadnione dla danego obiektu, a ponieważ jest tu wydzielona przestrzeń garażu i kotłowni w garażu, to trudno będzie udowodnić, że niezbędne jest drugie takie pomieszczenie. W tym kierunku trzeba jednak myśleć jeśli chodzi o pow. użytkową.

Skomentuj

15.01.2014

Paweł

Witam, interesuje mnie ten projekt, jednak z powodu MDM muszę się zmieścić do 100m2 pow. użytkowej czy te 3,83m2 o które jest za dużo da się jakoś przekształcić na powierzchnię nieużytkową np. zrobić gdzieś szafę do zabudowy? Czy powierzchnia użytkowa jest tu wyliczona z opcją półek we wnękach (takie kreski), które się chyba do niej nie powinny liczyć czy bez?

Skomentuj

08.01.2014

betii

Witam,jestem zakochana w tym projekcie i bardzo bym chciała zobaczyć go na żywo,będę wdzięczna za taką możliwość.pozdrawiam:) beata-97@tlen.pl

Skomentuj

30.12.2013

adamski

dzis otrzymaliśmy nasz wymarzony projekt,tylko po otrzymaniu ostatnich zgód zaczynamy budowę :)

Skomentuj

29.11.2013

Lipinscy_Domy

Wysokość w garażu wynosi od 2,51 m do 2,56 m przy wjeździe (różnica wynika ze spadku podłogi w kierunku wjazdu 1%).

Skomentuj

27.11.2013

Kasia

Witam mam pytanie do projektantów odnośnie wysokości garażu w środku w projekcie Belfast III .Istotne gdybym chciała tam prowadzić działalność usługową.

Skomentuj

29.10.2013

Lipinscy_Domy

Odprowadzenie wody odbywa się poprzez rynny umieszczone za attyką, a następnie przez rury spustowe umieszczone w warstwie izolacji zewnętrznej ścian.

Skomentuj

29.10.2013

Iza37

Mam pytanie, jak wygląda odprowadzenie deszczówki z takiego płaskiego dachu? Przeglądam ale nigdzie się nie doszukałam.

Skomentuj

05.08.2013

elizap74

witam,

bardzo proszę o kontakt w kwestii wymiany doświadczeń dotyczących budowy tego domu, pozdrawiam serdecznie, eliap74@gmail.com

Skomentuj

21.07.2013

Elizap74

Witam, ja także przyłączam się do pytania, czy ktoś już może wybudował ten dom, właśnie kupiłam wąska działkę i jestem ogromnie zainteresowana tym projektem ale nie ukrywam ze z przyjemnością wymieniłabym doświadczenia z kimś, kto już wybudował ten dom. Bardzo proszę o kontakt. elizap74@gmail.com

Skomentuj

18.07.2013

monika

Piękny, taki dom to moje marzenie

Skomentuj

24.06.2013

Lipinscy_Domy

Nie, takiego projektu nie mamy, ale podpiwniczenie może doprojektować każdy architekt w ramach adaptacji. Możemy też wykonać taki projekt na zamówienie - prosimy tylko o kontakt mailowy, abyśmy mogli wysłać wycenę wprowadzenia takich zmian.

Skomentuj

23.06.2013

argaro

Witam, czy jest dostepny identyczny projekt ale z piwnicą?

Skomentuj

31.05.2013

Lipinscy_Domy

Ukrycie dachu attyką jest wykonalne, ale będzie wyglądało nieco groteskowo, bo będzie ona wysoka i przy tej bryle raczej nie będzie pasować. Można pokusić się o ewentualne wykonanie dachu czterospadowego, widocznego - podobnie, jak w projektach Siena, Amalfi o kącie 30 stopni. Dom będzie wtedy miał klimat miejskiej willi.

Skomentuj

31.05.2013

Lipinscy_Domy

Najlepiej zlecić takie zadanie zdolnemu i prężnemu architektowi lokalnemu, który może pomóc w zmianie warunków zabudowy, a nawet planu miejscowego, bo to też się czasem zdarza. Argumentacją może być chęć zachowania istniejącego stylu zabudowy, jeśli w okolicy są domy z jednospadowym dachem (albo płaskimi, co się zdarza częściej).

Skomentuj

31.05.2013

Majk

Witam, projekt fakt faktem jest niesamowity, ale mam pytanie, czy można stworzyć coś takiego tylko z dachem dwuspadowym, bo u mnie w mpzp jest obostrzenie ze tylko dachy dwuspadowe:(
pozdr

Skomentuj

31.05.2013

Damian PPPPPPPP

Witam ja z tym samym pytaniem.. Dom jest idealny wszystko pasuje ale nie mamy mozliwośći budowy domu z płaskim dachem. czy można to jakoś obejść.. coś zrobic z tym dachem??? u nas są wymogi dach min. 30 st. czy da sie zrobić te 30 st. ale to jakoś ukryc???

Skomentuj

28.05.2013

KRYSTIAN

Ewentualnie czy jest możliwość zastosowania dachu czterospadowego i wizualnego ukrycia go tak aby nie zmieniać obecnego zewnętrznego widoku obiektu?

Skomentuj

28.05.2013

KRYSTIAN

Bardzo podoba mi się ten projekt. Mam tylko pytanie: Czy jest jakaś możliwość aby uzyskać zgodę na dach jednospadowy? Jeżeli tak to jakiej argumentacji użyć!

Skomentuj

26.04.2013

Lipinscy_Domy

Jeśli w Miejscowym Planie Zagospodarowania Przestrzennego (lub Warunkach Zabudowy) jest zapis, że można stosować dachy płaskie, to nie ma żadnego problemu.

Skomentuj

26.04.2013

Aga

Mam pytanie, jak się ma sprawa pozwolenia czy nie ma z tym projektem problemów ?

Skomentuj

04.04.2013

Marcin

Witam,

Wybudował już ktoś ten dom ?? może się podzielić ile wyniosła Go budowa w stanie developerskim pod klucz, i jakimi metodami budował (gospodarczy itd.) ?? będę wdzięczny za odpowiedzi. Mój adres e-mail: agent12 @poczta.onet.pl
z góry dziękuję i pozdrawiam

PS. Domek cudowny, ja osobiście nie zmieniałbym nic :)

Skomentuj

13.03.2013

Lipinscy_Domy

Kotłownię na paliwo stałe można wygospodarować tylko kosztem części garażu - minimalne wymiary takiego pomieszczenia to 2x2m. Obecna kotłownia jest za mała.

Skomentuj

13.03.2013

Lipinscy_Domy

Aby spełnić kryteria dopłat NFOŚiGW projekt musi być jeszcze sprawdzony pod kątem zapotrzebowania na energię do ogrzewania dla konkretnej lokalizacji na Pana działce, czyli musi być sporządzone świadectwo charakterystyki energetycznej. Powinna je wykonać uprawniona osoba. Jeśli wtedy zapotrzebowanie nadal będzie mniejsze niż 40 kWh/m2/rok, jest szansa na uzyskanie dopłaty. Kolejnym warunkiem jest realizacja domu zgodnie z projektem i szczególny nacisk na dokładność firmy wykonawczej przy realizacji.
Formalnym kryterium przystąpienia do programu dopłat jest także uzyskanie pozwolenia na budowę. Przystąpienie do programu jest możliwe poprzez zaciągniecie kredytu w jednym z banków biorących udział w programie.
Więcej na temat programu dopłat można dowiedzieć się z działu Dopłaty NFOŚIGW w menu Dom Energooszczędny, lub na stronie www.nfosigw.gov.pl

Skomentuj

06.03.2013

kasiula1922

Czy możliwa jest zmiana projektu na kotłownie z paliwem stałym ?

Skomentuj

17.02.2013

kibicpl

Witam
Bardzo podoba mi się ten projekt. Proszę o odpowiedź. Decydując się na jego realizację, jakie kryteria muszę spełnić by otrzymać refundację z NFOŚiGW?
Pozdrawiam i podaję maila na który oczekuję odpowiedzi.
biuro@oto-kibic.pl

Skomentuj

23.01.2013

Николь

Добрый день! Кто может подсказать стоимость строительства по данному проекту - очень интересует.
Пожалуйста, в личку podzv@ukr.net. Спасибо

Skomentuj

18.12.2012

Lipinscy_Domy

Projekt Belfast jest faktycznie ulubieńcem wielu naszych klientów (i nie tylko). Projekt można zmodyfikować, aczkolwiek nie zawsze będą one opłacalne. Można zamienić miejscami sypialnie i łazienkę, ale wtedy wystąpi na pewno kilka zmian w stolarce okiennej. Trzeba to rozsądnie zaplanować, żeby było praktycznie i ładnie jednocześnie. Taką zmianę na projekt może nanieść każdy uprawniony projektant w ramach adaptacji, a nasze biuro wystawi bezpłatną zgodę.

Skomentuj

16.12.2012

marudna Kasia

Witam
spośród milionów gotowych projektów dostępnych w necie , już po raz n-ty wracam do tej strony i projektu Belfast. Niebanalny , prosty a jednak elegancki i funkcjonalnie przemyślany. Chcę budować i mocno się zastanawiam czy nie wybrać właśnie tego projektu. Jest kilka rzeczy które chciałabym zmienić aby osiągnąć kompozycje doskonalą ( jak dla mnie) - a mianowicie:

1. tak cudowny taras na dachu garażu.. dlaczego dostęp do niego ma tylko jeden pokój?! CZY JEST MOŻLIWOŚĆ zamiany miejscami 2 pokoi sypialnych tak aby łazienka była po drugiej stronie holku? czyżby nie pozwalał na to ciąg kanalizacyjny albo rozmieszczenie schodów ?

2. Duza Ilość wielkich okien.. jako laik budowlany i blondynka ;) nie do końca wiem czy w fazie budowy można zmieniać rozmiar okien? chodzi mi o zastosowanie nieco węższych okien balkonowych na całym pietrze.

no i to tyle .. jeszcze dodam ze przeliczam już kilka godzin ile by wyszła budowa tego domu :D

Skomentuj

13.12.2012

piotr

Witam. miałem okazję zbudować ten dom .wprowadzone zostały drobne zmiany tj.ścianek działowych otworów okiennych i całkowite podpiwniczenie. W podpiwniczeniu znalazł się garaż ,kotłownia ,pralnia i pom.gosp.

Skomentuj

28.10.2012

Kukoc

Witam, Czy istnieje możliwości adaptacji tego projektu do tzw. "domu pasywnego"? Pozdrawiam.

PS. Mój mail to kukoc7@tlen.pl

Skomentuj

22.10.2012

Robo

Posiadam taki projekt Belsfast z powiększonym salonem i kilkoma dodatkowymi zmianami - pracownia wykonała mi zmiany w projekcie na zamówienie. Jeżeli ktoś jest chętny to mogę się podzielić uwagami, spostrzeżeniami itp. Pozdrawiam rrcz@wp.pl

Skomentuj

11.10.2012

Mariusz

To doskonały projekt!!! Dokładne taki jakiego szukałem. Nie doczytałem jednak czy pojawiła się już wersja z większym salonem? Maleńki salon w którym "upchnięto" kuchnię to jedyna wada tego projektu. Proszę o info czy wersja z większym salonem jest nadal przygotowywana na mp.malesa@gmail.com
pozdrawiam i gratuluję projektu!!!

Skomentuj

30.09.2012

Maria Rogalska

Mysle ze umiejscowienie sypialni na przeciwko wejsca glownego nie jest dobrym pomyslem. Kazda wizyta, czy w ogole otwarcie drzwi , mnie bynajmniej by stresowalo. a co dopiero zimą..ho ho ... przy dobrych wiatrach i sniegu by sie tam nasypalo.

Skomentuj

07.09.2012

Lipinscy_Domy

Jest wersja tego domu z wjazdem od głównego wejścia, a garaż w nim można skrócić - Belfast VI

Skomentuj

06.09.2012

Adrian Toruń

Witam bardzo nam sie spodobał ten projekt tego domu czy moze ktoś jest w trakcie budowy albo juz ma postawiony moge dojechac aby obejrzeć cały projekt na zywo pozdrawiam

Skomentuj

05.09.2012

veyron

"Szykujemy wersję tego domu z powiększonym salonem (o obecna powierzchnię zadaszonego tarasu). Mamy nadzieję, że spotka się ona z Waszym uznaniem. "
Dokładnie to samo pytanie co wyżej bo gdy jakiś czas temu dzwoniłam do Państwa to nie mieliście przygotowanego jeszcze projektu z powiększonym salonem. Pozdrawiam i proszę o odp.
Pozdrawiam

Skomentuj

30.08.2012

Krzysztof Nowak

Witam serdecznie.
Czy został już wykonany projekt o którym pisali Państwo na początku roku zgodnie z sugestią użytkownika Kaia?
Pozdrawiam

Skomentuj

14.08.2012

mzykulus

CZy istnieje możliwość zmiany wjazdu do garażu tzn. żeby wjazd był od str wejścia głównego i tylko na jedno auto ????

Skomentuj

10.08.2012

Lipinscy_Domy

A nawet jeszcze więcej - około 40-50 tys. Tyle, że kotłownię trzeba przenieść do domu. Jeśli ma byc na gaz, albo z pompą ciepła, to nie ma problemu.

Skomentuj

01.08.2012

piotr1982

też byłbym zainteresowany odpowiedzią przez biuro, wg mnie koszty mogą być mniejsze nawet o ok 20 tys. zł

Skomentuj

30.07.2012

pdes

Witam,
dom jest PRZECUDOWNY.
Czy mozna zrezygnowac z garazu w tym projekcie i o ile obniżyłyby się koszty?

Pozdrawiam

Skomentuj

30.06.2012

adam

Jestem zachwycony tym projektem! Naprawdę dobra robota.

Skomentuj

06.06.2012

marta

Piękny, prosty, nowoczesny...marzę o takim. Może kiedyś...

Skomentuj

22.05.2012

renata

Witam.czy ktokolwiek orientuje się jak wyglądają orientacyjne koszty budowy tego projektu pod klucz? czy zamiast garazu mozna powiekszyc parter o pokoj lub powiekszyc pomieszczenia juz znajdujace sie w projekcie?renia0114@wp.pl jestem zainteresowana i zachwycona projektem

Skomentuj

25.03.2012

Brzózka

Brakuje piwnic do pełni szczęścia. Tak bym ko kupił od razu.

Skomentuj

23.03.2012

luk

Witam,
czy ktokolwiek orientuje się jak wyglądają orientacyjne koszty budowy tego projektu?
Najlepiej w stanie surowym zamkniętym i pod klucz.
dropial@tlen.pl

Skomentuj

22.03.2012

Karolina, Poznań

Bardzo mało jest na rynku projektów dla wąskich działek przy zachowaniu funkcjonalności układu wnętrz oraz niedużych kosztach budowy. Projekt Belfast wyróżnia przede wszystkim nowatorskość. Połączono klasyczny układ wszystkich niezbędnych pomieszczeń w domu niezbędnych do funkcjonowania 4 osobowej rodziny z niebanalnym design. Projekt domu jest bardzo nowoczesny, który przyciąga wzrok swoją prostotą.

Skomentuj

13.02.2012

Gloria

Doskonały projekt na działkę z wjazdem od południa! Czy istnieje możliwość - ze względu na niewystarczającą powierzchnię pokoju dziennego - przeniesienia aneksu kuchennego do sypialni na parterze i przesunięcia tarasu tak, aby obejmował również "nową" kuchnię? Taki zabieg znacznie poprawiłby funkcjonalność parteru, przynajmniej dla mojej rodziny.

Skomentuj

13.02.2012

Lipinscy_domy

W przypadku działki 15m nie da się poszerzyć salonu - w obecnej postaci już brakuje 20 cm. Zmiana wjazdu do grarażu także tego niestety nie zmieni.

Skomentuj

11.02.2012

pitu123

super że jest Belfast 5 tam gdzie chcę budować musi być skośny dach

Skomentuj

17.01.2012

andziak

Witam
Kiedy będzie dostępny projekt z powiększonym salonem?
Czy istnieje możliwość zmiany wjazdu do garażu , mamy działkę o długości 15m?
Pozdrawiam

Skomentuj

11.01.2012

Lipinscy_domy

Szykujemy wersję tego domu z powiększonym salonem (o obecna powierzchnię zadaszonego tarasu). Mamy nadzieję, że spotka się ona z Waszym uznaniem.
Jeżeli chodzi o koszty, to podajemy je w stanie wykończonym pod klucz, ponadto jest to dom energooszczędny uwzględniający w wycenie instalację rekuperacji, kolektorów słonecznych, znacznie większej izolacji i żelbetowej płyty fundamentowej).

Skomentuj

10.01.2012

Michał

Witam.
Zgadzam się z KAJĄ.
Projekt bardzo dobry ale parter powinien byc nieco wiekszy.
Salon z projektu Tokio2 nadawałby sie idealnie.
Sam szukam takiego projektu jak BELFAST ale kupiłbym go na 100% tylko
z powiększonym parterem.
Dajcie znac czy to bedzie mozliwe.
POZDRAWIAM.

Skomentuj

05.01.2012

Dymian1

Witam,
czy ktokolwiek orientuje się jak wyglądają orientacyjne koszty budowy tego projektu?
Najlepiej w stanie surowym zamkniętym i pod klucz.
dymian1@interia.pl
Z góry dzięki
Pozdrawiam

Skomentuj

31.12.2011

Kaja

Witam, gratulację, świetny projekt. Czy można powiększyć ten projekt, by parter odpowiadał parterowi z projektu Tokio II. Układ piętra taki sam jak w Belfaście tylko proporcjonalnie większy. Czy macie może Państwo wiedzę na jaki poziom oszczędności kosztów budowy można liczyć decydując się na kilku wykonawców, a nie firmę developerską ? Wcześniej znalazłam zx54 z pracowni Zx500, ale Państwa układ daje możliwość budowy na działce 18m szerokości, a tamten nie ( 3 pokoje na piętrze obok siebie),chociaż tamten ma zdecydowanie niższą kalkulacje kosztów, a ma 140 m2. pozdrawiam i najlepsze życzenia w Nowym Roku. W przypadku możliwości powiększenia Belfastu w tym układzie na wąską działkę, dołączę go do wniosku o warunki zabudowy i w przypadku zgody jestem w sumie zdecydowana.

Skomentuj

20.11.2011

Szukający

Witam,
czy ktokolwiek orientuje się jak wyglądają orientacyjne koszty budowy tego projektu?
Najlepiej w stanie surowym zamkniętym i pod klucz.
bkass@o2.pl

Z góry dzięki
Pozdrawiam

Skomentuj

26.10.2011

Beciuniek

Świetny projekt! :)

Skomentuj

09.10.2011

Marii

Jestem zachwycona tym projektem jak już wcześniej wspomniano, dom prosty a jednocześnie elegancji, ujął mnie od razu!!! ma wszystko czego potrzebuję :) pytałam w urzędzie miasta, niestety płaski dach odpada :(
Jeśli ktokolwiek buduje ten dom, bądź planuje w najbliższej przyszłości bardzo proszę o kontakt mailowy: rudzia8x@wp.pl

Skomentuj

05.09.2011

katjap

Zakochalam sie w tym projekcie.Idealnie pasuje na moja waska dzialke!Ale niestety nie dostalam zgody na plaski dach:(

Skomentuj

23.08.2011

BETTI 555

SUPER PROJEKT,POSIADA WSZYSTKO A TAKI NIEWIELKI, PROSZĘ O KONTAKT P.SYLWIO-JEST TO NOWY PROJEKT WIĘC MOZEMY SIE WSPIERAĆ I WYMIENIAĆ INFO NA TEMAT BUDOWY, b_biernat@wp.pl, pzdr

Skomentuj

16.08.2011

M&M

Nie wiem jak to zrobiliście, ale wszystko jest w tym niewielkim projekcie. Mega!

Skomentuj

31.07.2011

sylwia

witam; czy ktoś buduje ten dom? proszę o kontakt.pozdrawiam.

Skomentuj

21.07.2011

Beata K.

Gratulacje!!! Cudny projekt. Bez wad. Jedyna zmiana jaką bym wprowadziła to kotłownia na paliwo stałe. Wtedy garaz byłby na 1 auto plus rowery i inne potrzebne rzeczy. W tym projekcie jest wszystko, a jednocześnie jest mały. To oznacza, że tani w budowie i eksploatacji. Aż żal, że u mnie na wsi nie można budować domów z płaskim dachem. Gargamele za to można, bo mają odpowiedni kąt nachylenia dachu.

Skomentuj

14.07.2011

Jakub eM.

Komfortowo zaprojektowany dom, sprawdzi się też na wąskiej działce. Duży plus!

Skomentuj

27.06.2011

Stark

Jestem pod ogromnym wrażeniem prostoty, a jednocześnie siły tego projektu.

Skomentuj

Opinie nie są weryfikowane pod kątem ich pochodzenia od konsumentów, którzy używali produktu lub go nabyli.

Polecane rozwiązania

Podobne projekty (7)

projekt Belfast należy do kategorii

Ostatnio oglądane