PROMOCJA
ULUBIONE

Projekt domu

Tottori 117,99m²

DCP269

PROMOCJA
- 400 zł
od 3 do 17 marca 2026

 

Karta projektu Podziel się:

Opis projektu

Energooszczędny dom o prostej bryle, idealny na wąską działkę. Płaski dach, duże przeszklenia, drewniane i metalowe elementy elewacji podkreślają nowoczesny wygląd budynku. Uwagę zwraca ciekawe, częściowo zadaszone wejście z częściowo oszklonym wiatrołapem. Na parterze zlokalizowano salon z kominkiem, dużymi oknami i wyjściem na taras, funkcjonalną kuchnię z miejscem na stół, wc i pomieszczenie gospodarcze. Na piętrze znajdują się trzy sypialnie i duża łazienka, w której zmieści się wanna, prysznic i pralka.

Zapotrzebowanie Energetyczne

EUco = 24,42kWh/(m²rok)
EP = 60,18kWh/(m²rok)

Projekt zgodny z wt2021

Dowiedz się więcej  

Parter 55,08m2

Gotowy projekt domu Tottori rzut Parter

55,08m2

1.1 Wiatrołap 4,72m2
1.2 Komunikacja 3,45m2
1.3 Wc 2,32m2
1.4 Kuchnia, jadalnia 14,32m2
1.5 Salon 23,66m2
1.6 Pom.gosp., c.o. 4,47m2
1.7 Schody 2,14m2 (4,24m2)
1.8 Podest 6,77m2
1.9 Taras 18,51m2
1.1 Wiatrołap 4,72m2
1.2 Komunikacja 3,45m2
1.3 Wc 2,32m2
1.4 Kuchnia, jadalnia 14,32m2
1.5 Salon 23,66m2
1.6 Pom.gosp., c.o. 4,47m2
1.7 Schody 2,14m2 (4,24m2)
1.8 Podest 6,77m2
1.9 Taras 18,51m2

Piętro 62,91m2

Gotowy projekt domu Tottori rzut Piętro

62,91m2

2.1 Komunikacja 4,78m2
2.2 Pokój 24,41m2
2.3 Łazienka 7,93m2
2.4 Pokój 12,04m2
2.5 Pokój 9,51m2
2.6 Schody 4,24m2
2.1 Komunikacja 4,78m2
2.2 Pokój 24,41m2
2.3 Łazienka 7,93m2
2.4 Pokój 12,04m2
2.5 Pokój 9,51m2
2.6 Schody 4,24m2

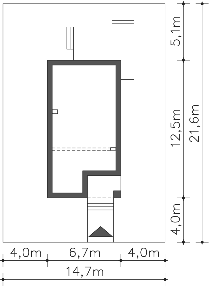
Wymiary działki

Gotowy projekt domu Tottori wymiary działki

Przekrój

Gotowy projekt domu Tottori przekrój

Elewacje

Gotowy projekt domu Tottori elewacja przód Gotowy projekt domu Tottori elewacja lewa Gotowy projekt domu Tottori elewacja tył Gotowy projekt domu Tottori elewacja prawa

Działka

Grafika przedstawia minimalne wymiary działki. Aby sprawdzić, czy dom może być realizowany na konkretnej działce należy uzyskać Wypis i Wyrys z Miejscowego Planu Zagospodarowania Przestrzennego lub jeśli na danym terenie nie ma planu – Decyzję o warunkach zabudowy. Wszystkie projekty wymagają adaptacji do warunków miejscowych przez projektanta lokalnego.

Dowiedz się więcej  

Technologia projektu

Fundamenty - rozwiązanie o podwyższonej izolacji termicznej

Ściany zewnętrzne - Bloczek silikatowy 24 cm + styropian 20 cm

Strop - gęstożebrowy

Dach - stropodach gęstożebrowy

Ogrzewanie - c.o. grzejnikowe + c.w.u. - kocioł gazowy

WENTYLACJA - rekuperacja

Na etapie adaptacji projektu istnieje możliwość zamiany materiałów na inne o podobnych właściwościach i parametrach technicznych. Pamiętaj! Projekt stanowi spójną całość i zmiana rozwiązań może wpłynąć na jego właściwości wytrzymałościowe i cieplne.

Dowiedz się więcej  

Szacunkowe koszty realizacji

Stan surowy zamknięty 277 300 zł
Stan deweloperski 439 000 zł

Szacunkowa wycena netto. Biuro projektowe nie zajmuje się realizacją inwestycji.

Dowiedz się więcej  

Wyceń bezpłatnie budowę domu u wykonawcy  

Wersje projektu Tottori (1)

Gotowy projekt domu York II

- 400 zł

York II

LMP111a112,99m2

Dom piętrowy z wysoką ścianką kolankową, podzielony na strefę dzienną na parterze, i strefę nocną na piętrze

Opinie (55)

30.10.2018

Lipińscy Domy

Możemy przygotować taką wersję lub wydać zgodę na zbliźniaczenie wersji podstawowej z lustrzaną.
Szczegóły: biuro@lipinscy.pl

Skomentuj

30.10.2018

Monika

Witam
Czy istnieje wersja bliźniacza tego projektu?

Skomentuj

07.01.2018

rafalkabat

Witam
Poszukuję osoby, która zbudowała już dom według projektu Tottori. Poszukuję kilku informacji. Mój e-mail rafalkabat74@gmail.com

Skomentuj

09.01.2017

Lipinscy_Domy

Można wprowadzić zmiany w ramach adaptacji lub u lokalnego architekta. Szczegóły w panelu po lewej - Zmiany w projektach.

Skomentuj

07.01.2017

Agnieszka

Witam, projekt mnie zachwycił :) Niestety mam zbyt mała działkę i odsunąć się od granicy mogę tylko 3 metry. W związku z tym mam pytanie... czy jest możliwa taka przeróbka projektu jak zastąpienie pięknych narożnych okien tarasowych zwykłymi ale też na cała ścianę oraz skrócenie domu o 1 metr?

Skomentuj

14.09.2016

Lipinscy_Domy

Można zamówić wersję lustrzanego odbicia - na górze strony pod nazwą projektu, a likwidację okien i doprojektowanie świetlika może wprowadzić architekt adaptujący.

Skomentuj

14.09.2016

Michał

Czy możliwa jest zmiana kilku elementów konstrukcyjnych tzn. Brak okien na scianie z drabiną ( wąska działka, budynek powstałby przy granicy ) oraz lustrzane odbicie całego domu ? Dodatkowe czy możliwe jest zamontowanie okna dachowego nad schodami ? tak aby wpadało tam swiatło gdy usunięte zostanie okno na scianie z drabiną ?

Skomentuj

20.04.2016

Lipinscy_Domy

Projekty powstają w oparciu o oczekiwania inwestorów. Można zamienić sypialnie.

Skomentuj

19.04.2016

sara112

najbardziej wnerwia mnie fakt, ze w wiekszosci projektow pokoje sypialne rodzicow sa duze ,a dzieciece to malutkie klitki, prawda jest taka , ze rodzice spedzaja w sypialni noc, a reszte dnia spedzaja na praniu,gotowaniu i siedza w salonie prze telewizorem , dzieci potrzebuja wiecej przestrzeni - przede wszystkim do zabawy !!! dlaczego wiec dostaja tak male pomieszczenia ?????

Skomentuj

22.04.2015

Lipinscy_Domy

Można wprowadzić zmianę w zakresie materiału ścian np. w ramach adaptacji.

Skomentuj

21.04.2015

Jakub

Patrz zakładka technologia - jest wykaz materiałów projektowanych

Skomentuj

19.04.2015

Magda

Z czego zaprojektowano ściany ? Czy jest możliwość wykonania domu w technologi prefabrykowanej z keramzytu ?

Skomentuj

30.09.2014

katarzyna

Witam ! Z mężem wybudowaliśmy dom tottori. Zrobiliśmy niewielkie zmiany. kasiadebska@wp.pl

Skomentuj

29.09.2014

Lipinscy_Domy

Jest taka wersja: jest to projekt York II LMP 111a.

Skomentuj

28.09.2014

Ada

Witam,
Ze względu na plan zagospodarowania interesuje mnie ten projekt z dachem o kącie nachylenia 30st (najlepiej jak w projekcie Belfast). Czy można wprowadzić taką zmianę? Wprowadza ją architekt czy mogę ją zamówić u Państwa? Jaki byłby koszt tej zmiany?

Skomentuj

15.08.2014

Szymon

ja również jestem mocno zainteresowany budową tego domu (woj. dolnośląskie) Czy można gdzieś zobaczyć taki gotowy dom?

Skomentuj

24.07.2014

Jarek Jot

Witam, czy ktos aktualnie buduje ten dom? Lub juz go wybudowal?

Skomentuj

12.06.2014

Lipinscy_Domy

Są to roczne koszty netto ogrzewania domu gazem ziemnym wysokometanowym, obliczone na podstawie wskaźnika zapotrzebowania na ciepło EUco publikowanego przy każdym projekcie. Jako urządzenie grzewcze przyjęto kondensacyjny kocioł gazowy o sprawności 100%. Stawki za gaz określono jako średnie naliczane przez zakłady gazownicze w III kw. 2013 roku. 1m³ gazu w cenie 2,45zł netto (24,50 gr netto 1kWh).
Informacja ta widnieje przy podanym koszcie po kliknięciu linka "więcej informacji".

Skomentuj

10.06.2014

Angelka

Witam, jak zostały policzone koszty ogrzewania?

Skomentuj

13.05.2014

Lipinscy_Domy

Rezygnując z okien narożnych i doświetlenia bocznego klatki schodowej (można zastąpić świetlikiem dachowym) można projekt zaadaptować do zabudowy bliźniaczej.

Skomentuj

08.05.2014

Oleg

Czy może być w wersji bliźniaka &

Skomentuj

24.04.2014

Lipinscy_Domy

Można zmienić źródło ciepła na piec na paliwo stałe.

Skomentuj

24.04.2014

Yrek

Czy jest możliwe zastosowanie w tym domu pieca na paliwo stałe: węgiel czy też ekogroszek ?

Skomentuj

04.04.2014

Lipinscy_Domy

Wszystkie pomieszczenia w domu są wentylowane, ponieważ w projekcie jest przewidziana rekuperacja, czyli wentylacja mechaniczna z odzyskiem ciepła. Takie rozwiązanie jest dużo skuteczniejsze niż wentylacja grawitacyjna, która w dużej mierze jest zależna od pogody. Przy rekuperacji jest zapewniona ciągła wymiana powietrza w domu i żadne zapachy "nie zalegają po kątach". Poza tym, bez problemu w ramach adaptacji można dostosować projekt do własnych wymagań i wykonać okno w tym wc.

Skomentuj

03.04.2014

Mikołaj

Witam, czy dobrze rozumiem, że wydzielone WC na parterze nie jest w żaden sposób wentylowane? Nie ma tam też nawet okienka?

Skomentuj

14.03.2014

Lipinscy_Domy

Tak, można to tak rozwiązać.

Skomentuj

07.03.2014

Ola

Witam,
Czy jeśli zdecyduję się na doprojektowanie podpiwniczenia w tym projekcie, czy można również zrobić osobne wejście z dworu do piwnicy oraz dodatkową instalację na ogrzewanie stałe np. ekogroszek ?

Skomentuj

25.02.2014

katarzyna

Czy ktoś buduje Tottori? Ja z mężem jestem właśnie w trakcie budowania i może jest ktoś kto go pobudował?

Skomentuj

30.12.2013

LucasmPL

Dziękuję za bardzo pomocną informację zwrotną.
W takim razie jeszcze raz na spokojnie przemyślę i rozrysuję sobie technologicznie
możliwe korekcje projektu i skonsultuje je z moją żoną - naczelną estetką rodziny ;)
Życzę Szczęśliwego Nowego Roku i Pozdrawiam!

Skomentuj

30.12.2013

Lipinscy_Domy

do LucasmPL:
- Wszystkie duże przeszklenia mają wysokość 230 cm. Można zmienić wymiary okien w wiatrołapie. Nad przeszkloną elewacją jest zbrojona belka o ponad pół metrowej wysokości, wsparta na słupach stalowych znajdujących się w narożach budynku.
- Wszystko zależy od wybranego systemu rekuperacji i wykonawcy instalacji. Najczęściej rury wentylacyjne rozprowadzane są od góry budynku w dół, więc na parterze nie będzie konieczności obniżania sufitu, gdyż niezbędne elementy mogą być umieszczone bezpośrednio w stropie.
- Projekt nie jest przewidziany pod zielony dach, natomiast możemy go dostosować do tego rozwiązania.
- Można zastąpić drabinę wyłazem na dach.
- Ściana między wc a schodami na parterze to ściana nośna. Łazienkę można powiększyć tak, jak Pan sugeruje, ale będzie to wymagało zmian w konstrukcji stropu.

Skomentuj

28.12.2013

LucasmPL

Witam,
Uważam projekt za bardzo interesujący na pierwszy rzut oka.
Chciałbym jednak spytać się o kilka detali technicznych, które będą decydujące przy wyborze przeze mnie projektu:

- Wysokość okien na poszczególnych kondygnacjach: Czy jest ona jednakowa i czy istnieje możliwość zastąpienia okien w wiatrołapie profilem identycznym do tego w sypialni piętro wyżej? Jak okna narożne w salonie wpływają na właściwości wytrzymałościowe ścian głównej sypialni na piętrze? Czy zwiększają ryzyko występowania pęknięć w długotrwałej eksploatacji?
- Czy wysokość kondygnacji umożliwi poprowadzenie rur wentylacyjnych z uwzględnieniem ich izolacji i zabudowy tak, aby nie zejść poniżej poziomu 2,5 m.?
- Czy budynek został na etapie projektu sprawdzony wytrzymałościowo pod kątem montażu zielonego dachu ekstensywnego? Czy ewentualnie można wprowadzić do Państwa projektu tę możliwość?
- Czy istnieje możliwość zastąpienia drabiny wyłazem na dach?
- Jaki charakter ma ściana między WC a schodami na parterze? Bez rysunku technicznego ciężko mi to jednoznacznie zdefiniować. Czy istniałaby możliwość przesunięcia jej o ok. 30 cm. w stronę schodów i stworzenia tym samym małej, ustawnej łazienki?

Z góry dziękuję za odpowiedź i pozdrawiam serdecznie!

Skomentuj

11.12.2013

Lipinscy_Domy

Można doprojektować balkon/taras, ale polecamy konstrukcję samonośną, aby nie tworzyć niepotrzebnie dodatkowych mostków cieplnych.

Skomentuj

08.12.2013

Kala

Czy można dorobić balkon przy dużej sypialni?

Skomentuj

05.11.2013

Lipinscy_Domy

Rynny ukryte są w ociepleniu. To coraz częściej stosowane rozwiązanie w nowoczesnym budownictwie o prostej formie architektonicznej.

Skomentuj

04.11.2013

Tom K

A gdzie są rynny ?

Skomentuj

29.10.2013

Lipinscy_Domy

Nie, nie wykonujemy projektów w tej technologii. W tym projekcie będzie też kłopot z zastosowaniem, z uwagi na duże rozpiętości stropów.

Skomentuj

28.10.2013

krzys

Witam mam pytanko. Czy istnieje mozliwosc wykonania tego projektu w technologii szkieletowej drewnianej

Skomentuj

19.06.2013

Lipinscy_Domy

Zamiast drabiny można zrobić świetlik dachowy, który jednocześnie będzie wyłazem na dach. Dach spadzisty też można ewentualnie doprojektować, jak w projektach podobnych - York, Seul, czy Malmo. Zmianę dachu może wprowadzić lokalny architekt w ramach adaptacji.

Skomentuj

18.06.2013

1nt3rn@ut@

Witam, piękny projekt. Chciałbym jednak zapytać o jedną rzecz. Czy istnieje możliwość wykonania tego projektu z dachem spadzistym? Pytam ponieważ ta drabina z boku budynku psuje cały efekt. Pytam , z pełną świadomością faktu, że okna na poddaszu musiałyby być znacznie węższe. Ewentualnie czy istnieje możliwość jakiegoś innego rozwiązania przy którym samo zastosowanie wspomnianej drabiny nie byłoby konieczne.

Pozdrawiam i oczekuję odpowiedzi

Skomentuj

13.03.2013

Lipinscy_Domy

Niestety, nie mamy wizualizacji wnętrz do tego domu. Parter to praktycznie jedna, otwarta przestrzeń, mocno doświetlona, co dodatkowo potęguje wrażenie większej przestrzeni. Pozostałe pomieszczenia też są wygodne i ustawne.

Skomentuj

11.03.2013

Lipinscy_Domy

Jeśli od północy wypadałaby ściana z klatką schodową, to można zrezygnować z okien z tej strony. Zmianę taką można wprowadzić na projekt w ramach adaptacji przez lokalnego architekta.

Skomentuj

19.02.2013

cZarna

Czy będzie dostępne zdjęcia aranżacji wnętrza do tego projektu, myśle że jest to ważne przy wąskich i małych domach by móc uzmysłowić iż na takiej powierzchni naprawdę da sie swobodnie poruszać i żyć?

Skomentuj

17.02.2013

Robert

Witam
Mam pytanie czy była by mozliwosc zeby bydenk od strony połnocnej nie miał okien ,dzieki czemu mógł bym sie odsunac od granicy działki 3m . Moja działka ma 16 m szerokosci i chciał bym miec wiecej miejsca od strony południowej zeby ewentualnie zrobic przejazd do dalszej czesci działki bo jest ona bardzo długa pozdrawiam

Skomentuj

07.09.2012

BUGOVA

i na parterze powiększyć lazienkę

Skomentuj

07.09.2012

BUGOVA

pokój na piętrze je za duży,można z niego zrobić spokojnie dwa

Skomentuj

18.07.2012

Lipinscy_Domy

Tak, można doprojektować podpiwniczenie. Schody umieszczone są w taki sposób, że pod nimi byłoby zejście do piwnicy. Zmianę taką może nanieść na projekt każdy uprawniony projektant lub nasze biuro. Podobnie, jak wyżej, prosimy wtedy o kontakt mailowy.

Skomentuj

18.07.2012

Wojciech

Czy jest możliwość częściowego lub całkowitego podpiwniczenia tego budynku?

Skomentuj

16.07.2012

Lipinscy_Domy

Oczywiście, możemy przygotować wersję tego projektu z garażem. Prosimy o kontakt mailowy w tej sprawie.

Skomentuj

12.07.2012

roman

czy jest możliwość żeby dobudowali Państwo do projektu garaż?

Skomentuj

18.06.2012

marzenia

małe jest piękne!

Skomentuj

31.08.2011

Kawa

Na pewno wybierzemy ten projekt. Jest piękny! Bardzo chcieliśmy znaleźć coś innego niż dom stylizowany na polski dworek. Już mam awersję do frontowych kolumn. Ten dom jest wprost doskonały jak dla mnie!

Skomentuj

24.08.2011

Kinga

Piękna bryła, przejrzysty projekt i wygoda, czego chcieć więcej. Faktycznie domy z płaskim dachem nie były długo popularne ale myślę że właśnie wracają w wielkim stylu!

Skomentuj

31.07.2011

sylwia

Nas też interesuje ten projekt. Jeżeli ktoś go buduje to bardzo proszę o kontakt. pozdrawiam

Skomentuj

27.06.2011

Ja88

Witam, czy posiadają Państwo wycenę kosztów budowy tego domu? Bardzo interesuje mnie ten projekt. Z góry dziękuję za odpowiedź, pozdrawiam.

Skomentuj

22.06.2011

Małgorzata71

Tottori ma wszystkie elementy, o których myślałam pod kątem nowoczesnego domu. U nas (w PL) często domy z płaskim dachem kojarzone jeszcze są z budownictwem przemysłowym albo użytku publicznego. Ten projekt podkreśla, że to alternatywa dla nowoczesnego budownictwa rodzinnego. Ochy i achy :)

Skomentuj

Opinie nie są weryfikowane pod kątem ich pochodzenia od konsumentów, którzy używali produktu lub go nabyli.

Polecane rozwiązania

Podobne projekty (7)

projekt Tottori należy do kategorii

Ostatnio oglądane