Cena projektu
5 090 zł z VAT
| Powierzchnia użytkowa | 103,69m2 |
| Powierzchnia netto | 103,33m2 |
| Powierzchnia zabudowy | 130,62m2 |
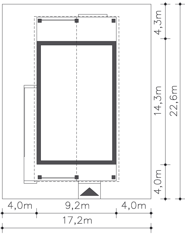
| Min. szerokość działki | 17,20m x 22,60m |
| Kubatura | 609m2 |
| Wysokość kalenicy | 6,18m |
| Kąt nachylenia dachu | 32° |
| Powierzchnia dachu | 219,30m2 |
Projekt małego, pojemnego domu o prostej formie i elewacji ze stylem. Wnętrze rozplanowano w przejrzysty sposób, tak, aby użytkowanie było zupełnie intuicyjne i wygodne. Na 100 m kw. umieszczono 4 sypialnie i wyjątkowo efektowną strefę dzienną. Wiatrołap prowadzi do wnętrza, półotwarta kuchnia z kontuarem, wysoki salon z jadalnią, atrakcyjnie doświetlany dodatkowo oknami połaciowymi, kominek daje ciepło w jesienne wieczory, a zadaszony taras zapewnia przyjemny cień letnią porą. Pokój rodziców ma wyjście na zadaszony taras i własną łazienkę, zapewnia wygodę i intymność. Trzy pokoje dzieciaków mają własną łazienkę i wyjścia na boczny taras. Jest to dom w sam raz dla rodziny ceniącej sobie komfort i estetykę.
| EUco = 49,81kWh/(m²rok) |
| EP = 52,34kWh/(m²rok) |
Projekt zgodny z WT2021
| 1.1 | Wiatrołap | 2,70m2 |
| 1.2 | Komunikacja | 9,35m2 |
| 1.3 | Łazienka | 3,39m2 |
| 1.4 | Pokój | 9,39m2 |
| 1.5 | Pokój | 9,74m2 |
| 1.6 | Pokój | 9,68m2 |
| 1.7 | Korytarz | 3,66m2 |
| 1.8 | Łazienka | 3,85m2 |
| 1.9 | Pokój | 11,81m2 |
| 1.10 | Salon, jadalnia | 27,35m2 |
| 1.11 | Kuchnia | 7,80m2 |
| 1.12 | Pom.gosp., c.o. | 4,61m2 |
| 1.13 | Taras | 32,91m2 |
| 1.14 | Taras | 25,07m2 |
| 1.1 | Wiatrołap | 2,70m2 |
| 1.2 | Komunikacja | 9,35m2 |
| 1.3 | Łazienka | 3,39m2 |
| 1.4 | Pokój | 9,39m2 |
| 1.5 | Pokój | 9,74m2 |
| 1.6 | Pokój | 9,68m2 |
| 1.7 | Korytarz | 3,66m2 |
| 1.8 | Łazienka | 3,85m2 |
| 1.9 | Pokój | 11,81m2 |
| 1.10 | Salon, jadalnia | 27,35m2 |
| 1.11 | Kuchnia | 7,80m2 |
| 1.12 | Pom.gosp., c.o. | 4,61m2 |
| 1.13 | Taras | 32,91m2 |
| 1.14 | Taras | 25,07m2 |
Grafika przedstawia minimalne wymiary działki. Aby sprawdzić, czy dom może być realizowany na konkretnej działce należy uzyskać Wypis i Wyrys z Miejscowego Planu Zagospodarowania Przestrzennego lub jeśli na danym terenie nie ma planu – Decyzję o warunkach zabudowy. Wszystkie projekty wymagają adaptacji do warunków miejscowych przez projektanta lokalnego.
Fundamenty - rozwiązanie o podwyższonej izolacji termicznej
Ściany zewnętrzne - Pustak ceramiczny 25 cm + styropian 20 cm
Strop - drewniany
Dach - tradycyjna więźba ciesielska
Ogrzewanie - c.o. podłogowe + c.w.u.- kompaktowa pompa ciepła + kolektory
WENTYLACJA - grawitacyjna
Na etapie adaptacji projektu istnieje możliwość zamiany materiałów na inne o podobnych właściwościach i parametrach technicznych. Pamiętaj! Projekt stanowi spójną całość i zmiana rozwiązań może wpłynąć na jego właściwości wytrzymałościowe i cieplne.
| Stan surowy zamknięty | 209 500 zł |
| Stan deweloperski | 370 200 zł |
Szacunkowa wycena netto. Biuro projektowe nie zajmuje się realizacją inwestycji.
Haga
LMB4799,81m2
Cena projektu:4390 zł
Saga III
LMB69b107,81m2
Cena projektu:4390 zł
Phoenix
LMB123109,46m2
Cena projektu:4890 zł
Ostenda
LMB141104,40m2
Cena projektu:4890 zł
Franklin IV
LMB101c104,13m2
Cena projektu:5290 zł
Alaska
DCB144103,58m2
Cena projektu:4970 zł
Oviedo
DCB15099,71m2
Cena projektu:5070 zł
Opinie (0)
Opinie nie są weryfikowane pod kątem ich pochodzenia od konsumentów, którzy używali produktu lub go nabyli.