Projekt parterowego domu Alaska to prosta forma w eleganckim wydaniu. Cztery sypialnie, dwie wygodne łazienki i przestronny salon połączony z kuchnią i jadalnią, czynią z tego projektu idealny dom dla Twojej rodziny. Salon o wysokim wnętrzu i oryginalnych przeszkleniach, posiada zadaszony taras i wygodną przestrzeń dzienną. Kuchnia ze spiżarką wydzielona jest kontuarem. To wnętrze daje niepowtarzalną możliwość nowoczesnej aranżacji. Każda z czterech sypialnia jest ustawna tak, że w tym niewielkim domu wygodnie zamieszka pięć osób. W projekcie przewidziano ogrzewanie pompą ciepła. Alaska to doskonały projekt, nowoczesnego i kompaktowego domu na wąskie działki z wejściem od południa.
| EUco = 27,73kWh/(m²rok) |
| EP = 55,99kWh/(m²rok) |
Projekt zgodny z WT2021
| 1.1 | Wiatrołap | 3,17m2 |
| 1.2 | Pokój dzienny | 28,27m2 |
| 1.3 | Kuchnia | 6,92m2 |
| 1.4 | Spiżarnia | 1,65m2 |
| 1.5 | Korytarz | 9,81m2 |
| 1.6 | Pokój | 9,03m2 |
| 1.7 | Pokój | 9,03m2 |
| 1.8 | Pokój | 11,40m2 |
| 1.9 | Pokój | 11,97m2 |
| 1.10 | Łazienka | 4,07m2 |
| 1.11 | Łazienka | 4,37m2 |
| 1.12 | Pom.gosp., c.o. | 3,89m2 |
| 1.13 | Podest | 1,95m2 |
| 1.14 | Taras | 14,89m2 |
| 1.1 | Wiatrołap | 3,17m2 |
| 1.2 | Pokój dzienny | 28,27m2 |
| 1.3 | Kuchnia | 6,92m2 |
| 1.4 | Spiżarnia | 1,65m2 |
| 1.5 | Korytarz | 9,81m2 |
| 1.6 | Pokój | 9,03m2 |
| 1.7 | Pokój | 9,03m2 |
| 1.8 | Pokój | 11,40m2 |
| 1.9 | Pokój | 11,97m2 |
| 1.10 | Łazienka | 4,07m2 |
| 1.11 | Łazienka | 4,37m2 |
| 1.12 | Pom.gosp., c.o. | 3,89m2 |
| 1.13 | Podest | 1,95m2 |
| 1.14 | Taras | 14,89m2 |
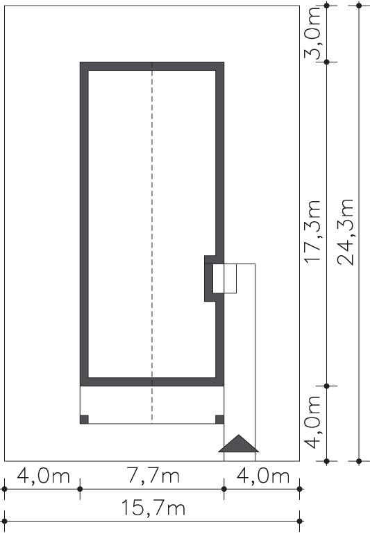
Grafika przedstawia minimalne wymiary działki. Aby sprawdzić, czy dom może być realizowany na konkretnej działce należy uzyskać Wypis i Wyrys z Miejscowego Planu Zagospodarowania Przestrzennego lub jeśli na danym terenie nie ma planu – Decyzję o warunkach zabudowy. Wszystkie projekty wymagają adaptacji do warunków miejscowych przez projektanta lokalnego.
Fundamenty - rozwiązanie o podwyższonej izolacji termicznej
Ściany zewnętrzne - Bloczek silikatowy 24 cm + styropian 20 cm
Strop - drewniany
Dach - tradycyjna więźba ciesielska
Ogrzewanie - c.o. podłogowe + c.w.u.- kompaktowa pompa ciepła + kolektory
WENTYLACJA - rekuperacja
Na etapie adaptacji projektu istnieje możliwość zamiany materiałów na inne o podobnych właściwościach i parametrach technicznych. Pamiętaj! Projekt stanowi spójną całość i zmiana rozwiązań może wpłynąć na jego właściwości wytrzymałościowe i cieplne.
| Stan surowy zamknięty | 243 500 zł |
| Stan deweloperski | 385 400 zł |
Szacunkowa wycena netto. Biuro projektowe nie zajmuje się realizacją inwestycji.
- 400 zł
Lancaster
DCB10484,33m2
Cena projektu:4570 zł4970 zł
Najniższa cena z 30 dni przed obniżką 4 970 zł
- 400 zł
Leeds IV
LMB70c62,18m2
Cena projektu:3690 zł4090 zł
Najniższa cena z 30 dni przed obniżką 4 090 zł
- 400 zł
Marsylia
DCB122119,40m2
Cena projektu:4470 zł4870 zł
Najniższa cena z 30 dni przed obniżką 4 870 zł
- 400 zł
Vitrac II
DCB131a136,35m2
Cena projektu:5570 zł5970 zł
Najniższa cena z 30 dni przed obniżką 5 970 zł
- 400 zł
Franklin IV
LMB101c104,13m2
Cena projektu:4890 zł5290 zł
Najniższa cena z 30 dni przed obniżką 5 290 zł
- 400 zł
Arosa IV
DCB115c127,48m2
Cena projektu:4770 zł5170 zł
Najniższa cena z 30 dni przed obniżką 5 170 zł
- 400 zł
Hope
LMB143103,69m2
Cena projektu:4690 zł5090 zł
Najniższa cena z 30 dni przed obniżką 5 090 zł
- 400 zł
Mindelo II
DCB136a152,80m2
Cena projektu:5770 zł6170 zł
Najniższa cena z 30 dni przed obniżką 6 170 zł
- 400 zł
Mindelo III
DCB136b153,10m2
Cena projektu:5770 zł6170 zł
Najniższa cena z 30 dni przed obniżką 6 170 zł
- 400 zł
Cincinnati
DCB151102,47m2
Cena projektu:5170 zł5570 zł
Najniższa cena z 30 dni przed obniżką 5 570 zł
- 400 zł
Portimao III
DCB145b85,81m2
Cena projektu:4570 zł4970 zł
Najniższa cena z 30 dni przed obniżką 4 970 zł
Opinie (0)
Opinie nie są weryfikowane pod kątem ich pochodzenia od konsumentów, którzy używali produktu lub go nabyli.