PROMOCJA
ULUBIONE

Projekt domu

Brunico 130,62m²

LMP345

 

Karta projektu Podziel się:

Opis projektu

Projekt domu piętrowego o niezwykle ciekawie podzielonej elewacji. Na parterze do dyspozycji mieszkańców jest słoneczny salon z jadalnią i kuchnią oraz toaleta. Niewątpliwymi atutami są również garaż w bryle budynku oraz duża kotłownia, w której może znaleźć się zarówno kocioł gazowy jak i kocioł na paliwo stałe. Na piętrze są dwie sypialnie dla dzieci oraz przestronna sypialnia rodziców z garderobą, a także łazienka z miejscem na prysznic oraz wannę. Jest również miejsce na kącik do pracy w holu.

Zapotrzebowanie Energetyczne

EUco = 33,53kWh/(m²rok)
EP = 69,90kWh/(m²rok)

Projekt zgodny z wt2021

Dowiedz się więcej  

Parter 75,65m2

Gotowy projekt domu Brunico rzut Parter

75,65m2

1.1 Wiatrołap 6,87m2
1.2 Wc 1,92m2
1.3 Pokój dzienny 32,54m2
1.4 Kuchnia 8,38m2
1.5 Spiżarnia 2,35m2
1.6 Garaż 17,99m2
1.7 Kotłownia 5,60m2
1.8 Podest 6,40m2
1.9 Taras 16,80m2
1.1 Wiatrołap 6,87m2
1.2 Wc 1,92m2
1.3 Pokój dzienny 32,54m2
1.4 Kuchnia 8,38m2
1.5 Spiżarnia 2,35m2
1.6 Garaż 17,99m2
1.7 Kotłownia 5,60m2
1.8 Podest 6,40m2
1.9 Taras 16,80m2

Piętro 78,56m2

Gotowy projekt domu Brunico rzut Piętro

78,56m2

2.1 Schody 3,34m2
2.2 Hall 14,52m2
2.3 Pokój 13,61m2
2.4 Pokój 13,61m2
2.5 Łazienka 9,32m2
2.6 Pokój 18,45m2
2.7 Garderoba 5,71m2
2.1 Schody 3,34m2
2.2 Hall 14,52m2
2.3 Pokój 13,61m2
2.4 Pokój 13,61m2
2.5 Łazienka 9,32m2
2.6 Pokój 18,45m2
2.7 Garderoba 5,71m2

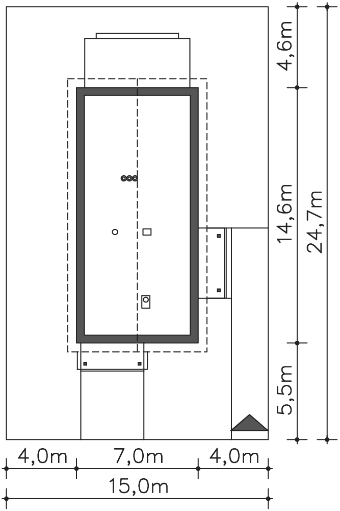
Wymiary działki

Gotowy projekt domu Brunico wymiary działki

Przekrój

Gotowy projekt domu Brunico przekrój

Elewacje

Gotowy projekt domu Brunico elewacja przód Gotowy projekt domu Brunico elewacja lewa Gotowy projekt domu Brunico elewacja tył Gotowy projekt domu Brunico elewacja prawa

Działka

Grafika przedstawia minimalne wymiary działki. Aby sprawdzić, czy dom może być realizowany na konkretnej działce należy uzyskać Wypis i Wyrys z Miejscowego Planu Zagospodarowania Przestrzennego lub jeśli na danym terenie nie ma planu – Decyzję o warunkach zabudowy. Wszystkie projekty wymagają adaptacji do warunków miejscowych przez projektanta lokalnego.

Dowiedz się więcej  

Technologia projektu

Fundamenty - płyta fundamentowa

Ściany zewnętrzne - Pustak ceramiczny 25 cm + styropian 20 cm

Strop - gęstożebrowy

Dach - wiązary prefabrykowane

Ogrzewanie - c.o. grzejnikowe + c.w.u. - kocioł gazowy (alternatywa paliwo stałe)

WENTYLACJA - grawitacyjna

Na etapie adaptacji projektu istnieje możliwość zamiany materiałów na inne o podobnych właściwościach i parametrach technicznych. Pamiętaj! Projekt stanowi spójną całość i zmiana rozwiązań może wpłynąć na jego właściwości wytrzymałościowe i cieplne.

Dowiedz się więcej  

Szacunkowe koszty realizacji

Stan surowy zamknięty 311 600 zł
Stan deweloperski 550 600 zł

Szacunkowa wycena netto. Biuro projektowe nie zajmuje się realizacją inwestycji.

Dowiedz się więcej  

Wyceń bezpłatnie budowę domu u wykonawcy  

Wersje projektu Brunico (1)

Gotowy projekt domu Brunico II
Projekt
Energo
Oszczędny

- 400 zł

Brunico II

LMP345a129,74m2

Idealny dom na bardzo wąskie działki, piętrowy z dachem dwuspadowym i tarasem nad garażem: jednoprzestrzenna strefa dzienna, trzy sypialnie, duża łazienka, toaleta, garaż, pom. z c.o.

Opinie (3)

03.03.2015

Lipinscy_Domy

Można doprojektować taki balkon zadasząjący taras.

Skomentuj

02.03.2015

Paula Pańskowska

Przydałoby się zadaszenie tarasu. A może dałoby się nad nim zrobić balkon z wyjściami z pomeszczeń 2.3 i 2.4?

Skomentuj

27.02.2015

Dominika D

Świetny projekt! Idealny na wąską działkę! :)

Skomentuj

Opinie nie są weryfikowane pod kątem ich pochodzenia od konsumentów, którzy używali produktu lub go nabyli.

Polecane rozwiązania

Podobne projekty (7)

projekt Brunico należy do kategorii

Ostatnio oglądane