PROMOCJA
ULUBIONE

Projekt domu

Pacifica II 191,30m²

DCP362a

PROMOCJA
- 400 zł
od 3 do 16 lutego 2026

 

Karta projektu Podziel się:

Opis projektu

Energooszczędny dom piętrowy, wielopokoleniowy, z wydzielonym osobnym mieszkaniem. Dom składa się z trzech połączonych ze sobą brył. Główny budynek ma dwie pełne kondygnacje, natomiast zlokalizowane po przeciwnych stronach jednopoziomowe dobudówki to: dwupokojowe mieszkanie z aneksem kuchennym i łazienką oraz dwustanowiskowy garaż. Wjazd do garażu jest zaplanowany w taki sposób, aby dom można było umieścić na stosunkowo wąskiej działce. Strefy dzienne obu mieszkań oraz wszystkie sypialnie są wyposażone w duże przeszklenia, dzięki którym wnętrza są jasne i przestronne. Część dzienna głównego budynku zajmuje niemal cały parter. Spore tarasy zostały tak zaplanowane aby nie kolidowały ze sobą i można było z nich korzystać niezależnie. Dom ten będzie wygodny dla wielopokoleniowej rodziny, ale może też stanowić dodatkowe źródło dochodu uzyskane z niezależnego mieszkania na wynajem.

Zapotrzebowanie Energetyczne

EUco = 25,14kWh/(m²rok)
EP = 67,05kWh/(m²rok)

Projekt zgodny z wt2021

Dowiedz się więcej  

Parter 156,65m2

Gotowy projekt domu Pacifica II rzut Parter

156,65m2

1.1 Wiatrołap 4,83m2
1.2 Komunikacja 8,23m2 (10,43m2)
1.3 Wc 1,66m2
1.4 Kuchnia 11,32m2
1.5 Spiżarnia 1,80m2
1.6 Jadalnia 15,56m2
1.7 Pokój dzienny 29,68m2
1.8 Kotłownia 4,68m2
1.9 Garaż 32,35m2
1.10 Wiatrołap 2,63m2
1.11 Pokój dzienny 18,97m2
1.12 Kuchnia 5,05m2
1.13 Spiżarnia 1,38m2
1.14 Łazienka 7,14m2
1.15 Pokój 11,37m2
1.16 Podest 7,14m2
1.17 Taras 38,10m2
1.18 Taras 14m2
1.1 Wiatrołap 4,83m2
1.2 Komunikacja 8,23m2 (10,43m2)
1.3 Wc 1,66m2
1.4 Kuchnia 11,32m2
1.5 Spiżarnia 1,80m2
1.6 Jadalnia 15,56m2
1.7 Pokój dzienny 29,68m2
1.8 Kotłownia 4,68m2
1.9 Garaż 32,35m2
1.10 Wiatrołap 2,63m2
1.11 Pokój dzienny 18,97m2
1.12 Kuchnia 5,05m2
1.13 Spiżarnia 1,38m2
1.14 Łazienka 7,14m2
1.15 Pokój 11,37m2
1.16 Podest 7,14m2
1.17 Taras 38,10m2
1.18 Taras 14m2

Piętro 71,68m2

Gotowy projekt domu Pacifica II rzut Piętro

71,68m2

2.1 Schody 4,48m2
2.2 Komunikacja 8,34m2
2.3 Łazienka 7,55m2
2.4 Łazienka 5,42m2
2.5 Pokój 17,59m2
2.6 Pokój 14,15m2
2.7 Pokój 14,15m2
2.8 Balkon 11,35m2
2.1 Schody 4,48m2
2.2 Komunikacja 8,34m2
2.3 Łazienka 7,55m2
2.4 Łazienka 5,42m2
2.5 Pokój 17,59m2
2.6 Pokój 14,15m2
2.7 Pokój 14,15m2
2.8 Balkon 11,35m2

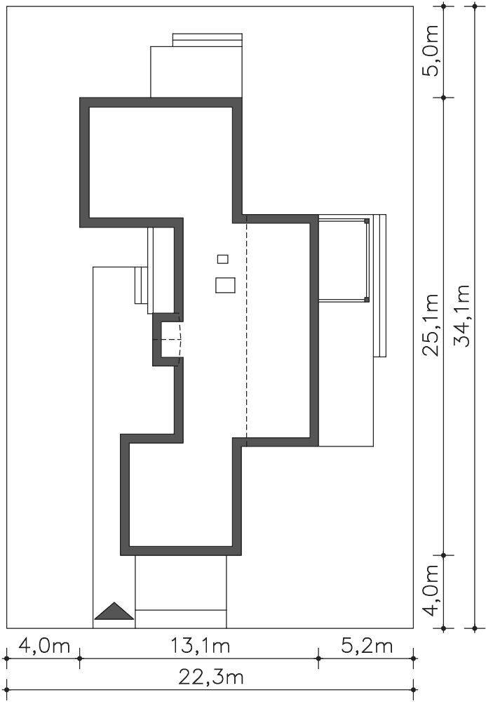
Wymiary działki

Gotowy projekt domu Pacifica II wymiary działki

Przekrój

Gotowy projekt domu Pacifica II przekrój

Elewacje

Gotowy projekt domu Pacifica II elewacja przód Gotowy projekt domu Pacifica II elewacja lewa Gotowy projekt domu Pacifica II elewacja tył Gotowy projekt domu Pacifica II elewacja prawa

Działka

Grafika przedstawia minimalne wymiary działki. Aby sprawdzić, czy dom może być realizowany na konkretnej działce należy uzyskać Wypis i Wyrys z Miejscowego Planu Zagospodarowania Przestrzennego lub jeśli na danym terenie nie ma planu – Decyzję o warunkach zabudowy. Wszystkie projekty wymagają adaptacji do warunków miejscowych przez projektanta lokalnego.

Dowiedz się więcej  

Technologia projektu

Fundamenty - rozwiązanie o podwyższonej izolacji termicznej

Ściany zewnętrzne - Bloczek betonu komórkowego 24 cm + styropian 20 cm

Strop - gęstożebrowy

Dach - wiązary prefabrykowane

Ogrzewanie - c.o. grzejnikowe + c.w.u. - kocioł gazowy

WENTYLACJA - rekuperacja

Na etapie adaptacji projektu istnieje możliwość zamiany materiałów na inne o podobnych właściwościach i parametrach technicznych. Pamiętaj! Projekt stanowi spójną całość i zmiana rozwiązań może wpłynąć na jego właściwości wytrzymałościowe i cieplne.

Dowiedz się więcej  

Szacunkowe koszty realizacji

Stan surowy zamknięty 536 600 zł
Stan deweloperski 849 400 zł

Szacunkowa wycena netto. Biuro projektowe nie zajmuje się realizacją inwestycji.

Dowiedz się więcej  

Wyceń bezpłatnie budowę domu u wykonawcy  

Wersje projektu Pacifica II (1)

Gotowy projekt domu Pacifica

Nowość

Projekt
Energo
Oszczędny

- 400 zł

Pacifica

DCP362191,30m2

Duży dom wielopokoleniowy z wydzielonym osobnym mieszkaniem, z przestronnym salonem, antresolą, trzema niezależnymi sypialniami, z wejściem i wjazdem z tej samej strony

Opinie (0)

Opinie nie są weryfikowane pod kątem ich pochodzenia od konsumentów, którzy używali produktu lub go nabyli.

Polecane rozwiązania

Podobne projekty (6)

projekt Pacifica II należy do kategorii

Ostatnio oglądane