Cena projektu
5 370 zł z VAT
| Powierzchnia użytkowa | 235,15m2 |
| Garaż | + 33,27m2 |
| Kotłownia | + 5,73m2 |
| Pom. pomocnicze | + 12,11m2 |
| Powierzchnia netto | 398,50m2 |
| Powierzchnia zabudowy | 181,42m2 |
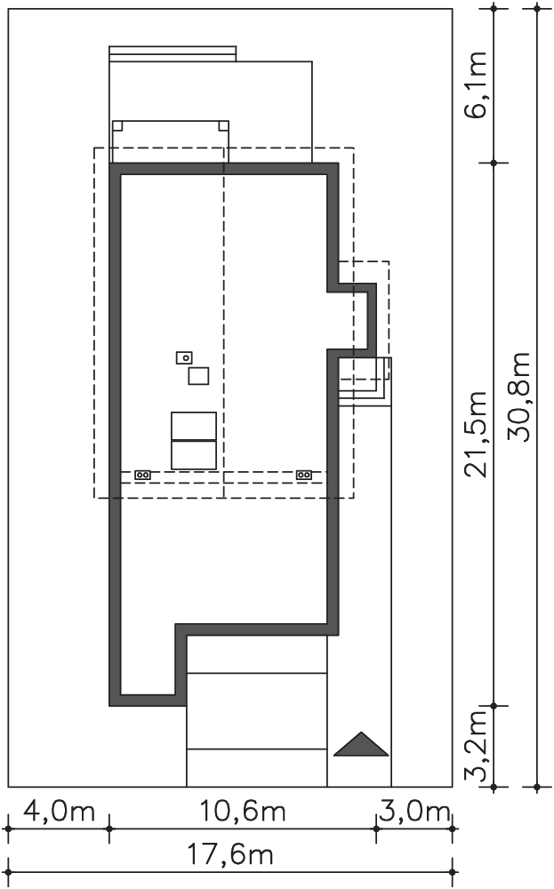
| Min. szerokość działki | 17,60m x 30,80m |
| Kubatura | 1 224,54m2 |
| Wysokość kalenicy | 10,18m |
| Kąt nachylenia dachu | 30° |
Przestronny, piękny dom energooszczędny z dwiema pełnymi kondygnacjami i użytkowym poddaszem. Doskonała propozycja dla Inwestorów, którzy chcieliby zamieszkać w dużym, wygodnym domu, a posiadają niezbyt szeroką działkę. Na parterze znajduje się otwarta na salon kuchnia, dodatkowa sypialnia, gabinet, wc i łazienka. Drugą kondygnację przeznaczono na salon, dwa pokoje, łazienkę oraz wygodną sypialnię z prywatną łazienką i garderobą. Z pokojów można wyjść na obszerny taras nad garażem. Poddasze to otwarta przestrzeń rekreacyjno-wypoczynkowa, doskonała także do zaaranżowania jako pracownia, doświetlona dużymi oknami. W bryłę domu wkomponowany został garaż na dwa stanowiska, kotłownia oraz pomieszczenie gospodarcze, idealne do przechowywania sprzętu lub mebli ogrodowych.
| EUco = 23,09kWh/(m²rok) |
| EP = 38,75kWh/(m²rok) |
Projekt zgodny z wt2021
| 1.1 | Wiatrołap | 2,77m2 |
| 1.2 | Komunikacja | 2,70m2 |
| 1.3 | Komunikacja | 9,53m2 |
| 1.4 | Wc | 2,22m2 |
| 1.5 | Kuchnia | 13,14m2 |
| 1.6 | Salon | 28,26m2 |
| 1.7 | Pom.gosp. | 1,10m2 |
| 1.8 | Łazienka | 5,53m2 |
| 1.9 | Pokój | 10,36m2 |
| 1.10 | Pokój | 17,54m2 |
| 1.11 | Kotłownia | 5,73m2 |
| 1.12 | Pom.pomocnicze | 12,11m2 |
| 1.13 | Garaż | 33,27m2 |
| 1.14 | Podest | 1,95m2 |
| 1.15 | Taras | 32m2 |
| 1.16 | Podest | 8,32m2 |
| 1.1 | Wiatrołap | 2,77m2 |
| 1.2 | Komunikacja | 2,70m2 |
| 1.3 | Komunikacja | 9,53m2 |
| 1.4 | Wc | 2,22m2 |
| 1.5 | Kuchnia | 13,14m2 |
| 1.6 | Salon | 28,26m2 |
| 1.7 | Pom.gosp. | 1,10m2 |
| 1.8 | Łazienka | 5,53m2 |
| 1.9 | Pokój | 10,36m2 |
| 1.10 | Pokój | 17,54m2 |
| 1.11 | Kotłownia | 5,73m2 |
| 1.12 | Pom.pomocnicze | 12,11m2 |
| 1.13 | Garaż | 33,27m2 |
| 1.14 | Podest | 1,95m2 |
| 1.15 | Taras | 32m2 |
| 1.16 | Podest | 8,32m2 |
| 2.1 | Komunikacja | 3,90m2 |
| 2.2 | Pom.gosp. | 0,82m2 |
| 2.3 | Pokój, schody | 25,18m2 |
| 2.4 | Pokój | 12,96m2 |
| 2.5 | Garderoba | 2,14m2 |
| 2.6 | Łazienka | 7,19m2 |
| 2.7 | Łazienka | 7,54m2 |
| 2.8 | Pokój | 15,03m2 |
| 2.9 | Pokój | 11,54m2 |
| 2.10 | Schody | 3,50m2 |
| 2.11 | Taras | 62,75m2 |
| 2.12 | Balkon | 7,64m2 |
| 2.1 | Komunikacja | 3,90m2 |
| 2.2 | Pom.gosp. | 0,82m2 |
| 2.3 | Pokój, schody | 25,18m2 |
| 2.4 | Pokój | 12,96m2 |
| 2.5 | Garderoba | 2,14m2 |
| 2.6 | Łazienka | 7,19m2 |
| 2.7 | Łazienka | 7,54m2 |
| 2.8 | Pokój | 15,03m2 |
| 2.9 | Pokój | 11,54m2 |
| 2.10 | Schody | 3,50m2 |
| 2.11 | Taras | 62,75m2 |
| 2.12 | Balkon | 7,64m2 |
| 3.1 | Poddasze | 48,53m2 (90,38m2) |
| 3.2 | Schody | 3,67m2 |
| 3.1 | Poddasze | 48,53m2 (90,38m2) |
| 3.2 | Schody | 3,67m2 |
Grafika przedstawia minimalne wymiary działki. Aby sprawdzić, czy dom może być realizowany na konkretnej działce należy uzyskać Wypis i Wyrys z Miejscowego Planu Zagospodarowania Przestrzennego lub jeśli na danym terenie nie ma planu – Decyzję o warunkach zabudowy. Wszystkie projekty wymagają adaptacji do warunków miejscowych przez projektanta lokalnego.
Fundamenty - rozwiązanie o podwyższonej izolacji termicznej
Ściany zewnętrzne - Bloczek silikatowy 24 cm + styropian 20 cm
Strop - gęstożebrowy
Ogrzewanie - c.o. grzejnikowe + c.w.u. - kocioł gazowy
WENTYLACJA - rekuperacja
Na etapie adaptacji projektu istnieje możliwość zamiany materiałów na inne o podobnych właściwościach i parametrach technicznych. Pamiętaj! Projekt stanowi spójną całość i zmiana rozwiązań może wpłynąć na jego właściwości wytrzymałościowe i cieplne.
| Stan surowy zamknięty | 672 800 zł |
| Stan deweloperski | 1 064 900 zł |
Szacunkowa wycena netto. Biuro projektowe nie zajmuje się realizacją inwestycji.
Brisbane
DCP262248,45m2
Cena projektu:7770 zł
Quimper
DCP314195,17m2
Cena projektu:5970 zł
Imperia III
DCP286B195,23m2
Cena projektu:6070 zł
Olten
DCP339230,77m2
Cena projektu:7670 zł
Sligo Pasywny 9
LDP09204,56m2
Cena projektu:8770 zł
Pacifica II
DCP362a191,30m2
Cena projektu:6170 zł
Opinie (9)
05.11.2013
Lipinscy_Domy
Można zaprojektować dodatkową kuchnie na piętrze, czy to w formie aneksu w salonie, czy też wydzieloną w którymś z pokoi.
Skomentuj03.11.2013
Adam
Potrzebuję domu z dwiema kuchniami. Czy możliwe jest zaprojektowanie kuchni na piętrze?
Skomentuj27.08.2013
Lipinscy_Domy
Projekt można oczywiście dostosować do Pana potrzeb. Wersja oryginalna była realizowana na indywidualne zamówienie inwestorów, którym bardziej odpowiadał taki układ. Nie ma jednak przeciwwskazań, aby wejście do domu zrobić w miejscu gabinetu, a stamtąd bezpośrednio do garażu. Zmiany takie może wprowadzić lokalny architekt w ramach adaptacji.
Skomentuj26.08.2013
Michal
Dom jest fantastyczny, tylko czy lepsze by było przeście z domu do garażu, zamiast gabinetu (poprzez Pomieszczenie Gospodarcze). A także spiżarnia w wykuszu, na którą jest balkon dostępny z piętra.
Skomentuj13.04.2013
alicia
Witam, czy ktos posiada zdjecia z wnetrz tego domku, albo z realizacji projektu. bylabym wdzieczna za dodanie
Skomentuj24.01.2012
Jola
Zachwycona jestem tym dużym tarasem. Dom dla całego pokolenia. Mogli by z nami zamieszkać w nim rodzice.
Skomentuj28.12.2011
Romek
Bardzo podoba mi się, że ten dom posiada dwie pełne aplikacje i do tego dodatkowo ma do tego użytkowe poddasze. Ten duży taras też mnie kupił.
Skomentuj30.11.2011
Karola
Ten dom wyróżnia się, jest duży, piękny, ale nie nachalny. Musimy naradzić się z mężem przed wyborem.
Skomentuj24.11.2011
Elsa
Piękny jest ten dom.. niestety szukamy czegoś trochę mniejszego, bo nie jesteśmy duża rodziną. Ale gdybym chciała coś o takim metrażu nie miałam być wątpliwości co do wyboru.
SkomentujOpinie nie są weryfikowane pod kątem ich pochodzenia od konsumentów, którzy używali produktu lub go nabyli.