PROMOCJA
ULUBIONE

Projekt domu

Sligo Pasywny 9 204,56m²

LDP09

 

Karta projektu Podziel się:

Opis projektu

Wygodny dom z użytkowym poddaszem, zaprojektowany w standardzie pasywnym. Projekt wyróżnia antresola nad salonem i jadalnią, która nie tylko nadaje wnętrzu przestronności, ale również wspaniale je doświetla. Wejście prowadzi do wygodnego wiatrołapu, z jednej jego strony znajduje się gabinet, z drugiej zaś, wygodna część gospodarcza i wc. Centralnym punktem domu jest salon i granicząca z nim wygodna kuchnia. Dzięki zlokalizowaniu tej części od frontu, dom doskonale sprawdza się na działce z wjazdem od południa. Na parterze wydzielono także zaciszną sypialnię z łazienką i garderobą. Poddasze zajmują dwie wygodne sypialnie, łazienka oraz część wypoczynkowa. W bryłę budynku wkomponowano garaż na jedno stanowisko.

Zapotrzebowanie Energetyczne

EUco = 14,33kWh/(m²rok)
EP = 60,96kWh/(m²rok)

Projekt zgodny z wt2021

Dowiedz się więcej  

Parter 159,61m2

Gotowy projekt domu Sligo Pasywny 9 rzut Parter

159,61m2

1.1 Wiatrołap 4,84m2
1.2 Komunikacja 22,83m2 (24,93m2)
1.3 Wc 1,68m2
1.4 Pom.gosp. 1,68m2
1.5 Pralnia, c.o. 6,30m2
1.6 Pokój 11,06m2
1.7 Kuchnia 12,30m2
1.8 Salon, jadalnia 41,14m2
1.9 Pokój 15m2
1.10 Garderoba 4,78m2
1.11 Łazienka 6,84m2
1.12 Garaż 31,16m2
1.13 Podest 13,62m2
1.14 Taras 44,91m2
1.15 Taras 18,75m2
1.1 Wiatrołap 4,84m2
1.2 Komunikacja 22,83m2 (24,93m2)
1.3 Wc 1,68m2
1.4 Pom.gosp. 1,68m2
1.5 Pralnia, c.o. 6,30m2
1.6 Pokój 11,06m2
1.7 Kuchnia 12,30m2
1.8 Salon, jadalnia 41,14m2
1.9 Pokój 15m2
1.10 Garderoba 4,78m2
1.11 Łazienka 6,84m2
1.12 Garaż 31,16m2
1.13 Podest 13,62m2
1.14 Taras 44,91m2
1.15 Taras 18,75m2

Poddasze 76,11m2

Gotowy projekt domu Sligo Pasywny 9 rzut Poddasze

76,11m2

2.1 Schody 4,66m2
2.2 Antresola 35,24m2 (42,31m2)
2.3 Pokój 16,98m2 (20,16m2)
2.4 Łazienka 6,72m2 (8,84m2)
2.5 Garderoba 1,36m2 (2,77m2)
2.6 Pokój 11,15m2 (14,67m2)
2.1 Schody 4,66m2
2.2 Antresola 35,24m2 (42,31m2)
2.3 Pokój 16,98m2 (20,16m2)
2.4 Łazienka 6,72m2 (8,84m2)
2.5 Garderoba 1,36m2 (2,77m2)
2.6 Pokój 11,15m2 (14,67m2)

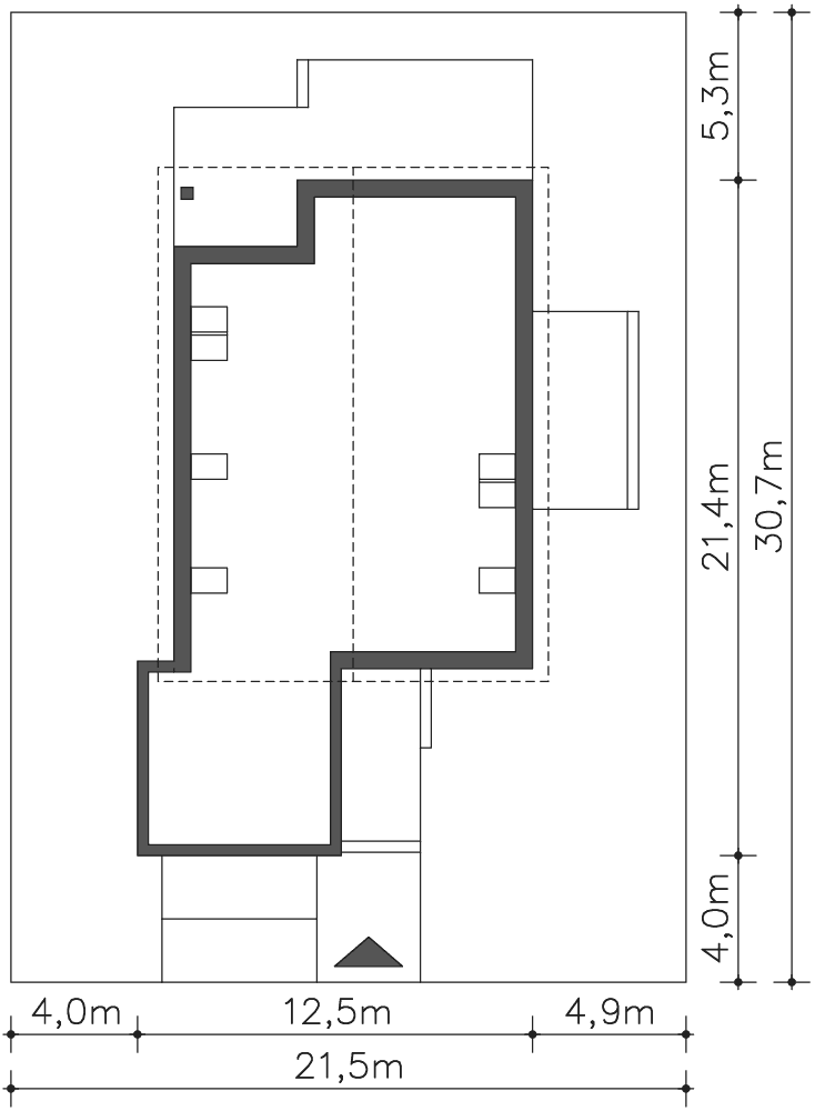
Wymiary działki

Gotowy projekt domu Sligo Pasywny 9 wymiary działki

Przekrój

Gotowy projekt domu Sligo Pasywny 9 przekrój

Elewacje

Gotowy projekt domu Sligo Pasywny 9 elewacja przód Gotowy projekt domu Sligo Pasywny 9 elewacja lewa Gotowy projekt domu Sligo Pasywny 9 elewacja tył Gotowy projekt domu Sligo Pasywny 9 elewacja prawa

Działka

Grafika przedstawia minimalne wymiary działki. Aby sprawdzić, czy dom może być realizowany na konkretnej działce należy uzyskać Wypis i Wyrys z Miejscowego Planu Zagospodarowania Przestrzennego lub jeśli na danym terenie nie ma planu – Decyzję o warunkach zabudowy. Wszystkie projekty wymagają adaptacji do warunków miejscowych przez projektanta lokalnego.

Dowiedz się więcej  

Technologia projektu

Fundamenty - rozwiązanie o podwyższonej izolacji termicznej

Ściany zewnętrzne - Bloczek silikatowy 24 cm + styropian 30 cm

Strop - gęstożebrowy

Dach - tradycyjna więźba ciesielska

Ogrzewanie - c.o. podłogowe + c.w.u. - pompa ciepła ze źródłem dolnym

WENTYLACJA - rekuperacja

Na etapie adaptacji projektu istnieje możliwość zamiany materiałów na inne o podobnych właściwościach i parametrach technicznych. Pamiętaj! Projekt stanowi spójną całość i zmiana rozwiązań może wpłynąć na jego właściwości wytrzymałościowe i cieplne.

Dowiedz się więcej  

Szacunkowe koszty realizacji

Stan surowy zamknięty 609 000 zł
Stan deweloperski 934 600 zł

Szacunkowa wycena netto. Biuro projektowe nie zajmuje się realizacją inwestycji.

Dowiedz się więcej  

Wyceń bezpłatnie budowę domu u wykonawcy  

Opinie (4)

29.08.2018

wujek

Nie chciałem pisać i wiecznie krytykować ale wasze obliczenia jeżeli chodzi o EUco wydają mi się naciągane, albo wszystkiego nie wiem. Mam podstawowe pytanie, czy niski wynik jest dla jakiegoś konkretnego źródła ciepła? Dla tak niskich wartości jest zupełnie bezsensu stosowanie CO nie mówiąc już o pompach ciepła. Co wy przewidujecie w domach pasywnych i w innych waszych projektach? Moje wątpliwości budzi przede wszystkim to że poza jednym czy dwoma waszymi domkami pasywnymi inne nie zachowują rygoru dzięki któremu dom może być pasywny. Tu wychodzi na to ze weźmiecie byle co, wsadzicie większe okna (bo tak naprawdę dzięki większym oknom obniża się zapotrzebowanie na ciepło) dacie grubsze ocieplenie i już wynik jest niski. Z założenia twórców domów pasywnych chodziło o to aby w nim nie było konieczności stosowania dodatkowego źródła ciepła, czyli by dzięki WM i podgrzaniu powietrza w wentylacji do 52st to wystarczyło do komfortowej temperatury w domu. Jakoś przy tym i nie tylko tym projekcie czarno to widzę. Szkoda że oprócz zapotrzebowania na ciepło nie podajecie jakie jest obciążenie cieplne a te w domu pasywnym nie może przekraczać 10W/m2. Może wypadałoby to dopisać aby każdy zobaczył jak to jest na prawdę. Co z tego ze dacie duże okna skoro w lecie będzie piekarnik? Fajnie się większymi oknami obniża zapotrzebowanie na ciepło, ale niech sobie państwo wyobrażą, że w takim domu trzeba mieszkać cały rok, a nie tylko w zimie. Aby w lato wytrzymać to trzeba klimę montować? W domu pasywnym powinno być komfortowo cały rok bez takich wspomagaczy jak klima czy CO. W ciągu dnia przy zasłoniętych oknach przez rolety mamy siedzieć? To jest ten komfort? Żaluzje zewnętrzne są bardzo drogie a jak kogoś stać na to to szczerze mówiąc nie będzie się dla niego liczyć czy wyda na rok 1000zł, 2000zł czy 5000zł więc i dom pasywny dla takiego to jest tylko kwestia pokazania ile się to pieniędzy nie ma i co za nie można mieć. te duże okna od południa będą tyle kosztować że niejeden za to by mały domek postawił, tym bardziej że takiej wielkości najlepsze byłoby z aluminium. Wszystko fajnie ale jak chcecie pokazać, że potraficie projektować domy pasywne to zaprojektujcie taki który będzie pasywny i cenowo tańszy od energooszczędnego w którym jest CO z pompą ciepła i innymi bajerami by mógł być energooszczędny. Prawda jest taka że dom pasywny aby miał sens to musi być niedrogi aby każda nie bogata rodzina mogła taki zbudować za rozsądne pieniądze. Jaki mam sens projektowanie domów pasywnych dla bogatych ludzi? Aby zmniejszyć zużycie energii by polepszyć los naszej planety to takie coś jak dom pasywny to powinien być standard w budownictwie i to na początek. Macie tytuły przed swoimi nazwiskami, więc olej w głowie jakiś macie. Wykorzystajcie to i dajcie ludziom projekt domu na który będzie ich stać i będzie pasywny z prawdziwego zdarzenia. Podstawą taniego budowania i energooszczędności jest prosta bryła domu z oknami o normalnych rozmiarach by ich koszt nie zabijał na wstępie.

Skomentuj

18.07.2017

Lipinscy_Domy

Wszystkich budujących dom pasywny wg naszych projektów zapraszamy do grupy na Facebooku:
https://www.facebook.com/groups/148800905665203/?source_id=116638165048553

Skomentuj

13.07.2017

Lipinscy_Domy

Czas oczekiwania to ok 4 tygodnie od dnia zamówienia. Charakterystykę dedykowaną możemy przygotować.
Szczegóły: biuro@lipinscy.pl

Skomentuj

13.07.2017

Inwestorr

Wreszcie duży i prosty dom pasywny. Gratulacje dla projektantów. Jaki czas oczekiwania na kompletną dokumentację?
Wykonacie Państwo charakterystykę dla mojej działki?

Skomentuj

Opinie nie są weryfikowane pod kątem ich pochodzenia od konsumentów, którzy używali produktu lub go nabyli.

Polecane rozwiązania

Podobne projekty (6)

projekt Sligo Pasywny 9 należy do kategorii

Ostatnio oglądane