PROMOCJA
ULUBIONE

Projekt domu

Flamingo II 158,44m²

LMBL51

 


Opis projektu

Propozycja domu jednorodzinnego dwulokalowego w zabudowie bliźniaczej. Mieszkania na parterze i piętrze składają się z pokoju dziennego z aneksem kuchennym, dwóch sypialni oraz łazienki, w której znajduje się piec zapewniający niezależne ogrzewanie każdemu z lokali. Mieszkanie na parterze posiada wyjście na taras, zaś domownicy na piętrze mają do dyspozycji balkon oraz studio na poddaszu. Zgrabna bryła budynku będzie się efektownie prezentować na osiedlach miejskich lub podmiejskich. Polecamy deweloperom.

Zapotrzebowanie Energetyczne

EUco = 2x46,13kWh/(m²rok)
EP = 2x67,48kWh/(m²rok)

Projekt zgodny z WT2021

Dowiedz się więcej  

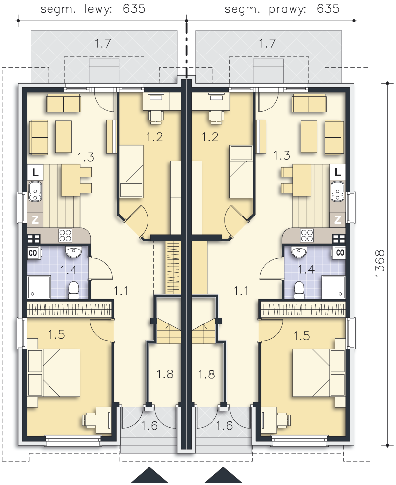
Parter 67,36m2

Gotowy projekt domu Flamingo II rzut Parter

67,36m2

1.1 Korytarz 13,18m2
1.2 Pokój 12,20m2
1.3 Salon z kuchnią 18,59m2
1.4 Łazienka 4,60m2
1.5 Pokój 16,19m2
1.8 Wiatrołap 2,60m2
1.6 Podest 2,14m2
1.7 Taras 11,40m2
1.1 Korytarz 13,18m2
1.2 Pokój 12,20m2
1.3 Salon z kuchnią 18,59m2
1.4 Łazienka 4,60m2
1.5 Pokój 16,19m2
1.8 Wiatrołap 2,60m2
1.6 Podest 2,14m2
1.7 Taras 11,40m2

Piętro 71,89m2

Gotowy projekt domu Flamingo II rzut Piętro

71,89m2

2.1 Schody 3,44m2
2.2 Hall 4,46m2
2.3 Salon z kuchnią 31,08m2
2.4 Łazienka 6,83m2
2.5 Pokój 18,28m2
2.6 Pokój 7,80m2 (9,88m2)
2.7 Balkon 3m2
2.1 Schody 3,44m2
2.2 Hall 4,46m2
2.3 Salon z kuchnią 31,08m2
2.4 Łazienka 6,83m2
2.5 Pokój 18,28m2
2.6 Pokój 7,80m2 (9,88m2)
2.7 Balkon 3m2

Studio 22,65m2

Gotowy projekt domu Flamingo II rzut Studio

22,65m2

3.1 Schody 3,51m2
3.2 Studio 19,14m2 (32,59m2)
3.1 Schody 3,51m2
3.2 Studio 19,14m2 (32,59m2)

Wymiary działki

Gotowy projekt domu Flamingo II wymiary działki

Przekrój

Gotowy projekt domu Flamingo II przekrój

Elewacje

Gotowy projekt domu Flamingo II elewacja przód Gotowy projekt domu Flamingo II elewacja lewa Gotowy projekt domu Flamingo II elewacja tył Gotowy projekt domu Flamingo II elewacja prawa

Działka

Grafika przedstawia minimalne wymiary działki. Aby sprawdzić, czy dom może być realizowany na konkretnej działce należy uzyskać Wypis i Wyrys z Miejscowego Planu Zagospodarowania Przestrzennego lub jeśli na danym terenie nie ma planu – Decyzję o warunkach zabudowy. Wszystkie projekty wymagają adaptacji do warunków miejscowych przez projektanta lokalnego.

Dowiedz się więcej  

Technologia projektu

Fundamenty - tradycyjne

Ściany zewnętrzne - Bloczek silikatowy 18 cm + styropian 15 cm

Strop - żelbetowy typu filigran

Dach - tradycyjna więźba ciesielska,  pokrycie: dachówka cementowa lub ceramiczna

Ogrzewanie - c.o. grzejnikowe + c.w.u. - kocioł gazowy,  c.w.u - kolektory słoneczne

WENTYLACJA - grawitacyjna

Na etapie adaptacji projektu istnieje możliwość zamiany materiałów na inne o podobnych właściwościach i parametrach technicznych. Pamiętaj! Projekt stanowi spójną całość i zmiana rozwiązań może wpłynąć na jego właściwości wytrzymałościowe i cieplne.

Dowiedz się więcej  

Szacunkowe koszty realizacji

Stan surowy zamknięty 2x320 100 zł
Stan deweloperski 2x565 700 zł

Szacunkowa wycena netto. Biuro projektowe nie zajmuje się realizacją inwestycji.

Dowiedz się więcej  

Wyceń bezpłatnie budowę domu u wykonawcy  

Wersje projektu Flamingo II (1)

Gotowy projekt domu Flamingo

Flamingo

LMS16158,12m2

Projekt domu w zabudowie szeregowej, dwumieszkaniowy: trzy pokojowe mieszkanie na parterze i czteropokojowe na piętrze, poddaszu.

Opinie (0)

Opinie nie są weryfikowane pod kątem ich pochodzenia od konsumentów, którzy używali produktu lub go nabyli.

Polecane rozwiązania

Podobne projekty (3)

projekt Flamingo II należy do kategorii

Ostatnio oglądane