PROMOCJA
ULUBIONE

Projekt domu

Flamingo 158,12m²

LMS16

 


Opis projektu

Ten dom szeregowy zawiera dwa osobne mieszkania w każdym segmencie. Mieszkanie na parterze ma ok 64m². Mieszkanie na piętrze jest większe ma ok 70m² oraz dodatkową powierzchnie (21m²) na poddaszu. W mieszkaniu każdym znajduje się część dzienna z salonem i aneksem kuchennym, łazienka oraz dwie sypialnie. Każde z mieszkań ma osobne ogrzewanie poprzez piec gazowy umieszczony w łazienkach. Ładna bryła domu i ciekawe detale wykończenia sprawiają, że dom będzie się ładnie komponował na miejskich osiedlach.

Zapotrzebowanie Energetyczne

EUco = Nx77,58kWh/(m²rok)
EP = Nx69,90kWh/(m²rok)

Projekt zgodny z wt2021

Dowiedz się więcej  

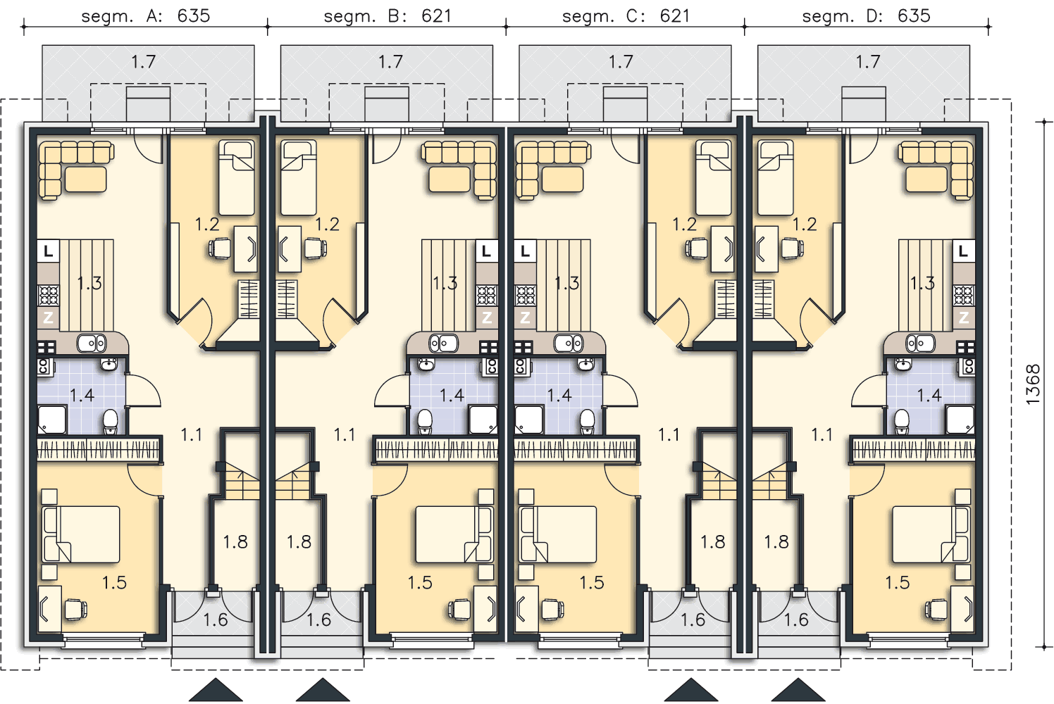
Parter 66,78m2

Gotowy projekt domu Flamingo rzut Parter

66,78m2

1.1 Komunikacja 12,60m2 (13,18m2)
1.2 Pokój 12,20m2
1.3 Pokój, aneks kuchenny 18,59m2
1.4 Łazienka, c.o. 4,60m2
1.5 Pokój 16,19m2
1.8 Komunikacja 2,60m2
1.6 Podest 2,14m2
1.7 Taras 11,04m2
1.1 Komunikacja 12,60m2 (13,18m2)
1.2 Pokój 12,20m2
1.3 Pokój, aneks kuchenny 18,59m2
1.4 Łazienka, c.o. 4,60m2
1.5 Pokój 16,19m2
1.8 Komunikacja 2,60m2
1.6 Podest 2,14m2
1.7 Taras 11,04m2

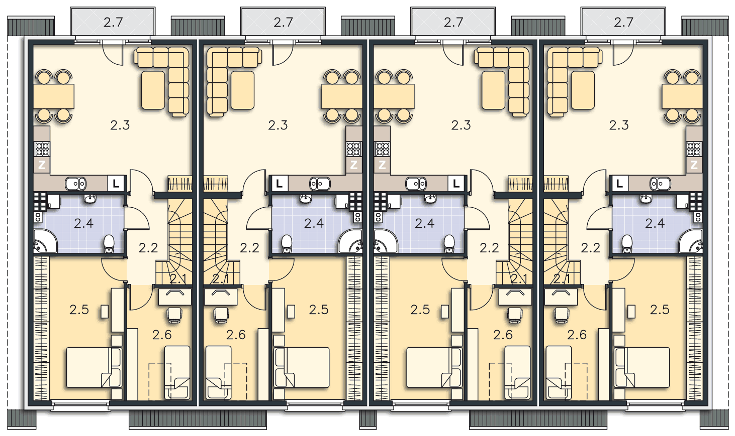
Piętro 68,69m2

Gotowy projekt domu Flamingo rzut Piętro

68,69m2

2.1 Schody 3,44m2
2.2 Komunikacja 4,46m2
2.3 Pokój 27,88m2 (31,08m2)
2.4 Łazienka, c.o. 6,83m2
2.5 Pokój 18,28m2
2.6 Pokój 7,80m2 (9,88m2)
2.7 Balkon 3m2
2.1 Schody 3,44m2
2.2 Komunikacja 4,46m2
2.3 Pokój 27,88m2 (31,08m2)
2.4 Łazienka, c.o. 6,83m2
2.5 Pokój 18,28m2
2.6 Pokój 7,80m2 (9,88m2)
2.7 Balkon 3m2

Poddasze 22,65m2

Gotowy projekt domu Flamingo rzut Poddasze

22,65m2

3.1 Schody 3,51m2
3.2 Studio 19,14m2 (32,44m2)
3.1 Schody 3,51m2
3.2 Studio 19,14m2 (32,44m2)

Wymiary działki

Gotowy projekt domu Flamingo wymiary działki

Przekrój

Gotowy projekt domu Flamingo przekrój

Elewacje

Gotowy projekt domu Flamingo elewacja przód Gotowy projekt domu Flamingo elewacja lewa Gotowy projekt domu Flamingo elewacja tył Gotowy projekt domu Flamingo elewacja prawa

Działka

Grafika przedstawia minimalne wymiary działki. Aby sprawdzić, czy dom może być realizowany na konkretnej działce należy uzyskać Wypis i Wyrys z Miejscowego Planu Zagospodarowania Przestrzennego lub jeśli na danym terenie nie ma planu – Decyzję o warunkach zabudowy. Wszystkie projekty wymagają adaptacji do warunków miejscowych przez projektanta lokalnego.

Dowiedz się więcej  

Technologia projektu

Fundamenty - płyta fundamentowa

Ściany zewnętrzne - Bloczek silikatowy 18 cm + styropian 15 cm

Strop - gęstożebrowy

Dach - tradycyjna więźba ciesielska

Ogrzewanie - c.o. grzejnikowe + c.w.u. - kocioł gazowy

WENTYLACJA - grawitacyjna

Na etapie adaptacji projektu istnieje możliwość zamiany materiałów na inne o podobnych właściwościach i parametrach technicznych. Pamiętaj! Projekt stanowi spójną całość i zmiana rozwiązań może wpłynąć na jego właściwości wytrzymałościowe i cieplne.

Dowiedz się więcej  

Szacunkowe koszty realizacji

Stan surowy zamknięty Nx319 500 zł
Stan deweloperski Nx564 500 zł

Szacunkowa wycena netto. Biuro projektowe nie zajmuje się realizacją inwestycji.

Dowiedz się więcej  

Wyceń bezpłatnie budowę domu u wykonawcy  

Wersje projektu Flamingo (1)

Gotowy projekt domu Flamingo II

Flamingo II

LMBL51158,44m2

Dom dwulokalowy w zabudowie bliźniaczej, bez garażu, na dole taras, na górze balkon, dwa mieszkania z salonem, otwartą kuchnią, dwoma sypialniami, łazienką, dodatkowo na poddaszu duże studio z drugiego mieszkania

Opinie (5)

12.11.2014

Lipinscy_Domy

Można zrealizować jeden segment. Więcej projektów na wąskie działki: http://domy.lipinscy-projekty.pl/waska_dzialka/

Skomentuj

06.11.2014

Mariola

Witam.Czy projekt moze dotyczyć pojedynczego domu czy moze jest podobny projekt na waska działkę ale z inna metodą ogrzewania.Gaz mnie nie przekonuje.A tu spodobał mi sie układ pomieszczeń.

Skomentuj

06.03.2014

Hania

Ciekawa szeregówka :) Czy ktoś zdecydował się na ten projekt?

Skomentuj

04.11.2013

Lipinscy_Domy

Podane koszty dotyczą jednego segmentu domu.

Skomentuj

31.10.2013

Lidia

Koszt tego domu to330 tys za jeden kawalek?

Skomentuj

Opinie nie są weryfikowane pod kątem ich pochodzenia od konsumentów, którzy używali produktu lub go nabyli.

Polecane rozwiązania

Podobne projekty (6)

projekt Flamingo należy do kategorii

Ostatnio oglądane