PROMOCJA
ULUBIONE

Projekt domu

Genewa III 155,16m²

DCBL45

 


Opis projektu

Energooszczędny dom w zabudowie bliźniaczej, o nowoczesnym rysie, który - dzięki wysunięciu garażu do przodu, zmieści się na niezbyt szerokiej działce. Zamknięta kuchnia, zlokalizowana od strony frontowej, znajdzie uznanie wśród zwolenników wyraźnego oddzielenia tego pomieszczenia od salonu. Ozdobą wygodnego salonu z kominkiem jest duże, narożne okno, doskonale doświetlające wnętrze. Na parterze przewidziano także pokój dla gości lub gabinet oraz łazienkę. Za garażem znajduje się kotłownia. Poddasze podzielono między cztery sypialnie, w tym jedną z własną garderobą, dużą, wygodną łazienką oraz pralnię. Drewniane pergole stanowią ładny element dekoracyjny tarasu oraz chronią go przed nadmiernym słońcem.

Zapotrzebowanie Energetyczne

EUco = 2x19,27kWh/(m²rok)
EP = 2x61,70kWh/(m²rok)

Projekt zgodny z wt2021

Dowiedz się więcej  

Parter 100,59m2

Gotowy projekt domu Genewa III rzut Parter

100,59m2

1.1 Wiatrołap 5,94m2
1.2 Komunikacja 5,41m2 (7,14m2)
1.3 Kuchnia, jadalnia 15,16m2
1.4 Pokój dzienny 31,34m2
1.5 Pokój 12,67m2
1.6 Łazienka 4,37m2
1.7 Kotłownia 7,03m2
1.8 Garaż 18,67m2
1.9 Taras 15,22m2
1.10 Taras 16,52m2
1.1 Wiatrołap 5,94m2
1.2 Komunikacja 5,41m2 (7,14m2)
1.3 Kuchnia, jadalnia 15,16m2
1.4 Pokój dzienny 31,34m2
1.5 Pokój 12,67m2
1.6 Łazienka 4,37m2
1.7 Kotłownia 7,03m2
1.8 Garaż 18,67m2
1.9 Taras 15,22m2
1.10 Taras 16,52m2

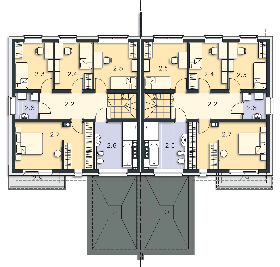
Piętro 80,27m2

Gotowy projekt domu Genewa III rzut Piętro

80,27m2

2.1 Schody 4,05m2
2.2 Komunikacja 10,05m2
2.3 Pokój 10,09m2
2.4 Pokój 10,12m2
2.5 Pokój 11,43m2
2.6 Łazienka 10,93m2
2.7 Pokój 20,23m2
2.8 Pralnia 3,37m2
2.9 Balkon 3,88m2
2.1 Schody 4,05m2
2.2 Komunikacja 10,05m2
2.3 Pokój 10,09m2
2.4 Pokój 10,12m2
2.5 Pokój 11,43m2
2.6 Łazienka 10,93m2
2.7 Pokój 20,23m2
2.8 Pralnia 3,37m2
2.9 Balkon 3,88m2

Wymiary działki

Gotowy projekt domu Genewa III wymiary działki

Przekrój

Gotowy projekt domu Genewa III przekrój

Elewacje

Gotowy projekt domu Genewa III elewacja przód Gotowy projekt domu Genewa III elewacja lewa Gotowy projekt domu Genewa III elewacja tył Gotowy projekt domu Genewa III elewacja prawa

Działka

Grafika przedstawia minimalne wymiary działki. Aby sprawdzić, czy dom może być realizowany na konkretnej działce należy uzyskać Wypis i Wyrys z Miejscowego Planu Zagospodarowania Przestrzennego lub jeśli na danym terenie nie ma planu – Decyzję o warunkach zabudowy. Wszystkie projekty wymagają adaptacji do warunków miejscowych przez projektanta lokalnego.

Dowiedz się więcej  

Technologia projektu

Fundamenty - rozwiązanie o podwyższonej izolacji termicznej

Ściany zewnętrzne - Bloczek silikatowy 24 cm + styropian 20 cm

Strop - gęstożebrowy

Dach - tradycyjna więźba ciesielska

Ogrzewanie - c.o. grzejnikowe + c.w.u. - kocioł gazowy

WENTYLACJA - rekuperacja

Na etapie adaptacji projektu istnieje możliwość zamiany materiałów na inne o podobnych właściwościach i parametrach technicznych. Pamiętaj! Projekt stanowi spójną całość i zmiana rozwiązań może wpłynąć na jego właściwości wytrzymałościowe i cieplne.

Dowiedz się więcej  

Szacunkowe koszty realizacji

Stan surowy zamknięty 2x425 100 zł
Stan deweloperski 2x672 800 zł

Szacunkowa wycena netto. Biuro projektowe nie zajmuje się realizacją inwestycji.

Dowiedz się więcej  

Wyceń bezpłatnie budowę domu u wykonawcy  

Wersje projektu Genewa III (2)

Gotowy projekt domu Genewa
Projekt
Energo
Oszczędny

- 400 zł

Genewa

DCP354149,80m2

Dom piętrowy z dachem czterospadowym, z garażem dwustanowiskowym, dużą kotłownią, z sypialnią na parterze i trzema sypialniami na piętrze
Gotowy projekt domu Genewa II
Projekt
Energo
Oszczędny

- 400 zł

Genewa II

DCP354A149,80m2

Dom piętrowy z dachem dwuspadowym nad częścią mieszkalną, z dachem płaskim nad garażem dwustanowiskowym, dużą kotłownią, z sypialnią na parterze i trzema sypialniami na piętrze

Opinie (0)

Opinie nie są weryfikowane pod kątem ich pochodzenia od konsumentów, którzy używali produktu lub go nabyli.

Polecane rozwiązania

Podobne projekty (1)

projekt Genewa III należy do kategorii

Ostatnio oglądane