PROMOCJA
ULUBIONE

Projekt domu

Praia 65,32m²

DCB134

 

Karta projektu Podziel się:

Opis projektu

Niewielki, nowoczesny dom parterowy z płaskim dachem, o zwartej bryle, przewidziany w standardzie energooszczędnym, dzięki czemu nie jest drogi w eksploatacji, a przy tym wygodny i funkcjonalny. Dzięki niewielkiej szerokości może być zlokalizowany nawet na bardzo wąskiej działce. Idealnie nadaje się dla pary lub niewielkiej rodziny. W domu zaplanowano wygodną sypialnię małżeńską, przytulny salon, doświetlony dużym oknem, aneks kuchenny z częścią jadalnianą, łazienkę oraz dodatkowy pokój, doskonale sprawdzający się jako gabinet lub pokój gościnny. Projekt zapewne zwróci uwagę Inwestorów, którzy szukają niewielkiego, wygodnego i nowoczesnego domu. W projekcie przewidziano ogrzewanie kotłem na gaz. Możliwa jest zmiana ogrzewania na pompę ciepła.

Zapotrzebowanie Energetyczne

EUco = 25,20kWh/(m²rok)
EP = 67,66kWh/(m²rok)

Projekt zgodny z wt2021

Dowiedz się więcej  

Parter 65,32m2

Gotowy projekt domu Praia rzut Parter

65,32m2

1.1 Wiatrołap 2,93m2
1.2 Komunikacja 3,23m2
1.3 Pokój 15,36m2
1.4 Łazienka 5,31m2
1.5 Salon z kuchnią 27,21m2
1.6 Pokój 11,28m2
1.7 Podest 3m2
1.8 Taras 20,30m2
1.1 Wiatrołap 2,93m2
1.2 Komunikacja 3,23m2
1.3 Pokój 15,36m2
1.4 Łazienka 5,31m2
1.5 Salon z kuchnią 27,21m2
1.6 Pokój 11,28m2
1.7 Podest 3m2
1.8 Taras 20,30m2

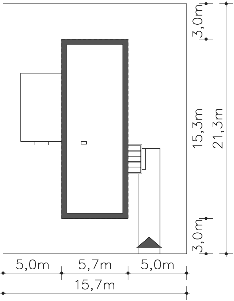
Wymiary działki

Gotowy projekt domu Praia wymiary działki

Przekrój

Gotowy projekt domu Praia przekrój

Elewacje

Gotowy projekt domu Praia elewacja przód Gotowy projekt domu Praia elewacja lewa Gotowy projekt domu Praia elewacja tył Gotowy projekt domu Praia elewacja prawa

Działka

Grafika przedstawia minimalne wymiary działki. Aby sprawdzić, czy dom może być realizowany na konkretnej działce należy uzyskać Wypis i Wyrys z Miejscowego Planu Zagospodarowania Przestrzennego lub jeśli na danym terenie nie ma planu – Decyzję o warunkach zabudowy. Wszystkie projekty wymagają adaptacji do warunków miejscowych przez projektanta lokalnego.

Dowiedz się więcej  

Technologia projektu

Fundamenty - płyta fundamentowa

Ściany zewnętrzne - Bloczek betonu komórkowego 24 cm + styropian 20 cm

Strop - gęstożebrowy

Dach - stropodach żelbetowy

Ogrzewanie - c.o. grzejnikowe + c.w.u. - kocioł gazowy

Ogrzewanie - Wersja na zmówienie: c.o.+c.w.u. pompa ciepła powietrze woda

WENTYLACJA - rekuperacja

Na etapie adaptacji projektu istnieje możliwość zamiany materiałów na inne o podobnych właściwościach i parametrach technicznych. Pamiętaj! Projekt stanowi spójną całość i zmiana rozwiązań może wpłynąć na jego właściwości wytrzymałościowe i cieplne.

Dowiedz się więcej  

Szacunkowe koszty realizacji

Stan surowy zamknięty 153 600 zł
Stan deweloperski 243 000 zł

Szacunkowa wycena netto. Biuro projektowe nie zajmuje się realizacją inwestycji.

Dowiedz się więcej  

Wyceń bezpłatnie budowę domu u wykonawcy  

Wersje projektu Praia (2)

Gotowy projekt domu Praia II
Projekt
Energo
Oszczędny

- 20 %

Praia II

DCB134a65,32m2

Mały dom parterowym z dachem dwuspadowym, z jasnym salonem doświetlonym oknami z dwóch stron, z dwiema sypialniami, odpowiedni na wąskie działki
Gotowy projekt domu Ribeira
Projekt
Energo
Oszczędny

Ribeira

DCB13580,24m2

Dom parterowy z płaskim dachem, z trzema sypialniami, słonecznym salonem z otwartą kuchnią, tarasem zadaszonym pergolą, z systemem rekuperacji

Opinie (10)

18.12.2019

Lipińscy Domy

Aktualizujemy ceny raz do roku w 2 kwartale, czyli podane koszty są aktualne. Jest możliwość realizacji w technologii szkieletowej. Jeśli jest Pani zainteresowana wyceną takiej budowy prosimy o wypełnienie formularza z tego linku: https://lipinscy.pl/projekt/praia/bezplatna-wycena-domu-w-systemie-wolf-haus

Skomentuj

17.12.2019

Aleksandra Karwowska

Witam. Czy kwota budowy domu w stanie dewloperskim wyliczona jest na podstawie aktualnych cenach materiałów budowlanych? Czy jest możliwa zmaian technologii budowy na szkieletową?

Skomentuj

06.08.2019

Lipińscy Domy

Można wprowadzić taką zmianę uwzględniając konstrukcyjną zmianę stropu.

Skomentuj

27.07.2019

Ania

Czy szerokość domu można powiększyć do 6,5 metra ?

Skomentuj

27.12.2018

Lipińscy Domy

Mamy projekt Ribeira DCB135 z dodatkową sypialnią.

Skomentuj

22.12.2018

strus

bardzo ładny projekt, czy mają coś Państwo podobnego w metrażu 80-120?

Skomentuj

10.12.2018

Lipińscy Domy

Jest to stropodach żelbetowy.
Informacje podane są w zakładce Technologia.

Skomentuj

07.12.2018

Robert

DACH JEST WYKONANY W KONSTRUKCJI żelbetonowej ?

Skomentuj

21.02.2018

Lipińscy Domy

Mamy taką wersję Praia II DCB 134A.

Skomentuj

21.02.2018

Budmen

Jeśli warunki nie pozwalają na dach płaski to można zaadaptować projekt na stromy 30-40 stopni?

Skomentuj

Opinie nie są weryfikowane pod kątem ich pochodzenia od konsumentów, którzy używali produktu lub go nabyli.

Polecane rozwiązania

Podobne projekty (7)

projekt Praia należy do kategorii

Ostatnio oglądane