PROMOCJA
ULUBIONE

Projekt domu

Truro 120,51m²

LMB102

PROMOCJA
- 400 zł
od 3 do 17 marca 2026

 

Karta projektu Podziel się:

Opis projektu

Tradycyjny dom parterowy o wydłużonej bryle, która została zaprojektowana z myślą o węższych działkach. W takim układzie w domu wygodnie zmieści się garaż z praktycznym przejściem przez kotłownię do wiatrołapu. Za nimi znajduje się osobna strefa prywatna z trzema ustawnymi sypialniami, a ostatnia to apartament małżeński z własną łazienką i garderobą. Część dzienna to otwarta przestrzeń salonu, dużej kuchni, w której można zastosować tzw. wyspę oraz jadalnią, która łączy funkcjonalnie oba pomieszczenia. Na uwagę zasługuje także zadaszony taras. Wszystkie pomieszczenia są ładnie oświetlone światłem naturalnym, z wyjątkiem małego pomieszczenia pomocniczego, który znajduje się w środku domu.
Poprzednia nazwa projektu: Pyszny - C322

Zapotrzebowanie Energetyczne

EUco = 47,51kWh/(m²rok)
EP = 69,90kWh/(m²rok)

Projekt zgodny z WT2021

Dowiedz się więcej  

Parter 144,32m2

Gotowy projekt domu Truro rzut Parter

144,32m2

1.1 Wiatrołap 5,56m2
1.2 Komunikacja 14,66m2
1.3 Kuchnia 12,47m2
1.4 Pokój dzienny 25,24m2
1.5 Pom.gosp. 2,59m2
1.6 Łazienka 7,29m2
1.7 Garderoba 4,01m2
1.8 Łazienka 3,24m2
1.9 Pokój 18,89m2
1.10 Pokój 13,34m2
1.11 Pokój 13,22m2
1.12 Kotłownia 5,74m2
1.13 Garaż 18,07m2
1.14 Podest 14,85m2
1.15 Taras 13,08m2
1.1 Wiatrołap 5,56m2
1.2 Komunikacja 14,66m2
1.3 Kuchnia 12,47m2
1.4 Pokój dzienny 25,24m2
1.5 Pom.gosp. 2,59m2
1.6 Łazienka 7,29m2
1.7 Garderoba 4,01m2
1.8 Łazienka 3,24m2
1.9 Pokój 18,89m2
1.10 Pokój 13,34m2
1.11 Pokój 13,22m2
1.12 Kotłownia 5,74m2
1.13 Garaż 18,07m2
1.14 Podest 14,85m2
1.15 Taras 13,08m2

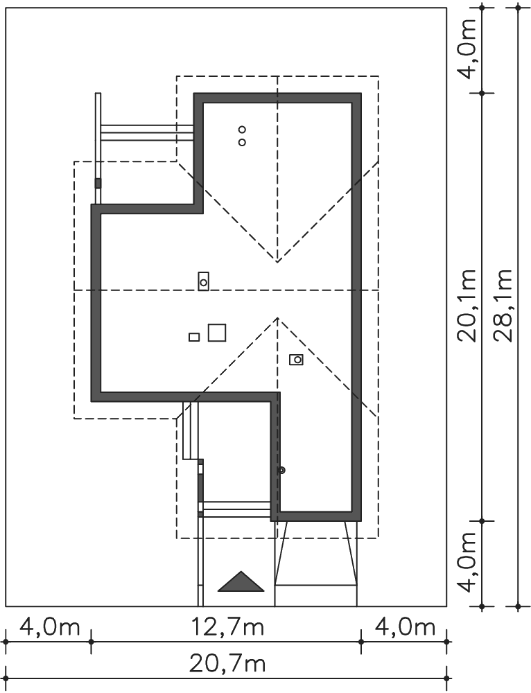
Wymiary działki

Gotowy projekt domu Truro wymiary działki

Przekrój

Gotowy projekt domu Truro przekrój

Elewacje

Gotowy projekt domu Truro elewacja przód Gotowy projekt domu Truro elewacja lewa Gotowy projekt domu Truro elewacja tył Gotowy projekt domu Truro elewacja prawa

Działka

Grafika przedstawia minimalne wymiary działki. Aby sprawdzić, czy dom może być realizowany na konkretnej działce należy uzyskać Wypis i Wyrys z Miejscowego Planu Zagospodarowania Przestrzennego lub jeśli na danym terenie nie ma planu – Decyzję o warunkach zabudowy. Wszystkie projekty wymagają adaptacji do warunków miejscowych przez projektanta lokalnego.

Dowiedz się więcej  

Technologia projektu

Fundamenty - rozwiązanie o podwyższonej izolacji termicznej

Ściany zewnętrzne - Bloczek silikatowy 24 cm + styropian 20 cm

Strop - drewniany

Dach - tradycyjna więźba ciesielska

Ogrzewanie - c.o. grzejnikowe + c.w.u. - kocioł na paliwo stałe

WENTYLACJA - grawitacyjna

Na etapie adaptacji projektu istnieje możliwość zamiany materiałów na inne o podobnych właściwościach i parametrach technicznych. Pamiętaj! Projekt stanowi spójną całość i zmiana rozwiązań może wpłynąć na jego właściwości wytrzymałościowe i cieplne.

Dowiedz się więcej  

Szacunkowe koszty realizacji

Stan surowy zamknięty 291 600 zł
Stan deweloperski 515 300 zł

Szacunkowa wycena netto. Biuro projektowe nie zajmuje się realizacją inwestycji.

Dowiedz się więcej  

Wyceń bezpłatnie budowę domu u wykonawcy  

Opinie (18)

24.09.2019

Lipińscy Domy

Jest możliwość realizacji projektu z elementów prefabrykowanych. Wymaga to dostosowania projektu przez wybranego wykonawcę w konkretnej technologii. Nasze Biuro Projektowe współpracuje z firmą budującą w technologii prefabrykowanej drewnianej. Jeśli jest Pan zainteresowany wyceną budowy tego konkretnie projektu proszę o wypełnienie formularza z poniższego linku https://lipinscy.pl/projekt/pyszny/bezplatna-wycena-domu-w-systemie-wolf-haus

Skomentuj

23.09.2019

Marek

Czy jest możliwość budowy tego domu z elementów gotowych? Prefabrykowanych?

Skomentuj

07.09.2015

Lipinscy_Domy

Można zlikwidować garaż w ramach adaptacji u lokalnego architekta.

Skomentuj

05.09.2015

Darek

Czy da radę ten projekt ale bez garażu..?

Skomentuj

06.07.2015

Krzysztof

Chętnie zobaczyłbym ten projekt ale w wersji z płaskim dachem i powiększoną strefą dzienną.

Skomentuj

27.02.2015

Lipinscy_Domy

Na wąskie działki proponowalibyśmy projekty piętrowe np. któryś z wersji Belfast, Brunico, Essen, Malmo, Nicea lub Sydney.

Skomentuj

26.02.2015

Marzenciasz

Witam
Bardzo podoba mi się ten projekt, jednakże moja działka ma 19 m szerokości. Czy posiadają państwo w swojej ofercie podobny projekt, który pasował by na moją działkę.

Skomentuj

03.11.2014

Lipinscy_Domy

Szacunkowe koszty dotyczą realizacji wg proponowanych technologii. Wyliczenia nie uwzględniają systemu rekuperacji. Jeśli chodzi o koszty systemu rekuperacji to prosimy o przesłanie zapytania do firmy wykonawczej - przy pomocy formularza Rekuperacja w panelu po lewej stronie.

Skomentuj

02.11.2014

Krzysztof

Dobry wieczór,
Bardzo ładny projekt i świtnie rozmiesczone pomieszczenia! Mam kilka pytań.
Czy zamieszczony kosztorys dotyczy wybudowania domu wg proponowanej technologii? Roczne koszty ogrzewania wydają się dość niskie, czy są to wyliczenia dla domu z systemem rekuperacji? O ile droższy może być koszt wykonania domu z instalacji rekuperacji i czy kwota 30 tys brutto wystarczy do wykonania kompletnej instalacji?
Pozdrawiam

Skomentuj

13.05.2014

Lipinscy_Domy

Nie planujemy wykonywania wizualizacji wnętrz do tego projektu.

Skomentuj

08.05.2014

Greg

Witam

Czy przewidujecie wizualizację wnętrza domu ?

Skomentuj

10.04.2014

Hela

Ja również powiększyłabym łazienkę w głównej sypialni usuwając garderobę. Przewidziane jest miejsce gospodarcze, więc miejsca na rzeczy powinno wystarczyć. A w łazience zawsze się przyda miejsce, choćby na pranie.

Skomentuj

25.02.2014

Lipinscy_Domy

Projekt nie przewiduje adaptacji poddasza. Aby było to możliwe trzeba wprowadzić w nim szereg zmian m.in. przenieść ocieplenie ze stropu pod połać dachu, przeznaczyć miejsce na schody, podnieść kąt nachylenia dachu, zapewnić doświetlenie.

Skomentuj

12.02.2014

Ela

Czy jest możliwość adaptacji poddasza na małe biuro? Jak wysokie jest poddasze?

Skomentuj

10.02.2014

Lipinscy_Domy

Nie wykonujemy wyliczeń z wykończeniami, ponieważ trudno jest ustalić jakiś średni standard wykończenia. Liczymy do stanu deweloperskiego, który nie obejmuje jedynie malowania, podłóg i płytek (oraz wyposażenia, oświetlenia, mebli i zagospodarowania działki :-)). Dla tego domu wynosi on 301 700 zł netto.

Skomentuj

07.02.2014

Adam

Jaki byłby szacowany koszt tego domu pod klucz?

Skomentuj

29.01.2014

Lipinscy_Domy

Oczywiście jest taka możliwość. Tego typu drobne zmiany funkcjonalne są możliwe bez konieczności uzyskiwania zgody od autora na zmiany.

Skomentuj

21.01.2014

Zainteresowany

Ciekawy projekt. Zastanawiam się czy mozliwe jest, żeby zrerzygnować z 1.7 i zrobić większa łazienkę?

Skomentuj

Opinie nie są weryfikowane pod kątem ich pochodzenia od konsumentów, którzy używali produktu lub go nabyli.

Polecane rozwiązania

Podobne projekty (5)

projekt Truro należy do kategorii

Ostatnio oglądane