PROMOCJA
ULUBIONE

Projekt domu

Sofia IV 83,22m²

LMB41c

 

Karta projektu Podziel się:

Opis projektu

Kolejna wersja lubianego przez Inwestorów projektu Sofia. W Sofii IV dodaliśmy dodatkową sypialnię i przewidzieliśmy pomieszczenie na kotłownię z możliwością jej adaptacji na paliwo stałe (za garażem, z oddzielnym wyjściem na zewnątrz). W domu mieszkańcy mają więc teraz do dyspozycji salon z dekoracyjnym wykuszem, graniczący z otwartą na niego kuchnią, trzy sypialnie i wygodną łazienkę. Jednostanowiskowy garaż doskonale komponuje się z bryłą domu. Niewątpliwą ozdobą Sofii IV są jej charakterystyczne elementy: ładnie zaprojektowany ganek, okiennice oraz łukowate okna w elewacji ogrodowej.

Zapotrzebowanie Energetyczne

EUco = 46,30kWh/(m²rok)
EP = 65,47kWh/(m²rok)

Projekt zgodny z WT2021

Dowiedz się więcej  

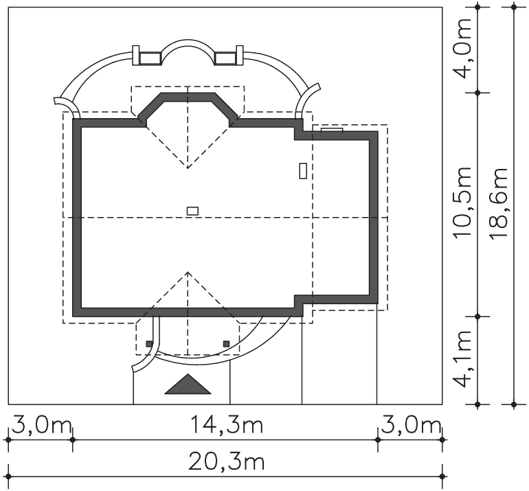
Parter 105,73m2

Gotowy projekt domu Sofia IV rzut Parter

105,73m2

1.1 Wiatrołap 5,30m2
1.2 Pom.gosp. 1m2
1.3 Łazienka 6,46m2
1.4 Pokój 10,69m2
1.5 Pokój 12m2
1.6 Salon 21,60m2
1.7 Kuchnia 10,57m2
1.8 Pokój 10,16m2
1.9 Komunikacja 5,44m2
1.10 Garaż 17,30m2
1.11 Kotłownia 5,21m2
1.12 Podest 7,59m2
1.13 Taras 22,64m2
1.1 Wiatrołap 5,30m2
1.2 Pom.gosp. 1m2
1.3 Łazienka 6,46m2
1.4 Pokój 10,69m2
1.5 Pokój 12m2
1.6 Salon 21,60m2
1.7 Kuchnia 10,57m2
1.8 Pokój 10,16m2
1.9 Komunikacja 5,44m2
1.10 Garaż 17,30m2
1.11 Kotłownia 5,21m2
1.12 Podest 7,59m2
1.13 Taras 22,64m2

Strych 27,48m2

Wymiary działki

Gotowy projekt domu Sofia IV wymiary działki

Przekrój

Gotowy projekt domu Sofia IV przekrój

Elewacje

Gotowy projekt domu Sofia IV elewacja przód Gotowy projekt domu Sofia IV elewacja lewa Gotowy projekt domu Sofia IV elewacja tył Gotowy projekt domu Sofia IV elewacja prawa

Działka

Grafika przedstawia minimalne wymiary działki. Aby sprawdzić, czy dom może być realizowany na konkretnej działce należy uzyskać Wypis i Wyrys z Miejscowego Planu Zagospodarowania Przestrzennego lub jeśli na danym terenie nie ma planu – Decyzję o warunkach zabudowy. Wszystkie projekty wymagają adaptacji do warunków miejscowych przez projektanta lokalnego.

Dowiedz się więcej  

Technologia projektu

Fundamenty - rozwiązanie o podwyższonej izolacji termicznej

Strop - drewniany

Dach - tradycyjna więźba ciesielska

Ogrzewanie - c.o. grzejnikowe + c.w.u. - kocioł gazowy,  c.w.u - kolektory słoneczne

WENTYLACJA - grawitacyjna

Na etapie adaptacji projektu istnieje możliwość zamiany materiałów na inne o podobnych właściwościach i parametrach technicznych. Pamiętaj! Projekt stanowi spójną całość i zmiana rozwiązań może wpłynąć na jego właściwości wytrzymałościowe i cieplne.

Dowiedz się więcej  

Szacunkowe koszty realizacji

Stan surowy zamknięty 210 700 zł
Stan deweloperski 372 400 zł

Szacunkowa wycena netto. Biuro projektowe nie zajmuje się realizacją inwestycji.

Dowiedz się więcej  

Wyceń bezpłatnie budowę domu u wykonawcy  

Wersje projektu Sofia IV (6)

Gotowy projekt domu Sofia II

Sofia II

LMB41a83,02m2

Mały urokliwy dom parterowy z dwuspadowym dachem, garażem jednostanowiskowym od strony kuchni, kotłownią za garażem
Gotowy projekt domu Atlanta
Projekt
Energo
Oszczędny

- 400 zł

Atlanta

DCP241141,92m2

Urokliwy dom z poddaszem użytkowym, gankiem i ozdobnym wykuszem: salon z kominkiem, kuchnia ze spiżarką, cztery sypialnie, garderoby, garaż z pom.gosp.
Gotowy projekt domu Sofia III

Sofia III

LMB41b83,08m2

Mały dom parterowy z dwuspadowym dachem, garażem dwustanowiskowym od strony kuchni
Gotowy projekt domu Sintra

Sintra

LMB6592,26m2

Dom parterowy w stylu dworkowym z dachem dwuspadowym i łukowymi oknami, z trzema sypialniami
Gotowy projekt domu Sofia V

Sofia V

LMB41d83,02m2

Mały urokliwy dom parterowy z dwuspadowym dachem, z kuchnią od frontu, garażem jednostanowiskowym od strony sypialni, kotłownią za garażem
Gotowy projekt domu Sofia VI

Sofia VI

LMB41e83,02m2

Mały dom parterowy z dwuspadowym dachem, garażem dwustanowiskowym od strony sypialni

Opinie (382)

26.08.2019

Lipińscy Domy

My takiej wersji nie opracujemy, ale może ją przygotować współpracująca z nami firma wykonawcza.
https://lipinscy.pl/projekt/sofia-iv/bezplatna-wycena-domu-w-systemie-wolf-haus

Skomentuj

23.08.2019

Radej

Witam firmę. Czy jest Sofia w wersji drewnianej-szkieletowej???

Skomentuj

05.01.2018

Seba

Witam jaka jest orientacyjna cena wykonania fundamentu

Skomentuj

13.09.2017

Lipinscy_Domy

Dyskusje częściowo przeniosły się na Facebooka: https://www.facebook.com/groups/313793238978322/

Skomentuj

12.09.2017

Marcin

Już nikt nie buduje Sofii ? Cicho tu

Skomentuj

28.12.2016

Lipinscy_Domy

Trzeba znaleźć miejsce na schody i wprowadzić strop żelbetowy - mamy taki w Sofii III.

Skomentuj

28.12.2016

Damian

Witam serdecznie.
Czy poddasze można wykorzystać na cześć mieszkalną np. dwa pokoje?
Z góry dziękuje za odpowiedź

Skomentuj

06.12.2016

Justyna

Tak, z wykończeniem. Myślę, że pod klucz wyjdzie nam ok 420 tysięcy. Odnośnie projektu to małe zmiany: poszerzony dom został o metr z każdej strony - łącznie powierzchnia użytkowa wyszła 105 metrów. Plus garaż poszerzony na podwójny. Nie oszczędzaliśmy na materiałach dlatego wyszło jak wyszło. Ale przynajmniej liczymy na oszczędności w przyszłości :) jak ogarnę to wszystko, to niedługo wrzucę na forum jakieś zdjęcia.
W razie pytań mogę odpowiedzieć więcej na maila. Pozdrawiam.

Skomentuj

06.12.2016

Magda

Justyna, czy to już z wykończeniem? JAkieś zmiany wprowadzaliście do projektu?
Pozdrawiam i zazdroszczę :)

Skomentuj

04.12.2016

Justyna

Właśnie kończymy, już przekroczyliśmy 400 tysięcy. A nie mamy kostki, ogrodzenia i paru drobiazgów.

Skomentuj

02.12.2016

Lipinscy_Domy

W grupie budujących Sofie na Facebooku można poznać koszty: https://www.facebook.com/groups/313793238978322/

Skomentuj

01.12.2016

Dorcia

Witam interesuje mnie ten projekt czy może mi ktoś napisać ile wyniósł koszt budowy pod klucz tego projektu oczywiście w przybliżeniu

Skomentuj

05.10.2016

Lipinscy_Domy

Zapraszamy wszystkich zainteresowanych do grupy na Facebooku:
https://www.facebook.com/groups/313793238978322/

Skomentuj

01.10.2016

KRIS

HEJ czy ma ktoś kosztorys dokladnie spis materiałów użytych do budowy, byłbym wdzięczny za podesłanie, bardzo ładny projekt

Skomentuj

23.09.2016

Lipinscy_Domy

U nas jest to dodatkowy koszt. Szczegóły: biuro@lipinscy.pl
Możemy również wydać bezpłatną zgodę i zmiany może nanieść architekt lokalny.

Skomentuj

23.09.2016

ola

Czy wiąże się to z dodatkowymi kosztami?

Skomentuj

23.09.2016

Lipinscy_Domy

Tak. Można wprowadzić taką zmianę w ramach adaptacji.

Skomentuj

22.09.2016

ola

Witam,
Czy jest możliwość zlikwidowania pokoju 1.8, w to miejsce zaprojektowania kuchni. W ten sposób powiększy nam się pokój dzienny oraz kuchnia.

Skomentuj

07.09.2016

Dag

Witam interesuje mnie budowa Sofii jakie są realne koszty >???? jakieś rady???? Pozdrawiam Dag

Skomentuj

18.07.2016

Lipinscy_Domy

Tak, można zamienić pomieszczenia np. w ramach adaptacji u lokalnego architekta.

Skomentuj

18.07.2016

Karolina

Witam, czy jest możliwość zamiany kuchni (1.7) z pokojem (1.5)?

Skomentuj

07.05.2016

Katarzyna Janko/ kasia

witam!jestem zainetresowana tym projektem. Czy ktos jest juz w posiadaniu takiego juz domku i moglby sie pochwalic zdjeciami na priv? bylabym wdzieczna, kjanko86@gmail.com

Skomentuj

21.04.2016

Lipinscy_Domy

Prawdopodobnie inwestorów pochłonęła budowa. Liczymy na fotorelację na forum. :)

Skomentuj

21.04.2016

Marcin

Co tu tak ucichło?

Skomentuj

11.02.2016

Lipinscy_Domy

Można przenieść garaż i kotłownię lub w wersji odbicia lustrzanego przenieść kuchnię.
Zmiany może nanieść lokalny architekt w ramach adaptacji.

Skomentuj

11.02.2016

Beata

Witam, do jastrzębie4 - czy można zobaczyć ten domek w realu? Mieszkam koło Warszawy, proszę o kontakt laguna10@ autograf.pl Pozdrawiam.

Skomentuj

11.02.2016

Beata

Witam, jestem zainteresowana projektem Sofia IV w wersji podstawowej ale ze zamianą usytuowania garażu i kotłowni, ponieważ wejście do budynku będzie od strony zachodniej więc garaż i kotłownia powinny znajdować się po lewej stronie (od północy). Czy jest możliwość zaprojektowania garażu i kotłowni od strony dwóch sypialni? Z góry dziękuję za odpowiedź. Pozdrawiam.

Skomentuj

22.01.2016

Lipinscy_Domy

Taka zmiana wiązałaby się z całkowitą zmianą funkcji.
Mamy wersję z kuchnią od frontu ale są w niej dwie sypialnie - Sofia V.

Skomentuj

21.01.2016

Sylwia

Witam, chciałabym się zapytać czy jest możliwość zaprojektowania kuchni w połączeniu z salonem ale od strony drzwi wejściowych? Choć pewnie nie jest to możliwe, gdyż rozmieszczenie pokoi nie będzie efektowne. Dziękuje za udzieloną informację.

Skomentuj

23.11.2015

Monika

Witam wszystkich, mam ogromną prośbę do fiedka2 czy dałoby radę zobaczyć domek na żywo? Mieszkamy koło sandomierza a mi sie strasznie projekt podoba musze tylko męża przekonać. Meil do mnie: mona_lebioda@poczta.onet.pl . pozdrawiam wszystkich fanów Sofii;)

Skomentuj

10.11.2015

walddi

Witam czy w woj. Malopolskim ktos wybudowal Sofie? z checia bym zobaczyl ten domek na zywo Pochwalil by sie ktos? prosze o kontakt moj e meil walddi111@interia.pl

Skomentuj

19.10.2015

jastrzebie4

Mariusz 73, zużyłem równo 1190 bloczków Solbet 600, bez drzwi w kotłowni, pozdrawiam

Skomentuj

28.09.2015

JA

witam;)zaczęliśmy z Sofią IV przygodę;) niedługo zalewamy strop ...wprowadziliśmy kilka zmian niniejszym mamy pod garażem kotłownie i piwnice zejście do nich jest z pomieszczenia 1.11, w komunikacji jest miejsce na schody na poddasze, i zrobiliśmy przejście z domu do garażu;)

Skomentuj

25.09.2015

fiedka2

do michał 180/140

Skomentuj

23.09.2015

mariusz73

jastrzebie4 mam pytanie ile zużyłeś bloczków solbet 600?

Skomentuj

16.09.2015

jastrzebie4

Witam,

Ja buduję Sofię 4 pod Warszawą . Bloczki solbet 600 , blachodachówka. Kończą tynki wewnętrzne ,jeszcze hydraulik i ocieplenie. Zmieniony strop na Teriva schody betonowe. Stan deweloperski 150 tyś. Oczywiście system gospodarczy. Materiały dowoziłem sam.

pozdrawiam

Skomentuj

27.08.2015

michal

do fiedka2 :


czy mógłybyś podać konkretny rozmiar okien w pokoju 1.4 i 1.8 ?
Z góry dziękuje.

Skomentuj

13.08.2015

fiedka2

do michał: okna na wykuszu są krótsze niż w projekcie, budując według projektu nie zmieściłby się pod nimi standardowy grzejnik, natomiast okna w pokoju 1.4 i 1.8 są węższe- zresztą te i tak są właściwie na całości ściany

Skomentuj

12.08.2015

Lipinscy_Domy

Możemy przygotować taki projekt. Prosimy o kontakt bezpośredni: biuro@lipinscy.pl

Skomentuj

11.08.2015

michal

do fiedka chciałem zapytac czy zmienialiście rozmiar okien ...

Skomentuj

29.07.2015

Leokadia

Zapomniałam jeszcze dodać, że zależy nam nam na tym aby dach był kopertowy. To dla nas bardzo ważne.
Oczekuje na Państwa odpowiedz.
Dziekuje i pozdrawiam

Skomentuj

29.07.2015

Leokadia

Witam. Bardzo nam sie podoba projekt Sofia IV.Zamierzamy go kupić ale chcielibysmy dokonać pewnych zmian:
- poszerzyc po 1 m wnętrze salonu wzdłuż kuchni i przeciwległego 1.5 pokoju a kominek zrobic np. na scianie łazienki
w miejscu 1.2
- natomiast garaz z pomieszczeniem gospodarczym przenieść na ściane pokoi aby w kuchni i sypialni 1.8 na scianie
frontowej było możliwe wstawienie po 1 oknie.
Bardzo proszę o odpowiedz czy można od Państwa uzyskać tak zmodyfikowany ten projekt Sofii IV?

Skomentuj

27.07.2015

fiedka2

do milka: czekam na zdjęcia

Skomentuj

23.07.2015

jaaa

a mi się nie podoba to co zrobiła friedka, chodzi mi o wygląd z zewnątrz, dom całkowicie stracił swój urok, kolory brzydkie, cegła nie pasuje

Skomentuj

22.07.2015

milka


Do fiedka: domek przepiękny ,u nas będzie klinkier ale na całym wykuszu plus cokół, obecny stan to : okna , tynki wylewka, ocieplenie i czekam właśnie na pana od klinkieru,niebawem zdjęcia ,pozdrawiam

Skomentuj

17.07.2015

Justynka

witam! dziś zakończyliśmy etap fundamentów. Koszt jak do tej pory, z uwzględnieniem całej dokumentacji to 46 tysięcy, w tym fundament 33 600 zł (z czego 6000 zł robocizna). W przyszłym tygodniu murujemy. Pozdrawiam wszystkich fanów Sofii :)

Skomentuj

15.06.2015

michal

do fiedka dodaj więcej zdjęć z pozostałych pokoi

Skomentuj

24.04.2015

Marcin

Wybudowałem Sofię w zachodniopomorskim , nie wliczając działki i dokumentacji trzeba liczyć 400 tysięcy na wybudowanie tego domu. Ja zagospodarowałem strych . No chyba , że ktoś buduje sam i nie płaci za robociznę to może odjąć od tego stówkę .

Skomentuj

10.04.2015

Lipinscy_Domy

Kontakt do inwestorów można znaleźć tutaj w komentarzach albo na forum.

Skomentuj

09.04.2015

jola

moj email.jola.39@wp.pl

Skomentuj

09.04.2015

jola

chcemy budowac sofie iv w przyszłym roku czy mogłby podac mi ktos koszt budowy w realu
w zachodniopom.nie potrzebujemy stropu uzytkowego ani schodow
wolalabym v ale ona ma lazienke bez okna .dziękuję za odpowiedż

Skomentuj

08.04.2015

Piotr

Jak sie kontaktowac z inwestorami ? Odrazu mam pytanie zna ktos jakies formy ktpre buduja od a do z domy i moga wybudowac sofoe 4

Skomentuj

08.04.2015

Lipinscy_Domy

Ten projekt nie ma poddasza użytkowego. Można zamówić tę wersję. Co do realizacji w okolicy Wrocławia to być może inwestorzy pomogą.

Skomentuj

07.04.2015

Piotr

Witam planuje budowę sofi 4 w tym roku. Prosze mi powiedziec czy mozna zamowic taki projekt ale bez poddasza ? Jest taki domek w okolicach wroclawia ? I jakie sa mniej wiecej koszta takiego domku do stanu surowego zamknietego ? Prosze o kontakt mailowy badz tutaj . chodorski12@gmail.com

Skomentuj

27.03.2015

Lipinscy_Domy

Pani Justyno, życzymy powodzenia, trzymamy kciuki i czekamy na fotorelację. ;-)

Skomentuj

26.03.2015

Justynka

witam. niedługo przystępujemy do budowy tego domku. Pozwolenie na budowę już mamy, czekamy tylko aż zrobi się nieco cieplej. Wprowadziliśmy nieco zmian w projekcie. Cały dom, z każdej strony został poszerzony o ok. 1 metr, więc powierzchni użytkowej wyszło nam 105 metrów. Poszerzyliśmy także garaż, ponieważ ze względu na brak piwnicy przyda się trochę miejsca na różne sprzęt, rowery itp. Strop będziemy mieć żelbetowy. Jeżeli chodzi o ogrzewanie, to będziemy mieć powietrzną pompę ciepła i ogrzewanie podłogowe, dlatego nawet nie rozważaliśmy przejścia z kotłowni do kuchni, nie będzie potrzebne. Pomieszczenie 1.2 zamieniliśmy na WC, w łazience też będzie WC oraz prysznic i narożna wanna. Dzięki poszerzeniu domku sypialnie stały się całkiem spore, salon również. Schody na strych będziemy mieć w garażu, takie chowane i spuszczane. Nie planujemy adaptacji poddasza więc nie robiliśmy schodów tradycyjnych. Już nie mogę się doczekać budowy :) dodam, że formalności trwały u nas ponad rok.

Skomentuj

26.02.2015

Lipinscy_Domy

Szanowni Inwestorzy, jeśli jest taka możliwość prosimy o przesłanie zdjęć z realizacji projektu na naszego maila: biuro@lipinscy.pl lub o publikację ich na naszym profilu na Facebooku https://pl-pl.facebook.com/Lipinscy.Domy

Skomentuj

12.01.2015

Marcinio66

Tego powyżej wodze fantazji poniosły! Przecież to wszystko jest tu już zawarte wystarczy poczytać !

Skomentuj

05.01.2015

Wojciech

Witam, bardzo podoba nam sie projekt, lecz wprowdził bym pewne zmiany, a mianowicie... Strop zmienilbym na betonowy, z kotłowni drzwi zewnetrzne bym usuna a zamiast nich wstawil bym drzwi miedzy kuchnia a kotlownia, usuna bym kominek, zamiast drzwi tarasowych w kuchni i sypialni wstawil bym okna, drzwi tarasowe wstawil bym w wykuszu, w pokojach po stronie lewej wstawil bym po jeszcze jednym oknie oraz w garazu dwa male okienka i w kotlowni jedno, zeby sciany nie byly puste :P To by było na tyle, jak Państwo to widzicie?? :D za odpowiedzi z góry dziękuje:)

Skomentuj

05.01.2015

Lipinscy_Domy

Można wprowadzić takie zmiany. Prosimy o kontakt w celu uzyskania szczegółów: biuro@lipinscy.pl

Skomentuj

04.01.2015

zibi

Bardzo ładny domek.wiem ze jest podobny z poddaszem użytkowym ale to na nas 2 osoby za duży dlatego chcemy tylko na gorze kosztem łazienki zrobic spiralne schody a na strychu 1 sypialnie z łazienką. Czy tak się da zrobić bez zmiany kąta dachu i podnoszenia ściany czyli zachować tak jak jest tylko schody i okna dachowe ew duze okno trójkątne?

Skomentuj

28.11.2014

fiedka2

I nawzajem :))

Skomentuj

28.11.2014

asia

fiedka2 niby to które moje wpisy zdecydowały iż oświadczyłaś wszem i wobec że na wielu rzeczach się nie znam!!! dymu i sadzy nie mam w kuchni bo kotłownię mam tam gdzie powinna być i sadza i dym tam też są!! twój dom więc sobie mieszkaj jak chcesz i ode mnie ...... .się!!!!

Skomentuj

27.11.2014

fiedka2

to twoje zdanie! dym i sadzę to może ty masz - ja nie- więc te swoje opinie zachowaj dla siebie/ zresztą zauważyłam po wcześniejszych twoich wpisach że nie masz pojęcia o niektórych rzeczach, i że na pewno wiesz wszystko lepiej,
więc się .........

Skomentuj

25.11.2014

asia

To chyba najgorsze co można zmienić. ....wejście z kuchni do kotłowni? ???? To chyba jakiś żart! !!!!dym, sądza....kotłownia zdecydowanie jak najdalej od pomieszczeń w których przebywamy!!!

Skomentuj

20.11.2014

kafed

ja nie zdecydowałam się na to przejście i jestem b. zadowolona, bo kuchnia byłaby wtedy malutka, jak kocioł z podajnikiem to nie ma potrzeby co chwilę do kotłowni biegać, znajomi mają przejście i strasznie narzekają, ale zależy pewnie od podejścia, i tak widzi się dopiero minusy domu mieszkając w nim

Skomentuj

19.11.2014

fiedka2

i nie wyobrażam sobie tego domy bez tego przejścia

Skomentuj

19.11.2014

fiedka2

ja mam zrobione wejście z kuchni do kotłowni - cały zeszły rok paliliśmy, w tym już też - nic nie czuć

Skomentuj

17.11.2014

kafed

Jeśli mogę coś doradzić, to wejście z domu do kotłowni byłoby dobrym rozwiązaniem gdy będzie się palić gazem, jeśli ekogroszkiem to nie polecam to do domu pełno pyłu się naniesie

Skomentuj

16.11.2014

anja

dzień dobry czy można zobaczyć ten dom gdzieś w okolicach woj świętokrzyskiego? ewentualnie zrobimy sobie wycieczkę...dom bardzo nam się podoba tylko tez zastanawiamy się nad zrobieniem wejścia z domu do kotłowni, zęby w zimie nie wychodzić na zewnątrz;) pozdrawiam serdecznie

Skomentuj

24.10.2014

kafed

ja mam schody okrągłe 150, zlikwidowałam tą malutką sciankę dzielącą kuchnię od salonu i wejście na okrągłe schody jest od komunikacji, cofnęłam sciankę o ok 40 cm kosztem sypialni ale za to mam "wnękę" na tv na ścianie i komodę pod nim. ( z ścianka z pokoju 1.5 jest na równi ze ścianką z pokoju 1.4 -te ścianki na której są drzwi) jednak załuję ze nie zrezygnowałam całkiem z tego pokoju i nalezało powiększyć salon o te 12 m. Jednak na dzień dzisiejszy zależy mi na 3 sypialniach na dole gdyż nie chciałam by dzieci chodziły po schodach i bym miała je pod ręką :) a jak podrosną to sypialnię "wyniosę" na górę i wtedy może uda mi się wyburzyć tą ścianę. Polecam też strop terriva, ja mam drewniany i trochę jest głośny i wcale nie jest tańszy. W łazience nie mam prysznica, w jego miejscu jest narożna ubikacja, pod oknem bidet. Acha i mam zmieniony kąt pochylenia dachu o 5 stopni i dom na piętrze podniesiony ok 50 cm. I jeśli ktoś planuje kocioł typu na ekogroszek to kotłownia jest zdecydowanie za mała, mąż musiał szukać małego kotła, który jednocześnnie ma mały zasobnik i często trzeba dorzucać do niego

Skomentuj

23.10.2014

Lipinscy_Domy

Pani Gosiu, dołączymy do projektu zgodę na wszystkie wyżej wymienione zmiany. Prosimy jedynie o ich wpisanie w formularzu zamówienia.

Skomentuj

20.10.2014

GOSIA

i jeszczj jedno pytanie czy z kuchni mozna zrobic przejscie do garazu? czy rowniez przy zamawianiu projektu dostaniemy na to wasze zezwolenie do projektu

Skomentuj

20.10.2014

GOSIA

Można zlikwidować kominek i ścianę, stosując podciąg.

Czy do tego potrzbene jest wasze zezwolenie w planach jesli chcielibysmy taka zmian w projekcie zrobic?
Czy ogrzewanie mozna zmieniac dowolnie z gazowego na piec itp?

Skomentuj

20.10.2014

Lipinscy_Domy

Można zlikwidować kominek i ścianę, stosując podciąg.

Skomentuj

19.10.2014

GOSIA

WITAM JESTESMY ZAINTERESOWANI PROJETKEM SOFIA 4 I CHCIELIBYSMY USUNĄC, ZLIKWIDOWAC SCIANE Z KOMINKIEM UZYSKUJĄC WIEKSZY SALON ? MOZNA TAK ZROBIC?

Skomentuj

11.08.2014

asia

Zgodzę się z Januszem. Dom z poddaszem użytkowym to duży koszt samego poddasza a nie mówiąc o wykończeniu. Tutaj mniej miejsca, dla nas dwoje starczy chociaż myślimy zagospodarować poddasze. A koszty ....heh jak narazie niewielkie porównując ze znajomymi którzy budują z poddaszem. My chcemy taniej wiec dlatego ta opcja domu.

Skomentuj

11.08.2014

Lipinscy_Domy

Schody na ewentualne poddasze można wygospodarować kosztem części wiatrołapu, łazienki i schowka 1.2, podobnie jak tu proponowali inni :-) Można też na ścianie szczytowej w salonie, podobnie, jak na zdjęciach realizacji Sofii II.

Skomentuj

11.08.2014

Janusz

Tani w sensie, że są domy dużo droższe w budowie. Dla mnie to kompromis dla budowy domu z poddaszem użytkowym. Tutaj mogę pozostać tylko na jednym poziomie i mieć sporo miejsca. Dlatego informacyjnie chciałbym wiedzieć jak wygląda adaptacja strychu, gdzie wejście, co ze stropem itp.

Skomentuj

11.08.2014

fiedka2

do janusz - to stwierdzenie "tani" to naprawdę zabawne - że mały to nie znaczy że wybudujesz za "grosze" bo tak nie jest, myślę że ci którzy są na etapie wykończenia to mogą to potwierdzić

Skomentuj

11.08.2014

Janusz

Jak adaptujecie górę, gdzie wciskacie schody? Dom przemyślany, mały i tani... Ale miejsca na schody nie widzę! :)

Skomentuj

06.08.2014

asia

ma ktoś fotki z wykończenia domu wewnątrz!! jakie zmiany wprowadzacie??

Skomentuj

03.08.2014

fiedka2

do milka: też mamy z oknoplastu więc ceny mogę się domyśleć, a wasza pewnie jest "okrąglejsza" - łuki kosztują :))

Skomentuj

31.07.2014

milka

oczywiscie,nie ma problemu,okna w przyszłym roku,wtedy tez planujemy przeprowadzke,tymczasem czekamy na dach,wycene okien juz mam , z OKNOPLASTU.

Skomentuj

30.07.2014

fiedka2

do milka: prześlij mi kiedyś na mail - jak zagospodarowaliście poddasze

łuki bardzo ładne- poczekam na zdjęcie z oknami

Skomentuj

23.07.2014

Lipinscy_Domy

Jest możliwe takie poszerzenie domu. W sprawie szczegółów i wyceny zmian prosimy o kontakt na biuro@lipinscy.pl

Skomentuj

21.07.2014

BadDeal

Mam ogromną prośbę,otóż.. oboje z mężem zostaliśmy właścicielami przecudnej działeczki na wsi . Obojgu nam bardzo podoba się projekt Sofia IV ,jednak nie obyłoby się bez zmian. Oboje bardzo chcemy mieć garaż na dwa auta ,czy byłaby możliwość, aby owy garaż mógł powstać przy tym cudownym projekcie,bo niestety jeden w zadnym razie nas nie satysfakcjonuje ???? A druga sprawa ,ponieważ nasza działka ma ponad 40 m szer., chcielibyśmy aby domek poszerzyc, z jednej strony o garaż, czyli zapewne dodatkowe 3 m, jak również z drugiej strony. Myślę ,że salon jest dość mały ,a chcielibyśmy mieć również jadalnie ,zatem gdyby poszerzyc (o ile jest taka możłiwość) domek z każdej strony o 3 m ,to zyskałby naprawde sporo miejca i wtedy automatycznie zostałyby przesuniete dwa pokoje :) W pierwszym (obok salonu) oznaczonym przez Państwa jako 1.5 spokojnie powstałaby jadalnia ,ewentualnie przesuniety zostałby salon w miejsce pokoju 1.5 ,natomiast jeżeli mowa o sypialni oznaczpnej jako 1.4 również pokoj zostałby przesuniety a wiec w miejsce obok łazienki cudownie by było zrobic pralnie bądź spiżarnie. Ja tak to sobie wykombinowałam ,ale nie wiem czy to jest w ogóle możliwe ?????????? Bardzo proszę o odpowiedź ,z góry dziękuję i pozdrawiam :))

Skomentuj

02.07.2014

fiedka2

do m&m mail wysłany,

Skomentuj

26.06.2014

m&m

do fiedka2 bardzo proszę o kontakt, moj mail gosiam50@interia .pl :)

Skomentuj

19.06.2014

mes

Paula zaczeliście już budowe ?

Skomentuj

10.06.2014

Lipinscy_Domy

Odpowiedzi na Pana pytania znajdują się już w komentarzach do tego projektu np. z dnia 2011-09-26 10:45:48.

Skomentuj

10.06.2014

mirosław krzyżanek

chciałbym zapytać o ściankę kolankową i o schody którędy dostać się na strych.

Skomentuj

03.06.2014

asia

Też sądzę że wycena fajna. Tym bardziej że góra przygotowana pod zamieszkanie. Też planujemy pokoje na górze bo po co marnować przestrzeń na strych, przecież na dole nie ma jej zbyt dużo a sypialnie na poddaszu świetna sprawa!!!

Skomentuj

02.06.2014

Jula do Pauli

Cena jak najbardziej realna. W przybliżeniu tak wyjdzie za stan developerski z adaptowaną górą i jeszcze jedno czy z ociepleniem i pełną kotłownią, ważne z ociepleniem dachu.

Skomentuj

29.05.2014

m&m

do fiedka2; mój mail gosiam50@interia.pl jesli możesz to się odezwij , umówimy się co do przyjazdu :)

Skomentuj

28.05.2014

Paula

Witam. Zamierzamy niedługo rozpocząć budowę Sofii IV z pewnymi zmianami (robimy u góry poddasze użytkowe). Mamy pierwszą wycenę przez firmę: 170 tys za stan surowy zamknięty, a 270 tys za deweloperski tzn. tylko położyć podłogi, glazurę, pomalować i można się wprowadzać. Czy to dużo? Dodam że budowa w woj. kujawsko-pomorskim.

Skomentuj

06.05.2014

fiedka2

do m&m : podaj mail

Skomentuj

03.05.2014

m&m

do fiedka 2 : Dzięki ,bardzo się ciesze,
moglabyś podać namiary bym mogla się skontaktowac i umowić co do terminu? :)

Skomentuj

01.05.2014

milka

do fiedka ;stan zero zakonczony za miesiąc mury ,na razie zajmuje się podlewaniem betonu :-))

Skomentuj

29.04.2014

fiedka2

do m&m - zapraszam

Skomentuj

28.04.2014

m&m

do fiedka 2 jestem z okolic Krosna czy mogłabym przyjechać zobaczyć w realu "sofkę"?:):)

Skomentuj

26.04.2014

fiedka2

do milka; jak u was prace budowlane?

Skomentuj

26.04.2014

asia

do fiedka2
Nie mówię że nie wykończę....właśnie wszystko zależy od gustów lokatorów, od możliwości sprawdzenia cen tu i tam. Nie powiedziałam że chce wydać tylko i wyłącznie 250tys, budżet mam otwarty, ale wiadomo każdy chce aby jak najlepiej kupić i jak najtaniej. Wybraliśmy mały dom więc liczymy na wykończenie go w realnej kasie.

Skomentuj

23.04.2014

fiedka2

poddasze jest tylko ocieplone - "wyposażenie wnętrza" oczywiście nie obejmuje mebli (z wyjątkiem kuchennych, gdyż te już mamy zamontowane) - i wydanie 250 tys jest realne bo tak też wydaliśmy, podkreślam że budujemy "firmą"- za położenie podług, płytek, malowanie nie płaciliśmy

u mnie stan wykończeniowy polega na tym iż wszystkie pokoje są gotowe do wstawiania mebli, salon malujemy trzeba jeszcze kupić listewki wykończeniowe podłogowe, łazienka czeka na zamontowanie już kupionych wc itd

pomimo tego, że domek jest mały to niestety wszystko kosztuje, myślę że trzeba by było bardzo "oszczędnie kupować" aby wejść na gotowe w kwocie 250 tyś - przyznam, że rozpoczynając budowę nigdy bym nie powiedziała że wydamy tyle na takim małym metrażu, ale tak jak pisałam wyżej każdy kupuje takie rzeczy jakie" lubi"

asia jak skończycie to wtedy porozmawiamy o kosztach i kwocie końcowej, ja oczywiście nie mam nic przeciwko temu abyś ty wykończyła SOFIE do nawet 200 tyś

Skomentuj

23.04.2014

asia

do fiedka2
czy twój dom wyszedł 250tys już z całym wyposażeniem wnętrza??? bo nie wiem czy dobrze zrozumiałam że jesteś na etapie wykończenia, a chyba nie realne jest żeby przekroczyć 250tys i nie wykończyć tego domku!!!!!chyba że robiłaś poddasze użytkowe albo dom jest w bardzo wysokim standardzie urządzony i drogą ekipą wykończeniową.

Skomentuj

22.04.2014

IN

Chętnie obejrzałabym tą Sofię w okolicach Wrocławia. Chociaż z zewnątrz, żeby w końcu ją sobie zmaterializować:) Można prosić o jakieś namiary?

Skomentuj

21.04.2014

fiedka2

jeśli chodzi o zdjęcia sypialni i łazienki to nie bardzo da się uwzględnić ich "powierzchnię" gdyż są one w chwili obecnej puste, moim zdaniem nie da się "złapać" ich wielkości

Skomentuj

17.04.2014

Inka

Jeśli to nie problem również prosiłabym o zdjęcia j.w. na adres acid2b3@gmail.com :) Z gory dziękuję

Skomentuj

16.04.2014

Luk

Witam! Czy można prosić zdjęcia sypialni 1.4, 1:8 oraz łazienki na adres mestre_84@o2.pl z góry dziękuje bardzo :)

Skomentuj

15.04.2014

Realizator

Fiedka, dziękuję bardzo za odpowiedź. Jestem rozczarowana, bo te okiennice nadają charakteru całemu budynkowi. Chciałabym usłyszeć co na ten temat sądzą projektanci?

Skomentuj

14.04.2014

fiedka2

do tego co napisałam wyżej chciałam dodać, że oczywiście można "zaoszczędzić" na niektórych rzeczach takich jak: dach- blacho dachówka, typ okien, drzwi zewnętrzne, wewnętrzne, podłogi, płytki - ale czy warto???? w końcu nie wymieniamy tych rzeczy po 2-3 latach - takie jest moje zdanie, ale przecież każdy z nas ma swoje i trzeba to uszanować

Skomentuj

14.04.2014

fiedka2

okiennice nie zmieszczą się na pewno

a wystawienie domku własnymi siłami oznacza - nie wydanie ani złotówki na robotników??? nie wiem czy to możliwe!!!
my budujemy i wiem że "własne siły" w pewnym momencie się kończą
chciałam zaznaczyć, że "szacunkowe koszty" podane pod projektem są w 100% rzeczywiste - jestem na etapie wykończenia środka i już dawno przekroczyliśmy kwotę 250 tyś

Skomentuj

14.04.2014

Grind

napisze mi ktoś ile kosztowało by wystawienie tego domku własnymi siłami.

Skomentuj

14.04.2014

Realizator

Wiam Państwa. Porównuję wizualizacje ze zdjęciami z realizacji i coś tu chyba nie gra. Jakoś nie wydaje mi się, aby w realu zmieściły się okiennice tak jak na grafice.....

Skomentuj

09.04.2014

Builder

Witam, jaki najlepiej zastosować typ ogrzewania dla tak małego domku? Nie mamy dostępu do gazu. Z tego co wiem najmniejsze kotły np. na pellet to 10 kw. Czy to nie będzie za dużo?

Skomentuj

30.03.2014

Ink4

Widzę, że temat się bardzo rozwinął. Może przeniesiemy się na forum. Będzie łatwiej śledzić nowe wpisy :)

Skomentuj

30.03.2014

Zuzia

Dziękuję za odpowiedź:)
Planujemy budowę w odbiciu lustrzanym; łazienkę przenosimy do pomieszczenia 1.8, z pomieszczeń 1.2 i 1.3 będą schody i pomieszczenie gospodarcze/schowek.
Pozdrawiam:)

Skomentuj

29.03.2014

Lipińscy_Domy

Ścianę, na której jest kominek w zasadzie można zastąpić podciągiem, na którym zostanie oparty strop. Zabraknie jedynie podziału przestrzeni na strefy czyli nie będzie wydzielonej komunikacji pomiędzy pokojami, kuchnią, łazienką i pom. gosp. oraz wejście do łazienki będzie wychodzić bezpośrednio na pokój dzienny a to słabe rozwiązanie. Dom straci na intymności.

Skomentuj

28.03.2014

asia

witam. czy koś ma już skończoną łazienkę i kuchnię??? czy kuchnia nie jest zbyt mała w tym projekcie??? jakie są koszty domku zrealizowanego już w stanie jak tu na fotkach??? bardzo dziękuję za odpowiedź. projekt zakupiony!!! teraz nic tylko brać się do roboty i ewentualnie przemyśleć kilka zmian które planujemy zrobić. pozdrawiam

Skomentuj

28.03.2014

Zuzia

Cześć:)
Mam pytanie: jeśli nie planujemy kominka, to czy można całkiem zlikwidować tą ściankę, na której on jest usytuowany w projekcie?
Zależy nam, aby było trochę więcej przestrzeni.

Skomentuj

25.03.2014

asia

witam. no to i ja byc może zagoszczę na tym forum. szykujemy się z mężem do kupna projektu. szukaliśmy domku małego, a ten chyba całkiem całkiem się nadaje. obejrzałam fotki z zrealizowanego projektu. można prosić więcej.

Skomentuj

24.03.2014

milka

super, bardzo mi się podoba .u nas też będzie ściana z cegły tylko w innym miejscu a na kominek mam jeszcze inny pomysł,domek ocieplony wygląda juz ladnie jeszcze tylko kolor i wprowadzamy sie do Was ;-)jak będe miala co pokazac to wstawie fotki a póki co z przyjemnoscią oglądam Wasze.Aniol czekamy na Twoje zdjęcia i innych budujących również.pozdrawiam

Skomentuj

23.03.2014

milka

to czekam z niecierpliwoscia na fotki :-)

Skomentuj

21.03.2014

fiedka2

kończymy środek- w końcu - zostało tylko pomalować w salonie i korytarzu, i zafugować cegłę- ta zabawa mnie wykończy :((
mam nadzieję, że niedługo zacznę sprzątać bo ten brud mnie dobija

elewacja musi czekać
jak znajdę hasła to wstawię tutaj jakieś zdjęcie

Skomentuj

20.03.2014

milka

czekamy na pogode zeby posmarowac dysperbitem bloczki fundamentowe i zasypujemy i zero.do konca roku dom ma stanąć ,taki plan a jak wyjdzie zobaczymy.srodek w przyszłym roku.a jak u Was?kiedy elewacja?

Skomentuj

18.03.2014

fiedka2

do milka: jak u was z budową?

Skomentuj

18.03.2014

In

Nie zechciałby Pan pochwalić się zdjęciami z realizacji?:)

Skomentuj

15.03.2014

GiT :)

Tak ja wybudowałem taki dom tylko ze bez garażu

Skomentuj

19.02.2014

Lipinscy_Domy

Niestety nie do wszystkich projektów mamy przygotowane wizualizacje. Proszę zajrzeć na nasze forum, do Galerii, tam jest kilka zdjęć wrzuconych przez inwestorów. Kilka zdjęć znajduje się również na kartach projektu Sofii w różnych wersjach. Jeśli są dostępne, pod ceną projektu pojawia się przycisk "Zdjęcia z realizacji".

Skomentuj

10.02.2014

Tomas

Witam, mam pytanie jaki kabel naziemny należy zastosować od skrzynki przydrożnej do budynku?

Skomentuj

08.02.2014

In

Bardzo chciałabym zobaczyć wizualizację wnętrza, jest na to szansa? plissss

Skomentuj

06.02.2014

Ink4

Gdzie można kupić okna do ww projektu? Jakieś rady>? :)

Skomentuj

31.12.2013

Lipinscy_Domy

Wszystkie nasze projekty spełniają nowe warunki techniczne. Nie trzeba wprowadzać zmian do projektu.

Skomentuj

30.12.2013

Luk

Witam ! Czy projekt spełnia warunki techniczne obowiązujące od 2014 roku ? Czy są konieczne do przeprowadzenia zmiany?

Skomentuj

19.12.2013

fiedka2

elewacja na wiosnę, teraz tylko styropian "Zaciągnięty klejem"
jeszcze nie mieszkamy, zaczęliśmy łazienkę, idzie nam bardzo opornie - nie mogę doczekać się końca
jak skończymy prześle ci zdięcie:))

Skomentuj

18.12.2013

milka

ok.dzięki. czy to znaczy ze juz mieszkacie?pochwal sie elewacją domku

Skomentuj

17.12.2013

fiedka2

kominka nie instalowaliśmy- przynajmniej na razie, piec drewno/węgiel 3400 z elektrycznym sterownikiem - działa wyśmienicie -polecam

Skomentuj

17.12.2013

MILKA

FIEDKA A JAK SPRAWUJE SIE KOMINEK ?I ILE ZAPŁACIŁAS ZA TEN PIEC NA DREWNO I WĘGIEL?

Skomentuj

15.12.2013

fiedka2

domek jest bardzo "energooszczędny", mamy centralne na drewno/węgiel - przy małym wkładzie w domku jest bardzo ciepło
ocieplenie 12 styropian , 20 cm wełny pod dachem i 10 cm na stropie drewnianym

Skomentuj

15.12.2013

andrew

wielkie dziękuje za informacje dla fiedka2. jeśli miałby ktoś ochotę podzielić się jakąś wiedzą na temat budowy domku sofia IV to bardzo proszę o nawet najmniejsza istotna wiedzę na temat w/w domku. jakie zmiany wprowadziliście?koszta SSO lub SSZ. pozdrawiam

Skomentuj

14.12.2013

fiedka2

stan surowy zamknięty ok. 130 tyś

Skomentuj

12.12.2013

andrew

do fredka2
czy można zdradzić jakimi kosztami trzeba się liczyć budując ten domek. Chodzi o stan surowy otwarty/zamknięty. z góry dziękuje i pozdrawiam mój mail po_prostu_Andrzej@poczta.fm

Skomentuj

25.11.2013

Lipinscy_Domy

Jest możliwość poszerzenia garażu na dwa stanowiska i jednoczesne powiększenie kotłowni. Można też wykonać przejście z domu do kotłowni.

Skomentuj

24.11.2013

fiedka2

wczoraj zakończyliśmy pracę z ociepleniem zewnętrznym - kolor w przyszłym roku :))

Skomentuj

21.11.2013

Sylwia

Czy w tym projekcie jest możliwość zaprojektowania garażu na dwa samochody, powiększając w ten sposób kotłownie oraz czy możliwe jest wejście z domu do kotłowni?

Skomentuj

12.11.2013

Maro

Do kafed: oto mój e-mail:, tik11@interia.pl , napisz jak można się z Tobą skontaktować .

Skomentuj

10.11.2013

kafed

Maro ja mam Sofie IV pod Wrocławiem

Skomentuj

30.10.2013

MILKA

WITAM WSZYSTKICH. PO CIĘŻKIEJ PRZEPRAWIE Z URZĘDAMI , WŁASNIE DZISIAJ NA PLAC BUDOWY WJECHAŁA MINI -KOPARKA KU OGROMNEJ RADOŚCI CAŁEJ MOJEJ RODZINY. ;-)TAK WIĘC SIĘ ZACZEŁO . POZDRAWIAM .

Skomentuj

29.10.2013

Lipinscy_Domy

Tak, takie zmiany są możliwe - kotłownię można przenieść na stronę frontową i zrobić do niej wejście z wiatrołapu, a bliżej kuchni wygospodarować spiżarnię/pralnię. Proszę też zobaczyć projekty Sintra i Suza, które są nieco większe od Sofii IV a są bez garażu.

Skomentuj

26.10.2013

Maro

Witam, czy ktoś buduje Sofię IV w okolicy Wrocławia? Z wielką chęcią zobaczył bym ten dom na żywo

Skomentuj

25.10.2013

Jacek N

Witam
Mam pytanie do Państwa Lipińskich. Interesuje mnie ten projekt jednak bez garażu. Wystarczą mi również dwie sypialnie. Czy istnieje możliwość wygospodarowania miejsca na pomieszczenie gospodarcze np kosztem sypialni od strony tarasu przy okazji zwiększając powierzchnię salonu lub jako kotłownię zaadoptowac prawą sypialnię o pow: 10,2 mkw od strony frontowej. Można by zrobić w nim przy okazji pralnię i spiżarnię.

Skomentuj

11.10.2013

Michał Kantor

Witam Tomas. Zapraszam na działkę kiedy tylko będziesz miał czas. Proszę o kontakt emailowy kantor1987@interia.pl

Skomentuj

05.10.2013

Tomas

Witam Michał Kantor ja też buduje sofie koło ślesina u mnie tez mury stoją chciałbym podjechac do Ciebie o ile to możliwe zobaczyc strop i pogadac na tematy zwiazane z budowa

Skomentuj

04.10.2013

Michał KANTOR

Witam serdecznie :) Ja rozpocząłem budowę tego domku 4 września. Stoją już mury i stropik układany Terivy. Jeśli macie jakieś pytania lub potrzebujecie zdjecia pogladowe prosze o emaila pomoge kantor1987@interia.pl lub zapraszam na działkę Skulsk około 34 km od Konina

Skomentuj

26.09.2013

michał

ok dzięki .

Skomentuj

26.09.2013

fiedka2

przepraszam, ale nasze faktury są u księgowego- rozliczamy się za zeszły rok

Skomentuj

17.09.2013

michał

jeżeli nie sprawi to trudności to bym był wdzięczny......

Skomentuj

16.09.2013

fiedka2

nie pamiętam, musiałabym szukać w fakturach

Skomentuj

15.09.2013

michał

do fiedka chciałem zapytać ile poszło wam pustaków całych i połówek będę wdzięczny.....

Skomentuj

11.09.2013

fiedka2

"wykańczamy" strop, wymaga to dużej cierpliwości, idzie powoli, ale co dzień do przodu; za to płytki na ścianie już mamy

żyję nadzieją, że końcem przyszłego tygodnia "część kuchenna" będzie skończona- dodam zdięcie

Skomentuj

06.09.2013

MILKA

ZGADZA SIĘ,SZKODA BO JAK DLA MNIE TO DUŻY ATUT ESTETYCZNY TEGO DOMU.ALE I TAK ZROBIE CHOCIAŻ OZDOBNE .ZACZYNAMY ZA DWA ,GÓRA TRZY TYGODNIE; BIUROKRACJA BYWA OKRUTNA.JAK TAM FIEDKA MEBELKI KUCHENNE JUŻ ŚĄ?A MOZE COŚ JESZCZE?POZDRAWIAM WSZYSTKICH BUDUJĄCYCH SOFIĘ4

Skomentuj

04.09.2013

fiedka2

pełnowymiarowe okiennice nie zmieszczą się na pewno- do takich wniosków doszła "milka" jak była oglądać sofię
my nie mieliśmy w planie ich montażu

Skomentuj

01.09.2013

Dariusz.T.

Można zapomnieć o pełnowymiarowych okiennicach , tylko na projekcie tak pięknie to wygląda.............

Skomentuj

23.08.2013

fiedka2

co tu taka cisza?

Skomentuj

04.08.2013

MILKA

WITAM. CHCIAŁABYM PODZIĘKOWAĆ FIEDCE ZA MOŻLIWOŚĆ OBEJRZENIA SOFKI W REALU W TOWARZYSTWIE PRZEMIŁYCH GOSPODARZY ORAZ ZA CENNE RADY .DOM PREZENTUJE SIĘ PIĘKNIE,WYGLĄDA JESZCZE LEPIEJ NIŻ NA ZDJĘCIACH,WARTO BYŁO PRZEJECHAĆ TE 400 KM.POZDRAWIAMY WAS BARDZO SERDECZNIE.

Skomentuj

30.07.2013

MILKA

DO FIEDKA;MAM PYTANKO CZY MOGŁABYM Z MĘŻEM ODWIEDZIĆ WAS W ZMIENNICY I ZOBACZYĆ SOFKĘ NA ŻYWO?CZY EWENTUALNIE BYŁA BY TAKA MOŻLIWOŚĆ W TĘ SOBOTĘ.JEŚLI NIE SPRAWI TO KŁOPOTU TO PODAJ JAKIEŚ NAMIARY NA MOJEGO MAILA.POZDRAWIAM

Skomentuj

28.07.2013

fiedka2

do milka: nad tym na razie nie zastanawialiśmy się

Skomentuj

27.07.2013

MILKA

PYTANIE DO PANSTWA LIPINSKICH.PATRZĄC NA ZDJĘCIA FIEDKI 2 I TADEUSZA ZASTANAWIAM SIĘ CZY WEJDĄ OKIENNICE TAKIE PEŁNO WYMIAROWE CZY TYLKO OZDOBNE?OBAWIAM SIE ZE NIIEWIELE JEST MIEJSCA .W PROJEKCIE WYGLĄDA TO ZUPEŁNIE INACZEJ.
FIEDKA JAK TO WYGLĄDA U WAS ?CZY W OGÓLE JE PLANUJECIE?

Skomentuj

26.07.2013

milka

sufit przepiękny,zrobił się dom z klimatem,kotłownia widze w pełni wyposażona;-),piknik też jest gdzie zrobic .życze szybkich wprowadzin.pięknie.pozdrawiam

Skomentuj

26.07.2013

Lipinscy_Domy

Fotki są już w galerii :-) Dziękujemy za przesłanie :-) Bardzo ładnie wygląda strop drewniany! Super!

Skomentuj

25.07.2013

milka

edp75@o2.pl bardzo dziękuje

Skomentuj

25.07.2013

fiedka2

do milka: podaj mail to ci wyślę kilka, bo to przesyłanie chwilkę tu trwa
a ja zalogowałam się ponownie jako nowy użytkownik ale dalej nie mogę dodać zdjęć więc coś chyba nie działa

Skomentuj

24.07.2013

MILKA

DO PANSTWA LIPINSKICH:CZEKAMY NA ZAMIESZCZENIE ZDJĘĆ FIEDKI 2

Skomentuj

17.07.2013

fiedka2

bardzo dziękuję za propozycję, właśnie z niej skorzystałam i wysłałam zdjęcia, mam nadzieję że szybko zostaną zamieszczone
pozdrawiam

Skomentuj

17.07.2013

Lipinscy_Domy

Dziękujemy za informację, sprawdzimy jak działa logowanie i postaramy się pomóc. W razie czego, zawsze można przesłać zdjęcia do nas i my wprowadzimy z panelu administratora.

Skomentuj

16.07.2013

milka

do fiedka.super,u mnie własnie będą schody w tym pokoju o którym piszesz ale to tak na przyszlosc .parter jest dla nas najwazniejszy żeby jak najszybciej zamieszkać,dodaliśmy jeszcze okna w dwóch pokojach w bocznej elewacji oraz okno półokrągłe na tej samej scianie doswietlające strych i dwa połaciowe.pozdrawiam

Skomentuj

15.07.2013

fiedka2

do milka: jak zobaczyłam fundament do się przestraszyłam, że wszystko jest takie malutkie, ale po wylewce pomieszczenia są dużo większe - i myślę że wystarczające, my ogólnie nie chcieliśmy dużego domu, a ten wydaje się być dla małej rodzinki idealny.- na pewno lepsza opcja niż mieszkanie w bloku
mam zdjęcia strychu, który jest olbrzymi i bez problemu można z pokoju przyległego do garażu wstawić schody do góry, więc jak by coś to można powiększyć metraż
strop drewniany też wygląda bardzo ładnie, jak uda mi się wstawić te zdjęcia to pooglądasz

Skomentuj

15.07.2013

milka

szkoda,mam nadzieję ze ktos pomoże bo czekam na Twoje zdjecia, napisz fiedka czy jestes zadowolona z pomieszczen ;salonu i malych pokoi ;martwie sie ze będą za małe dla dzieci.czy ogólnie jestes zadowolona czy coś byś zmieniła?juz nie moge doczekac sie rozpoczęcia budowy:-)

Skomentuj

15.07.2013

fiedka2

witam, mam problem z dodawaniem zdjęć!!! nie bardzo wiem jak go rozwiązać, nawet zalogowałam się ponownie - nic nie pomaga - cz ktoś ma jakiś pomysł???

Skomentuj

14.07.2013

Hera

Do Dany i życzliwych ludzi
Nareszcie :) już niedługo zaczniemy budowę, jednak chciałabym tak jak Ty mieć duże okna, ale nie wiem jaki będzie efekt, więc mam ogromną prośbę, oczywiście jeśli nie byłoby problemu o przesłanie fotek domu na adres aklak@interia.eu
A może gdzieś w lubelskim można obejrzeć ten domek?

Skomentuj

05.07.2013

Tomas

Witam, u mnie geodeta wziął 600 zł. Do tej pory fudamenty zalane powolutku do przodu

Skomentuj

05.07.2013

fiedka2

do milka: jutro panowie zaczynają strop drewniany, jak skończą zrobię nowe zdjęcia
my wygipsowaliśmy pomieszczenia, i skończyliśmy kotłownię, po stropie będziemy malować - mam taką nadzieję:))

Skomentuj

15.06.2013

michał

do Tomas u nas za wytyczenie fundamentów wziął 450zł woj.podkarpackie

Skomentuj

14.06.2013

Jula

Do Pana Dariusz T. Bardzo proszę o podanie ilości sztuk dachówki buduję tak jak Pan. Jeśli można proszę o podanie tel. na maila ejulita@wp.pl troszkę mam kłopot.

Skomentuj

13.06.2013

CzaRny

Witam.
Podam ceny materialow mniej miecej stan zero:Bl.fund 750szt.po 1.80.zl.sztuka.,stal fi 14,12,8 ok.2000zl.,beton B20-13m3=2990,drenaz ok.400zl.,cement 42,5-20szt po 10,90zl.,styropian fund.2m3-490zl.,folie bud.ok 300zl.,dysperbit 10kg po 50zl.,wiadomo piasek,piasek plukany,zwir,deski 1,5m3 1000zl.,jeszcze duzo drobiazgow(kopara 800zl,betoniarka 500zl.,).narazie wydalem ponad ok10000zl.trza doliczyc jeszcze wylewke+styropian podloga+i pare drobiazgow mysla ze ok.12-13.tys.aaa gosp.metoda

Skomentuj

13.06.2013

CzaRny

Witam.
600 stowek.Woj.slaskie.Mapa do cel.proj.600.

Skomentuj

11.06.2013

milka

Witam.FIEDKA ,DAWNO NIE URACZYŁAŚ NAS ZADNYM ZDJĘCIEM ;CHCIAŁABYM ZOBACZYC POKOJE I W OGOLE JAK CI IDZIE ,NA JAKIM ETAPIE JESTEŚ.POZDRAWIAM SERDECZNIE

Skomentuj

11.06.2013

Tomas

Witam, mam ptyanie do was moi drodzy tak z ciekawości zapytam ile wziął od was geodeta za wytyczenie domu?

Skomentuj

04.06.2013

Lipinscy_Domy

Powierzchnia ścian nośnych całego domu to 173,6 m2 pustaków Porotherm o grubości 25 cm.

Skomentuj

03.06.2013

michał

witam chcę zapytać ile potrzeba palet pustaków na cały dom?

Skomentuj

28.05.2013

Tomas

Witam, mam pytanie do was moi drodzy ile drutu na zbrojenie zamawialiście . Chodzi mi ile metrow 12 drutu 8 i 6 z gory dzieki za pomoc

Skomentuj

12.05.2013

milka

dzięki za odpowiedzi.my czekamy na pozwolenie na budowe i ruszamy,stan zero w tym roku ,reszta w przyszłym roku.pozdrawiamy

Skomentuj

12.05.2013

fiedka2

do milka: w chwili obecnej poddasze mam nieużytkowe, schody wysuwane będą w garażu. nad garażem będę mieć małą suszarnię/strych

Skomentuj

11.05.2013

ANIOL

Czesc wszystkim ,ja osobiscie umiescilem wejscie na schody w salonie ,mam odb lustrzane czyli po prawej stronie ,schody dwu zabiegowe bez spocznika ,wymiar dziury szer 180 dług 240 ,schody z drewna bukowego ,zdjecia na jesien do tego czasu bedzie dach ,wydeskowany z papa ,reszta za rok ,finase ,budowa metoda gospodarcza ma wady i zalety ,główna zaleta mozna duzo poszukac okazji na internecie ,ja osobiscie kupilem schody za 3000 zl nie jakas lipa ,solidne wykonane przez stolarza ,pozdrawiam :)

Skomentuj

09.05.2013

milka

ANIOŁ CO TAKA CISZA U CIEBIE?

Skomentuj

09.05.2013

milka

DO FREDKI ;CZY ROBILAŚ SCHODY NA PODDASZE?JESLI TAK TO GDZIE JE UMIESCIŁAŚ?POZDRAWIAM I CZEKAM NA INNE FOTKI

Skomentuj

09.05.2013

MILKA

do Juli;dzięki za zaproszenie jednak to dość daleko,jestem z woj. łódzkiego ale chętnie zobacze jakieś fotki na forum.pozdrawiam.

Skomentuj

07.05.2013

Jula

Do milka zachodniopomorskie, jeśli chcesz podam namiary, można zobaczyć w każdej chwili, budowa trwa nadal, następny etap budowa więźby dachowej. Stan zero również mnie wyniósł 30 tys. z robocizną.

Skomentuj

07.05.2013

Marcin

Ja buduje ten dom w zachodniopomorskim .Stan zero wyniósł mnie 30 tys.

Skomentuj

06.05.2013

milka

pytanie do Juli: gdzie budujesz swoją Sofie i czy istnieje możliwośc zobaczenia domku

Skomentuj

06.05.2013

andrzej

do Jula: po_prostu_Andrzej@poczta.fm z gory dziekuje, pozdrawiam

Skomentuj

03.05.2013

Jula

Do Andrzeja podaj swojego e-maila.

Skomentuj

02.05.2013

andrzej

do Jula: bardzo proszę o przedstawienie jakichkolwiek kosztów budowy tego domku.dziekuje i pozdrawiam

Skomentuj

01.05.2013

Jula

Witam ! Bardzo, ale to bardzo mi się podoba ! Gratuluję ! Widzę, że zrobiliście przejście do kotłowni ja niestety nie mam i zaczynam powoli tego żałować ! U mnie strop w poniedziałek był wylany i dalej powolutku do przodu. Serdecznie Was pozdrawiam.

Skomentuj

30.04.2013

fiedka2

do jula: my zakończyliśmy tynki i wylewka jest już gotowa; strop będziemy mieć drewniany z widocznymi legarami - zapraszam do pooglądania zdięć- strop będzie gotowy dopiero pod koniec czerwca

Skomentuj

30.04.2013

Lipinscy_Domy

Wykusz można bez problemu usunąć i może to zrobić lokalny architekt w ramach adaptacji. Zgoda na taką zmianę będzie wymagana w urzędzie, ale my oczywiście taką zgodę wydamy.

Skomentuj

29.04.2013

shrek

witam. czy jest mozliwosc zrezygnowania z wykusza kosztem salonu-jdalni? czy do tego jest potrzebna zgoda?

Skomentuj

28.04.2013

Jula

Do Fiedka2 Dzięki za odpowiedź, a czy tarasy już zrobiliście? Na jakim etapie je się buduje? Ja jestem na etapie zalewania stropu. Pozdrawiam.

Skomentuj

27.04.2013

fiedka2

do jula- kupiłam około 7-8 metrów, ale 1,5 opakowania mi zostało, klej panowie dopierali sobie sami =, z tego co pamiętam to jakiś droższy

Skomentuj

27.04.2013

strażak

witam.
Prośba do wszystkich budujących domek sofia IV.
Jakie są mniej/więcej koszta budowy takiego domku chodzi tu o poszczególne etapy jak fundamenty, stan surowy otwarty,stan surowy zamknięty. Pewne jest to, że te koszta bedą się różniły zależności od rejony Polski. Proszę o jakiekolwiek informacje. pozdrawiam.

Skomentuj

25.04.2013

Jula

Do Fiedka2 Proszę napiszcie ile zużyliście klinkieru na 2 kominy w m2 i na co jest klejone?

Skomentuj

03.03.2013

Tomas

ANIOŁ możemy się zobaczyć zależy mi obejrzeć Twój dom napisz tomek14444@wp.pl Tomas

Skomentuj

03.03.2013

Dana

Buduję właśnie taki domek. Z garażu zdobiłam sypialnię :), Kuchnię przeniosłam na miejsce sypialni od strony frontu, zlikwidowałam także sypialnię od podwórza na korzyść salonu. Jeszcze kilka drobnych, dozwolonych przeróbek, podniesiona ściana kolankowa wynikiem czego będę miała na górze pokój 24mkw no i antresolę. Mój dom będzie piękny. Zmieniłam także okna na trzy ogromne, w sypialni również na całą ścianę. Dom będzie nowoczesny. Pozdrawiam.

Skomentuj

26.02.2013

Tomas

ANIOL mieszkam niedaleko Konina z str slesina czy możemy się umówić jakoś chciałbym zobaczeć SOFIE na zywo

Skomentuj

21.02.2013

bolo

FAJNY

Skomentuj

15.02.2013

izabela

witam,

czy po zmianie kata nachylenia dachu na 25 stopni bedzie mozliwe korzystanie ze strychu? i czy takej zmiany musi dokonac projektant?

z gory dziekuje,
pozdrawiam.

Skomentuj

14.02.2013

Lipinscy_Domy

Możemy oczywiście taką wersję na zamówienie - prosimy jednak o podanie e-maila, lub kontakt bezpośredni.

Skomentuj

13.02.2013

melka

Witam, my z mężem budujemy ten dom na śląsku, i mam bardzo gorącą prośbę o kontakt z Panem Dariusz T. gdyż chcemy przeprojektować pewne rzeczy podobnie jak u Pana. Budujemy też z tego samego materiału i tu też mamy wiele pytań. Bardzo proszę o kontakt mailowy mireladz@interia.pl
pozdrawiam wszystkich budujących sofkę:)

Skomentuj

11.02.2013

Lipinscy_Domy

Tak, można - dom bez garażu ma wymiary 10,65m, zatem po dodaniu 3 m z każdej strony minimalny wymiar działki wyniesie 16,65m.

Skomentuj

08.02.2013

sylwia

Witam, pisali Państwo, że istnieje możliwość zamówienia zmian w projekcie już u Państwa. Moje pytanie brzmi: ile dodatkowo do projektu trzeba by było zapłacić za naniesienie takich zmian: zamiana pomieszczeń 1.8 i 1.7, dorobienie przejścia z garażu do kuchni, wmontowanie schodów na poddasze w prawym górnym rogu w późniejszej jadalni (w pierwotnym projekcie jest to pomieszczenie 1.7), zmiana stropu na żelbetonowy. Proszę o orientacyjny koszt :) z góry dziękuję i pozdrawiam

Skomentuj

22.01.2013

Aga

Czy na działce 17 m.można pobudować taki dom bez garażu?

Skomentuj

05.01.2013

magda@mariusz

Witam serdecznie wszystkich:) Czy ktoś z Państwa wybudował ten domek w małopolsce? Najlepiej w okolicach Krakowa? Bardzo chcielibyśmy go zobaczyć i posłuchać opinii na temat realizacji... Okazało się, że projekt który wybraliśmy nie jest możliwy do wykonania na naszej działce i mamy teraz problem :( Sofia IV spodobała się nam, ale zawsze lepiej byłoby przekonać się widząc go w realu... Prosimy o kontakt: magdajki@interia.pl.

Skomentuj

04.01.2013

milka

dzieki za szybką odpowiedz,fajnie by bylo gdybyś zamiscił kilka zdjęc swojego domku.pozdrawiam

Skomentuj

21.12.2012

ANIOL

aniołku napisz ile kosztowal stan zero;w tym roku tylko tyle uda nam sie zrobic.pozdrawiam
3,5tys kanoldy
3,5tys beton na ławe
1,1tys stal
1tys cement+zwir
1,5tys izolacja +ocieplenie
1tys chudziak własnorecznnie
reszta to zasypanie fundamentow ,wykopanie ław i inne rzeczy ,duzo ich :)

a dokladnie gdzie w tym koninie ten dom budujesz
miejscowosc Szczepidło 5 kilometrow od Konina


Skomentuj

19.12.2012

milka

aniołku napisz ile kosztowal stan zero;w tym roku tylko tyle uda nam sie zrobic.pozdrawiam

Skomentuj

19.12.2012

luka

a dokladnie gdzie w tym koninie ten dom budujesz

Skomentuj

16.12.2012

ANIOL

ile będzie cię kosztował strop teriva ? caly koszt stropu to 10 tys 5 tys belki plus pustaki 3,5 tys beton (12kubikow)stal 1 tys reszta to podpory ,dodam ze strop zalewalem tylko nad czescia mieszkalna ,garaz tylko wylewany wieniec.

Skomentuj

15.12.2012

łukasz

oczywiście kotłownia zostaje w tym miejscu, zapomniałem napisać tylko, że z wejściem jedynie z zewnątrz. Pozdrawiam serdecznie autorów projektu.

Skomentuj

14.12.2012

michał

ile będzie cię kosztował strop teriva ?

Skomentuj

13.12.2012

ANIOL

czy ktoś buduje ten dom w centralnej Polsce? TAK w Koninie jestem na etapie mury plus strop teriva :)

Skomentuj

12.12.2012

Lipinscy_Domy

Tak, takie zmiany można wprowadzić. Z naszej strony otrzyma Pan zgodę na nie. Nasuwa się tylko pytanie, czy istniejąca kotłownia ma zostać w tym samym miejscu? Wejście do kotłowni z pokoju nie jest najlepszym rozwiązaniem.

Skomentuj

11.12.2012

Iga

czy ktoś buduje ten dom w centralnej Polsce?

Skomentuj

07.12.2012

łukasz

Witam serdecznie,
Mam pytanie do autorów projektu. Czy jest możliwośc poprowadzenia korytarzyka do garażu przedłużając już istniejący korytarz pomniejszając tym samym pokój 1.8, a z garażu zrobić dodatkowy pokój z oknami na ścianie bocznej budynku oraz w miejscu bramy garażowej? Dziękuję i pozdrawiam - fajny projekt.

A teraz pytanie do forumowiczów. Czy ktoś buduje ten dom w mazowieckim lub okolicy? Chętnie zobaczyłbym ten domek w rzeczywistości. Dziękuję za pomoc.

Skomentuj

02.12.2012

Jula

Hej, Marcin! Dzięki za odpowiedź. Sorki nie miałam czasu odpowiedzieć. Tak jak napisałam mam proźbę o namiary na firmę, która zamierza Ci budować. Teraz zbieram oferty firm i porównuję ceny. Też myślę o ruszeniu z budową wiosną, Maja budowa ma być w Rurzycy. Na początku chciałam zmieniać strop na terravivę, ale coraz bardziej się przekonuję do lekkiego drewnianego z prefabrykatów (Mitek). Oni swoją siedzibę mają w Mirzynie (Kudra i spółka) jednocześnie robią strop i wieźbę dachową, nie ma wewnątrz słupów. Przez to jest trochę więcej miejsca na poddaszu. Co do poddasza w projekcie mam schody prowadzone przez wiatrołap kosztem łazienki. Poddasze nie chcę szatkować na małe klitki. Po lewej stronie przy garażu (bo mam lustrzane odbicie) będzie łazienka, schody prowadzić będą do otwartego saloniku, a po prawej stronie mała sypialnia dla gości. To by było na tyle, a gdzie jest Twoja budowa? Czekam na odpowiedź. Jula. Coś mi szwankował komp próbowałam wysłać maila, ale bez powodzenia. Mój mail ejulita@wp.pl

Skomentuj

02.12.2012

fiedka2

w piątek u nas stan surowy został zamknięty ( 120 tyś: w tym firma 28 tyś, dach, okna;--- bez drzwi zewnętrznych i bramy garażowej, stropu i chudziaka) dom wygląda naprawdę pięknie szczególnie od tylnej strony

strop drewniany koszt około 7 tyś- drewno byliśmy zadatkować wczoraj/ pooglądaliśmy wstępny projekt

Skomentuj

27.11.2012

Marcin

Jula podaj meila! Bądź napisz marcin2364@vp.pl

Skomentuj

27.11.2012

Marcin

Jula podaj meila! Marcin

Skomentuj

25.11.2012

Jula

Do Marcina z zachodniopomorskiego. Czy mógłbyś podać namiary na firmę która ma Ci budować dom, ja również planuję budowę Sofki wiosną. Jestem z tego samego województwa.

Skomentuj

09.11.2012

Lipinscy_Domy

Podobny projekt, powiększony o 1m to Sintra, z tym że do niej trzeba doprojektować garaż z kotłownią :-)

Skomentuj

07.11.2012

Deta

Projekt bardzo nam się podoba, jeśli Państwo nie stworzycie czegoś bardziej genialnego to z pewnością go zakupimy.Mamy tylko wątpliwości związane z salonem.Czy możliwe jest poszerzenie domu /aby salon na szerokość był szerszy/ i czy to wiąże się z dużymi kosztami przeprojektowania dach itp..Już widzieliśmy taki dom poszerzony o 1 metr i wyglądał super.Pozdrawiam - przyszła inwestorka

Skomentuj

06.11.2012

audiofil

Ja zacząłem budowę w kwietniu. Stan surowy otwarty to ok. 120 000 zł. w tym robocizna 32 000 zł (bez ścianek działowych i tzw. pierwszej szlichty). Oczywiście wszystko zależy od materiałów. Ja stawiam z solbetu 36 cm - ściana jednowarstwowa, lekki drewniany strop, dachówka Creaton Premion.

Skomentuj

06.11.2012

Marcin

Witam ! Ja zaczynam budowę tego domu w marcu( oczywiście jeśli pogoda pozwoli) w wojewódzwie zachodniopomorskim . Firma budowlana wyceniła koszty robocizny do stanu surowego otwartego na 34 tyś.

Skomentuj

04.11.2012

Agata

Witam, chciałam się zapytać czy ktoś może buduje ten dom w okolicach Warszawy, żeby podjechać i zobaczyć go w realu ????

Skomentuj

04.11.2012

fiedka2

do michał: około 80 tyś, w tym oczywiście koszty związane z opłaceniem firmy budowlanej, podejrzewam stan surowy zamknięty około 110 tyś.
w przeciągu 2-3- tygodni zrobimy dach i wstawimy okna więc będę wiedzieć dokładniej

Skomentuj

02.11.2012

michał

do fiedka2 no więc tak w realu wygląda dobrze podjęliśmy projekt . Czy można by było znac koszt budowy do tego momentu co masz?

Skomentuj

30.10.2012

fiedka2

do michał: i co zdecydowaliście się na ten projekt? mam nadzieję, że real was nie odstraszył :))

Skomentuj

27.10.2012

Paulla00

Dom jest naprawdę śliczny, wnętrze bardzo funkcjonalne...w zasadzie to nie wiem czy zmieniłabym cokolwiek.
Czy ktoś buduje może SOFIE IV w woj. opolskim??

Skomentuj

27.10.2012

Paulla00

Dom jest naprawdę śliczny, wnętrze bardzo funkcjonalne...w zasadzie to nie wiem czy zmieniłabym cokolwiek.
Czy ktoś buduje może SOFIE IV w woj. opolskim??

Skomentuj

14.10.2012

michał

do fiedka2 jak mogę trafic do tej budowy w Zmiennicy podaj szczegół

Skomentuj

13.10.2012

fiedka2

do michała: Zmiennica, raczej codziennie w godzinach popołudniowych

Skomentuj

05.10.2012

michał

do fiedka2 czy możesz podac miejscowośc i napisz kiedy można przyjechac zobaczyc budowe ?

Skomentuj

22.09.2012

fiedka2

do michała: miejscowość koło brzozowa, fundamenty już wylane- w poniedziałek ciąg dalszy

Skomentuj

16.09.2012

iwkabal

Czy ktoś buduje sofie w woj.pomorskim. Chciałabym pogadać na temat dachu i wysokości budynku. Nie wiem czy podnosić o jeden dwa bloczki mury.Moim zdaniem jest ona według projektu za niska przez co dach obsadzony jest nisko. Daje wtedy cień na okna i są ponure pokoje. I oczywiście wieniec wtedy nie jest schowany pod dachem co powoduje zimniejszy budynek. Ja mam pociągniętą budowe na 13 bloczków ytongów o wym 20 cm. co daje mi 2,60 m . Okna mam obsadzone na 90 cm . Wysokość okien to 1,40+ 20 cm rolety. Drzwi balkonowe na 2,30.I zaraz nad oknami chcą lać wieniec. Moim zdaniem jakby dali nadproża ytongowskie i dopiero wieniec by było z korzyścią dla mnie.Byłby cieplejszy dom. Proszę o szybką radę.Podaje kontakt iwkabal@poczta.fm

Skomentuj

11.09.2012

michał

do fiedka2 czy można wiedziec w jakiej miejscowości będzie budowana sofia4 ? I czy będzie można zoaczyc budowę w trakcie realizacji........

Skomentuj

08.09.2012

fiedka2

planowo pod koniec września ruszamy z budową SOFIA IV , (podkarpacie, koło krosna)

Skomentuj

07.09.2012

iwkabal

Witam. Jestem w trakcie budowy tego domu. Mam pytanko-jakie okna chodzi o wymiary byłyby odpowiednie do pokojów od strony wejścia. A od drugiej strony (podwórko) zamiast drzwi balkonowych mam okna i jakie wymiary okien wziąść żeby póżniej w pokojach ładnie mi się meble zmieściły.

Skomentuj

07.09.2012

Lipinscy_Domy

Mamy wersję tego domu ze stropem żelbetowym - to Sofia III - wtedy tylko wystarczy skrócić garaż, co na pewno będzie tańsze w przeprojektowaniu, niż projektowanie od nowa stropu. Podstawowe zestawienie możemy przesłać na maila (powierzchnia ścian, kubatura drewna, stali itp). Szczegółowy kosztorys ślepy jest natomiast dostępny do każdego projektu i kosztuje 70 zł+ VAT.

Skomentuj

29.08.2012

michał

napiszcie proszę czy buduje ktoś sofieIV koło krosna na podkarpaciu?

Skomentuj

28.08.2012

Dariusz.T.

http://forum.lipinscy.pl/gallery/image_page.php?album_id=553&image_id=1093
Fotki w linku, mam poddasze użytkowe 50metrów kwadratowych.

Skomentuj

28.08.2012

rico

Wielkie dzięki Dariusz!A czy robiłeś użytkowe poddasze?Ten projekt bardzo mi się podoba ale jestem pełen obaw: czy dom nie jest za mały na czteroosobową rodzine?nie robiąc poddasza mamy tylko 83m. a pokoje dla dzieci mają tylko po 10 m.czy to wystarcza?masz może jakieś zdjęcia,które dałyby obraz wnętrza i jego wielkości?mój e-mail: hammer30@interia.pl Z góry serdecznie dziękuję.

Skomentuj

28.08.2012

Dariusz.T.

W moim przypadku wyszło około 140tyś . Wydaje mi się , że za 120tyś nie ma szans na wybudowanie w takim stanie jak powyżej ktoś opisał , albo liche materiały albo ekipa lub wycena wyssana z palca. "Koszt budowy stanu surowego zamkniętego przez firmę to 120 tys zł, w moim przypadku zmieniony strop na żelbetowy, dachówka ceramiczna, okna w kolorze wraz z roletami plus pięć okien dachowych (ściana kolankowa bloczek plus wieniec), wychodzi całkiem spora powierzchnia użytkowa poddasza. W tej cenie zawarte są też ścianki działowe i tarasy. Pozdrawiam"
Nie wierzę w to chyba , że ktoś budował przed 10 laty

Skomentuj

24.08.2012

rico

wielka prośba: ile wychodzi koszt stanu surowego?mamy jak dotąd tylko jedną wypowiedź na ten temat.

Skomentuj

21.08.2012

Basia

pytanie do setaur czy te 120 000 to jest z materiałem i czy można zdobyć namiary firmy co budowała za tą cena

Skomentuj

20.08.2012

Dariusz.T.

Strop jest typu Teriva, koszt zmian 800pln ,dach okolo 40 tyś z dachówką Koramic
http://www.wygrajdach.pl/galeria-dachow?Applications_page=2 pozdro

Skomentuj

20.08.2012

setaur

A CZY TO JEST KOSZT ROBOCIZNY CZY CAŁOŚCI?CZY UŻYTKOWE PODDASZE WYMAGA DUŻYCH ZMIAN W PROJEKCIE?

Skomentuj

20.08.2012

setaur

Witam serdecznie! mam dwa pytania :czy jest możliwość zastosować w Sofii strop żelbetowy?a jeśli tak to ile będzie kosztować ta zmiana i czy jest możliwość darmowego pobrania sobie zestawienia materiałów budowlanych na ten dom?

Skomentuj

18.08.2012

danielo

witam ponownie pytanie do Pana Dariusza jaki Pan zastosował strop i jakie koszty stropu.oraz koszty dachu dzięki za odpowiedz

Skomentuj

10.08.2012

Dariusz.T.

Wymiary sypialni to około 10m , koszt jest uzależniony o gruntu na jakim dom będzie stał i kto go buduje .
Ja miałem 1,8 metra do gruntu właściwego ale jeśli trafisz na partaczy to powiedzą eeeeeeee 80cm i możne ławy lać a to , że grunt jest nie stabilny to juz ............. . Zależy tez jakich bloczków użyjesz , ja za fundament całość z robocizną zapłaciłem około 45 tyś.
pozdro

Skomentuj

29.07.2012

danielo

co tu tak cicho

Skomentuj

22.07.2012

OLA

czy ktoś buduje ten dom w woj. łódzkim? jak przedstawiają się koszty na poszczególnych etapach? chcę budować wg tego projektu , więc proszę o pomoc i cenne wskazówki.

Skomentuj

22.07.2012

danielo

witam mam pytanie do budujących jakie są wymiary sypialni i jakie są koszty do fundamentu pozdrawiam

Skomentuj

22.07.2012

danielo

super projekt też mi sie podoba

Skomentuj

12.07.2012

sofiaIV

wojtek ja buduję dom w okolicy Wrocławia, podaj namiary do siebie to umówimy się na prezentację-mam już mury i połowę dachu

Skomentuj

11.07.2012

Danusia

Witaj! W jakim regionie Polski budujesz? Jeśli możesz to prześlij proszę mi na maila dane firmy budującej Twój dom - dw1970@op.pl.

Pozdrawiam

Skomentuj

11.07.2012

gosia

Witam. mam pytanie do Pana Dariusza.T chciałabym wprowadzić takie zmiany jak pan + przejscie z kuchni do kotłowni. Może mi Pan powiedzieć jak wyglądał koszt zmian w projekcie i adaptacji na działce?mój nr gg 11917365

Skomentuj

11.07.2012

Sylwia

niedługo będziemy budować sofia IV i czy myślą Państwo, że aby wybudować stan surowy zamknięty starczy nam 100 tys?? z góry dziękuje za odpowiedź

Skomentuj

11.07.2012

Marek

Witam! Ja mam taki pomysł na sofie 4 poszerzyłbym ją o 1m linia cięcia byłaby przez środek wanny salon powiększyłby się o ok 5m2. Sypialnie 1.4 powiększyłbym o wnękę łazienki, kuchnię w miejsce 1.8 z wydzielonym przejściem do garażu oczywiście sień musiałaby się zmniejszyć żeby było wejście do kuchni, a pomieszczenie gospodarcze byłoby osobną toaletą, wyjścia na taras zastąpiłbym oknami a wyjście na taras zrobiłbym z salonu gdzie po poszerzeniu wyszłyby duże drzwi. Taki mam pomysł na sofkę. Mam zrobiony rysunek w point jak byłby ktoś chętny to zobaczyć. e-mail marco72@o2.pl

Skomentuj

30.06.2012

wojtek

Czy można zobaczyć ten projekt gdzieś w okolicach Wrocławia? Bardzo mi się podoba i chciałbym go ocenić na żywo

Skomentuj

22.06.2012

Lipinscy_Domy

Oczywiście, można zamienić miejscami te pomieszczenia. A może zamienić 1.7 z 1.8, wtedy dwie sypialnie będą usytuowane bliżej łazienki, tworząc taką prywatną strefę. Schody na ewentualne poddasze można wygospodarować kosztem części wiatrołapu, łazienki i schowka 1.2, podobnie jak tu proponowali inni :-) Można też na ścianie szczytowej w salonie, podobnie, jak na zdjęciach realizacji Sofii II.

Skomentuj

21.06.2012

gosula

Witam, jestem zainteresowana kupnem tego projektu. jest on jak dla mnie idealny. mam pytanie czy można zamienić 1.4 z 1.7 i gdzie można wstawić schody na półpiętro (pewnie w salonie przy ścianie szczytowej)

Skomentuj

08.06.2012

Dariusz.T.

Witam. Jeśli chcecie zobaczyć gdzie ja umieszczę schody proszę kliknąć ten link

http://forum.lipinscy.pl/gallery/image_page.php?album_id=553&image_id=1018


Świetny darmowy program do wizualizacji pomieszczeń .


pozdro

Skomentuj

07.06.2012

Jula

Do poprzedników: po zaprojektowaniu schodów kosztem łazienki wychodzi: wiatrołap 7,8m, łazienka zmniejsza się z 6,48m do 5,2 m. to zostaje całkiem sporo. Tak jest w moim projekcie pozdrawiam.

Skomentuj

07.06.2012

kafed

Dziękuję bardzo za szybką odpowiedz

Skomentuj

06.06.2012

Dariusz.T

Witam. Schody będą od wiatrołapu nad wanną (oczywiście wanny nie będzie ale w wizualizacji na miejscu wanny) schody kręcone , nie trzeba likwidować pomieszczenia gospodarczego , przecież może być ono pod schodami ( tak polecił mi fachowiec od schodów ) znajomy tak zrobił i szczerze mówiąc genialne rozwiązanie a w domu bez piwnicy każde pomieszczenie gosp. na wagę złota , o ile zmniejszy się łazienka nie wiem .
Schody będą miały szerokość 80 cm a więc można to sobie policzyć .
Pozdro

Skomentuj

06.06.2012

kafed

Pytanie do p. Dariusza, jestem na etapie budowy tego domu (tzn. buduje go firma do stanu surowego zamkniętego) i zastanawiam się nad schodami (podnoszę o 2 bloczki ścianę kolankową na poddaszu) jak rozwiązał Pan problem schodów? na poddasze wchodzi Pan od wiatrołapu? o ile zmniejszyła się łazienka? rozumiem że ma Pan schody kręcone? rozważam likwidację pomieszczenia gospodarczego na rzecz schodów ale jakoś nie mam wizji ;) i nie wiem czy będzie tak wygodnie, proszę o odpowiedz, dziękuję

Skomentuj

05.06.2012

nick

Koszt budowy stanu surowego zamkniętego przez firmę to 120 tys zł, w moim przypadku zmieniony strop na żelbetowy, dachówka ceramiczna, okna w kolorze wraz z roletami plus pięć okien dachowych (ściana kolankowa bloczek plus wieniec), wychodzi całkiem spora powierzchnia użytkowa poddasza. W tej cenie zawarte są też ścianki działowe i tarasy.
Pozdrawiam

Skomentuj

04.06.2012

fiedka

dzisiaj kupiłam projekt! już nie mogę się doczekać budowy......
domek jest świetny , mam nadzieje, że w rzeczywistości będzie jeszcze lepszy

Skomentuj

04.06.2012

Mirek

Poda ktos koszt budowy sofi

Skomentuj

02.06.2012

Dariusz.T.

Nie polecam takiej zmiany z racji problemu z zapachem spalin w czasie odpalania auta ,żadne drzwi nie są tak szczelne żeby oddzielić garaż od kuchni w 100%. też miałem taki plan ale mój budowlaniec odradził mi to.
Sąsiedzi mają wejście do garażu z przedpokoju i czuć spaliny , można przeboleć korytarz ale zapach spalin w kuchni ??? chyba nie za bardzo.
pozdro

Skomentuj

25.05.2012

Megi

Wybraliśmy ten projekt ,mamy zamiar zacząć budowę w przyszłym roku
Chcemy dokonać jednej zmiany tj. zrobić przejście z kuchni do garażu, najlepiej w tym rogu który sąsiaduje ze ścianą z pokojem.
Czy takiej zmianę możemy dokonać sami na etapie budowy?

Skomentuj

17.05.2012

Lipinscy_Domy

Świetnie! Grunt to zacząć :) Trzymamy kciuki za dalsze etapy!

Skomentuj

10.05.2012

Dariusz T

Witam , tak już się zaczęło , pierwsze fotki na forum z realizacji projektu SOFIA 4.


oto link http://forum.lipinscy.pl/gallery/album.php?album_id=553


pozdrawiam

Skomentuj

08.05.2012

kiniago

Panie Dariuszu T czy jest Pan w trakcie budowy Sofi IV? Chętnie porozmawiałabym na temat zmian jakie wprowadził Pan
w tym projekcie, będe wdzięczna, jesteśmy w trakcie pozwolenia na budowę, mój mail kiniago@wp.pl. Pozdrawiam.

Skomentuj

05.05.2012

Marcin . T

Witam ! Czy w zachodniopomorskim ktoś z Państwa buduje ten dom? Jeśli tak proszę o kontakt ? marcin2364@vp.pl

Skomentuj

05.05.2012

Dariusz.T.

Witam. My przerobiliśmy projekt odnośnie poddasza użytkowego/ czyli jednym słowem zmiany stropu/ koszt 800pln , także zmniejszamy na dole łazienkę żeby poprowadzić schody na górę . i żeby te pokoje na górze były w miarę funkcjonalne trzeba zrobić wyższą ścianę kolankową . pozdro

Skomentuj

23.04.2012

Justa

Sofia jest piękna. Zastanawiam się, czy można przerobić nieco ten projekt, by domek miał użytkowe poddasze. Czy można np. zmniejszyć łazienkę i poprowadzić w tym miejscu schody albo kosztem jednego z pokoików; na górze zrobić 2 pokoje i łazienkę z wanną. Czy taki zabieg mieściłby się w ramach adaptacji projektu?

Skomentuj

22.04.2012

hugo

Co do projektu rekuperacji w cenie 300zl to piszecie panstwo nie prawde poniewaz sami go nie wykonujecie tylko odsylacie do firmy Rekuperatory a oni rzadaja sobie 1tys zl za projekt.Dlatego prosze nie wprowadzajcie Panstwo klientow w blad.

Skomentuj

19.04.2012

Anita

Pani Tereso osobiście też uważam, że Sofia IV to najlepsza propozycja ze wszystkich.

Skomentuj

09.04.2012

fiedka

niedługo przymierzamy się do budowy tego domku, czy ktoś mógłby mi wysłać zdjęcia z budowy ??? a może ktoś na Podkarpaciu buduje sofia IV - proszę o informacje / dziękuję

Skomentuj

28.03.2012

Mariusz, Konin

Stawiam na biura projektowe znane i szanowane, polecane przez znajomych, są to biura z doświadczeniem na rynku. Druga sprawa projekt zakupiony przeze mnie jest prosty, ładny i tani w wykonaniu. Jest to projekt niedrogi, funkcjonalny , bryła domu na zewnątrz jak w środku spełnia moje oczekiwania, a to podstawa przy wyborze.

Skomentuj

28.03.2012

Teresa, Police

Zamiar budowy własnego domu dojrzał w naszym małżeństwie wraz z nami. Jesteśmy z 34 letnim stażem małżeńskim. Jako pierwszy katalog kupiłam właśnie „Lipińscy- Domy nr 2(8 2009 r)”. Od początku Sofia II LMB 41a umieszczona w tym katalogu podobała się nam. Przejrzeliśmy wiele innych katalogów. Kiedy zobaczyliśmy Sofię IV LMB 41c ostatecznie zdecydowaliśmy , że będzie to nasz dom. Miłość od pierwszego wejrzenia. Prosty , ładny, estetyczny, nieduży. Prostotą, elegancją, estetyką, nieduży rozmiar odpowiedni dla nas dwojga starszych ludzi. Dobre rozstawienie pomieszczeń , łazienka z oknem, kuchnia z wyjściem na taras. Frontowe okna z okiennicami.

Skomentuj

22.03.2012

monika

Witam bardzo chciałabym zobaczyć jeśli można wnętrze tego domu budowanego w Krośnie, tylko gdzie on sie znajduje, bardzo prosze o informacjię. pozdrawiam

Skomentuj

22.03.2012

Agnieszka, Łagiewniki Kościelne

Prosta konstrukcja, funkcjonalny rozkład pomieszczeń. Ładny wygląd a zarazem elegancki. Projekt tani w realizacji, możliwość realizacji projektu etapami, możliwość zmiany rozmieszczenia pomieszczeń niewymagająca dużych nakładów i kosztów.

Skomentuj

07.03.2012

Ania

Już nie mogę się doczekać Twojej relacji z budowy :) byłabym wdzięczna gdybyś też pisał o kosztach jakie ponosisz. U mnie całkowity zastój :/ problemy z działką wiec budowa najwcześniej za rok ruszy. Pozdrawiam budujących Sofie IV

Skomentuj

06.03.2012

Dariusz.T.

Witam . 10-11 kwietnia rozpoczynam budowę , foto recenzja będzie na forum.
pozdrawiam

Skomentuj

06.03.2012

Ania

ANIOŁ jak tam budowa idzie?

Skomentuj

27.02.2012

aga_wla

Czy ktos wybudowal ten dom w Mazowieckim? Najlepiej w okolicach Warszawy? Bardzo chcialabym go zobaczyc i posluchac opinii na temat planów oraz problemów z budową.

Skomentuj

21.02.2012

Renata

Czy ktoś może podać przybliżony koszt wystawienia tego domku, bo projekt też mi się bardzo podoba?

Skomentuj

07.02.2012

Prestona

Witam
Jestem zainteresowana tym projektem i mam pytanie dotyczące powiększenia domu .
Czy istnieje możliwość rezygnacji z wykuszu, a poszerzenie domu o 1,2 m w całości tak aby dach był niesymetryczny,?

Skomentuj

03.02.2012

Sebastian

piękny,ale;)Czy jest możliwość zrobienia kuchni tak jak w Sofia II i zachowanie przy tym trzech pokoi?

Skomentuj

12.01.2012

Jula

Witam wszystkich również przymierzam się do budowy Sofki. Rozmawiałam z projektantem, który zasugerował usytuowanie schodów w wiatrołapie. Zmniejszając łazienkę w miejsce wanny można pociągnąć schody na górę. Bez zmieniania stropu można tam zagospodarować łazienkę, garderobę i sypialnię, to tak dla niezdecydowanych, ja tak zrobię

Skomentuj

08.01.2012

Ja

Ja zaczynam budować ten projekt w tym roku oczywiście z małymi zmianami, a dom w Rokietnicy zauważyłem przejeżdżając.
Pozdrawiam

Skomentuj

08.01.2012

kiniago

w odpowiedzi na komentarz użytkownika Ja z dnia 2011-01-07
Witam.
czy moglabym prosić o zdjęcia na e-maila kiniago@wp.pl Pani/Pana domku.
Pozdrawiam.

Skomentuj

07.01.2012

olo

Czy wie ktoś czy można zobaczyć ten dom gdzieś w woj. pomorskim?

Skomentuj

07.01.2012

Ja

Witam
Dom taki zbudowany jest w Rokietnicy, kawałek za przejazdem kolejowym w kierunku na Żydowo po lewej stronie...
Pozdrawiam

Skomentuj

06.01.2012

michał

witam czy można zobaczyc ten dom w okolicach Krosna

Skomentuj

28.12.2011

hugo

witam czy ktos buduje ten dom w okolicach gniezna lub poznania?bardzo chetnie obejze jak wyglada na zywo.

Skomentuj

15.12.2011

darius111

witam czy w tym projekcie jest możliwość wybudowania garażu podwójnego,bo pozatym projekt jest super.Pozdrawiam

Skomentuj

08.11.2011

maksymilian2005

Dziekuje za info,super projekcik,pozdrawiam.

Skomentuj

05.11.2011

Seba

Dzieki wielkie.Pozdrawiam :)

Skomentuj

04.11.2011

Lipińscy_Domy

W tym projekcie miejsce na ewentualne schody na poddasze można wygospodarować jedynie kosztem któregoś z pomieszczeń. W salonie szkoda dodatkowo zabierać miejsca na schody. Jedynym rozsądnym miejscem jest wiatrołap, z którego można poprowadzić schody, podobnie, jak w Atlancie DCP 241. Rozwiązania poddasza można zobaczyć także w podobnym projekcie Savannah LMP 127

Skomentuj

04.11.2011

Lipińscy_Domy

W praktyce zamiana technologii budowania domu na drewnianą odbywa się poprzez firmę realizującą w tej technologii. Zazwyczaj wystarcza, że architekt zaznacza w projekcie, przy składaniu wniosku o pozwolenie na budowę, że dom będzie realizowany w technologii prefabrykowanej drewnianej, a firma, która realizuje dom, przygotowuje wykonawcze rysunki i obliczenia konstrukcji. Tak działa m.in firma Wolfystem, z którą współpracujemy.

Skomentuj

01.11.2011

maksymilian2005

Witam serdecznie,mam pytanie dotyczace zmiany technologi wykonania z murowanej na szkielet drewniany.Jak wyglada to w praktyce,dziekuje za odpowiedz.

Skomentuj

28.10.2011

Seba

Czesc wszystkim,macie moze pomysł jak zagospodarowac poddasze w sofii ????????????????
Znalazlem schody w projekcie sofii III ale nie wiem jak wyglada rzut poddasza....nie moge sie zdecydowac na ten projekt ze wzgledow praktycznych-wszystko inne mi odpowiada. Z prosba o pomoc :)
Pozdro

Skomentuj

27.10.2011

Seba

Witam ,mam pytanie,gdzie umiescic schody w projekcie Sofia zeby moznabylo spokojnie korzystac np ze strychu lub poddasza uzytkowego????? Zaznaczam ze nie mowie tu o drabinie wyciaganej z sufitu. :)
Pozdrawiam

Skomentuj

24.10.2011

ANIOL

Moj edres archaniol2222@wp.pl moge Aniu podac konkretnie ,co kupilem i jak ilosc .

Skomentuj

24.10.2011

ANIOL

Czesc wszystkim :)Aniu buduje metoda gospodarcza ,towar juz zamówiony ,fundamenty zalane ,koszt jak narazie to :sciagniecie humusu i wykopanie fundamentu 250zl drut 1100zl ,beton z gruchy 9m 2600zl plus bloczki betonowe 4000zl bloczkow mozna mniej ,ja celowo kupuje wiecej zeby dom stal wyzej .
Co do pytania Wojtka ja zalatwilem adaptacje w Koninie za 950 zl,ale nic nie zmienialem za co trzeba placic ,tylko kosmetyka ,na ktora nie potrzeba pozwolenia ,wiec po co placic;)
Pozdrawiam :)

Skomentuj

24.10.2011

Wojtek

Witam,
od dłuższego czasu obserwuję dyskusję w temacie tego domku, gdyż też jestem nim zainteresowany....podoba mi się jego bryła, jednakże wprowadzę pewne zmiany....szerszy o ok 2m garaż (co wpłynie na powiekszenie się kotłowni, likwidacja pomieszczonka gospodarczego, co wplynie na powiekszenie łazienki oraz likwidacja ścianki działowej między 1.5 a 1.6, co da duży salon....jako że jest do wykorzystania strych (prawie 25m) to zamierzam tam docelowo w przyszłości zrobić sypialnię - wówczas wejście na strych byłoby schodami z salonu....czy przy zachowaniu konstrukcji drewnianej stropu jest możliwość adaptacji strychu na sypialnię i małą garderobę?? oczywiście w dachu doszłoby okno połaciowe.... mam pytanie do osób które zaczynają budowę (bądź są w trakcie) jak wyglądała u was adaptacja tego budynku do warunków zabudowy, działki??? u mnie jest to koszt ok 2000zł, jeśli nie chce wprowadzać żadnych zmian w zakupionym projekcie....a jeśli ze zmianami to nawet 3000zł....więc łącznie wyjdzie 5000zł......a projekt na indywidualne zamówienie kosztuje 3-4tys.! Proszę o odpowiedź.
Pozdrawiam Wojtek ( wojtass84@interia.pl)

Skomentuj

21.10.2011

GAGA

WITAM JA W PRZYSZŁYM ROKU MAM ZAMIAR BUDOWAĆ SOFIE IV ALE CHCE PODWÓJNY GARAZ CZY JEST TO MOZLIWE BEZ INGERENCJI ARCHITEKTA

Skomentuj

21.10.2011

Ania

Anioł...w końcu się doczekałaś :) A że się tak niedyskretnie zapytam...brałeś kredyt na budowe? W takim wypadku potrzebny jest dokładny kosztorys...masz może taki? Budujesz systemem gospodarczym czy ekipa? U mnie budowa ruszyła by dopiero pod koniec 2012 ale zawsze to jakaś pomoc (bo my niestety będziemy musieli starać się o kredyt na całość budowy). Pozdrawiam

Skomentuj

20.10.2011

ANIOL

Czesc Aniu ,pozwolenie mam ,prace ruszaja ,jutro kopiemy fundamenty :)

Skomentuj

12.10.2011

Karol

Bardzo ciekawy projekt. Wprowadziłbym jednak kilka zmian. Zlikwidował pokój 1.5 na rzecz większego salonu i zrobił okno w bocznej ścianie, celem doświetlenia. Wyjście na taras zrobiłbym tylko w części środkowej (wykuszu). Przejście przedłużonym korytarzem (kosztem części pokoju 1.8) do garażu (drzwi). Poszerzyłbym cały dom o jakieś 0,5 metra, celem poszerzenia pokoi 1.8 i 1.4 oraz garaż również o 0,5 metra. Taka wersja dla mnie i mojej 3 osobowej rodziny byłaby idealna. W części bocznej salonu zamontowałbym schody z możliwością adaptacji strychu na pokój (na wypadek gdyby pojawił się w przyszłości nowy człowieczek).
Czy zmiany jakie podałem wyżej mógłby mi nałożyć jakikolwiek architekt czy też mogę taki projekt np. zlecić Państwu?

Skomentuj

09.10.2011

ANIOL

Czesc Aniu no niestety jeszcze nie ,czekam na pozwolenie ,myslalem ze bede mial do konca wrzesnia ale :( niestety .
Oczywiscie jak zaczne budowac to bede dodawal komentarze:)pozd

Skomentuj

05.10.2011

Ania

Jak tam ANIOL, budowa się rozpoczęła?

Skomentuj

26.09.2011

Lipinscy_Domy

Wprowadzanie okien połaciowych nie wymaga ingerencji architekta w projekt, natomiast podwyższenie ścianki kolankowej w tym projekcie wiąże się także ze zmianą konstrukcji stropu, ponieważ w Sofii jest on drewniany. Jeżeli w przyszłości chciałby Pan użytkować poddasze, jako mieszkalne, sugeruję od razu rozważyć usytuowanie schodów na poddasze i zmianę stropu na żelbetowy. Chyba, że te dwa pokoje byłyby używane sporadycznie, np: jako gościnne. Proszę zerknąć na projekt Atlanta, który ma już rozwiązane poddasze, a parter jest podobny do Sofii. Gdyby Pan jednak chciał dokonywać zmian, zapraszam do kontaktu z nami. Od połowy października bowiem będziemy uruchamiać dodatkową usługę wprowadzania zmian na projekt przez nas.

Skomentuj

26.09.2011

ANIA

Do Pana Dariusz.T.:
Również zamierzałam zmienić okna w kuchni na zwykłe :) Z tego co się orientuje to zmiany które Pan wypisał niestety muszą być zaznaczone w projekcie przez architekta.

Skomentuj

24.09.2011

Dariusz.T.

Witam . Mam zamiar w przyszłym roku budować taką Sofię , wszystkie zmiany które dodała p.Ania są takie jakie ja chcę w moim projekcie dodał bym tylko zmianę drzwi balkonowych w kuchni na okno , pytanie jednak które ja chcę zadać brzmi :
Czy jest możliwość bez zmian w projekcie podwyższyć o jeden dwa bloczki strych ażeby uzyskać więcej przestrzeni na strychu?
Nie ukrywam ,że chciałbym zagospodarować w przyszłości strych na dwa pokoje i jeszcze pytanie dotyczące okien na dachu .
Czy też jest potrzebny architekt do zmian tego typu w projekcie.
Dziękuje za odp. i pozdrawiam

Skomentuj

29.08.2011

Ania

Gratulacje :) będe regularnie zaglądać i czekać na info :) :)

Skomentuj

29.08.2011

ANIOL

Ja zaczynam w tym roku budowac domek ,chyba za 2 tygodnie dostane pozwolenie na budowe .Bede w miare mozliwosci dostarczal potrzebnych wiadomosci .Pozdrawiam :)

Skomentuj

26.08.2011

uu

jak tu cicho,niema odpowiedzi

Skomentuj

25.08.2011

Ania

Czy ktoś rozpoczyna budowę w tym roku?

Skomentuj

18.08.2011

michał

do A: czy można zobaczyć ten dom? Jestem z okolic Krosna.

Skomentuj

16.08.2011

iw

Witam, czy ktoś buduje Sofię w woj. pomorskim / kujawsko-pomorskim / warmińsko-mazurskim? Chcemy kupić projekt ale wcześniej chcielibyśmy obejrzeć do m "na żywo" Proszę o informację na maila wierzchowska.i@gmail.com

Skomentuj

16.08.2011

angie

witam ponownie. my jesteśmy przed zakupem tego projektu, ale czy ktoś go buduje na dolnym śląsku - chętnie zobaczyłabym. i czy ktoś zna realne koszty budowy no i ma może zdjęcia z budowy . bardzo proszę o info na e-mail a.walas@vp.pl

Skomentuj

10.08.2011

Ania

do A:
A mozna prosić o zdjęcia? Czy zostały dokonane jakieś zmiany w Sofii i najbardziej mnie interesuje czy kwota podana w kosztorysie jako stan surowy zamknięty jest realna kwotą czy jednak

Skomentuj

10.08.2011

Ja buduję ale Sofie a nie Sofie 4 w Krośnie. Stan surowy zamknięty teraz.

Skomentuj

09.08.2011

ak74

Szkoda że nikt nie odzywa się:(((

Skomentuj

09.08.2011

michał

czy ktoś buduje ten dom na podkarpaciu?

Skomentuj

09.08.2011

Lipinscy_Domy

Tak, 24.7m2 to powierzchnia liczona powyżej 190 cm.

Skomentuj

08.08.2011

Przemek

Witam!
czy powierzchnia użytkowa strychu 24,7 m jest mierzona przy h>190 cm

Skomentuj

08.08.2011

Lipinscy_Domy

Można, jak najbardziej - cena to 52,5 zł. Wszystkie dodatki do projektu można zobaczyć klikając KUP TERAZ

Skomentuj

08.08.2011

iw

Witam, domek jest śliczny, zanim zdecydujemy się na budowę, chcielibyśmy zobaczyć go na "żywo". Czy ktoś buduje w kujawsko-pomorskim?

Skomentuj

07.08.2011

ak74

Bardzo nam podoba się ten domek Sofia IV śliczny funkcjonalny , napewno oszczędny jak w budowie tak i w ekspluatacji. Czy ktoś buduję na Mazowszu ten domek,chciało by się obejrzeć go na żywo.

Skomentuj

30.07.2011

hugo

WITAM CZY DO TEGO PROJEKTU MOZNA OTRZYMAC PAKIET ENERGOOSZCZEDNY I W JAKIEJ CENIE

Skomentuj

21.07.2011

ANIOL

Witam ,powierzchnia dachu wynosi prawie 200 m ,oczywiscie razem z garazem.

Skomentuj

18.07.2011

mika

Witam, czy ktoś wie jaka jest powierzchnia dachu?

Skomentuj

15.07.2011

Ania

ja również uważam że wielkość pokoi wystarczy, w końcu większość życia rodzinnego i tak bedzie się skupiała w salonie po powiększeniu to 33m...sporo :)

Skomentuj

03.07.2011

parter

szału nie ma, ale ja osobiście wybieram te pełnowartościowe 10 niż 15 na poddaszu ze skosami, przeliczanie powierzchni użytkowej z wysokości ponad 140 cm jest dobre w przypadku sypialni dla psa. :)

Skomentuj

30.06.2011

Ania

O widzę ze zmieniła się wycena na wyższą...faktycznie poprzednio była niska kwota. Tylko czy nie lepiej było by podać wycenę już tego roku?!?

Skomentuj

29.06.2011

Bolek

Też mam zamiar wybrać ten projekt tylko zastanawiam się gdzie to umieścić schody na poddasze, bo tu nie bardzo widać gdzie one mogły by być. A w ogóle to co to jest w 1.6 (kominek...?), odgrodzony ścianami? Może ktoś się domyśla...

Skomentuj

28.06.2011

Joanna

Witam, ja też mam zamiar zbudować ten domek, mam już projekt i jestem na etapie drobnych udogodnień. Chętnie porozmawiam o szczegółach budowy.Czy ktoś już zaczął go budować?

Skomentuj

26.06.2011

michał

czy buduje ktoś ten dom chętnie bym zobaczył

Skomentuj

07.06.2011

Ania

Nie jestem na 100% pewna ale chyba tak w ramach adaptacji.

Skomentuj

07.06.2011

Marek

Dziękuję za odpowiedź. Jeszcze pytanie dotyczące garażu. Nad garażem jest dach dwuspadowy. Czy możliwe jest zaprojektowanie dachu nad garażem jednospadowego? Byłby prostopadły do bocznej ściany budynku

Skomentuj

06.06.2011

Ania

Oczywiście ze w kuchni można zmienic drzwi na zwykłe okno...to nawet logiczne :)

Skomentuj

06.06.2011

Marek

Projekt bardzo ciekawy. Ale... Drzwi balkonowe w kuchni i sypialni to niezbyt dobre rozwiązanie, bo jak zamontować ogrzewanie tradycyjne z grzejnikami? Osobiście byłbym za wyjściem na taras prze wykusz w pokoju dziennym, a w kuchni i sypialni wstawić tylko okna. Czy to możliwe do zmiany?

Skomentuj

03.06.2011

Miko

A myślał ktoś jak tu drugie WC zrobić?

Skomentuj

03.06.2011

Ania

Tak domy do 140m2 nadają się do rodziny na swoim. Ja właśnie z 1.8(czyli kuchni) planuje zrobić przejście do kotłowni, bo tez sobie zimą nie wyobrażam biegania tam i z powrotem po mrozie

Skomentuj

02.06.2011

Miko

A ja się zastanawiam nad zmianą 1.8 żeby się jakoś dostać do kotłowni przez garaż i po prostu zwiększyć 1.9 kosztem 1.8. Bo tak zimą po podwórku biegać ....
Czy on się łapie do kredytu rodzina na swoim?

Skomentuj

02.06.2011

Ania

koszty faktycznie przyciągają uwagę. Podane tutaj koszty to średnie ceny...zawsze można zbudować taniej lub drożej zależy od materiałów i regionu w którym się buduje. Ale nawet jak sie spojrzy na koszty Sofia II (troszke większe) to i tak nie są duże, a domek cudny :)

Skomentuj

01.06.2011

kluska

ja też mam zamiar wybuowac sofie IV, ten domek jest piękny, tylko koszty budowy wydają mi się zaniżone...jak myślicie

Skomentuj

01.06.2011

angiee 47

witam wszystkich, czy ktoś buduje sofię 4. bo ja mam zamiar zacząc niebawem.

Skomentuj

01.06.2011

jasko2504

bardzo ladny tylko ze nie dla wszystkich, jak na moja kieszen to metraz ma za duzy ,60m2 zabudowy,wiecej takich.Pozdrawiam!!!

Skomentuj

29.05.2011

Ania

to maja być tylko sypialnie więc 10 m spokojnie wystarczy (jeśli się zagospodaruje górę to tam może być duży pokój z garderobą i łazienką) i tak całe życie rodzinne będzie w dużym salonie oczywiście jak się połączy 1.5 z 1.6

Skomentuj

28.05.2011

nick

hej nie uwazacie ze dwie sypilnie po 10m to troszke sa za male?

Skomentuj

16.05.2011

Ania

Myślę że można schody zrobić zamiast pomieszczenia 1.2, ew. zabrać troszkę przestrzeni z wiatrołapu. Ja robiąc z 1.5 i 1.6 wielki salon zachowuje schody tam gdzie w poprzedniej wersji Sofii

Skomentuj

12.05.2011

Roman

Mnie osobiście bardzo sie podoba to rozwiązanie ale mam jeszcze pytanie czy projektant przewidział możliwość zagospodarowania poddasza? Jeżeli tak to gdzie mamy umieścić schody? Bo w Sofii 2 było powiedziane gdzie zrobić wejście do góry.

Skomentuj

02.05.2011

Ania

Bardzo dziękuje za informację, cieszę się że ktoś jeszcze miał podobne pomysły jak ja :)

Skomentuj

29.04.2011

ANIOL

Witam ,do pani ANNY zmiany ktore pani wpisala mozna zrobic samemu bez pozwolenia ,sa to scianki dzialowe ,a te mozna ustawic jak sie chce .
Ja osobiscie tez mialem taki pomysl z rozmieszczeniem pomieszczen .

Skomentuj

12.04.2011

Ania

Czy zmiany jakie podałam wyżej mógłby mi nałożyć jakikolwiek architekt czy też mogę taki projekt np. zlecić Państwu?

Skomentuj

12.04.2011

Ania

Interesował mnie projekt Sofia II tylko troszkę go chciałam przerobić a tu patrzę i w IV kuchnia jest tak jak chciałam, garaż z kotłownią też chciałam po tej stronie. Zrobiłabym tylko dodatkowe drzwi z kuchni do kotłowni żeby w zimie może było odrazu podłożyć bez wychodzenia z domu i jednak wole duży salon więc 1,5 i 1,6 połączyłabym. I łazienkę powiększyłabym o te małe pomieszczenie gospodarcze 1,2. A w przyszłości może jakiś pokoik z łazienka na strychu..tylko tu nie zaznaczone że jest strych i ile ma metrów. Super taki jak opisałam projekt byłby idealny :)

Skomentuj

12.04.2011

Ewcia

Dom jest piękny...z garażem ,osobnym wejściem do kotłowni co jest bardzo ważne.Bardzo mi się podoba.

Skomentuj

Opinie nie są weryfikowane pod kątem ich pochodzenia od konsumentów, którzy używali produktu lub go nabyli.

Polecane rozwiązania

Podobne projekty (7)

projekt Sofia IV należy do kategorii

Ostatnio oglądane