PROMOCJA
ULUBIONE

Projekt domu

Livigno II 131,87m²

DCP355A

PROMOCJA
- 400 zł
od 3 do 17 marca 2026

 

Karta projektu Podziel się:

Opis projektu

Projekt Livigno II to nowoczesny dom z poddaszem użytkowym i dwuspadowym dachem bez okapu, z wysuniętym od frontu garażem z kotłownią. Wejście do domu znajduje się w klimatycznym podcieniu, skąd można przejść tarasem na tył domu. Parter stanowi otwarta część dzienna z dużymi przeszkleniami i wyjściem na taras. Dodatkowo na parterze znajduje się pokój i łazienka. Pomieszczenie pod schodami można przeznaczyć na spiżarkę. Poddasze mieści 3 sypialnie łazienkę i schowek. W projekcie przewidziano ogrzewanie pompą ciepła oraz rekuperację.

Zapotrzebowanie Energetyczne

EUco = 16,54kWh/(m²rok)
EP = 56,85kWh/(m²rok)

Projekt zgodny z WT2021

Dowiedz się więcej  

Parter 91,02m2

Gotowy projekt domu Livigno II rzut Parter

91,02m2

1.1 Wiatrołap 5,64m2
1.2 Pom.gosp., c.o. 5,70m2
1.3 Pokój 11,04m2
1.4 Salon z kuchnią 38,63m2
1.5 Schowek 2,11m2 (5,69m2)
1.6 Korytarz 5,12m2
1.7 Łazienka 4,85m2
1.8 Garaż 17,93m2
1.9 Taras 41,15m2
1.1 Wiatrołap 5,64m2
1.2 Pom.gosp., c.o. 5,70m2
1.3 Pokój 11,04m2
1.4 Salon z kuchnią 38,63m2
1.5 Schowek 2,11m2 (5,69m2)
1.6 Korytarz 5,12m2
1.7 Łazienka 4,85m2
1.8 Garaż 17,93m2
1.9 Taras 41,15m2

Poddasze 58,78m2

Gotowy projekt domu Livigno II rzut Poddasze

58,78m2

2.1 Hall 5,65m2
2.2 Łazienka 9,50m2 (10,55m2)
2.3 Pokój 13,95m2 (20,25m2)
2.4 Pokój 11,16m2 (16,61m2)
2.5 Pokój 11,04m2 (14,98m2)
2.6 Pokój 2,02m2 (3,39m2)
2.7 Schody 5,46m2
2.1 Hall 5,65m2
2.2 Łazienka 9,50m2 (10,55m2)
2.3 Pokój 13,95m2 (20,25m2)
2.4 Pokój 11,16m2 (16,61m2)
2.5 Pokój 11,04m2 (14,98m2)
2.6 Pokój 2,02m2 (3,39m2)
2.7 Schody 5,46m2

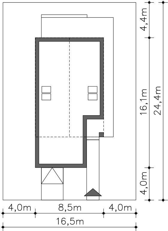
Wymiary działki

Gotowy projekt domu Livigno II wymiary działki

Przekrój

Gotowy projekt domu Livigno II przekrój

Elewacje

Gotowy projekt domu Livigno II elewacja przód Gotowy projekt domu Livigno II elewacja lewa Gotowy projekt domu Livigno II elewacja tył Gotowy projekt domu Livigno II elewacja prawa

Działka

Grafika przedstawia minimalne wymiary działki. Aby sprawdzić, czy dom może być realizowany na konkretnej działce należy uzyskać Wypis i Wyrys z Miejscowego Planu Zagospodarowania Przestrzennego lub jeśli na danym terenie nie ma planu – Decyzję o warunkach zabudowy. Wszystkie projekty wymagają adaptacji do warunków miejscowych przez projektanta lokalnego.

Dowiedz się więcej  

Technologia projektu

Fundamenty - rozwiązanie o podwyższonej izolacji termicznej

Ściany zewnętrzne - Pustak ceramiczny 25 cm + styropian 20 cm

Strop - żelbetowy typu filigran

Dach - tradycyjna więźba ciesielska

Ogrzewanie - c.o. podłogowe + c.w.u. - pompa ciepła powietrze-woda

WENTYLACJA - rekuperacja

Na etapie adaptacji projektu istnieje możliwość zamiany materiałów na inne o podobnych właściwościach i parametrach technicznych. Pamiętaj! Projekt stanowi spójną całość i zmiana rozwiązań może wpłynąć na jego właściwości wytrzymałościowe i cieplne.

Dowiedz się więcej  

Szacunkowe koszty realizacji

Stan surowy zamknięty 352 100 zł
Stan deweloperski 557 300 zł

Szacunkowa wycena netto. Biuro projektowe nie zajmuje się realizacją inwestycji.

Dowiedz się więcej  

Wyceń bezpłatnie budowę domu u wykonawcy  

Wersje projektu Livigno II (1)

Gotowy projekt domu Livigno

Nowość

Projekt
Energo
Oszczędny

Livigno

DCP355135,08m2

Projekt nowoczesnego domu z poddaszem użytkowym, z dwuspadowym dachem, z pompą ciepła i rekuperacją, z dużymi oknami, na wąską działkę, otwarta strefa dzienna, pokój na parterze, garderoba przy wejściu, dwie łazienki, 3 sypialnie na poddaszu

Opinie (0)

Opinie nie są weryfikowane pod kątem ich pochodzenia od konsumentów, którzy używali produktu lub go nabyli.

Polecane rozwiązania

Podobne projekty (5)

projekt Livigno II należy do kategorii

Ostatnio oglądane