PROMOCJA
ULUBIONE

Projekt domu

Delft 104,42m²

DCP294

PROMOCJA
- 400 zł
od 17 do 1 maja 2026

 

Karta projektu Podziel się:

Opis projektu

Piętrowy, niewielki dom energooszczędny, który z powodu przeszklonej elewacji ogrodowej jest doskonałą propozycją dla osób ceniących niebanalne, a przy tym proste i efektowne rozwiązania. Dzięki niewielkim wymiarom dom doskonale nadaje się na wąską działkę. Wnętrze podzielono na parterze na salon, kuchnię z jadalnią, wc, pomieszczenie gospodarcze z pralnią, zaś poddasze to dwie sypialnie i duża łazienka. Nad salonem znajduje się antresola, dzięki której wnętrze zyskuje przestronności. Ozdobą domu jest zarówno usytuowany od strony ogrodowej taras, jak i nowoczesne detale elewacji.

Zapotrzebowanie Energetyczne

EUco = 23,66kWh/(m²rok)
EP = 60,49kWh/(m²rok)

Projekt zgodny z wt2021

Dowiedz się więcej  

Parter 59,54m2

Gotowy projekt domu Delft rzut Parter

59,54m2

1.1 Wiatrołap 5,07m2
1.2 Komunikacja 5,76m2
1.3 Wc 1,64m2
1.4 Pralnia, c.o. 2,96m2
1.5 Pokój dzienny 29,04m2 (31,14m2)
1.6 Kuchnia 15,07m2
1.7 Podest 4,93m2
1.8 Taras 18,48m2
1.1 Wiatrołap 5,07m2
1.2 Komunikacja 5,76m2
1.3 Wc 1,64m2
1.4 Pralnia, c.o. 2,96m2
1.5 Pokój dzienny 29,04m2 (31,14m2)
1.6 Kuchnia 15,07m2
1.7 Podest 4,93m2
1.8 Taras 18,48m2

Piętro 44,88m2

Gotowy projekt domu Delft rzut Piętro

44,88m2

2.1 Komunikacja 10,26m2
2.2 Pokój 14,28m2
2.3 Pokój 11,19m2
2.4 Łazienka 5,66m2
2.5 Schody 3,49m2
2.1 Komunikacja 10,26m2
2.2 Pokój 14,28m2
2.3 Pokój 11,19m2
2.4 Łazienka 5,66m2
2.5 Schody 3,49m2

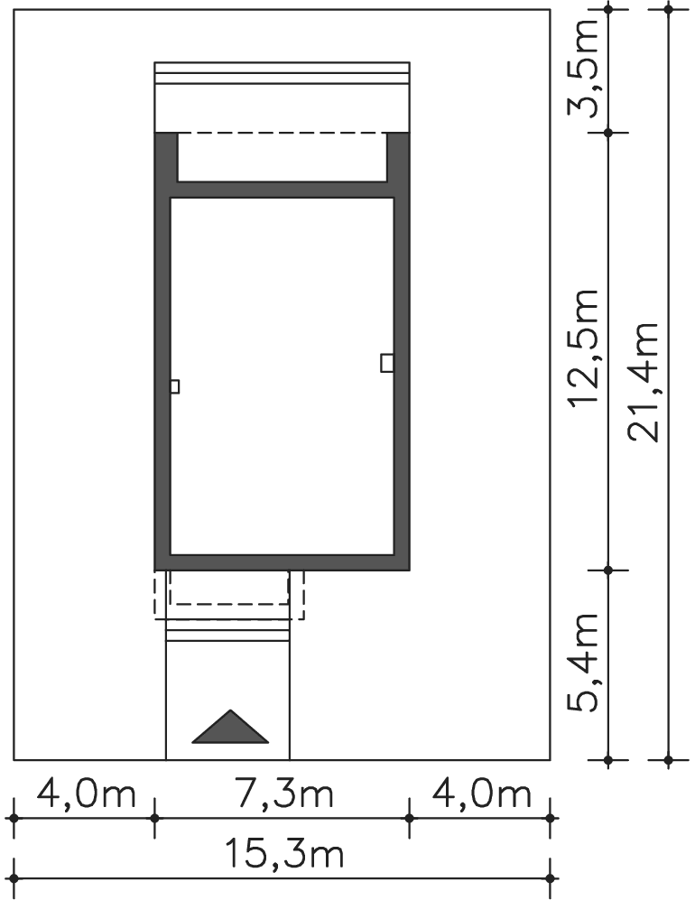
Wymiary działki

Gotowy projekt domu Delft wymiary działki

Przekrój

Gotowy projekt domu Delft przekrój

Elewacje

Gotowy projekt domu Delft elewacja przód Gotowy projekt domu Delft elewacja lewa Gotowy projekt domu Delft elewacja tył Gotowy projekt domu Delft elewacja prawa

Działka

Grafika przedstawia minimalne wymiary działki. Aby sprawdzić, czy dom może być realizowany na konkretnej działce należy uzyskać Wypis i Wyrys z Miejscowego Planu Zagospodarowania Przestrzennego lub jeśli na danym terenie nie ma planu – Decyzję o warunkach zabudowy. Wszystkie projekty wymagają adaptacji do warunków miejscowych przez projektanta lokalnego.

Dowiedz się więcej  

Technologia projektu

Fundamenty - rozwiązanie o podwyższonej izolacji termicznej

Ściany zewnętrzne - Bloczek silikatowy 24 cm + styropian 20 cm

Dach - stropodach gęstożebrowy

Ogrzewanie - c.o. grzejnikowe + c.w.u. - kocioł gazowy

WENTYLACJA - rekuperacja

Na etapie adaptacji projektu istnieje możliwość zamiany materiałów na inne o podobnych właściwościach i parametrach technicznych. Pamiętaj! Projekt stanowi spójną całość i zmiana rozwiązań może wpłynąć na jego właściwości wytrzymałościowe i cieplne.

Dowiedz się więcej  

Szacunkowe koszty realizacji

Stan surowy zamknięty 245 400 zł
Stan deweloperski 388 500 zł

Szacunkowa wycena netto. Biuro projektowe nie zajmuje się realizacją inwestycji.

Dowiedz się więcej  

Wyceń bezpłatnie budowę domu u wykonawcy  

Wersje projektu Delft (2)

Gotowy projekt domu Delft III
Projekt
Energo
Oszczędny

Delft III

DCP294b139,21m2

Średniej wielkości, nowoczesny dom piętrowy, z płaskim dachem i i zachwycającym przeszkleniem, idealny na wąskie działki: wysoki na dwie kondygnacje pokój dzienny,kuchnia z jadalnią, trzy sypialnie na piętrze.
Gotowy projekt domu Delft IV
Projekt
Energo
Oszczędny

- 400 zł

Delft IV

DCP294c140,80m2

Średniej wielkości, nowoczesny dom piętrowy, z płaskim dachem i i zachwycającym przeszkleniem: wysoki na dwie kondygnacje pokój dzienny,kuchnia z jadalnią, trzy sypialnie na piętrze, garaż na dwa auta.

Opinie (31)

07.06.2016

Lipinscy_Domy

Można zlikwidować okna. Można zrealizować dom w technologii szkieletowej. Dostosowanie wykonuje firma wykonawcza. W panelu po lewej stronie jest opcja 'Buduj EKO - projekt gratis' gdzie można uzyskać informację nt wyceny.

Skomentuj

07.06.2016

Misu369

Dzień dobry, czy dom można postawić w technologii szkieletowej stosując ogrzewanie podłogowe? Drugie pytanie dotyczy możliwości likwidacji okna przy schodach i okna na bocznej ścianie w mniejszej sypialni?

Skomentuj

29.04.2016

Lipinscy_Domy

Salon można powiększyć. Jeśli chodzi o koszty to zależy to od wielu czynników więc należy dowiadywać się o realne koszty lokalnie. Przeszklenia nie powodują podwyższenia kosztów, ponieważ jest to stolarka energooszczędna, ale musi zostać dobrze zamontowana.

Skomentuj

02.04.2016

Anna Niewygoda

Czy prosty koperty dach obniży koszt budowy?
Czy można salon powiększyć o te 18 m tarasu?
Czy ogrzewanie takiego domu , przez to potężne przeszklenie, znacząco podraża koszty ogrzewania?
Mieszkam w Jędrzejowie ,woj. Świętokrzyskie, czy cena 227 tys.jest realną ceną wybudowania tego domu do stanu deweloperskiego?
Czy tańszy w wykonaniu jest dom z klasycznym dachem?

Skomentuj

25.02.2016

Lipinscy_Domy

Możemy przygotować wersję bliźniaka - szczegóły: biuro@lipinscy.pl

Skomentuj

24.02.2016

Oleg Lwow

Вітаю Вас !
Чи буває версія блізняча ?
Дякую


Witam!
Czy może w wersji Bliznаk?
dzięki

Skomentuj

10.03.2015

Franek F

Idealny dom dla młodych i zapracowanych. Niewielki, funkcjonalny i nowoczesny! Rewelacja!

Skomentuj

01.04.2014

Lipinscy_Domy

Jest taka możliwość, ale trzeba będzie wykonać wzmocnienie w stropie, ponieważ ściana między salonem a kuchnią to ściana konstrukcyjna - do przeliczenia przez konstruktora.

Skomentuj

27.03.2014

majkot

Czy jest możliwość otwarcia kuchni na salon

Skomentuj

14.03.2014

Lipinscy_Domy

Ceny w Internecie są aktualne, natomiast liczone są szacunkowo na podstawie uśrednionej ceny jednego metra, więc biorą pod uwagę jedynie wielkość domu, a nie jego cechy szczególne. Szczegółowy kosztorys można nabyć odpłatnie.

Skomentuj

03.03.2014

Kamila

Fantastyczny, wlasnie czegoś takiego szukaliśmy, proszę o informację dot.szacowanych kosztów budowy, czy to sa aktualne ceny?

Skomentuj

04.02.2014

Lipinscy_Domy

Jest możliwość wydłużenia budynku. W sprawie szczegółów prosimy o kontakt bezpośrednio z biurem: biuro@lipinscy.pl, tel. 713545949

Skomentuj

03.02.2014

Artur

Fatastyczny projetk, czy jest możliwość wydłużenia budynku? Widziałem także jego rozszerzona wesje Delft II, ale podoba mi sie opcja otrzymania szerokości, lecz jego przedłużenia. Ciekawy jestem Państwa opinii i propozycji. Macie Państwo jedne z najciekawszych projektów biur architektonicznych w PL. Pozdrawiam,

Skomentuj

08.11.2013

Lipinscy_Domy

Grzejniki w salonie przewidziane są na ścianach po obu stronach przeszklonej elewacji.

Skomentuj

07.11.2013

Tomek

Jak wygląda kwestia rozmieszczenia grzejników w tym domu,zwłaszcza jeśli chodzi o salon?

Skomentuj

05.11.2013

Lipinscy_Domy

Projekt jest w trakcie opracowania i czeka na inwestora, dla którego go dokończymy. Nie ma więc możliwości aby został już zrealizowany. Jeśli chodzi o pytanie dotyczące okna to hm..... zapomniał Pan chyba dodać, że można by je powiększyć również na wysokość ;-)

Skomentuj

05.11.2013

Tomek

Projekt jest śliczny ale czy mają Państwo może jakies zdjęcia od inwestora, który go wybudował??
Ps. Czy w dużym pokoju można by zamiast tego małego okna zrobić duże okno niemalże na szerokość pokoju?

Skomentuj

14.02.2013

Lipinscy_Domy

Koszty realizacji podane na stronie są szacunkowe, liczone wg wskaźników powierzchni, wg cen minimalnych krajowych, wg Sekocenbudu. Projekt ten występuje także w wersji z garażem i trzecią sypialnią, pod nazwą Delft II. W łazienkach są okna, natomiast wiatrołap jest doświetlony drzwiami przeszklonymi.
Dziękujemy za miłe słowa - mamy nadzieję, że znajdzie Pani wśród nich ten wymarzony projekt domu.

Skomentuj

01.02.2013

kd

Ach, i czy w wiatrolapie jest okno?

Skomentuj

01.02.2013

kd

I chcialabym jeszcze sie dowiedziec na czym polega ta doplata, czy ona jest wliczona w koszty stanu deweloperskiego? Czy w łązienkach są okna? Pozdrawiam, uwielbiam Panstwa strone, jestem uzalezniona! :)

Skomentuj

01.02.2013

kd

Witam, czy to są faktyczne koszty ogrzewania tego domu? Nawet przy tym wysokim suficie w salonie i przeszkleniach? Bardzo nam podoba sie ten projekt, pomimo braku garazu i jeszcze jednego pokoju na gorze.

Skomentuj

09.01.2013

Lipinscy_Domy

Teoretycznie można, ale całkowicie straci się charakter tego domu. Raczej sugerujemy wybór innego projektu, np bardzo podobny Tottori, albo Belfast.

Skomentuj

08.01.2013

Witam,
jestesmy bardzo zainteresowani tym projektem ale chcielibysmy nad salonem zrobic duza sypialnie, bo niestety dwa pokoje na gorze to zamalo a ta ogromna przestrzen bedzie nie malym kosztem co do ogrzewania. Czy mozna by bylo zostawic jedynie dolna czesc antresoli, a na gorze wstawic normalne okna do owej sypialni?
Dziekujemy

Skomentuj

07.01.2013

czy mozna obnizyc sufit w salonie czyli tak jak w kuchni by uzyskac wiecej przestrzeni na pietrze, no i przy tym zmniejszyc okno na dole?

Skomentuj

31.10.2012

Lipinscy_Domy

W zasadzie pokój 2.2 jest dość spory, żeby zrobić z niego dwie mniejsze sypialnie - ale naprawdę niewielkie :-)

Skomentuj

20.10.2012

kubachaos

Czy jest szansa na jeszcze jedną sypialnię nawet malutką?

Skomentuj

09.10.2012

Tom Tomek

Genialnie wygląda elewacja z ciemnym drewnem i białym tynkiem - projekt jest u nas na pierwszym miejscu!!!

Skomentuj

21.09.2012

SJH

Faktycznie fajne, pytanie czy by sie dalo dokleic garaz do niego z boku i co zrobic z dachem owego garazu.

Skomentuj

02.07.2012

Anita

Wersja z białą ścianą i drewnem najbardziej mi się podoba. Czy można zobczyć gdzieś zdjęcia tego domu?

Skomentuj

11.05.2012

Kleo

Bardziej mi się podoba elewacja biało- drewniana. Bardzo fajna propozycja małego domu.

Skomentuj

07.05.2012

Tomasz Tomczyk

Wg mnie idealny dla pary bez dzieci. Ciekawe czy udałoby się zawalczyć o jeszcze jedną sypialnię?

Skomentuj

Opinie nie są weryfikowane pod kątem ich pochodzenia od konsumentów, którzy używali produktu lub go nabyli.

Polecane rozwiązania

Podobne projekty (7)

projekt Delft należy do kategorii

Ostatnio oglądane