PROMOCJA
ULUBIONE

Projekt domu

Garaż 70,70m²

G21B

 

Karta projektu Podziel się:

Opis projektu

Prosty garaż jednostanowiskowy, przekryty kopertowym dachem, z pomieszczeniem gospodarczym oraz wiatą, pod którą zmieści się kolejne auto. Zadaszona przestrzeń może też służyć do przechowywania np. drewna kominkowego.

Parter 70,70m2

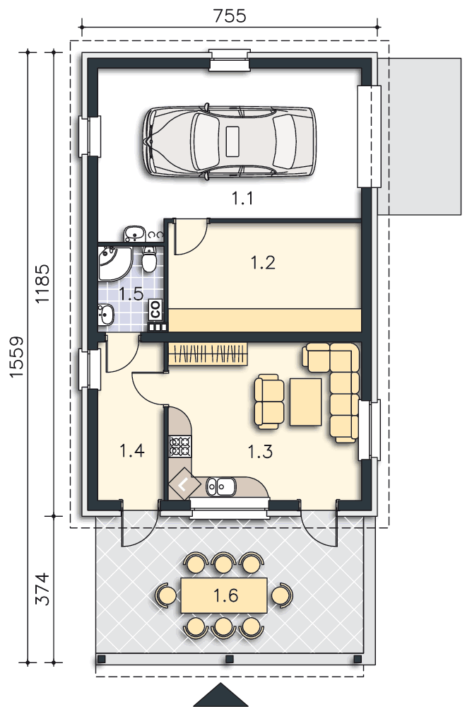
Gotowy projekt domu Garaż rzut Parter

70,70m2

1.1 Garaż 26,78m2
1.2 Pom.gosp. 13,74m2
1.3 Pom.gosp., aneks kuch. 19,84m2
1.4 Komunikacja 6,77m2
1.5 Wc 3,57m2
1.6 Taras 23,94m2
1.1 Garaż 26,78m2
1.2 Pom.gosp. 13,74m2
1.3 Pom.gosp., aneks kuch. 19,84m2
1.4 Komunikacja 6,77m2
1.5 Wc 3,57m2
1.6 Taras 23,94m2

Elewacje

Technologia projektu

Ogrzewanie - c.o. grzejnikowe + c.w.u. - kocioł gazowy

WENTYLACJA - grawitacyjna

Na etapie adaptacji projektu istnieje możliwość zamiany materiałów na inne o podobnych właściwościach i parametrach technicznych. Pamiętaj! Projekt stanowi spójną całość i zmiana rozwiązań może wpłynąć na jego właściwości wytrzymałościowe i cieplne.

Dowiedz się więcej  

Wersje projektu Garaż (2)

Gotowy projekt domu Garaż

Garaż

G2188,41m2

Garaż dwustanowiskowy z pomieszczeniem gospodarczym, kuchnią, toaletą i zadaszonym tarasem.
Gotowy projekt domu Garaż

Garaż

G21A126,25m2

Garaż dwustanowiskowy z pomieszczeniem gospodarczym, kuchnią, toaletą,z zadaszonym tarasem i pokojem na poddaszu.

Opinie (0)

Opinie nie są weryfikowane pod kątem ich pochodzenia od konsumentów, którzy używali produktu lub go nabyli.

Polecane rozwiązania

Podobne projekty (2)

projekt Garaż należy do kategorii

Ostatnio oglądane