PROMOCJA
ULUBIONE

Projekt domu

Berlin III 133,01m²

DCP160b

 

Karta projektu Podziel się:

Opis projektu

Ten projekt, to wersja z dwustanowiskowym garażem, sztandarowego już projektu - Berlin. Jest to dom energooszczędny, który łączy w sobie zalety ciepłego, rodzinnego, wygodnego domu z nowoczesnością i proekologicznym myśleniem. Znakomicie prezentuje się w nim przestronny salon z antresolą i dużymi przeszkleniami, otwierającymi dom na ogród i obszerny taras. Kuchnia została bardzo praktycznie umiejscowiona wraz z jadalnią za ozdobną ścianą ze schodami. Powoduje to, że kuchnia jest niewidoczna z salonu, a jednocześnie bardzo łatwo dostępna, a osoba przygotowująca posiłki ma kontakt z domownikami.

Zapotrzebowanie Energetyczne

EUco = 17,32kWh/(m²rok)
EP = 68,94kWh/(m²rok)

Projekt zgodny z wt2021

Dowiedz się więcej  

Parter 115,33m2

Gotowy projekt domu Berlin III rzut Parter

115,33m2

1.1 Wiatrołap 3,99m2
1.2 Łazienka 3,17m2
1.3 Komunikacja 4,39m2
1.4 Pom.gosp., c.o. 5,14m2
1.5 Kuchnia, jadalnia 20,48m2
1.6 Pokój dzienny 27,28m2 (29,38m2)
1.7 Pokój 11,62m2
1.8 Garaż 39,26m2
1.9 Podest 6,91m2
1.10 Taras 21,81m2
1.11 Podest 1,26m2
1.1 Wiatrołap 3,99m2
1.2 Łazienka 3,17m2
1.3 Komunikacja 4,39m2
1.4 Pom.gosp., c.o. 5,14m2
1.5 Kuchnia, jadalnia 20,48m2
1.6 Pokój dzienny 27,28m2 (29,38m2)
1.7 Pokój 11,62m2
1.8 Garaż 39,26m2
1.9 Podest 6,91m2
1.10 Taras 21,81m2
1.11 Podest 1,26m2

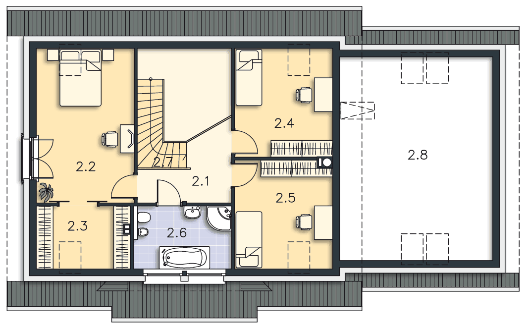
Poddasze 56,94m2

Gotowy projekt domu Berlin III rzut Poddasze

56,94m2

2.1 Komunikacja 6,45m2
2.2 Pokój 15,86m2 (19,15m2)
2.3 Garderoba 4,24m2 (7,37m2)
2.4 Pokój 10,09m2 (13,38m2)
2.5 Pokój 10,07m2 (13,36m2)
2.6 Łazienka 6,62m2 (7,82m2)
2.7 Schody 3,61m2
2.8 Strych 22,28m2 (39,26m2)
2.1 Komunikacja 6,45m2
2.2 Pokój 15,86m2 (19,15m2)
2.3 Garderoba 4,24m2 (7,37m2)
2.4 Pokój 10,09m2 (13,38m2)
2.5 Pokój 10,07m2 (13,36m2)
2.6 Łazienka 6,62m2 (7,82m2)
2.7 Schody 3,61m2
2.8 Strych 22,28m2 (39,26m2)

Wymiary działki

Gotowy projekt domu Berlin III wymiary działki

Przekrój

Gotowy projekt domu Berlin III przekrój

Elewacje

Gotowy projekt domu Berlin III elewacja przód Gotowy projekt domu Berlin III elewacja lewa Gotowy projekt domu Berlin III elewacja tył Gotowy projekt domu Berlin III elewacja prawa

Działka

Grafika przedstawia minimalne wymiary działki. Aby sprawdzić, czy dom może być realizowany na konkretnej działce należy uzyskać Wypis i Wyrys z Miejscowego Planu Zagospodarowania Przestrzennego lub jeśli na danym terenie nie ma planu – Decyzję o warunkach zabudowy. Wszystkie projekty wymagają adaptacji do warunków miejscowych przez projektanta lokalnego.

Dowiedz się więcej  

Technologia projektu

Fundamenty - rozwiązanie o podwyższonej izolacji termicznej

Ściany zewnętrzne - Bloczek silikatowy 24 cm + styropian 20 cm

Strop - gęstożebrowy

Dach - tradycyjna więźba ciesielska

Ogrzewanie - c.o. grzejnikowe + c.w.u. - kocioł gazowy

WENTYLACJA - rekuperacja

Na etapie adaptacji projektu istnieje możliwość zamiany materiałów na inne o podobnych właściwościach i parametrach technicznych. Pamiętaj! Projekt stanowi spójną całość i zmiana rozwiązań może wpłynąć na jego właściwości wytrzymałościowe i cieplne.

Dowiedz się więcej  

Szacunkowe koszty realizacji

Stan surowy zamknięty 457 200 zł
Stan deweloperski 723 800 zł

Szacunkowa wycena netto. Biuro projektowe nie zajmuje się realizacją inwestycji.

Dowiedz się więcej  

Wyceń bezpłatnie budowę domu u wykonawcy  

Wersje projektu Berlin III (1)

Opinie (33)

13.01.2017

Lipinscy_Domy

Chcesz zbudować ten dom? A może już go budujesz?
Zapraszamy do grupy dotyczącej projektu Berlin na Facebooku:
https://www.facebook.com/groups/244051912699572/

Skomentuj

29.10.2013

Lipinscy_Domy

Aby zapobiegać przegrzewaniu pomieszczeń od strony południowej warto zastosować żaluzje zewnętrzne.

Skomentuj

26.10.2013

marcinran

a jak tam kwestia ciepła w okresie lata czy nie ma problemu z przegrzewaniem pomieszczenia?

Skomentuj

20.08.2013

rob

W tym roku zacząłem budowę tego domu. Pierwsze co zmieniłem do wielkie okan, które powodują, że dom przestaje być energoszczędny.

Skomentuj

14.08.2013

Anna

Witam!
My mieszkamy w zachodniopomorskim i mamy dom dwulokalowy.
Budowę właśnie kończymy. Nasz dom jest w galerii lub w realizacjach.
Pozdrawiam

Skomentuj

24.05.2013

Joanna F.

Dzień dobry,
Poważnie zastanawiamy się nad projektem Berlin III, nadaje się on jak najbardziej do przerobienia parteru na 2 lokale chodzi nam o dom z usługą, mam pytanie do Państwa którzy budowali dom wg. tego projektu jakie koszty szacunkowo pochłonęła budowa domu chociażby do stanu developerskiego gdyż jak wiadomo cena wykończenia jest kwestią bardzo indywidualną? Oraz czy ktoś z Państwa budował ten dom w woj. Zachodniopomorskim bądź niedaleko? pozdrawiam serdecznie, z góry dziękuję za odpowiedź. Jeżeli ktoś byłby w stanie podać więcej inf. na temat budowy, kosztów itp proszę o kontakt na maila yoacha@autograf.pl

Skomentuj

15.03.2013

Lipinscy_Domy

Projekt domu spełnia warunki programu dopłat, jednak zapotrzebowanie energetyczne jest liczone do teoretycznej lokalizacji w II strefie klimatycznej i usytuowaniu domu wjazdem od północy. Zapotrzebowanie może zmienić się w zależności od konkretnej lokalizacji.

Skomentuj

15.03.2013

Lipinscy_Domy

Przejście do garażu byłoby możliwe tylko kosztem pokoju 1.7.
Wejście do pomieszczenia 2.8 jest przewidziane poprzez schody składane 120x60, ale można zastosować szersze.
Wyceny firm wykonawczych najczęściej są wyższe od kosztorysowych, z uwagi na kompleksową usługę, która ściąga z inwestora bardzo wiele obowiązków. Zwykle koszt jest droższy o około 20%. W tym przypadku trudno nam powiedzieć, skąd taka różnica, jednak nasze kosztorysy są szacowane wg cennika Sekocenbudu, minimalnych cen krajowych materiałów i średnich cen robocizny. Dodatkowo mamy informacje z różnych źródeł, że hurtownie materiałów dają obecnie spore rabaty, że czasem schodzą z cen zawartych w kosztorysie.

Skomentuj

14.03.2013

Tiffi

Czy dom kwalifikuje się do 30 tyś. dopłaty z założenia, czy muszą być spełnione jakieś dodatkowe warunki.
Dziękuję.

Skomentuj

14.03.2013

Monella

WItam,

Mam 3 pytania:
- Czy i ew. jakie są możliwości zaadaptowania projektu Berlin, tak, aby wejście do garażu było z domu, bez konieczności wychodzenia na zewnątrz.
- Jak wygląda możliwość adaptacji pomieszczenia 2.8? Lub - czy można powiększyć właz do tego pomieszczenia z garażu, aby na "strych" można było wnieść rzeczy o większych gabarytach?
- Otrzymałam wycenę wybudowania tego domu od jednej z firm, która w Państwem współpracuje przy realizacji projektów. Cena jest o ponad 40% wyższa (porównuję ceny netto - dom w stanie developerskim) vs. kosztorys w karcie projektu. Skąd aż tak duża rozbieżność?

Dziękuję i pozdrawiam.

Skomentuj

05.03.2013

LG

Ścianka kolankowa w części mieszkalnej ma wysokość 100 cm a w części strychowej nad garażem ścianka ma 40 cm. Wymiary podaję zgodnie z projektem.

Skomentuj

25.02.2013

Małgorzata Dominiak

Witam,
A jaka jest wysokość ścianki kolankowej w tym domu? Może ktoś wie,bo to bardzo ważne.Pozdrawiam.

Skomentuj

29.01.2013

Robert

Witam,

poważnie rozważam budowę domu według tego projektu,w związku z czym chciałby prosić Państwa, którzy mieszkają już w takim domu, o napisanie rzeczywistych kosztów eksploatacji, oraz czy kosztorys budowy który znajduje się w projekcie jest w miarę realny? Czy jest możliwa budowa tego domu w technologii keramzytowej? Może ktoś wybudował?

Skomentuj

01.01.2013

zadowolona

tak okna są super nawet zimą dają duża światła i ciepła w słoneczny dzień. Mieszkamy tu dopiero kilka miesięcy ale okna są tu najlepszym elementem. Polecam

Skomentuj

13.12.2012

Lipinscy_Domy

Wymiary okien w jadalni i salonie wynoszą 326x210.

Skomentuj

12.12.2012

WS

Czy może ktoś zna wymiary dużego okna w jadalni?

Skomentuj

01.08.2012

Jerzy

Strasznie mi się podobają przeszklone ściany. Lubię ciepłe, dobrze oświetlone pomieszczenia.

Skomentuj

21.03.2012

Karol, Nowa Ruda

Wybraliśmy ten projekt projekt, ponieważ spełniał wszystkie nasze wymagania- dwupołaciowy dach, sąsiedztwo kuchni i łazienki, brak „udziwnień” architektonicznych (balkonów, wieżyczek itp.).
Zupełnie przy okazji urzekły nas 3 ogromne okna z tyłu domu, dające dużo światła i poczucie przestrzeni, których nie widzieliśmy w innych projektach.
Wybrany przez nas projekt wyróżnia duży, przestronny salon ze względu na otwarty sufit nad jego częścią oraz ciekawe połączenie salonu z kuchnią, która jest po trosze otwarta i zamknięta. Wyróżniają go też wspomniane już wcześniej okna, przez które do środka ma szansę wpłynąć ogromna ilość światła słonecznego, poprawiając tym samym nasze samopoczucie nawet w najchmurniejszy dzień.

Skomentuj

14.10.2011

magda 28

Witam, zamierzamy budować dom Berlin i chcielibyśmy zobaczyć go "na żywo". Jeżeli byłaby możliwość zobaczenia domu gotowego lub ewentualnie w trakcie budowy to proszę o kontakt: magdalena_m@interia.pl
Pozdrawiam

Skomentuj

22.07.2011

Ania

Witam!
My za około trzy tygodnie startujemy z budową Berlina III jednak przerobionego na dom jednorodzinny dwulokalowy ze wspólnym wejściem.
Dodatkowy domek będzie w miejscu garażu, a garaż powstanie wolnostojący. Pierwotny projekt nie zmienił się prawie nic, jedynie pokój na dole 1.7 został przedzielony i powstał z niego przedpokój/przejście do domu drugiego i na małą kotłownię.

Skomentuj

03.07.2011

LG

Witam,
Jesteśmy w trakcie budowy Berlina III. Staraliśmy się jak najmniej zmienić w tym projekcie, bo dla nas jest prawie idealny. Jednak kotłownię musieliśmy przenieść do części garażowej, ponieważ dom zamierzamy ogrzewać kotłem na biomasę. Dostęp do kotłowni z części mieszkalnej planujemy wykonać poprzez pokój 1.7. W garażu wzdłuż ściany nośnej części mieszkalnej będą dwa pomieszczenia: kotłownia właśnie oraz dodatkowe pomieszczenie gospodarcze, które będzie jednocześnie przedsionkiem do kotłowni i łącznikiem z częścią mieszkalną. Tam też planujemy umiejscowić rekuperator. Garaż oczywiście będzie jednostanowiskowy i krótszy niż w oryginale ponieważ przy ścianie południowej garażu będzie dodatkowe pomieszczenie na skład opału.

Skomentuj

27.05.2011

70-marek

witam,
pomimo, jak uważają co niektórzy,są i tacy co chcą ogrzewać swój dom ekogroszkiem, niestety projekt , a w zasadzie usytuowanie kotłowni za kuchnią, ogranicza w zasadniczy sposób wykorzystanie innego ogrzewania poza piecem dwufunkcyjnym, pompą ciepła
sporo lepszym rozwiązaniem byłoby umiejscowienie kotłowni chociażby w garażu!

następną kwestią jest poddasze nad garażem, czy nie lepiej by było "dorobić"kawałek korytarza z piętra i "wykorzystywać" ową przestrzeń np jako dodatkową sypialnię, czy garderobę, pomimo niskich skosów?

Skomentuj

27.03.2011

Dawid

Tak nowoczesny projekt domu energooszczędnego nie wymaga osobnej kotłowni (w pomieszczeniu gospodarczym przy kuchni można umieścić pompę ciepła lub kocioł gazowy i rekuperator). Absurdem jest wstawianie do tego lub innego projektu domu energooszczędnego kotła na tzw. "ekogroszek" czyt. wungiel i później kopcenie po okolicy nowo wybudowanych domów, masakra;(
Projekty Lipińskich są najlepsze na naszym rynku a Berlin III to Mistrzostwo Świata w funkcjonalności, prostej architekturze i energooszczędności przy usytuowaniu południowym. Pozdrawiam Wszystkich mieszkańców domów Lipińskich, budujących i planujących budowę;)

Skomentuj

09.02.2011

Ewelina Zabłocka

Osobiście niezmiernie podoba mi się przestronność pomieszczeń, oraz światło, które ogarnia pokoje. Najbardziej zainteresował mnie strych , który jest atutem ze względu na wielkość. Zmieniłabym jedynie wysokość strychu, i wpuściłabym nieco światła, oraz połączyła go prostymi schodami z poddaszem.

Skomentuj

22.01.2011

iva

tylko są bardzo duże skosy na górze i to może być problemem zwłaszcza, że pokoje są małe a piec możesz mieć w garażu po co nosić do domu?

Skomentuj

18.01.2011

Krzysiek

A gdzie można zlokalizować piec na ekogroszek?
kolo kuchni?
a jak tam dostarczyć ekogroszek?
nosząc przez kuchni?

Skomentuj

12.01.2011

Adam

Gdzie moża ustyułować piec gazowy do ogrzewania? W garażu?

Skomentuj

02.01.2011

GOSIA

bardzo podoba mi sie ten projekt.DUŻE OKNA I OGROM ŚWIATŁA,to podstawa.Jest naprawde ładny

Skomentuj

20.12.2010

Jolanta Żmuda

Dużo przeszkleń , które można zlokalizować od strony południowej zyskując max światła i otwarta przestrzeń w salonie są bardzo dużym plusem tego domu. Pokoje na górze z osobną sypialnia dla rodziców i garderobą dla nich przemawiają za tym projektem. Duży pozytyw dla architekta i pomysłodawcy:)

Skomentuj

17.12.2010

Ola_

Projekt Berlin III jest po prostu świetny. Po pierwsze świetnie się preznentuje z zewnątrz. Nuta nowoczesności powiązana z nutą tradycji - ciekawe połączenie. Duże okna dają dużo światła, czyli to co lubię:) Po drugie rozkład oraz ilość pomieszczeń wydaje się idealna. Pokój na parterze może być przeznaczony na biuro, góra może być typowo rodzinna. Ma też to co każda kobieta chciałby mieć - garderobę;) ... fantastyczny

Skomentuj

15.12.2010

xy

wszystko ładnie tylko gdzie jest kotłownia?

Skomentuj

05.12.2010

Gabriela

Jestem pod wrażeniem - każdy dom jest wspaniały, naprawdę trudno jest wybrać jeden. Macie niesamowity styl, który sprawia, że domki są idealne. W prjekcie Berlin III zmieniłabym tylko na piętrze garderobę w pokoju rodziców na mini łazienkę, ewentualnie połączyła oba, lub pokój rodziców zrobiła na dole. Wiadomo, że to także kwestia gustu. Reszta jest bez zarzutu!

Skomentuj

04.08.2010

Joanna i Łukasz, Smolec

Berlin III wyróżnia prostota, energooszczędność, wpasowanie w lokalną zabudowę, nowoczesność, dopasowanie do potrzeb, okna.

Skomentuj

Opinie nie są weryfikowane pod kątem ich pochodzenia od konsumentów, którzy używali produktu lub go nabyli.

Polecane rozwiązania

Podobne projekty (6)

projekt Berlin III należy do kategorii

Ostatnio oglądane