PROMOCJA
ULUBIONE

Projekt domu

Temerin 114,69m²

DCP313

PROMOCJA
- 400 zł
od 17 do 1 maja 2026

 

Karta projektu Podziel się:

Opis projektu

Mocna bryła tego energooszczędnego domu już z daleka przyciąga wzrok. Niestandardowe potraktowanie dachu i ścian, jako osłony domu jest uzasadnione funkcjonalnie i energooszczędnie. Ponadto zapewnia ciągłość izolacji bez mostków termicznych. Wnętrze domu natomiast to czytelny układ pomieszczeń z przestronną strefą dzienną i dodatkowym pokojem dostosowanym do potrzeb osoby niepełnosprawnej. Część techniczna została wydzielona z domu i umieszczona w strefie zadaszenia nad garażem. Do garażu można przejść bezpośrednio z domu. Charakterystycznym elementem domu są także fasadowe żaluzje wielkogabarytowe, z możliwością regulacji kąta nachylenia paneli przy oknach. Ich rysunek jest mocno widoczny na elewacji i nadaje domu nowoczesnego charakteru. W domu zastosowano także szereg elementów znacznie obniżających zapotrzebowanie na energię do ogrzewania, zatem projekt uzyskał znakomity wynik, kwalifikujący ten dom do programu dopłat NFOŚiGW.

Zapotrzebowanie Energetyczne

EUco = 24,53kWh/(m²rok)
EP = 69,90kWh/(m²rok)

Projekt zgodny z wt2021

Dowiedz się więcej  

Parter 92,46m2

Gotowy projekt domu Temerin rzut Parter

92,46m2

1.1 Wiatrołap 3,53m2
1.2 Komunikacja 4,31m2
1.3 Spiżarnia 2,11m2
1.4 Salon z kuchnią 28,29m2 (29,34m2)
1.5 Pokój 10,16m2
1.6 Łazienka 4,15m2
1.7 Pom.gosp. 3,59m2
1.8 Kotłownia 3,19m2
1.9 Garaż 33,13m2
1.10 Podest 14,50m2
1.11 Taras 29,40m2
1.1 Wiatrołap 3,53m2
1.2 Komunikacja 4,31m2
1.3 Spiżarnia 2,11m2
1.4 Salon z kuchnią 28,29m2 (29,34m2)
1.5 Pokój 10,16m2
1.6 Łazienka 4,15m2
1.7 Pom.gosp. 3,59m2
1.8 Kotłownia 3,19m2
1.9 Garaż 33,13m2
1.10 Podest 14,50m2
1.11 Taras 29,40m2

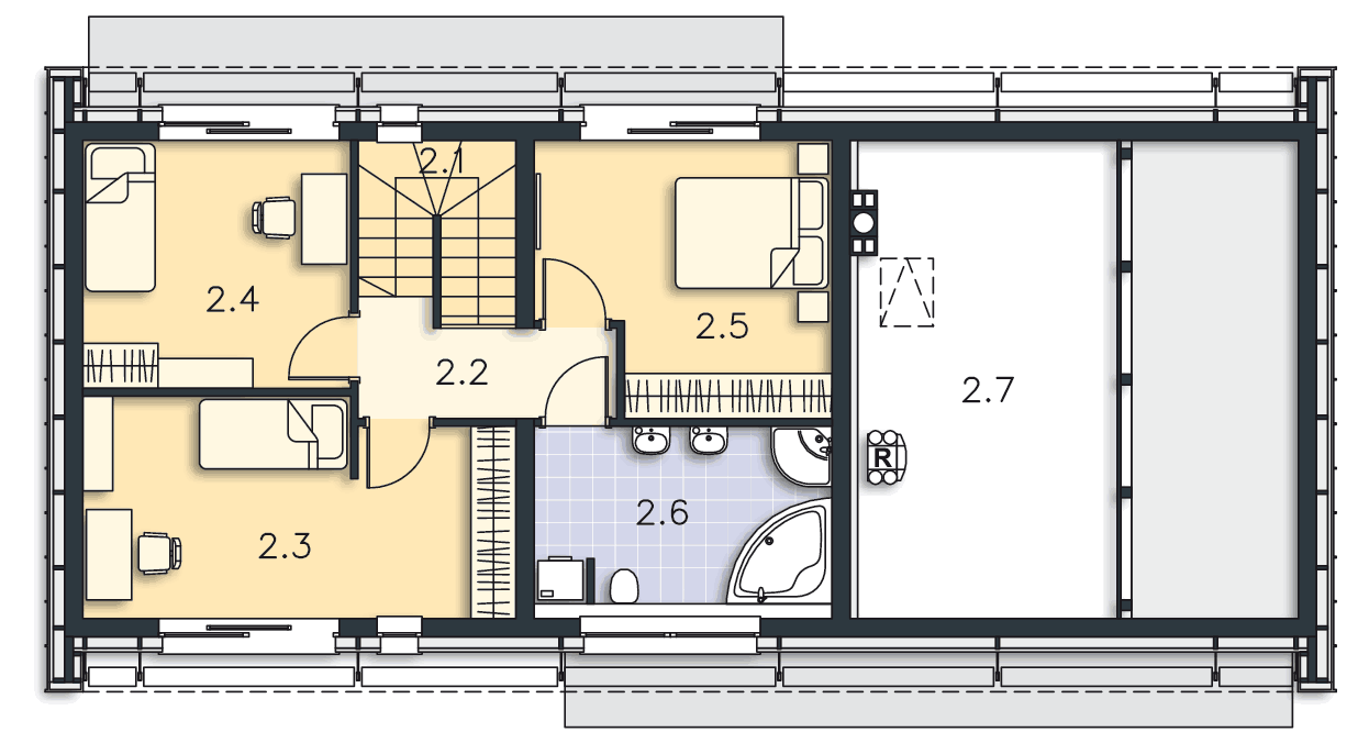
Poddasze 58,55m2

Gotowy projekt domu Temerin rzut Poddasze

58,55m2

2.1 Schody 4,61m2
2.2 Komunikacja 4,55m2
2.3 Pokój 15,78m2 (15,94m2)
2.4 Pokój 11,46m2 (11,65m2)
2.5 Pokój 12,94m2
2.6 Łazienka 9,21m2
2.7 Strych 6,42m2 (21,52m2)
2.1 Schody 4,61m2
2.2 Komunikacja 4,55m2
2.3 Pokój 15,78m2 (15,94m2)
2.4 Pokój 11,46m2 (11,65m2)
2.5 Pokój 12,94m2
2.6 Łazienka 9,21m2
2.7 Strych 6,42m2 (21,52m2)

Wymiary działki

Gotowy projekt domu Temerin wymiary działki

Przekrój

Gotowy projekt domu Temerin przekrój

Elewacje

Gotowy projekt domu Temerin elewacja przód Gotowy projekt domu Temerin elewacja lewa Gotowy projekt domu Temerin elewacja tył Gotowy projekt domu Temerin elewacja prawa

Działka

Grafika przedstawia minimalne wymiary działki. Aby sprawdzić, czy dom może być realizowany na konkretnej działce należy uzyskać Wypis i Wyrys z Miejscowego Planu Zagospodarowania Przestrzennego lub jeśli na danym terenie nie ma planu – Decyzję o warunkach zabudowy. Wszystkie projekty wymagają adaptacji do warunków miejscowych przez projektanta lokalnego.

Dowiedz się więcej  

Technologia projektu

Fundamenty - rozwiązanie o podwyższonej izolacji termicznej

Ściany zewnętrzne - Bloczek silikatowy 24 cm + styropian 20 cm

Strop - gęstożebrowy

Dach - tradycyjna więźba ciesielska

Ogrzewanie - c.o. grzejnikowe + c.w.u. - kocioł gazowy

WENTYLACJA - rekuperacja

Na etapie adaptacji projektu istnieje możliwość zamiany materiałów na inne o podobnych właściwościach i parametrach technicznych. Pamiętaj! Projekt stanowi spójną całość i zmiana rozwiązań może wpłynąć na jego właściwości wytrzymałościowe i cieplne.

Dowiedz się więcej  

Szacunkowe koszty realizacji

Stan surowy zamknięty 370 000 zł
Stan deweloperski 585 700 zł

Szacunkowa wycena netto. Biuro projektowe nie zajmuje się realizacją inwestycji.

Dowiedz się więcej  

Wyceń bezpłatnie budowę domu u wykonawcy  

Wersje projektu Temerin (1)

Gotowy projekt domu Temerin II
Projekt
Energo
Oszczędny

- 400 zł

Temerin II

DCP313A146,77m2

Wyjątkowy, nowoczesny dom z poddaszem użytkowym, z asymetrycznym dwuspadowym dachem, z czterema sypialniami, z garażem dwustanowiskowym, wersja większa z wyspą kuchenną i pralnią

Opinie (22)

16.01.2017

Lipinscy_Domy

Ponieważ jest to projekt z konkursu Muratora podane koszty uwzględniają zastosowane rozwiązania i materiały - pokrycie dachu, rolety, standard energooszczędny na podstawie cenników Sekocenbud. Warto przesłać zapytania do firm wykonawczych, aby poznać realne koszty. Możemy udostępnić rysunki pokazowe. Prosimy o kontakt: biuro@lipinscy.pl

Skomentuj

16.01.2017

Piotr W

Projekt świetny ale zastanawia mnie co jest w tym projekcie takie drogie. Jestem przekonany do niego na 90% ale trochę mam opory ze względu na koszty budowy. Czy taki wysokości koszt budowy wynika z dachu czy może z rolet zewnętrznych, a może jest jakiś inny powód?

Skomentuj

04.07.2016

Lipinscy_Domy

Można zmniejszyć garaż.

Skomentuj

04.07.2016

Piotr

Czy jest możliwość zmniejszenia garażu do jednostanowiskowego?

Skomentuj

15.03.2016

Lipinscy_Domy

W celu uzyskania odpowiedzi prosimy o kontakt bezpośredni: biuro@lipinscy.pl

Skomentuj

30.12.2015

Sebastian

Jeszcze jedno pytanie. Szanowni Państwo, jak wygląda odwodnienie z dachu?
S.

Skomentuj

30.12.2015

Sebastian

Piękny projekt. Został zrealizowany? Można dostać kontakt do właścicieli? Z jakiego materiału proponujecie Państwo zbudowanie "żaluzji" na wysokości piętra? To ma być stal? W minimalnej, szacunkowej cenie nazwana przeze mnie ozdoba elewacji "żaluzjami" wykonana ma być ze stali malowanej proszkowo? Pozdrawiam.

Skomentuj

21.12.2015

Lipinscy_Domy

Można przearanżować wnętrze tak aby salon z dużymi przeszkleniami był od frontu.

Skomentuj

19.12.2015

Krystian

Tzn., że na działce z wjazdem od południa ten dom nie ma racji bytu? Ewentualnie jakieś zmiany, żeby jednak miało to sens...?

Skomentuj

25.08.2014

Lipinscy_Domy

Zmiana kąta nachylenia dachu jest możliwa. Wprowadzić ją może architekt lokalny w ramach adaptacji. Powierzchnia dachu zwiększy się o ok 15m2.

Skomentuj

24.08.2014

Karol

Witam,

Czy na potrzeby miejscowego planu można zwiekszyć kat dachu do 30st.? O ile przytyje zmianę zwiększy sie powierzchnia dachu ?

Skomentuj

12.05.2014

Lipinscy_Domy

Prawdopodobnie tak, ale to trzeba przeliczyć przyjmując zmienione parametry budynku. Aby skorzystać z programu dopłat projekt należy dostosować do wytycznych funduszu (info pod poniższym linkiem: http://news.lipinscy-projekty.pl/oferta_na_dostosowanie_projektow_do_doplat_z_NFOSiGW.html )

Skomentuj

01.05.2014

Czy po wprowadzeniu (przez Państwa, w ramach adaptacji projektu) poniższych zmian budynek będzie nadal poniżej 40 czegoś tam do dopłat NFOŚIGW? :
1. Zwiększenie wysokości obu kondygnacji do 300cm.
2. Zwiększenie kąta nachylenia dachu do 25st.

?

Skomentuj

29.03.2014

Lipinscy_Domy

Wiele z tych zmian można wprowadzić. Proszę o kontakt osobisty na biuro@lipinscy.pl, a przygotujemy ofertę

Skomentuj

17.03.2014

Marek

Witam,projekt bardzo mi się podoba,jednak mam parę pytań.
1.Czy jest możliwość skrócenia domu o 2 m (1 m kosztem garażu i 1m skrócenia części mieszkalnej od strony garażu)
2.Rezygnacja ze strychu nad garażem po to by uzyskac wysokość odpowiednią do prowadzenia działalności w części garażowej .
3.Sciany boczne i dach czy mogą być wykonane z płyty warstwowej np.Kingspan
4.Sciana frontowa i tył porotherm 25 +styropian 10
5.Rezygnacja z kotłowni w garażu i przeniesienie jej do pokoju na parterze.
6.Kotłownia na ekogroszek


Skomentuj

07.10.2013

Lipinscy_Domy

Pokrycie dachu i ścian jest z blachy.

Skomentuj

26.09.2013

gar

Z czego wykonany jest dach i elewacje boczne?

Skomentuj

03.07.2013

Lipinscy_Domy

Tak, fragment tej elewacji zasłaniający okna jest ruchomy i pełni funkcję żaluzji.

Skomentuj

03.07.2013

ciekawski

Do czego służ ta metalowa (chyba) konstrukcja zasłaniająca okna? Czy to jest ruchome i służy zasłanianiu tej części elewacji i okien?

Skomentuj

02.04.2013

Lipinscy_Domy

Ten dom jest dedykowany na działki z wjazdem od północy, zatem można go ustawić odwracając o 90 stopni w lewo, a wjazd do garażu byłby z boku.

Skomentuj

01.04.2013

lewmarek

Jak gO USTAWIĆ NA DZIAŁCE Z WJAZDEM ZE STRONY WSCHODNIEJ
CZY kuchnia może być od strony wschodnio południowej

Skomentuj

20.03.2013

Sylwek

Bardzo oryginalny pomysł. Ciekawa bryła i dobry rozkład pomieszczeń. Z czego zrobiona jest elewacja?

Skomentuj

Opinie nie są weryfikowane pod kątem ich pochodzenia od konsumentów, którzy używali produktu lub go nabyli.

Polecane rozwiązania

Podobne projekty (7)

projekt Temerin należy do kategorii

Ostatnio oglądane