PROMOCJA
ULUBIONE

Projekt domu

Lancaster III 98,96m²

DCB104b

 

Karta projektu Podziel się:

Opis projektu

Nowa wersja uwielbianego przez inwestorów projektu Lancaster. Piękny energooszczędny dom parterowy z płaskim dachem, który posiada dwie sypialnie oraz garderobę. Duże przeszklenia w salonie oraz przestronny taras sprawiają, że dom jest jasny i otwarty na ogród. Atutem jest niezależna kotłownia z wyjściem na zewnątrz.

Zapotrzebowanie Energetyczne

EUco = 27,65kWh/(m²rok)
EP = 65,20kWh/(m²rok)

Projekt zgodny z wt2021

Dowiedz się więcej  

Parter 98,96m2

Gotowy projekt domu Lancaster III rzut Parter

98,96m2

1.1 Wiatrołap 5m2
1.2 Hall 6,25m2
1.3 Spiżarnia 3,49m2
1.4 Kuchnia 11,65m2
1.5 Pokój dzienny 23,81m2
1.6 Łazienka 7,54m2
1.7 Pokój 14,79m2
1.8 Pokój 11,80m2
1.9 C.o. 5,63m2
1.10 Garderoba 9m2
1.11 Podest 5,70m2
1.12 Taras 22,11m2
1.13 Podest 4,88m2
1.14 Podest 4,18m2
1.1 Wiatrołap 5m2
1.2 Hall 6,25m2
1.3 Spiżarnia 3,49m2
1.4 Kuchnia 11,65m2
1.5 Pokój dzienny 23,81m2
1.6 Łazienka 7,54m2
1.7 Pokój 14,79m2
1.8 Pokój 11,80m2
1.9 C.o. 5,63m2
1.10 Garderoba 9m2
1.11 Podest 5,70m2
1.12 Taras 22,11m2
1.13 Podest 4,88m2
1.14 Podest 4,18m2

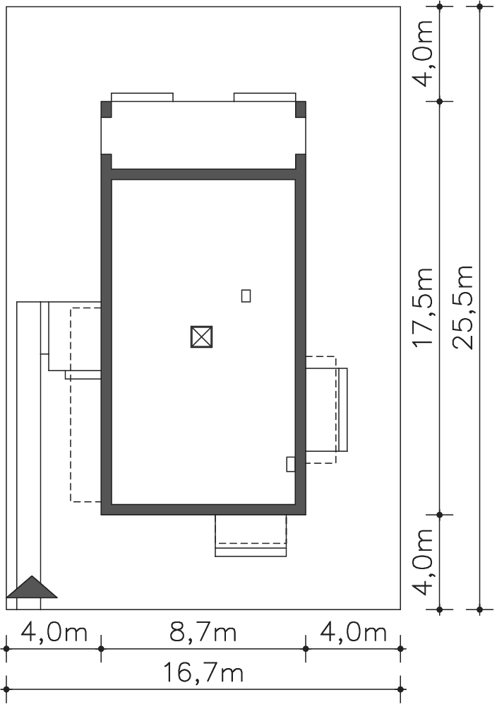
Wymiary działki

Gotowy projekt domu Lancaster III wymiary działki

Przekrój

Gotowy projekt domu Lancaster III przekrój

Elewacje

Gotowy projekt domu Lancaster III elewacja przód Gotowy projekt domu Lancaster III elewacja lewa Gotowy projekt domu Lancaster III elewacja tył Gotowy projekt domu Lancaster III elewacja prawa

Działka

Grafika przedstawia minimalne wymiary działki. Aby sprawdzić, czy dom może być realizowany na konkretnej działce należy uzyskać Wypis i Wyrys z Miejscowego Planu Zagospodarowania Przestrzennego lub jeśli na danym terenie nie ma planu – Decyzję o warunkach zabudowy. Wszystkie projekty wymagają adaptacji do warunków miejscowych przez projektanta lokalnego.

Dowiedz się więcej  

Technologia projektu

Fundamenty - płyta fundamentowa

Ściany zewnętrzne - Bloczek silikatowy 24 cm + styropian 20 cm

Dach - stropodach żelbetowy

Ogrzewanie - c.o. grzejnikowe + c.w.u. - kocioł gazowy

WENTYLACJA - rekuperacja

Na etapie adaptacji projektu istnieje możliwość zamiany materiałów na inne o podobnych właściwościach i parametrach technicznych. Pamiętaj! Projekt stanowi spójną całość i zmiana rozwiązań może wpłynąć na jego właściwości wytrzymałościowe i cieplne.

Dowiedz się więcej  

Szacunkowe koszty realizacji

Stan surowy zamknięty 232 600 zł
Stan deweloperski 368 200 zł

Szacunkowa wycena netto. Biuro projektowe nie zajmuje się realizacją inwestycji.

Dowiedz się więcej  

Wyceń bezpłatnie budowę domu u wykonawcy  

Wersje projektu Lancaster III (4)

Gotowy projekt domu Lancaster
Projekt
Energo
Oszczędny

Lancaster

DCB10484,33m2

Nowoczesny dom jednorodzinny, parterowy z dachem dwuspadowym, z garażem: wysoka przestrzeń dzienna z kominkiem, duży zadaszony taras, kuchnia ze spiżarką, dwie sypialnie, łazienka, garaż z pom.gosp.
Gotowy projekt domu Lancaster II
Projekt
Energo
Oszczędny

Lancaster II

DCB104a84,33m2

Nowoczesny dom jednorodzinny, parterowy z płaskim dachem, z garażem: przestrzeń dzienna z kominkiem, duży zadaszony taras, kuchnia ze spiżarką, dwie sypialnie, łazienka, garaż z pom.gosp. z c.o.
Gotowy projekt domu Lancaster IV
Projekt
Energo
Oszczędny

- 400 zł

Lancaster IV

DCB104c102,07m2

Kompaktowy, nowoczesny dom parterowy z płaskim dachem: przeszklony pokój dzienny z zadaszonym tarasem, kuchnia ze spiżarką, trzy sypialnie, łazienka, garaż z pomieszczeniem c.o.
Gotowy projekt domu Lancaster V
Projekt
Energo
Oszczędny

- 400 zł

Lancaster V

DCB104d100,94m2

Nowoczesny dom parterowy z płaskim dachem, idealny na wąskie działki: pokój dzienny z otwartą kuchnią ze spiżarka, z zadaszonym tarasem, trzy sypialnie, dwie łazienki, garaż dwustanowiskowy z pom. c.o.

Opinie (9)

18.01.2017

Lipinscy_Domy

Tak. Szczegóły w zakładce po lewej - Zmiany w projektach.

Skomentuj

18.01.2017

Janina

Czy jest możliwe doprojektowania skośnego dachu ?

Skomentuj

16.12.2016

Lipinscy_Domy

Szacunkowo wg cenników Sekocenbud 215 tys. zł netto do stanu deweloperskiego.

Skomentuj

15.12.2016

Zuzanna

Ile kosztuje zbudowanie takiego domu?

Skomentuj

05.10.2016

Lipinscy_Domy

Zainteresowanych zapraszamy do grupy na Facebooku:
https://www.facebook.com/groups/1706659556323929/

Skomentuj

18.07.2016

Lipinscy_Domy

Mamy wersje IV i V z trzema sypialniami. Można zlikwidować garaż.
Jeśli nie spełniają one wymagań to prosimy o maila na biuro@lipinscy.pl z zapytaniem o zmiany.

Skomentuj

15.07.2016

agata rduch

witam czy jest mozliwosc zrobienia z pomieszczen 1.6 i 1.7 i 1.10 trzech pokoi

Skomentuj

25.01.2016

Lipinscy_Domy

Tak, można doprojektować łazienkę. Zmiany może wprowadzić lokalny architekt w ramach adaptacji.

Skomentuj

23.01.2016

Magda

Bardzo ciekawy projekt. Czy byłaby możliwość zmniejszenia w nim garderoby i stworzenia drugiej łazienki przy sypialni ?

Skomentuj

Opinie nie są weryfikowane pod kątem ich pochodzenia od konsumentów, którzy używali produktu lub go nabyli.

Polecane rozwiązania

Podobne projekty (6)

projekt Lancaster III należy do kategorii

Ostatnio oglądane