PROMOCJA
ULUBIONE

Projekt domu

Imperia IV 195,39m²

DCP286c

PROMOCJA
- 400 zł
od 5 do 18 listopada 2025

 

Karta projektu Podziel się:

Opis projektu

Imperia IV to przestronny energooszczędny dom piętrowy z płaskim dachem. Ciekawie rozrzeźbiona bryła domu oraz duże narożne przeszklenia nadają mu nowoczesnego charakteru i lekkości, pomimo sporej bryły. Osłonięte wejście prowadzi do dużego wiatrołapu, skąd jest również bezpośrednie przejście do dwustanowiskowego garażu. Ponad 50 metrowa przestrzeń dzienna z dużymi przeszkleniami i wyjściem na duży narożny taras oraz antresola nad jadalnią, pozwolą niebanalnie zaaranżować wnętrza. Zaciszny świetnie doświetlony gabinet na parterze można z powodzeniem przeznaczyć na pracownię. Piętro bez skosów wykorzystuje całą dostępną przestrzeń, dzięki czemu wszystkie 4 sypialnie są duże i wygodne, dodatkowo dwie z nich mają wyjście na własne tarasy. Trzy łazienki w tym dwie na piętrze zapewnią komfortowe mieszkanie nawet liczniejszej rodzinie.

Zapotrzebowanie Energetyczne

EUco = 23,34kWh/(m²rok)
EP = 64,87kWh/(m²rok)

Projekt zgodny z wt2021

Dowiedz się więcej  

Parter 134,24m2

Gotowy projekt domu Imperia IV rzut Parter

134,24m2

1.1 Wiatrołap 8,44m2
1.2 Komunikacja 8,35m2
1.3 Kuchnia 10,40m2
1.4 Pokój dzienny 32,32m2
1.5 Jadalnia 15,37m2 (18,27m2)
1.6 Pom.gosp., c.o. 2,57m2 (4,29m2)
1.7 Łazienka 4,34m2
1.8 Pokój 14,45m2
1.9 Garaż 38m2
1.10 Podest 9,62m2
1.11 Taras 58,56m2
1.1 Wiatrołap 8,44m2
1.2 Komunikacja 8,35m2
1.3 Kuchnia 10,40m2
1.4 Pokój dzienny 32,32m2
1.5 Jadalnia 15,37m2 (18,27m2)
1.6 Pom.gosp., c.o. 2,57m2 (4,29m2)
1.7 Łazienka 4,34m2
1.8 Pokój 14,45m2
1.9 Garaż 38m2
1.10 Podest 9,62m2
1.11 Taras 58,56m2

Piętro 99,15m2

Gotowy projekt domu Imperia IV rzut Piętro

99,15m2

2.1 Hall 12,59m2
2.2 Pokój 12,44m2
2.3 Pokój 14,08m2
2.4 Pokój 14,01m2
2.5 Garderoba 5,20m2
2.6 Pokój 15,69m2
2.7 Garderoba 8,13m2
2.8 Łazienka 4,12m2
2.9 Łazienka 7,21m2
2.10 Schody 5,68m2
2.11 Taras 35,62m2
2.12 Balkon 22,48m2
2.1 Hall 12,59m2
2.2 Pokój 12,44m2
2.3 Pokój 14,08m2
2.4 Pokój 14,01m2
2.5 Garderoba 5,20m2
2.6 Pokój 15,69m2
2.7 Garderoba 8,13m2
2.8 Łazienka 4,12m2
2.9 Łazienka 7,21m2
2.10 Schody 5,68m2
2.11 Taras 35,62m2
2.12 Balkon 22,48m2

Wymiary działki

Gotowy projekt domu Imperia IV wymiary działki

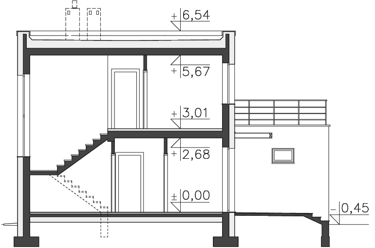
Przekrój

Gotowy projekt domu Imperia IV przekrój

Elewacje

Gotowy projekt domu Imperia IV elewacja przód Gotowy projekt domu Imperia IV elewacja lewa Gotowy projekt domu Imperia IV elewacja tył Gotowy projekt domu Imperia IV elewacja prawa

Działka

Grafika przedstawia minimalne wymiary działki. Aby sprawdzić, czy dom może być realizowany na konkretnej działce należy uzyskać Wypis i Wyrys z Miejscowego Planu Zagospodarowania Przestrzennego lub jeśli na danym terenie nie ma planu – Decyzję o warunkach zabudowy. Wszystkie projekty wymagają adaptacji do warunków miejscowych przez projektanta lokalnego.

Dowiedz się więcej  

Technologia projektu

Fundamenty - rozwiązanie o podwyższonej izolacji termicznej

Ściany zewnętrzne - Bloczek silikatowy 24 cm + styropian 20 cm

Strop - gęstożebrowy

Dach - stropodach żelbetowy

Ogrzewanie - c.o. grzejnikowe + c.w.u. - kocioł gazowy

WENTYLACJA - rekuperacja

Na etapie adaptacji projektu istnieje możliwość zamiany materiałów na inne o podobnych właściwościach i parametrach technicznych. Pamiętaj! Projekt stanowi spójną całość i zmiana rozwiązań może wpłynąć na jego właściwości wytrzymałościowe i cieplne.

Dowiedz się więcej  

Szacunkowe koszty realizacji

Stan surowy zamknięty 548 500 zł
Stan deweloperski 868 300 zł

Szacunkowa wycena netto. Biuro projektowe nie zajmuje się realizacją inwestycji.

Dowiedz się więcej  

Wyceń bezpłatnie budowę domu u wykonawcy  

Wersje projektu Imperia IV (3)

Gotowy projekt domu Imperia
Projekt
Energo
Oszczędny

- 400 zł

Imperia

DCP286195,48m2

Projekt dużego, komfortowego domu o nowoczesnej, eleganckiej bryle, z piętrem i płaskim dachem: salon z narożnikowymi przeszkleniami, kuchnia, jadalnia, gabinet, cztery sypialnie, w tym master bedroom, garaż.
Gotowy projekt domu Imperia II
Projekt
Energo
Oszczędny

- 400 zł

Imperia II

DCP286A195,23m2

Projekt dużego, komfortowego domu o nowoczesnej, eleganckiej bryle, z piętrem i dachem dwuspadowym: salon z narożnikowymi przeszkleniami, kuchnia, jadalnia, gabinet, cztery sypialnie, garaż.
Gotowy projekt domu Imperia III
Projekt
Energo
Oszczędny

- 400 zł

Imperia III

DCP286B195,23m2

Projekt dużego, komfortowego domu o nowoczesnej, eleganckiej bryle, z piętrem i dachem dwuspadowym, na wąskie działki: salon, kuchnia, jadalnia, gabinet, cztery sypialnie, w tym master bedroom,garaż.

Opinie (9)

20.09.2024

Ada

Czy mozna wykonac antresole nad salonem, zamiast dwoch pokoi?

24.09.2024

Lipińscy Domy

Jest możliwość ze zrezygnowania ze stropu nad salonem. Jeśli jest Pani zainteresowana wprowadzeniem takiej zmiany w naszym biurze prosimy o kontakt mailowy na biuro@lipinscy.pl

Skomentuj

06.07.2018

Lipińscy Domy

W Imperii II jest właśnie ta technologia.

Skomentuj

06.07.2018

joanna

Tylko w takiej technologii? nie ma możliwości zrobienia dachu jak w imperia II? czy to jednno nie wyklucza drugiego? interesuje mnie pokrycie dachu takie jak jest w imperii II

Skomentuj

06.07.2018

Lipińscy Domy

Można powiększyć garaż w Imperia II lub doprojektować tu dach np. w technologii www.mitek.pl

Skomentuj

05.07.2018

joanna

chciałabym się dowiedzieć czy ten projekt mozna wybudowac ze spadzistym dachem i dwustanowiskowym garazem??

Skomentuj

08.01.2018

Lipinscy_Domy

Mamy wersję z dachem spadzistym, z jednostanowiskowym garażem - Imperia 2.
Można wprowadzić zmiany u nas lub u architekta adaptującego - szczegóły w zakładce "Zmiany w projektach" w kolumnie po lewej stronie.

Skomentuj

06.01.2018

Żaneta

Piękny projekt. Czy jest możliwość zmiany dachu z płaskiego na 30 st i dodanie podpiwniczenia?

Skomentuj

14.07.2017

Michal

Czy jest tu osoba, ktora buduje ten dom? Chcialbym sie skontaktowac bezposrednio.

Skomentuj

Opinie nie są weryfikowane pod kątem ich pochodzenia od konsumentów, którzy używali produktu lub go nabyli.

Polecane rozwiązania

Podobne projekty (6)

projekt Imperia IV należy do kategorii

Ostatnio oglądane