Cena projektu
6 670 zł z VAT
| Powierzchnia użytkowa | 213,08m2 |
| Garaż | + 29,88m2 |
| Kotłownia | + 7,60m2 |
| Powierzchnia netto | 252,66m2 |
| Powierzchnia zabudowy | 163,18m2 |
| Min. szerokość działki | 22,20m x 23,20m |
| Kubatura | 1 147,06m2 |
| Wysokość kalenicy | 8,67m |
| Kąt nachylenia dachu | 20° |
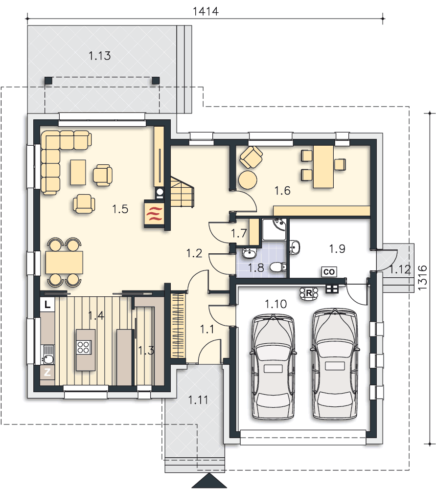
Przestronna podmiejska rezydencja, doskonała dla dużej rodziny ceniącej wygodę. Energooszczędny standard domu gwarantuje zarówno ekonomiczną eksploatację, jak i komfort mieszkania. Parter przeznaczono na duży salon z wyjściem na taras, kuchnię, w której zmieści się wyspa, spiżarnię, dodatkowy pokój i łazienkę. Na piętrze znajdują się cztery sypialnie, dwie mają garderoby, a jedna zarówno garderobę jak i osobną łazienkę. W bryłę domu wkomponowano dwustanowiskowy garaż, do którego można wejść z domu, a za nim zlokalizowano kotłownię z wyjściem na zewnątrz.
| EUco = 29,98kWh/(m²rok) |
| EP = 69,90kWh/(m²rok) |
Projekt zgodny z wt2021
| 1.1 | Wiatrołap | 5,99m2 |
| 1.2 | Komunikacja | 11,63m2 (13,73m2) |
| 1.3 | Spiżarnia | 4,18m2 |
| 1.4 | Kuchnia | 12,88m2 |
| 1.5 | Salon, jadalnia | 32,40m2 |
| 1.6 | Gabinet | 14,89m2 |
| 1.7 | Pom.gosp. | 0,98m2 |
| 1.8 | Łazienka | 3,56m2 |
| 1.9 | Kotłownia | 7,60m2 |
| 1.10 | Garaż | 29,88m2 |
| 1.11 | Podest | 7,45m2 |
| 1.12 | Podest | 1,68m2 |
| 1.13 | Taras | 20,70m2 |
| 1.1 | Wiatrołap | 5,99m2 |
| 1.2 | Komunikacja | 11,63m2 (13,73m2) |
| 1.3 | Spiżarnia | 4,18m2 |
| 1.4 | Kuchnia | 12,88m2 |
| 1.5 | Salon, jadalnia | 32,40m2 |
| 1.6 | Gabinet | 14,89m2 |
| 1.7 | Pom.gosp. | 0,98m2 |
| 1.8 | Łazienka | 3,56m2 |
| 1.9 | Kotłownia | 7,60m2 |
| 1.10 | Garaż | 29,88m2 |
| 1.11 | Podest | 7,45m2 |
| 1.12 | Podest | 1,68m2 |
| 1.13 | Taras | 20,70m2 |
| 2.1 | Komunikacja | 15,10m2 |
| 2.2 | Pokój | 15,91m2 |
| 2.3 | Łazienka | 7,87m2 |
| 2.4 | Pralnia | 3,40m2 |
| 2.5 | Łazienka | 3,18m2 |
| 2.6 | Garderoba | 5,89m2 |
| 2.7 | Pokój | 21,08m2 |
| 2.8 | Pokój | 20,31m2 |
| 2.9 | Garderoba | 4,58m2 |
| 2.10 | Garderoba | 4,58m2 |
| 2.11 | Pokój | 20,09m2 |
| 2.12 | Schody | 4,58m2 |
| 2.13 | Balkon | 6,38m2 |
| 2.1 | Komunikacja | 15,10m2 |
| 2.2 | Pokój | 15,91m2 |
| 2.3 | Łazienka | 7,87m2 |
| 2.4 | Pralnia | 3,40m2 |
| 2.5 | Łazienka | 3,18m2 |
| 2.6 | Garderoba | 5,89m2 |
| 2.7 | Pokój | 21,08m2 |
| 2.8 | Pokój | 20,31m2 |
| 2.9 | Garderoba | 4,58m2 |
| 2.10 | Garderoba | 4,58m2 |
| 2.11 | Pokój | 20,09m2 |
| 2.12 | Schody | 4,58m2 |
| 2.13 | Balkon | 6,38m2 |
Grafika przedstawia minimalne wymiary działki. Aby sprawdzić, czy dom może być realizowany na konkretnej działce należy uzyskać Wypis i Wyrys z Miejscowego Planu Zagospodarowania Przestrzennego lub jeśli na danym terenie nie ma planu – Decyzję o warunkach zabudowy. Wszystkie projekty wymagają adaptacji do warunków miejscowych przez projektanta lokalnego.
Fundamenty - rozwiązanie o podwyższonej izolacji termicznej
Ściany zewnętrzne - Bloczek silikatowy 24 cm + styropian 20 cm
Strop - gęstożebrowy
Ogrzewanie - c.o. grzejnikowe + c.w.u. - kocioł gazowy (alternatywa paliwo stałe)
WENTYLACJA - rekuperacja
Na etapie adaptacji projektu istnieje możliwość zamiany materiałów na inne o podobnych właściwościach i parametrach technicznych. Pamiętaj! Projekt stanowi spójną całość i zmiana rozwiązań może wpłynąć na jego właściwości wytrzymałościowe i cieplne.
| Stan surowy zamknięty | 588 900 zł |
| Stan deweloperski | 932 100 zł |
Szacunkowa wycena netto. Biuro projektowe nie zajmuje się realizacją inwestycji.
Siena
DCP213a174,51m2
Cena projektu:4270 zł
Brisbane
DCP262248,45m2
Cena projektu:7770 zł
Melbourne
DCP266171,64m2
Cena projektu:5970 zł
Locarno
DCP271235,15m2
Cena projektu:5370 zł
Auckland
DCP292198,09m2
Cena projektu:7870 zł
Carrara III
DCP332b191,16m2
Cena projektu:6270 zł
Opinie (17)
14.10.2015
Lipinscy_Domy
Można wprowadzić opisane zmiany u nas w biurze lub u lokalnego architekta w ramach adaptacji.
Skomentuj13.10.2015
Przemek
Czy mozliwa jest zmiana nachylenia dachu? Zgdonie z MPZP minimum to 35%.
SkomentujCzy mozliwe jest dorobienie piwnicy?
13.01.2014
Maja
Witam,jeżeli pokój jest nad garażem ,to czy garaż powinien być ogrzewany?
Skomentuj26.11.2013
Lipinscy_Domy
Według naszych obliczeń uwzględniających różnicę pomiędzy naszymi projektami domów standardowych i energooszczędnych, można zaoszczędzić co najwyżej około 5% kosztów. Koszt budowy można obniżyć wykonując samodzielnie większość prac i mocno negocjując w hurtowniach ceny materiałów budowlanych. Ten dom ma ponad 250 mkw powierzchni (!) stąd też taki, a nie inny koszt realizacji.
Skomentuj24.11.2013
Agata Marchel
Ogolnie projekt mi sie podoba ale czy mozna zmniejszyc koszty budowy uzywajac techniki standardowej zamiast energooszczednej. Czemu koszty do stanu deweloperskiego sa takie wysokie? Jak mozna obnizyc koszty budowy?
Skomentuj26.07.2013
Lipinscy_Domy
Tak, dom można podpiwniczyć i taką zmianę może wprowadzić lokalny architekt w ramach adaptacji. Współczynniki zapotrzebowania na energię w przeliczeniu na 1m2 nie powinny się zbytnio zmienik. Trudno to jednak określić dokładnie, bez przeliczenia.
Skomentuj22.07.2013
Wojtek Milczarek
Szanowni Państwo
SkomentujCzy istnieje możliwość podpiwniczenia domu? Jaki będzie to miało wpływ (oczywiście orientacyjnie) na energooszczędność?
Z góry dziękuje za odpowiedź.
22.05.2012
begom
projekt bardzo ciekawy i od razu przypadł mi do gustu.
Skomentujosobiście chętnie bym sobie taki dom kiedyś postawił.
jedyne co bym zmienił to zrezygnowałbym z pralki na piętrze przenosząc ją do kotłowni. z łazienki na piętrze puściłbym w dół "zsyp" (np. wykonany w zabudowie) na brudną bieliznę do "kotłowni".
Tu od razu na okres zimowy wykonałbym linki do suszenia ubrań.
Z jednym warunkiem - jako źródło ciepła pompa ciepła - czyli bez brudu i smrodu i przede wszystkim bezpiecznie.
uważam ze takie rozwiązanie byłoby praktyczniejsze - czysta łazienka na górze, pralka na dole więc i z ubraniami przez cały dom nie szłoby się na dwór.
a! i jeszcze bym drzwi do "kotłowni" przeniósł na drugą stronę komina (tego akurat przy pompie ciepła by się nie budowało) by w tamtym rogu garażu zamontować jednostkę centralnego odkurzania. A sam garaż dobrze by było nieco wydłużyć.
ktoś wcześniej napisał że problemem jest mały taras. fakt można by było go ciutkę poszerzyć ale też od czego są altanki ogrodowe.
14.11.2011
DorciaIQ
Cytat:
Skomentuj5) GARAŻ (mankament nr 2) - zauważcie, że garaż znajduje się nie na poziomie gruntu, a na poziomie parteru, przez co ułożenie podjazdu w stosunku do schodów prowadzących do drzwi wejściowych będzie nie lada zagwostką, która wprawi nas w zdumienie dopiero po wybudowaniu domu. No bo kto myśli o brukowaniu podjazdu w chwili wybierania projektu domu? Ja :) Garaż powinien znajdować się na poziomie gruntu, a z garażu na poziom parteru powinien prowadzić schodek lub dwa, jak zwykło się to planować :)
Nie rozumiem zupełnie tego problemu i jest szereg rozwiązań, które sobie wyobrażam. Garaż jak widzimy jest maleńki, więc wrzucanie tam jeszcze schodków byłoby bez sensu. Podoba mi się ten pomysł z garażem na poziomie parteru właśnie.
Mnie w tym projekcie dziwi tylko to, że nie ma ani jednej łazienki z oknem. Są za to okna w garderobach i spiżarni! Ale to można poprzestawiać. No i balkon oczywiście do kosza: to taki blokowy nawyk, a potem się okazuje, że po walce z prawidłową izolacją i tak się na balkon nie wychodzi, bo jest taras i ogród.
19.10.2011
Shaco
Hm, do listy zażaleń pozwolę sobie jeszcze dodać pkt. 7) WYSOKOŚĆ OKIEN NA PARTERZE - po co okno balkonowe w kuchni od strony ulicy? Rozumiem, że jak ktoś ma 80 ha i dom stoi po środku posesji, to mu to wisi, ale zakładam, że zdecydowana większość osób ma działki od 600 do 3000 m2. Architekci mają wizję, ale dobrze jest, żeby ktoś architektów sprowadzał na ziemię :) Pół żartem, pół serio :)
Skomentuj19.10.2011
Shaco
Pośród gąszczu badziewnych, a czasami wręcz bezmyślnych projektów, nad tym można się zastanowić. Jest to jeden z dwóch projektów, jakie z żoną bierzemy pod uwagę. Niestety im dłużej mu się przyglądam, tym więcej znajduję mankamentów. Niektóre już forumowicze skomentowali. Dla mnie największy problem stanowią:
Skomentuj1) ŚCIANY Z WYSTĘPAMI - tą z tyłu jeszcze można przeboleć, ale z przodu nie bardzo. Z doświadczenia wiem, że wejście do domu jak i do garażu powinno być zadaszone. Tutaj aż prosi się, aby pociągnąć jeden dach od drzwi wejściowych przez całą szerokość drzwi garażowych. Pergola to jakaś niedorzeczność. Otwieraliście kiedyś drzwi w deszczu?
2) DRZWI DO ŁAZIENKI NA DOLE - wychodzą idealnie na jadalnię. Wyobrażacie sobie, że siedzicie z gośćmi przy obiedzie, a zza drzwi wydobywa się eeee....?
3) BRAK PODCIENIA - jest co prawda balkon, ale nie dość duży, aby można było pod nim postawić stolik dla 4 osób nie martwiąc się, że w słoneczne dni siedzimy na patelni, a w mniej pogodne zacina nam deszcz.
4) GARAŻ (mankament nr 1) - strasznie krótki. Od pionu wentylacyjnego do drzwi jest 5,50 m. Nissan Maxima ma długość 5,10 m. Spróbujcie sobie wjechać na stanowisko po prawej stronie, a potem otworzyć drzwi do pomieszczenia gospodarczego. Powodzenia.
5) GARAŻ (mankament nr 2) - zauważcie, że garaż znajduje się nie na poziomie gruntu, a na poziomie parteru, przez co ułożenie podjazdu w stosunku do schodów prowadzących do drzwi wejściowych będzie nie lada zagwostką, która wprawi nas w zdumienie dopiero po wybudowaniu domu. No bo kto myśli o brukowaniu podjazdu w chwili wybierania projektu domu? Ja :) Garaż powinien znajdować się na poziomie gruntu, a z garażu na poziom parteru powinien prowadzić schodek lub dwa, jak zwykło się to planować :)
6) KĄT NACHYLENIA DACHU - sorry min. 25 stopni, żeby można było położyć dachówkę. Normalną, a nie jakąś specjalną na płaskie dachy.
Gdyby te problemy dało się rozwiązać, to ja chętnie się na ten projekt zdecyduję, bo posiada ogromnie dużo rozwiązań, na których mi zależy i które w tym projekcie znalazłem, co nie jest proste, a przejrzałem setki (słownie: setki) projektów.
1. Wspólny wiatrołap dla drzwi wejściowych i garażu, co by nie biegać w kółko przez przedpokój.
2. Duża sensowna spiżarka, co by można zakupy zrzucić i się nie martwić.
3. Duże pomieszczenie gospodarcze z wyjściem z boku (tyłu) domu, co by ze szlauchem dookoła domu nie ganiać.
4. Kominek w środku domu, a nie na ścianie zewnętrznej, co by zimną dogrzewać dom, a nie ogród.
5. Proste schodu, co by móc wersalkę na górę wnieść, a nie przez okno wciągać.
6. Pralnia, co by pralka łazienki nie szpeciła (trochę bym ją zmienił ;D)
7. Garderoba, co by szaf nie trzeba było w pokoju stawiać.
I pewnie parę innych, o których zapomniałem.
Czekam na Wasze opinie, będę odwiedzał tą stronę co jakiś czas (do stycznia, bo muszę projekt wybrać :D)
08.09.2011
sylvia
Zakochałam się w tym projekcie! Zastanawiam się tylko, czy jest opcja, żeby ten balkon, był trochę większy?
Skomentuj07.09.2011
ringostar
Świetny projekt, garaż faktycznie mógłby być dla mnie trochę większy, ale jestem w stanie to przeboleć. Bardzo mi się podoba.
Skomentuj22.07.2011
rodzina tarańskich
Canberra DCP 256 nam bardzo podoba.mogliśmy by go wybudować jeśli będą w projekcie zmiany:
Skomentuj1)dodajemy promocję:dom energoszczędny w cenie standardowego.
2)powiększamy garaż do 34,6 m2.
3)zwiększamy kąt nachylenia dachu do 30,by urządzić strych.
19.07.2011
michałek tarański
dom mi się podoba.mogę go wybudować?
Skomentuj08.07.2011
common sense
Wreszcie ktos zaczyna robic z glowa projekty.
SkomentujPozytywne jest ze: GARAZ JEST W BRYLE BUDYNKU + DACH MA KALENICE .
Zmiany: 1)SCIANY ZEWNETRZNE POWINNY BYC PROSTE bez wystepow bo latwiej sie buduje + nie dach nie ma niepotrzebnych zalaman/daszkow/daszeczko+ nie traci sie przestrzeni w srodku.
2) SCHODY PRZY WIATROLAPIE w ten sposob latwo mozna oddzielic gore od dolu (cieplej w zimie + mozliwosc oddzielnego mieszkania dla 2 pokoleniowej rodzinny),
3) WYMIARY GARAZU powinny byc co najmniej 6m dlugosc garazu (nie ma wtedy problemu z wiekszym samochodem ze sie nie zmiesci w garazu).
4) wymiary gabinetu na dole powinny byc co najmniej 3.5m szerokosci -- zeby mozna bylo zrobic sypialnie na dole np dla starszych ludzi to jest wygodnie miec sypialnie na dole.
04.07.2011
Dorothy79
Nasza 2-pokoleniowa rodzinka zmieści się tutaj idealnie :) Jesteśmy wielbicielami energooszczędnych rozwiązań, więc ten projekt spadł nam z nieba :)
SkomentujOpinie nie są weryfikowane pod kątem ich pochodzenia od konsumentów, którzy używali produktu lub go nabyli.