PROMOCJA
ULUBIONE

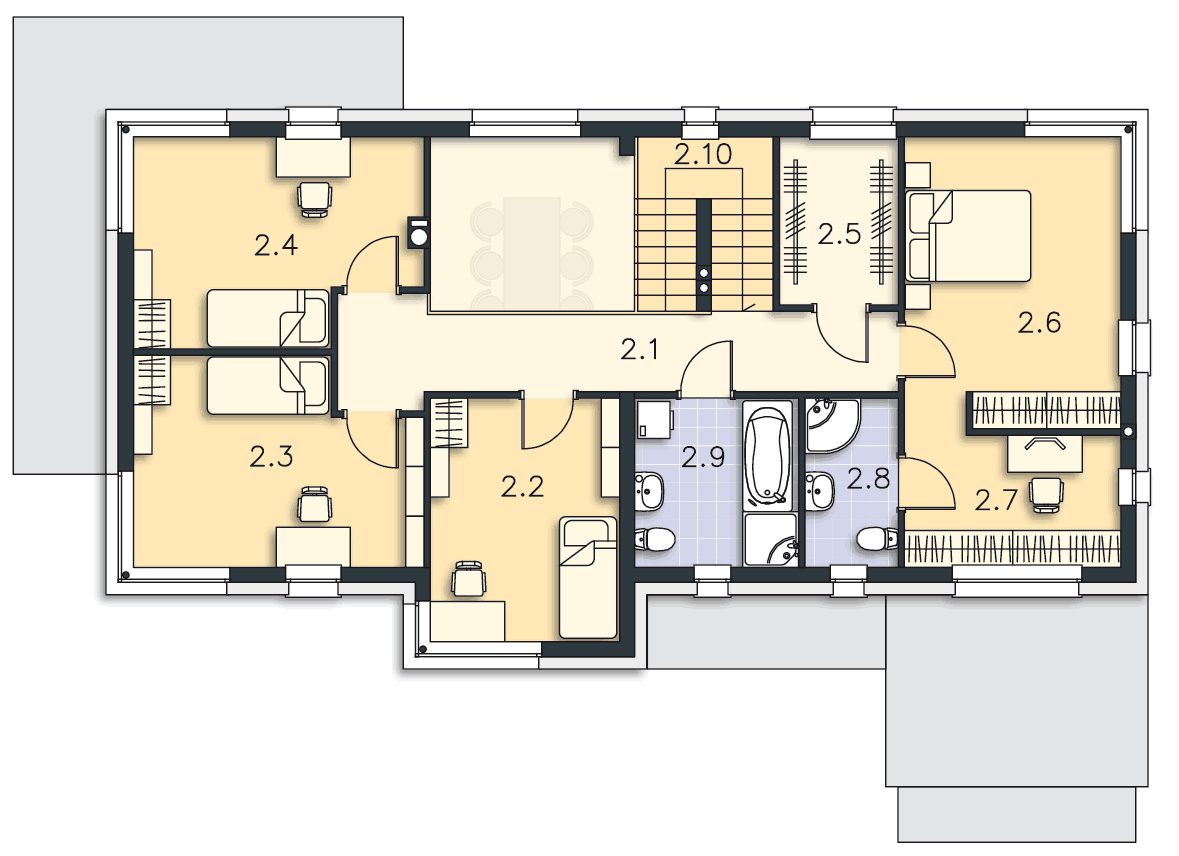
Wersje projektu Imperia IV

Ostatnio oglądana wersja

Imperia IV

DCP286c195.39m2

Powierzchnia parter 134.24 m2

Powierzchnia piętro 99.15 m2

+38m² garaż
14.07.2017
Michal

Czy jest tu osoba, ktora buduje ten dom? Chcialbym sie skontaktowac bezposrednio.

06.01.2018
Żaneta

Piękny projekt. Czy jest możliwość zmiany dachu z płaskiego na 30 st i dodanie podpiwniczenia?

08.01.2018
Lipinscy_Domy

Mamy wersję z dachem spadzistym, z jednostanowiskowym garażem - Imperia 2.
Można wprowadzić zmiany u nas lub u architekta adaptującego - szczegóły w zakładce "Zmiany w projektach" w kolumnie po lewej stronie.

05.07.2018
joanna

chciałabym się dowiedzieć czy ten projekt mozna wybudowac ze spadzistym dachem i dwustanowiskowym garazem??

06.07.2018
Lipińscy Domy

Można powiększyć garaż w Imperia II lub doprojektować tu dach np. w technologii www.mitek.pl

06.07.2018
joanna

Tylko w takiej technologii? nie ma możliwości zrobienia dachu jak w imperia II? czy to jednno nie wyklucza drugiego? interesuje mnie pokrycie dachu takie jak jest w imperii II

06.07.2018
Lipińscy Domy

W Imperii II jest właśnie ta technologia.

20.09.2024
Ada

Czy mozna wykonac antresole nad salonem, zamiast dwoch pokoi?

Pow. zabudowy 173.29m2
Powierzchnia netto 238.01m2
Kąt nachylenia dachu 0.2 °
Min. szerokość działki 29.6m x 21.3m
Wys. kalenicy 6.99m
Cena projektu: 6170 zł


Pozostałe wersje

Imperia

DCP286195.48m2

Powierzchnia parter 114.48 m2

Powierzchnia piętro 99.7 m2

+18.7m² garaż
07.05.2012
Katerina

Uwielbiam nowoczesne projekty, ten też robi wrażenie, ale bym zrobiła trochę zmian na piętrze: np. zamiast garderoby w pomieszczeniu 2.5 zrobiłabym łazienkę dla dużej sypialni i połączyła pomieszczenia 2.8 i 2.9 w jeden duży salon kąpielowy. Czy to możliwe?

25.05.2012
Ewa Janek

A ja bym chciała w takim dużym domu mieć większą kuchnię. Poza tym naprawdę strasznie mi się podoba i to jest mój kandydat :)

31.05.2012
Tadeusz

Szerokość mojej działki to 24 m - czy mimo wszystko udałoby się przerobić ten projekt tak, abym mógł go zrealizować? Albo jakiś podobny projekt na moją działkę, bo strasznie podobają mi się domy w takim stylu.

01.06.2012
Lipinscy_Domy

Oczywiście - takie zmiany są możliwe. Można też zrobić łazienkę w 2.7 przylegającą do sypialni i wejście do garderoby 2.5 z sypialni. Wszelkie zmiany na projekt może wprowadzić każdy architekt w ramach adaptacji.

01.06.2012
Lipinscy_Domy

Trochę trudno będzie uzyskać brakujące 90 cm, z uwagi na narożne okna. Może lepszą wersją okaże się niemal identyczny projekt Aarhus na wąskie działki? http://lipinscy.pl/Aarhus/

02.07.2012
Majjka

Witam, czy można dokonywać wiekszych zmian w projektach? Chodzi mi dokładnie o pokój 14,01 m2 - czy można go powiększyć o 2, 3 m2 ?

15.07.2013
Maciej

Witam, szukam domu w tym stylu ale parterowego, czy mozna go przerobic odejmujac pietro

17.07.2013
Lipinscy_Domy

Ten pokój można powiększyć kosztem pustki nad jadalnią. Zmiany zwykle są możliwe, możemy zawsze doradzić, czy będą opłacalne.

17.07.2013
Lipinscy_Domy

Taką wersję możemy przygotować na zamówienie. Prosimy o kontakt mailowy w tej sprawie.

18.08.2013
WITOM

Witam czy można zmienić projekt żeby był wbudowany garaż 2 stanowiskowy i co ważne jakich argumentów użyć żeby architekt gminny zmienił warunki zabudowy i wyraził zgodę na płaski dach

19.08.2013
Lipinscy_Domy

Garaż można poszerzyć, aczkolwiek będzie się to wiązało z bardziej skomplikowaną konstrukcją stropu.
Warunki zabudowy jest prościej zmienić, niż Miejscowy Plan Zagospodarowania Przestrzennego. Można nawiązać się do istniejącej zabudowy (jeśli w okolicy są "kostki gierkowskie"). Najlepiej porozmawiać z lokalnym architektem, który jest dość biegły w przepisach i dość energiczny, który mógłby przeprowadzić taką zmianę :-)

30.08.2013
Sydneyczyk

Z ciekawosci ogladam projekty domow "nowoczesnych", ktore zachwycaja Rodakow w Polsce. Gusta Australijczykow sa troche inne moge okreslic "bardziej nowoczesne" PP.Lipinskim moge podeslac troche fotek z placu budowy gdzie pieniadz nie gra roli a dzialki tez nie sa duze w granicy 600-700m2, z ich zewnetrznym wygladem jesli sobie zazycza. Moj adres texpert@dodo.com.au

30.08.2013
Lipinscy_Domy

Zawsze z przyjemnością oglądamy piękne realizacje architektury światowej, również na żywo i wiele z tego czerpiemy przykładów. Natomiast nie zawsze można zastosować takie rozwiązania w polskich warunkach (w tym tez niestety Warunkach Zabudowy), a zwłaszcza finansowych. Projekty gotowe są opracowywane z myślą o inwestorach, którzy liczą się dość mocno z tym aspektem i są dedykowane na różne, uniwersalne działki. Natomiast zawsze jesteśmy gotowi i pełni pomysłów na indywidualne projekty, w których można takie rozwiązania niestandardowe zastosować. Ograniczenia w powierzchni, kształt działki, nachylenie, sąsiedztwo i kierunki świata zwykle wyzwala w architektach najciekawsze rozwiązania. Będziemy oczywiście wdzięczni za przesłanie ciekawych przykładów z Antypodów :-) Pozdrawiamy :-)

19.10.2013
Tomasz

Mam pytanie co do współczynnika A/V czy mieści się on w wytycznych technologii NF40 czyli jest mniejszy niż 0,7?
Pozdrawiam :)

21.10.2013
Lipinscy_Domy

Wytyczne programu dopłat NFOŚiGW, zalecają taki współczynnik, ale nie jest on obowiązujący.

Pow. zabudowy 150.23m2
Powierzchnia netto 218.8m2
Kąt nachylenia dachu 1.2 °
Min. szerokość działki 24.9m x 20.5m
Wys. kalenicy 7.25m
Cena projektu: 6170 zł

Imperia II

DCP286A195.23m2

Powierzchnia parter 114.48 m2

Powierzchnia piętro 99.45 m2

+18.7m² garaż
08.05.2012
Katarzyna Piotrowska

Przy tak dużym metrażu chciałabym zrealizować marzenie o dużej kuchni. Czy np. byłaby możliwość zmiany projektu w ten sposób, aby kącik jadalny znalazł się na miejscu obecnej kuchni a kuchnie umieścić w lewym rogu, tam gdzie zaplanowany jest kącik wypoczynkowy. Wyobrażam sobie kuchnię otwartą na salon, nowoczesną, w stylu minimalistycznym :) Chyba wtedy trzeba by usunąć ściankę z kominkiem, żeby salon był wystarczająco przestrzenny. Poza tym jestem zauroczona tym projektem :)

11.05.2012
Henryk

Wydaje mi się, że to byłby świetny dom dla wielopokoleniowej rodziny, dużo przestrzeni, pomieszczeń, logicznie rozmieszczenie.

17.05.2012
Lipinscy_Domy

Można wprowadzić taką zmianę, polegającą na zamianie miejscami kuchni i kącika wypoczynkowego, ale ściany z kominkiem niestety usunąć nie można.

22.11.2013
zachwycony

Piękny, przestronny. Dla mnie ideał :) Na górze prywatna enklawa dorosłych. Ahhh! Pięknie :)

25.02.2015
grzegorz

Niestety instalacje w tym domu nie są przemyślane najlepiej, ponieważ przebiegi są zbyt odległe od siebie. Lepiej chyba było by je żeby pomieszczenia w instalacjami był skupione obok siebie i jedne nad drugimi a tutaj rozpierzchły się po całym domu. Pojawiło się też kilka pomieszczeń, które nie wydają się być potrzebne tzw. wypełniacze na które architekt nie miał pomysłu. Ogólnie projekt byłby ciekawy dla mojej 2+3 rodziny ale sporo w nim elementów bardzo podrażających koszty budowy i eksploatacji.

25.03.2015
Lipinscy_Domy

Odległości nie są tak duże, żeby znacząco wpływały na koszt realizacji. Można wprowadzić zmiany do projektu.

29.12.2017
Artur

Witam, czy ktoś już zbudował dom bazując na tym projekcie, bardzo mnie zainteresował ale jestem ciekaw jak wygląda w rzeczywistości. Osoby, które zbudowały lub budują taki dom bardzo bym prosił o kontakt; artur.mitrowski@gmail.com
Dziekuje

14.01.2018
ANETA

WITAM CZY MOZNA ZBUDOWAĆ TEN DOM METODA PREFABRYKOWANA?

15.01.2018
Lipinscy_Domy

Można realizować dom np. w technologii szkieletowej drewnianej.
Wycenę można uzyskać w ofertach dodatkowych po lewej stronie.

24.03.2018
Joanna

Jestem zainteresowana budowa tego domu. Czy ktoś może budował go w okolicach Warszawy? Jakieś wskazówki dotyczące budowy?

Pow. zabudowy 150.23m2
Powierzchnia netto 218.55m2
Kąt nachylenia dachu 30 °
Min. szerokość działki 24.9m x 20.5m
Wys. kalenicy 8.87m
Cena projektu: 6070 zł

Imperia III

DCP286B195.23m2

Powierzchnia parter 114.39 m2

Powierzchnia piętro 99.45 m2

+18.61m² garaż
17.08.2015
Mariusz Malczuk

Z domami na wąskich działkach zawsze jest problem. Przeważnie nie wyglądają one zbyt ciekawie. Ten jednak jest inny. Ponadto podoba mi się bardzo układ funkcjonalny.

29.08.2015
Julia Jońska

Ładny i przestronny dom. Moją uwagę zwróciły jeszcze koszty ogrzewania. Są bardzo niskie. Czy na pewno nie ma tam błędu?

31.08.2015
Lipinscy_Domy

Nie ma błędu. ;-)

08.09.2015
efka

Czy jest możliwość budowy tego domu na działce o szerokości 18m?

09.09.2015
Lipinscy_Domy

Tak. Wystarczy zmiejszyć taras.

17.02.2016
Natea

Po pierwsze muszę to napisać :) dom jest przepiękny. Obserwuję go już od 2 miesięcy i nie znalazłam innego, który by aż tak odpowiadał mojemu marzeniu :)
Chciałabym dowiedzieć się czy jest możliwość usunięcia garażu i wyrównania, bądź powiększenia wiatrołapu.
Kolejną sprawą jest podpiwniczenie, czy jest możliwe ?
Co z pomieszczeniem na przeciwko 2.2 (jest użytkowe?)

17.02.2016
Lipinscy_Domy

Cieszymy się ogromnie, że dom się tak podoba. ;-)

Można zlikwidować garaż i powiększyć wiatrołap.
Można podpiwniczyć dom.
Na przeciwko 2.2 jest pustka nad jadalnią - nie ma stropu.

Szczegóły zmian: biuro@lipinscy.pl

20.03.2018
Yoanna

Jestem zainteresowana tym projektem. Jednak działka ma długości 26,93m czy jest możliwości dopasowania projektu do tęgi wymiaru działki?

20.03.2018
Zainteresowany

Chciałbym wiedzieć czy jest możliwość przeniesienia pieca gazowego do wygospodarowanej powierzchni z wiatrołapu. A w miejscu pomieszczenia gospodarczego - 1.6 zrobienie łazienki. ?? I czy można powiększyć okna w pomieszczeniu 2.7? + przesunięcie ścianki działowej z pokojem 2.6?

21.03.2018
Lipińscy Domy

Wszystkie zmiany może wprowadzić lokalny architekt - wydamy bezpłatną zgodę.

21.03.2018
Lipińscy Domy

Mamy wersję z obróconym garażem - Imperia II.

30.04.2024
Justyna

Mój wymarzony projekt. Czy da się go tak dostsosowac, żeby kąt dachu wynosił 35 stopni, a wysokośc budynku nie przekraczała 9m? Dziękuję i pozdrawiam.

19.05.2025
Damian

Czy macie może Państwo wersję ze stropem żelbetowym zamiast gęstożebrowego? Jaki typ gęstożebrowego został przewidziany?

Pow. zabudowy 150.23m2
Powierzchnia netto 218.46m2
Kąt nachylenia dachu 30 °
Min. szerokość działki 18.6m x 28.7m
Wys. kalenicy 8.87m
Cena projektu: 6070 zł