PROMOCJA
ULUBIONE

Projekt domu

Glasgow 88,44m²

LMP18

 

Karta projektu Podziel się:

Opis projektu

Jest to niewielki piętrowy domek o prostej konstrukcji, tani w budowie. Na parterze znajduje się wiatrołap, wc, pokój dzienny, kuchnia. Na poddaszu są 3 sypialnie i łazienka. Do domu dostawiona jest wiata garażowa. Wiatę można we własnym zakresie obudować i uzyskać garaż z zapleczem gospodarczym. Dach został skonstruowany z prostych wiązarów drewnianych, które można wykonać na miejscu budowy. Dom nie posiada masywnego stropodachu co ułatwia i przyspiesza wykonanie. Architektura jest prosta ale nie pozbawiona uroku. Dom dobrze prezentuje się w realizacjach. Jest to bardzo rozsądna oferta dla tych, którzy wolą własny domek z ogródkiem od mieszkania w bloku.

Zapotrzebowanie Energetyczne

EUco = 48,37kWh/(m²rok)
EP = 89,55kWh/(m²rok)

Projekt zgodny z wt2021

Dowiedz się więcej  

Parter 43,55m2

Gotowy projekt domu Glasgow rzut Parter

43,55m2

1.1 Wiatrołap 4,75m2
1.2 Łazienka, c.o. 3,05m2
1.3 Komunikacja 1,95m2
1.4 Kuchnia 9,82m2
1.5 Pokój dzienny 23,98m2 (26,08m2)
1.6 Podest 4,42m2
1.7 Podest 4,42m2
1.8 Wiata garażowa 22,76m2
1.1 Wiatrołap 4,75m2
1.2 Łazienka, c.o. 3,05m2
1.3 Komunikacja 1,95m2
1.4 Kuchnia 9,82m2
1.5 Pokój dzienny 23,98m2 (26,08m2)
1.6 Podest 4,42m2
1.7 Podest 4,42m2
1.8 Wiata garażowa 22,76m2

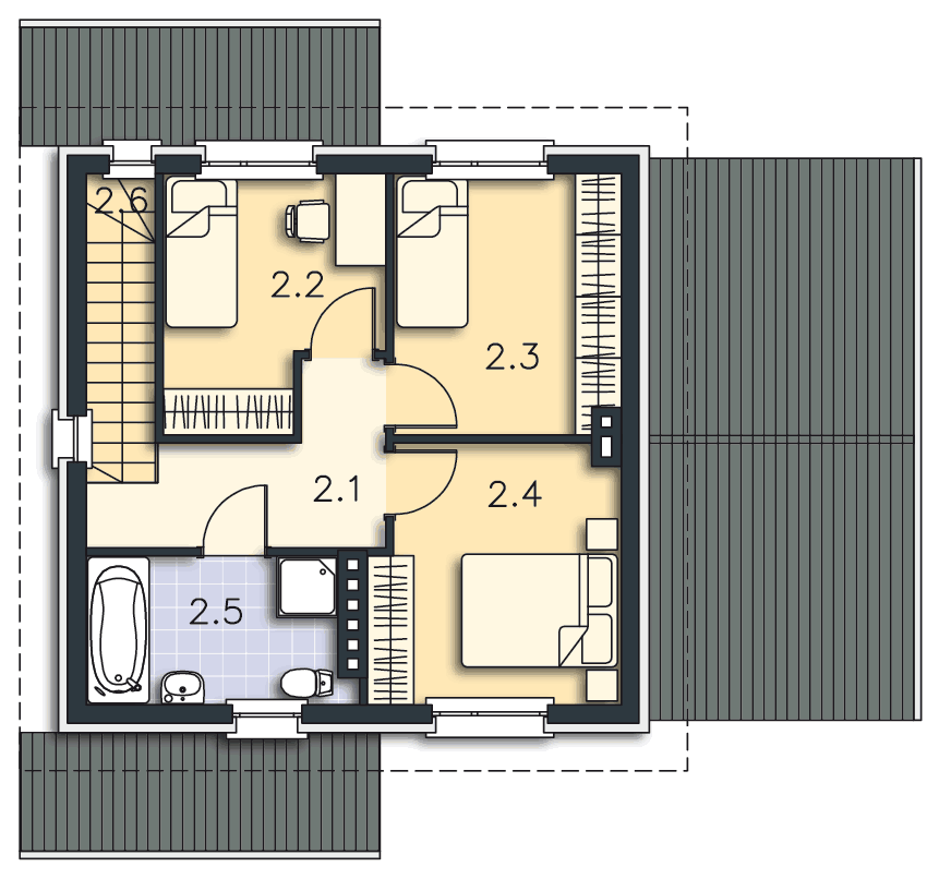
Piętro 44,89m2

Gotowy projekt domu Glasgow rzut Piętro

44,89m2

2.1 Komunikacja 6,05m2
2.2 Pokój 8,52m2
2.3 Pokój 9,92m2
2.4 Pokój 10,53m2
2.5 Łazienka 6,30m2
2.6 Schody 3,57m2
2.1 Komunikacja 6,05m2
2.2 Pokój 8,52m2
2.3 Pokój 9,92m2
2.4 Pokój 10,53m2
2.5 Łazienka 6,30m2
2.6 Schody 3,57m2

Wymiary działki

Gotowy projekt domu Glasgow wymiary działki

Przekrój

Gotowy projekt domu Glasgow przekrój

Elewacje

Gotowy projekt domu Glasgow elewacja przód Gotowy projekt domu Glasgow elewacja lewa Gotowy projekt domu Glasgow elewacja tył Gotowy projekt domu Glasgow elewacja prawa

Działka

Grafika przedstawia minimalne wymiary działki. Aby sprawdzić, czy dom może być realizowany na konkretnej działce należy uzyskać Wypis i Wyrys z Miejscowego Planu Zagospodarowania Przestrzennego lub jeśli na danym terenie nie ma planu – Decyzję o warunkach zabudowy. Wszystkie projekty wymagają adaptacji do warunków miejscowych przez projektanta lokalnego.

Dowiedz się więcej  

Technologia projektu

Fundamenty - rozwiązanie o podwyższonej izolacji termicznej

Ściany zewnętrzne - Bloczek betonu komórkowego 24 cm + styropian 10 cm

Strop - gęstożebrowy

Dach - tradycyjna więźba ciesielska

Ogrzewanie - c.o. grzejnikowe + c.w.u. - kocioł gazowy

WENTYLACJA - grawitacyjna

Na etapie adaptacji projektu istnieje możliwość zamiany materiałów na inne o podobnych właściwościach i parametrach technicznych. Pamiętaj! Projekt stanowi spójną całość i zmiana rozwiązań może wpłynąć na jego właściwości wytrzymałościowe i cieplne.

Dowiedz się więcej  

Szacunkowe koszty realizacji

Stan surowy zamknięty 192 500 zł
Stan deweloperski 340 200 zł

Szacunkowa wycena netto. Biuro projektowe nie zajmuje się realizacją inwestycji.

Dowiedz się więcej  

Wyceń bezpłatnie budowę domu u wykonawcy  

Wersje projektu Glasgow (1)

Gotowy projekt domu Glasgow II
Projekt
Energo
Oszczędny

Glasgow II

LMBL4389,17m2

Niewielki piętrowy dom w zabudowie bliźniaczej o prostej konstrukcji, tani w budowie, z dachem dwuspadowym: pokój dzienny, kuchnia, trzy sypialnie, dwie łazienki, garaż z pom.gospodarczym.

Opinie (36)

06.06.2017

Lipinscy_Domy

Zmiany może wprowadzić lokalny architekt albo nasze biuro. Szczegóły: biuro@lipinscy.pl

Skomentuj

06.06.2017

Edward Rudnik

Potrzebuję taki projekt ale dużo chciałbym zmienić. Pierwsza sprawa potrzebuje garaż tak jak w Glasgow bliżniak, strop nad parterem na belkach drewnianych i co za tym idzie ściana działowa nośna, zmiana podwieszanego stropu na stropo dach o jak najmniejszym stopniu nachylenia. Rozchodzi mi się też o mniejsze prześwity między podłogą a sufitem jaka jest najmniejsza dopuszczalna wysokość. Przy takim rozwiązaniu zmniejszyłbym koszty budowy do minimum . Pozdrawiam.

Skomentuj

27.05.2014

Lipinscy_Domy

Ze względów praktycznych jest to dobre podejście do tematu. Niestety energia elektryczna nie jest preferowana pod kątem wyliczeń parametru EP w charakterystyce energetycznej i jej zastosowanie trzeba wspomóc np. kolektorami słonecznymi. Od stycznia 2014 roku zmieniły się bowiem przepisy dotyczące parametrów energetycznych i wymagane jest EP na poziomie do 120 kWh/m2/rok, które jest nie do uzyskania przy zastosowaniu wyłącznie energii elektrycznej do c.o. i c.w.u.

Skomentuj

19.05.2014

Tomasz

Mam jeszcze jedno pytanie do autora projektu w nawiązaniu do poprzedniego pytania ?

Czy lepiej adaptować garaż pod kotłownię węglową z kotłem z podajnikiem na paliwo stałe np. ekogroszek, czy lepiej zainwestować pieniądze przy budowie tego typu domku w dobrą izolację termiczną fundamentu, ścian, stropu drewnianego nad piętrem i dachu - ogrzewając ten dom energią elektryczną ?
Chodzi mnie o koszty roczne i ekonomię (wygoda obsługi systemu grzania domu nie ma dla mnie znaczenia ponieważ mam drugie mieszkanie w które grzeje starym piecem węglowym od lat).

Pozdrawiam,
Tomasz

Skomentuj

19.05.2014

Lipinscy_Domy

Jest możliwa taka zmiana. Pomieszczenie na kotłownię na paliwo stale powinno mieć kubaturę minimum 11 m3 i wymiary przynajmniej 2x2 m aby wygodnie obsługiwać piec (przy czym pierwszy parametr jest wymagany normami, a drugi zależy od zastosowanego pieca i wytycznych producenta).

Skomentuj

11.05.2014

Tomasz

Mam pytanie do autora projektu ?
Jeżeli nie mam podłączenia gazu na działce (jest planowane doprowadzenie gazu), czy mogę w domu zamontować nowoczesny kocioł węglowy i kotłownie lub skład na paliwo węglowe wygospodarować w tylnej części dobudowanego garażu ?

Skomentuj

31.12.2013

Lipinscy_Domy

Takie zmiany musi Pan zlecić lokalnemu projektantowi. Od autora otrzyma Pan bezpłatnie zgodę na zmiany.

Skomentuj

29.12.2013

Kamil

Witam serdecznie,
Mam pytanie czy istnieje możliwość doklejenia się tym domem do istniejącego od strony klatki schodowej? Jak duże są koszty przeprojektowania ponieważ podejrzewam, że trzeba będzie przeprojektować dach i ścianę tak aby była to ściana ogniowa w granicy? pozdzdrawiam

Skomentuj

31.07.2013

Lipinscy_Domy

Strych jest nieużytkowy z uwagi na kratową konstrukcję więźby - nie ma tam po prostu miejsca. Natomiast w ramach adaptacji projektu można wprowadzić zmianę konstrukcji, która umożliwi wykorzystanie strychu, Wtedy będzie można zamontować schody składane w stropie. Zmiany może dokonać lokalny architekt, lub producent więźby prefabrykowanej - np: Mitek, z którym współpracujemy i polecamy.

Skomentuj

30.07.2013

ja

A JEST MOŻLIWOŚC ZROBIĆ ROZSUWANE SCHODKI NA STRYCH.

Skomentuj

30.07.2013

Lipinscy_Domy

Nie, to jest projekt domu standardowego, ale możemy go na zamówienie przeprojektować, by uzyskał standard energooszczędny. W przypadku zainteresowania, prosimy o kontakt bezpośredni.

Skomentuj

29.07.2013

ja

Czy ten dom jest energooszczedny

Skomentuj

29.07.2013

Lipinscy_Domy

Tak, taka zmiana jest możliwa i w Państwa przypadku praktyczna. W garderobie polecamy zostawić okno, oczywiście węższe. Dobudowanie garażu i te zmiany może wprowadzić lokalny architekt w ramach adaptacji.

Skomentuj

28.07.2013

miki

Mógłby PAN przesłać zdjęcie domu lub planu domu. Mój e mail mikulasz999@gmail.com

Skomentuj

28.07.2013

NJT HOUSE

WITAM. ZASTANAWIAM SIĘ Z ŻONĄ NAD BUDOWĄ TEGO DOMU. MAMY JEDNEGO SYNA WIĘC MYSLIMY NAD TYM BY ZBYRZYĆ ŚCIANĘ POMIEDZY POKOJAMI 2.2 I 2.3 TWORZĄC JEDEN POKÓJ DLA DZIECKA. DRZWI DO POKOJU 2.3 ZAMURUJEMY I SKRÓCIMY POKÓJ DZIECIECY O PASEK O SZEROKOŚCI TYCH DRZWI, A Z PASKA ZROBIMY GARDEROBE DO POKOJU 2.4. MAMY TEŻ POMYSŁ BY DOBUDOWAĆ GARAŻ, JAK NA ZDJĘCIACH Z REALIZACJI. MOJE PYTANIE BRZMI : CZY TE PRZERÓBKI SA MOŻLIWE.

Skomentuj

14.02.2013

Lipinscy_Domy

Z doprojektowaniem garażu z tarasem raczej nie będzie problemu, ale już trudniej będzie poszerzyć dom, tak by między sypialniami zmieściła się garderoba. Proszę jednak zerknąć na projekt Edynburg - tam można już wygospodarować małą garderobę kosztem pokoi, bo jest właśnie szerszy, a przy tym zawiera już garaż z kotłownią i tarasem :-) Pozostaje tylko kwestia doprojektowania skośnego dachu (jeśli jest taka potrzeba).

Skomentuj

10.02.2013

bob_budowniczy

Witam, czy istnieje możliwość zrobienie w miejscu wiaty garaż z kotłownią? A dach garażu byłby balkonem dla dwóch pokoi znajdujących się na piętrze? Czy w pokojach na piętrze, gdzie będzie taras można zmniejszyć istniejące już okna? Czy istnieje możliwość powiększenia bryły domu, w taki sposób aby było miejsce na małą garderobę między pokojami z tarasem(np. 4 m2)?

Skomentuj

30.05.2012

Agie.

Spoko, można połączyć ;-)

Skomentuj

14.04.2012

tymciorro

witam czy jest możliwość połączenia na górze dwóch pokojów nr 2.2 i 2.3 w jeden?

Skomentuj

13.04.2012

w trakcie budowy

Obecnie całkowity koszt fundamentów 45 tys. - zleciłem firmie budowlanej, w tej cenie wszystkie materiały i robocizna.
Z tym, że ława fundamentowa jest są pod garażem (zamiast wiaty), a dom dodatkowo poszerzony o 1m.

Skomentuj

13.04.2012

Beata

projekt wizualnie mnie nie zachwycił ale po przeczytaniu opinii ludzi wyżej, rozważamy z mężem wykupienie tego projektu:)

Skomentuj

28.03.2012

Dariusz, Chorzów

Dom Glasgow idealnie wpisuje się w miejskie warunki zabudowy, zajmuje mało miejsca na działce, posiada pełno użytkową powierzchnię na piętrze , a przy tym charakteryzuje się prostą konstrukcją, która mocno nie nadszarpnie budżetu inwestora.

Skomentuj

24.03.2012

sinki

całkowity koszt robocizny tego domku wyniesie około 180.000 zł

pozdrawiam i proszę jeszcze podać lokalizacje tego domku

Skomentuj

13.03.2012

Ania wu

Witam czy mógłby ktoś napisać przykładowy koszt budowy owego domku ? siniestra_pecadora@yahoo.pl
Dziękuję ślicznie. Projekt cudowny.

Skomentuj

19.02.2012

Artur Gi

Moje niedopatrzenie z tym stropem nad pietrem, sprawa oczywista, dziekuje za odpowiedz. Pozdrawiam..

Skomentuj

10.02.2012

Lipinscy_domy

Zgodę zawsze wyrazimy - w projektach można dokonywać wszelkich zmian. Okiem architekta tylko podpowiem, że zmiana usytuowania schodów na tak niewielkiej powierzchni przysporzy sporo kłopotu i nie wiem, czy zmiana taka będzie opłacalna. Być może trzeba będzie zrezygnować z którejś z sypialni, a to już raczej nie będzie się opłacać. Ponadto - więźba dachowa w tym domu ma układ kratowy i nie da się wygospodarować miejsca na pokój bez zmiany konstrukcji.

Skomentuj

09.02.2012

miles19

Witam,

czy możliwe jest obniżenie posadowienia poziomu 0 z 0,45 do np. 0,30, zwiększenie kąta nachylenia dachu i utworzenie nad piętrem poddasza mieszkalnego? na pewno wymagałoby to przeprojektowania całej konstrukcji dachu... na pewno wg WZ muszę się zmieścić w kalenicy do 8,5m. a ten jeden dodatkowy pokój to byłoby coś w sam raz dla gości lub na pokój hobby (nie musi mieć pełnych 2,5m wysokości) - ale od razu pojawia się problem zmiany usytuowania schodów..

czy na takie zmiany wyraziliby Państwoo zgodę i jest to technicznie możliwe?

Skomentuj

09.02.2012

Lipinscy_domy

Strop nad piętrem jest drewniany i jest elementem więźby dachowej. Natomiast ściana są zaproponowana, jako dwuwarstwowa z betonu komórkowego lub cegły silikatowej z dociepleniem.

Skomentuj

07.02.2012

Artur Gi

Witam serdecznie, na wiosne zaczynam budowe, ale mam dylemat jaki strop zrobic na pietrze i z jakiego bloczka, ceramika- komorkowy? tu jest moj email arthurg1277@wp.pl z gory dziekuje!

Skomentuj

18.01.2012

Artur G.

Witam serdecznie, na wiosne zaczynam budowe, ale mam dylemat jaki strop zrobic na pietrze i z jakiego bloczka, ceramika- komorkowy? tu jest moj email arthurg1277'wp.pl dzieki

Skomentuj

20.11.2011

iwbor5

mieszkamy w tym domu juz 5 lat.tani w budowie dzieki temu nie oszczedzalismy na materialach.Dach tani bo maly i prosty.Dobudowalismy garaz z pomieszczeniem gospodarczym zamiast wiaty i dzieki temu powstal duzy taras

Skomentuj

09.05.2011

planuję budowę

Czy ktoś posiada zdjęcia z realizacji budowy tego domku?
Adres: daniecd@tlen.pl. Z góry dzięki!

Skomentuj

11.03.2011

zbudowany w 2004

zbudowałem ten dom w 2004 r. od początku 2006 w nim mieszkam. Dom rzeczywiście tani i prosty w budowie, o kosztach nie ma co pisać ponieważ trochę wody upłynęło i ceny się zmieniły. Minusem po kilku latach doświadczenia jest to, że niestety strop nad piętrem jest drewniany ( konstrukcyjnie jest ok) ale godziłem się na to wybierając projekt, poza tym ok, zmieniłem trochę projekt adoptując mu klatkę schodową z boku domu co pozwoliło na totalną dowolną adaptacje dołu i góry oraz umożliwiło na stworzenie pod schodami pomieszczenia kotłowni gazowej, na piętrze WC, także na parterze WC i prysznica dla łazienki - zmiany te wykonałem ze względu na powiększenie puli pieniędzy przeznaczonej na budowę. Aktualnie łączna powierzchnia 127 m (całkowita) koszt ogrzewania tylko piecem gazowym w mroźny grudzień i styczeń to 1030 zł za 2 miesiące, strop na piętrem ocieplony wełną 23 cm oraz dach skośny 15 cm, ocieplenie domu styropianem 12cm na frez, ogólnie jestem zadowolony, polecam inwestorom, którzy mają troszkę więcej pieniędzy jak na mieszkanie w bloku.

Skomentuj

26.01.2011

przyszły budujacy

Projekt mi się podoba , ciekawe jak wypadłby w tym przypadku porównanie ogrzania domu pompą ciepła w stosunku do tradycyjnego opału (drzewo+węgiel) a co za tym idzie gdzie miejsce na piec C.O. i kotłownię? - pewnie trzeba by było kombinować jakąś adaptacje garażu na kotłownię.

Skomentuj

15.05.2010

Sławomir, Grudziądz

Projekt Glasgow od Lipińskich, spośród różnorodności na rynku, najbardziej odpowiada mi pod względem powierzchni i kształtu działki. Podoba mi się także wygląd i kształt budynku. Jest to projekt prosty, ekonomiczny, a co jest ważne - nie traci swojego uroku.

Skomentuj

25.10.2009

Stanisław, Kołobrzeg

Jest skromny, a równocześnie pozwala na realizację o całkiem przyzwoitym standardzie. Projekt ekonomiczny w budowie - tanie fundamenty, tani dach, przyzwoita kubatura. Jednym słowem: pomysł z głową dla inwestorów biedniejszych. To koncepcja bardzo na czasie, wystarczy kawałek działki i można iść na swoje :)

Skomentuj

Opinie nie są weryfikowane pod kątem ich pochodzenia od konsumentów, którzy używali produktu lub go nabyli.

Polecane rozwiązania

Podobne projekty (6)

projekt Glasgow należy do kategorii

Ostatnio oglądane