Projekt domu
DCS15
Cena projektu
4 570 zł (segment) z VAT
| Powierzchnia użytkowa | Nx131,47m2 |
| Garaż | + Nx16,63m2 |
| Powierzchnia netto | Nx172,26m2 |
| Powierzchnia zabudowy | Nx81,48m2 |
| Min. szerokość działki | 6m x 21,40m |
| Kubatura | Nx663,67m2 |
| Wysokość kalenicy | 10,31m |
| Kąt nachylenia dachu | 40° |
Projekt domu Edmonton z zabudowie szeregowej to prosty układ konstrukcyjny, znacznie ograniczający koszty budowy, a jednocześnie tworzący miły dla oka rytm lukarn. Lekką stylistykę podkreśla zastosowanie różnych kolorów do każdego domku, co nawiązuje do szeregowych osiedli Holandii, czy Belgii. Układ funkcjonalny to nowoczesne wnętrza, gdzie na parterze znajduje się część dzienna, sypialnie na poddaszu, a na najwyższej kondygnacji otwarte studio do zagospodarowania wedle potrzeby mieszkańców. Plusem jest także wbudowany garaż z przejściem do domu. Dostępna jest wersja z kominkiem.
| EUco = Nx32,05kWh/(m²rok) |
| EP = Nx64,03kWh/(m²rok) |
Projekt zgodny z wt2021
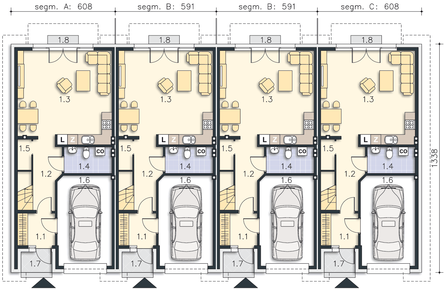
| 1.1 | Wiatrołap | 4,08m2 |
| 1.2 | Komunikacja | 6,23m2 |
| 1.3 | Pokój dzienny, kuchnia | 29,03m2 |
| 1.4 | Łazienka, c.o. | 4,25m2 |
| 1.5 | Schowek | 1,08m2 (1,43m2) |
| 1.6 | Garaż | 16,63m2 |
| 1.7 | Podest | 3,12m2 |
| 1.8 | Podest | 1m2 |
| 1.1 | Wiatrołap | 4,08m2 |
| 1.2 | Komunikacja | 6,23m2 |
| 1.3 | Pokój dzienny, kuchnia | 29,03m2 |
| 1.4 | Łazienka, c.o. | 4,25m2 |
| 1.5 | Schowek | 1,08m2 (1,43m2) |
| 1.6 | Garaż | 16,63m2 |
| 1.7 | Podest | 3,12m2 |
| 1.8 | Podest | 1m2 |
| 2.1 | Komunikacja | 8,60m2 |
| 2.2 | Pokój | 10,59m2 (11,18m2) |
| 2.3 | Pokój | 14,51m2 (15,26m2) |
| 2.4 | Łazienka | 7,64m2 |
| 2.5 | Pokój | 18,20m2 (19,55m2) |
| 2.6 | Schody | 3,55m2 |
| 2.7 | Balkon | 4,60m2 |
| 2.1 | Komunikacja | 8,60m2 |
| 2.2 | Pokój | 10,59m2 (11,18m2) |
| 2.3 | Pokój | 14,51m2 (15,26m2) |
| 2.4 | Łazienka | 7,64m2 |
| 2.5 | Pokój | 18,20m2 (19,55m2) |
| 2.6 | Schody | 3,55m2 |
| 2.7 | Balkon | 4,60m2 |
| 3.1 | Pokój | 19,71m2 (36,23m2) |
| 3.2 | Schody | 4m2 |
| 3.1 | Pokój | 19,71m2 (36,23m2) |
| 3.2 | Schody | 4m2 |
Grafika przedstawia minimalne wymiary działki. Aby sprawdzić, czy dom może być realizowany na konkretnej działce należy uzyskać Wypis i Wyrys z Miejscowego Planu Zagospodarowania Przestrzennego lub jeśli na danym terenie nie ma planu – Decyzję o warunkach zabudowy. Wszystkie projekty wymagają adaptacji do warunków miejscowych przez projektanta lokalnego.
Fundamenty - płyta fundamentowa
Ściany zewnętrzne - Bloczek silikatowy 18 cm + styropian 20 cm
Strop - żelbetowy
Dach - tradycyjna więźba ciesielska
Ogrzewanie - c.o. grzejnikowe + c.w.u. - kocioł gazowy
WENTYLACJA - rekuperacja
Na etapie adaptacji projektu istnieje możliwość zamiany materiałów na inne o podobnych właściwościach i parametrach technicznych. Pamiętaj! Projekt stanowi spójną całość i zmiana rozwiązań może wpłynąć na jego właściwości wytrzymałościowe i cieplne.
| Stan surowy zamknięty | Nx332 700 zł |
| Stan deweloperski | Nx526 700 zł |
Szacunkowa wycena netto. Biuro projektowe nie zajmuje się realizacją inwestycji.
Fossano
DCSW13136,02m2
Cena projektu:3670 zł
Bradfield
DCS25143,62m2
Cena projektu:4570 zł
Zurych
LMS20114,71m2
Cena projektu:3790 zł
Springfield II
DCS18a137,82m2
Cena projektu:3870 zł
Lillehammer
LMS2692,30m2
Cena projektu:4090 zł
Tromso
LMBL47103,64m2
Cena projektu:7490 zł
Tromso III
LMS27104,27m2
Cena projektu:4390 zł
Bradfield II
DCBL48143,85m2
Cena projektu:8370 zł
Tilburg II
DCBL49125,39m2
Cena projektu:7470 zł
Opinie (2)
07.09.2016
Kate
Fajne te kolorki na Belgijskiej!
Skomentuj09.04.2016
Ryszard Matysiak
Korzystna byłaby wersja wydłużona o 30cm,jak w projekcie Midlton 2 co daje powiększenie i wygodę w sypialniach na piętrze oraz w salonie z aneksem kuchennym.
SkomentujOpinie nie są weryfikowane pod kątem ich pochodzenia od konsumentów, którzy używali produktu lub go nabyli.