PROMOCJA
ULUBIONE

Projekt domu

Rennes 147,29m²

DCP285

 

Karta projektu Podziel się:

Opis projektu

Funkcjonalny dom energooszczędny, doskonały dla osób szukających projektu dość dużego, ale na niezbyt szeroką działkę. Na parterze mieszkańcy mają do dyspozycji salon z częścią jadalną, dużą, wygodna kuchnię, dodatkowy pokój i łazienkę. Na poddaszu przewidziano dwie sypialnie, łazienkę z niewielką pralnią i garderobę. Wrażenie przestrzenności potęguje antresola. Wysunięty do przodu garaż pomieści dwa auta. Od strony ogrodu zaplanowany został taras, ozdobiony drewnianą pergolą.

Zapotrzebowanie Energetyczne

EUco = 31,52kWh/(m²rok)
EP = 68,12kWh/(m²rok)

Projekt zgodny z wt2021

Dowiedz się więcej  

Parter 121,56m2

Gotowy projekt domu Rennes rzut Parter

121,56m2

1.1 Wiatrołap 5,75m2
1.2 Komunikacja 13m2 (15,10m2)
1.3 Kuchnia 12,24m2
1.4 Salon, jadalnia 30,28m2
1.5 Łazienka 4,89m2
1.6 Pokój 11,05m2
1.7 Kotłownia 10,40m2
1.8 Garaż 33,95m2
1.9 Podest 14,08m2
1.10 Podest 3,83m2
1.11 Taras 35,31m2
1.1 Wiatrołap 5,75m2
1.2 Komunikacja 13m2 (15,10m2)
1.3 Kuchnia 12,24m2
1.4 Salon, jadalnia 30,28m2
1.5 Łazienka 4,89m2
1.6 Pokój 11,05m2
1.7 Kotłownia 10,40m2
1.8 Garaż 33,95m2
1.9 Podest 14,08m2
1.10 Podest 3,83m2
1.11 Taras 35,31m2

Piętro 70,08m2

Gotowy projekt domu Rennes rzut Piętro

70,08m2

2.1 Komunikacja 16,96m2
2.2 Łazienka 6,81m2
2.3 Garderoba 3,65m2
2.4 Pokój 19,19m2
2.5 Pokój 16,24m2
2.6 Pralnia 3,04m2
2.7 Schody 4,19m2
2.1 Komunikacja 16,96m2
2.2 Łazienka 6,81m2
2.3 Garderoba 3,65m2
2.4 Pokój 19,19m2
2.5 Pokój 16,24m2
2.6 Pralnia 3,04m2
2.7 Schody 4,19m2

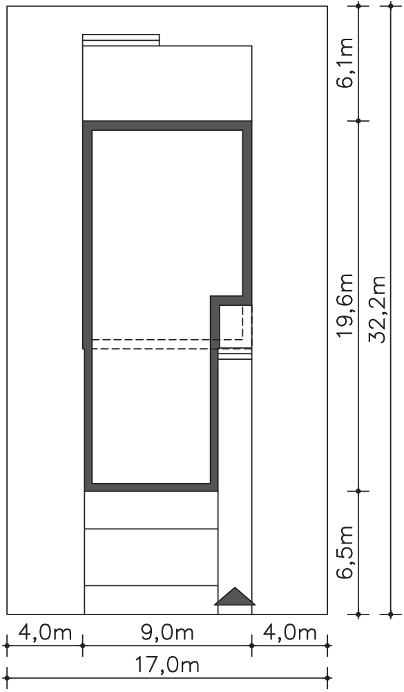
Wymiary działki

Gotowy projekt domu Rennes wymiary działki

Przekrój

Gotowy projekt domu Rennes przekrój

Elewacje

Gotowy projekt domu Rennes elewacja przód Gotowy projekt domu Rennes elewacja lewa Gotowy projekt domu Rennes elewacja tył Gotowy projekt domu Rennes elewacja prawa

Działka

Grafika przedstawia minimalne wymiary działki. Aby sprawdzić, czy dom może być realizowany na konkretnej działce należy uzyskać Wypis i Wyrys z Miejscowego Planu Zagospodarowania Przestrzennego lub jeśli na danym terenie nie ma planu – Decyzję o warunkach zabudowy. Wszystkie projekty wymagają adaptacji do warunków miejscowych przez projektanta lokalnego.

Dowiedz się więcej  

Technologia projektu

Fundamenty - rozwiązanie o podwyższonej izolacji termicznej

Ściany zewnętrzne - Bloczek silikatowy 24 cm + styropian 20 cm

Dach - wiązary prefabrykowane

Ogrzewanie - c.o. grzejnikowe + c.w.u. - kocioł gazowy

WENTYLACJA - rekuperacja

Na etapie adaptacji projektu istnieje możliwość zamiany materiałów na inne o podobnych właściwościach i parametrach technicznych. Pamiętaj! Projekt stanowi spójną całość i zmiana rozwiązań może wpłynąć na jego właściwości wytrzymałościowe i cieplne.

Dowiedz się więcej  

Szacunkowe koszty realizacji

Stan surowy zamknięty 450 400 zł
Stan deweloperski 713 000 zł

Szacunkowa wycena netto. Biuro projektowe nie zajmuje się realizacją inwestycji.

Dowiedz się więcej  

Wyceń bezpłatnie budowę domu u wykonawcy  

Opinie (13)

23.11.2016

Lipinscy_Domy

Tak, ze względu na antresolę raczej w stronę schodów.

Skomentuj

22.11.2016

Baśka

Czy jest możliwość przesunięcia komina (od kominka) z ciągu komunikacyjnego i ukrycia go częściowo w ścianie przy schodach lub kuchni?

Skomentuj

03.03.2015

Lipinscy_Domy

Niestety nie mamy jeszcze wizualizacji wnętrz.

Skomentuj

28.02.2015

Ciekawska

Projekt jest na prawdę ciekawy. Czy gotowe są już wizualizacje wnętrz?

Skomentuj

06.10.2014

Lipinscy_Domy

Staramy się dodawać wizualizacje - będziemy mieć na uwadze ten projekt. ;)

Skomentuj

03.10.2014

beata

bardzo fajny projekt z antresolą, brawo:)
ale błagam o wizualizację wnętrz

Skomentuj

11.08.2014

Lipinscy_Domy

Zmiana lokalizacji bramy garażowej jest możliwa. Zwiększenie kosztów budowy wynikające z zabudowania antresoli nie będzie bardzo znaczące, jednak wymaga zmian konstrukcyjnych dotyczących stropu. W celu wyceny zmian zapraszamy do kontaktu: biuro@lipinscy.pl

Skomentuj

09.08.2014

kate

Witam, mam 2 pytania odnośnie projektu:
1. Czy jest możliwość przeniesienia bramy wjazdowej do garażu tak aby sąsiadowała z drzwiami wejściowymi di budynku?
2. Czy zlikwidowanie antresoli i utworzenie tym samym dodatkowego pokoju na piętrze wiąże się z poważnymi zmianami w projekcie (a tym samym kosztami)?

Skomentuj

11.04.2014

Lipinscy_Domy

Projekt ten nie był do tej pory brany pod uwagę, jeśli chodzi o wizualizację wnętrz. Możemy uwzględnić sugestię, natomiast w tej chwili gwarancji dać nie możemy.

Skomentuj

10.04.2014

Asia

Czy mają Państwo w planie stworzenie wizualizacji wnętrza do tego projektu?

Skomentuj

24.11.2013

Jolka

Super ładny! Super przemyślany! Super Dom! Chcę taki! Bardzo chcę! :D

Skomentuj

09.11.2012

Witold

Na mnie też zrobił wrażenie - naprawdę niezły. Lubię takie "miejskie" klimaty. Na pewno jednak zrobiłbym trzeci pokój na piętrze zamiast antresoli i zdecydowanie zmieniłbym kolorystykę. Białe ściany, szare dachy i trochę jasnego drewna.

Skomentuj

08.11.2012

Jaro

Bardzo dobry projekt, idealny rozmiar salonu i pokoi.
Świetnie rozmieszczona kuchnia, trochę na uboczu, ale z dojściem do części jadalnej.

Skomentuj

Opinie nie są weryfikowane pod kątem ich pochodzenia od konsumentów, którzy używali produktu lub go nabyli.

Polecane rozwiązania

Podobne projekty (6)

projekt Rennes należy do kategorii

Ostatnio oglądane