PROMOCJA
ULUBIONE

Projekt domu

Okayama II 113,64m²

LMP249a

 

Karta projektu Podziel się:

Opis projektu

Wygodny dom z użytkowym poddaszem, w którym wjazd do garażu usytuowano od strony bocznej elewacji. Taki układ pozwala na wybudowanie domu na niezbyt głębokiej działce. Do dyspozycji mieszkańców jest wygodna, pół zamknięta kuchnia, salon z kominkiem i wydzielonym miejscem na duży stół, dwie dodatkowe sypialnie i łazienka Na poddaszu znajdują się trzy dodatkowe pokoje, w tym jedna duża sypialnia, dwie mniejsze oraz przydatne pomieszczenie gospodarcze. Prosta bryła i konstrukcja sprawiają, że dom jest nieskomplikowany w budowie, a przy tym wygodny w użytkowaniu.

Zapotrzebowanie Energetyczne

EUco = 45,72kWh/(m²rok)
EP = 69,90kWh/(m²rok)

Projekt zgodny z wt2021

Dowiedz się więcej  

Parter 103,81m2

Gotowy projekt domu Okayama II rzut Parter

103,81m2

1.1 Wiatrołap 4,33m2
1.2 Łazienka 4,42m2
1.3 Pokój 9,13m2
1.4 Komunikacja 1,50m2
1.5 Pokój 10,30m2
1.6 Pokój dzienny 26,28m2 (28,38m2)
1.7 Kuchnia 10,55m2
1.8 Pom.pomocnicze 2,87m2
1.9 Kotłownia 8,56m2
1.10 Garaż 25,87m2
1.11 Podest 4,01m2
1.12 Taras 15,45m2
1.1 Wiatrołap 4,33m2
1.2 Łazienka 4,42m2
1.3 Pokój 9,13m2
1.4 Komunikacja 1,50m2
1.5 Pokój 10,30m2
1.6 Pokój dzienny 26,28m2 (28,38m2)
1.7 Kuchnia 10,55m2
1.8 Pom.pomocnicze 2,87m2
1.9 Kotłownia 8,56m2
1.10 Garaż 25,87m2
1.11 Podest 4,01m2
1.12 Taras 15,45m2

Poddasze 47,13m2

Gotowy projekt domu Okayama II rzut Poddasze

47,13m2

2.1 Komunikacja 4,44m2
2.2 Pokój 16,52m2 (26,11m2)
2.3 Łazienka 5,39m2 (7,15m2)
2.4 Pokój 8,63m2 (13,98m2)
2.5 Pokój 7,08m2 (11,69m2)
2.6 Pom.gosp. 1,04m2 (2,55m2)
2.7 Schody 4,03m2
2.1 Komunikacja 4,44m2
2.2 Pokój 16,52m2 (26,11m2)
2.3 Łazienka 5,39m2 (7,15m2)
2.4 Pokój 8,63m2 (13,98m2)
2.5 Pokój 7,08m2 (11,69m2)
2.6 Pom.gosp. 1,04m2 (2,55m2)
2.7 Schody 4,03m2

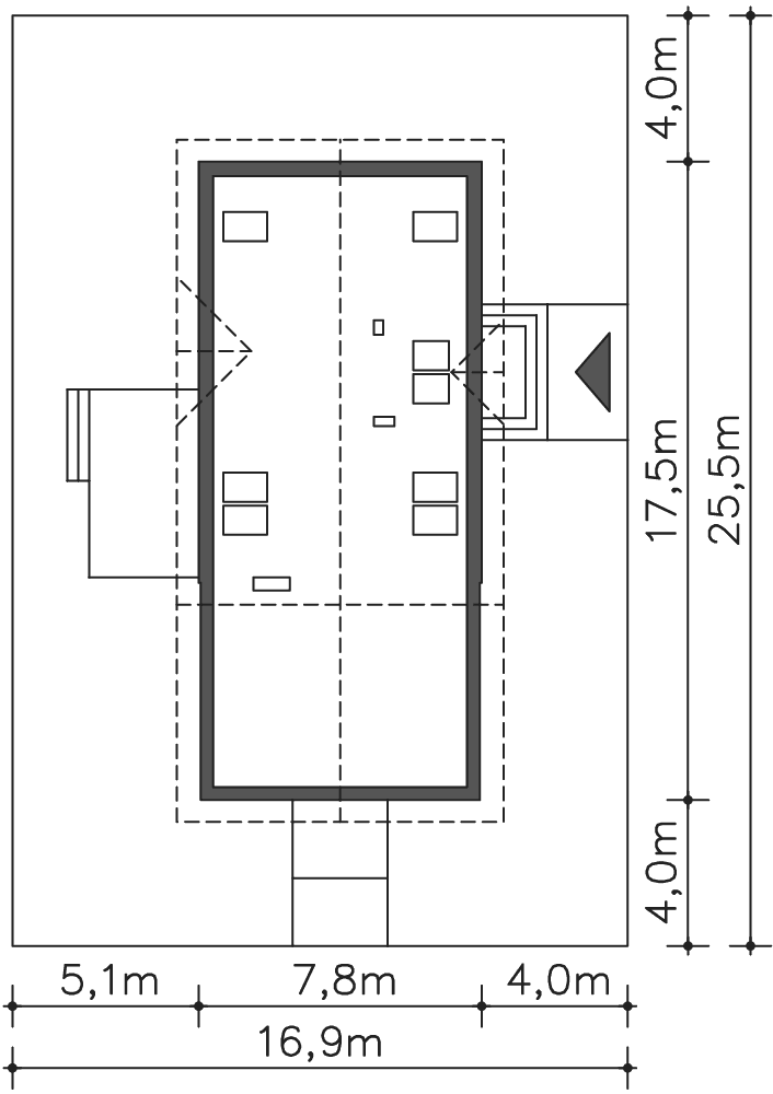
Wymiary działki

Gotowy projekt domu Okayama II wymiary działki

Przekrój

Gotowy projekt domu Okayama II przekrój

Elewacje

Gotowy projekt domu Okayama II elewacja przód Gotowy projekt domu Okayama II elewacja lewa Gotowy projekt domu Okayama II elewacja tył Gotowy projekt domu Okayama II elewacja prawa

Działka

Grafika przedstawia minimalne wymiary działki. Aby sprawdzić, czy dom może być realizowany na konkretnej działce należy uzyskać Wypis i Wyrys z Miejscowego Planu Zagospodarowania Przestrzennego lub jeśli na danym terenie nie ma planu – Decyzję o warunkach zabudowy. Wszystkie projekty wymagają adaptacji do warunków miejscowych przez projektanta lokalnego.

Dowiedz się więcej  

Technologia projektu

Fundamenty - rozwiązanie o podwyższonej izolacji termicznej

Ściany zewnętrzne - Pustak ceramiczny 25 cm + styropian 15 cm

Strop - gęstożebrowy

Dach - tradycyjna więźba ciesielska

Ogrzewanie - c.o. grzejnikowe + c.w.u. - kocioł gazowy

WENTYLACJA - grawitacyjna

Na etapie adaptacji projektu istnieje możliwość zamiany materiałów na inne o podobnych właściwościach i parametrach technicznych. Pamiętaj! Projekt stanowi spójną całość i zmiana rozwiązań może wpłynąć na jego właściwości wytrzymałościowe i cieplne.

Dowiedz się więcej  

Szacunkowe koszty realizacji

Stan surowy zamknięty 304 900 zł
Stan deweloperski 538 900 zł

Szacunkowa wycena netto. Biuro projektowe nie zajmuje się realizacją inwestycji.

Dowiedz się więcej  

Wyceń bezpłatnie budowę domu u wykonawcy  

Wersje projektu Okayama II (1)

Gotowy projekt domu Okayama

- 400 zł

Okayama

LMP249113,38m2

Dom z poddaszem użytkowym, z garażem jednostanowiskowym, spiżarnią, dwoma pokojami na parterze i trzema sypialniami na piętrze

Opinie (2)

28.02.2017

Lipinscy_Domy

2-3 dni robocze. Projekt wysyłamy kurierem.

Skomentuj

27.02.2017

Henryk

Super że na parterze jest miejsce na gabinet + sypialnia a nie tylko jedno.
Jaki czas oczekiwania na projekt?

Skomentuj

Opinie nie są weryfikowane pod kątem ich pochodzenia od konsumentów, którzy używali produktu lub go nabyli.

Polecane rozwiązania

Podobne projekty (4)

projekt Okayama II należy do kategorii

Ostatnio oglądane