PROMOCJA
ULUBIONE

Projekt domu

Lagos III 191,69m²

DCP117b

 

Karta projektu Podziel się:

Opis projektu

Bardzo wygodny dom energooszczędny. Na parterze zlokalizowano duży salon z kominkiem, ustawną kuchnię i jadalnię, sporą spiżarnię, a także wydzieloną część prywatną – sypialnię z własną łazienką i garderobą. Na poddaszu znajdują się dwie sypialnie, wygodna łazienka z oknem i garderoba. Taki podział funkcji zapewnia spokój i intymność rodzicom, którzy mają dla siebie przestrzeń na parterze, góra zaś może być przeznaczona całkowicie na królestwo dzieci. Zaletą jest również częściowo zadaszony taras, niemal zespolony z domem dzięki dużym przeszkleniom w jadalni i pokoju dziennym.

Zapotrzebowanie Energetyczne

EUco = 16,86kWh/(m²rok)
EP = 69,90kWh/(m²rok)

Projekt zgodny z wt2021

Dowiedz się więcej  

Parter 137,52m2

Gotowy projekt domu Lagos III rzut Parter

137,52m2

1.1 Wiatrołap 5,82m2
1.2 C.o. 6,64m2
1.3 Wc 2,84m2
1.4 Komunikacja 9,82m2 (11,92m2)
1.5 Spiżarnia 6,48m2
1.6 Kuchnia, jadalnia 27,03m2
1.7 Pokój dzienny 46,95m2
1.8 Pokój 19,11m2
1.9 Garderoba 4,90m2
1.10 Łazienka 7,93m2
1.11 Podest 4,48m2
1.12 Taras 76,78m2
1.1 Wiatrołap 5,82m2
1.2 C.o. 6,64m2
1.3 Wc 2,84m2
1.4 Komunikacja 9,82m2 (11,92m2)
1.5 Spiżarnia 6,48m2
1.6 Kuchnia, jadalnia 27,03m2
1.7 Pokój dzienny 46,95m2
1.8 Pokój 19,11m2
1.9 Garderoba 4,90m2
1.10 Łazienka 7,93m2
1.11 Podest 4,48m2
1.12 Taras 76,78m2

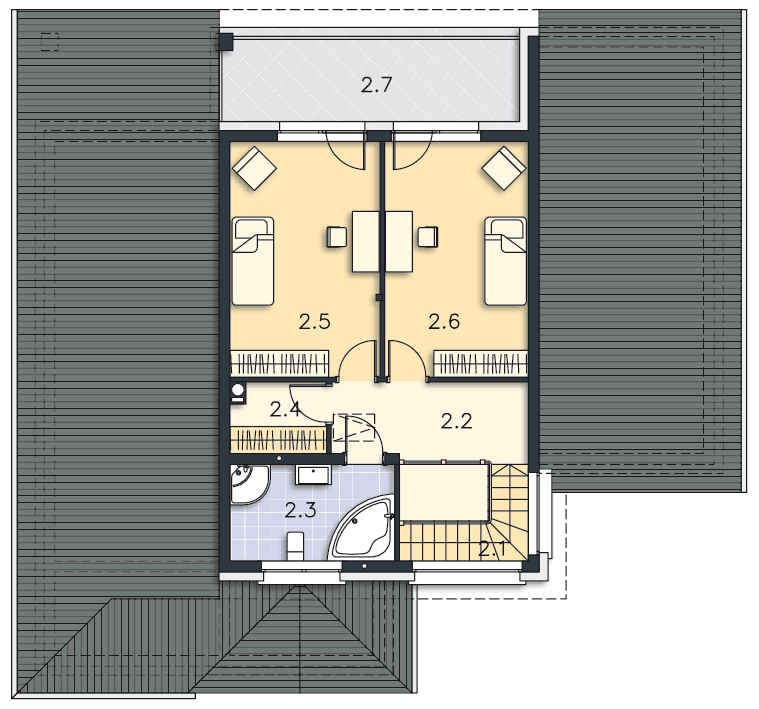
Poddasze 54,17m2

Gotowy projekt domu Lagos III rzut Poddasze

54,17m2

2.1 Schody 3,65m2
2.2 Komunikacja 7,39m2 (7,68m2)
2.3 Łazienka 7,48m2 (7,81m2)
2.4 Garderoba 3,02m2 (3,22m2)
2.5 Pokój 16,69m2 (17,49m2)
2.6 Pokój 15,94m2 (16,76m2)
2.7 Balkon 14,45m2
2.1 Schody 3,65m2
2.2 Komunikacja 7,39m2 (7,68m2)
2.3 Łazienka 7,48m2 (7,81m2)
2.4 Garderoba 3,02m2 (3,22m2)
2.5 Pokój 16,69m2 (17,49m2)
2.6 Pokój 15,94m2 (16,76m2)
2.7 Balkon 14,45m2

Wymiary działki

Gotowy projekt domu Lagos III wymiary działki

Przekrój

Gotowy projekt domu Lagos III przekrój

Elewacje

Gotowy projekt domu Lagos III elewacja przód Gotowy projekt domu Lagos III elewacja lewa Gotowy projekt domu Lagos III elewacja tył Gotowy projekt domu Lagos III elewacja prawa

Działka

Grafika przedstawia minimalne wymiary działki. Aby sprawdzić, czy dom może być realizowany na konkretnej działce należy uzyskać Wypis i Wyrys z Miejscowego Planu Zagospodarowania Przestrzennego lub jeśli na danym terenie nie ma planu – Decyzję o warunkach zabudowy. Wszystkie projekty wymagają adaptacji do warunków miejscowych przez projektanta lokalnego.

Dowiedz się więcej  

Technologia projektu

Fundamenty - rozwiązanie o podwyższonej izolacji termicznej

Ściany zewnętrzne - Bloczek silikatowy 24 cm + styropian 20 cm

Strop - gęstożebrowy

Dach - tradycyjna więźba ciesielska

Ogrzewanie - c.o. grzejnikowe + c.w.u. - kocioł gazowy

WENTYLACJA - grawitacyjna

Na etapie adaptacji projektu istnieje możliwość zamiany materiałów na inne o podobnych właściwościach i parametrach technicznych. Pamiętaj! Projekt stanowi spójną całość i zmiana rozwiązań może wpłynąć na jego właściwości wytrzymałościowe i cieplne.

Dowiedz się więcej  

Szacunkowe koszty realizacji

Stan surowy zamknięty 450 500 zł
Stan deweloperski 713 100 zł

Szacunkowa wycena netto. Biuro projektowe nie zajmuje się realizacją inwestycji.

Dowiedz się więcej  

Wyceń bezpłatnie budowę domu u wykonawcy  

Wersje projektu Lagos III (4)

Gotowy projekt domu Lagos II

Lagos II

LMP117a130,74m2

Dom dla ludzi lubiących kontakt z naturą. Oryginalny, nowoczesny, z dwuspadowym dachem o jasnych wnętrzach.
Gotowy projekt domu Lagos IV
Projekt
Energo
Oszczędny

Lagos IV

DCP117c188,64m2

Projekt dużego domu energooszczędnego, przekrytego dwuspadowym dachem: przestronny salon, kuchnia, jadalnia, master bedroom na parterze z łazienką i garderobą, trzy sypialnie na poddaszu.
Gotowy projekt domu Lagos V
Projekt
Energo
Oszczędny

Lagos V

DCP117d198,26m2

Piękny, wygodny dom z użytkowym poddaszem, zaprojektowany w standardzie energooszczędnym.: przestronna strefa dzienna, masterbedroom na parterze, dwie sypialnie na poddaszu.
Gotowy projekt domu Lagos VI
Projekt
Energo
Oszczędny

Lagos VI

DCP117e217,34m2

Projekt dużego domu energooszczędnego, przekrytego dwuspadowym dachem: przestronny salon, kuchnia, jadalnia, master bedroom na parterze z pokojem kąpielowym i garderobą, trzy sypialnie na poddaszu.

Opinie (7)

16.12.2017

Agnieszka

Zakochaliśmy się w tym projekcie, planujemy go kupić a w najbliższym roku pobudować. Chciałabym go wcześniej obejrzeć na żywo. Czy w okolicach Warszawy bądź na Mazowszu ktoś zdecydował się na ten piękny dom? to mój email: aguska_07@interia.eu Pozdrawiam.

Skomentuj

13.06.2017

Lipinscy_Domy

Zapraszamy zainteresowanych do grupy na Facebooku dla budujących Lagosa:
https://www.facebook.com/groups/1915803311997092/

Skomentuj

18.07.2016

Lipinscy_Domy

Panie Grzegorzu, prosimy o kontakt mailowy na biuro@lipinscy.pl

Skomentuj

13.07.2016

Grzegorz

Witam serdecznie Projektantów,

Mam do Państwa pytanie dotyczące rekuperacji oraz przyłączy mediów w projekcie "LAGOS III DCP117B /L (ODBICIE LUSTRZANE)". Interesuje mnie dokładne miejsce posadowienia rekuperatora, ponieważ chciałbym przed zakupem (oczekuje na WZ) rozplanować rozmieszczenie rurowego GWC. Jestem perfekcjonistą, dlatego też nie pozwolę sobie na "pajęczyny" przyłączy mediów na działce (kwestie ogrodu itp).
Następne pytanie dotyczy dokładnej lokalizacji złącza do odprowadzania ścieków. Niestety nie posiadam możliwości dopięcia się do kanalizacji, z tego względu planuje budowę "przydomowej oczyszczalni ścieków" z drenażem rozsączającym. Jak sama nazwa wskazuję, muszę wstępnie zaplanować układ rur do drenażu.

Z góry dziękuję za odpowiedź.

Pozdrawiam
Grzegorz

Skomentuj

02.06.2014

Ola

Witam
Jaka jest powierzchnia tego dachu?

Skomentuj

01.05.2014

Cukiereczek

Mi również podoba się ten dom,ustawienie w nim pomieszczeń ale wolałabym żeby był mniejszy-tak ok150-160m pow.użytk. wiem,że jest LAGOS II i jest mniejszy ale on już tak nie zachwyca...

Skomentuj

27.03.2014

Luca

Hej! Bardzo ładny projekt :) Najbardziej podoba mi się w drugiej wersji kolorystycznej. :D

Skomentuj

Opinie nie są weryfikowane pod kątem ich pochodzenia od konsumentów, którzy używali produktu lub go nabyli.

Polecane rozwiązania

Podobne projekty (6)

projekt Lagos III należy do kategorii

Ostatnio oglądane