PROMOCJA
ULUBIONE

Projekt domu

Grenoble 160,64m²

DCP353

 

Karta projektu Podziel się:

Opis projektu

Nowoczesny dom jednorodzinny, z płaskim dachem, zaprojektowany w standardzie energooszczędnym, z przeznaczeniem dla dużej rodziny. Centralnym punktem parteru są schody wokół których rozmieszczono salon i otwartą kuchnię, a między nimi zaplanowano jadalnię. Znalazło się też miejsce na dodatkowy pokój i łazienkę. Wygodnym rozwiązaniem jest również przejście przez kotłownię do garażu na dwa auta. Drugie piętro to strefa prywatna, z trzema sypialniami i dwiema łazienkami. Przestronności wnętrzu nadaje antresola oraz duże przeszklenia.

Zapotrzebowanie Energetyczne

EUco = 28,71kWh/(m²rok)
EP = 69,90kWh/(m²rok)

Projekt zgodny z wt2021

Dowiedz się więcej  

Parter 123,09m2

Gotowy projekt domu Grenoble rzut Parter

123,09m2

1.1 Wiatrołap 4,78m2
1.2 Komunikacja 5,82m2
1.3 Kuchnia 14,30m2
1.4 Jadalnia 9,47m2
1.5 Pokój dzienny 22,02m2 (26,43m2)
1.6 Pokój 15,92m2
1.7 Komunikacja 5,47m2
1.8 Łazienka 5,09m2
1.9 Spiżarnia 2,43m2
1.10 Kotłownia 5,95m2
1.11 Garaż 31,84m2
1.12 Podest 13,32m2
1.13 Taras 29,77m2
1.14 Podest 1,99m2
1.1 Wiatrołap 4,78m2
1.2 Komunikacja 5,82m2
1.3 Kuchnia 14,30m2
1.4 Jadalnia 9,47m2
1.5 Pokój dzienny 22,02m2 (26,43m2)
1.6 Pokój 15,92m2
1.7 Komunikacja 5,47m2
1.8 Łazienka 5,09m2
1.9 Spiżarnia 2,43m2
1.10 Kotłownia 5,95m2
1.11 Garaż 31,84m2
1.12 Podest 13,32m2
1.13 Taras 29,77m2
1.14 Podest 1,99m2

Piętro 75,34m2

Gotowy projekt domu Grenoble rzut Piętro

75,34m2

2.1 Schody 6,07m2
2.2 Komunikacja 4,64m2
2.3 Pokój 18,78m2
2.4 Łazienka 5,23m2
2.5 Łazienka 11,64m2
2.6 Pokój 15,94m2
2.7 Pokój 13,04m2
2.1 Schody 6,07m2
2.2 Komunikacja 4,64m2
2.3 Pokój 18,78m2
2.4 Łazienka 5,23m2
2.5 Łazienka 11,64m2
2.6 Pokój 15,94m2
2.7 Pokój 13,04m2

Wymiary działki

Gotowy projekt domu Grenoble wymiary działki

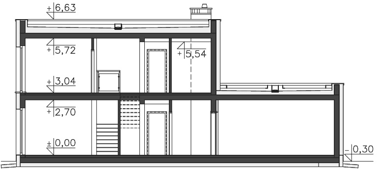
Przekrój

Gotowy projekt domu Grenoble przekrój

Elewacje

Gotowy projekt domu Grenoble elewacja przód Gotowy projekt domu Grenoble elewacja lewa Gotowy projekt domu Grenoble elewacja tył Gotowy projekt domu Grenoble elewacja prawa

Działka

Grafika przedstawia minimalne wymiary działki. Aby sprawdzić, czy dom może być realizowany na konkretnej działce należy uzyskać Wypis i Wyrys z Miejscowego Planu Zagospodarowania Przestrzennego lub jeśli na danym terenie nie ma planu – Decyzję o warunkach zabudowy. Wszystkie projekty wymagają adaptacji do warunków miejscowych przez projektanta lokalnego.

Dowiedz się więcej  

Technologia projektu

Fundamenty - płyta fundamentowa

Ściany zewnętrzne - Bloczek betonu komórkowego 24 cm + styropian 20 cm

Strop - gęstożebrowy

Dach - stropodach żelbetowy

Ogrzewanie - c.o. grzejnikowe + c.w.u. - kocioł gazowy

WENTYLACJA - rekuperacja

Na etapie adaptacji projektu istnieje możliwość zamiany materiałów na inne o podobnych właściwościach i parametrach technicznych. Pamiętaj! Projekt stanowi spójną całość i zmiana rozwiązań może wpłynąć na jego właściwości wytrzymałościowe i cieplne.

Dowiedz się więcej  

Szacunkowe koszty realizacji

Stan surowy zamknięty 466 400 zł
Stan deweloperski 738 200 zł

Szacunkowa wycena netto. Biuro projektowe nie zajmuje się realizacją inwestycji.

Dowiedz się więcej  

Wyceń bezpłatnie budowę domu u wykonawcy  

Wersje projektu Grenoble (2)

Gotowy projekt domu Koge
Projekt
Energo
Oszczędny

Koge

DCP402137,52m2

Projekt niezwykłego domu energooszczędnego, z piętrem, płaskim dachem i dużymi przeszkleniami: wysoki na dwie kondygnacje pokój dzienny, jadalnia, kuchnia, gabinet , trzy sypialnie, wiata garażowa,
Gotowy projekt domu Grenoble II
Projekt
Energo
Oszczędny

Grenoble II

DCP353a152,72m2

Nowoczesny, energooszczędny dom z dwuspadowym dachem: wysoki na dwie kondygnacje przeszklony salon z antresolą, kuchnia, jadalnia, gabinet, trzy sypialnie, trzy łazienki, garaż dwustanowiskowy.

Opinie (2)

27.08.2019

Lipińscy Domy

Ok. 4 tygodnie od momentu zamówienia.

Skomentuj

29.08.2016

Lucy

Masywna bryła. Ale robi super wrażenie. Jaki czas oczekiwania?

Skomentuj

Opinie nie są weryfikowane pod kątem ich pochodzenia od konsumentów, którzy używali produktu lub go nabyli.

Polecane rozwiązania

Podobne projekty (5)

projekt Grenoble należy do kategorii

Ostatnio oglądane