PROMOCJA
ULUBIONE

Projekt domu

Girona 182,31m²

DCB75

PROMOCJA
- 400 zł
od 3 do 16 lutego 2026

 

Karta projektu Podziel się:

Opis projektu

Wyjątkowy dom energooszczędny, o rozłożystej bryle, adresowany do inwestorów ceniących wyjątkowe rozwiązania i bliski kontakt z naturą. Wnętrze podzielono na wspólną strefę dzienną, z otwartą na duży salon kuchnią . Bezpośrednio przy wejściu znajduje się gabinet, w części gospodarczej zaś pralnia, pomieszczenie gospodarcze i garaż na dwa stanowiska. Duży hol można wykorzystać jako wewnętrzny mini ogród. Część nocna, ulokowana w osobnym skrzydle domu to cztery wygodne sypialnie, w tym jedna z własną łazienką i garderobą. Uwagę zwraca przeszklona ściana z widokiem na ogród, która nie tylko jest ozdobą domu, ale także doskonale doświetla wnętrze. W projekcie przewidziano ogrzewanie pompą ciepła.

Zapotrzebowanie Energetyczne

EUco = 20,09kWh/(m²rok)
EP = 60,33kWh/(m²rok)

Projekt zgodny z wt2021

Dowiedz się więcej  

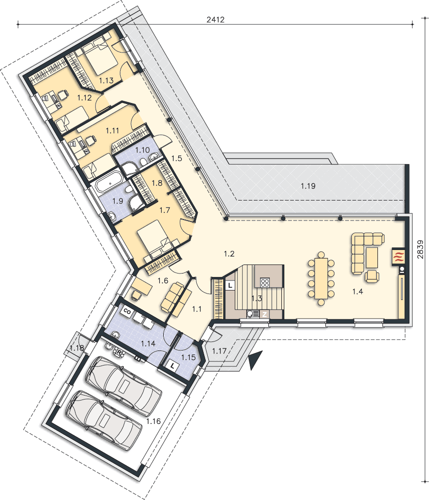
Parter 218,51m2

Gotowy projekt domu Girona rzut Parter

218,51m2

1.1 Wiatrołap 9m2
1.2 Hall z zielenią 18,90m2
1.3 Kuchnia 11,27m2
1.4 Pokój dzienny 44,40m2
1.5 Komunikacja 13,04m2
1.6 Gabinet 10,42m2
1.7 Pokój 13,58m2
1.8 Garderoba 4,46m2
1.9 Łazienka 6,40m2
1.10 Łazienka 4,15m2
1.11 Pokój 13,15m2
1.12 Pokój 11,47m2
1.13 Pokój 9,94m2
1.14 Pom.gosp. 8,41m2
1.15 Spiżarnia 3,72m2
1.16 Garaż 36,20m2
1.17 Podest 4,48m2
1.18 Podest 1,30m2
1.19 Taras 50,10m2
1.1 Wiatrołap 9m2
1.2 Hall z zielenią 18,90m2
1.3 Kuchnia 11,27m2
1.4 Pokój dzienny 44,40m2
1.5 Komunikacja 13,04m2
1.6 Gabinet 10,42m2
1.7 Pokój 13,58m2
1.8 Garderoba 4,46m2
1.9 Łazienka 6,40m2
1.10 Łazienka 4,15m2
1.11 Pokój 13,15m2
1.12 Pokój 11,47m2
1.13 Pokój 9,94m2
1.14 Pom.gosp. 8,41m2
1.15 Spiżarnia 3,72m2
1.16 Garaż 36,20m2
1.17 Podest 4,48m2
1.18 Podest 1,30m2
1.19 Taras 50,10m2

Wymiary działki

Gotowy projekt domu Girona wymiary działki

Przekrój

Gotowy projekt domu Girona przekrój

Elewacje

Gotowy projekt domu Girona elewacja przód Gotowy projekt domu Girona elewacja lewa Gotowy projekt domu Girona elewacja tył Gotowy projekt domu Girona elewacja prawa

Działka

Grafika przedstawia minimalne wymiary działki. Aby sprawdzić, czy dom może być realizowany na konkretnej działce należy uzyskać Wypis i Wyrys z Miejscowego Planu Zagospodarowania Przestrzennego lub jeśli na danym terenie nie ma planu – Decyzję o warunkach zabudowy. Wszystkie projekty wymagają adaptacji do warunków miejscowych przez projektanta lokalnego.

Dowiedz się więcej  

Technologia projektu

Fundamenty - rozwiązanie o podwyższonej izolacji termicznej

Ściany zewnętrzne - Bloczek silikatowy 24 cm + styropian 20 cm

Dach - wiązary prefabrykowane

Ogrzewanie - c.o. podłogowe + c.w.u. - pompa ciepła ze źródłem dolnym

WENTYLACJA - rekuperacja

Na etapie adaptacji projektu istnieje możliwość zamiany materiałów na inne o podobnych właściwościach i parametrach technicznych. Pamiętaj! Projekt stanowi spójną całość i zmiana rozwiązań może wpłynąć na jego właściwości wytrzymałościowe i cieplne.

Dowiedz się więcej  

Szacunkowe koszty realizacji

Stan surowy zamknięty 513 500 zł
Stan deweloperski 812 900 zł

Szacunkowa wycena netto. Biuro projektowe nie zajmuje się realizacją inwestycji.

Dowiedz się więcej  

Wyceń bezpłatnie budowę domu u wykonawcy  

Opinie (57)

06.11.2017

Bogdan

Oczywiście .że możemy porozmawiać /784521111/.
Pozdrawiam.

Skomentuj

04.07.2017

Lipinscy_Domy

Można zaprojektować podpiwniczenie w ramach adaptacji u lokalnego architekta.

Skomentuj

28.06.2017

Elka

Witam :)
Czy dałoby sie ten dom częściowo podpiwniczyc? Np. Zrobic schody w jednym z pomieszczeń przy garażu i podpiwniczyc jedno ze skrzydeł - dzienne lub sypialne (i nawet w takiej sytuacji lekko je podnieść o kilka schodków).

Skomentuj

29.02.2016

Dikili

Pani Doroto, a robiliscie pompe ciepla i rekuperator? My jestesmy na etapie zmian projektu. Też mamy odbicie lustrzane ale skrzydło salonu przedluzylismy o 2m a mieszkalne o 2,5m. Zalezy nam aby mieć 4 sypialnie + gabinet. Pokój na końcu korytarza będzie główną sypialnia z garderobą i i dużą łazienka, po za tym pokoj z brzegu 1.7 będzie główną łazienką. Reszta pokoi bedzie mieć każdy około 3m szerokości i w formie prostokąta. Salon jest przedłużony bo chcemy mieć większą kuchnie, prawdopodobnie ze spiżarka za szafkami, poszerzyliśmy też okna tarasowe do 3.5m i dodalismy jedne drzwi na taras na wysokości kominka aby łatwo wyjść po drewno. Architekt jescze rysuje zadaszenie tarasu o szerokości około 3m. Jak odbierzemy wszystko to bierzemy się do budowy! :-)

Skomentuj

19.02.2016

Dorota

Witam,
dom jest odbiciem lustrzanym podstawowej wersji projeku. Skrzydło mieszkalne zostało nieco skrócone, ale niewiele, wszystkie skrzydła są tej samej długości. Jest w nim duża sypialnia - drzwi na wprost, z której jest przejście do garderoby, która z kolei jest ostatnim pomieszczeniem tego skrzydła - na całą jego szerokość. Widoczne drzwi w bok to duża łazienka - około 15m kw. Z dwóch pokoi - 1.6 i 1.7 na projekcie - zrobiliśmy jeden gabinet o ciekawym kształcie. Jeśli chodzi o dach to technolog nam go przeprojektował na taki robiony metodą tradycyjną - w projekcie jest gotowy. Nie chcielismy aby elementy metalowe łączące elementy drewniane były widoczne. W takiej jak nasza wersji nie było możliwości odkrycia krokwii, z uwagi na konieczność ocieplenia i widoczne są jedynie jętki. Nie wiem też jak wygląda kwestia ocieplenia przy tym dachu gotowym, Np w tych poprzednich zdjęciach , z innej realizacji wiem, że dach jest gotowy a elementy drewniane zostały w całości zakryte. Dom jest w innym stylu niż wizualizacje projektantów, ale to kwestia gustu. Przede wszystkim jest bardzo wygodny. Pozdrawiam :)

Skomentuj

17.02.2016

Dikili

Witam, zdjęcia ostatnio dodane są ciekawym rozwiązaniem, jednak jestem zaskoczona i nie rozumie kilku kwestii. Korytarz w skrzydle mieszkalnym ma tylko 2 sztuki drzwi, to oznacza że są tam tylko 2 pokoje? Czy skrzydło zostało skrócone? Kolejna rzecz to sufit nad salonem, dlaczego właściciele postanowili zmienić projekt dachu, ten wydaje się mało efektowny a o efekt przecież w tym chodziło? Ciekawa jestem też innych wprowadzonych zmian. Jest szansa porozmawiać?

Skomentuj

08.01.2016

Lipinscy_Domy

Pani Doroto, można prosić o zdjęcia domu? Na forum lub maila: biuro@lipinscy.pl

Skomentuj

06.01.2016

Dorota

Mieszkamyyyyyyyyyyy :)

Skomentuj

03.08.2015

Lipinscy_Domy

Czy możemy prosić o zdjęcia z realizacji w celu publikacji?

Skomentuj

02.08.2015

Bogdan

Witam Wszystkich ,
Proszę się nie gniewać że nie odpisuję / za często nie odwiedzam strony /. Jeżeli ktoś ma ochotę mnie odwiedzić lub porozmawiać proszę o telefon 784521111.
Pozdrawiam.
Bogdan

Skomentuj

22.07.2015

Paweł

Właśnie jestem w trakcie realizacji projektu i choć nie obyło się bez kilku zmian ale bardziej technicznych to jestem bardzo zadowolony. Do września planuję zakończyć budowę na etapie stanu surowego zamkniętego. Jeśli jest ktoś chętny do obejrzenia realizacji w okolicach Szczecina to serdecznie zapraszam. kontakt ppwladyka@gmail.com

Skomentuj

19.06.2015

Jan

Też kupiliśmy ten projekt i prawdopodobnie na przyszły rok ruszy budowa, przyznam że mam coraz więcej pomysłów na zmiany we wnętrzach, bardzo jestem ciekawa jakichs realizacji. Można liczyć na jakieś zdjęcia? a może możemy Pana odwiedzić na budowie? Pozdrawiamy

Skomentuj

13.06.2015

Aleksander

Witam, gratuluję pomysłu na dom. Jest świetny!
dołączam się do prośby, o zdjęcia i możliwość wizyty w wybudowanym domu.
proszę o informacje aleksander.wycislik@gmail.com

Skomentuj

17.03.2015

Mari

Budujecie ten dom? Bardzo by mi zależało na jakichś zdjęciach z realizacji, my zakupiliśmy projekt w zeszłym roku i w tym dostaliśmy wszystkie pozwolenia budowlane ale od tego czasu trochę pozmieniałam projekt, chce np przedłużyć skrzydło mieszkalne i salon o 2 metry oraz wydłużyć dach o 1,2m od strony tarasu już nie mówiąc o zmianach w układzie pokoi i łazienki. Czy wy też tak zmienialiście czy jesteście zadowoleni z oryginalnego układu???

Skomentuj

18.08.2014

Lipinscy_Domy

Musiał wystąpić jakiś chwilowy błąd. Mamy nadzieję że w tej chwili już wszystko jest w porządku.

Skomentuj

16.08.2014

Dorota

Coś się stało, że forum nie działa, szczególnie chodzi mi o zdjęcia....

Skomentuj

04.05.2014

Dorota

Witam, my właśnie rozpoczynamy budowę, tez wprowadziliśmy drobne zmiany. Po obejrzeniu zdjęć mam wątpliwości czy salon nie za mały.... I jakiś taki ciemny na tych zdjęciach. Zobaczymy jak u nas wyjdzie...

Skomentuj

29.04.2014

Lipinscy_Domy

Zdjęcia domu są dodane na forum. Zapraszamy do oglądania, choć projekt jest nieco zmieniony przez Inwestora - zrezygnował z części przeszklonej elewacji. Pompę ciepła oraz fotowaltaikę dobierze instalator.

Skomentuj

29.04.2014

Jacek

Proszę Państwa o wystawić zdjęcia z realizacji, bardzo podoba mi się ten projekt od pół roku go oglądam, zastanawiam się również jakiej wielkości powinna wyglądać instalacja z pompą ciepła (jaka moc) wraz z systemem fotowoltaiczny, kolektory raczej odpadają za duże koszty utrzymania. Jeśli to możliwe proszę o przesłanie zdjęć na adres kecajjacek@wp.pl z góry dziękuję.

Skomentuj

14.01.2014

Lipinscy_Domy

Dobrym pomysłem jest basen na przedłużeniu skrzydła.
Nad kuchnią jest dostępne 1,50 m w najwyższym punkcie, także bez wprowadzenia zmian, choćby kąta nachylenia dachu, nie ma jak wprowadzić antresoli.

Skomentuj

11.01.2014

Magda

Pytanie do autorów, właścicieli projektu i tych którzy nad nim myślą:
1.Co myślicie w przypadku odbicia lustrzanego dodać na prawym skrzydle basen przylegający do budynku z zadaszeniem i z duzymi przeszklonymi oknami tak jak jest to w ciagu korytarzu przy pokojach?
3.Może jakies pomysly gdzie umiejscowic basen o wymiarach 10m x 3,50m 1,55m wewnątrz budynku (lub dobudowac pomieszczenie)
2.Antresola nad kuchnią, w tym przypadku zamiast tak jak w wizualizacji przy wyspie ścianki działowej trzeba by było zamontować spiralne schody. Antresola do wykorzystania jako pokoj zabaw lub silownia.
3.Do właścicieli projektu - jakie zmiany wprowadziliscie?

Skomentuj

01.11.2013

Pawel

Witam wszystkich ktorzy wybudowali lub buduja Girone mam pytanie jaki jest koszt Okien

Skomentuj

15.08.2013

Mari

Może po prostu wrzucicie zdjęcia z realizacji dzieki opcji "dodaj zdjecia na forum" ? ja rowniez byla bym niesamowicie za to wdzieczna...

Skomentuj

11.08.2013

bogdan

Witam Wszystkich,
Piszę żeby się usprawiedliwić jeśli do kogoś nie dotarły wiadomości ode mnie. Próbowałem, ale wyświetla się komunikat o błędnym adresie. Podam swój adres mailowy - bodzio_1958@o2.pl
Pozdrawiam .
Bogdan

Skomentuj

26.07.2013

pawel

Witam wszystkich, ktorzy wybudowali lub buduja Girone czy ktos mial problem z konserwatorem zabytkow jezeli tak prosze o kontakt na pawel.wieczorek1967@wp.pl

Skomentuj

22.07.2013

lech

Witam, widzę Panie Bogdanie, że chyba drzwi się nie zamykają ,tylu chętnych do obejrzenia a tu jeszcze jeden z Głogowa chciałby żonę przekonać, że warto. Jeśli zgadza się Pan to proszę o info na lechyyy@wp.pl lub 693 814 141.

Skomentuj

22.07.2013

Jacek

Hehe zapomniałem wpisać namiary didas33@wp.pl

Skomentuj

20.07.2013

Jacek

Witam
Mam czy mogę prosić Panie Bogdanieb o kontakt. Jeseśmy bardzo zainteresowani tym projektem i mamy trochę pytań.
Pozdrawia Jacek z Bolesławca

Skomentuj

30.06.2013

Darek

Witam wszystkich fanów Girony. Szukam projektu domu pasywnego lub energooszczędnego. Girona od razu także wpadła mi w oko. A relacja Bogdana mnie bardzo zainteresowała.
Mam pytania do Bogdana:
1. Czy naprawdę z izolacją Isomax uzyskałeś standard domu pasywnego?
2. Czy można Cię prosić o kontakt, ewentualnie odwiedzić?
dapo@onet.pl

Skomentuj

25.05.2013

Jurek

Witam fanów i realizatorów Girony.
Jak mieszka się Państwu w tym domu? My chcemy rozpocząć budowę jak tylko dostaniemy wszystkie niezbędne decyzje i doprowadzimy przyłącza. Bardzo chętnie obejrzymy Państwa dom, jeśli istnieje taka możliwość - może w wakacje? Poproszę o kontakt na mail: j.sokolowski2107@wp.pl

Skomentuj

25.05.2013

CLAPTON

PROJEKT SUPER, JUŻ OBEJRZELIŚMY Z ZONA SPORO DOMÓW I PROJEKTÓW NA ŻYWO I CIĄGLE WRACAMY DO GIRONY. DRODZY PAŃSTWO JEŚLI KTOŚ WYBUDOWAŁ, BUDUJE TAKI DOM W LUBELSKIM LUB W PODKARPACKIM SERDECZNIE PROSZĘ O KONTAKT. POZDRAWIAM. PS. PANIE BOGDANIE PROSZĘ O KILKA FOTEK NA MAILA klapcio80@wp.pl.

Skomentuj

16.05.2013

Bartek

Witam Panie Bogdanie strasznie spodobał się nam ten projekt. Jesteśmy z Lubina czy była by możliwość zobaczenia na żywo tego Cacka ;-) proszę o odpowiedzieć na maila marta-kanska@wp.pl

Marta i Bartek

Skomentuj

06.05.2013

Ilona

Czy ja mogłabym prosić Pana Bogdana o przesłanie zdjęc jak wyszedł wam ten dom, i zdjęcia z wnętrza jeżeli byłaby taka możliwość, na adres ilona168@poczta.onet.pl.

Skomentuj

30.04.2013

aga

Mam prośbę do Bogdana, czy mogłabym poprosić Twojego e-maila'a. Chcemy rozpocząć budowę Girony w sierpniu i mam kilka pytań oraz prośbę, żeby przesłać kilka zdjęć z wnętrz. Jeśli nie sprawi Ci to kłopotu, to odezwij się proszę na adres: agnieszkamakowska@op.pl.

Skomentuj

24.04.2013

bogdan

Witam serdecznie fanów Girony.
My się przeprowadzamy w najbliższą sobotę. Jest to nasz drugi dom , w tamtym także nam się wygodnie mieszkało ale schody stawały sie coraz bardziej uciążliwe. Girona jest naprawdę domem bardzo funkcjonalnym, wygodnym i przestronnym. Zrobiliśmy w nim parę zmian, ale to w niczym nie zakłóciło stylu domu.
Koszty. Dużo rzeczy robiłem sam tzn. instalacje hydrauliczne, kanalizacyjne i grzewcze, malowanie, układanie podłóg,
montaż oświetlenia i gniazd elektrycznych - chyba wszystko. Dodam , że dodatkowe prace związane były z budową domu w technologii z barierą termiczną Isomax. Budynek w tej technologii nie potrzebuje tradycyjnej kotłowni na gaz, ekogroszek czy też pompy ciepła. Temperaturę w domu zapewnia słońce i grunt.
Wrócę do kosztów - może być to zaskoczeniem przy kwocie Pani Sylwii - połowa , czyli pół miliona. Ja także budowałem z materiałów najlepszych , czyli Ytong Energi 36,5, okna Rehau Geneo, dachówka Nelskamp Nibra.
Budowę rozpoczęliśmy pod koniec sierpnia 2012 .
Wybudowaliśmy się na Dolnym Śląsku, okolice Lubina.
Pozdrawiam wszystkich i zapraszam.

BOGDAN

Skomentuj

20.04.2013

aga

Sylwia, w jakim rejonie Polski wybudowaliście dom? Mogę poprosić i jakieś zdjęcia z wnętrza na adres: agnieszkamakowska@op.pl.

Skomentuj

23.03.2013

Miri

Witam serdecznie wszystkich fanów tego projektu do których siebie właśnie zaliczam:). Bardzo proszę o szacunkową informację na temat kosztu budowy i ewentualnej eksploatacji jesli ktoś już zakończył inwestycję.

Skomentuj

14.03.2013

mika

Świetny projekt, nasz wymarzony (z małymi zmianami ;) czy może ktoś go realizuje gdzieś w lubelskim?

Skomentuj

20.02.2013

Mari

Bardzo nam się podoba ten domek, ma wszystko! no może brak mi w nim tylko większej głównej łazienki... Jestem niesamowicie ciekawa jak w rzeczywistości wygląda ten projekt, była bym niesamowicie wdzieczna za zdjecia z realizacji lub namiary gdzie taki dom juz stoi i czy rzeczywiscie jest energooszczedny. Bardzo prosze o kontakt marinita@poczta.onet.pl

Skomentuj

18.01.2013

Dorota

Gratulacje, jesteśmy w trakcie przygotowań do budowy. Sylwia, czy mogę prosić fotki na maila? dor35@op.pl jesteśmy bardzo ciekawi jak domek wygląda w rzeczywistości. Z góry dziękuję

Skomentuj

16.01.2013

Sylwia

Domek stoi, mieszkamy w nim od grudnia - jest cudowny. Jeżeli chodzi o koszty budowy to są spore... fakt, że używaliśmy najlepszych materiałów ponieważ dom ma być na lata - trzeba liczyć się z kosztem ok. 1mln złotych (okna, oczyszczalnia ścieków, rekuperacja, pompa ciepła z instalacją to jest to co generuje największe koszta)

Skomentuj

10.01.2013

adam

Witam również jesteśmy zainteresowani tym projektem
Jeżeli istnieje możliwość prośba do Pana Bogdana oraz innych szczęściarzy posiadających już ten dom bądź będących w trakcie jego budowy prosił bym o zdjęcia oraz szacowany kosztorys na emila zaczar12@o2.pl

Skomentuj

02.12.2012

Adam i Monika Jakubowscy

Panie Bogdanie ja rowniez prosze o zdjecia jak mozna na maila monika.spyt@wp.pl

Skomentuj

13.11.2012

aga

Jeśli ktoś już buduje mogę poprosić o info o kosztach budowy i zdjęcia :agnieszkamakowska@op.pl, Buduje ktoś może w kuj-pom?

Skomentuj

20.09.2012

sylwetka

A może ktoś buduje taki dom w woj. podkarpackim w okolicach miasta Tarnobrzeg?

Skomentuj

19.09.2012

sylwetka

Podobnie jak p. Monika ciekawa jestem jaki jest koszt takiego domku.Jeśli ktoś go już wybudowal prosze o informacje i zdjecia haas@buziaczek.pl

Skomentuj

13.09.2012

Monika i Adam Jakubowscy

Czy można zmniejszyc garaż o jeden samochod i powiekszyc kuchnie, aby byla ok. 20m2

Skomentuj

12.09.2012

Monika Jakubowska

Super projekt ciekawa jaki jest koszt takiego cacka i czy nas stać jak ktoś go juz wybudowal prosze o informacje i zdjecia monika.spyt@wp.pl

Skomentuj

12.09.2012

Monika Jakubowska

Super projekt ciekawa jaki jest koszt takiego cacka i czy nas stać jak ktoś go juz wybudowal prosze o informacje i zdjecia monika.spyt@wp.pl

Skomentuj

23.07.2012

Dorota

Czyli budujecie, a można prosić Bogdan o jakieś fotki, może być na maila . dor35@op.pl Tez czaimy sie na ten projekt od dłuższego czasu. Masz działkę na górce? Dużą? Jestem bardzo ciekawa jak to wyjdzie w rzeczywistości...
Pozdrawiam serdecznie wszystkich zainteresowanych

Skomentuj

30.06.2012

bogdan

już girona / ,,wiatraczek"/ jest usytuowana na działce, jaszcze trochę i pobudzę ją do życia.

Skomentuj

01.05.2012

Dorota

Też mamy chęć na ten projekt, ale nie wiem jak będzie wyglądał w rzeczywistości. Troche boję sie że taki kurnikowaty trochę jest... jak myslicie?

Skomentuj

16.04.2012

Bogdan Lisowicz / bodzio

Lada dzień kupę Gironę i będę ją osobiście rzeźbił. Jestem pewny,że będzie Nam się w niej mieszkało szczęśliwie !
Przypadł mi od razu do gustu i nic już nie potrafiło tego zmienić.
Zapraszam na budowę.

Skomentuj

20.02.2012

Tom

Pozytywnie zaskakujący projekt. Jak dla mnie bardzo odważny. Ciekawe jak się mieszka w takiej gwieździe?:)

Skomentuj

08.11.2011

Igor

Po prostu - wow! Już w miniaturce zwrócił moją uwagę, a jak otworzyłem w nowej karcie - rzut z góry naprawdę mnie zaskoczył na plus. I ten ciąg dużych okien przestrzeń. Najlepszy projekt!

Skomentuj

22.07.2011

Rusłan45

Mamy działkę, która jest idealna pod ten projekt. Żona chce, aby dom był z widokiem na ogród, no to wszystko się zgadza.

Skomentuj

21.06.2011

Ula_Gdynia

Znalazłam u Was sporo projektów, które mnie zaskoczyły. Rzecz jasna, zaskoczyły pozytywnie. Gratuluję pomysłowości, połączonej z awangardą i praktycznością. Mieszkać w takim domu, to zapewne sama przyjemność.

Skomentuj

Opinie nie są weryfikowane pod kątem ich pochodzenia od konsumentów, którzy używali produktu lub go nabyli.

Polecane rozwiązania

Podobne projekty (7)

projekt Girona należy do kategorii

Ostatnio oglądane