Projekt domu
DCBL13
Cena projektu
6 670 zł z VAT (cena segmentu: 3 670)
| Powierzchnia użytkowa | 2x135,91m2 |
| Powierzchnia netto | 2x163,96m2 |
| Powierzchnia zabudowy | 2x79,48m2 |
| Min. szerokość działki | 9,20m x 20,90m |
| Kubatura | 2x537,32m2 |
| Wysokość kalenicy | 9,97m |
| Kąt nachylenia dachu | 40° |
Energooszczędny dom jednorodzinny, w zabudowie bliźniaczej, z możliwością wydzielenia dwóch mieszkań. Pierwsze z nich, mniejsze – na parterze może należeć do seniorów, drugie zaś – na pierwszym i drugim piętrze (poddasze) – może być użytkowane przez większą rodzinę. Dzięki zastosowaniu dużych lukarn udało się zminimalizować skosy i uzyskać więcej powierzchni użytkowej. Nowoczesna architektura budynku sprawia, że projekt będzie się sprawdzał, zarówno w zabudowie szeregowej, jak i jako budynek bliźniaczy czy wolnostojący.
| EUco = 2x33,44kWh/(m²rok) |
| EP = 2x69,44kWh/(m²rok) |
Projekt zgodny z wt2021
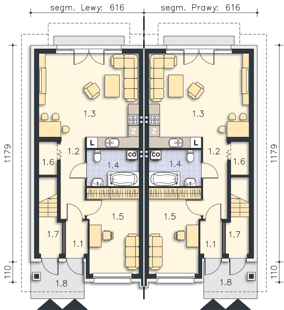
| 1.1 | Wiatrołap | 2,13m2 |
| 1.2 | Komunikacja | 5,87m2 |
| 1.3 | Pokój, kuchnia | 26,40m2 |
| 1.4 | Łazienka, c.o. | 5,62m2 |
| 1.5 | Pokój | 12,81m2 |
| 1.6 | Schowek | 1,75m2 |
| 1.7 | Wiatrołap | 2,43m2 |
| 1.8 | Podest | 4,74m2 |
| 1.1 | Wiatrołap | 2,13m2 |
| 1.2 | Komunikacja | 5,87m2 |
| 1.3 | Pokój, kuchnia | 26,40m2 |
| 1.4 | Łazienka, c.o. | 5,62m2 |
| 1.5 | Pokój | 12,81m2 |
| 1.6 | Schowek | 1,75m2 |
| 1.7 | Wiatrołap | 2,43m2 |
| 1.8 | Podest | 4,74m2 |
| 2.1 | Schody | 4,01m2 |
| 2.2 | Komunikacja | 5,75m2 |
| 2.3 | Pokój dzienny, kuchnia | 25,07m2 (26,13m2) |
| 2.4 | Łazienka, c.o. | 5,71m2 |
| 2.5 | Pokój | 12,51m2 |
| 2.6 | Pokój | 7,05m2 (9,07m2) |
| 2.7 | Balkon | 4,42m2 |
| 2.1 | Schody | 4,01m2 |
| 2.2 | Komunikacja | 5,75m2 |
| 2.3 | Pokój dzienny, kuchnia | 25,07m2 (26,13m2) |
| 2.4 | Łazienka, c.o. | 5,71m2 |
| 2.5 | Pokój | 12,51m2 |
| 2.6 | Pokój | 7,05m2 (9,07m2) |
| 2.7 | Balkon | 4,42m2 |
| 3.1 | Schody | 4,18m2 |
| 3.2 | Pokój | 14,62m2 (30,33m2) |
| 3.1 | Schody | 4,18m2 |
| 3.2 | Pokój | 14,62m2 (30,33m2) |
Grafika przedstawia minimalne wymiary działki. Aby sprawdzić, czy dom może być realizowany na konkretnej działce należy uzyskać Wypis i Wyrys z Miejscowego Planu Zagospodarowania Przestrzennego lub jeśli na danym terenie nie ma planu – Decyzję o warunkach zabudowy. Wszystkie projekty wymagają adaptacji do warunków miejscowych przez projektanta lokalnego.
Fundamenty - płyta fundamentowa
Ściany zewnętrzne - Bloczek silikatowy 24 cm + styropian 20 cm
Strop - żelbetowy
Dach - tradycyjna więźba ciesielska
Ogrzewanie - c.o. grzejnikowe + c.w.u. - kocioł gazowy
WENTYLACJA - grawitacyjna
Na etapie adaptacji projektu istnieje możliwość zamiany materiałów na inne o podobnych właściwościach i parametrach technicznych. Pamiętaj! Projekt stanowi spójną całość i zmiana rozwiązań może wpłynąć na jego właściwości wytrzymałościowe i cieplne.
| Stan surowy zamknięty | 2x319 400 zł |
| Stan deweloperski | 2x505 600 zł |
Szacunkowa wycena netto. Biuro projektowe nie zajmuje się realizacją inwestycji.
Edmonton
DCS15131,47m2
Cena projektu:4570 zł
Springfield
DCS18124,88m2
Cena projektu:4470 zł
Winnipeg
LMBL35154,39m2
Cena projektu:5690 zł
Everett
DCBL36159,79m2
Cena projektu:7270 zł
Zurych III
LMBL42125,59m2
Cena projektu:6890 zł
Genewa III
DCBL45155,16m2
Cena projektu:6270 zł
Tromso
LMBL47103,64m2
Cena projektu:7490 zł
Tromso II
LMBL47a86,63m2
Cena projektu:6870 zł
Norwich II
LMBL41A106,90m2
Cena projektu:7290 zł
Opinie (4)
13.03.2017
Lipinscy_Domy
Tak, projekt zawiera wymienione instalacje oraz konstrukcję. Wymaga jedynie adaptacji do działki przez lokalnego architekta.
Skomentuj11.03.2017
Krzysiupra
Witam,
SkomentujCzy w projekcie znajdują się również instalacje wodnokanalizacyje, elektryczne CO itp? Ogólnie to jest kompletny projekt dzięki któremu wybuduje dom już bez pomocy biur konstrukcyjnych.?
21.10.2016
Lipinscy_Domy
Tak. Zapraszamy do kontaktu mailowego lub telefonicznego.
Skomentuj21.10.2016
Deweloper
Czy można uzyskać dokumentacje osobno na prawy i osobno na lewy segment?
SkomentujOpinie nie są weryfikowane pod kątem ich pochodzenia od konsumentów, którzy używali produktu lub go nabyli.