PROMOCJA
ULUBIONE

Projekt domu

Arezzo II 109,15m²

LMB81a

PROMOCJA
- 400 zł
od 3 do 17 marca 2026

 

Karta projektu Podziel się:

Opis projektu

Wersja parterowego domu LMB 81 z wydzieloną kotłownią za garażem. Dzięki takiemu usytuowaniu kotłowni może być ona zaadaptowana jako kotłownia z piecem na paliwo stałe. Wnętrze domu podzielono na obszerny salon z kominkiem, kuchnię ze spiżarnią, pomieszczenie gospodarcze, dużą łazienka, wc i dwie sypialnie. Od strony elewacji ogrodowej zlokalizowano zadaszony taras, który, dzięki dużym przeszkleniom w salonie, stanowi niemal część pokoju.

Zapotrzebowanie Energetyczne

EUco = 40,31kWh/(m²rok)
EP = 69,90kWh/(m²rok)

Projekt zgodny z wt2021

Dowiedz się więcej  

Parter 138,11m2

Gotowy projekt domu Arezzo II rzut Parter

138,11m2

1.1 Wiatrołap 4,84m2
1.2 Garderoba 2,92m2
1.3 Komunikacja 9,39m2
1.4 Wc 2,70m2
1.5 Łazienka 6,71m2
1.6 Pokój 11,96m2
1.7 Pokój 21,97m2
1.8 Pokój dzienny 25,79m2
1.9 Pom.gosp. 4,50m2
1.10 Spiżarnia 3,15m2
1.11 Kuchnia 15,22m2
1.12 Kotłownia 8,01m2
1.13 Garaż 20,95m2
1.14 Podest 5,07m2
1.15 Taras 14,33m2
1.16 Podest 1,50m2
1.1 Wiatrołap 4,84m2
1.2 Garderoba 2,92m2
1.3 Komunikacja 9,39m2
1.4 Wc 2,70m2
1.5 Łazienka 6,71m2
1.6 Pokój 11,96m2
1.7 Pokój 21,97m2
1.8 Pokój dzienny 25,79m2
1.9 Pom.gosp. 4,50m2
1.10 Spiżarnia 3,15m2
1.11 Kuchnia 15,22m2
1.12 Kotłownia 8,01m2
1.13 Garaż 20,95m2
1.14 Podest 5,07m2
1.15 Taras 14,33m2
1.16 Podest 1,50m2

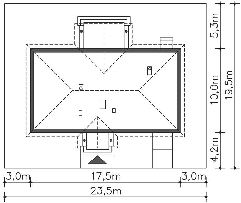
Wymiary działki

Gotowy projekt domu Arezzo II wymiary działki

Przekrój

Gotowy projekt domu Arezzo II przekrój

Elewacje

Gotowy projekt domu Arezzo II elewacja przód Gotowy projekt domu Arezzo II elewacja lewa Gotowy projekt domu Arezzo II elewacja tył Gotowy projekt domu Arezzo II elewacja prawa

Działka

Grafika przedstawia minimalne wymiary działki. Aby sprawdzić, czy dom może być realizowany na konkretnej działce należy uzyskać Wypis i Wyrys z Miejscowego Planu Zagospodarowania Przestrzennego lub jeśli na danym terenie nie ma planu – Decyzję o warunkach zabudowy. Wszystkie projekty wymagają adaptacji do warunków miejscowych przez projektanta lokalnego.

Dowiedz się więcej  

Technologia projektu

Fundamenty - rozwiązanie o podwyższonej izolacji termicznej

Ściany zewnętrzne - Pustak ceramiczny 25 cm + styropian 15 cm

Strop - drewniany

Dach - tradycyjna więźba ciesielska

Ogrzewanie - c.o. grzejnikowe + c.w.u. - kocioł gazowy (alternatywa paliwo stałe)

WENTYLACJA - grawitacyjna

Na etapie adaptacji projektu istnieje możliwość zamiany materiałów na inne o podobnych właściwościach i parametrach technicznych. Pamiętaj! Projekt stanowi spójną całość i zmiana rozwiązań może wpłynąć na jego właściwości wytrzymałościowe i cieplne.

Dowiedz się więcej  

Szacunkowe koszty realizacji

Stan surowy zamknięty 279 000 zł
Stan deweloperski 493 100 zł

Szacunkowa wycena netto. Biuro projektowe nie zajmuje się realizacją inwestycji.

Dowiedz się więcej  

Wyceń bezpłatnie budowę domu u wykonawcy  

Wersje projektu Arezzo II (3)

Gotowy projekt domu Rawenna

- 400 zł

Rawenna

LMB74108,85m2

Domek parterowy z dachem kopertowym, z trzema sypialniami, dużą łazienką, osobnym wc i kotłownią, bez garażu
Gotowy projekt domu Rawenna II

- 400 zł

Rawenna II

LMB74A108,85m2

Domek parterowy z dachem dwuspadowym, z trzema sypialniami, dużą łazienką, osobnym wc i kotłownią, z garażem dwustanowiskowym
Gotowy projekt domu Arezzo

Arezzo

LMB81108,93m2

Tradycyjny dom parterowy, idealny dla niewielkiej rodziny: pokój dzienny z kominkiem, kuchnia z przejściem do spiżarki i garażu, dwie sypialnie, dwie łazienki, garaż.

Opinie (12)

17.03.2014

Lipinscy_Domy

Orientacyjnie podobnie jak powyżej.

Skomentuj

11.03.2014

Elżbieta

Bardzo mi się podoba ten projekt. Ile może kosztować wybudowanie takiego domu np. z itągu( gazobeton)? Wyposarzenie średniej klasy, bez wydziwień?

Skomentuj

27.08.2013

Lipinscy_Domy

Zmianę stropu może wprowadzić lokalny architekt w ramach adaptacji.

Skomentuj

25.08.2013

Kamil

Czy zamiast stropu drewnianego można położyć gotowy strop tzw.monolityczny?

Skomentuj

11.04.2013

Lipinscy_Domy

Projekt jest jeszcze nie skończony i jeszcze nie mamy do niego instalacji. Jednak najprawdopodobniej będzie to w kuchni 1.11 lub przy łazienkach 1.5.

Skomentuj

10.04.2013

jacek

W którym miejscu bryły domu zlokalizowane jest wejście przyłącza kanalizacyjnego i wodnego - proszę o wskazanie nazwy pomieszczenia (pomieszczeń) i określenie ściany granicznej zewnętrznej budnku przez którą przechodzą te przyłącza.

Skomentuj

23.11.2012

Lipinscy_Domy

Tak, możemy przeprojektować ten dom, aby uzyskał standard energooszczędny. W tej sprawie prosimy o kontakt bezpośredni.

Skomentuj

22.11.2012

Dawid

Czy jest możliwość zrobienia z tego projektu domu energooszczędnego, takiego aby dostać dopłatę do budowy?

Skomentuj

03.10.2012

Lipinscy_Domy

Po kilku zmianach 1.5, 1.6. i 1.7 dało by się wygospodarować dodatkowy pokój, np. podobnie jak w projekcie Rawenna.

Skomentuj

27.09.2012

Lipinscy_Domy

Teoretycznie strych można wykorzystać na dodatkowe pomieszczenia. Trzeba jednak wziąć pod uwagę, że schody na to poddasze zajmą sporą część parteru. Niemniej jednak taką zmianę zawsze można wprowadzić i może jej dokonać każdy uprawniony projektant w ramach adaptacji projektu.

Skomentuj

26.09.2012

derdzik

mam pytanie czy dało by sie zrobic trzy sypialnie .

Skomentuj

19.09.2012

Luki

Czy mozna zaadaptować strych na poddasze użytkowe?

Skomentuj

Opinie nie są weryfikowane pod kątem ich pochodzenia od konsumentów, którzy używali produktu lub go nabyli.

Polecane rozwiązania

Podobne projekty (5)

projekt Arezzo II należy do kategorii

Ostatnio oglądane