PROMOCJA
ULUBIONE

Projekt domu

Segowia 114,18m²

LMBL46

 


Opis projektu

Dom do zabudowy bliźniaczej (także z możliwością budowy tylko jednego segmentu), z użytkowym poddaszem i opcją użytkowania 4 niezależnych mieszkań. Na parterze zlokalizowano salon z aneksem kuchennym, wygodną sypialnię oraz łazienkę. W wiatrołapie zmieściły się podręczne szafy, jest tu także przydatny schowek. Poddasze to salon z aneksem kuchennym raz dwie sypialnie, łazienka i schowek. Takie rozplanowanie przestrzeni doskonale sprawdza się w przypadku wynajmu mieszkań lub kiedy dom zamieszkują rodzice, potrzebujący opieki dzieci, a mieszkańcy chcą przy tym zachować niezależność.

Zapotrzebowanie Energetyczne

EUco = 2x29,44kWh/(m²rok)
EP = 2x69,90kWh/(m²rok)

Projekt zgodny z wt2021

Dowiedz się więcej  

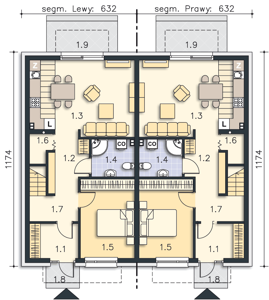
Parter 56,44m2

Gotowy projekt domu Segowia rzut Parter

56,44m2

1.1 Wiatrołap 4,98m2
1.2 Komunikacja 6,47m2
1.3 Pokój, kuchnia 22,85m2
1.4 Łazienka 4,70m2
1.5 Pokój 12,74m2
1.6 Schowek 0,87m2 (1,77m2)
1.7 Komunikacja 3,83m2
1.8 Podest 1,65m2
1.9 Podest 6,61m2
1.1 Wiatrołap 4,98m2
1.2 Komunikacja 6,47m2
1.3 Pokój, kuchnia 22,85m2
1.4 Łazienka 4,70m2
1.5 Pokój 12,74m2
1.6 Schowek 0,87m2 (1,77m2)
1.7 Komunikacja 3,83m2
1.8 Podest 1,65m2
1.9 Podest 6,61m2

Poddasze 57,74m2

Gotowy projekt domu Segowia rzut Poddasze

57,74m2

2.1 Schody 3,43m2
2.2 Komunikacja 6,71m2
2.3 Pokój dzienny, kuchnia 20,70m2 (22,69m2)
2.4 Łazienka 4,66m2
2.5 Schowek 1,54m2
2.6 Pokój 10,35m2 (11,35m2)
2.7 Pokój 10,35m2 (11,35m2)
2.8 Balkon 2,95m2
2.1 Schody 3,43m2
2.2 Komunikacja 6,71m2
2.3 Pokój dzienny, kuchnia 20,70m2 (22,69m2)
2.4 Łazienka 4,66m2
2.5 Schowek 1,54m2
2.6 Pokój 10,35m2 (11,35m2)
2.7 Pokój 10,35m2 (11,35m2)
2.8 Balkon 2,95m2

Wymiary działki

Gotowy projekt domu Segowia wymiary działki

Przekrój

Gotowy projekt domu Segowia przekrój

Elewacje

Gotowy projekt domu Segowia elewacja przód Gotowy projekt domu Segowia elewacja lewa Gotowy projekt domu Segowia elewacja tył Gotowy projekt domu Segowia elewacja prawa

Działka

Grafika przedstawia minimalne wymiary działki. Aby sprawdzić, czy dom może być realizowany na konkretnej działce należy uzyskać Wypis i Wyrys z Miejscowego Planu Zagospodarowania Przestrzennego lub jeśli na danym terenie nie ma planu – Decyzję o warunkach zabudowy. Wszystkie projekty wymagają adaptacji do warunków miejscowych przez projektanta lokalnego.

Dowiedz się więcej  

Technologia projektu

Fundamenty - płyta fundamentowa

Ściany zewnętrzne - Bloczek betonu komórkowego 24 cm + styropian 20 cm

Strop - gęstożebrowy

Dach - tradycyjna więźba ciesielska

Ogrzewanie - c.o. grzejnikowe + c.w.u. - kocioł gazowy

WENTYLACJA - grawitacyjna

Na etapie adaptacji projektu istnieje możliwość zamiany materiałów na inne o podobnych właściwościach i parametrach technicznych. Pamiętaj! Projekt stanowi spójną całość i zmiana rozwiązań może wpłynąć na jego właściwości wytrzymałościowe i cieplne.

Dowiedz się więcej  

Szacunkowe koszty realizacji

Stan surowy zamknięty 2x230 700 zł
Stan deweloperski 2x407 700 zł

Szacunkowa wycena netto. Biuro projektowe nie zajmuje się realizacją inwestycji.

Dowiedz się więcej  

Wyceń bezpłatnie budowę domu u wykonawcy  

Opinie (6)

08.01.2019

Lipińscy Domy

Możemy wycenić podpiwniczenie lub wydać bezpłatną zgodę na zmianę u lokalnego architekta.
Szczegóły w żółtej zakładce dotyczącej zmian w projektach.

Skomentuj

07.01.2019

Lukasz R.

Czy wykonują Państwo projekt podpiwniczenia?

Skomentuj

25.07.2018

Lipińscy Domy

Tak, możemy przygotować taką wersję. Zapraszamy do kontaktu telefonicznego lub mailowego.

Skomentuj

24.07.2018

Bartłomiej R

Czy projekt Segowia może być zaprojektowany jako dom jednorodzinny dwulokalowy?

Skomentuj

17.07.2017

Lipinscy_Domy

Można zamówić takie projekty. Szczegóły: biuro@lipinscy.pl

Skomentuj

17.07.2017

Krzysztof N.

A czy można połączyć w szeregówkę tylko segmenty lewe? I realizować wtedy np. wszystkie stropy filigran?

Skomentuj

Opinie nie są weryfikowane pod kątem ich pochodzenia od konsumentów, którzy używali produktu lub go nabyli.

Polecane rozwiązania

Podobne projekty (5)

projekt Segowia należy do kategorii

Ostatnio oglądane