PROMOCJA
ULUBIONE

Projekt domu

Montreal III 161,55m²

DCP180b

 

Karta projektu Podziel się:

Opis projektu

Dla właścicieli wąskich działek, którym podoba się projekt Montreal, stworzyliśmy wersję z garażem usytuowanym od frontu. Dom nabrał nowych, ciekawych proporcji, a wnętrze zachowało charakterystyczną dla tego domu przestronność. Dzieje się to z powodu antresoli w salonie oraz wielkim przeszkleniom w nim i w jadalni. Naturalnie mają one uzasadnienie nie tylko chęcią otworzenia się na ogród, ale przede wszystkim mają wpływ na energooszczędność. Ponadto podkreślają nowoczesność tego budynku.

Zapotrzebowanie Energetyczne

EUco = 22,01kWh/(m²rok)
EP = 65,12kWh/(m²rok)

Projekt zgodny z wt2021

Dowiedz się więcej  

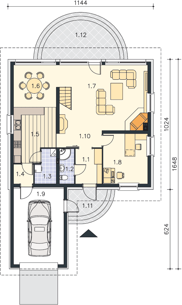
Parter 114,79m2

Gotowy projekt domu Montreal III rzut Parter

114,79m2

1.1 Wiatrołap 5,69m2
1.2 Łazienka 3,16m2
1.3 Pralnia, c.o. 3,97m2
1.4 Spiżarnia 2,34m2
1.5 Kuchnia 11,05m2
1.6 Jadalnia 13,48m2
1.7 Pokój dzienny 33,23m2 (35,33m2)
1.8 Pokój 13,72m2
1.9 Garaż 23,46m2
1.10 Komunikacja 4,69m2
1.11 Podest 5,43m2
1.12 Taras 15,06m2
1.1 Wiatrołap 5,69m2
1.2 Łazienka 3,16m2
1.3 Pralnia, c.o. 3,97m2
1.4 Spiżarnia 2,34m2
1.5 Kuchnia 11,05m2
1.6 Jadalnia 13,48m2
1.7 Pokój dzienny 33,23m2 (35,33m2)
1.8 Pokój 13,72m2
1.9 Garaż 23,46m2
1.10 Komunikacja 4,69m2
1.11 Podest 5,43m2
1.12 Taras 15,06m2

Poddasze 70,22m2

Gotowy projekt domu Montreal III rzut Poddasze

70,22m2

2.1 Komunikacja 7,24m2
2.2 Pokój 18,82m2 (22,11m2)
2.3 Pokój 12,75m2 (16,06m2)
2.4 Pokój 12,63m2 (15,93m2)
2.5 Łazienka 7,90m2 (9m2)
2.6 Łazienka 3,66m2 (4,40m2)
2.7 Garderoba 3,46m2 (5,15m2)
2.8 Schody 3,76m2
2.1 Komunikacja 7,24m2
2.2 Pokój 18,82m2 (22,11m2)
2.3 Pokój 12,75m2 (16,06m2)
2.4 Pokój 12,63m2 (15,93m2)
2.5 Łazienka 7,90m2 (9m2)
2.6 Łazienka 3,66m2 (4,40m2)
2.7 Garderoba 3,46m2 (5,15m2)
2.8 Schody 3,76m2

Wymiary działki

Gotowy projekt domu Montreal III wymiary działki

Przekrój

Gotowy projekt domu Montreal III przekrój

Elewacje

Gotowy projekt domu Montreal III elewacja przód Gotowy projekt domu Montreal III elewacja lewa Gotowy projekt domu Montreal III elewacja tył Gotowy projekt domu Montreal III elewacja prawa

Działka

Grafika przedstawia minimalne wymiary działki. Aby sprawdzić, czy dom może być realizowany na konkretnej działce należy uzyskać Wypis i Wyrys z Miejscowego Planu Zagospodarowania Przestrzennego lub jeśli na danym terenie nie ma planu – Decyzję o warunkach zabudowy. Wszystkie projekty wymagają adaptacji do warunków miejscowych przez projektanta lokalnego.

Dowiedz się więcej  

Technologia projektu

Fundamenty - rozwiązanie o podwyższonej izolacji termicznej

Ściany zewnętrzne - Bloczek silikatowy 24 cm + styropian 20 cm

Strop - gęstożebrowy

Dach - tradycyjna więźba ciesielska

Ogrzewanie - c.o. grzejnikowe + c.w.u. - kocioł gazowy

WENTYLACJA - rekuperacja

Na etapie adaptacji projektu istnieje możliwość zamiany materiałów na inne o podobnych właściwościach i parametrach technicznych. Pamiętaj! Projekt stanowi spójną całość i zmiana rozwiązań może wpłynąć na jego właściwości wytrzymałościowe i cieplne.

Dowiedz się więcej  

Szacunkowe koszty realizacji

Stan surowy zamknięty 434 800 zł
Stan deweloperski 688 300 zł

Szacunkowa wycena netto. Biuro projektowe nie zajmuje się realizacją inwestycji.

Dowiedz się więcej  

Wyceń bezpłatnie budowę domu u wykonawcy  

Wersje projektu Montreal III (1)

Gotowy projekt domu Montreal II
Projekt
Energo
Oszczędny

Montreal II

DCP180a191,16m2

Dom z poddaszem użytkowym, z dachem dwuspadowym i lukarna od frontu, dwustanowiskowym garażem, z przeszkloną ścianą ogrodową, z gabinetem, oraz trzema sypialniami i dużym pokojem nad garażem

Opinie (3)

26.03.2012

Paweł, Milicz

Ten projekt spełnił moje oczekiwania, prosta bryła, ciekawy rozkład wnętrz, nadaje się na wąską działkę z uwagi na wysunięcie garażu do przodu, dom energooszczędny , dwuspadowy dach. Jest to dom energooszczędny z antresolą. Nie znalazłem innego projektu , który by łączył w sobie te cechy.

Skomentuj

15.02.2011

aldon1

Witam, bardzo przestronny projekt domu. Podoba mi się to przeszklenie na parterze, bardzo efektowne i dające dużo światła dziennego. Fajny pomysł też z klatką schodową, która jest wyeksponowania i nie zajmuje dużo miejsca. Bardzo mi się podoba!

Skomentuj

12.01.2010

Jola

Witam. Bardzo podoba mi się ten projekt i mam pytanie czy istnieje możliwość przesłania na maila rysunków szczegółowych dot. tego projektu? mój email to jolka_g@interia.eu.
Dziękuję za wszelkie informacje i pozdrawiam
Jola

Skomentuj

Opinie nie są weryfikowane pod kątem ich pochodzenia od konsumentów, którzy używali produktu lub go nabyli.

Polecane rozwiązania

Podobne projekty (6)

projekt Montreal III należy do kategorii

Ostatnio oglądane