PROMOCJA
ULUBIONE

Wersje projektu Sofia III

Ostatnio oglądana wersja

Sofia III

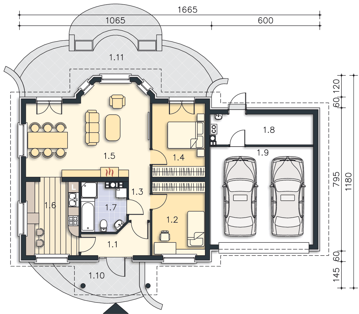
LMB41b83.08m2

Powierzchnia parter 125.44 m2

Powierzchnia strych 42.12 m2

+32.45m² garaż +9.91m² kotłownia
21.12.2010
IGNAC

TEN PROJEKT JEST SUPER ,ALE JUŻ PRZECUDNIE BY BYŁO JAK BYŚCIE PAŃSTWO ZAPROJEKTOWALI SOFIE Z 3 POKOJAMI !KUPIŁBYM TEN PROJEKT NA 100%,ALE BRAKUJE MI NIESTETY JEDNEGO POKOJU DLA BABCI:)A PODDASZA NIE CHCĘ MIEĆ.POMYŚLCIE O TYM ,BO TO JEDEN Z NAJŁADNIEJSZYCH PROJEKTÓW JAKIE SĄ NA POLSKIM RYNKU!!!!
!POZDR IGNAC

03.01.2011
ola

witam! widzę że to nie tylko ja czekam na kolejne wydanie projektu domu Sofia z 3 sypialniami [oczywiście na parterze :)...]
początkowo zastanawiałam się jeszcze nad adaptacją garażu na odrębna sypialnie z łazienka i garderobą-ale niestety problem z dojściem do tego pokoju jest....

09.01.2011
Agnieszka

Ja również przyłączam się do prośby zaprojektowania tego domu z 3 pokojami na dole + salon. My też z mężem kupilibyśmy go na 100%. Po przejrzeniu dziesiątek stron z projektami zawsze wracamy na Państwa stronę do Sofii, ale nie chcemy poddasza, a planujemy 2 i chcielibyśmy, żeby każdy miał swój pokój.
Pozdrawiam serdecznie

12.01.2011
ANIOŁ

Witam :)projekt sliczny ,nie drogi w budowie .Problem z trzecim pokojem jest i go nie ma ,bez problemu mozna wykorzystac salon polaczony z kuchnia i mamy 3 pokoje bez zadnej zgody i zmiany w projekcie .Drugie wyjscie mozna na podaszu zrobic dwa lub jeden wiekszy pokoj ,fakt trzeba gdzies wcisnac schody .Ja osobiscie bede robil salon powiekszony o pokoj a w nim kuchnia z lewej strony za to z kuchni zrobie pokoj ta zmiana nie wymaga pozwolenia :)POZDRAWIAM

27.01.2011
Ania

AnNIOŁ ja wymyśliłam prawie tak samo z kuchni zrobić pokój z wejsciem od wiatrołapu (bez drzwi do salonu) a pokój po prawej stronie w salonie będzie półotwartą kuchnią :)

16.02.2011
Luty

Trzeci pokój naprawdę byłby bombowym rozwiązaniem. A już super aspektem jest cena.

19.02.2011
Karolina Dziad/ Karo

Do budowy własnego domu wybrałabym ten projekt. Powierzchnia użytkowa nie jest duża, a funkcjonalna. Wyjście na taras mogłoby być pozbawione pół bryły zwiększającej pow. salonu, a pod daszkiem postawiłabym 2 kolumny tak jak wygląda to od frontu. Układ i wielkość okien mógłby się wtedy zmienić.

31.07.2011
Duszek

Ten projekt spędził mi sen z powiek, wracam do niego jak bumerang. Fakt brakuje trzeciego pokoju ale wymyśliłem sobie żeby z dachu garażu zrobić taras i dodatkowo użytkowe poddasze. Ciekawi mnie tylko czy nie straci uroku ten domek i gdzie wstawić schody.

08.09.2011
Arya

Ten projekt jest jak z bajki!!! Wygląda przecudownie i w tym momencie skończyły się moje poszukiwania!

15.11.2011
kina

Projekt Sofi wybrałam jako pierwszy. A ten jest super pasuje pod każdym względem a z garażu zrobię 3 pokój już widzę jak w nim mieszkam:) śliczny Pozdrawiam

21.12.2011
maciejka129

Witam serdecznie. Dla mnie i dla mojej kochanej żonki projekt bomba.Po nowym roku kupujemy go.Mamy w planach dodatkowo zaadoptować góre i pojawia się tutaj pytanko do LIPIŃSCY-DOMY a mianowicie jak w SOFIA III mogłaby wyglądać góra , czy jest szansa na 2 pokoje , łazieneczkę i jedną garderobę ? Pozdrawiam

21.01.2012
asia

Potwierdzam, też czekam na ten projekt z 3 sypialniami, poza tym jest super:)

22.02.2012
Janusz L

Robiąc z garażu 3 pokój musimy liczyć się, że wysokość pomieszczenia będzie miała tylko 220 cm. (tyle ma strop nad garażem). Zdecydowaliśmy się na ten pokój, ale bez stropu: w necie jest wiele propozycji wykończenia dachu nad pomieszczeniem z wyeksponowaniem drewna więźby. Ale i tak te 220 to duuużo więcej niż metr liczony z 2 metrów 140 :) poddasza użytkowego.. Jak to wyjdzie napiszę najwcześniej na jesieni.
Co do zagospodarowania poddasza, nie planuję, ale profilaktycznie zaplanowałem balkon w szczycie, okno połaciowe duże po drugiej stronie. Potem byłby z tym problem: nawet okno połaciowe mieszczace się między krokwiami wymaga od nowa pozwolenia na budowę

13.01.2013
kaczka

proszę podać przybliżony koszt stanu surowego zamkniętego tego domku, bardzo mi się podoba projekt.

31.01.2013
Avicii

Witam .
W zeszłym roku skończyliśmy stan surowy zamknięty Sofii III , bez zakupu działki ,
koszt wyniósł około 200 tys.
Pozdrawiam ;)

28.02.2014
Andzia

Witam, nasz projektant zakupił u Państwa ten projekt. Jednak nie wiedzieć czemu zamówił odbicie lustrzane. Chciałabym się upewnić czy wymieniając projekt na inne odbicie ponosimy jakieś dodatkowe koszty?

14.03.2014
Lipinscy_Domy

W terminie 10 dni od otrzymania dokumentacji można zwrócić bądź wymienić projekt bez ponoszenia kosztów. Odsyłamy do REGULAMINU w zakładce JAK KUPIĆ PROJEKT.

16.10.2014
Barbie

A ja chciałabym ten projekt z 1 miejscem garażowym, a nie dwoma, i zastanawiam się gdzie zrobić szafę na kurtki i buty, bo na projekcie jakos mało jest na to miejsca. Może kosztem 30 cm łazienki, ale czy wtedy sie wanna z prysznicem zmieszczą, czy trzeba będzie z czegoś zrezygnować...

17.10.2014
Lipinscy_Domy

Zapraszamy do zapoznania się z wersjami projektu w panelu po lewej stronie - są tam projekty z pojedynczym garażem.
Szafę można zaprojektować pomniejszając łazienkę.

23.04.2015
zibi

Czy mozna dolaczyc do karty projektu rzut poddasza z ewentualnym rozplanowaniem pomieszczen np 2 lub 1 pokoj + lazienka? A ja schody zrobie z 1.6 ,lazienke przerobie w kierunku 1.6 i Wiatrołap powieksze na szafe .kuchnia z 1.4)

27.04.2015
Lipinscy_Domy

Możemy przygotować taki plan lub może on zostać wykonany w ramach adaptacji. Szczegóły: biuro@lipinscy.pl

07.05.2015
zibi

Witam.Do adaptacji potrzebuje zakupić projekt a ja chcę wybrać między tym projektem a atlanta. Jeżeli sa schody w salonie pewnie i ,,coś jest" na poddaszu .Dziwię się tylko dlaczego nie można wrzucic rzut poddasza na strone internetową .Sądząc po wpisach na stronie zapewne nie tylko ja jestem tym zainteresowany. Powiem szczerze, że takie podejście do klienta jest dla mnie niezrozumiałe.

08.05.2015
Lipinscy_Domy

Jest to projekt domu parterowego o powierzchni, która pozwala uzyskać dofinansowanie m.in. z programu MdM.
Strych jest powierzchnią nieużytkową, a schody są jedynie opcjonalne.

04.06.2015
Lila

Witam, ile kosztowałaby zamiana stropu Teriva na strop monolityczny?

15.06.2015
Lipinscy_Domy

Szczegóły dotyczące kosztu zmian można uzyskać mailowo: biuro@lipinscy.pl

31.12.2015
Zibi

Witam
Czy ktoś buduje na Dolnym śląsku Sofie III??

17.02.2016
Jarek M

Witam
Zastanawiam się nad kupnem projektu Sofia 3. Czy może ktoś już mieszka w tym domku na dolnym śląsku w okolicy Zgorzelca? Chciałbym się z kimś takim spotkać i porozmawiać o budowie i ewentualnych zmianach w projekcie.

12.03.2016
Michał

Dzien dobry, czy ktos Państwa buduje może taki sam lub podobny dom na terenie Wielkopolski? Zastanawiamy sie nad kupnem tego projektu i chcieli byśmy zobaczyć ten dom na żywo jeżeli oczywiście będzie taka możliwość, byli byśmy bardzo wdzięczni za pomoc. Prosze o kontakt mmichal1984@o2.pl Dziekuje i pozdrawiam

05.10.2016
Lipinscy_Domy

Zapraszamy wszystkich zainteresowanych do grupy na Facebooku:
https://www.facebook.com/groups/313793238978322/

Pow. zabudowy 152.2m2
Powierzchnia netto 125.44m2
Kąt nachylenia dachu 35 °
Min. szerokość działki 23m x 19.6m
Wys. kalenicy 6.78m
Cena projektu: 4490 zł


Pozostałe wersje

Sofia II

LMB41a83.02m2

Powierzchnia parter 105.11 m2

Powierzchnia strych 27.63 m2

+16.96m² garaż +5.13m² kotłownia
18.10.2009
Magdalena, Nakło n. Notecią

Niewielki domek parterowy z dwuspadowym dachem. Uroku dodają kolumienki z przodu budynku. Jeszcze bardziej podoba mi się jego tył. Piękne tarasy i oszklenia. Środek wydaje mi się praktyczny. Duża kuchnia, jasny salon i dwa pokoje.

18.10.2009
Agnieszka, Łódź

Prosta bryła, wyjście z sypialni do ogrodu, wspaniałe łukowate okna od strony ogrodu, okiennice od frontu. Wchodzę do wiejskiego domku, a od strony ogrodu widzę dworkowy styl.

24.10.2009
26101963

WŁAŚNIE JESTEM W TRAKCIE BUDOWY.
SZKODA ,ŻE TA STRONA NIE POSIADA PREZENTOWANYCH ZDJĘĆ Z REALIZACJI - MOŻE SIĘ KIEDYŚ DOCZEKAMY - NA RAZIE WSZYSTKICH ZAINTERESOWANYCH ZAPRASZAM DO FAN CLUBU TEGO PROJEKTU NA STRONIE EXTRADOM.PL

31.10.2009
Grzegorz

czy mogą być i trzy pokoje? bryła domu super.

02.11.2009
Lipinscy_Domy

Ten projekt ma możliwość wygospodarowania trzeciego pokoju. Proponujemy zrobić aneks kuchenny w miejscu jadalni, a w miejscu kuchni powstanie w ten sposób wygodny pokój. Można także przenieść kuchnię w miejsce pokoju 1.4 i zrezygnować ze ścianki między nią i salonem, a wówczas zamiast jadalni zrobić odrębny pokój. Tak naprawdę możliwości jest wiele, ponieważ wszystkie ścianki działowe można dowolnie kształtować, zostawiając nienaruszoną jedynie ścianę nośną, idącą przez oś domu. Takie zmiany nie wymagają naszej zgody, a może je wprowadzić każdy architekt w ramach adaptacji.

02.11.2009
AGNIESZKA

Dokładnie ,urzekający łuk z kolumienkami nad wejściem ,a elewacja tylna jest jeszcze ładniejsza .Tylko szkoda że przy ustawianiu budynku nie będzie widoczna dla innych żeby mogli podziwiać.

04.11.2009
Stanisław Rogalski

Dom piękny prosta i przejrzysta konstrukcja, dach prosty bez wymyślnych wykuszy,
z jednym tylko ale przydały by się zagospodarowanie podasza chociaż dwoma nawet niedużymi pokojami.

09.11.2009
JAM

Witam serdecznie,

czy do tego projektu jest kosztorys w cenie projektu? czy zestawienie materiałów można otrzymać na maila?
Pozdrawiam sympatyków projektu :)

21.11.2009
asik

Bardzo podoba mi sie ten projekt. Czy ktos wybudował ten domek? Jakie są koszty budowy?

24.11.2009
Lipinscy_Domy

Dla zainteresowanych - wkrótce zaprezentujemy wersję tego domu z użytkowym poddaszem. Będzie ona zaprojektowana w technologii domów energooszczędnych. Premiera wkrótce.
Koszty budowy Sofii II są zaprezentowane w zakładce "Technologie i koszty".

07.12.2009
michał

można wiedzieć jaką nazwę będzie nosił nowy projekt

11.12.2009
Andrzej Krzeszewski

Projekt jest I klasa . Mądry,tani,rozsądny ,dodatkowo z logicznymi rozwiązaniami. Jestem pełen uznania i po rozwiązaniu
spraw działki chętnie go kupię.jako budowlaniec chętnie nawet podyskutuję e-mail :alfabudtech@op.pl

16.12.2009
sławomir

Witam serdecznie
Mam pytanie do Państwa kiedy będzie można zapoznać sie z obiecaną premierą nowej wersji tego domku ( z użytkowym poddaszem )

18.12.2009
Lipinscy_Domy

Projekt Sofia II z poddaszem będzie miał dwie wersje. Pierwsza będzie podobna stylistycznie do Sofii - projekt będzie się nazywał Atlanta. Druga wersja będzie nowocześniejsza i będzie się nazywać Jena. Premiera obu wersji nastąpi w styczniu - Jena ukaże się, jako dom Premium w najnowszym katalogu Ciepłe Domy, natomiast Atlanta pojawi się w tym samym okresie na naszej stronie. Obydwie wersje będą energooszczędne. Możemy już dziś zdradzić, że na poddaszu znajdują się dwie sypialnie z garderobą, duża łazienka i pralnia. Jest też możliwość wykorzystania stryszku nad garażem - dostępnego z jednej z sypialni. Na parterze dodatkowo wygospodarowaliśmy spiżarnię, a kotłownia oczywiście jest w pomieszczeniu za garażem.
Pozdrawiamy serdecznie miłośników projektu Sofia i dziękujemy za inspirację w tworzeniu nowych wersji.

22.12.2009
Jacek (jws23)

Projekt jest świetny - wymarzona alternatywa dla większego mieszkania. Piękno i styl tego domu przyciągają uwagę. Prostota wykonania i ciekawy układ domu kuszą do podjęcia decyzji o budowie. Z wielką nadzieją czekam na nowe adaptacje tego projektu pod nazwą Jena i Atlanta, gdyż rzeczywiście na górze przydałoby się postawić chociaż 1 czy 2 pokoje, łazieneczkę i garderobę. Dom marzenie ;-)

29.12.2009
Asia

To jest dom moich marzen...piekny i funkcjonalny. Projekt jest bardzo interesujacy, ale dodatkowe pokoje i lazienka na pietrze z pewnoscia sprawia, ze dom stanie sie jeszcze bardziej atrakcyjny. Cudenko!!!

30.12.2009
Jacek - Skawina

Moje marzenie się spełnia - jeste w trakcie zakupu tego projektu. Jeszcze tylko małe zmiany u architekta.

25.01.2010
michu

Koniec stycznia nadchodzi a tu z zapowiadanych nowości nic.

25.01.2010
Lipinscy_Domy

Nowości się już pojawiły :-) Projekt Jena jest już zaprezentowany na naszej stronie. A projekt Atlanta powinien się ukazać w przyszłym tygodniu. Opracowujemy właśnie do niego materiały graficzne. Chcieliśmy, aby schody na poddasze znalazły się w holu wejściowym, a nie w salonie, co chyba wielu ucieszy. Dodamy, że na poddaszu są dwa wygodne pokoje z własnymi garderobami, łazienka i schowek (np na miejsce do prasowania, lub bieliźniarkę). Jest także możliwość przejścia na stryszek nad garażem. A na parterze kuchnia zyskała spiżarnię :-) Układ pomieszczeń jest bardzo logiczny i sprzyja realizacji domu etapami. Stylistycznie Atlanta jest niemal identyczna, jak Sofia.
Dziękujemy wszystkim zainteresowanym za cierpliwość, a jesteśmy przekonani, że będzie warto :-)
Serdecznie pozdrawiamy.

26.01.2010
agakuk

A możeby tak wersja typowo parterowa bez poddasza użytkowego .zamiast garazu dodatkowy pokój ,spizarka i kotlownia .Myśle że też miałby wzięcie ,nie wszyscy lubią chodzić po schodach?

28.01.2010
joanna

witam

Czekamy z niecierpliwością:) Liczymy, ze będzie warto ! A to co chcieliśmy wczesniej zmienić w projekcie Sofia Państwo ujmą w nowej wersji ::)

04.02.2010
Lipinscy_Domy

Z przyjemnością informujemy, że projekt Atlanta (DCP 241)- energooszczędna wersja z poddaszem jest już zaprezentowany na naszej stronie. Wkrótce dodamy do niego opis technologii i koszty. Zapraszamy do komentowania :)

24.02.2010
Grzegorz, Wrocław

Projekt Sofia II to dom naszych marzeń. Wkomponowany w górski pejzaż i osadzony między pachnącymi choinkami to widok do pozazdroszczenia przez niejednego mieszczucha. Ten projekt spełnia wszystkie nasze oczekiwania: jest skromny, przytulny, a tym samym bardzo elegancki. Wprost godny polecenia. Funkcjonalność opracowana perfekcyjnie.

14.05.2010
Dorota, Kraków

Projekt Sofia II jest bardzo funkcjonalny i ma ładną architekturę. Jest tu dużo powierzchni użytkowej przy minimalnej komunikacji.

14.05.2010
Katarzyna, Sianów

Wybrałam projekt Sofia II od Lipińskich, ponieważ spełniał on wszystkie kryteria, którymi się kierowałam podczas wyboru. Wybrany przeze mnie projekt wyróżnia się łatwością wykonania, prostotą, a zarazem jest funkcjonalny. Jest to wymarzony dom, w którym chciałabym spędzić resztę życia.

15.05.2010
Agnieszka i Piotr, Włocławek

Styl domu Sofia II najbardziej nam odpowiada. Był to jeden z pierwszych projektów znalezionych w internecie i przez 6 miesięcy, mimo oglądania innych - pozostał. Pasuje nam w nim wszystko. Jest piękny z zewnątrz i funkcjonalny w srodku.
Ma piękne duże okna i dekoracyjny wykusz. Jest niedrogi w wykonaniu.

15.05.2010
Marek, Bielawa

To tak, jak z miłością "od pierwszego wejrzenia" - spojrzysz raz i wiesz, że to jest właśnie to, na co czekałeś całe życie! Możecie mi nie wierzyć, ale jak zobaczyłem waszą ofertę, nie szukałem już w innych biurach projektowych. Normalnie bajka:). Sofia II urzekła mnie prostotą, pięknem bryły, ciekawymi rozwiązaniami architektonicznymi - moim zdaniem jest to najpiękniejszy tył domu (małego). Spośród wszystkich waszych oglądanych projektów (równie udanych), funkcjonalność w 100% spełnia moje oczekiwania.

16.06.2010
Paweł, Jastrząb

Ze wszystkich katalogów, które posiadałem, projekt od Lipińskich najbardziej mi się spodobał. Spodobała mi się strona od ogrodu oraz układ pomieszczeń.

17.06.2010
Arkadiusz, Grudziądz

Lipińscy to biuro sprawdzone, z wieloletnią tradycją, z projektami dopracowanymi w szczegółach! Sofia II jest dopracowana architektonicznie, posiada funkcjonalne wnętrze i nie przeraża w kosztach budowy.

18.06.2010
Joanna, Hrubieszów

Sofia II jest piękna, urocza, tania w realizacji. Nie spotkałam dotychczas ładniejszego projektu, mimo, że szukałam w różnych firmach projektowych. Projekt wyróżnia wykusz, który posiada szerokie okno, duży salon, sypialnia z wyjściem na duży taras.

15.07.2010
Lipinscy_Domy

Witam, już niedługo zacznie działać forum, gdzie będzie możliwość wymiany uwag na temat naszych projektów oraz będzie można podzielić się doświadczeniami i zdjęciami z budowy. Serdecznie Państwa zapraszamy do aktywnego korzystania z forum!

24.07.2010
Kim

Marzenie .... Możecie mi powiedzieć czy systemem gospodarczym do wprowadzenia łącznie z łazienką ale bez kuchni za 250 ooo można ją wybudować?

05.08.2010
Henryk, Koszalin

Sofia II to funkcjonalny dom, fajny dla malej rodziny, tani w budowie. Wyróżnia go skromność a jednocześnie ładny wygląd zewnętrzny. Ładnie się komponuje w otoczeniu wiejskim, wśród lasów i jezior.

15.09.2010
Ania

Witam, czy gdzie można umieścić schody na poddasze, chciałabym z pokoju 1.4 zrobić kuchnie a z 1.6 pokój, a wejście do niego zostawić tylko przez wiatrołap (bez drzwi do salonu) Tak więc gdzie miałyby być schody a nie chce ich mieś w salonie?

16.09.2010
ANia

I czy można przenieść garaż na druga stronę domu. Wtedy z kuchni można by zrobić drzwi do kotłowni?

28.09.2010
aniołAB

Witam! Interesuje mnie ten projekt, ale zastanawia mnie wielkośc pomiszczeń w realu. Jeśli ktoś może przesłać mi kilka zdjęć rzutów całych wnętrz na meila byłoby super. Czekam niecierpliwie i pozdrawiam. Mój meil abilska17@wp.pl

29.09.2010
Małgorzata Woźniak

Witam
Na zewnątrz dom śliczny.Brakuje mi w nim szafy na płaszcze i buty w wiatrołapie, może kosztem zmniejszenia łazienki?Jak szeroki jest hol prowadzący do salonu?

26.11.2010
Magdalena Paliwoda

mieszkam w tym domku już 4 lata :)
faktycznie bardzo funkcjonalny , wiele osób zadziwia przestronne wnętrze , którego sie nie spodziewają patrząc na domen z zewnątrz
przerobiliśmy łazienkę powiększyliśmy ją likwidując przejśće do kuchni z holu , faktycznie trochę mało miejsca przy wejściu ale można pogłówkować ,za to mamy okno w łazience
kiedy urodziło nam sie drugie dziecko przebiliśmy się do garażu i tam zrobiliśmy sobie sypialnie z małą łązieneczką
teraz będziemy atakować górę
polecam dla młodych małżeństw które chcę z biegiem czasu udoslonalac swwoje gniazdko bes zaciągania kosmicznie dużego kredytu :)
pozdrawiam

02.12.2010
sylwia

Bardzo piekny domek, idelany rozkład pomieszceń, bardzo funkcjonalnym. Mam pytanko do osób które juz buduja lub wybudowały - czy kosz orientacyjny podany przez firme projektowa j. 250000 jest zblizony do faktycznego kosztu czy go przewyzsza lub jest nizszy

08.01.2011
TIR-Miechów.

Gdzie znajduje się wyjście na strych(w/g projektu).Pozdrawiam.

09.01.2011
Michał

A jak na parterze zrobić trzy pokoje? Bardzo funkcjonalny dom, ale brakuje jeszcze jednego pokoju.

29.01.2011
Janusz

Zakupiłem projekt i myślę o podniesieniu dachu o jeden pustak . Czy dom nie straci swojego uroku? Jeśli ktoś ma doświadczenie w tej kwestii to proszę napiszcie.

09.02.2011
Agata Przeborowska

Idealny domek jednorodzinny. Właśnie takiego szukaliśmy :)

15.02.2011
Agata

Ładny dom, przestronny, idealny :)

17.02.2011
Ania

Czy będzie jakiś nowy kosztorys na ten rok?

02.03.2011
fhulw

dom jak z bajki, tylko potrzebne poddasze.

30.03.2011
Ania

poddasze jest 30m akurat na duży pokój z garderobą i łazienkę.

12.04.2011
Iwona

Mam pytanie czy strop w tym projekcie może być gęstożebrowy typu Teriva i gdzie są schody na strych

24.05.2011
jaśia

jaki koszt na rok 2011

24.05.2011
jurek

Czy ktoś wybudował sie w okolicach wrocławia, chciałbym obejrzeć ten domek

20.10.2011
Wojtek

Zapraszam do Rogoźnicy . Ten domek już stoi . 605569297

06.12.2011
Andrzej

Domek stoi także w Stargardzie szczecińskim -- stan surowy zamknięty bez garażu -- chętnie podzielę się doświadczeniem z realizacjii. 665961267

12.12.2011
MAGDALENA KOTYNIA / LENA

JAKA CENA TAKIEGO DOMU ?

22.03.2012
Przemysław, Lubin

W pełni spełnia nasze oczekiwania pod względem funkcjonalnym jak i wyglądu. Sofia jest uroczym małym domkiem, który idealnie pasuje do miejsca w jakim powstanie. Dworkowy charakter i uroczy tył domu z łukowatymi oknami tarasowymi i pięknym wykuszem.

28.03.2012
Bożena, Kąty Wrocławskie

Prosty a zarazem elegancki , kameralny i funkcjonalny taka właśnie jest Sofia, stworzona przez ludzi dla ludzi. Dzięki swej uniwersalności wychodzi naprzeciw zapotrzebowaniom dzisiejszych czasów.

28.03.2012
Katarzyna, Nowy Tomyśl

Spośród wielu projektów , które oglądałam , to właśnie Sofia II najbardziej przypadła mi do gustu. Niewielki , ale nietuzinkowy i przytulny dom, o wyglądzie nieco bajkowym jest spełnieniem moich marzeń. Przypadek sprawił ,że nazwa projektu nosi imię mojej ukochanej mamy, co dodatkowo utwierdziło mnie w przekonaniu o słuszności wyboru. Projekt wyróżnia estetyka, funkcjonalność i niski koszt budowy. Dodatkowo piękny taras , który doskonale wpisze się w krajobraz.

06.04.2012
Adam

Czy na zdjęciach z realizacji poddasze zostało podniesione np. o 2x max, czy bez podnoszenia na poddaszu jest pokoik. Bardzo proszę o odpowiedz. akiklica@interia.pl
Domek śliczny.

08.05.2012
Tomek

Witam, bardzo mi się podoba ten domek czy ktoś w okolicy konina koła słupcy budował ten domek bardzo chciałbym go zobaczyć dajcie znać z góry dzieki

12.06.2012
mrozembajger

najładniej wygląda bez podnoszenia o 2 pustaki...jest bardziej dworkowaty- ja właśnie taki mam

30.06.2012
marta

bardzo przypadł mi do gustu ten domek :)

09.07.2012
Adam

"najładniej wygląda bez podnoszenia o 2 pustaki...jest bardziej dworkowaty- ja właśnie taki mam" - a jak z poddaszem funkcjonalne?

16.07.2012
Adam Drzewiecki

Przypadła mi do gustu frontowa część domu. Ciekawie wygląda także zagospodarowanie parteru.

25.07.2012
mili`comment``

wszystko byłoby ok gdyby było przejscie z domu do garazu i kotłowni.... plus w wejsciu mogłoby być więcej miejsca aby zrobić jakąś szafę oraz miejsce na buty. ogólnie bardzo fajny funkcjonalny domek

03.08.2012
Mc

wejście z kuchni do garażu można zrobić, ale garaż jest bardzo wąski i chyba drzwi musiałyby się otwierać do wnętrza kuchni... Czy ktoś poszerzał garaż inp. o pół metra i jaki to może być koszt.

07.08.2012
Aga

Projekt jest ładny, ale łazienka jest bez okien a to według mnie bardzo duzy minus.

07.09.2012
iwkabal

Witam. Jestem w trakcie budowy tego domu. Mam pytanko-jakie okna chodzi o wymiary byłyby odpowiednie do pokojów od strony wejścia. A od drugiej strony (podwórko) zamiast drzwi balkonowych mam okna i jakie wymiary okien wziąść żeby póżniej w pokojach ładnie mi się meble zmieściły.

21.09.2012
roman.g@wp.pl

Witam wszystkich którym podoba się projekt Sofia II jestem szczęśliwcem który buduję dom swoich marzeń, opiszę troszkę co zmieniłem w domku; po pierwsze doprojektowałem pod garażem piwnicę w której umieściłem kotłownię i drugie pomieszczenie np. spiżarnie, po drugie stropy są żelbetowe a nie drewniane, wylane mam schody betonowe do góry na ścianie szczytowej od strony garażu tak jak zaleca projektant, na stropie podmurowałem tylko jedym pustakiem komórkowym na wysokość. I jeszcze połączyłem pokoje 1,4 i 1,5 oraz mam zamurowane drzwi z z pomieszczenia 1,1 do kuchni. Okna mam bez łuków ponieważ musiałbym pożeganć się z roletami zewnętrznymi. Chyba wszystko w razie pytań bądź konsultacji wśród budujących chętnie podyskutuje. 606-221-774

21.09.2012
roman.g@wp.pl

I jeszcze jedno dom wywyższyliśmy do góry o około 1m i jest obsypany więc wygląda jak domek na górce, no i najważniejsze domek stoi 20m od lasu jak będzie wykończony zapewne malowniczo będzie wyglądał.

21.09.2012
roman.g@wp.pl

I jeszcze jedno garaż szerszy o 70cm

24.09.2012
Lipinscy_Domy

Od strony wejściowej okna są szerokości 180 cm. Natomiast drzwi balkonowe od strony ogrodu 150 cm. Można oczywiście zastosować jednakowe okna z obu stron - np: 150 cm (to jest najpopularniejszy wymiar) - zapewnią też . Jeśli chodzi natomiast o aranżację wnętrza, to wszystko zależy, jakie meble mają się zmieścić ;-) Zwykle jest tak, że od okna warto zostawić 60-90 cm, aby zmieścił się tapczan, szafa, biurko etc.

30.10.2012
asia

Drodzy Państwo Lipińscy! Przepraszam za mały offtopic ale nie mogę się powstrzymać aby powiedzieć, że Państwa projekty są fantastyczne. Przymierzamy się narazie do kupna działki 854 metry więc nieduża ale za to w kwadracie, wjazd od wschodu, więc powolutku oglądam projekty i cieszę się niezmiernie, że trafiłam tutaj. Wcześniej przejrzałam wnikliwie te "popularne", które to wujek google stawia u góry, ale wszystko tam na jedno kopyto, albo cena kosmiczna, albo stodoły, albo totalnie chaotycznie, szok! U Was przepięknie i przemyślanie. Jeśli szczęśliwie uda mi się wreszcie zakup działki to już wiem, że projekt zakupię tutaj ;))) Jeśli ktoś zechciałby cokolwiek podpowiedzieć mnie, która, jak narazie nie wie nic o budowie, jaki dom wybrać - będę wdzięczna. Mój mail asiunia.b@gmail.com. Myślę, że na ww działce mogłabym zaszaleć z domkiem również kwadratowym, marzy mi się piwnica, aczkolwiek gdzie nie zajrzę, z kim nie rozmawiam, każdy mówi "a po co piwnica? Toż to koszt 30 tys??" I już szczerze mówiąc mam mętlik. Myślę o parterówce z poddaszem narazie nieużytkowym ale z możliwością w przyszłości zaadaptowania stryszku, więc schody na górę bardzo wskazane :) Na dole salon, 3 pokoje, koniecznie duża kuchnia i absolutnie nie otwarta na salon (bałaganiara ze mnie i to jest bardzo niewskazane:) ) i wiadomo - łazienka/wc. Za wszelkie porady, propozycje projektów będę bardzo wdzięczna. Nie licząc zakupu działki, planujemy kredyt na 300 tys. Czy brać się z takimi planami wogóle za cokolwiek?:( Pozdrawiam wszystkich, którzy szczęśliwie budują albo już zbudowali swoje wymarzone gniazdka i....niezmiernie zazdroszczę :)

02.11.2012
Bogdan

Witam. Myślę,że to faktycznie świetny,mały a jednocześnie funkcjonalny dom. Mam pytanie o strop. Czy jest on żelbetowy czy też może być drewniany ( myślę oczywiście o wersji Sofia 2. Pozdrawiam wszystkich.

04.11.2012
roman.g@wp.pl

W projekcie jest strop drewniany ale można zaadoptować na żelbetowy jak tak osobiście zrobiłem.

12.11.2012
ANNA KALITYŃSKA

Czy ktoś może wybudował ten domek koło Wrocławia (chętnie bym zobaczyła), gdyż przymierzam się do kupna projektu.

22.11.2012
kaczka

witam wszystkich zakochanych w sofii 2. przymierzam się do budowy tego domku. prosze napisać przybliżony koszt stanu surowego zamkniętego.

29.01.2013
nadia

z mężem wybrałam projekt a rodzicom też pasował oni piersi wybudowali wybrali projekt plus szerszy garaż i wejście z kuchni dodatkowe do garażu jest super

12.02.2013
kasia

no strasznie funkcjonalny..zwłaszcza łazienka w centrum bez okna:(..

12.02.2013
Mariusz Bieniek

Witam,

Jeżeli ktoś buduje/budował ten dom w woj. małopolskim lub śląskim bardzo bym prosił o kontakt. Jeżeli było by to możliwe chciałbym zobaczyć na żywo ten dom. Będe wdzięczny za informacje.

mail: mabien małpa o2 kropka pl

Serdecznie pozdrawiam

15.02.2013
izabela

mialam ta sama watpliwosc - lazienka bez okna...
ale wymyslilam, zeby z pom 1.7 zrobic kotlownie a pom. 1.2 przeznaczyc na lazienke - przy czym zupelnie chcemy zrezygnowac z garazu i kotlowni, poniewaz ma to byc domek weekendowy.

Czy jest taka mozliwosc - to pytanie kieruje do Panstwa Lipinskich.

dziekuje.

11.03.2013
Lipinscy_Domy

Tak, można łazienkę przenieść do pom. 1.2, a kotłownię zrobić z 1.7. Taką zmianę można wprowadzić na projekt w ramach adaptacji.

06.04.2013
Mariusz

Witam, dlaczego tak mała zmiana w projekcie i już dom nie kwalifikuje się jako dom energooszczędny ???
To przy zmianie na z użytkowym poddaszem dało się a tu nie ????

08.04.2013
Lipinscy_Domy

Sofia jest projektem standardowym, a domy energooszczędne są zupełnie inną kategorią. Sofia ma odpowiednik energooszczędny - jest nim Monako.

05.05.2013
Paulina

Piękny dom - połączenie piękna, prostoty i klasyki. Jeśli ktoś wybudował ten dom w okolicach bądź w samym województwie świętokrzyskim proszę o kontakt na adres: paulinakoziara@vp.pl
Z góry dziękuję za kontakt :)

18.05.2013
shrek

Witam ! Jak jest powierzchnia dachu domku Sofia II ? Z góry dziękuje za odpowiedz.

20.05.2013
Lipinscy_Domy

Powierzchnia dachu domu i garażu to łącznie 191.49m2

21.05.2013
shrek

Witam! Czy jest mozliwosc zmiany kata dachu z 35* na 41* ? O ile zwiekszy sie pow. dachu. takie warunki zabudowy! Z gory dziekuje za odpowiedz/

23.05.2013
Lipinscy_Domy

Powierzchnia dachu po zmianie kąta nachylenia do 41 stopni wyniesie 200 m2.

08.01.2014
jadmir

Planujemy budowę domu sofia 2 ale z garażem na dwa samochody.Z chęcią poznalibyśmy kogoś,kto buduje lub wybudował dom sofia 2 lub sofia 3 w celu wymiany uwag i doświadczeń najlepiej z okolic Bielska-Białej ,Skoczowa -zapraszamy do kontaktu i pozdrawiamy wszystkich budujących
jadmir@op.pl tel: 692748784


10.01.2014
ANIA

Ja widziałabym to w ten sposób - w pomieszczeniu 1.4 zrobiłabym kuchnię a zamiast obecnej kuchni schody i drzwi do garażu. Szkoda , że nie znajdzie się już miejsce na małą spiżarnię. Wszyscy czekamy na wersje z zagospodarowanym poddaszem. Faktycznie- Państwa projekty są śliczne!

14.01.2014
Lipinscy_Domy

Takie wersje już istnieją: Atlanta i Jena.

02.02.2014
Luk

Witam!
Jeżeli ktoś z Pomorskiego zrealizował ten projekt i chce się niem pochwalić bardzo proszę o kontakt.
Pozdrawiam!

02.03.2014
ryskro

Witam.
Czy może mi ktoś powiedzieć czy w realu na dzień dzisiejszy wystarczy do stanu developerskiego 270tys.zł. ?

27.04.2014
Luk

Dziaka zakupiona i kolejny dylemat w drodze jest zarówno gaz jak i ogrzewanie miejskie, planowaliśmy piec na eko-groszek ale czy może ktoś ma doświadczenie z Sofią ogrzewana z sieci miejskiej ? czy to dobry pomysł ?

28.05.2014
Paula

Witaj. Nam firma wyceniła stan deweloperski właśnie na 270 tys, na dobrych materiałach. Budujemy co prawda Sofie IV ale myślę że dużych rozbieżności cenowych by nie było (dodatkowo robimy poddasze użytkowe).

26.06.2014
Luk

Paula czy rozpoczęliście już budowę?

08.07.2014
Waldek

Witam nasz dom stoi w Borach Tucholskich k/Swiecia

10.07.2014
Luk

Panie Waldemarze !
Wsiadamy z Żoną w auto i jedziemy zobaczyć Sofię na żywo!
Oczywiście pod warunkiem, że Pan się zgadza!
Jeżeli tak zostawiam kontakt mestre_84@o2.pl

01.02.2015
hania

Witam. również byłabym zainteresowana obejrzeniem sofii na żywo. Czy Pan Waldemar mógłby nam to umozliwic? Pozdrawiam

16.03.2015
Teresa

Witam,
obejrzę dom SOFIA II w woj. kuj-pom.
Osobie która nam to umożliwi chętnie to wynagrodzimy.
eatr@prokonto.pl (bardzo proszę o informację w tej sprawie do stycznia 2016)

13.04.2015
Magda

Witam, mam pytanie dotyczące kominka. Czy jest możliwość przeniesienia go w miejsce telewizora?

14.04.2015
Lipinscy_Domy

Tak, można przesunąć kominek.

17.04.2015
Krystyna nerlo

Witam! Naoglądałam się wiele projektów, Sofia II jest rewelacyjna. Właśnie w tej chwili podejmuję decyzję o zakupie tego projektu. Urzeka mnie jego śliczny wygląd. Będzie stał w Bartoszowie pod Legnicą.

08.08.2015
Teresa

Witam, czy w tej Sofia2 można wstawić w kotłowni piec na ekogroszek? czy będzie to wymagać na dzień dzisiejszych jakiś większych zmian (zgodnie z najnowszymi wymaganiami)
Jakiej maksymalnej mocy piec można wstawić do takiej kotłowni ?

12.08.2015
Lipinscy_Domy

Kwestia dobrania pieca zależy od producenta, ponieważ określa on minimalne wymiary kotłowni.

14.09.2015
Maniek

Witam,

mam prośbę do osób które adaptowały poddasze - czy moglibyście się podzielić rysunkiem/rzutem z rozplanowaniem waszego poddasza. Z góry serdecznie dziękuję. Mail: biurorzeszow@onet.pl

12.11.2015
Karolina

Projekt super rozwiązanie wewnątrz również lecz ma jeden błąd podstawowy BRAK OKNA W ŁAZIENCE. Już nigdy nie zrobię takiego błędu dlatego zaczynam jeszcze raz życiu od nowa budować dom dla siebie.

05.10.2016
Lipinscy_Domy

Zapraszamy wszystkich zainteresowanych do grupy na Facebooku:
https://www.facebook.com/groups/313793238978322/

25.12.2016
Aga

Wesołych Świąt i wszelkiej pomyślności w Nowym 2017 Roku!

Przy okazji pytanie świąteczne.
Kupiłam projekt pod koniec maja 2016 r. Formalności z działką zajęły mi trochę czasu, wnioski o warunki itd..
W każdym razie nie rozpoczęłam jeszcze budowy. Od stycznia 2017 zmieniają się WT. W moim projekcie Sofii II mam EP=113, od stycznia ma być EP poniżej 95. Izolacja ma 10 cm. Obecnie u Państwa ma już 15 cm. Co mam zrobić? Czy projektant adaptujący projekt na budowlany może to zmienić, czy czeka mnie kupno nowego projektu?
Pozdrawiam.

28.12.2016
Lipinscy_Domy

Prosimy o kontakt na maila: biuro@lipinscy.pl
Prześlemy zaktualizowane elementy dokumentacji.

12.05.2017
Małgorzata Skrocka

Czy można dom poszerzyć i 1 m i dodać okno w szczycie?

16.05.2017
Lipinscy_Domy

Można wprowadzić taką zmianę w ramach adaptacji lub u nas w biurze.

21.06.2017
gośka p

czy dom można zmiejszyc o 150 cm na długości i szerokości

03.07.2017
Lipinscy_Domy

Można wprowadzić taką zmianę u lokalnego architekta albo u nas w biurze.

31.07.2017
aga

czy można zrobić tak zwane lustrzane odbicie....głównie w celu przeniesienia garazu na prawą stronę??

31.07.2017
aga

czy można powiększyć garaż...na 2 auta???

01.08.2017
Lipinscy_Domy

Mamy taką wersję: https://lipinscy.pl/projekt/sofia-vi

11.12.2017
Adam

Witam pytanie do kogoś kto dom już zakończył jaki był koszt elektryki hydrauliki i jaki był koszt sufitów podwieszanych w całym domu ?pozdrawiam mój e-mai szalikelo@wp.pl

11.12.2017
Lipinscy_Domy

Warto zajrzeć na grupę Facebookową projektu Sofia: https://www.facebook.com/groups/313793238978322/

15.02.2018
laska

Witam Własnie ukończyliśmy budowę domu z małymi przeróbkami które wpłynęły na jeszcze lepszą swobodę i eksploatacje

15.02.2018
Magda

A gdzie zbudowaliście domek? Można jakiegoś maila kontaktowego?

19.03.2018
Kasia

Witam czy ktoś z państwa kto już wybudował lub jest w trakcie mógłby podzielić się informacją na temat realnych kosztów budowy tego pięknego domku mój e-mail: wylonek@poczta.fm . z góry dziękuje za pomoc

19.03.2018
Lipińscy Domy

Zapraszamy na grupę Facebookową projektu Sofia: https://www.facebook.com/groups/313793238978322/

15.04.2018
Sebastian romankiewicz

Ile kosztuje budowa tego domu łączne koszty

17.04.2018
Lipińscy Domy

Aktualne szacunkowe koszty podajemy tutaj: https://lipinscy.pl/projekt/sofia-ii/kosztorys
O realne koszty najlepiej dowiadywać się u lokalnych firm wykonawczych.

Pow. zabudowy 132.31m2
Powierzchnia netto 105.11m2
Kąt nachylenia dachu 35 °
Min. szerokość działki 20.3m x 20.5m
Wys. kalenicy 6.51m
Cena projektu: 4490 zł

Sofia IV

LMB41c83.22m2

Powierzchnia parter 105.73 m2

Powierzchnia strych 27.48 m2

+17.3m² garaż +5.21m² kotłownia
12.04.2011
Ewcia

Dom jest piękny...z garażem ,osobnym wejściem do kotłowni co jest bardzo ważne.Bardzo mi się podoba.

12.04.2011
Ania

Interesował mnie projekt Sofia II tylko troszkę go chciałam przerobić a tu patrzę i w IV kuchnia jest tak jak chciałam, garaż z kotłownią też chciałam po tej stronie. Zrobiłabym tylko dodatkowe drzwi z kuchni do kotłowni żeby w zimie może było odrazu podłożyć bez wychodzenia z domu i jednak wole duży salon więc 1,5 i 1,6 połączyłabym. I łazienkę powiększyłabym o te małe pomieszczenie gospodarcze 1,2. A w przyszłości może jakiś pokoik z łazienka na strychu..tylko tu nie zaznaczone że jest strych i ile ma metrów. Super taki jak opisałam projekt byłby idealny :)

12.04.2011
Ania

Czy zmiany jakie podałam wyżej mógłby mi nałożyć jakikolwiek architekt czy też mogę taki projekt np. zlecić Państwu?

29.04.2011
ANIOL

Witam ,do pani ANNY zmiany ktore pani wpisala mozna zrobic samemu bez pozwolenia ,sa to scianki dzialowe ,a te mozna ustawic jak sie chce .
Ja osobiscie tez mialem taki pomysl z rozmieszczeniem pomieszczen .

02.05.2011
Ania

Bardzo dziękuje za informację, cieszę się że ktoś jeszcze miał podobne pomysły jak ja :)

12.05.2011
Roman

Mnie osobiście bardzo sie podoba to rozwiązanie ale mam jeszcze pytanie czy projektant przewidział możliwość zagospodarowania poddasza? Jeżeli tak to gdzie mamy umieścić schody? Bo w Sofii 2 było powiedziane gdzie zrobić wejście do góry.

16.05.2011
Ania

Myślę że można schody zrobić zamiast pomieszczenia 1.2, ew. zabrać troszkę przestrzeni z wiatrołapu. Ja robiąc z 1.5 i 1.6 wielki salon zachowuje schody tam gdzie w poprzedniej wersji Sofii

28.05.2011
nick

hej nie uwazacie ze dwie sypilnie po 10m to troszke sa za male?

29.05.2011
Ania

to maja być tylko sypialnie więc 10 m spokojnie wystarczy (jeśli się zagospodaruje górę to tam może być duży pokój z garderobą i łazienką) i tak całe życie rodzinne będzie w dużym salonie oczywiście jak się połączy 1.5 z 1.6

01.06.2011
jasko2504

bardzo ladny tylko ze nie dla wszystkich, jak na moja kieszen to metraz ma za duzy ,60m2 zabudowy,wiecej takich.Pozdrawiam!!!

01.06.2011
angiee 47

witam wszystkich, czy ktoś buduje sofię 4. bo ja mam zamiar zacząc niebawem.

01.06.2011
kluska

ja też mam zamiar wybuowac sofie IV, ten domek jest piękny, tylko koszty budowy wydają mi się zaniżone...jak myślicie

02.06.2011
Ania

koszty faktycznie przyciągają uwagę. Podane tutaj koszty to średnie ceny...zawsze można zbudować taniej lub drożej zależy od materiałów i regionu w którym się buduje. Ale nawet jak sie spojrzy na koszty Sofia II (troszke większe) to i tak nie są duże, a domek cudny :)

02.06.2011
Miko

A ja się zastanawiam nad zmianą 1.8 żeby się jakoś dostać do kotłowni przez garaż i po prostu zwiększyć 1.9 kosztem 1.8. Bo tak zimą po podwórku biegać ....
Czy on się łapie do kredytu rodzina na swoim?

03.06.2011
Ania

Tak domy do 140m2 nadają się do rodziny na swoim. Ja właśnie z 1.8(czyli kuchni) planuje zrobić przejście do kotłowni, bo tez sobie zimą nie wyobrażam biegania tam i z powrotem po mrozie

03.06.2011
Miko

A myślał ktoś jak tu drugie WC zrobić?

06.06.2011
Marek

Projekt bardzo ciekawy. Ale... Drzwi balkonowe w kuchni i sypialni to niezbyt dobre rozwiązanie, bo jak zamontować ogrzewanie tradycyjne z grzejnikami? Osobiście byłbym za wyjściem na taras prze wykusz w pokoju dziennym, a w kuchni i sypialni wstawić tylko okna. Czy to możliwe do zmiany?

06.06.2011
Ania

Oczywiście ze w kuchni można zmienic drzwi na zwykłe okno...to nawet logiczne :)

07.06.2011
Marek

Dziękuję za odpowiedź. Jeszcze pytanie dotyczące garażu. Nad garażem jest dach dwuspadowy. Czy możliwe jest zaprojektowanie dachu nad garażem jednospadowego? Byłby prostopadły do bocznej ściany budynku

07.06.2011
Ania

Nie jestem na 100% pewna ale chyba tak w ramach adaptacji.

26.06.2011
michał

czy buduje ktoś ten dom chętnie bym zobaczył

28.06.2011
Joanna

Witam, ja też mam zamiar zbudować ten domek, mam już projekt i jestem na etapie drobnych udogodnień. Chętnie porozmawiam o szczegółach budowy.Czy ktoś już zaczął go budować?

29.06.2011
Bolek

Też mam zamiar wybrać ten projekt tylko zastanawiam się gdzie to umieścić schody na poddasze, bo tu nie bardzo widać gdzie one mogły by być. A w ogóle to co to jest w 1.6 (kominek...?), odgrodzony ścianami? Może ktoś się domyśla...

30.06.2011
Ania

O widzę ze zmieniła się wycena na wyższą...faktycznie poprzednio była niska kwota. Tylko czy nie lepiej było by podać wycenę już tego roku?!?

03.07.2011
parter

szału nie ma, ale ja osobiście wybieram te pełnowartościowe 10 niż 15 na poddaszu ze skosami, przeliczanie powierzchni użytkowej z wysokości ponad 140 cm jest dobre w przypadku sypialni dla psa. :)

15.07.2011
Ania

ja również uważam że wielkość pokoi wystarczy, w końcu większość życia rodzinnego i tak bedzie się skupiała w salonie po powiększeniu to 33m...sporo :)

18.07.2011
mika

Witam, czy ktoś wie jaka jest powierzchnia dachu?

21.07.2011
ANIOL

Witam ,powierzchnia dachu wynosi prawie 200 m ,oczywiscie razem z garazem.

30.07.2011
hugo

WITAM CZY DO TEGO PROJEKTU MOZNA OTRZYMAC PAKIET ENERGOOSZCZEDNY I W JAKIEJ CENIE

07.08.2011
ak74

Bardzo nam podoba się ten domek Sofia IV śliczny funkcjonalny , napewno oszczędny jak w budowie tak i w ekspluatacji. Czy ktoś buduję na Mazowszu ten domek,chciało by się obejrzeć go na żywo.

08.08.2011
iw

Witam, domek jest śliczny, zanim zdecydujemy się na budowę, chcielibyśmy zobaczyć go na "żywo". Czy ktoś buduje w kujawsko-pomorskim?

08.08.2011
Lipinscy_Domy

Można, jak najbardziej - cena to 52,5 zł. Wszystkie dodatki do projektu można zobaczyć klikając KUP TERAZ

08.08.2011
Przemek

Witam!
czy powierzchnia użytkowa strychu 24,7 m jest mierzona przy h>190 cm

09.08.2011
Lipinscy_Domy

Tak, 24.7m2 to powierzchnia liczona powyżej 190 cm.

09.08.2011
michał

czy ktoś buduje ten dom na podkarpaciu?

09.08.2011
ak74

Szkoda że nikt nie odzywa się:(((

10.08.2011

Ja buduję ale Sofie a nie Sofie 4 w Krośnie. Stan surowy zamknięty teraz.

10.08.2011
Ania

do A:
A mozna prosić o zdjęcia? Czy zostały dokonane jakieś zmiany w Sofii i najbardziej mnie interesuje czy kwota podana w kosztorysie jako stan surowy zamknięty jest realna kwotą czy jednak

16.08.2011
angie

witam ponownie. my jesteśmy przed zakupem tego projektu, ale czy ktoś go buduje na dolnym śląsku - chętnie zobaczyłabym. i czy ktoś zna realne koszty budowy no i ma może zdjęcia z budowy . bardzo proszę o info na e-mail a.walas@vp.pl

16.08.2011
iw

Witam, czy ktoś buduje Sofię w woj. pomorskim / kujawsko-pomorskim / warmińsko-mazurskim? Chcemy kupić projekt ale wcześniej chcielibyśmy obejrzeć do m "na żywo" Proszę o informację na maila wierzchowska.i@gmail.com

18.08.2011
michał

do A: czy można zobaczyć ten dom? Jestem z okolic Krosna.

25.08.2011
Ania

Czy ktoś rozpoczyna budowę w tym roku?

26.08.2011
uu

jak tu cicho,niema odpowiedzi

29.08.2011
ANIOL

Ja zaczynam w tym roku budowac domek ,chyba za 2 tygodnie dostane pozwolenie na budowe .Bede w miare mozliwosci dostarczal potrzebnych wiadomosci .Pozdrawiam :)

29.08.2011
Ania

Gratulacje :) będe regularnie zaglądać i czekać na info :) :)

24.09.2011
Dariusz.T.

Witam . Mam zamiar w przyszłym roku budować taką Sofię , wszystkie zmiany które dodała p.Ania są takie jakie ja chcę w moim projekcie dodał bym tylko zmianę drzwi balkonowych w kuchni na okno , pytanie jednak które ja chcę zadać brzmi :
Czy jest możliwość bez zmian w projekcie podwyższyć o jeden dwa bloczki strych ażeby uzyskać więcej przestrzeni na strychu?
Nie ukrywam ,że chciałbym zagospodarować w przyszłości strych na dwa pokoje i jeszcze pytanie dotyczące okien na dachu .
Czy też jest potrzebny architekt do zmian tego typu w projekcie.
Dziękuje za odp. i pozdrawiam

26.09.2011
ANIA

Do Pana Dariusz.T.:
Również zamierzałam zmienić okna w kuchni na zwykłe :) Z tego co się orientuje to zmiany które Pan wypisał niestety muszą być zaznaczone w projekcie przez architekta.

26.09.2011
Lipinscy_Domy

Wprowadzanie okien połaciowych nie wymaga ingerencji architekta w projekt, natomiast podwyższenie ścianki kolankowej w tym projekcie wiąże się także ze zmianą konstrukcji stropu, ponieważ w Sofii jest on drewniany. Jeżeli w przyszłości chciałby Pan użytkować poddasze, jako mieszkalne, sugeruję od razu rozważyć usytuowanie schodów na poddasze i zmianę stropu na żelbetowy. Chyba, że te dwa pokoje byłyby używane sporadycznie, np: jako gościnne. Proszę zerknąć na projekt Atlanta, który ma już rozwiązane poddasze, a parter jest podobny do Sofii. Gdyby Pan jednak chciał dokonywać zmian, zapraszam do kontaktu z nami. Od połowy października bowiem będziemy uruchamiać dodatkową usługę wprowadzania zmian na projekt przez nas.

05.10.2011
Ania

Jak tam ANIOL, budowa się rozpoczęła?

09.10.2011
ANIOL

Czesc Aniu no niestety jeszcze nie ,czekam na pozwolenie ,myslalem ze bede mial do konca wrzesnia ale :( niestety .
Oczywiscie jak zaczne budowac to bede dodawal komentarze:)pozd

12.10.2011
Karol

Bardzo ciekawy projekt. Wprowadziłbym jednak kilka zmian. Zlikwidował pokój 1.5 na rzecz większego salonu i zrobił okno w bocznej ścianie, celem doświetlenia. Wyjście na taras zrobiłbym tylko w części środkowej (wykuszu). Przejście przedłużonym korytarzem (kosztem części pokoju 1.8) do garażu (drzwi). Poszerzyłbym cały dom o jakieś 0,5 metra, celem poszerzenia pokoi 1.8 i 1.4 oraz garaż również o 0,5 metra. Taka wersja dla mnie i mojej 3 osobowej rodziny byłaby idealna. W części bocznej salonu zamontowałbym schody z możliwością adaptacji strychu na pokój (na wypadek gdyby pojawił się w przyszłości nowy człowieczek).
Czy zmiany jakie podałem wyżej mógłby mi nałożyć jakikolwiek architekt czy też mogę taki projekt np. zlecić Państwu?

20.10.2011
ANIOL

Czesc Aniu ,pozwolenie mam ,prace ruszaja ,jutro kopiemy fundamenty :)

21.10.2011
Ania

Anioł...w końcu się doczekałaś :) A że się tak niedyskretnie zapytam...brałeś kredyt na budowe? W takim wypadku potrzebny jest dokładny kosztorys...masz może taki? Budujesz systemem gospodarczym czy ekipa? U mnie budowa ruszyła by dopiero pod koniec 2012 ale zawsze to jakaś pomoc (bo my niestety będziemy musieli starać się o kredyt na całość budowy). Pozdrawiam

21.10.2011
GAGA

WITAM JA W PRZYSZŁYM ROKU MAM ZAMIAR BUDOWAĆ SOFIE IV ALE CHCE PODWÓJNY GARAZ CZY JEST TO MOZLIWE BEZ INGERENCJI ARCHITEKTA

24.10.2011
Wojtek

Witam,
od dłuższego czasu obserwuję dyskusję w temacie tego domku, gdyż też jestem nim zainteresowany....podoba mi się jego bryła, jednakże wprowadzę pewne zmiany....szerszy o ok 2m garaż (co wpłynie na powiekszenie się kotłowni, likwidacja pomieszczonka gospodarczego, co wplynie na powiekszenie łazienki oraz likwidacja ścianki działowej między 1.5 a 1.6, co da duży salon....jako że jest do wykorzystania strych (prawie 25m) to zamierzam tam docelowo w przyszłości zrobić sypialnię - wówczas wejście na strych byłoby schodami z salonu....czy przy zachowaniu konstrukcji drewnianej stropu jest możliwość adaptacji strychu na sypialnię i małą garderobę?? oczywiście w dachu doszłoby okno połaciowe.... mam pytanie do osób które zaczynają budowę (bądź są w trakcie) jak wyglądała u was adaptacja tego budynku do warunków zabudowy, działki??? u mnie jest to koszt ok 2000zł, jeśli nie chce wprowadzać żadnych zmian w zakupionym projekcie....a jeśli ze zmianami to nawet 3000zł....więc łącznie wyjdzie 5000zł......a projekt na indywidualne zamówienie kosztuje 3-4tys.! Proszę o odpowiedź.
Pozdrawiam Wojtek ( wojtass84@interia.pl)

24.10.2011
ANIOL

Czesc wszystkim :)Aniu buduje metoda gospodarcza ,towar juz zamówiony ,fundamenty zalane ,koszt jak narazie to :sciagniecie humusu i wykopanie fundamentu 250zl drut 1100zl ,beton z gruchy 9m 2600zl plus bloczki betonowe 4000zl bloczkow mozna mniej ,ja celowo kupuje wiecej zeby dom stal wyzej .
Co do pytania Wojtka ja zalatwilem adaptacje w Koninie za 950 zl,ale nic nie zmienialem za co trzeba placic ,tylko kosmetyka ,na ktora nie potrzeba pozwolenia ,wiec po co placic;)
Pozdrawiam :)

24.10.2011
ANIOL

Moj edres archaniol2222@wp.pl moge Aniu podac konkretnie ,co kupilem i jak ilosc .

27.10.2011
Seba

Witam ,mam pytanie,gdzie umiescic schody w projekcie Sofia zeby moznabylo spokojnie korzystac np ze strychu lub poddasza uzytkowego????? Zaznaczam ze nie mowie tu o drabinie wyciaganej z sufitu. :)
Pozdrawiam

28.10.2011
Seba

Czesc wszystkim,macie moze pomysł jak zagospodarowac poddasze w sofii ????????????????
Znalazlem schody w projekcie sofii III ale nie wiem jak wyglada rzut poddasza....nie moge sie zdecydowac na ten projekt ze wzgledow praktycznych-wszystko inne mi odpowiada. Z prosba o pomoc :)
Pozdro

01.11.2011
maksymilian2005

Witam serdecznie,mam pytanie dotyczace zmiany technologi wykonania z murowanej na szkielet drewniany.Jak wyglada to w praktyce,dziekuje za odpowiedz.

04.11.2011
Lipińscy_Domy

W praktyce zamiana technologii budowania domu na drewnianą odbywa się poprzez firmę realizującą w tej technologii. Zazwyczaj wystarcza, że architekt zaznacza w projekcie, przy składaniu wniosku o pozwolenie na budowę, że dom będzie realizowany w technologii prefabrykowanej drewnianej, a firma, która realizuje dom, przygotowuje wykonawcze rysunki i obliczenia konstrukcji. Tak działa m.in firma Wolfystem, z którą współpracujemy.

04.11.2011
Lipińscy_Domy

W tym projekcie miejsce na ewentualne schody na poddasze można wygospodarować jedynie kosztem któregoś z pomieszczeń. W salonie szkoda dodatkowo zabierać miejsca na schody. Jedynym rozsądnym miejscem jest wiatrołap, z którego można poprowadzić schody, podobnie, jak w Atlancie DCP 241. Rozwiązania poddasza można zobaczyć także w podobnym projekcie Savannah LMP 127

05.11.2011
Seba

Dzieki wielkie.Pozdrawiam :)

08.11.2011
maksymilian2005

Dziekuje za info,super projekcik,pozdrawiam.

15.12.2011
darius111

witam czy w tym projekcie jest możliwość wybudowania garażu podwójnego,bo pozatym projekt jest super.Pozdrawiam

28.12.2011
hugo

witam czy ktos buduje ten dom w okolicach gniezna lub poznania?bardzo chetnie obejze jak wyglada na zywo.

06.01.2012
michał

witam czy można zobaczyc ten dom w okolicach Krosna

07.01.2012
Ja

Witam
Dom taki zbudowany jest w Rokietnicy, kawałek za przejazdem kolejowym w kierunku na Żydowo po lewej stronie...
Pozdrawiam

07.01.2012
olo

Czy wie ktoś czy można zobaczyć ten dom gdzieś w woj. pomorskim?

08.01.2012
kiniago

w odpowiedzi na komentarz użytkownika Ja z dnia 2011-01-07
Witam.
czy moglabym prosić o zdjęcia na e-maila kiniago@wp.pl Pani/Pana domku.
Pozdrawiam.

08.01.2012
Ja

Ja zaczynam budować ten projekt w tym roku oczywiście z małymi zmianami, a dom w Rokietnicy zauważyłem przejeżdżając.
Pozdrawiam

12.01.2012
Jula

Witam wszystkich również przymierzam się do budowy Sofki. Rozmawiałam z projektantem, który zasugerował usytuowanie schodów w wiatrołapie. Zmniejszając łazienkę w miejsce wanny można pociągnąć schody na górę. Bez zmieniania stropu można tam zagospodarować łazienkę, garderobę i sypialnię, to tak dla niezdecydowanych, ja tak zrobię

03.02.2012
Sebastian

piękny,ale;)Czy jest możliwość zrobienia kuchni tak jak w Sofia II i zachowanie przy tym trzech pokoi?

07.02.2012
Prestona

Witam
Jestem zainteresowana tym projektem i mam pytanie dotyczące powiększenia domu .
Czy istnieje możliwość rezygnacji z wykuszu, a poszerzenie domu o 1,2 m w całości tak aby dach był niesymetryczny,?

21.02.2012
Renata

Czy ktoś może podać przybliżony koszt wystawienia tego domku, bo projekt też mi się bardzo podoba?

27.02.2012
aga_wla

Czy ktos wybudowal ten dom w Mazowieckim? Najlepiej w okolicach Warszawy? Bardzo chcialabym go zobaczyc i posluchac opinii na temat planów oraz problemów z budową.

06.03.2012
Ania

ANIOŁ jak tam budowa idzie?

06.03.2012
Dariusz.T.

Witam . 10-11 kwietnia rozpoczynam budowę , foto recenzja będzie na forum.
pozdrawiam

07.03.2012
Ania

Już nie mogę się doczekać Twojej relacji z budowy :) byłabym wdzięczna gdybyś też pisał o kosztach jakie ponosisz. U mnie całkowity zastój :/ problemy z działką wiec budowa najwcześniej za rok ruszy. Pozdrawiam budujących Sofie IV

22.03.2012
Agnieszka, Łagiewniki Kościelne

Prosta konstrukcja, funkcjonalny rozkład pomieszczeń. Ładny wygląd a zarazem elegancki. Projekt tani w realizacji, możliwość realizacji projektu etapami, możliwość zmiany rozmieszczenia pomieszczeń niewymagająca dużych nakładów i kosztów.

22.03.2012
monika

Witam bardzo chciałabym zobaczyć jeśli można wnętrze tego domu budowanego w Krośnie, tylko gdzie on sie znajduje, bardzo prosze o informacjię. pozdrawiam

28.03.2012
Teresa, Police

Zamiar budowy własnego domu dojrzał w naszym małżeństwie wraz z nami. Jesteśmy z 34 letnim stażem małżeńskim. Jako pierwszy katalog kupiłam właśnie „Lipińscy- Domy nr 2(8 2009 r)”. Od początku Sofia II LMB 41a umieszczona w tym katalogu podobała się nam. Przejrzeliśmy wiele innych katalogów. Kiedy zobaczyliśmy Sofię IV LMB 41c ostatecznie zdecydowaliśmy , że będzie to nasz dom. Miłość od pierwszego wejrzenia. Prosty , ładny, estetyczny, nieduży. Prostotą, elegancją, estetyką, nieduży rozmiar odpowiedni dla nas dwojga starszych ludzi. Dobre rozstawienie pomieszczeń , łazienka z oknem, kuchnia z wyjściem na taras. Frontowe okna z okiennicami.

28.03.2012
Mariusz, Konin

Stawiam na biura projektowe znane i szanowane, polecane przez znajomych, są to biura z doświadczeniem na rynku. Druga sprawa projekt zakupiony przeze mnie jest prosty, ładny i tani w wykonaniu. Jest to projekt niedrogi, funkcjonalny , bryła domu na zewnątrz jak w środku spełnia moje oczekiwania, a to podstawa przy wyborze.

09.04.2012
fiedka

niedługo przymierzamy się do budowy tego domku, czy ktoś mógłby mi wysłać zdjęcia z budowy ??? a może ktoś na Podkarpaciu buduje sofia IV - proszę o informacje / dziękuję

19.04.2012
Anita

Pani Tereso osobiście też uważam, że Sofia IV to najlepsza propozycja ze wszystkich.

22.04.2012
hugo

Co do projektu rekuperacji w cenie 300zl to piszecie panstwo nie prawde poniewaz sami go nie wykonujecie tylko odsylacie do firmy Rekuperatory a oni rzadaja sobie 1tys zl za projekt.Dlatego prosze nie wprowadzajcie Panstwo klientow w blad.

23.04.2012
Justa

Sofia jest piękna. Zastanawiam się, czy można przerobić nieco ten projekt, by domek miał użytkowe poddasze. Czy można np. zmniejszyć łazienkę i poprowadzić w tym miejscu schody albo kosztem jednego z pokoików; na górze zrobić 2 pokoje i łazienkę z wanną. Czy taki zabieg mieściłby się w ramach adaptacji projektu?

05.05.2012
Dariusz.T.

Witam. My przerobiliśmy projekt odnośnie poddasza użytkowego/ czyli jednym słowem zmiany stropu/ koszt 800pln , także zmniejszamy na dole łazienkę żeby poprowadzić schody na górę . i żeby te pokoje na górze były w miarę funkcjonalne trzeba zrobić wyższą ścianę kolankową . pozdro

05.05.2012
Marcin . T

Witam ! Czy w zachodniopomorskim ktoś z Państwa buduje ten dom? Jeśli tak proszę o kontakt ? marcin2364@vp.pl

08.05.2012
kiniago

Panie Dariuszu T czy jest Pan w trakcie budowy Sofi IV? Chętnie porozmawiałabym na temat zmian jakie wprowadził Pan
w tym projekcie, będe wdzięczna, jesteśmy w trakcie pozwolenia na budowę, mój mail kiniago@wp.pl. Pozdrawiam.

10.05.2012
Dariusz T

Witam , tak już się zaczęło , pierwsze fotki na forum z realizacji projektu SOFIA 4.


oto link http://forum.lipinscy.pl/gallery/album.php?album_id=553


pozdrawiam

17.05.2012
Lipinscy_Domy

Świetnie! Grunt to zacząć :) Trzymamy kciuki za dalsze etapy!

25.05.2012
Megi

Wybraliśmy ten projekt ,mamy zamiar zacząć budowę w przyszłym roku
Chcemy dokonać jednej zmiany tj. zrobić przejście z kuchni do garażu, najlepiej w tym rogu który sąsiaduje ze ścianą z pokojem.
Czy takiej zmianę możemy dokonać sami na etapie budowy?

02.06.2012
Dariusz.T.

Nie polecam takiej zmiany z racji problemu z zapachem spalin w czasie odpalania auta ,żadne drzwi nie są tak szczelne żeby oddzielić garaż od kuchni w 100%. też miałem taki plan ale mój budowlaniec odradził mi to.
Sąsiedzi mają wejście do garażu z przedpokoju i czuć spaliny , można przeboleć korytarz ale zapach spalin w kuchni ??? chyba nie za bardzo.
pozdro

04.06.2012
Mirek

Poda ktos koszt budowy sofi

04.06.2012
fiedka

dzisiaj kupiłam projekt! już nie mogę się doczekać budowy......
domek jest świetny , mam nadzieje, że w rzeczywistości będzie jeszcze lepszy

05.06.2012
nick

Koszt budowy stanu surowego zamkniętego przez firmę to 120 tys zł, w moim przypadku zmieniony strop na żelbetowy, dachówka ceramiczna, okna w kolorze wraz z roletami plus pięć okien dachowych (ściana kolankowa bloczek plus wieniec), wychodzi całkiem spora powierzchnia użytkowa poddasza. W tej cenie zawarte są też ścianki działowe i tarasy.
Pozdrawiam

06.06.2012
kafed

Pytanie do p. Dariusza, jestem na etapie budowy tego domu (tzn. buduje go firma do stanu surowego zamkniętego) i zastanawiam się nad schodami (podnoszę o 2 bloczki ścianę kolankową na poddaszu) jak rozwiązał Pan problem schodów? na poddasze wchodzi Pan od wiatrołapu? o ile zmniejszyła się łazienka? rozumiem że ma Pan schody kręcone? rozważam likwidację pomieszczenia gospodarczego na rzecz schodów ale jakoś nie mam wizji ;) i nie wiem czy będzie tak wygodnie, proszę o odpowiedz, dziękuję

06.06.2012
Dariusz.T

Witam. Schody będą od wiatrołapu nad wanną (oczywiście wanny nie będzie ale w wizualizacji na miejscu wanny) schody kręcone , nie trzeba likwidować pomieszczenia gospodarczego , przecież może być ono pod schodami ( tak polecił mi fachowiec od schodów ) znajomy tak zrobił i szczerze mówiąc genialne rozwiązanie a w domu bez piwnicy każde pomieszczenie gosp. na wagę złota , o ile zmniejszy się łazienka nie wiem .
Schody będą miały szerokość 80 cm a więc można to sobie policzyć .
Pozdro

07.06.2012
kafed

Dziękuję bardzo za szybką odpowiedz

07.06.2012
Jula

Do poprzedników: po zaprojektowaniu schodów kosztem łazienki wychodzi: wiatrołap 7,8m, łazienka zmniejsza się z 6,48m do 5,2 m. to zostaje całkiem sporo. Tak jest w moim projekcie pozdrawiam.

08.06.2012
Dariusz.T.

Witam. Jeśli chcecie zobaczyć gdzie ja umieszczę schody proszę kliknąć ten link

http://forum.lipinscy.pl/gallery/image_page.php?album_id=553&image_id=1018


Świetny darmowy program do wizualizacji pomieszczeń .


pozdro

21.06.2012
gosula

Witam, jestem zainteresowana kupnem tego projektu. jest on jak dla mnie idealny. mam pytanie czy można zamienić 1.4 z 1.7 i gdzie można wstawić schody na półpiętro (pewnie w salonie przy ścianie szczytowej)

22.06.2012
Lipinscy_Domy

Oczywiście, można zamienić miejscami te pomieszczenia. A może zamienić 1.7 z 1.8, wtedy dwie sypialnie będą usytuowane bliżej łazienki, tworząc taką prywatną strefę. Schody na ewentualne poddasze można wygospodarować kosztem części wiatrołapu, łazienki i schowka 1.2, podobnie jak tu proponowali inni :-) Można też na ścianie szczytowej w salonie, podobnie, jak na zdjęciach realizacji Sofii II.

30.06.2012
wojtek

Czy można zobaczyć ten projekt gdzieś w okolicach Wrocławia? Bardzo mi się podoba i chciałbym go ocenić na żywo

11.07.2012
Marek

Witam! Ja mam taki pomysł na sofie 4 poszerzyłbym ją o 1m linia cięcia byłaby przez środek wanny salon powiększyłby się o ok 5m2. Sypialnie 1.4 powiększyłbym o wnękę łazienki, kuchnię w miejsce 1.8 z wydzielonym przejściem do garażu oczywiście sień musiałaby się zmniejszyć żeby było wejście do kuchni, a pomieszczenie gospodarcze byłoby osobną toaletą, wyjścia na taras zastąpiłbym oknami a wyjście na taras zrobiłbym z salonu gdzie po poszerzeniu wyszłyby duże drzwi. Taki mam pomysł na sofkę. Mam zrobiony rysunek w point jak byłby ktoś chętny to zobaczyć. e-mail marco72@o2.pl

11.07.2012
Sylwia

niedługo będziemy budować sofia IV i czy myślą Państwo, że aby wybudować stan surowy zamknięty starczy nam 100 tys?? z góry dziękuje za odpowiedź

11.07.2012
gosia

Witam. mam pytanie do Pana Dariusza.T chciałabym wprowadzić takie zmiany jak pan + przejscie z kuchni do kotłowni. Może mi Pan powiedzieć jak wyglądał koszt zmian w projekcie i adaptacji na działce?mój nr gg 11917365

11.07.2012
Danusia

Witaj! W jakim regionie Polski budujesz? Jeśli możesz to prześlij proszę mi na maila dane firmy budującej Twój dom - dw1970@op.pl.

Pozdrawiam

12.07.2012
sofiaIV

wojtek ja buduję dom w okolicy Wrocławia, podaj namiary do siebie to umówimy się na prezentację-mam już mury i połowę dachu

22.07.2012
danielo

super projekt też mi sie podoba

22.07.2012
danielo

witam mam pytanie do budujących jakie są wymiary sypialni i jakie są koszty do fundamentu pozdrawiam

22.07.2012
OLA

czy ktoś buduje ten dom w woj. łódzkim? jak przedstawiają się koszty na poszczególnych etapach? chcę budować wg tego projektu , więc proszę o pomoc i cenne wskazówki.

29.07.2012
danielo

co tu tak cicho

10.08.2012
Dariusz.T.

Wymiary sypialni to około 10m , koszt jest uzależniony o gruntu na jakim dom będzie stał i kto go buduje .
Ja miałem 1,8 metra do gruntu właściwego ale jeśli trafisz na partaczy to powiedzą eeeeeeee 80cm i możne ławy lać a to , że grunt jest nie stabilny to juz ............. . Zależy tez jakich bloczków użyjesz , ja za fundament całość z robocizną zapłaciłem około 45 tyś.
pozdro

18.08.2012
danielo

witam ponownie pytanie do Pana Dariusza jaki Pan zastosował strop i jakie koszty stropu.oraz koszty dachu dzięki za odpowiedz

20.08.2012
setaur

Witam serdecznie! mam dwa pytania :czy jest możliwość zastosować w Sofii strop żelbetowy?a jeśli tak to ile będzie kosztować ta zmiana i czy jest możliwość darmowego pobrania sobie zestawienia materiałów budowlanych na ten dom?

20.08.2012
setaur

A CZY TO JEST KOSZT ROBOCIZNY CZY CAŁOŚCI?CZY UŻYTKOWE PODDASZE WYMAGA DUŻYCH ZMIAN W PROJEKCIE?

20.08.2012
Dariusz.T.

Strop jest typu Teriva, koszt zmian 800pln ,dach okolo 40 tyś z dachówką Koramic
http://www.wygrajdach.pl/galeria-dachow?Applications_page=2 pozdro

21.08.2012
Basia

pytanie do setaur czy te 120 000 to jest z materiałem i czy można zdobyć namiary firmy co budowała za tą cena

24.08.2012
rico

wielka prośba: ile wychodzi koszt stanu surowego?mamy jak dotąd tylko jedną wypowiedź na ten temat.

28.08.2012
Dariusz.T.

W moim przypadku wyszło około 140tyś . Wydaje mi się , że za 120tyś nie ma szans na wybudowanie w takim stanie jak powyżej ktoś opisał , albo liche materiały albo ekipa lub wycena wyssana z palca. "Koszt budowy stanu surowego zamkniętego przez firmę to 120 tys zł, w moim przypadku zmieniony strop na żelbetowy, dachówka ceramiczna, okna w kolorze wraz z roletami plus pięć okien dachowych (ściana kolankowa bloczek plus wieniec), wychodzi całkiem spora powierzchnia użytkowa poddasza. W tej cenie zawarte są też ścianki działowe i tarasy. Pozdrawiam"
Nie wierzę w to chyba , że ktoś budował przed 10 laty

28.08.2012
rico

Wielkie dzięki Dariusz!A czy robiłeś użytkowe poddasze?Ten projekt bardzo mi się podoba ale jestem pełen obaw: czy dom nie jest za mały na czteroosobową rodzine?nie robiąc poddasza mamy tylko 83m. a pokoje dla dzieci mają tylko po 10 m.czy to wystarcza?masz może jakieś zdjęcia,które dałyby obraz wnętrza i jego wielkości?mój e-mail: hammer30@interia.pl Z góry serdecznie dziękuję.

28.08.2012
Dariusz.T.

http://forum.lipinscy.pl/gallery/image_page.php?album_id=553&image_id=1093
Fotki w linku, mam poddasze użytkowe 50metrów kwadratowych.

29.08.2012
michał

napiszcie proszę czy buduje ktoś sofieIV koło krosna na podkarpaciu?

07.09.2012
Lipinscy_Domy

Mamy wersję tego domu ze stropem żelbetowym - to Sofia III - wtedy tylko wystarczy skrócić garaż, co na pewno będzie tańsze w przeprojektowaniu, niż projektowanie od nowa stropu. Podstawowe zestawienie możemy przesłać na maila (powierzchnia ścian, kubatura drewna, stali itp). Szczegółowy kosztorys ślepy jest natomiast dostępny do każdego projektu i kosztuje 70 zł+ VAT.

07.09.2012
iwkabal

Witam. Jestem w trakcie budowy tego domu. Mam pytanko-jakie okna chodzi o wymiary byłyby odpowiednie do pokojów od strony wejścia. A od drugiej strony (podwórko) zamiast drzwi balkonowych mam okna i jakie wymiary okien wziąść żeby póżniej w pokojach ładnie mi się meble zmieściły.

08.09.2012
fiedka2

planowo pod koniec września ruszamy z budową SOFIA IV , (podkarpacie, koło krosna)

11.09.2012
michał

do fiedka2 czy można wiedziec w jakiej miejscowości będzie budowana sofia4 ? I czy będzie można zoaczyc budowę w trakcie realizacji........

16.09.2012
iwkabal

Czy ktoś buduje sofie w woj.pomorskim. Chciałabym pogadać na temat dachu i wysokości budynku. Nie wiem czy podnosić o jeden dwa bloczki mury.Moim zdaniem jest ona według projektu za niska przez co dach obsadzony jest nisko. Daje wtedy cień na okna i są ponure pokoje. I oczywiście wieniec wtedy nie jest schowany pod dachem co powoduje zimniejszy budynek. Ja mam pociągniętą budowe na 13 bloczków ytongów o wym 20 cm. co daje mi 2,60 m . Okna mam obsadzone na 90 cm . Wysokość okien to 1,40+ 20 cm rolety. Drzwi balkonowe na 2,30.I zaraz nad oknami chcą lać wieniec. Moim zdaniem jakby dali nadproża ytongowskie i dopiero wieniec by było z korzyścią dla mnie.Byłby cieplejszy dom. Proszę o szybką radę.Podaje kontakt iwkabal@poczta.fm

22.09.2012
fiedka2

do michała: miejscowość koło brzozowa, fundamenty już wylane- w poniedziałek ciąg dalszy

05.10.2012
michał

do fiedka2 czy możesz podac miejscowośc i napisz kiedy można przyjechac zobaczyc budowe ?

13.10.2012
fiedka2

do michała: Zmiennica, raczej codziennie w godzinach popołudniowych

14.10.2012
michał

do fiedka2 jak mogę trafic do tej budowy w Zmiennicy podaj szczegół

27.10.2012
Paulla00

Dom jest naprawdę śliczny, wnętrze bardzo funkcjonalne...w zasadzie to nie wiem czy zmieniłabym cokolwiek.
Czy ktoś buduje może SOFIE IV w woj. opolskim??

27.10.2012
Paulla00

Dom jest naprawdę śliczny, wnętrze bardzo funkcjonalne...w zasadzie to nie wiem czy zmieniłabym cokolwiek.
Czy ktoś buduje może SOFIE IV w woj. opolskim??

30.10.2012
fiedka2

do michał: i co zdecydowaliście się na ten projekt? mam nadzieję, że real was nie odstraszył :))

02.11.2012
michał

do fiedka2 no więc tak w realu wygląda dobrze podjęliśmy projekt . Czy można by było znac koszt budowy do tego momentu co masz?

04.11.2012
fiedka2

do michał: około 80 tyś, w tym oczywiście koszty związane z opłaceniem firmy budowlanej, podejrzewam stan surowy zamknięty około 110 tyś.
w przeciągu 2-3- tygodni zrobimy dach i wstawimy okna więc będę wiedzieć dokładniej

04.11.2012
Agata

Witam, chciałam się zapytać czy ktoś może buduje ten dom w okolicach Warszawy, żeby podjechać i zobaczyć go w realu ????

06.11.2012
Marcin

Witam ! Ja zaczynam budowę tego domu w marcu( oczywiście jeśli pogoda pozwoli) w wojewódzwie zachodniopomorskim . Firma budowlana wyceniła koszty robocizny do stanu surowego otwartego na 34 tyś.

06.11.2012
audiofil

Ja zacząłem budowę w kwietniu. Stan surowy otwarty to ok. 120 000 zł. w tym robocizna 32 000 zł (bez ścianek działowych i tzw. pierwszej szlichty). Oczywiście wszystko zależy od materiałów. Ja stawiam z solbetu 36 cm - ściana jednowarstwowa, lekki drewniany strop, dachówka Creaton Premion.

07.11.2012
Deta

Projekt bardzo nam się podoba, jeśli Państwo nie stworzycie czegoś bardziej genialnego to z pewnością go zakupimy.Mamy tylko wątpliwości związane z salonem.Czy możliwe jest poszerzenie domu /aby salon na szerokość był szerszy/ i czy to wiąże się z dużymi kosztami przeprojektowania dach itp..Już widzieliśmy taki dom poszerzony o 1 metr i wyglądał super.Pozdrawiam - przyszła inwestorka

09.11.2012
Lipinscy_Domy

Podobny projekt, powiększony o 1m to Sintra, z tym że do niej trzeba doprojektować garaż z kotłownią :-)

25.11.2012
Jula

Do Marcina z zachodniopomorskiego. Czy mógłbyś podać namiary na firmę która ma Ci budować dom, ja również planuję budowę Sofki wiosną. Jestem z tego samego województwa.

27.11.2012
Marcin

Jula podaj meila! Marcin

27.11.2012
Marcin

Jula podaj meila! Bądź napisz marcin2364@vp.pl

02.12.2012
fiedka2

w piątek u nas stan surowy został zamknięty ( 120 tyś: w tym firma 28 tyś, dach, okna;--- bez drzwi zewnętrznych i bramy garażowej, stropu i chudziaka) dom wygląda naprawdę pięknie szczególnie od tylnej strony

strop drewniany koszt około 7 tyś- drewno byliśmy zadatkować wczoraj/ pooglądaliśmy wstępny projekt

02.12.2012
Jula

Hej, Marcin! Dzięki za odpowiedź. Sorki nie miałam czasu odpowiedzieć. Tak jak napisałam mam proźbę o namiary na firmę, która zamierza Ci budować. Teraz zbieram oferty firm i porównuję ceny. Też myślę o ruszeniu z budową wiosną, Maja budowa ma być w Rurzycy. Na początku chciałam zmieniać strop na terravivę, ale coraz bardziej się przekonuję do lekkiego drewnianego z prefabrykatów (Mitek). Oni swoją siedzibę mają w Mirzynie (Kudra i spółka) jednocześnie robią strop i wieźbę dachową, nie ma wewnątrz słupów. Przez to jest trochę więcej miejsca na poddaszu. Co do poddasza w projekcie mam schody prowadzone przez wiatrołap kosztem łazienki. Poddasze nie chcę szatkować na małe klitki. Po lewej stronie przy garażu (bo mam lustrzane odbicie) będzie łazienka, schody prowadzić będą do otwartego saloniku, a po prawej stronie mała sypialnia dla gości. To by było na tyle, a gdzie jest Twoja budowa? Czekam na odpowiedź. Jula. Coś mi szwankował komp próbowałam wysłać maila, ale bez powodzenia. Mój mail ejulita@wp.pl

07.12.2012
łukasz

Witam serdecznie,
Mam pytanie do autorów projektu. Czy jest możliwośc poprowadzenia korytarzyka do garażu przedłużając już istniejący korytarz pomniejszając tym samym pokój 1.8, a z garażu zrobić dodatkowy pokój z oknami na ścianie bocznej budynku oraz w miejscu bramy garażowej? Dziękuję i pozdrawiam - fajny projekt.

A teraz pytanie do forumowiczów. Czy ktoś buduje ten dom w mazowieckim lub okolicy? Chętnie zobaczyłbym ten domek w rzeczywistości. Dziękuję za pomoc.

11.12.2012
Iga

czy ktoś buduje ten dom w centralnej Polsce?

12.12.2012
Lipinscy_Domy

Tak, takie zmiany można wprowadzić. Z naszej strony otrzyma Pan zgodę na nie. Nasuwa się tylko pytanie, czy istniejąca kotłownia ma zostać w tym samym miejscu? Wejście do kotłowni z pokoju nie jest najlepszym rozwiązaniem.

13.12.2012
ANIOL

czy ktoś buduje ten dom w centralnej Polsce? TAK w Koninie jestem na etapie mury plus strop teriva :)

14.12.2012
michał

ile będzie cię kosztował strop teriva ?

15.12.2012
łukasz

oczywiście kotłownia zostaje w tym miejscu, zapomniałem napisać tylko, że z wejściem jedynie z zewnątrz. Pozdrawiam serdecznie autorów projektu.

16.12.2012
ANIOL

ile będzie cię kosztował strop teriva ? caly koszt stropu to 10 tys 5 tys belki plus pustaki 3,5 tys beton (12kubikow)stal 1 tys reszta to podpory ,dodam ze strop zalewalem tylko nad czescia mieszkalna ,garaz tylko wylewany wieniec.

19.12.2012
luka

a dokladnie gdzie w tym koninie ten dom budujesz

19.12.2012
milka

aniołku napisz ile kosztowal stan zero;w tym roku tylko tyle uda nam sie zrobic.pozdrawiam

21.12.2012
ANIOL

aniołku napisz ile kosztowal stan zero;w tym roku tylko tyle uda nam sie zrobic.pozdrawiam
3,5tys kanoldy
3,5tys beton na ławe
1,1tys stal
1tys cement+zwir
1,5tys izolacja +ocieplenie
1tys chudziak własnorecznnie
reszta to zasypanie fundamentow ,wykopanie ław i inne rzeczy ,duzo ich :)

a dokladnie gdzie w tym koninie ten dom budujesz
miejscowosc Szczepidło 5 kilometrow od Konina


04.01.2013
milka

dzieki za szybką odpowiedz,fajnie by bylo gdybyś zamiscił kilka zdjęc swojego domku.pozdrawiam

05.01.2013
magda@mariusz

Witam serdecznie wszystkich:) Czy ktoś z Państwa wybudował ten domek w małopolsce? Najlepiej w okolicach Krakowa? Bardzo chcielibyśmy go zobaczyć i posłuchać opinii na temat realizacji... Okazało się, że projekt który wybraliśmy nie jest możliwy do wykonania na naszej działce i mamy teraz problem :( Sofia IV spodobała się nam, ale zawsze lepiej byłoby przekonać się widząc go w realu... Prosimy o kontakt: magdajki@interia.pl.

22.01.2013
Aga

Czy na działce 17 m.można pobudować taki dom bez garażu?

08.02.2013
sylwia

Witam, pisali Państwo, że istnieje możliwość zamówienia zmian w projekcie już u Państwa. Moje pytanie brzmi: ile dodatkowo do projektu trzeba by było zapłacić za naniesienie takich zmian: zamiana pomieszczeń 1.8 i 1.7, dorobienie przejścia z garażu do kuchni, wmontowanie schodów na poddasze w prawym górnym rogu w późniejszej jadalni (w pierwotnym projekcie jest to pomieszczenie 1.7), zmiana stropu na żelbetonowy. Proszę o orientacyjny koszt :) z góry dziękuję i pozdrawiam

11.02.2013
Lipinscy_Domy

Tak, można - dom bez garażu ma wymiary 10,65m, zatem po dodaniu 3 m z każdej strony minimalny wymiar działki wyniesie 16,65m.

13.02.2013
melka

Witam, my z mężem budujemy ten dom na śląsku, i mam bardzo gorącą prośbę o kontakt z Panem Dariusz T. gdyż chcemy przeprojektować pewne rzeczy podobnie jak u Pana. Budujemy też z tego samego materiału i tu też mamy wiele pytań. Bardzo proszę o kontakt mailowy mireladz@interia.pl
pozdrawiam wszystkich budujących sofkę:)

14.02.2013
Lipinscy_Domy

Możemy oczywiście taką wersję na zamówienie - prosimy jednak o podanie e-maila, lub kontakt bezpośredni.

15.02.2013
izabela

witam,

czy po zmianie kata nachylenia dachu na 25 stopni bedzie mozliwe korzystanie ze strychu? i czy takej zmiany musi dokonac projektant?

z gory dziekuje,
pozdrawiam.

21.02.2013
bolo

FAJNY

26.02.2013
Tomas

ANIOL mieszkam niedaleko Konina z str slesina czy możemy się umówić jakoś chciałbym zobaczeć SOFIE na zywo

03.03.2013
Dana

Buduję właśnie taki domek. Z garażu zdobiłam sypialnię :), Kuchnię przeniosłam na miejsce sypialni od strony frontu, zlikwidowałam także sypialnię od podwórza na korzyść salonu. Jeszcze kilka drobnych, dozwolonych przeróbek, podniesiona ściana kolankowa wynikiem czego będę miała na górze pokój 24mkw no i antresolę. Mój dom będzie piękny. Zmieniłam także okna na trzy ogromne, w sypialni również na całą ścianę. Dom będzie nowoczesny. Pozdrawiam.

03.03.2013
Tomas

ANIOŁ możemy się zobaczyć zależy mi obejrzeć Twój dom napisz tomek14444@wp.pl Tomas

25.04.2013
Jula

Do Fiedka2 Proszę napiszcie ile zużyliście klinkieru na 2 kominy w m2 i na co jest klejone?

27.04.2013
strażak

witam.
Prośba do wszystkich budujących domek sofia IV.
Jakie są mniej/więcej koszta budowy takiego domku chodzi tu o poszczególne etapy jak fundamenty, stan surowy otwarty,stan surowy zamknięty. Pewne jest to, że te koszta bedą się różniły zależności od rejony Polski. Proszę o jakiekolwiek informacje. pozdrawiam.

27.04.2013
fiedka2

do jula- kupiłam około 7-8 metrów, ale 1,5 opakowania mi zostało, klej panowie dopierali sobie sami =, z tego co pamiętam to jakiś droższy

28.04.2013
Jula

Do Fiedka2 Dzięki za odpowiedź, a czy tarasy już zrobiliście? Na jakim etapie je się buduje? Ja jestem na etapie zalewania stropu. Pozdrawiam.

29.04.2013
shrek

witam. czy jest mozliwosc zrezygnowania z wykusza kosztem salonu-jdalni? czy do tego jest potrzebna zgoda?

30.04.2013
Lipinscy_Domy

Wykusz można bez problemu usunąć i może to zrobić lokalny architekt w ramach adaptacji. Zgoda na taką zmianę będzie wymagana w urzędzie, ale my oczywiście taką zgodę wydamy.

30.04.2013
fiedka2

do jula: my zakończyliśmy tynki i wylewka jest już gotowa; strop będziemy mieć drewniany z widocznymi legarami - zapraszam do pooglądania zdięć- strop będzie gotowy dopiero pod koniec czerwca

01.05.2013
Jula

Witam ! Bardzo, ale to bardzo mi się podoba ! Gratuluję ! Widzę, że zrobiliście przejście do kotłowni ja niestety nie mam i zaczynam powoli tego żałować ! U mnie strop w poniedziałek był wylany i dalej powolutku do przodu. Serdecznie Was pozdrawiam.

02.05.2013
andrzej

do Jula: bardzo proszę o przedstawienie jakichkolwiek kosztów budowy tego domku.dziekuje i pozdrawiam

03.05.2013
Jula

Do Andrzeja podaj swojego e-maila.

06.05.2013
andrzej

do Jula: po_prostu_Andrzej@poczta.fm z gory dziekuje, pozdrawiam

06.05.2013
milka

pytanie do Juli: gdzie budujesz swoją Sofie i czy istnieje możliwośc zobaczenia domku

07.05.2013
Marcin

Ja buduje ten dom w zachodniopomorskim .Stan zero wyniósł mnie 30 tys.

07.05.2013
Jula

Do milka zachodniopomorskie, jeśli chcesz podam namiary, można zobaczyć w każdej chwili, budowa trwa nadal, następny etap budowa więźby dachowej. Stan zero również mnie wyniósł 30 tys. z robocizną.

09.05.2013
MILKA

do Juli;dzięki za zaproszenie jednak to dość daleko,jestem z woj. łódzkiego ale chętnie zobacze jakieś fotki na forum.pozdrawiam.

09.05.2013
milka

DO FREDKI ;CZY ROBILAŚ SCHODY NA PODDASZE?JESLI TAK TO GDZIE JE UMIESCIŁAŚ?POZDRAWIAM I CZEKAM NA INNE FOTKI

09.05.2013
milka

ANIOŁ CO TAKA CISZA U CIEBIE?

11.05.2013
ANIOL

Czesc wszystkim ,ja osobiscie umiescilem wejscie na schody w salonie ,mam odb lustrzane czyli po prawej stronie ,schody dwu zabiegowe bez spocznika ,wymiar dziury szer 180 dług 240 ,schody z drewna bukowego ,zdjecia na jesien do tego czasu bedzie dach ,wydeskowany z papa ,reszta za rok ,finase ,budowa metoda gospodarcza ma wady i zalety ,główna zaleta mozna duzo poszukac okazji na internecie ,ja osobiscie kupilem schody za 3000 zl nie jakas lipa ,solidne wykonane przez stolarza ,pozdrawiam :)

12.05.2013
fiedka2

do milka: w chwili obecnej poddasze mam nieużytkowe, schody wysuwane będą w garażu. nad garażem będę mieć małą suszarnię/strych

12.05.2013
milka

dzięki za odpowiedzi.my czekamy na pozwolenie na budowe i ruszamy,stan zero w tym roku ,reszta w przyszłym roku.pozdrawiamy

28.05.2013
Tomas

Witam, mam pytanie do was moi drodzy ile drutu na zbrojenie zamawialiście . Chodzi mi ile metrow 12 drutu 8 i 6 z gory dzieki za pomoc

03.06.2013
michał

witam chcę zapytać ile potrzeba palet pustaków na cały dom?

04.06.2013
Lipinscy_Domy

Powierzchnia ścian nośnych całego domu to 173,6 m2 pustaków Porotherm o grubości 25 cm.

11.06.2013
Tomas

Witam, mam ptyanie do was moi drodzy tak z ciekawości zapytam ile wziął od was geodeta za wytyczenie domu?

11.06.2013
milka

Witam.FIEDKA ,DAWNO NIE URACZYŁAŚ NAS ZADNYM ZDJĘCIEM ;CHCIAŁABYM ZOBACZYC POKOJE I W OGOLE JAK CI IDZIE ,NA JAKIM ETAPIE JESTEŚ.POZDRAWIAM SERDECZNIE

13.06.2013
CzaRny

Witam.
600 stowek.Woj.slaskie.Mapa do cel.proj.600.

13.06.2013
CzaRny

Witam.
Podam ceny materialow mniej miecej stan zero:Bl.fund 750szt.po 1.80.zl.sztuka.,stal fi 14,12,8 ok.2000zl.,beton B20-13m3=2990,drenaz ok.400zl.,cement 42,5-20szt po 10,90zl.,styropian fund.2m3-490zl.,folie bud.ok 300zl.,dysperbit 10kg po 50zl.,wiadomo piasek,piasek plukany,zwir,deski 1,5m3 1000zl.,jeszcze duzo drobiazgow(kopara 800zl,betoniarka 500zl.,).narazie wydalem ponad ok10000zl.trza doliczyc jeszcze wylewke+styropian podloga+i pare drobiazgow mysla ze ok.12-13.tys.aaa gosp.metoda

14.06.2013
Jula

Do Pana Dariusz T. Bardzo proszę o podanie ilości sztuk dachówki buduję tak jak Pan. Jeśli można proszę o podanie tel. na maila ejulita@wp.pl troszkę mam kłopot.

15.06.2013
michał

do Tomas u nas za wytyczenie fundamentów wziął 450zł woj.podkarpackie

05.07.2013
fiedka2

do milka: jutro panowie zaczynają strop drewniany, jak skończą zrobię nowe zdjęcia
my wygipsowaliśmy pomieszczenia, i skończyliśmy kotłownię, po stropie będziemy malować - mam taką nadzieję:))

05.07.2013
Tomas

Witam, u mnie geodeta wziął 600 zł. Do tej pory fudamenty zalane powolutku do przodu

14.07.2013
Hera

Do Dany i życzliwych ludzi
Nareszcie :) już niedługo zaczniemy budowę, jednak chciałabym tak jak Ty mieć duże okna, ale nie wiem jaki będzie efekt, więc mam ogromną prośbę, oczywiście jeśli nie byłoby problemu o przesłanie fotek domu na adres aklak@interia.eu
A może gdzieś w lubelskim można obejrzeć ten domek?

15.07.2013
fiedka2

witam, mam problem z dodawaniem zdjęć!!! nie bardzo wiem jak go rozwiązać, nawet zalogowałam się ponownie - nic nie pomaga - cz ktoś ma jakiś pomysł???

15.07.2013
milka

szkoda,mam nadzieję ze ktos pomoże bo czekam na Twoje zdjecia, napisz fiedka czy jestes zadowolona z pomieszczen ;salonu i malych pokoi ;martwie sie ze będą za małe dla dzieci.czy ogólnie jestes zadowolona czy coś byś zmieniła?juz nie moge doczekac sie rozpoczęcia budowy:-)

15.07.2013
fiedka2

do milka: jak zobaczyłam fundament do się przestraszyłam, że wszystko jest takie malutkie, ale po wylewce pomieszczenia są dużo większe - i myślę że wystarczające, my ogólnie nie chcieliśmy dużego domu, a ten wydaje się być dla małej rodzinki idealny.- na pewno lepsza opcja niż mieszkanie w bloku
mam zdjęcia strychu, który jest olbrzymi i bez problemu można z pokoju przyległego do garażu wstawić schody do góry, więc jak by coś to można powiększyć metraż
strop drewniany też wygląda bardzo ładnie, jak uda mi się wstawić te zdjęcia to pooglądasz

16.07.2013
milka

do fiedka.super,u mnie własnie będą schody w tym pokoju o którym piszesz ale to tak na przyszlosc .parter jest dla nas najwazniejszy żeby jak najszybciej zamieszkać,dodaliśmy jeszcze okna w dwóch pokojach w bocznej elewacji oraz okno półokrągłe na tej samej scianie doswietlające strych i dwa połaciowe.pozdrawiam

17.07.2013
Lipinscy_Domy

Dziękujemy za informację, sprawdzimy jak działa logowanie i postaramy się pomóc. W razie czego, zawsze można przesłać zdjęcia do nas i my wprowadzimy z panelu administratora.

17.07.2013
fiedka2

bardzo dziękuję za propozycję, właśnie z niej skorzystałam i wysłałam zdjęcia, mam nadzieję że szybko zostaną zamieszczone
pozdrawiam

24.07.2013
MILKA

DO PANSTWA LIPINSKICH:CZEKAMY NA ZAMIESZCZENIE ZDJĘĆ FIEDKI 2

25.07.2013
fiedka2

do milka: podaj mail to ci wyślę kilka, bo to przesyłanie chwilkę tu trwa
a ja zalogowałam się ponownie jako nowy użytkownik ale dalej nie mogę dodać zdjęć więc coś chyba nie działa

25.07.2013
milka

edp75@o2.pl bardzo dziękuje

26.07.2013
Lipinscy_Domy

Fotki są już w galerii :-) Dziękujemy za przesłanie :-) Bardzo ładnie wygląda strop drewniany! Super!

26.07.2013
milka

sufit przepiękny,zrobił się dom z klimatem,kotłownia widze w pełni wyposażona;-),piknik też jest gdzie zrobic .życze szybkich wprowadzin.pięknie.pozdrawiam

27.07.2013
MILKA

PYTANIE DO PANSTWA LIPINSKICH.PATRZĄC NA ZDJĘCIA FIEDKI 2 I TADEUSZA ZASTANAWIAM SIĘ CZY WEJDĄ OKIENNICE TAKIE PEŁNO WYMIAROWE CZY TYLKO OZDOBNE?OBAWIAM SIE ZE NIIEWIELE JEST MIEJSCA .W PROJEKCIE WYGLĄDA TO ZUPEŁNIE INACZEJ.
FIEDKA JAK TO WYGLĄDA U WAS ?CZY W OGÓLE JE PLANUJECIE?

28.07.2013
fiedka2

do milka: nad tym na razie nie zastanawialiśmy się

30.07.2013
MILKA

DO FIEDKA;MAM PYTANKO CZY MOGŁABYM Z MĘŻEM ODWIEDZIĆ WAS W ZMIENNICY I ZOBACZYĆ SOFKĘ NA ŻYWO?CZY EWENTUALNIE BYŁA BY TAKA MOŻLIWOŚĆ W TĘ SOBOTĘ.JEŚLI NIE SPRAWI TO KŁOPOTU TO PODAJ JAKIEŚ NAMIARY NA MOJEGO MAILA.POZDRAWIAM

04.08.2013
MILKA

WITAM. CHCIAŁABYM PODZIĘKOWAĆ FIEDCE ZA MOŻLIWOŚĆ OBEJRZENIA SOFKI W REALU W TOWARZYSTWIE PRZEMIŁYCH GOSPODARZY ORAZ ZA CENNE RADY .DOM PREZENTUJE SIĘ PIĘKNIE,WYGLĄDA JESZCZE LEPIEJ NIŻ NA ZDJĘCIACH,WARTO BYŁO PRZEJECHAĆ TE 400 KM.POZDRAWIAMY WAS BARDZO SERDECZNIE.

23.08.2013
fiedka2

co tu taka cisza?

01.09.2013
Dariusz.T.

Można zapomnieć o pełnowymiarowych okiennicach , tylko na projekcie tak pięknie to wygląda.............

04.09.2013
fiedka2

pełnowymiarowe okiennice nie zmieszczą się na pewno- do takich wniosków doszła "milka" jak była oglądać sofię
my nie mieliśmy w planie ich montażu

06.09.2013
MILKA

ZGADZA SIĘ,SZKODA BO JAK DLA MNIE TO DUŻY ATUT ESTETYCZNY TEGO DOMU.ALE I TAK ZROBIE CHOCIAŻ OZDOBNE .ZACZYNAMY ZA DWA ,GÓRA TRZY TYGODNIE; BIUROKRACJA BYWA OKRUTNA.JAK TAM FIEDKA MEBELKI KUCHENNE JUŻ ŚĄ?A MOZE COŚ JESZCZE?POZDRAWIAM WSZYSTKICH BUDUJĄCYCH SOFIĘ4

11.09.2013
fiedka2

"wykańczamy" strop, wymaga to dużej cierpliwości, idzie powoli, ale co dzień do przodu; za to płytki na ścianie już mamy

żyję nadzieją, że końcem przyszłego tygodnia "część kuchenna" będzie skończona- dodam zdięcie

15.09.2013
michał

do fiedka chciałem zapytać ile poszło wam pustaków całych i połówek będę wdzięczny.....

16.09.2013
fiedka2

nie pamiętam, musiałabym szukać w fakturach

17.09.2013
michał

jeżeli nie sprawi to trudności to bym był wdzięczny......

26.09.2013
fiedka2

przepraszam, ale nasze faktury są u księgowego- rozliczamy się za zeszły rok

26.09.2013
michał

ok dzięki .

04.10.2013
Michał KANTOR

Witam serdecznie :) Ja rozpocząłem budowę tego domku 4 września. Stoją już mury i stropik układany Terivy. Jeśli macie jakieś pytania lub potrzebujecie zdjecia pogladowe prosze o emaila pomoge kantor1987@interia.pl lub zapraszam na działkę Skulsk około 34 km od Konina

05.10.2013
Tomas

Witam Michał Kantor ja też buduje sofie koło ślesina u mnie tez mury stoją chciałbym podjechac do Ciebie o ile to możliwe zobaczyc strop i pogadac na tematy zwiazane z budowa

11.10.2013
Michał Kantor

Witam Tomas. Zapraszam na działkę kiedy tylko będziesz miał czas. Proszę o kontakt emailowy kantor1987@interia.pl

25.10.2013
Jacek N

Witam
Mam pytanie do Państwa Lipińskich. Interesuje mnie ten projekt jednak bez garażu. Wystarczą mi również dwie sypialnie. Czy istnieje możliwość wygospodarowania miejsca na pomieszczenie gospodarcze np kosztem sypialni od strony tarasu przy okazji zwiększając powierzchnię salonu lub jako kotłownię zaadoptowac prawą sypialnię o pow: 10,2 mkw od strony frontowej. Można by zrobić w nim przy okazji pralnię i spiżarnię.

26.10.2013
Maro

Witam, czy ktoś buduje Sofię IV w okolicy Wrocławia? Z wielką chęcią zobaczył bym ten dom na żywo

29.10.2013
Lipinscy_Domy

Tak, takie zmiany są możliwe - kotłownię można przenieść na stronę frontową i zrobić do niej wejście z wiatrołapu, a bliżej kuchni wygospodarować spiżarnię/pralnię. Proszę też zobaczyć projekty Sintra i Suza, które są nieco większe od Sofii IV a są bez garażu.

30.10.2013
MILKA

WITAM WSZYSTKICH. PO CIĘŻKIEJ PRZEPRAWIE Z URZĘDAMI , WŁASNIE DZISIAJ NA PLAC BUDOWY WJECHAŁA MINI -KOPARKA KU OGROMNEJ RADOŚCI CAŁEJ MOJEJ RODZINY. ;-)TAK WIĘC SIĘ ZACZEŁO . POZDRAWIAM .

10.11.2013
kafed

Maro ja mam Sofie IV pod Wrocławiem

12.11.2013
Maro

Do kafed: oto mój e-mail:, tik11@interia.pl , napisz jak można się z Tobą skontaktować .

21.11.2013
Sylwia

Czy w tym projekcie jest możliwość zaprojektowania garażu na dwa samochody, powiększając w ten sposób kotłownie oraz czy możliwe jest wejście z domu do kotłowni?

24.11.2013
fiedka2

wczoraj zakończyliśmy pracę z ociepleniem zewnętrznym - kolor w przyszłym roku :))

25.11.2013
Lipinscy_Domy

Jest możliwość poszerzenia garażu na dwa stanowiska i jednoczesne powiększenie kotłowni. Można też wykonać przejście z domu do kotłowni.

12.12.2013
andrew

do fredka2
czy można zdradzić jakimi kosztami trzeba się liczyć budując ten domek. Chodzi o stan surowy otwarty/zamknięty. z góry dziękuje i pozdrawiam mój mail po_prostu_Andrzej@poczta.fm

14.12.2013
fiedka2

stan surowy zamknięty ok. 130 tyś

15.12.2013
andrew

wielkie dziękuje za informacje dla fiedka2. jeśli miałby ktoś ochotę podzielić się jakąś wiedzą na temat budowy domku sofia IV to bardzo proszę o nawet najmniejsza istotna wiedzę na temat w/w domku. jakie zmiany wprowadziliście?koszta SSO lub SSZ. pozdrawiam

15.12.2013
fiedka2

domek jest bardzo "energooszczędny", mamy centralne na drewno/węgiel - przy małym wkładzie w domku jest bardzo ciepło
ocieplenie 12 styropian , 20 cm wełny pod dachem i 10 cm na stropie drewnianym

17.12.2013
MILKA

FIEDKA A JAK SPRAWUJE SIE KOMINEK ?I ILE ZAPŁACIŁAS ZA TEN PIEC NA DREWNO I WĘGIEL?

17.12.2013
fiedka2

kominka nie instalowaliśmy- przynajmniej na razie, piec drewno/węgiel 3400 z elektrycznym sterownikiem - działa wyśmienicie -polecam

18.12.2013
milka

ok.dzięki. czy to znaczy ze juz mieszkacie?pochwal sie elewacją domku

19.12.2013
fiedka2

elewacja na wiosnę, teraz tylko styropian "Zaciągnięty klejem"
jeszcze nie mieszkamy, zaczęliśmy łazienkę, idzie nam bardzo opornie - nie mogę doczekać się końca
jak skończymy prześle ci zdięcie:))

30.12.2013
Luk

Witam ! Czy projekt spełnia warunki techniczne obowiązujące od 2014 roku ? Czy są konieczne do przeprowadzenia zmiany?

31.12.2013
Lipinscy_Domy

Wszystkie nasze projekty spełniają nowe warunki techniczne. Nie trzeba wprowadzać zmian do projektu.

06.02.2014
Ink4

Gdzie można kupić okna do ww projektu? Jakieś rady>? :)

08.02.2014
In

Bardzo chciałabym zobaczyć wizualizację wnętrza, jest na to szansa? plissss

10.02.2014
Tomas

Witam, mam pytanie jaki kabel naziemny należy zastosować od skrzynki przydrożnej do budynku?

19.02.2014
Lipinscy_Domy

Niestety nie do wszystkich projektów mamy przygotowane wizualizacje. Proszę zajrzeć na nasze forum, do Galerii, tam jest kilka zdjęć wrzuconych przez inwestorów. Kilka zdjęć znajduje się również na kartach projektu Sofii w różnych wersjach. Jeśli są dostępne, pod ceną projektu pojawia się przycisk "Zdjęcia z realizacji".

15.03.2014
GiT :)

Tak ja wybudowałem taki dom tylko ze bez garażu

18.03.2014
In

Nie zechciałby Pan pochwalić się zdjęciami z realizacji?:)

18.03.2014
fiedka2

do milka: jak u was z budową?

20.03.2014
milka

czekamy na pogode zeby posmarowac dysperbitem bloczki fundamentowe i zasypujemy i zero.do konca roku dom ma stanąć ,taki plan a jak wyjdzie zobaczymy.srodek w przyszłym roku.a jak u Was?kiedy elewacja?

21.03.2014
fiedka2

kończymy środek- w końcu - zostało tylko pomalować w salonie i korytarzu, i zafugować cegłę- ta zabawa mnie wykończy :((
mam nadzieję, że niedługo zacznę sprzątać bo ten brud mnie dobija

elewacja musi czekać
jak znajdę hasła to wstawię tutaj jakieś zdjęcie

23.03.2014
milka

to czekam z niecierpliwoscia na fotki :-)

24.03.2014
milka

super, bardzo mi się podoba .u nas też będzie ściana z cegły tylko w innym miejscu a na kominek mam jeszcze inny pomysł,domek ocieplony wygląda juz ladnie jeszcze tylko kolor i wprowadzamy sie do Was ;-)jak będe miala co pokazac to wstawie fotki a póki co z przyjemnoscią oglądam Wasze.Aniol czekamy na Twoje zdjęcia i innych budujących również.pozdrawiam

25.03.2014
asia

witam. no to i ja byc może zagoszczę na tym forum. szykujemy się z mężem do kupna projektu. szukaliśmy domku małego, a ten chyba całkiem całkiem się nadaje. obejrzałam fotki z zrealizowanego projektu. można prosić więcej.

28.03.2014
Zuzia

Cześć:)
Mam pytanie: jeśli nie planujemy kominka, to czy można całkiem zlikwidować tą ściankę, na której on jest usytuowany w projekcie?
Zależy nam, aby było trochę więcej przestrzeni.

28.03.2014
asia

witam. czy koś ma już skończoną łazienkę i kuchnię??? czy kuchnia nie jest zbyt mała w tym projekcie??? jakie są koszty domku zrealizowanego już w stanie jak tu na fotkach??? bardzo dziękuję za odpowiedź. projekt zakupiony!!! teraz nic tylko brać się do roboty i ewentualnie przemyśleć kilka zmian które planujemy zrobić. pozdrawiam

29.03.2014
Lipińscy_Domy

Ścianę, na której jest kominek w zasadzie można zastąpić podciągiem, na którym zostanie oparty strop. Zabraknie jedynie podziału przestrzeni na strefy czyli nie będzie wydzielonej komunikacji pomiędzy pokojami, kuchnią, łazienką i pom. gosp. oraz wejście do łazienki będzie wychodzić bezpośrednio na pokój dzienny a to słabe rozwiązanie. Dom straci na intymności.

30.03.2014
Zuzia

Dziękuję za odpowiedź:)
Planujemy budowę w odbiciu lustrzanym; łazienkę przenosimy do pomieszczenia 1.8, z pomieszczeń 1.2 i 1.3 będą schody i pomieszczenie gospodarcze/schowek.
Pozdrawiam:)

30.03.2014
Ink4

Widzę, że temat się bardzo rozwinął. Może przeniesiemy się na forum. Będzie łatwiej śledzić nowe wpisy :)

09.04.2014
Builder

Witam, jaki najlepiej zastosować typ ogrzewania dla tak małego domku? Nie mamy dostępu do gazu. Z tego co wiem najmniejsze kotły np. na pellet to 10 kw. Czy to nie będzie za dużo?

14.04.2014
Realizator

Wiam Państwa. Porównuję wizualizacje ze zdjęciami z realizacji i coś tu chyba nie gra. Jakoś nie wydaje mi się, aby w realu zmieściły się okiennice tak jak na grafice.....

14.04.2014
Grind

napisze mi ktoś ile kosztowało by wystawienie tego domku własnymi siłami.

14.04.2014
fiedka2

okiennice nie zmieszczą się na pewno

a wystawienie domku własnymi siłami oznacza - nie wydanie ani złotówki na robotników??? nie wiem czy to możliwe!!!
my budujemy i wiem że "własne siły" w pewnym momencie się kończą
chciałam zaznaczyć, że "szacunkowe koszty" podane pod projektem są w 100% rzeczywiste - jestem na etapie wykończenia środka i już dawno przekroczyliśmy kwotę 250 tyś

14.04.2014
fiedka2

do tego co napisałam wyżej chciałam dodać, że oczywiście można "zaoszczędzić" na niektórych rzeczach takich jak: dach- blacho dachówka, typ okien, drzwi zewnętrzne, wewnętrzne, podłogi, płytki - ale czy warto???? w końcu nie wymieniamy tych rzeczy po 2-3 latach - takie jest moje zdanie, ale przecież każdy z nas ma swoje i trzeba to uszanować

15.04.2014
Realizator

Fiedka, dziękuję bardzo za odpowiedź. Jestem rozczarowana, bo te okiennice nadają charakteru całemu budynkowi. Chciałabym usłyszeć co na ten temat sądzą projektanci?

16.04.2014
Luk

Witam! Czy można prosić zdjęcia sypialni 1.4, 1:8 oraz łazienki na adres mestre_84@o2.pl z góry dziękuje bardzo :)

17.04.2014
Inka

Jeśli to nie problem również prosiłabym o zdjęcia j.w. na adres acid2b3@gmail.com :) Z gory dziękuję

21.04.2014
fiedka2

jeśli chodzi o zdjęcia sypialni i łazienki to nie bardzo da się uwzględnić ich "powierzchnię" gdyż są one w chwili obecnej puste, moim zdaniem nie da się "złapać" ich wielkości

22.04.2014
IN

Chętnie obejrzałabym tą Sofię w okolicach Wrocławia. Chociaż z zewnątrz, żeby w końcu ją sobie zmaterializować:) Można prosić o jakieś namiary?

23.04.2014
asia

do fiedka2
czy twój dom wyszedł 250tys już z całym wyposażeniem wnętrza??? bo nie wiem czy dobrze zrozumiałam że jesteś na etapie wykończenia, a chyba nie realne jest żeby przekroczyć 250tys i nie wykończyć tego domku!!!!!chyba że robiłaś poddasze użytkowe albo dom jest w bardzo wysokim standardzie urządzony i drogą ekipą wykończeniową.

23.04.2014
fiedka2

poddasze jest tylko ocieplone - "wyposażenie wnętrza" oczywiście nie obejmuje mebli (z wyjątkiem kuchennych, gdyż te już mamy zamontowane) - i wydanie 250 tys jest realne bo tak też wydaliśmy, podkreślam że budujemy "firmą"- za położenie podług, płytek, malowanie nie płaciliśmy

u mnie stan wykończeniowy polega na tym iż wszystkie pokoje są gotowe do wstawiania mebli, salon malujemy trzeba jeszcze kupić listewki wykończeniowe podłogowe, łazienka czeka na zamontowanie już kupionych wc itd

pomimo tego, że domek jest mały to niestety wszystko kosztuje, myślę że trzeba by było bardzo "oszczędnie kupować" aby wejść na gotowe w kwocie 250 tyś - przyznam, że rozpoczynając budowę nigdy bym nie powiedziała że wydamy tyle na takim małym metrażu, ale tak jak pisałam wyżej każdy kupuje takie rzeczy jakie" lubi"

asia jak skończycie to wtedy porozmawiamy o kosztach i kwocie końcowej, ja oczywiście nie mam nic przeciwko temu abyś ty wykończyła SOFIE do nawet 200 tyś

26.04.2014
asia

do fiedka2
Nie mówię że nie wykończę....właśnie wszystko zależy od gustów lokatorów, od możliwości sprawdzenia cen tu i tam. Nie powiedziałam że chce wydać tylko i wyłącznie 250tys, budżet mam otwarty, ale wiadomo każdy chce aby jak najlepiej kupić i jak najtaniej. Wybraliśmy mały dom więc liczymy na wykończenie go w realnej kasie.

26.04.2014
fiedka2

do milka; jak u was prace budowlane?

28.04.2014
m&m

do fiedka 2 jestem z okolic Krosna czy mogłabym przyjechać zobaczyć w realu "sofkę"?:):)

29.04.2014
fiedka2

do m&m - zapraszam

01.05.2014
milka

do fiedka ;stan zero zakonczony za miesiąc mury ,na razie zajmuje się podlewaniem betonu :-))

03.05.2014
m&m

do fiedka 2 : Dzięki ,bardzo się ciesze,
moglabyś podać namiary bym mogla się skontaktowac i umowić co do terminu? :)

06.05.2014
fiedka2

do m&m : podaj mail

28.05.2014
Paula

Witam. Zamierzamy niedługo rozpocząć budowę Sofii IV z pewnymi zmianami (robimy u góry poddasze użytkowe). Mamy pierwszą wycenę przez firmę: 170 tys za stan surowy zamknięty, a 270 tys za deweloperski tzn. tylko położyć podłogi, glazurę, pomalować i można się wprowadzać. Czy to dużo? Dodam że budowa w woj. kujawsko-pomorskim.

29.05.2014
m&m

do fiedka2; mój mail gosiam50@interia.pl jesli możesz to się odezwij , umówimy się co do przyjazdu :)

02.06.2014
Jula do Pauli

Cena jak najbardziej realna. W przybliżeniu tak wyjdzie za stan developerski z adaptowaną górą i jeszcze jedno czy z ociepleniem i pełną kotłownią, ważne z ociepleniem dachu.

03.06.2014
asia

Też sądzę że wycena fajna. Tym bardziej że góra przygotowana pod zamieszkanie. Też planujemy pokoje na górze bo po co marnować przestrzeń na strych, przecież na dole nie ma jej zbyt dużo a sypialnie na poddaszu świetna sprawa!!!

10.06.2014
mirosław krzyżanek

chciałbym zapytać o ściankę kolankową i o schody którędy dostać się na strych.

10.06.2014
Lipinscy_Domy

Odpowiedzi na Pana pytania znajdują się już w komentarzach do tego projektu np. z dnia 2011-09-26 10:45:48.

19.06.2014
mes

Paula zaczeliście już budowe ?

26.06.2014
m&m

do fiedka2 bardzo proszę o kontakt, moj mail gosiam50@interia .pl :)

02.07.2014
fiedka2

do m&m mail wysłany,

21.07.2014
BadDeal

Mam ogromną prośbę,otóż.. oboje z mężem zostaliśmy właścicielami przecudnej działeczki na wsi . Obojgu nam bardzo podoba się projekt Sofia IV ,jednak nie obyłoby się bez zmian. Oboje bardzo chcemy mieć garaż na dwa auta ,czy byłaby możliwość, aby owy garaż mógł powstać przy tym cudownym projekcie,bo niestety jeden w zadnym razie nas nie satysfakcjonuje ???? A druga sprawa ,ponieważ nasza działka ma ponad 40 m szer., chcielibyśmy aby domek poszerzyc, z jednej strony o garaż, czyli zapewne dodatkowe 3 m, jak również z drugiej strony. Myślę ,że salon jest dość mały ,a chcielibyśmy mieć również jadalnie ,zatem gdyby poszerzyc (o ile jest taka możłiwość) domek z każdej strony o 3 m ,to zyskałby naprawde sporo miejca i wtedy automatycznie zostałyby przesuniete dwa pokoje :) W pierwszym (obok salonu) oznaczonym przez Państwa jako 1.5 spokojnie powstałaby jadalnia ,ewentualnie przesuniety zostałby salon w miejsce pokoju 1.5 ,natomiast jeżeli mowa o sypialni oznaczpnej jako 1.4 również pokoj zostałby przesuniety a wiec w miejsce obok łazienki cudownie by było zrobic pralnie bądź spiżarnie. Ja tak to sobie wykombinowałam ,ale nie wiem czy to jest w ogóle możliwe ?????????? Bardzo proszę o odpowiedź ,z góry dziękuję i pozdrawiam :))

23.07.2014
Lipinscy_Domy

Jest możliwe takie poszerzenie domu. W sprawie szczegółów i wyceny zmian prosimy o kontakt na biuro@lipinscy.pl

30.07.2014
fiedka2

do milka: prześlij mi kiedyś na mail - jak zagospodarowaliście poddasze

łuki bardzo ładne- poczekam na zdjęcie z oknami

31.07.2014
milka

oczywiscie,nie ma problemu,okna w przyszłym roku,wtedy tez planujemy przeprowadzke,tymczasem czekamy na dach,wycene okien juz mam , z OKNOPLASTU.

03.08.2014
fiedka2

do milka: też mamy z oknoplastu więc ceny mogę się domyśleć, a wasza pewnie jest "okrąglejsza" - łuki kosztują :))

06.08.2014
asia

ma ktoś fotki z wykończenia domu wewnątrz!! jakie zmiany wprowadzacie??

11.08.2014
Janusz

Jak adaptujecie górę, gdzie wciskacie schody? Dom przemyślany, mały i tani... Ale miejsca na schody nie widzę! :)

11.08.2014
fiedka2

do janusz - to stwierdzenie "tani" to naprawdę zabawne - że mały to nie znaczy że wybudujesz za "grosze" bo tak nie jest, myślę że ci którzy są na etapie wykończenia to mogą to potwierdzić

11.08.2014
Janusz

Tani w sensie, że są domy dużo droższe w budowie. Dla mnie to kompromis dla budowy domu z poddaszem użytkowym. Tutaj mogę pozostać tylko na jednym poziomie i mieć sporo miejsca. Dlatego informacyjnie chciałbym wiedzieć jak wygląda adaptacja strychu, gdzie wejście, co ze stropem itp.

11.08.2014
Lipinscy_Domy

Schody na ewentualne poddasze można wygospodarować kosztem części wiatrołapu, łazienki i schowka 1.2, podobnie jak tu proponowali inni :-) Można też na ścianie szczytowej w salonie, podobnie, jak na zdjęciach realizacji Sofii II.

11.08.2014
asia

Zgodzę się z Januszem. Dom z poddaszem użytkowym to duży koszt samego poddasza a nie mówiąc o wykończeniu. Tutaj mniej miejsca, dla nas dwoje starczy chociaż myślimy zagospodarować poddasze. A koszty ....heh jak narazie niewielkie porównując ze znajomymi którzy budują z poddaszem. My chcemy taniej wiec dlatego ta opcja domu.

19.10.2014
GOSIA

WITAM JESTESMY ZAINTERESOWANI PROJETKEM SOFIA 4 I CHCIELIBYSMY USUNĄC, ZLIKWIDOWAC SCIANE Z KOMINKIEM UZYSKUJĄC WIEKSZY SALON ? MOZNA TAK ZROBIC?

20.10.2014
Lipinscy_Domy

Można zlikwidować kominek i ścianę, stosując podciąg.

20.10.2014
GOSIA

Można zlikwidować kominek i ścianę, stosując podciąg.

Czy do tego potrzbene jest wasze zezwolenie w planach jesli chcielibysmy taka zmian w projekcie zrobic?
Czy ogrzewanie mozna zmieniac dowolnie z gazowego na piec itp?

20.10.2014
GOSIA

i jeszczj jedno pytanie czy z kuchni mozna zrobic przejscie do garazu? czy rowniez przy zamawianiu projektu dostaniemy na to wasze zezwolenie do projektu

23.10.2014
Lipinscy_Domy

Pani Gosiu, dołączymy do projektu zgodę na wszystkie wyżej wymienione zmiany. Prosimy jedynie o ich wpisanie w formularzu zamówienia.

24.10.2014
kafed

ja mam schody okrągłe 150, zlikwidowałam tą malutką sciankę dzielącą kuchnię od salonu i wejście na okrągłe schody jest od komunikacji, cofnęłam sciankę o ok 40 cm kosztem sypialni ale za to mam "wnękę" na tv na ścianie i komodę pod nim. ( z ścianka z pokoju 1.5 jest na równi ze ścianką z pokoju 1.4 -te ścianki na której są drzwi) jednak załuję ze nie zrezygnowałam całkiem z tego pokoju i nalezało powiększyć salon o te 12 m. Jednak na dzień dzisiejszy zależy mi na 3 sypialniach na dole gdyż nie chciałam by dzieci chodziły po schodach i bym miała je pod ręką :) a jak podrosną to sypialnię "wyniosę" na górę i wtedy może uda mi się wyburzyć tą ścianę. Polecam też strop terriva, ja mam drewniany i trochę jest głośny i wcale nie jest tańszy. W łazience nie mam prysznica, w jego miejscu jest narożna ubikacja, pod oknem bidet. Acha i mam zmieniony kąt pochylenia dachu o 5 stopni i dom na piętrze podniesiony ok 50 cm. I jeśli ktoś planuje kocioł typu na ekogroszek to kotłownia jest zdecydowanie za mała, mąż musiał szukać małego kotła, który jednocześnnie ma mały zasobnik i często trzeba dorzucać do niego

16.11.2014
anja

dzień dobry czy można zobaczyć ten dom gdzieś w okolicach woj świętokrzyskiego? ewentualnie zrobimy sobie wycieczkę...dom bardzo nam się podoba tylko tez zastanawiamy się nad zrobieniem wejścia z domu do kotłowni, zęby w zimie nie wychodzić na zewnątrz;) pozdrawiam serdecznie

17.11.2014
kafed

Jeśli mogę coś doradzić, to wejście z domu do kotłowni byłoby dobrym rozwiązaniem gdy będzie się palić gazem, jeśli ekogroszkiem to nie polecam to do domu pełno pyłu się naniesie

19.11.2014
fiedka2

ja mam zrobione wejście z kuchni do kotłowni - cały zeszły rok paliliśmy, w tym już też - nic nie czuć

19.11.2014
fiedka2

i nie wyobrażam sobie tego domy bez tego przejścia

20.11.2014
kafed

ja nie zdecydowałam się na to przejście i jestem b. zadowolona, bo kuchnia byłaby wtedy malutka, jak kocioł z podajnikiem to nie ma potrzeby co chwilę do kotłowni biegać, znajomi mają przejście i strasznie narzekają, ale zależy pewnie od podejścia, i tak widzi się dopiero minusy domu mieszkając w nim

25.11.2014
asia

To chyba najgorsze co można zmienić. ....wejście z kuchni do kotłowni? ???? To chyba jakiś żart! !!!!dym, sądza....kotłownia zdecydowanie jak najdalej od pomieszczeń w których przebywamy!!!

27.11.2014
fiedka2

to twoje zdanie! dym i sadzę to może ty masz - ja nie- więc te swoje opinie zachowaj dla siebie/ zresztą zauważyłam po wcześniejszych twoich wpisach że nie masz pojęcia o niektórych rzeczach, i że na pewno wiesz wszystko lepiej,
więc się .........

28.11.2014
asia

fiedka2 niby to które moje wpisy zdecydowały iż oświadczyłaś wszem i wobec że na wielu rzeczach się nie znam!!! dymu i sadzy nie mam w kuchni bo kotłownię mam tam gdzie powinna być i sadza i dym tam też są!! twój dom więc sobie mieszkaj jak chcesz i ode mnie ...... .się!!!!

28.11.2014
fiedka2

I nawzajem :))

04.01.2015
zibi

Bardzo ładny domek.wiem ze jest podobny z poddaszem użytkowym ale to na nas 2 osoby za duży dlatego chcemy tylko na gorze kosztem łazienki zrobic spiralne schody a na strychu 1 sypialnie z łazienką. Czy tak się da zrobić bez zmiany kąta dachu i podnoszenia ściany czyli zachować tak jak jest tylko schody i okna dachowe ew duze okno trójkątne?

05.01.2015
Lipinscy_Domy

Można wprowadzić takie zmiany. Prosimy o kontakt w celu uzyskania szczegółów: biuro@lipinscy.pl

05.01.2015
Wojciech

Witam, bardzo podoba nam sie projekt, lecz wprowdził bym pewne zmiany, a mianowicie... Strop zmienilbym na betonowy, z kotłowni drzwi zewnetrzne bym usuna a zamiast nich wstawil bym drzwi miedzy kuchnia a kotlownia, usuna bym kominek, zamiast drzwi tarasowych w kuchni i sypialni wstawil bym okna, drzwi tarasowe wstawil bym w wykuszu, w pokojach po stronie lewej wstawil bym po jeszcze jednym oknie oraz w garazu dwa male okienka i w kotlowni jedno, zeby sciany nie byly puste :P To by było na tyle, jak Państwo to widzicie?? :D za odpowiedzi z góry dziękuje:)

12.01.2015
Marcinio66

Tego powyżej wodze fantazji poniosły! Przecież to wszystko jest tu już zawarte wystarczy poczytać !

26.02.2015
Lipinscy_Domy

Szanowni Inwestorzy, jeśli jest taka możliwość prosimy o przesłanie zdjęć z realizacji projektu na naszego maila: biuro@lipinscy.pl lub o publikację ich na naszym profilu na Facebooku https://pl-pl.facebook.com/Lipinscy.Domy

26.03.2015
Justynka

witam. niedługo przystępujemy do budowy tego domku. Pozwolenie na budowę już mamy, czekamy tylko aż zrobi się nieco cieplej. Wprowadziliśmy nieco zmian w projekcie. Cały dom, z każdej strony został poszerzony o ok. 1 metr, więc powierzchni użytkowej wyszło nam 105 metrów. Poszerzyliśmy także garaż, ponieważ ze względu na brak piwnicy przyda się trochę miejsca na różne sprzęt, rowery itp. Strop będziemy mieć żelbetowy. Jeżeli chodzi o ogrzewanie, to będziemy mieć powietrzną pompę ciepła i ogrzewanie podłogowe, dlatego nawet nie rozważaliśmy przejścia z kotłowni do kuchni, nie będzie potrzebne. Pomieszczenie 1.2 zamieniliśmy na WC, w łazience też będzie WC oraz prysznic i narożna wanna. Dzięki poszerzeniu domku sypialnie stały się całkiem spore, salon również. Schody na strych będziemy mieć w garażu, takie chowane i spuszczane. Nie planujemy adaptacji poddasza więc nie robiliśmy schodów tradycyjnych. Już nie mogę się doczekać budowy :) dodam, że formalności trwały u nas ponad rok.

27.03.2015
Lipinscy_Domy

Pani Justyno, życzymy powodzenia, trzymamy kciuki i czekamy na fotorelację. ;-)

07.04.2015
Piotr

Witam planuje budowę sofi 4 w tym roku. Prosze mi powiedziec czy mozna zamowic taki projekt ale bez poddasza ? Jest taki domek w okolicach wroclawia ? I jakie sa mniej wiecej koszta takiego domku do stanu surowego zamknietego ? Prosze o kontakt mailowy badz tutaj . chodorski12@gmail.com

08.04.2015
Lipinscy_Domy

Ten projekt nie ma poddasza użytkowego. Można zamówić tę wersję. Co do realizacji w okolicy Wrocławia to być może inwestorzy pomogą.

08.04.2015
Piotr

Jak sie kontaktowac z inwestorami ? Odrazu mam pytanie zna ktos jakies formy ktpre buduja od a do z domy i moga wybudowac sofoe 4

09.04.2015
jola

chcemy budowac sofie iv w przyszłym roku czy mogłby podac mi ktos koszt budowy w realu
w zachodniopom.nie potrzebujemy stropu uzytkowego ani schodow
wolalabym v ale ona ma lazienke bez okna .dziękuję za odpowiedż

09.04.2015
jola

moj email.jola.39@wp.pl

10.04.2015
Lipinscy_Domy

Kontakt do inwestorów można znaleźć tutaj w komentarzach albo na forum.

24.04.2015
Marcin

Wybudowałem Sofię w zachodniopomorskim , nie wliczając działki i dokumentacji trzeba liczyć 400 tysięcy na wybudowanie tego domu. Ja zagospodarowałem strych . No chyba , że ktoś buduje sam i nie płaci za robociznę to może odjąć od tego stówkę .

15.06.2015
michal

do fiedka dodaj więcej zdjęć z pozostałych pokoi

17.07.2015
Justynka

witam! dziś zakończyliśmy etap fundamentów. Koszt jak do tej pory, z uwzględnieniem całej dokumentacji to 46 tysięcy, w tym fundament 33 600 zł (z czego 6000 zł robocizna). W przyszłym tygodniu murujemy. Pozdrawiam wszystkich fanów Sofii :)

22.07.2015
milka


Do fiedka: domek przepiękny ,u nas będzie klinkier ale na całym wykuszu plus cokół, obecny stan to : okna , tynki wylewka, ocieplenie i czekam właśnie na pana od klinkieru,niebawem zdjęcia ,pozdrawiam

23.07.2015
jaaa

a mi się nie podoba to co zrobiła friedka, chodzi mi o wygląd z zewnątrz, dom całkowicie stracił swój urok, kolory brzydkie, cegła nie pasuje

27.07.2015
fiedka2

do milka: czekam na zdjęcia

29.07.2015
Leokadia

Witam. Bardzo nam sie podoba projekt Sofia IV.Zamierzamy go kupić ale chcielibysmy dokonać pewnych zmian:
- poszerzyc po 1 m wnętrze salonu wzdłuż kuchni i przeciwległego 1.5 pokoju a kominek zrobic np. na scianie łazienki
w miejscu 1.2
- natomiast garaz z pomieszczeniem gospodarczym przenieść na ściane pokoi aby w kuchni i sypialni 1.8 na scianie
frontowej było możliwe wstawienie po 1 oknie.
Bardzo proszę o odpowiedz czy można od Państwa uzyskać tak zmodyfikowany ten projekt Sofii IV?

29.07.2015
Leokadia

Zapomniałam jeszcze dodać, że zależy nam nam na tym aby dach był kopertowy. To dla nas bardzo ważne.
Oczekuje na Państwa odpowiedz.
Dziekuje i pozdrawiam

11.08.2015
michal

do fiedka chciałem zapytac czy zmienialiście rozmiar okien ...

12.08.2015
Lipinscy_Domy

Możemy przygotować taki projekt. Prosimy o kontakt bezpośredni: biuro@lipinscy.pl

13.08.2015
fiedka2

do michał: okna na wykuszu są krótsze niż w projekcie, budując według projektu nie zmieściłby się pod nimi standardowy grzejnik, natomiast okna w pokoju 1.4 i 1.8 są węższe- zresztą te i tak są właściwie na całości ściany

27.08.2015
michal

do fiedka2 :


czy mógłybyś podać konkretny rozmiar okien w pokoju 1.4 i 1.8 ?
Z góry dziękuje.

16.09.2015
jastrzebie4

Witam,

Ja buduję Sofię 4 pod Warszawą . Bloczki solbet 600 , blachodachówka. Kończą tynki wewnętrzne ,jeszcze hydraulik i ocieplenie. Zmieniony strop na Teriva schody betonowe. Stan deweloperski 150 tyś. Oczywiście system gospodarczy. Materiały dowoziłem sam.

pozdrawiam

23.09.2015
mariusz73

jastrzebie4 mam pytanie ile zużyłeś bloczków solbet 600?

25.09.2015
fiedka2

do michał 180/140

28.09.2015
JA

witam;)zaczęliśmy z Sofią IV przygodę;) niedługo zalewamy strop ...wprowadziliśmy kilka zmian niniejszym mamy pod garażem kotłownie i piwnice zejście do nich jest z pomieszczenia 1.11, w komunikacji jest miejsce na schody na poddasze, i zrobiliśmy przejście z domu do garażu;)

19.10.2015
jastrzebie4

Mariusz 73, zużyłem równo 1190 bloczków Solbet 600, bez drzwi w kotłowni, pozdrawiam

10.11.2015
walddi

Witam czy w woj. Malopolskim ktos wybudowal Sofie? z checia bym zobaczyl ten domek na zywo Pochwalil by sie ktos? prosze o kontakt moj e meil walddi111@interia.pl

23.11.2015
Monika

Witam wszystkich, mam ogromną prośbę do fiedka2 czy dałoby radę zobaczyć domek na żywo? Mieszkamy koło sandomierza a mi sie strasznie projekt podoba musze tylko męża przekonać. Meil do mnie: mona_lebioda@poczta.onet.pl . pozdrawiam wszystkich fanów Sofii;)

21.01.2016
Sylwia

Witam, chciałabym się zapytać czy jest możliwość zaprojektowania kuchni w połączeniu z salonem ale od strony drzwi wejściowych? Choć pewnie nie jest to możliwe, gdyż rozmieszczenie pokoi nie będzie efektowne. Dziękuje za udzieloną informację.

22.01.2016
Lipinscy_Domy

Taka zmiana wiązałaby się z całkowitą zmianą funkcji.
Mamy wersję z kuchnią od frontu ale są w niej dwie sypialnie - Sofia V.

11.02.2016
Beata

Witam, jestem zainteresowana projektem Sofia IV w wersji podstawowej ale ze zamianą usytuowania garażu i kotłowni, ponieważ wejście do budynku będzie od strony zachodniej więc garaż i kotłownia powinny znajdować się po lewej stronie (od północy). Czy jest możliwość zaprojektowania garażu i kotłowni od strony dwóch sypialni? Z góry dziękuję za odpowiedź. Pozdrawiam.

11.02.2016
Beata

Witam, do jastrzębie4 - czy można zobaczyć ten domek w realu? Mieszkam koło Warszawy, proszę o kontakt laguna10@ autograf.pl Pozdrawiam.

11.02.2016
Lipinscy_Domy

Można przenieść garaż i kotłownię lub w wersji odbicia lustrzanego przenieść kuchnię.
Zmiany może nanieść lokalny architekt w ramach adaptacji.

21.04.2016
Marcin

Co tu tak ucichło?

21.04.2016
Lipinscy_Domy

Prawdopodobnie inwestorów pochłonęła budowa. Liczymy na fotorelację na forum. :)

07.05.2016
Katarzyna Janko/ kasia

witam!jestem zainetresowana tym projektem. Czy ktos jest juz w posiadaniu takiego juz domku i moglby sie pochwalic zdjeciami na priv? bylabym wdzieczna, kjanko86@gmail.com

18.07.2016
Karolina

Witam, czy jest możliwość zamiany kuchni (1.7) z pokojem (1.5)?

18.07.2016
Lipinscy_Domy

Tak, można zamienić pomieszczenia np. w ramach adaptacji u lokalnego architekta.

07.09.2016
Dag

Witam interesuje mnie budowa Sofii jakie są realne koszty >???? jakieś rady???? Pozdrawiam Dag

22.09.2016
ola

Witam,
Czy jest możliwość zlikwidowania pokoju 1.8, w to miejsce zaprojektowania kuchni. W ten sposób powiększy nam się pokój dzienny oraz kuchnia.

23.09.2016
Lipinscy_Domy

Tak. Można wprowadzić taką zmianę w ramach adaptacji.

23.09.2016
ola

Czy wiąże się to z dodatkowymi kosztami?

23.09.2016
Lipinscy_Domy

U nas jest to dodatkowy koszt. Szczegóły: biuro@lipinscy.pl
Możemy również wydać bezpłatną zgodę i zmiany może nanieść architekt lokalny.

01.10.2016
KRIS

HEJ czy ma ktoś kosztorys dokladnie spis materiałów użytych do budowy, byłbym wdzięczny za podesłanie, bardzo ładny projekt

05.10.2016
Lipinscy_Domy

Zapraszamy wszystkich zainteresowanych do grupy na Facebooku:
https://www.facebook.com/groups/313793238978322/

01.12.2016
Dorcia

Witam interesuje mnie ten projekt czy może mi ktoś napisać ile wyniósł koszt budowy pod klucz tego projektu oczywiście w przybliżeniu

02.12.2016
Lipinscy_Domy

W grupie budujących Sofie na Facebooku można poznać koszty: https://www.facebook.com/groups/313793238978322/

04.12.2016
Justyna

Właśnie kończymy, już przekroczyliśmy 400 tysięcy. A nie mamy kostki, ogrodzenia i paru drobiazgów.

06.12.2016
Magda

Justyna, czy to już z wykończeniem? JAkieś zmiany wprowadzaliście do projektu?
Pozdrawiam i zazdroszczę :)

06.12.2016
Justyna

Tak, z wykończeniem. Myślę, że pod klucz wyjdzie nam ok 420 tysięcy. Odnośnie projektu to małe zmiany: poszerzony dom został o metr z każdej strony - łącznie powierzchnia użytkowa wyszła 105 metrów. Plus garaż poszerzony na podwójny. Nie oszczędzaliśmy na materiałach dlatego wyszło jak wyszło. Ale przynajmniej liczymy na oszczędności w przyszłości :) jak ogarnę to wszystko, to niedługo wrzucę na forum jakieś zdjęcia.
W razie pytań mogę odpowiedzieć więcej na maila. Pozdrawiam.

28.12.2016
Damian

Witam serdecznie.
Czy poddasze można wykorzystać na cześć mieszkalną np. dwa pokoje?
Z góry dziękuje za odpowiedź

28.12.2016
Lipinscy_Domy

Trzeba znaleźć miejsce na schody i wprowadzić strop żelbetowy - mamy taki w Sofii III.

12.09.2017
Marcin

Już nikt nie buduje Sofii ? Cicho tu

13.09.2017
Lipinscy_Domy

Dyskusje częściowo przeniosły się na Facebooka: https://www.facebook.com/groups/313793238978322/

05.01.2018
Seba

Witam jaka jest orientacyjna cena wykonania fundamentu

23.08.2019
Radej

Witam firmę. Czy jest Sofia w wersji drewnianej-szkieletowej???

26.08.2019
Lipińscy Domy

My takiej wersji nie opracujemy, ale może ją przygotować współpracująca z nami firma wykonawcza.
https://lipinscy.pl/projekt/sofia-iv/bezplatna-wycena-domu-w-systemie-wolf-haus

Pow. zabudowy 132.31m2
Powierzchnia netto 105.73m2
Kąt nachylenia dachu 35 °
Min. szerokość działki 20.3m x 18.6m
Wys. kalenicy 6.51m
Cena projektu: 4490 zł

Jena II

DCP219a174.81m2

Powierzchnia parter 132.15 m2

Powierzchnia poddasze 84.84 m2

+31.81m² garaż +10.37m² kotłownia
31.05.2011
maja82

moim ulubionym Państwa projektem była Jena, do czasu aż nie zobaczyłam Jeny II ;)

08.06.2011
karool

Jena 2 rządzi

20.07.2011
rodzina tarańskich

dom nam się podoba.mamy pytanie:
czy można dostawić spiżarnię? a wtedy jena 2 mogła być naszym domem.

04.08.2011
rodzina tarańskich

mamy więcej pytań:
-czy można dostawić spiżarnię pod schodami dostępną z kuchni?
-czy garaż można usytuować w bryle budynku?
wtedy może być naszym ulubionym projektem domu.

05.08.2011
Lipinscy_Domy

Spiżarnię można zrobić - ale proponowałabym raczej wejście do niej z wiatrołapu i koniecznie odwrócić bieg schodów. Gdyby miała być dostępna z kuchni, to po pierwsze - byłaby bardzo niziutka - w zasadzie tylko niską szafą, a to chyba mija się z celem, a poza tym - trzeba byłoby przenieść szafki z kuchenką na drugą stronę. Trochę szkoda.

Natomiast garaż... no cóż...nijak nie da się go wcisnąć w bryłę budynku. Można co prawda przekryć go wspólnym dachem i poszerzyć do głębokości domu, ale... straci całkowicie na urodzie. Nie ma co ukrywać.

02.09.2011
Kasia

Przegladamy projekty panstwa Lipinskich i mamy watpliwosci na ile kierowac sie Ea, Ep, Ek przy wyborze projektu. Zalezy nam na wybudowaniu domu wyjatkowo ekologicznego. Zastanawialismy sie nad domem pasywnym ale budowniczy n.t. temat nic nie wiedza wiec pozostajemy przy energooszczednym. Ale roznice miedzy Ep projektow sa duze od 30 do 90 kwH. Np. Jena II i Atlanta maja swietne, niskie wspolczynniki ale np Dijon II to juz ponad Ep 70. Czy oznacza to ze w jenie i atlancie zastosowano bardziej ekologiczne rozwiazania i beda to domy bardziej energooszczedne? Bardzo prosilabym o rozwianie naszych watpliwosci. Dziekuje.

05.09.2011
Lipinscy_Domy

Na pewno współczynniki zapotrzebowania na energię są dobrym odnośnikiem w kwestii energooszczędności domu. Różnice między niektórymi domami mogą być wysokie, co świadczy właśnie o złożoności sposobu wyliczenia i wpływie tak wielu czynników na wynik końcowy.

Wszystkie nasze domy energooszczędne mają dokładnie takie same rozwiązania obniżające zapotrzebowanie na energię, ale na wynik końcowy ma wpływ nie tylko grubość styropianu, czy parametry termiczne okien. Równie ważne są np: stosunek powierzchni domu do kubatury, powierzchnia ścian zewnętrznych do kubatury, powierzchnia przeszkleń do przegród stałych, złożoność dachu, ilość wykuszy, podcieni, załamań ścian itp. Dlatego właśnie zapotrzebowanie na energię jest liczone przez specjalne programy komputerowe :-)

Z naszego doświadczenia, jeszcze z czasów, gdy nie było w Polsce normy energetycznej i pojęć Ep, Ek i Ea, dla najbardziej miarodajne było zapotrzebowanie na energię do ogrzania domu, obecnie określane, jako Ea, czyli takie, które wynika z samej architektury, zastosowanych ociepleń, instalacji i sposobów eliminacji mostków termicznych itp. Domy energooszczędne to takie, w których Ea wynosi 30-70 kWh/m2 na rok, poniżej tej wartości mówimy o domach niskoenergetycznych. Domy pasywne mają Ea < 15 kWh/m2 na rok. Prościej mówiąc, tą wartość można przeliczyć na ilość paliwa do ogrzania domu - np. dom o współczynniku Ea = 30 kWh/m2 na rok zużyje 3l oleju opałowego pomnożone przez powierzchnię domu (ogrzewaną).

Bardziej zainteresowanym polecam nasz dział Dom Energooszczędny.
http://lipinscy.pl/energooszczedne/porady/Jak_rozpoznac_projekt_domu_energooszczednego.html

24.09.2011
Kasia

Bardzo dziekuje za powyzszy post. Troche nam sie rozjasnilo w glowie. Z powyzszego wynika ze w panstwa ofercie Atlanta jest domem najbardziej atrakcyjnym z ekologicznego punktu widzenia bo ma Ea < 15, czy tak? Czy wykusz (choc piekny!) nie przyczynia sie w tym projekcie do strat ciepla? Czy mozna z niego zrezygnowac czy bylaby to za duza zmiana??? Jeszcze raz dziekuje za wyjasnienia.

12.04.2012
Rolnik

Szkoda że nie ma spiżarni.

13.04.2012
Megi

Właśnie się zastanawiamy nad tym projektem. Fajnie, że jest taki nowoczesny. My byśmy spiżarkę urządzili w 1.4. Przenosimy zakupy z samochodu do tego pomieszczenia, a z kuchni też jest blisko. No, mięsa pod pułapem nie będziemy wieszać ;D

24.05.2012
Rolnik

Rzeczywiście, szafki mozna przenieść pod okno, a wygospodarowany kąt zamienić na spiżarnię. Dlaczego szkoda? Co prawda stołu w kuchni wtedy nie będzie, ale zasiąść można przy stole w salonie. Czyż nie?

24.05.2012
Lipinscy_Domy

Szkoda dlatego, że to wcześniejsze było zapytanie o spiżarnię pod schodami dostępną z kuchni :-) Jeśli natomiast spiżarnia miałaby być wygospodarowana kosztem kuchni, to jak najbardziej ten kąt się nadaje :-)

07.07.2014
Iwona

Buduję dom Jena II, zamieniłam pokój z kuchnią i zrobiłam małą spiżarkę kosztem pomieszczenia 1.8. W moim przypadku spełnia to swoją rolę, bo to strona domu północna.

29.09.2015
longer

jak dotąd ten projekt u nas w rodzinie wygrywa i na 98 % w przyszłym roku ruszy budowa, pytanie i prośba tylko o zdjęcia budowanego domu, jeżeli ktoś posiada to bardzo proszę.

29.09.2015
longer

rozumiem że koszty i wycena to pojęcie względne, ale poproszę o orientacyjny koszt budowy bo nie wierze że koszt stanu surowego zamkniętego to ponad pół miliona, no chyba że robi firma od A do Z i nie oszczędzamy na robociźnie i w momentach gdzie można oszczędzić.

16.01.2016
paw

...to smutne ze tyle osób buduje tan dom a nikt nie chce sie podzielić zdjęciami z budowy i po, jeżeli by się komuś jednak chciało wysłać kilka fotek to bardzo po proszę: pawel.trocha@gmail.com

26.04.2019
Magda

najpewniej wybierzemy właśnie ten projekt, mam natomiast jedno pytanie - co ze schodami? Czy są nie są one zbyt strome? Widzę, że stopni jest tylko 15 i zastanawiam się czy te stopnie nie są zbyt wysokie a tym samym czy schody będą wygodne? Czy ktoś mógłby się wypowiedzieć w tym temacie? będę wdzięczna za pomoc

26.04.2019
Lipińscy Domy

Schody mają wysokość 18,81 cm i jest ich 16. Ostatni schodek to już strop.

27.05.2019
Magda

Bardzo dziękuję za odpowiedź. Czy mogą Państwo jeszcze napisać, jaka jest szerokość klatki schodowej i jaki rozmiar mają stopnie (długość stopnia)? Z góry dziękuję za pomoc

31.05.2019
Lipińscy Domy

Prosimy o kontakt na biuro@lipinscy.pl
Prześlemy rysunki z wymiarami.

Pow. zabudowy 175.18m2
Powierzchnia netto 240.84m2
Kąt nachylenia dachu 40 °
Min. szerokość działki 24.7m x 21m
Wys. kalenicy 8.34m
Cena projektu: 3970 zł

Sintra

LMB6592.26m2

Powierzchnia parter 92.26 m2

19.07.2011
Jacek Mamot

Praktyczny dom, nadaje się nawet na małą działkę.

21.07.2011
kawoszka

zwracam uwagę zawsze na wejście do domu i taras, tutaj jedno i drugie odpowiada moim oczekiwaniom. bryła pozornie prostej konstrukcji ma jednak urozmaicony wygląd, też można dzięki temu zaoszczędzić na kosztach. pozdrawiam

24.07.2011
Marek2011

Hm...Trochę zmian jak dla mnie...W pomieszczeniu 1.3 pokój,w pomieszczeniu 1.7 kuchnia,likwidacja ścianki pomiędzy 1.5 a 1.6 i salon ma 33,7m...Piecyk gazowy z łazienki do wiatrołapu po prawej stronie a w łazience w tym miejscu toaletka dla Pani domu.

09.08.2011
Ania

Bardzo podobny projekt do Sofi IV ale troszkę więcej metrów - super. Czekam na ten projekt z garażem i kotłownią z tyłu (jak w Sofii) :)

10.08.2011
Ania

Jakiej wielkości jest strych?

11.08.2011
Lipinscy_Domy

Z uwagi na to, że kąt nachylenia dachu wynosi zaledwie 30stopni, strych ma tylko wąski pas o szerokości 1,5 m, gdzie wysokość od podłogi do krokwi wynosi 190. Łączna powierzchnia tego pasa to 18 m2. Trzeba też wziąć pod uwagę, że właśnie wzdłuż kalenicy są usytuowane słupy podtrzymujące ją. Strych może służyć raczej tylko, jako pomieszczenie pomocnicze, a nie mieszkalne.

11.08.2011
Ania

Właśnie zależy mi na typowym strychu (do trzymania rzeczy by nie zagracać domu) :)

28.09.2011
Ania

Do Lipinscy_Domy:
Czy można liczyć na stworzenie przez Państwa Sintry z garażem i kotłownią na paliwo stałe?

02.10.2011
Kinga

Do tej pory zachwycałam się Suzą, ale Sintra podoba mi się jeszcze bardziej :) Również jednak wolałabym kuchnię w miejscu pokoju 1.7 - jest to bardziej ekonomiczne, bo instalacje do kuchni i łazienki byłyby w jednym miejscu

02.10.2011
Łukasz

To by mógłby być pierwszy ładny dom pasywny lub niskoenergetyczny. Idealne miejsce do zamieszkania dla dwóch osób na jesień życia. Aby było wygodniej, łazienkę 1.8 trzeba przenieść do pokoju 1.7 (pokój kąpielowy z dużym murowanym prysznicem i jacuzzi), a w 1.8 zrobić pomieszczenie gospodarcze (pralnia, kotłownia). Do tego DGP, kolektor, rekuperator i pompa ciepła na umieszczone poddaszu, aby nie zajmować miejsca na dole i można prawie darmowo mieszkać

21.12.2011
Danusia

Domek śliczny. Jedynie co mi w projekcie brakuje to osobnego pomieszczenia na c.o. oraz zwiększenia kąta nachylenia dachu aby można było zagospodarować poddasze. Może projektanci popracują nad takim rozwiązaniem? :)

24.06.2012
gosula1

Ten projekt jest prawie identyczny z Sofią IV- czy przewidujecie państwo Sintrę ale z garażem. byłoby cudownie.

17.07.2012
gosia139

Witam. Metraż jest dla mnie idealny. Brakuje mi tylko garażu z kotłownią, czy wyrazilibyście Państwo zgodę na zaprojektowanie garażu tak jak w Sofii IV

19.07.2012
Lipinscy_Domy

Oczywiście :-)

29.08.2012
Alicja

Projekt wygląda super. Wahamy się między tym a jeszcze 2 projektami z tej samej pracowni. Ustytuowanie pokoi wydaje się byc bardzo wygodne, nie wprowadzalibyśmy za dużo zmian, chyba tylko kosmetyczne. Co do kosztów, zdaje sobie sprawę że będą trochę wyższe niż podane przez pracownie, tylko nie mam pojęcia o ile. Ktoś z budujących może się podzielić kosztami?

10.10.2012
TOM77

Witam, wszystkich projekt fajny tylko ciężko się dowiedzieć czegokolwiek na temat kosztów od innych użytkowników szkoda. Co do projektu to salon mógłby mieć około 25m/kw. Jeżeli ktoś ma info na temat kosztów to bardzo proszę jeżeli może się podzielić swoją wiedzą na temat z jakich materiałów budował czy tych z kosztorysu czy może coś zmieniał i w przybliżeniu ile to wyszło. Z góry dziękuję za informację mail t.koltonowski@vp.pl. Dom naprawdę fajny pokoje o zbliżonych metrażach o to właśnie chodzi mankament brak garażu myślę że projektanci powinni wrzucić SINTRĘ w wersji z garażem. Sporo ludzi o tym piszę więc myślę że warto uwzględnić.

19.10.2012
Lipinscy_Domy

Dziękujemy za propozycję. Może za jakiś czas zrobimy taką wersję, ale obecnie mamy przecież Sofię IV, która ma podobny układ i garaż z kotłownią.

20.10.2012
TOM77

Dziękuję za podjęcie tematu przez biuro projektowe i Wasze sugestie. Jeśli chodzi o Sofię IV to projekt ten posiada garaż ale jest prawie o 10m/kw mniejsza powierzchnia użytkowa a to mnie właśnie interesuje. W Sintrze zgodnie z sugestiami użytkowników można kuchnię 1.3 zamienić na pokój 1.7 mamy dzięki temu mamy 2 pokoje po 13m/kw. Mam pytanie o koszty dostawienia garażu do sintry oczywiście nie chodzi o dokładne koszty ale zbliżone. Drugie pytanie to czy poszerzenie budynku o 1m/kw to duże koszty związane ze zmianą projektu(chodzi właśnie o salon) w Sintrze. Tak jak pisałem Sintra to naprawdę fajny projekt dla 4 osobowej rodziny za nieduże pieniądze i naprawdę warto troszkę zrobić większy salon bo 20m/kw to troszkę mało a pokoje dla dzieci po 13m/kw są wystarczające. Proszę o odpowiedz. Z góry dziękuję.

31.10.2012
Lipinscy_Domy

Możemy wycenić taką zmianę na Państwa życzenie, ale proszę w tej sprawie o kontakt mailowy, na który możemy wysłać odpowiedź. :-)

05.11.2012
sonia63

Bardzo podoba mi się ten projekt. Podobnie jak i TOM77 uważam, że salon jest za mały. Również chciałabym się dowiedzieć, czy duże byłyby koszty związane ze zmianą projektu:powiększenia salonu i całego budynku (wzdłuż kalenicy) o 1m. Jaka jest obecnie i jaka byłaby wtedy powierzchnia dachu? Proszę o odpowiedź i z góry dziękuję.

08.11.2012
Lipinscy_Domy

Podobnie, prosimy o kontakt mailowy, abyśmy mogli przesłać wycenę takiej zmiany.

Pow. zabudowy 115.69m2
Powierzchnia netto 92.26m2
Kąt nachylenia dachu 30 °
Min. szerokość działki 17.7m x 19.7m
Wys. kalenicy 6.05m
Cena projektu: 4090 zł

Sofia V

LMB41d83.02m2

Powierzchnia parter 105.25 m2

Powierzchnia strych 27.63 m2

+17.1m² garaż +5.13m² kotłownia
19.07.2011
Sabi

Kolejna Sofia, jeszcze piękniejsza od pozostałych. Ten projekt ma chyba nieskończone możliwości aranżacji :) Wykusz od strony ogrodu i łukowaty kształt okien to świetny pomysł :)

20.07.2011
gość

wykusz pierwsza klasa, przystępny projekt.

31.08.2011
hanna

Prawdziwie sielski anielski domek! Bardzo mi się podoba!

31.08.2011
audiofil

właśnie zakupiłem ten projekt i jestem na etapie adaptacji. zastanawiam się nad przeniesieniem łazienki w taki sposób aby miała okno - jak w Sofii IV - tylko troszkę szkoda mi tych szerokich drzwi wejściowych. chciałbym troszkę podnieść (jakieś 2 pustaki) poddasze i zaadoptować je. planując schody w salonie (tak jak w poprzednich Sofiach) okno po lewo wydaje się niepotrzebne. może ktoś buduje podobny domek?

21.11.2011
marcindip

Projekt sofia V jest bardzo ciekawy i nie zwykle uroczy.... Gratulację za pomysłowość rozwiązań tego projektu dla Projektanta... Ale nie sposób nie zapytać Państwa Lipińskich o kwestię adaptacji poddasza tj.
1. czy jest możliwość wprowadzenia zmian do projektu sofia V uwzględniającą adaptację poddasza;
2. czy powstanie i ewentualnie kiedy kolejna propozycja projektu sofii uwzględniająca adaptację poddasza...
Z mojego punktu widzenia byłby to dom marzeń i prosiłbym o tego typu zmianę.

20.01.2012
ZIBI

Wiosną rozpocznę budowę Sofii V, szukam innych budujących do wymiany doświadczeń i podpowiedzi. Mój mail zm997@op.pl

22.03.2012
Tomasz, Mogilno

Szukałem projektu domu do 90 m2. Przeglądaliśmy oferty różnych biur projektowych. Projekt Sofia V spodobał się nam od razu ładny front, okiennice , duży salon z kominkiem, możliwość adaptacji poddasza. Okiennice, funkcjonalny rozkład pomieszczeń, wykusz od strony tarasu i duże okna w salonie.

30.07.2012
maciej

Szukamy z żoną mieszkania około 95m/2. Co ważne, musi być dobrze nasłoneczniony. Sofia V jest w naszej czołówce :)

08.10.2013
Jacek

Właśnie kupiłem ten projekt. Oglądałem bardzo wiele różnych. Ten jak dla mnie jest najlepszy. Oczywiście kilka drobnych modyfikacji....

15.11.2013
Ania

Witam,mam pytanie czy mozna ten projekt zmienic tak aby byly trzy sypialnie zachowując kuchnie i salon w tym samym miejscu? dziekuje

18.11.2013
Lipinscy_Domy

W takim przypadku zostaje nam do dyspozycji powierzchnia, którą zajmują dwa pokoje. Można ją podzielić na trzy, ale po pierwsze pokoje utworzone w ten sposób będą miały niecałe 8 mkw każdy, a dodatkowo trzeba będzie zastosować podciąg w jednym z nich, w miejscu gdzie znajduje się ściana konstrukcyjna. Nie są to zbyt korzystne zmiany.

26.02.2014
ryskro

Witam.
Dom piękny, imam pytanie ile w realu kosztuje postawienie do stanu developerskiego ? mam przeznaczone 270 tys.


14.03.2014
Lipinscy_Domy

Realną kwotę może podać jedynie wykonawca na podstawie własnej wyceny. Można o koszt zapytać w OFERTACH DODATKOWYCH -DOMY GOTOWE- budowa domu.

07.02.2015
megi

Projekt jest bardzo ciekawy tylko pytanie czy jest możliwość wprowadzenia zmian do projektu sofia V uwzględniającą adaptację poddasza? chodzi o dodatkowy pokoj z garderoba, lazienke i prlanie

09.02.2015
Lipinscy_Domy

Można wprowadzić takie zmiany. Szczegóły: biuro@lipinscy.pl

19.01.2016
Lucy

Witam.Mam pytanie.Czy ten projekt może być bez garażu?

20.01.2016
Lipinscy_Domy

Można zlikwidować garaż w ramach adaptacji u lokalnego architekta.

04.09.2016
gdido1

Witam. Jestem na etapie podjęcia decyzji Sofia V czy może jednak Denver DCB112. Moje pytanie brzmi, czy jest możliwość zaprojektowania Sofii w wersji energooszczednęj? Jeśli tak to czy koszt budowy znacząco się podniesie?

05.09.2016
Lipinscy_Domy

Mamy wersję energooszczędną - Monaco. Jednak ma ona inny garaż.
Można tę Sofię przeprojektować na dom energooszczędny. Koszt realizacji wzrośnie nieznacznie - o kilka procent.

05.10.2016
Lipinscy_Domy

Zapraszamy wszystkich zainteresowanych do grupy na Facebooku:
https://www.facebook.com/groups/313793238978322/

29.06.2017
Radek

Czy można w łazience zrobić okno dachowe?Wiem że sufit byłby wysoko wtedy ale czy jest to możliwe?

04.07.2017
Lipinscy_Domy

Mamy tu drewnianą konstrukcję stropu i dachu, więc trudno zrobić wysoki sufit. Można zastosować świetlik tunelowy lub więźbę prefabrykowaną.

Pow. zabudowy 132.31m2
Powierzchnia netto 105.25m2
Kąt nachylenia dachu 35 °
Min. szerokość działki 21.3m x 18.6m
Wys. kalenicy 6.51m
Cena projektu: 4490 zł

Sofia VI

LMB41e83.02m2

Powierzchnia parter 123.27 m2

Powierzchnia strych 27.48 m2

+30.82m² garaż +9.43m² kotłownia
16.05.2012
Kasia

Przypomina mi dworek, bardzo lubię taki styl.

31.01.2013
leszek Andura Bakero

Witam domek bardzo ladny mam pytanie czy jest mozliwosc wykozystania poddasza gdzie umiejscowic schody dziekuje

15.02.2013
LipinscyDomy

Można wykorzystać poddasze, a schody umieścić w salonie.

10.05.2013
moniutka

Projekt jest naprawdę ciekawy, ale czy nie można zmniejszyć łazienki i w tym korytarzu do kuchni wpuścić schodów na poddasze?

13.05.2013
Lipinscy_Domy

Niestety, schody zajmą powierzchnię około 2x3 m, więc praktycznie całość łazienki. Schody najlepiej umieścić w salonie, jak to widać na zdjęciach wnętrz w projekcie Sofia.

27.08.2013
matkub

adaptując poddasze, to jaka jest powierzchnia do wykorzystania?? i w jakim dokladnie miejscu mozna umieścic schody??

30.08.2013
Lipinscy_Domy

Powierzchnia ewentualnego stryszku wyniesie około 19 m2. To trochę mało, by było tam poddasze użytkowe. Natomiast, jako strych gospodarczy, może być. Schody składane są zaproponowane w korytarzu 1.3.

13.11.2013
vivipat

Ile metrow kwadratowych ma powierzchnia dachu?? Czy mozna na poddaszu zrobic jeszcze dwa pokoje ??

15.11.2013
Lipinscy_Domy

154,29 mkw dach o kącie nachylenia 35 st. i 63,22 mkw dach o kącie nachylenia 30 st. (nad garażem). Na poddaszu jest około 30 mkw pow. użytkowej, co w zupełności pozwoliłoby na doprojektowanie dwóch pokoi.

18.11.2013
vivipat

Czy mozna przeniesc lazienke do pokoju 1.2 a, w jej miejscu umiescic np. pralnie (czyli tylko praleczke), a nad pralnia zaprojektowac schody na poddasze w ksztalcie L lub U ??

18.11.2013
vivipat

Jeszcze jedno , czy mozna zrobic strop betonowy lub gestozebrowy i podniesc scianke kolankowa o 2 pustaki ?? Jaka bedzie powierzchnia strychu jezeli zmienie kat nachylenia dachu na 40 st. ??

19.11.2013
Lipinscy_Domy

do vivipat: Można wprowadzić takie zmiany. Trudno jest szacować jak bardzo zwiększy się powierzchnia użytkowa przy podniesieniu ścianki kolankowej i zmianie kąta dachu, to można sprawdzić po wprowadzeniu zmiany do projektu. Na pewno można jednak określić, że zmieszczą się na górze przynajmniej dwa pokoje i łazienka. Mamy 2 wersje projektu z użytkowym poddaszem o nazwie Jena i Atlanta.

19.11.2013
vivipat

Witam zwolenikow projektu SOFIA VI
Czy ktos buduje ten domek w wojewodztwie dolnoslaskim lub lubuskim ?
Moj e-mail: jola-rymar@web.de

20.11.2013
vivipat

Czy mozna przeniesc lazienke do pokoju 1.2 a, w jej miejscu umiescic np. pralnie (czyli tylko praleczke), a nad pralnia zaprojektowac schody na poddasze w ksztalcie L lub U ??

20.11.2013
Lipinscy_Domy

Jak już pisaliśmy wyżej (2013-11-19 08:06:40), można wprowadzić takie zmiany.

18.01.2014
kala&marcin

a my wkrótce rozpoczynamy budowę Sofii 6 :-) najpierw zakupiliśmy Sofię 3, jednak z wielu różnych względów zamieniliśmy projekt, z czego jesteśmy zadowoleni - będzie sporo zmian!

13.03.2015
Marcias

Witam czy ktoś buduje ten dom ,,Sofia VI'' w województwie świętokrzyskim. jak tak to prosze o kontakt na email marcinekz20@poczta.fm , chetnie bym zobaczył na zywo. Pozdrawiam

Pow. zabudowy 149.81m2
Powierzchnia netto 123.27m2
Kąt nachylenia dachu 35 °
Min. szerokość działki 23.7m x 18.7m
Wys. kalenicy 6.51m
Cena projektu: 4490 zł