PROMOCJA
ULUBIONE

Wersje projektu Budynek usługowy Orzeł II

Ostatnio oglądana wersja

Powierzchnia parter 235.3 m2

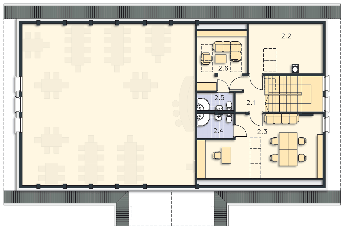
Powierzchnia poddasze 149.63 m2

+8.9m² kotłownia
Pow. zabudowy 282.15m2
Powierzchnia netto 460.25m2
Kąt nachylenia dachu 30 °
Min. szerokość działki 33.5m x 21.6m
Wys. kalenicy 8.41m
Cena projektu: 12370 zł


Pozostałe wersje

Budynek usługowy Orzeł

DCU01290.27m2

Powierzchnia parter 236.48 m2

Powierzchnia poddasze 62.69 m2

+8.9m² kotłownia
26.10.2016
Michal

sufit nad salą jest aż pod krokwie?

26.10.2016
Lipinscy_Domy

Tak.

25.09.2017
Jereczek Zdzisław

Witam czy istnieje możliwość projektu aby poddasze użytkowe było też nad salą bankietową i czy można by było powiększyć budynek do powierzchni zabudowy do 300m2 pozdrawiam

25.09.2017
Lipinscy_Domy

Można wprowadzić zmiany do projektu.
Szczegóły w zakładce "Zmiany w projektach" w kolumnie po lewej stronie.

20.11.2018
Dariusz Wesołowski

WITAM. MAMA PYTANKO CZY PLANUJĄ PAŃSTWO MNIEJSZĄ WERSJĘ TEGO PROJEKTU. WYMIARY 10 METRÓW NA 20 METRÓW??? JESTEM ZAINTERESOWANY TYM PROJEKTEM, A DOKŁADNIE ODBICIEM LUSTRZANYM. NIESTETY MAM OGRANICZENIA NA DZIAŁCE I TAKI DUŻY BUDYNEK SIĘ NIE ZMIEŚCI. DODATKOWO TOALETY DLA BIESIADNIKÓW UMIEŚCIŁ BYM Z PRZODU BUDYNKU. ORAZ PROSZĘ O KRÓTKĄ INFORMACJĘ O TECHNOLOGI W JAKIEJ WYKONANY JEST BUDYNEK..

21.11.2018
Lipińscy Domy

Nie planujemy nowej wersji, ale możemy wprowadzić zmiany odpłatnie. Szczegóły: biuro@lipinscy.pl
Technologia jest opisana w zakładce po lewej stronie u góry. Jeśli szuka Pan bardziej szczegółowych informacji to prosimy o pytanie w mailu.

Pow. zabudowy 282.15m2
Powierzchnia netto 334.42m2
Kąt nachylenia dachu 30 °
Min. szerokość działki 33.5m x 21.6m
Wys. kalenicy 8.41m
Cena projektu: 10770 zł