PROMOCJA
ULUBIONE

Projekt domu

Martin 54,10m²

LMW18

PROMOCJA
- 400 zł
od 6 do 19 stycznia 2026

 

Karta projektu Podziel się:

Opis projektu

Uroczy, mały domek weekendowy, który jest tani w realizacji. Projekt jest niezwykle funkcjonalny dzięki podziałowi na strefy dzienną i nocną. Na parterze do dyspozycji mieszkańców jest wygodny salon oraz kuchnia i łazienka. Na piętrze natomiast znalazły się dwie sypialnie z miejscem na szafy.

Zapotrzebowanie Energetyczne

EUco = 40,18kWh/(m²rok)
EP = 68,68kWh/(m²rok)

Projekt zgodny z wt2021

Dowiedz się więcej  

Parter 34,73m2

Gotowy projekt domu Martin rzut Parter

34,73m2

1.1 Salon 25,35m2
1.2 Aneks kuchenny 6,12m2
1.3 Łazienka 3,26m2
1.4 Podest 4,94m2
1.5 Taras 7,60m2
1.1 Salon 25,35m2
1.2 Aneks kuchenny 6,12m2
1.3 Łazienka 3,26m2
1.4 Podest 4,94m2
1.5 Taras 7,60m2

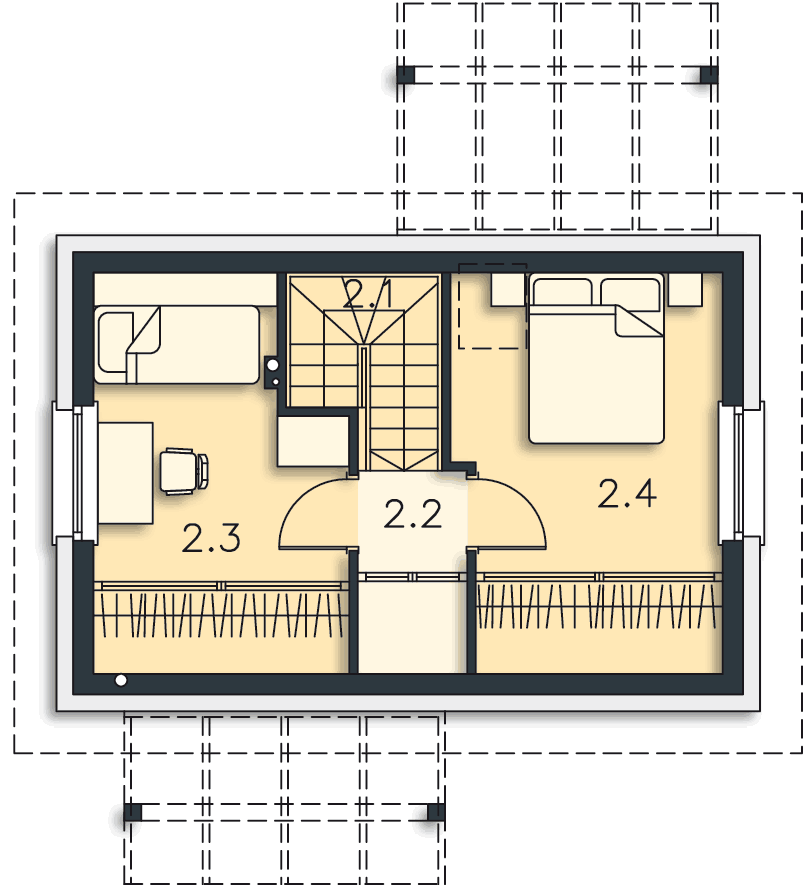
Poddasze 19,37m2

Gotowy projekt domu Martin rzut Poddasze

19,37m2

2.1 Schody 3,61m2
2.2 Komunikacja 1,61m2 (3,12m2)
2.3 Pokój 6,76m2 (12,82m2)
2.4 Pokój 7,39m2 (14,51m2)
2.1 Schody 3,61m2
2.2 Komunikacja 1,61m2 (3,12m2)
2.3 Pokój 6,76m2 (12,82m2)
2.4 Pokój 7,39m2 (14,51m2)

Wymiary działki

Gotowy projekt domu Martin wymiary działki

Przekrój

Gotowy projekt domu Martin przekrój

Elewacje

Gotowy projekt domu Martin elewacja przód Gotowy projekt domu Martin elewacja lewa Gotowy projekt domu Martin elewacja tył Gotowy projekt domu Martin elewacja prawa

Działka

Grafika przedstawia minimalne wymiary działki. Aby sprawdzić, czy dom może być realizowany na konkretnej działce należy uzyskać Wypis i Wyrys z Miejscowego Planu Zagospodarowania Przestrzennego lub jeśli na danym terenie nie ma planu – Decyzję o warunkach zabudowy. Wszystkie projekty wymagają adaptacji do warunków miejscowych przez projektanta lokalnego.

Dowiedz się więcej  

Technologia projektu

Fundamenty - rozwiązanie o podwyższonej izolacji termicznej

Ściany zewnętrzne - Bloczek silikatowy 24 cm + styropian 20 cm

Strop - gęstożebrowy

Dach - tradycyjna więźba ciesielska

WENTYLACJA - grawitacyjna

Na etapie adaptacji projektu istnieje możliwość zamiany materiałów na inne o podobnych właściwościach i parametrach technicznych. Pamiętaj! Projekt stanowi spójną całość i zmiana rozwiązań może wpłynąć na jego właściwości wytrzymałościowe i cieplne.

Dowiedz się więcej  

Szacunkowe koszty realizacji

Stan surowy zamknięty 98 600 zł
Stan deweloperski 163 000 zł

Szacunkowa wycena netto. Biuro projektowe nie zajmuje się realizacją inwestycji.

Dowiedz się więcej  

Wyceń bezpłatnie budowę domu u wykonawcy  

Opinie (24)

18.03.2019

Lipińscy Domy

Prosimy o przesłanie zapytania na biuro@lipinscy.pl. Określimy wówczas cenę.
Jeśli na działce jest dostęp do gazu to najlepiej zastosować kocioł gazowy. Jeśli nie to zaproponujemy alternatywę.

Skomentuj

13.03.2019

Waldemar Kowalczyk

witam jaki jest koszt przekształcenia tego projektu w dom całoroczny i czy jest opcja pomieszczenia na kotłownie czy komin na kominek z płaszczem wodnym pozdrawiam

Skomentuj

05.03.2019

Lipińscy Domy

Możemy wydać bezpłatną zgodę na podpiwniczenie w ramach adaptacji u wybranego architekta lokalnego.

Skomentuj

04.03.2019

maciek

czy istnieje mozliwosc podpiwniczenia?

Skomentuj

19.09.2016

Lipinscy_Domy

Mamy biuro we Wrocławiu.

Skomentuj

16.09.2016

agnieszkaab@interia.pl

witam ,
możecie napisać gdzie jest Wasze biuro , aktualne .
Dzięki pozdrawiam Aga

Skomentuj

12.09.2016

agnieszkaab@interia.pl

Jeśli ktoś wybiera się na Lubicz 25 w Krakowie , do biura to nie polecam gdyż biura nie ma muszę poszukać gdzie indziej.
może będzie biuro inne w Krakowie pozdrawiam

Skomentuj

25.08.2016

Lipinscy_Domy

Nie budujemy domów więc niestety nie udzielimy informacji o realnych kosztach budowy.
Zmiany może wprowadzić lokalny architekt w ramach adaptacji - mamy przedstawicieli w Krakowie.
http://lipinscy-projekty.pl/Malopolskie.html
Architekt poleci również firmę wykonawczą, która oszacuje koszty już na miejscu, więc adekwatnie do lokalizacji.

Skomentuj

24.08.2016

agnieszkaab@interia.pl

Witam , prosze o przesłnie mi na poczte jeżeli
To możliwe i mam pytanie czy macie oddział w Krakowie prosze o odp. Dziękuję Aga

Skomentuj

24.08.2016

agnieszkaab@interia.pl

Witam , dużo wieksze sa koszy niz weekendowy, poniewaz mamy srednią wypłate i niechcemy tez brac duzego krdytu jeżeli można Państwa poprosić o wycene wiadomo że będą większe ale o ile .
Napewno ten projekt kupimy u Państwa. Prosze oodp. Jak najszybciej.Dziękuję

Skomentuj

24.08.2016

Lipinscy_Domy

Można zrobić balkon. Można doprojektować kominek i ogrzewać nim dom.
Dom trzeba z góry zaprojektować jako całoroczny. Koszty są wyższe w zależności od zastosowanych rozwiązań.
Zapraszamy do kontaktu bezpośredniego telefonicznego lub mailowego: biuro@lipinscy.pl

Skomentuj

24.08.2016

agnieszkaab@interia.pl

Witam, jaka jest ròżnica w kosztach aby przekształcić dom w całoroczny. Bardzo prosze o odp.
I jeszcze gdy juz sie zbyduje dom weekendowy czy w pòźniejszym czasie mozna go przekształcić na całoroczny. Dziękuję. Będę czekać odp.. pozdrawiam

Skomentuj

24.08.2016

agnieszkaab@interia.pl

Witam
mam pytanie czy mozna zrobic balkon mały na górze taki stolik i 2 foteliki. I jwszcze jedno pytanie czy w tym projekcie jest możliwośc ogrzewanie kominkiem . Proszę o odp. Jestem zainteresowana tym prohektem .

Skomentuj

22.08.2016

Lipinscy_Domy

Projekty nie mają określonej ważności.

Skomentuj

19.08.2016

agnieszka

Witam mam pytanie aprpo projektu, Martin LMW18 jeżeli kupiłabym ten projekt czy ma ważność jeżeli tak to jaki okres.
Prosze o odpowiedž

Skomentuj

22.07.2016

Lipinscy_Domy

Można przekształcić dom na całoroczny. Instalacja gazowa jest proponowaną formą ogrzewania, ale nie jedyną.
Zmiany może nanieść lokalny architekt w ramach adaptacji. Szczegóły: biuro@lipinscy.pl

Skomentuj

22.07.2016

Tomasz

Witam. Czy jest możliwość przekształcenia projektu domu na całoroczny? Czy jedyną formą ogrzewania takiego domu byłaby instalacja gazowa? Pozdrawiam

Skomentuj

04.07.2016

Lipinscy_Domy

Tak. Można nanieść zmiany w ramach adaptacji u architekta lokalnego. Wydamy bezpłatną zgodę.

Skomentuj

04.07.2016

Lipinscy_Domy

Można wprowadzić taką zmianę bezpośrednio u nas lub w ramach adaptacji u lokalnego architekta.
Szczegóły można uzyskać mailowo: biuro@lipinscy.pl

Skomentuj

28.06.2016

janusz

jaki jest koszt do stanu deweloperskiego,widzę że ktoś ten dom wybudował jakieś orientacyjne koszty?

Skomentuj

28.06.2016

janusz

czy możliwa zamiana- łazienka w miejscu kuchni a kuchnia w miejscu stołu z krzesłami, w miejscu łazienki pom.gospodarcze.Czy takie zmiany możliwe przy budowie u kierownika budowy bo to kwestia tylko instalacji.

Skomentuj

25.06.2016

olga

Witam! Czy mogłabym prosić o więcej zdjęć z realizacji na maila: olgawozniczka@interia.pl
Czy można przekształcić do na dom całoroczny?

Skomentuj

15.03.2016

Lipinscy_Domy

Jest to dom weekendowy więc nie kwalifikuje się do dopłat.

Skomentuj

05.02.2016

pawel

czy jest możliwe dostosowanie projektu do wymagań uzyskania dopłaty do kredytu przez NFOŚIGW?

Skomentuj

Opinie nie są weryfikowane pod kątem ich pochodzenia od konsumentów, którzy używali produktu lub go nabyli.

Polecane rozwiązania

projekt Martin należy do kategorii

Ostatnio oglądane