PROMOCJA
ULUBIONE

Wersje projektu Pireus II Pasywny 3a

Ostatnio oglądana wersja

Pireus II Pasywny 3a

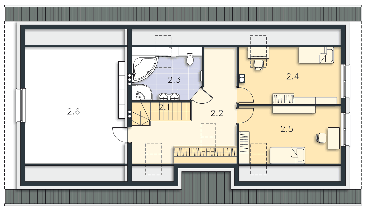
LDP03a140.2m2

Powierzchnia parter 121.74 m2

Powierzchnia poddasze 51.41 m2

+32.95m² garaż
07.02.2014
Kasia

Czy opłacałoby się zrobić bezpośrednie przejścia z pokoi do każdej z garderoby?

10.02.2014
Lipinscy_Domy

Trochę mniej by w takim przypadku było dostępnej powierzchni powyżej 1,9m w obu garderobach, ale ze względów wygody użytkowania być może korzystniej byłoby mieć wejście do garderoby bezpośrednio z pokoju.

13.02.2014
Dorota

Jakie jest rozwiązanie grzewcze dla tego projektu i czy wartość instalacji jest zawarta w kosztorysie?

16.02.2014
Gosza

Witam, czy nad garażem można wygospodarować dodatkowy pokój???

16.02.2014
iwona

witam, czy jest możliwość zmniejszenia powierzchni o jakieś 20m2i?

26.02.2014
Lipinscy_Domy

Projekt przewiduje wodne ogrzewanie podłogowe zasilane z gruntowej pompy ciepła. Koszty podane na stronie są jednak orientacyjne i choć w pewnej mierze przewidują wyższy koszt instalacji wymaganej dla domów pasywnych, jednak dopiero przy kosztorysie inwestorskim ceny uwzględniają konkretne rozwiązania.

05.03.2014
Lipinscy_Domy

Nad garażem jest pomieszczenie, które ma niecałe 9 mkw pow. użytkowej, ale wejście do niego jest z garażu poprzez składane schody chowane w stropie. Gdyby chcieć wchodzić do niego z domu, to albo trzeba by było przeprojektować klatkę schodową, tak aby można było umieścić na ścianie drzwi w odpowiednim miejscu, albo przesunąć garaż do osi budynku, wówczas wejście mogło by być bezpośrednio z korytarza, ale to z kolei wiąże się z rezygnacją z narożnego okna w łazience 1.7.

05.03.2014
Lipinscy_Domy

Taka zmiana jest możliwa, ale zmieni się wówczas również charakterystyka energetyczna i nie ma gwarancji, że zostaną utrzymane parametry EUco poniżej 15 kWh/mkw/rok.

25.03.2014
jagoda

Bardzo spodobała mi się elewacja tego domu :)

31.03.2014
Stefan

Fajny dom, ale z tego co czytam o wszystkich domach pasywnych na Państwa stronie, nie mają płyty fundamentowej. Jak w takim wypadku usunięte są mostki termiczne? Mogą Państwo powiedzieć, ile jest tam ocieplenia?

01.04.2014
Lipinscy_Domy

Ten projekt akurat ma rozwiązaną płytę fundamentową z 30-to centymetrową warstwą styropianu.
W innych przypadkach ściany fundamentowe są zakończone warstwą cokołowych pustaków izolacyjnych, a pomiędzy nimi na piasku ułożone jest 30 cm styropianu . Na to wszystko idzie izolacja przeciwwilgociowa i 10-cio centymetrowa żelbetowa płyta ściągająca. Od zewnętrznej strony od ławy fundamentowej aż po dach idzie pionowa izolacja termiczna grubości 30 cm.
Etapy realizacji takich fundamentów można obejrzeć na stronie www.domy-pasywne.pl na dokumentacji zdjęciowej z naszej realizacji pasywnego domu pokazowego (projekt - Lipińscy Dom Pasywny 1), który w 2007 r. uzyskał certyfikat Instytutu Budynków Pasywnych w Darmstadt.

03.05.2014
Marcin

Czy zwiększenie wysokosci kondygnacji do 3m oraz zmniejszenie kąta nachylenia dachu do 25 st. mocno nabroi we wskaźniku EUco?

03.05.2014
Marcin

W uzupełnieniu
Może być z odpowiednim zwiększeniem wymiarow okien.

05.05.2014
Lipinscy_Domy

Przy budynkach pasywnych wszystko ma znaczenie. Prawdopodobnie nie będą to drastyczne różnice, ale nie ma gwarancji, że utrzymane zostaną parametry domu pasywnego. Jak mocno zmienią się parametry będzie można sprawdzić dopiero po wykonaniu zmian i przeliczeniu charakterystyki. Oczywiście można korygować zapotrzebowanie domu na ciepło innymi elementami (np. oknami).

30.05.2014
Kasia

1. Czy można by "wysunąć" garaż jeszcze bardziej do przodu (powstanie dom w kształcie litery L)? Ewentualnie zastąpić go wiatą (również "wyciągniętą" z pom. gosp. z tyłu?
2. Jaki macie Państwo pomysł na osłonięcie okien o nieregularnym kształcie w pokojach na piętrze? U mnie byłyby one od południa, więc musiałyby być zasłaniane w gorące dni.
3. Czy dom można wybudować taniej - tzn. jako energooszczędny, nie jako pasywny?
4. Czy można by przenieść taras na stronę kuchni/jadalni, tzn. pomniejszyć wówczas okna z tyłu budynku, robiąc wyjście na taras przy stole znajdującym się przy kuchni?

06.06.2014
Lipinscy_Domy

1. Można wprowadzić tego typu zmiany.
2. Można zastosować rozwiązanie Internorm do okien pasywnych, w którym zastosowano żaluzję w zewnętrznej przestrzeni międzyszybowej (4 szyby). Każde inne zewnętrzne rozwiązanie będzie generowało dodatkowe mostki termiczne. Można je jedynie minimalizować odpowiednio montując np. rolety zewnętrzne. Wówczas jednak trzeba by było zmienić kształt okien w szczycie.
3. Można wybudować dom jako energooszczędny wykonując uprzednio jego adaptację do zadowalającego poziomu.
4. Można wprowadzić taką zmianę.

15.06.2014
Jurek

Czy jest mozliwosc wstawienia kozy w pomieszczeniu 1.2? Czy jest to koza z nosa?

Prosze o szybka odpowiedz

16.06.2014
Lipinscy_Domy

Traktując to pytanie poważnie trzeba zwrócić uwagę, że w domach pasywnych nie wskazane jest stosowanie wysokotemperaturowych źródeł ciepła. Jednak "wolnoć Tomku w swoim domku" zgodnie z bajką Fredry. Takie zmiany w projektach są możliwe.

20.07.2014
ml

Czy do garażu można dobudować pomieszczenie likwidując okno narożne w łazience i wykonać jedną połać dachową Czy uzyska się pomieszczenie nad garażem. Czy taką zmianę można wykonać samemu czy może być uwzględniona w projekcie i czy koszt projektu będzie taki sam?

20.07.2014
ml

Druga wersja. Czy do garażu można dobudować pomieszczenie likwidując okno narożne w łazience. Czy nad garażem może być taras lub mini szklarnia. Czy taką zmianę można wykonać samemu?

21.07.2014
Lipinscy_Domy

do ml: Zmiany można wprowadzić w ramach adaptacji projektu i lepiej to zrobić na etapie projektowym przed złożeniem dokumentacji w urzędzie.
Wprowadzenie zmian w projekcie w naszym biurze jest odpłatne i nie mieści się w cenie projektu gotowego.

16.09.2014
Bea

Witam

Proszę mi napisać czy dom pasywny sprawdzi się w Karkonoszach, a konkretnie w miejscowości pod Karpaczem, gdzie obszar ten można zaliczyć do zimniejszych i bardziej deszczowych, czy jest w ogóle sens budowania domu w takim miejscu?i czy faktycznie nie zmarznę w zimę??? I ewentualnie czy można wykonać dodatkowo balkon wspólny dla pokoi na górze, do szerokości np. dachu?
Z góry dziękuję i pozdrawiam

18.09.2014
Lipinscy_Domy

Jak najbardziej jest sens budowania domu pasywnego, ale trzeba obliczyć zapotrzebowanie na ciepło i zaprojektować źródło ciepła dostosowane do tego zapotrzebowania. Natomiast balkon w domu pasywnym musi być na konstrukcji samonośnej, niezwiązanej ze ścianą.

17.10.2014
Magda Dziki/ Megi

Jaka jest gwarancja na domy pasywne? Czy w tym projekcie można zmienić okna w pokojach na piętrze na okna dachowe? Czy w łazience na piętrze jest okno?

18.10.2014
Piotr

Czy można zrobić kotłownie na paliwo stałe w powiększonym garażu?

20.10.2014
Lipinscy_Domy

W łazience na górze nie ma zaprojektowanego okna. Można zmienić istniejące okna na dachowe.Gwarancji udziela firma wykonawcza oraz producenci materiałów.

20.10.2014
Lipinscy_Domy

W domach pasywnych nie stosuje się wysokotemperaturowych źródeł ciepła. Proponujemy rozwiązania niskotemperaturowe - np. powietrzna pompa ciepła, gruntowa pompa ciepła, gazowy kocioł kondensacyjny jeśli jest gaz sieciowy.

20.10.2014
Piotr

W domach pasywnych owszem, ale chce go wybudować tradycyjną metodą. I ścianę kolankową podnieść o jedną cegle

22.10.2014
Megi

Czy w tym projekcie jest przewidziany kominek? Jeżeli nie czy można go ująć?

23.10.2014
Lipinscy_Domy

W takim razie można zrobić kotłownię na paliwo stałe. Kominek można doprojektować. Możemy wydać bezpłatną zgodę na wprowadzenie takich zmian.

23.10.2014
Darek

Widzę, że nie tylko ja jestem zainteresowany wersją energooszczędną z kominkiem zamiast domu pasywnego. Może warto byłoby zrobić wariant Pasywny III, który byłby z kominkiem oraz oknami dachowymi.

24.10.2014
Piotr

Tu nie chodzi o zgodę tylko o gotowy projekt domu z kotłownią w garażu i tyle a kominek był by dodatkiem Czyli dom na fundamentach i kotłownią a reszta bez zmian bo na prawdę jest fajny i pasuje pod moją rodzinę

27.10.2014
Lipinscy_Domy

Prosimy o przesłanie wytycznych dotyczących zmian na adres biuro@lipinscy.pl. Będziemy mogli wówczas przygotować indywidualną wycenę.

08.11.2014
Magdalena

Czy jest możliwość zmiany kąta nachylenia dachu do 37st ? Jaki to ma wpływ na koszt budowy ?

12.11.2014
Lipinscy_Domy

Jest możliwość zmiany kąta nachylenia dachu. Nie wpłynie to znacząco na koszt realizacji.

05.01.2015
tyfus

Witam, czy dom zachowa parametry domu pasywnego jeśli stanie wejściem od strony zachodniej czyli szczyt od południa?

13.01.2015
Lipinscy_Domy

Jest to korzystne usytuowanie, więc prawdopodobnie tak, ale wymaga to przeliczenia w konkretnych warunkach lokalnych.

30.01.2015
Marek

Jaka będzie cena projektu po dostosowaniu go do wymogów szczegółowo określonych przez NFOŚIGW dla grupy NF15

03.02.2015
Lipinscy_Domy

Cena wzrośnie o 2500 zł netto + 23% VAT.

22.02.2015
Anna

Czy można w tym projekcie zastosować na ściany zewnętrzne silikaty 18 cm i czy to się wiąże ze zwiększeniem grubości styropianu? Czy nie jest to zalecane? Pozdrawiam

25.03.2015
Lipinscy_Domy

Można zmienić grubość ścian, ale nie zalecamy tego jeśli nie jest to konieczne np. w związku z warunkami zabudowy. Grubsze ściany pozwalają na łatwiejsze prowadzenie instalacji. Grubość styropianu może ulec zmianie, ale określić to można po wykonaniu szczegółowych obliczeń.

08.09.2015
Maciej

Witam,
Czy istnieje możliwość przerobienia tego projektu na konstrukcję szkieletową 24cm grubości plus wełna od zewnątrz?

08.09.2015
Lipinscy_Domy

Można zrealizować ten dom w technologii szkieletowej. Szczegóły rozwiązań zależą od konkretnego wykonawcy. Można przesłać zapytanie o wycenę z panelu po lewej stronie Oferty Dodatkowe: Buduj Eko, Domy Gotowe lub Wyceń Dom.

24.02.2016
Piotr

Dzień dobry,
muszę przyznać, że nie rozumiem w jaki sposób jest zaprojektowany system ogrzewania domu oraz ciepłej wody według tego projektu. Rekuperacje Państwo wykluczyli, pompa ciepła jest dobra dla domu o wyższym współczynniku EUco, ogniwa PV również nie są tu brane pod uwagę... Co więc powoduje, że w zimie jest ciepło a w lecie się tam człowiek nie ugotuje? Przepraszam, jeżeli pytanie brzmi ironicznie, ale szczerze - nie rozumiem. Proszę o rozjaśnienie tematu.

26.02.2016
Lipinscy_Domy

W projekcie jest rekuperacja. Skąd wniosek ze została wykluczona?
W kwestii szczegółów obliczeń cieplnych i kosztorysowych prosimy o kontakt telefoniczny - audytor wyjaśni wszelkie wątpliwości.

27.04.2016
Maciek

czy między biegami schodów istnieje możliwość usytuowania windy (jednoosobowej) bo taka w moim przypadku byłaby niezbędna?jeśli nie to proszę o jakąś sugestię gdzie by się zmieściła (nawet kosztem zmniejszenia pokojów na górze).

27.04.2016
maciek

....i jeszcze jedno pytanie, czy macie Państwo jakieś namiary na kogoś kto zbuduje ten dom??

09.05.2016
Lipinscy_Domy

Najlepszym rozwiązaniem byłaby winda platformowa hydrauliczna. Konieczne jest przesłanie zapytania do producenta.
Prosimy o kontakt bezpośredni: biuro@lipinscy.pl

18.07.2017
Lipinscy_Domy

Wszystkich budujących dom pasywny wg naszych projektów zapraszamy do grupy na Facebooku:
https://www.facebook.com/groups/148800905665203/?source_id=116638165048553

02.04.2018
Krzysiek

Witam, jaka jest powierzchnia dachu od strony, dobre miejsce na zastosowanie PV

02.04.2018
Krzysiek

Od strony garażu

03.04.2018
Lipińscy Domy

Prosimy o kontakt telefoniczny z konkretnym zapytaniem o jaką powierzchnię chodzi, architekt odpowie.

14.08.2018
Waldek

Ciekawa propozycja i dobra aranzacja wnetrza.
Czy budynek moze byc wykonany z Porothermu?

14.08.2018
Waldek

Zapomnialem zapytrac o okna.
Jestem zwolennikiem okien drewnianych. Czy jest mozliwosc uzycia okien drewnianych w budynkach pasywnych?
Jezeli tak to , o ile to nie bedzie reklama , to prosze o podanie producenta i wymogi jakie takowe okno powinno spelniac.

Z gory dziekuje.

14.08.2018
Lipińscy Domy

Można zmienić materiał ścian i zastosować okna drewniane. Producentów niestety nie polecimy, ale łatwo ich znaleźć przez Google.

15.08.2018
Waldek

Dziekuje za odpowiedz.
Wnioskuje ze Porotherm 24 cm plus 30 cm styropianu Termo Organiki spelnia wymagania domu pasywnego a okna drewniane o parametrach podobnych do zalecanych przez Panstwo tez beda spelnialy powyzsze wymagania.
Korzystajac z okazii : Ktora sciana bedzie tansza?

Pozdrawiam i z goty dziekuje

28.08.2018
Lipińscy Domy

Jeśli chodzi o porównanie cen trzeba dowiadywać się lokalnie.

Pow. zabudowy 161.75m2
Powierzchnia netto 198.39m2
Kąt nachylenia dachu 35 °
Min. szerokość działki 26.3m x 18.5m
Wys. kalenicy 7.47m
Cena projektu: 6270 zł5870 zł


Pozostałe wersje

Pireus Pasywny 3

LDP03140.2m2

Powierzchnia parter 121.62 m2

Powierzchnia poddasze 51.41 m2

+32.83m² garaż +11.29m² strych
18.02.2013
tomek

powyzszy projekt przewidziany jest rowniez pod plyte fundamentowa?
jaka jest orientacja budynku, zewnetrzny naroznik salonu wyznacza poludnie? czy elewacja lazienka-pokoj-salon to poludniowa sciana?

19.02.2013
TYSIA

Domek śliczny w sam raz dla mojej rodzinki:) Chciałabym wiedzieć jaki jest koszt deweloperski wybudowania takiego domu?

20.02.2013
Kamillos

Podłączam się pod pytanie poprzednika - jaki jest koszt budowy tego domu ?

21.02.2013
Alek.

Całkiem sympatyczny.
Kiedy poznamy szacunkowy koszt budowy?

21.02.2013
Alek.

Tak przeglądam już kolejny projekt DP i zastanawia mnie dlaczego niemal wszyscy architekci projektują domy pasywne bez PV???

22.02.2013
Pasywny

Wow !

01.03.2013
laik

Co znaczy bez PV ? Być może głupie pytanie ale jestem laikiem :P

02.03.2013
Alek.

najogólniej- fotowoltaika.

03.03.2013
Tomek ww

Rowniez chcialbym posztac koszty budowy. Pozdrawiam

11.03.2013
Lipinscy_Domy

W projekcie jest przewidziana płyta fundamentowa, a wejście do domu jest od strony północnej, czyli południe jest od strony łazienka/pokój/salon.

11.03.2013
Lipińscy Domy

Koszty budowy są pokazane w zakładce Kosztorys na karcie projektu po lewej stronie od zdjęcia. W tym koszcie jest ujęte: koszt realizacji domu 376 tys, a garażu 86,4 tys netto.

13.03.2013
Alek.

Kuszący jest ten projekt, ale nadal chętnie zamieniłbym pompę ciepła na PV- tylko czy wtedy dom będzie spełniał warunki standardu NF15? NFOŚiGW długo dumał żeby wypłacić ludziom jak najmniej...

14.03.2013
Lipinscy_Domy

Ideą ogniw fotowoltaicznych jest produkcja energii, zatem jest szansa na to, że ten dom z zastosowanym PV mógłby zbliżyć się do domu zerooenergetycznego lub wręcz produkować energię. Technika ogniw fotowoltaicznych jest rozwijającą się dziedziną i niewykluczone, że wkrótce będą na tyle dostępne finansowo i sprawdzone w polskich warunkach, że będą standardem, podobnie jak miało to miejsce z rekuperacją. Obecnie jeszcze, choć pojawiają się już oferty takich rozwiązań, warto jednak poczekać, aż się upowszechnią, zwiększy się oferta serwisów itp.
Natomiast, jeśli ktoś chce, to nie ma przeszkód, by je zastosować :-)

18.03.2013
laik

Patrząc na wydatki za ogrzewanie nie mogę uwierzyć w szacunkowe roczne koszty ogrzewania domu = 357,60 zł.
Ile osób musi mieszkać w domu, aby współczynnik EUco = 9,86?

19.03.2013
Lipinscy_Domy

Do obliczeń zapotrzebowania na energię do ogrzewania zyski wewnętrzne są przyjęte parametrycznie. Im więcej osób będzie mieszkało, tym zyski będą większe. Natomiast to można określić dokładnie przy sporządzaniu świadectwa charakterystyki energetycznej - biorąc pod uwagę także strefę klimatyczną danej działki, stopień zacienienia, dokładne usytuowanie względem stron świata.

20.03.2013
Alek.

Cóż, baaardzo ogólnikowe ostatnie dwie odpowiedzi (w zasadzie komentarze) pracowni Lipinscy_Domy.
Nadal nie wiem czy PV umożliwi załapanie się na NF15.
A pytanie laika też w zasadzie pozostało bez odpowiedzi.
Może chociaż proszę podać Państwa założenia do obliczeń EUco.
Czy to dom w Gdańsku, Warszawie czy Żywcu? Zamieszkały przez 1osobę czy 5? itp.

Pozdrawiam,
Alek.

20.03.2013
Lipinscy_Domy

Ależ oczywiście - obliczenia EUco opierają się na lokalizacji w III strefie klimatycznej. Do obliczania zapotrzebowania na ciepłą wodę użytkową (czyli nie EUco, tylko Ek i Ep) przyjęto cztery osoby. Natomiast zyski wewnętrzne są obliczane parametrycznie. Do projektu udostępniamy charakterystykę energetyczną, a na życzenie wszystkie obliczenia.
A czy zastosowanie PV pozwoli uzyskać standard NF15 może określić odpłatnie każda osoba uprawniona do sporządzania świadectw energetycznych. My oferujemy projekt z konkretnymi rozwiązaniami, natomiast podobnie, jak zmiany w projekcie, zastosowanie przez Inwestorów innych systemów grzewczych jest traktowane, jako osobne zlecenie.

21.03.2013
rob

Witam
Jak wygląda kwestia dostępu do pokoju nad garażem?

22.03.2013
Lipinscy_Domy

Stryszek nad garażem jest dostępny poprzez schody składane w garażu.

24.03.2013
Kajza

Czy jest w planach projekt tego domu jako energooszczędny? oraz z wejściem od południa

26.03.2013
Lipinscy_Domy

Ten projekt mógłby być także, jako energooszczędny, ale z wejściem od południa wymagałby wielu zmian. Możemy jednak wykonać taką wersję na zamówienie. W tym przypadku prosimy o kontakt bezpośredni.

11.04.2013
daga

dzien dobry, nie rozumiem, dlaczego na tej stronie wszystkie domy ktore maja niska wartosc zapotrzebowania na energie, sa opisane jako Dom Pasywny. Z tego co wiem, dom musi miec zapotrzebowanie na energie mniej niz 15 Kwh, nie 50, zeby miec status domu pasywnego.

15.04.2013
Lipinscy_Domy

Współczynnik, którego parametr nie może być większy niż 15kWh/m2/rok to EUco, a nie Ep.
EUco w przypadku tego projektu to 9,86 kWh/m2/rok i jest podany w tabelce "zapotrzebowanie energetyczne".

27.05.2013
niedoświadczona

A czy projekt ten można wykonać w wariancie bez garażu? I czy nadal będzie on zachowywał mniej więcej takie zapotrzebowanie na energię?

28.05.2013
MarcinP

A czy w domach pasywnych możliwa jest piwnica, czy raczej będą za duże straty?

31.05.2013
Lipinscy_Domy

Dom można spokojnie zrealizować bez garażu i jego obecność lub brak nie wpływa na zapotrzebowanie energetyczne.

30.07.2013
PrzemekT

Czy jest możliwość dołożenia przewodu kominowego dla kominka (na ścianie sypialnia/pokój dzienny na parterze zapewne od strony sypialni) i jak by się to miało do parametrów energetycznych domu?

31.07.2013
Lipinscy_Domy

Niestety, w domu pasywnym nie można stosować kominków, ponieważ zgodnie z przepisami musiałby mieć doprowadzenie powietrza przez tzw. peszel, oraz wentylację grawitacyjną, a to już jest poważne rozszczelnienie domu. Chyba, że nie zależy Panu na standardzie pasywnym - wtedy ten dom można zrealizować, jako energooszczędny, czyli o większym zapotrzebowaniu energetycznym i z dowolnym źródłem ciepła, np: piecem gazowym, czy pompą ciepła.

02.08.2013
Agnieszka

Witam
Czy przewidujecie Państwo w najbliższym czasie projekty domów pasywnych w zabudowie bliźniaczej ?

05.08.2013
Lipinscy_Domy

Na razie nie, ale możemy przygotować taki projekt na zamówienie, dostosowany do Pani życzeń i działki.

25.09.2013
lucek929

żałuję, że dopiero teraz znalazłem ten projekt, bo idealnie spełniałby moje oczekiwania - tyle mogę powiedzieć

30.10.2013
Jezier_san

Dobrze zrobiony dom, tyle powiem a jeśli ktoś ma w rodzinie babcie albo dziadka staruszków to wymarzony, :-)
ale brak kominka to duża strata emocjonalna jak dla mnie. Dom pasywny rozumiem idę, :-) ale na poważnie to okna tarasowe za 35 tysięcy sztuka cały dzień w lecie zasłonięte i półmrok w salonie to bez sensu. Więcej wydasz na doświetlenie pomieszczeń niż na "ich ogrzewanie". Jeśli chodzi o szczelność to jest w Polsce może 10 ekip które potrafią to zrobić, życzę powodzenia w szukaniu i gratuluję temu kto będzie z pracy wykonawców zadowolony - głównie braku wiedzy. Generalnie wielka porażka. Buduj Sam to rozwiązanie jest najbezpieczniejsze bo robisz dla siebie ale trzeba troszkę się wdrożyć albo komuś zlecić zaufanemu. Nie masz swojej pewnej ekipy nie buduj domu bo cię zniszczą. System nie do realizacji w naszym kraju. Mój kolega o dom obok szef dużej firmy ..... sam kładzie glazurę bo mu już 3 fachowiec nawalił. Po za tym po co walczyć o kwoty premii 30 czy 50 tyś skoro na rękę dostaniesz odpowiednio po zapłaceniu wszystkich kosztów kredytu, prowizji, weryfikacji projektu, ponownej weryfikacji, podatków od przychodów na rękę 5-10 tyś max. Ten system jest dla banków a nie dla budujących. Znów nam dają marchewkę a potem nas złupią, głupie polaczki ...... Szkoda, :-( no to się troszkę rozpisałem. Mogę tylko powiedzieć na pisać, że komfort mieszkania we własnoręcznie wybudowanym domu i zadowolenie z siebie i podziw sąsiadów i rodziny .... BEZCENNE, :-)

30.10.2013
Łukasz Rajewicz

Czy można zastosować w tym projekcie ogrzewanie podłogowe dla całego budynku ??

31.10.2013
Lipinscy_Domy

Tak, ale trzeba zastosować źródło ciepła, np: w postaci pompy ciepła.

31.12.2013
Kamila

Dzień dobry,

Czy można zmienić układ pomieszczeń? Sypialnia i łazienka w miejsce kuchni i spiżarki?

02.01.2014
Lipinscy_Domy

Można zmienić układ pomieszczeń, ale kuchnię od strony południowej, do tego mocno przeszkloną, nie będzie się dobrze użytkować zwłaszcza w lecie.

23.03.2014
miniol

Czy wraz z projektem otrzymam także wszystkie niezbędne rzeczy do wybudowania domu pasywnego czyli:
projekty instalacji C.O. CWU, WM, detale projektowe (abyśmy uniknęli błędów wykonawczych), obliczenia w programie PHPP.
Czy płyta fundamentowa jest elementem akumulacyjnym jako element grzewczy?

31.03.2014
Lipinscy_Domy

Projekty instalacji są elementem projektu, natomiast zakres dokumentacji jest typowy, jak dla projektu gotowego architektoniczno-budowlanego. Nie jest to projekt wykonawczy, choć wiele detali jest szczegółowo rozrysowanych, to jednak dotyczą one głównie konstrukcji, a nie sztuki budowania, jako takiej. Nie będzie więc w projekcie instrukcji jak np. uszczelnić budynek, czy jak wykonać ciepły montaż, lub jak przymocować rynny.
Płyta fundamentowa jest elementem izolującym, choć może być wykorzystana jako element akumulacyjny - sama w sobie nie ma jednak instalacji grzewczej, jak np. fundament grzewczy legalett.

03.12.2014
Krzysztof

Przyłączam się do pytania czy jest opcja z piwnicą i czy nadal będzie to dom pasywny?

04.12.2014
Lipinscy_Domy

Jest możliwość zaprojektowania odpowiednio odizolowanej, nieogrzewanej piwnicy. Wiąże się to oczywiście z dodatkowymi kosztami realizacji.

30.03.2015
Tom

witam,
czy ktoś z Państwa zaczął już budowę w/w domu? jestem ciekawy opini i problemów. pozdrawiam

17.05.2016
TonByd

Czy byłoby możliwe doprojektowanie pokoju pełniącego funkcję ogrodu zimowego od strony wschodniej, wejście przez drzwi przesuwane z dużego pokoju. Pomieszczenie w założeniu nieogrzewane, dogrzewane okresowo kominkiem - komin dobudowany po ścianie zewnętrznej elewacji wschodniej. W dobudowie przeszkadzają okna górnych sypialni.

18.05.2016
Lipinscy_Domy

Możemy doprojektować ogród zimowy. Szczegóły: biuro@lipinscy.pl

23.11.2016
małgo

witam, bardzo zainteresował mnie ten projekt, jednak mam pytanie czy jest możliwość przeniesienia pomieszczenia gospodarczego powiększając kuchnie i wstawieniu jego w miejscu wybudowanego łącznika pomiędzy garażem i domem, a wejscie do niego byloby od tyłu.

24.11.2016
Lipinscy_Domy

Można wprowadzić taką zmianę u ans w biurze lub w ramach adaptacji.

18.07.2017
Lipinscy_Domy

Wszystkich budujących dom pasywny wg naszych projektów zapraszamy do grupy na Facebooku:
https://www.facebook.com/groups/148800905665203/?source_id=116638165048553

29.05.2018
Maciek

Witam
poszukuję firmy, która wykona ten projekt, najlepiej do stanu deweloperskiego.
Prosze o wszelkie kontakty.
zeglarzmaciek@wp.pl

Pow. zabudowy 163.07m2
Powierzchnia netto 198.27m2
Kąt nachylenia dachu 35 °
Min. szerokość działki 23.6m x 27.5m
Wys. kalenicy 7.47m
Cena projektu: 6270 zł5870 zł

Nikozja II

DCP349a149.52m2

Powierzchnia parter 136.75 m2

Powierzchnia poddasze 60.03 m2

+32.14m² garaż +28.84m² strych +15.12m² pomieszczenie gospodarcze
11.08.2015
Paulina Piwowska

Pomieszczenie 2.6 idealne na salę telewizyjną! Poza tym super rozkład pomieszczeń!

17.08.2015
Luuuki

Na rzutach wygląda na znacznie większy niż wskazywałby na to metraż.

05.01.2016
Krzysiek

Czy dom wg tego projektu jest już gdzieś zrealizowany lub jest w trakcie realizacji ?

24.02.2016
Piotr

Dołączam się do pytania - czy ktoś już podjął się budowy zgodnie z tym projektem? Proszę o podzielenie się swoimi spostrzeżeniami.
Jakie powinno tu być ogrzewanie? pompa ciepła, gazowe, paliwo stałe?
I jeszcze jedno - z czego wynika tak wysoka cena realizacji projektu?

25.02.2016
Lipinscy_Domy

Ogrzewanie proponujemy gazowe, ale można zastosować również pompę ciepła.
Koszt realizacji wynika z dużego metrażu i ze standardu energooszczędnego.

25.02.2016
PiotrA

Dziękuję za udzielenie odpowiedzi, proszę jednocześnie o uzupełnienie.
1. Czy jeżeli nie mam dostępu do gazu ziemnego, powinienem mimo wszystko zastosować ten rodzaj ogrzewania?
2. Czy stosując ogrzewanie gazowe korzystniej inwestować w podłogówkę czy raczej grzejniki standardowe?
3. Czy ten projekt wyposażony jest w rekuperację? (nie widzę pomieszczenia technicznego przeznaczonego na urządzenie).
4. Czy dobrze rozumiem, że w pomieszczeniu 1.6 znajduje się kominek? Jeżeli tak, to znaczy, że dom wymaga (lub tylko dopuszcza) wykorzystanie wysokotemperaturowych źródeł ciepła. Czyli dogrzewanie kominkiem nie jest niezalecane (jak w przypadku Pireusa). Słusznie rozumuję?
5. Jeżeli nie zastosuję tu pompy ciepła, będzie konieczność grzania wody przez cały rok, czy koszty te zostały uwzględnione w kalkulacji szacunkowego rocznego kosztu ogrzewania domu?
6. Czy do wykonania domu w tak wysokim standardzie energooszczędności potrzebne są wyspecjalizowane firmy legitymująca się określonymi certyfikatami, czy odpowiednio prowadzony nadzór inwestorski jest wystarczający, aby nie stracić cech domu (niemalże) pasywnego?
7. Czy pomieszczenie 2.6 faktycznie może zostać zaadoptowane na większy pokój (jak zostało powiedziane poniżej) telewizyjny?
8. Czy w pomieszczeniu 2.6 jest możliwość dodania jednego/dwóch okien dachowych?
Dziękuję za rzeczową rozmowę

26.02.2016
Lipinscy_Domy

Panie Piotrze, bardzo prosimy o kontakt bezpośredni mailowy lub telefoniczny. Odpowiemy na wszystkie pytania.

16.04.2017
Monika

Proszę o informację jaka jest wysokość ścianki kolankowej i czy zamiast pieca gazowego można zainstalować powietrzną pompę ciepła z ogrzewaniem podłogowym w całym domu.

18.04.2017
Lipinscy_Domy

Ścianka kolankowa od stropu do murłaty ma 70 cm. Można zmienić ogrzewanie.

30.12.2017
marek

Witam
czy ktoś rozpoczął już realizację tego projektu? Chciałbym rozpocząć budowę na początku roku i chciałem oszacować jakie są koszty materiałów do realizacji stanu surowego otwartego z dachem.
Będę wdzięczny za jakąś podpowiedź

09.04.2019
Lipińscy Domy

Wszystkich zainteresowanych projektem Nikozja zapraszamy do grupy na Facebooku:
https://www.facebook.com/groups/budujemy.nikozje

13.11.2019
Ewa Pawelec

Witam,
Co oznacza literka "W" w pomieszczeniu gospodarczym na parterze? Co to za urządzenie?
Dziękuję,

13.11.2019
Lipińscy Domy

Urządzenie oznaczone literką W jest to zbiornik na wodę - pojemnościowy podgrzewacz, tutaj o pojemności 120 l.

Pow. zabudowy 173.49m2
Powierzchnia netto 248.36m2
Kąt nachylenia dachu 35 °
Min. szerokość działki 26.7m x 18.1m
Wys. kalenicy 7.63m
Cena projektu: 5870 zł5470 zł

Nikozja

DCP349165.58m2

Powierzchnia parter 136.53 m2

Powierzchnia poddasze 76.79 m2

+47.74m² garaż
11.08.2015
Kamila Krakowska

Dom sprawia wrażenie bardzo dobrze przemyślanego. Widać fachową rękę projektantów :)

17.08.2015
Daniel D

Wow! Szacunkowy koszt ogrzewania 674 zł? Czy to aby nie błąd?

18.08.2015
Lipinscy_Domy

Panie Danielu, jest to dom naprawdę bardzo energooszczędny. ;-)

05.09.2015
tomek

Pytanko.
Dlaczego w tym domu nie ma kominów

07.09.2015
Lipinscy_Domy

Ponieważ zastosowno tu rekuperację czyli wentylację mechaniczną.

10.05.2016
Piotr

Czy jest możliwe podniesienie ściany kolankowej?

10.05.2016
Lipinscy_Domy

Można wprowadzić zmiany. Zapraszamy do kontaktu: biuro@lipinscy.pl

22.08.2016
Mia

Czy istnieje możliwość umieszczenia w projekcie kominka?

23.08.2016
Lipinscy_Domy

Tak. Doprojektować może go lokalny architekt w ramach adaptacji.

15.11.2016
solar

Pytanie do projektanta - jak rozwiązana jest kwestia podłogówki. Jest ona wtopiona w płytę funamentową czy przewidziana jest dodatkowa wylewka. Jeżeli w płycie to jak rozwiązać problem instalacji wod kon, centralny odkurzacz itp. Dziękuje za szybką i wyczerpującą odpowiedź.
pozrawiam

15.11.2016
solar

jeszcze jedno pytanie ma do forum, czy ktoś realizuje ten projekt. Najlepiej w województwie małopolskim, świętokrzyskim lub na podkarpaciu. Byłby wdzięczny za każdą odpowiedź.

15.11.2016
solar

Jeszcze jedno pytanie do projektanta czy można zastosować jako budulec ścian Porotherm Dryfix lub podobny i jaki wpływ miało by to na izolacyjność ścian i na cały budynek.

15.11.2016
solar

co oznacza stwierdzenie w opisie technologii domu " pompa ciepła ze źródłem dolnym współpracująca z instalacją ogrzewania podłogowego" ( każda popa ciepła posiada górne i dolne źródło ciepła) - jakie dolne źródło ciepła jest przyjęte w projekcie - wymiennik pionowy, -poziomy, bezpośrednie odparowanie, wymiennik zanurzony w stawie, itp. . Jaki został przyjęty w projekcie. Wiadomo że każdy ma inny współczynnik COP jak również sezonowy. I czy cena pompa ciepła jest wliczona w koszt budowy domu i jakiej firmy, z jakim rozwiązaniem i jakim współczynnikiem sezonowym COP dla aktualnej normy.

16.11.2016
Lipinscy_Domy

Proponujemy pompę z gruntowym wymiennikiem ciepła. Nie określamy producenta i nie uwzględniamy tak szczegółowych danych w szacunkowych wycenach.
Można zmienić materiał ścian na Porotherm Dryfix. Parametry wyjdą minimalnie lepsze.
Podłogówka jest w wylewce na dodatkowej warstwie styropianu. Dodatkowe instalacje mogą wymagać zmiany w warstwach.
Jeśli pojawią się jeszcze jakieś pytania zapraszamy do kontaktu mailowego lub telefonicznego - ekspert odpowie na wszystkie pytania.

16.11.2016
solar

ile szacunkowo były by tańsze tradycyjne fundamenty ( zakładając że były by tak samo zaizolowane jak płyta) od płyty fundamentowej zakładając że grunt jest stabilny?
Ile szacunkowo jest droższy system Porotherm Dryfix od zakładanego w projekcie, uwzględniając koszt materiałów i nakład pracy i czy jest to ekonomiczne uwzględniając okres 20 lat.
Jakie w zmiany w warstwie są potrzebne aby umieścić opisane poniżej instalacje- zgrubienie warstwy styropianu, wylewki.

16.11.2016
solar

Do projektanta. Czy posiadacie (możecie polecić) w okolicach Gorlic woj. małopolskie architekta który mógłby dostosować ten projekt do moich wymagań i wz. Proszę o podanie na forum lub wysłanie mi kontaktu telefonicznie

16.11.2016
solar

O ile szacunkowo zmniejszy się koszt budowy jeżeli zamiast pompy ciepła zastosujemy kocioł kondensacyjny gazowy uwzględniając średni koszt przyłącza gazowego (gazociąg na działce 40metrów od planowanego budynku) i ile więcej zapłacimy za koszty ogrzewania przy obecnych cenach energii.

17.11.2016
Lipinscy_Domy

Nasi przedstawiciele w Małopolsce: https://lipinscy.pl/malopolskie
Nie określamy kosztów, ponieważ nie budujemy domów. Są to pytania do firm wykonawczych.

Jeśli pojawią się jeszcze jakieś pytania zapraszamy do kontaktu mailowego lub telefonicznego - ekspert odpowie na wszystkie pytania.

29.03.2018
bea5

Witam!Czy ktoś ten dom już wybudował?

25.09.2018
Sylwester

Mam pytanie dotyczące izolacji termicznej dachu. Wg projektu są to styropianowe kształtki nakrokwiowo + styropian między i podkrokwiowo. Czy zamknięcie krokwi materiałem o dużym oporze dyfuzyjnym dla pary wodnej nie doprowadzi do zawilgocenia krokwi i dalszych konsekwencji z tego wynikających?

25.09.2018
Lipińscy Domy

Nie ma takiego problemu. Zastosowana jest tu paroizolacja, która zapobiega zawilgoceniu.

14.12.2018
bonevi

Czy jest możliwość, aby ten projekt był z garażem jednostanowiskowym?

17.12.2018
Lipińscy Domy

Możemy wprowadzić taką zmianę. Pomieszczenie nad garażem będzie wówczas dość wąskie.
Szczegóły: biuro@lipinscy.pl

09.04.2019
Lipińscy Domy

Wszystkich zainteresowanych projektem Nikozja zapraszamy do grupy na Facebooku:
https://www.facebook.com/groups/budujemy.nikozje

07.10.2019
piotr

jEŻELI KTOŚ CHCE ZOBACZYC TAKI DOM W STANIE SUROWYM TO ZAPRASZAM DO KONTAKTU , DOM JEST BUDOWANY W OKOLICACH ŁODZI. JESTEM NA ETAPIE DACHU. piter391@wp.pl

14.10.2019
Lipińscy Domy

Zapraszamy do chwalenia się zdjęciami w grupie budujących i zainteresowanych tym projektem na FB
https://www.facebook.com/groups/budujemy.nikozje

19.02.2020
Agnieszka K

Witam czy jest możliwość przeniesienia kotłowni do garażu ?

19.02.2020
Lipińscy Domy

Można przenieść kotłownię do garażu.

13.05.2025
Paweł B

W rzucie nie ma wejścia z garażu do domu. To błąd na stronie czy tu konieczne są zmiany w projekcie, bo wejścia nie zaplanowano?

Pow. zabudowy 176.75m2
Powierzchnia netto 250.83m2
Kąt nachylenia dachu 35 °
Min. szerokość działki 26.9m x 18.5m
Wys. kalenicy 7.45m
Cena projektu: 5970 zł

Pireus III Pasywny 3b

LDP03b139.06m2

Powierzchnia parter 87.65 m2

Powierzchnia poddasze 51.41 m2

03.03.2017
Budmen

W ogóle nie wygląda na dom pasywny. Ciekawa bryła.

24.05.2017
Tomek

Bardzo ciekawie oglądać projekt, w którym uwzględniono autorskie propozycje adaptacji, za które zapłacono.

25.05.2017
Lipinscy_Domy

Panie Tomaszu, wszystkie wersje projektów powstają w ten sposób. Wycena zmian uwzględnia możliwość późniejszego wprowadzenia projektu do kolekcji. Inaczej zmiany byłyby dużo droższe. Akurat Pana zmiany uznaliśmy za interesujące i warte opublikowania jako nowa wersja Pireusa. Pozdrawiamy i życzymy bezproblemowej budowy.

18.07.2017
Lipinscy_Domy

Wszystkich budujących dom pasywny wg naszych projektów zapraszamy do grupy na Facebooku:
https://www.facebook.com/groups/148800905665203/?source_id=116638165048553

19.10.2020
Michu

Witam
Czy jest możliwość zamówienia tego projektu w wersji wg nowego prawa budowlanego?

26.10.2020
MICHU

Nie wiem co się stało z moim komentarzem poprzednim. Mam pytanie co do tego, że do połowy września 2021 można będzie uzyskać pozwolenie wg starych zasad. Ale co z odbiorem budynku po tym terminie? Będzie trzeba przedstawić projekt techniczny mimo uzyskania pozwolenia na budowę wg starych zasad. Czy w związku z tym będzie można wykorzystać część projektu żeby przedstawić go jako projekt techniczny? Czy będzie trzeba zamówić u Państwa wtedy ten projekt techniczny?

Pow. zabudowy 118.85m2
Powierzchnia netto 164.3m2
Kąt nachylenia dachu 35 °
Min. szerokość działki 20.9m x 19.4m
Wys. kalenicy 7.67m
Cena projektu: 6470 zł6070 zł

Pireus IV Pasywny 3c

LDP03c152.09m2

Powierzchnia parter 93.42 m2

Powierzchnia poddasze 62.54 m2

21.02.2018
Henryk

Taki dom mógłbym mieć w górach. To moje marzenie.

Pow. zabudowy 123.83m2
Powierzchnia netto 187.89m2
Kąt nachylenia dachu 45 °
Min. szerokość działki 20.9m x 20.2m
Wys. kalenicy 9.16m
Cena projektu: 6670 zł

Nikozja III

LMP349b174.67m2

Powierzchnia parter 119.24 m2

Powierzchnia poddasze 75.81 m2

+20.38m² garaż
06.03.2019
Marian Dobrowolski

Bardzo praktycznie rozwiązany dach - bez żadnych daszków i komplikacji. Na pewno tańszy w wykonaniu. Jaka powierzchnia i konstrukcja przewidziana w tym projekcie?

06.03.2019
Lipińscy Domy

247,2 mkw i więźba ciesielska, konstrukcja jętkowa.

07.03.2019
Małgosia

Dwie sypialnie na parterze to to czego szukałam. Super projekt! Czy można wprowadzać drobne zmiany okien i zlikwidować kominek u swojego architekta?

08.03.2019
Lipińscy Domy

Wydamy do projektu bezpłatną zgodę na wymienione zmiany.

09.04.2019
Lipińscy Domy

Wszystkich zainteresowanych projektem Nikozja zapraszamy do grupy na Facebooku:
https://www.facebook.com/groups/budujemy.nikozje

11.10.2020
Christian Hanisch / Germany

Absolute incredible projects. We are in touch already with Nikarus-Haus in Germany for the Nikozja project. Has one of the Nikozja projects realized somewhere already?

Pow. zabudowy 157.43m2
Powierzchnia netto 228.97m2
Kąt nachylenia dachu 35 °
Min. szerokość działki 25m x 18.4m
Wys. kalenicy 7.48m
Cena projektu: 5790 zł