PROMOCJA
ULUBIONE

Wersje projektu Skagen III

Ostatnio oglądana wersja

Skagen III

DCP401b141.62m2

Powierzchnia parter 107.31 m2

Powierzchnia piętro 72.08 m2

+37.77m² garaż
18.07.2018
Henryk Nowak

Dzień dobry.
okno dachowe na połaci frontowej doświetla sypialnię tak? Jest przewidziana otwarta przestrzeń nad stropem?

18.07.2018
Lipińscy Domy

Tak. Sypialnia jest doświetlona oknem połaciowym i pionowym.

21.02.2019
Józef Kopeć

Witam, czy jest możliwość uzyskania 25stopni dachu przy maksymalnej wysokości frontowej elewacji 8m ? Taki mam zapis w zagospodarowaniu terenu. Oczywiście dach dwuspadowy. Bardzo proszę o pomoc podoba nam się z żoną ten projekt a musimy się zmieścić w narzuconych wymiarach.

22.02.2019
Lipińscy Domy

To zależy, czy wysokość 8m dotyczy elewacji czy kalenicy. Jeśli elewacji - to najprawdopodobniej chodzi o okap, wtedy - tak, ale trzeba to sprawdzić w planie zagospodarowania.

18.03.2019
ania

jaka byłaby cena z garażem dwu stanowiskowym w technologii szkieletowej?

19.03.2019
Lipińscy Domy

Nasze biuro nie projektuje domów w technologii szkieletowej.
Wycenę realizacji firmy WOLF można uzyskać przez żółtą zakładkę w lewej kolumnie. Projekt, zmiany i adaptacja do ich systemu kosztują 1 zł.

Pow. zabudowy 140.22m2
Powierzchnia netto 181.29m2
Kąt nachylenia dachu 15 °
Min. szerokość działki 21.5m x 19.6m
Wys. kalenicy 7.67m
Cena projektu: 5670 zł


Pozostałe wersje

Skagen

DCP401142.28m2

Powierzchnia parter 89.05 m2

Powierzchnia piętro 72.44 m2

+19.21m² garaż
25.03.2015
Łukasz

Witam. Świetny projekt. A czy jest możliwość wydłużenia i poszerzenia garażu o metr i rezygnacji z okna w pomieszczeniu gospodarczym? Czy można wstawić drzwi miedzy garażem a pomieszczeniem gospodarczym? Jaka jest moc pompy ciepła przewidziana dla ogrzania budynku?

26.03.2015
Lipinscy_Domy

Można wprowadzić wymienione zmiany w ramach adaptacji lub u nas w biurze. Szczegóły: biuro@lipinscy.pl
Proponujemy pompę Viessmann BWC 301.B10 o mocy 10,36 kW.

02.04.2015
Łukasz

Przybliżona wycena stanu deweloperskiego uległa zmianie. Czy wycena zawiera także koszt pompy ciepła i paneli fotowoltanicznych? Poprzednia wycena wynosiła około 352 000. Skąd ta nagła zmina.

05.04.2015
Magda

Witam, czy w cenę projektu włączone są w/w rozwiązania np panele fotowoltaiczne, ogrzewanie pompą ciepła, zbiornik na deszczówkę itd czy tylko projekt rekuperacji oraz czy konstrukcja domu dostosowana jest do w/w rozwiązań czy moze dodatkowe instalacje jak i przykładowo likwidacja kominów z wentylacji grawitacyjnej wykonywane są na etapie adaptacji?

07.04.2015
Maria

Z jakich materiałów przewidziana jest w projekcie elewacja tego domu?

08.04.2015
Beata

Dlaczego przy tak małym zapotrzebowaniu energetycznym propnujecie Państwo pompę ciepla o tak dużej mocy?

10.04.2015
Lipinscy_Domy

Przybliżona wycena obejmuje koszt pompy ciepła, paneli fotowoltaicznych i rekuperacji ale nie obejmuje kosztu zbiornika na deszczówkę - jest on w zakresie zagospodarowania działki. Konstrukcja dostosowana jest do tych rozwiązań.

10.04.2015
Lipinscy_Domy

Drewno i tynki cienkowarstwowe.

10.04.2015
Lipinscy_Domy

Ze względu na wykorzystanie pompy do podgrzewania ciepłej wody użytkowej.

14.04.2015
Kasia

Witam. Czy jest możliwość adaptacji wnętrza parteru tak żeby był kominek, niekoniecznie z rozprowadzeniem ciepła na kondygnacje? Czy można powiększyć garaż (chodzi o jego długość i nawiązać do ściany bocznej budynku). Czy nie zaburzy to bryły budynku. Mają Państwo pomysł na to jak zaaranżować wnętrza aby wygospodarować miejsce na stół w salonie? I ostatnie moje pytanie w rzucie parteru, powierzchnia łączna jeśli chodzi o pokój dzienny podane są dwa wymiary. Czego dotyczy wymiar w nawiasie. Pozdrawiam.

14.04.2015
wissnia

Witam,
jakie jest rozmieszczenie wg stron swiata i czy bylaby opcja zastosowania dachu plaskiego (jak wtedy zmienia sie parametry)?

15.04.2015
Lipinscy_Domy

Kominek nie jest dobrym pomysłem w domach pasywnych ze względu na szczelność budynku. Garaż można powiększyć - nie wpłynie to negatywnie na budynek. Stół można przenieść w miejsce telewizora. Telewizor może pod schodami? Różnica w wymiarach salonu dotyczy powierzchni pod schodami, która jest nieużytkowa.

15.04.2015
Lipinscy_Domy

Optymalne usytuowanie to wjazd od wschodu. Wówczas salon doświetlony jest od strony południowej i zachodniej. Można zastosować dach płaski, a parametry zmienią się nieznacznie.

01.06.2015
Maggie

Witam,
piękny projekt. Czy te daszki na oknami to markizy?

Pozdrawiam

13.07.2015
Lipinscy_Domy

Cieszymy się, że projekt się podoba. Zgadza się, zadaszenia to markizy.

28.09.2015
Stefan

Witam,

Jak kształtowałby się koszt realizacji domu do stanu developerskiego przy założeniu rezygnacji z paneli fotowoltaicznych i zastąpieniu pompy ciepła kotłem gazowym kondensacyjnym?

29.09.2015
Lipinscy_Domy

Koszt byłby o około 40-50 tys. zł niższy niż podany. Czyli 360-370 tys. zł netto.

25.01.2016
AdamGrabowski

witam.KIedy projekt będzie gotowy?

26.01.2016
Lipinscy_Domy

Projekt będzie gotowy w ciągu kilkunastu dni od zamówienia.

13.03.2016
Lukas

Witam, czy była by możliwość połączenia garażu z kotłownia oraz jego poszerzenia do około 6m. Oczywiście kosztem delikatnie mniejszej energetycznosci?

14.03.2016
Lipinscy_Domy

Można wprowadzić takie zmiany w ramach adaptacji lub u nas w biurze.

24.04.2016
Czarna_Renia

Witam, czy jest możliwość przestawienia schodów w miejsce łazienki - parter, a kotłownię zmniejszyć i dodać tam łazienkę. Podobnie jak w projekcie Dbały Murator EC348. Dziękuję.

29.04.2016
Lipinscy_Domy

Można wprowadzić takie zmiany u lokalnego architekta w ramach adaptacji.

03.07.2016
renatadig

Witam, czy mają Państwo więcej wizualizacji tego domu? Jeśli tak poproszę je na maila: renatadig@vp.pl.
Dziękuję

16.07.2016
Darek

Szukam projektu z płaskim dachem. Rozkład i funkcjonalność SKAGENa bardzo mi odpowiada. Czy "spłaszczenie" SKAGENa było by możliwe i czy jest to kosztowny zabieg?

18.07.2016
Lipinscy_Domy

Taka zmiana jest możliwa. Szczegóły: biuro@lipinscy.pl

18.07.2016
Lipinscy_Domy

Wszystkie dostępne wizualizacje opublikowane są powyżej.

21.07.2016
Adam

Witam Czy jest możliwa zmIana projektu dla działki o szer 19m

22.07.2016
Lipinscy_Domy

Można zlikwidować okna na ścianie szczytowej i wówczas przysunąć ją na 3 m do granicy - minimalna szerokość wyniesie 19 m.

21.08.2016
Konrad

Czy można zrezygnować z grazu i wstawić komin i piec na pellet oprócz pompy ciepla?

30.08.2016
Lipinscy_Domy

Można wprowadzić takie zmiany.

29.12.2016
DOROTA 1

jaki byłby koszt domu w stanie developerskim,kiedy będzie rezygnacja z paneli,rekuperacji i nie pompa ciepła a piec na pelet

02.01.2017
joannabor

Czy dysponujecie Państwo zdjęciami z realizacji tego projektu?

02.01.2017
Lipinscy_Domy

Projekt ten nie został jeszcze zrealizowany.

15.04.2017
Damian&Marta

Witam, czy istnieje możliwość zrezygnowania z pompy ciepła ? Budowę domy w technologi Izodom z wykorzystaniem ogrzewania systemu fotowoltaicznego ?

18.04.2017
Lipinscy_Domy

Można zmienić technologię i ogrzewania w ramach adaptacji.

21.04.2017
agnieszka k.

dzien dobry ,

czy skangen projekt mozna wykonac jako dom z paneli SIP ?

z gory dziekuje za odpowiedz

24.04.2017
Lipinscy_Domy

Można zmienić technologię w ramach adaptacji.

10.04.2018
Piotr

Czy ktos buduje już ten dom?

14.05.2018
Monika

Witam, czy jest możliwość zmiana konta nachylenia dachu do 45 stopni i obniżenie nieco ścianki kolankowej, tak żeby dopasować projekt do warunków zabudowy, które mówią o budowie domu parterowego z poddaszem uźytkowym?

14.05.2018
Lipińscy Domy

Można wprowadzić takie zmiany.
Szczegóły w zakładce "Zmiany w projektach" w kolumnie po lewej stronie.

24.10.2018
Łukasz

Czy mozna obniżyć dom do 8 m wysokości żeby dostosować do miejscowego planu zagospodarowania?

25.10.2018
Lipińscy Domy

Można zmienić kąt nachylenia dachu i wprowadzić skosy na poddaszu.

14.11.2018
Daria

Chcialam zapytac czy sciany szczytowe ostatecznie moga byc biale otynkowane czy trzeba je bedzie przykryc obrobka blacharska i wtedy dom straci wizualnie?

14.11.2018
Daria

i czy dzieki podniesonym scianom szczytowym dom moze stanac w granicy dzialki (dzialka do 16metrow szerokosci) ?

15.11.2018
Lipińscy Domy

Obróbka blacharska zabezpiecza ścianę. Można zrobić ją w kolorze elewacji. Jeśli chodzi o usytuowanie w granicy to należy to sprawdzić w warunkach zabudowy - pomóc może architekt adaptujący.

09.04.2019
Krzysiek

Czy dobrze zakładam, że minimalna długość działki dla budynku bez adaptacji wynosi 10.04m+4m+4m=18.04m? Z czego wynika przyjęcie odpowiednio 5m i 4.9m odległości od granicy działki?
Jak byłaby powierzchnia zabudowy w opcji likwidacji garażu? Czy dobrze zakładam, że wyniesie ona 96.09m2 (118,77m2 z karty projektu minus garaż z rzutu 3.36m x 6.75m (10.04-1.645-1.645))?
Czy możecie już pochwalić się jakimiś realizacjami tego projektu?

09.04.2019
Lipińscy Domy

5 m od frontu przyjmujemy jako typową linię zabudowy narzucaną przez popularne warunki planów zagospodarowania.
4,9 m z tyłu wynika z odległości od tarasu do granicy (można zmienić taras).
Powierzchnia zabudowy bez garażu to 94,78 mkw. W Pana obliczeniach garaż ma szerokość 3.36 a na rysunkach ma 3.56 z izolacją zewnętrzną.

My nie budujemy domów, a niestety nie mamy jeszcze zdjęć od Inwestorów.

10.07.2019
Daria

Z jakich materiałow jest wykonane porycie dachowe?

11.07.2019
Lipińscy Domy

W projekcie przewidziano dach kryty dachówką cementową lub ceramiczną. Można wprowadzić zmiany.

Pow. zabudowy 118.77m2
Powierzchnia netto 163.59m2
Kąt nachylenia dachu 30 °
Min. szerokość działki 20m x 20m
Wys. kalenicy 9.07m
Cena projektu: 5270 zł

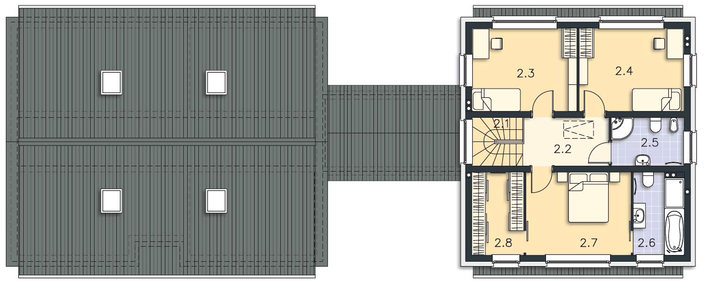
Skagen II

DCP401a142.07m2

Powierzchnia parter 101.21 m2

Powierzchnia piętro 72.42 m2

+23m² garaż +8.56m² kotłownia
12.06.2016
Oskar

Witam, jestem zainteresowany tym projektem, czy jest możliwość przeniesienia schodów w miejsce łazienki na dole? I czy taka zmiana jest płatna dodatkowo przy zakupie projektu?

13.06.2016
Lipinscy_Domy

Można wprowadzić taką zmianę, uwzględniając również zmianę łazienki na górze. Należy również wówczas zmienić wejście do pom. 2.5. Zmiana u ans jest płatna dodatkowo. Możemy wydać również bezpłatną zgodę na naniesienie jej przez lokalnego architekta. szczegóły: biuro@lipinscy.pl

15.09.2016
wujek

Projekt ma potencjał ale wątpię aby w tej formie miał tak małe zapotrzebowanie. Jeżeli wejście jest od północy to od tej strony jest za dużo okien oraz garaż będzie psuł wynik. Garaż bym dał od północy na niezależnej konstrukcji aby nie pogarszał wyniku. Oczywiście zlikwiduje się okno tarasowe w kuchni ale je można przenieść na wschodnią ścianę lub całkiem zrezygnować z tarasowego bo i nie jest potrzebne. Kotłownia w takim domu nie jest potrzebna a rekuperator można dać śmiało w pomieszczeniu gosp. i w nim zmieści się też pompa ciepła do cwu. Nad garażem można zrobić śmiało taras z wyjściem z sypialni lub zostawić dach płaski a w sypialni zrobić mniejsze okno od północy. Takie 180x150 w zupełności wystarczy a będzie tańsze i mniejsze straty. Też w garderobie i pralni tak duże okna to gruba przesada. Jak już jakieś dawać to małe 80x125 wystarczą. Od północy trzeba unikać dużych okien a nie je robić. Po paru zmianach pasywny dom z tego mógłby być.

16.09.2016
Lipinscy_Domy

Pan wątpi i szacuje, a my obliczamy zapotrzebowanie zgodnie z metodologią.
Ten dom nie jest projektowany jako pasywny, tylko jako energooszczędny. Wejście nie jest od północy.
Nie każdy inwestor chce i może mieć w domu pompę ciepła.

16.09.2016
wujek

Skoro wyjście nie jest zaprojektowane od północy to tym bardziej niemożliwe aby w tej formie dom miał takie zapoznanie. W jakim programie są robione obliczenia?

17.09.2016
ML

swojá drogá , jakie jest EP dla tego domu ? podajecie jakás wartosc EUco a ja jako laik nawet nie moge znalezc definicji ani przelicznika na EP w internecie. Pisze o tym poniewaz chcialbym kupic ten projekt i postawic ten dom na pomorzu (podobno w pierwszej strefie klimartycznej) potem moze okazac sie ,ze dom nie jest tak tani w ogrzewaniu rocznym ... dla Panstwa to koloejny sprzedany projekt a dla mnie to zyciowa decyzja....

17.09.2016
ML

np projekt ''dbaly'' . podajecie ,ze EUco = 17,58 kWh/(m2rok) . na murator.pl wartosc EP tego samego projektu wynosi EP68,34 kWh(m2·rok). moiim zdasniem takie EP nie jest juz tak atrakcyjne.... jakie sá faktyczne koszty ogrzewania tego domu w Polsce, na pomorzu...? oczywiscie nie spodziewam sie wyliczen co zlotówki.... bardzo prosze o odpowiedz w sprawie EP i faktycznych, oczwiscie przyblizonych kosztów ogrzewania domu....

19.09.2016
Lipinscy_Domy

EUco i Ep to dwa różne parametry. Nie przelicza się ich.
Tutaj trochę informacji o charakterystyce energetycznej:
/projekty-domow-energooszczednych/charakterystka-energetyczna
Koszty faktyczne może podać jedynie ktoś kto wybudował taki dom.

19.09.2016
Lipinscy_Domy

Zapraszamy do kontaktu telefonicznego.

19.09.2016
wujek

A co mi to da? Przez telefon powiecie swoje a ja swoje. Nie chodzi mi o spieranie się kto ma racje albo co było pierwsze tylko o same zasady. Wiele ludzi kupuje gotowe projekty w których jest podawane jakieś obliczenia a potem okazuje się że tamte obliczenia są z kosmosu wzięte. Pewnie Państwo słyszeli o tym projekcie domu w Niemczech który jest piętrowy z płaskim dachem co od strony południowej cała ściana jest z paneli PV. nie pamiętam gdzie dokładnie dom stoi ale było jakiś czas temu o tym mówione. W tym domu elewacja wschód-zachód jest cała z szkła a mimo dobrego zaizolowania itp zapotrzebowanie na ciepło wynosi w takim domu ponad 30kWh/m2 i to na warunki niemieckie. Więc coś jest nie halo w waszych obliczeniach skoro wasz ten projekt ma niby takie niskie zap. poniżej 15kWh/m2. Coś musi być nie tak liczone. Aby mieć pewność to warto komuś innemu zlecić obliczenia paru projektów i porównać czy wasz audytor to dobrze liczy. Taka luźna propozycja. Co z tym zrobicie to wasza sprawa. Mnie i tak wasze projekty się podobają.

03.12.2016
Łukasz

Wujek opisywany projekt to zmiany projektu skagen. Wierz mi że nie sa one pomysłem pracowni projektowej lipińscy. Projekt skagen 2 zakupiłem za ponad 6000 zł. Temu ze zapłaciłem za projekt podstawowy skagen oraz dodatkowo za zmiany do projektu ponad 2000 zł. Zmiany mojego pomysłu.Obecna cena projektu jak widac na stronie. Zgadzam sie z Toba projekty świetne ale potraktownie klienta lekko mowiac słabe. Zapłaciłem za projekt, zmiany, wymysliłem je (mam na to dowody) zapłaciłem ponad 6000 tysiecy zł a tu taka cena. Próbowałem interweniować ale odpowiedz biura była zbywajaca. Nawet w opisie jest bład dotyczacy sypialni rodzicow na pietrze, gdyż jest to pralnia według moich zmian. Na wiosne ruszam z budowa. Pozdrawiam biuro projektowe.

06.12.2016
Lipinscy_Domy

Nie ukrywamy i nigdy nie ukrywaliśmy, że wprowadzamy zmienione projekty do kolekcji.
To oczywiste, wystarczy zobaczyć ile jest różnych wersji popularnych projektów.
Cena wynikała z faktu, że nad Pana zmianami pracowało sześciu specjalistów.
Natomiast projekt wprowadzony do kolekcji to już projekt katalogowy więc automatycznie jego cena musi być dostosowana do cen rynkowych.

15.01.2017
Oskar

Witam, kupiłem od Państwa powyższy projekt i mam pytanie. W opisie na stronie www wysokość kalenicy to 9,07m, a w projekcie to 9,17m. W warunkach zabudowy mam napisane: max wysokość kalenicy to 9m. Budowa jeszcze nie ruszyła, ale muszę wiedzieć czy jest możliwość wprowadzenia zmiany do projektu przez lokalnego architekta (tu zapewne zmiana nachylenia kąta dachy)?

16.01.2017
Lipinscy_Domy

W projekcie wysokość 9,17 jest do attyki ściany szczytowej, a do kalenicy 9,07 m. Można zmienić posadowienie z 30 cm na mniej.

07.09.2017
lekler

Możliwa jest zamiana i przesuniecie schodów w miejsce łazienki i odwrotnie ?

07.09.2017
Lipinscy_Domy

Tak. Zamieniając ze schodami łazienkę u góry konieczne będzie wejście do 2.5 z sypialni.

08.01.2018
Peter56

Gdzie mogę zobaczyć projekt w wersji z garażem pop lewej stronie

08.01.2018
Lipinscy_Domy

Pod nazwą projektu jest opcja "Zobacz odbicie lustrzane".

23.06.2018
Aga

Czy jest możliwość zmniejszenia garażu o 60 cm by wpasowac dom do dzialki o szerokości 20m?

02.07.2018
Lipińscy Domy

Możemy wydać bezpłatną zgodę na taką zmianę i naniesie ją lokalny architekt adaptujący.

Pow. zabudowy 133.48m2
Powierzchnia netto 171.33m2
Kąt nachylenia dachu 30 °
Min. szerokość działki 20.6m x 19.6m
Wys. kalenicy 9.07m
Cena projektu: 4270 zł

Odense

DCP322242.21m2

Powierzchnia parter 183.37 m2

Powierzchnia piętro 71.95 m2

29.08.2016
Elka

Idealny dla mojej rodzimy i mojej siostry. Buduje ktoś w małopolskiem?

19.04.2017
Bonnie

Chcialabym miec tylko ten domek parterowy bez poddasza. Czy jest taka mozliwosc?. Po zlikwidowaniu okna w salonie po prawej stronie w miejsce 1.12(pralni) jednostanowiskowy garaz. Dziekuje za odpowiedz.

19.04.2017
Lipinscy_Domy

Możemy przygotować taką wersję. Prosimy o kontakt bezpośredni: biuro@lipinscy.pl

Pow. zabudowy 243.26m2
Powierzchnia netto 259.24m2
Kąt nachylenia dachu 35 °
Min. szerokość działki 35.9m x 19.7m
Wys. kalenicy 9.8m
Cena projektu: 8170 zł