PROMOCJA
ULUBIONE

Wersje projektu Oslo

Ostatnio oglądana wersja

Oslo

LMP2671m2

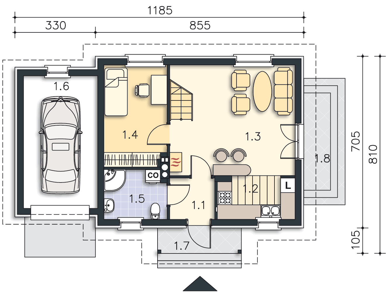
Powierzchnia parter 45.5 m2

Powierzchnia poddasze 25.5 m2

25.10.2009
Sławomira

Prostota oraz wygląd prawdziwego domu, a nie fortecy z frontowym garażem. Jest milutki i malutki - taki w sam raz! Zaaranżowany w ulubionej przeze mnie kolorystyce jest jeszcze bardziej bajkowy :)

15.11.2009
Maria

Widzę codziennie ten domek.Jest to domek moich marzeń.Mam kupiony projekt czekamy na decyzję pozwolenia na budowę.Piękne rozłożenie wnętrz,bardzo funkcjonalny.Nie mogę się doczekać kiedy będę mogła zamieszkać w nim.

29.11.2009
robert m

Mieszkam z żoną w takim domku jestem bardzo zadowolony,domek podoba się we wsi.

30.11.2009
Ania

Witam, mam gorącą prośbę, jeśli ktoś posiada zdjęcia-szczególnie wnętrza,tego pięknego domku będe bardzo wdzięczna za ich okazanie,zastanawiamy się z mężem na tym projektem lecz wcześniej chcielibysmy zobaczyć domek chociażby na zdjęciach u kogoś kto juz go wybudował...pozdrawiam serdecznie Ania

30.11.2009
Ania

Prośbę swoją kieruje szczególnie do pana Roberta, który napisał że mieszka w tym ślicznym domku, Panie Robercie będę bardzo wdzięczna za jakieś zdjecia to pozwoliłoby na szybciej podjąc decyzję..pozdrawiam serdecznie.. jesli sie Pan zgodzi na udostepnienie to podam emaila. ANia

21.12.2009
Bartosz

Witam posiadam również ten projekt,zrobione mam już fundamenty w marcu ruszam dalej, jest to domek w sam raz dla mojej trzy osobowej rodzinki.Niby mały, lecz w sam raz.

28.12.2009
aneta

A oto mój wspaniały domek w którym mieszkam już dwa lata.Jest bardzo przytulny i wygodny .Polecam

30.12.2009
Adam

Witam.Jaki jest orientacyjny koszt budowy?

30.12.2009
ADAM Malinowski

Budowałem ten domek i jestem bardzo zadowolony z funkcjonalnosci. Mimo że jest mały świetnie się mieszka .Mieszkam już trzy lata jest oszczędny i sympatycznie wygląda . Poleciłem go swoim znajomym.

01.01.2010
Ania

witam serdecznie, jesteśmy z mężem obecnie na etapie wyboru projektu, bardzo powaznie zastanawiamy się nad projektem OSLO, ale nigdzie nie mozemy znaleść zdjęć z wnętrza a bardzo chcielibyśmy tak mniej wiecej widziec jak on wygląda w środku, będę więc Państwu bardzo wdzięczna jeśli pokażecie Państwo albo wyślecie mi na emaila zdjęcia z wnętrza Waszego domku, bardzo prosze o kontakt mój email to maryjka1948@wp.pl

03.01.2010
Ania

Witam. Bardzo mi się podoba ten projek mam prośbę do osób, które się podjęły budowy. chciałabym znać orientacyjnt koszt budowy jeśli to możliwe. Niestety mam ograniczony budżet

03.01.2010
Ania

Oto mój mail m.badyna@interia.pl

14.01.2010
Joanna

Ja koncze budowe tego domku na wiosne z nadzieja zamieszkania w wakacje 2010, spodobaly mi sie rozwiazania wnetrz oraz styl (budowa na wsi). garderoba na poddaszu bedzie lazienka z wanna, moj wykonawca twierdzi ze on nie jest taki maly jak mi sie wydaje.

14.01.2010
Joanna

Ania pyta o koszt: stan surowy zamkniety to 138 tys i do tego okolo 100 tys reszta -tak wiec 250 tysiecy to stan deweloperski (porotherm,dachowka Roeben, okna PCV drewniane ze szprosami) - podaj maila to podesle fotki.

16.01.2010
Ania

Będę bardzo wdzięczna jakby mi również Pani przesłała na email maryjka1948@wp.pl zdjęcia z realizacji Pani domku. mam tez pytanie czy coś Pani przerabiała w domku. pozdrawiam Ania D.

22.01.2010
Monika

Mieszkam w tym domku już 5 lat i jestem zadowolona, mam tylko problem z ustawieniem mebli w salonie i sypialni na dole, może macie jakieś zdjęcia co by mnie zainspirowały;-)my swoje poddasze podnieśliśmy co dało nam więcej miejsca na górze, wyszła nam tam niezła łazienka i garderoba, która bardzo sie przydaje. nooo i oczywiście wstawilismy sliczne drewniane schody które dają cały urok salonowi choć troszke miejsca zajmują;-)

24.01.2010
baska

a jaki jest koszt budowy tego domu

11.02.2010
Joanna Surowiec

Monika, możesz mi przesłać na j.surowiec@orange zdjEcie schodów i salony, jestem na etapie wynańczania i szykam inspiracji, z góry dziękuję.

moj e-mail to j.surowiec@orange.fr

21.02.2010
dawid

Mam też taki domek wybudowany jest prosty w budowie no i tani

07.04.2010
ania amorki

My też budujemy właśnie ten domek:)Zaczynamy robić środek tzn.kafelki itd.nie możemy się doczekać kiedy w nim zamieszkamy:)

10.06.2010
przemon

Witam!Czy moglby ktos napisac mi na e-maila jakie sa orientacyjne koszty budowy tego domku?Pozdrawiam:)
Moj e-mail : przemekurban@gazeta.pl

27.07.2010
ruda

a jakie są koszty wybudowania takiego ślicznego domku.

09.08.2010
magda

witam

domek jest prześliczny
czy jest ktos kto orientuje się jaki jest koszt budowy uwzględniajacy aktualne ceny. Bardzo proszę o poradę.
moj e-mail magda_wiktor@tlen.pl
dziekuje z gory

18.08.2010
maria

Powódź majowa i czerwcowa zmyła moje plany,mamy pozwolenie na budowę,nie zdążyliśmy przywieźć materiału.Na działce wody było ponad 2,70 m.Czarna rozpacz.Nie możemy się zdecydować co dalej???Bardzo mi szkoda.

18.08.2010
maria

Sąsiedzi wybudowali,maja stan surowy zamknięty.Śledziłam koszty,wg informacji stan surowy zamknięty wahał się w granicach 100.000 PLN.Niestety nie mogą dalej kończyć,musieli kuc wylewki i tynki.Woda stała ponad 1 m-c.

29.09.2010
yks

Ludzie! Napiszcie coś o kosztach budowy tego domu!

14.11.2010
nisia6

Jak jest cena takiego domku?

24.12.2010
Alicja Brzezińska

Idealny dla mnie: dach dwuspadowy, salon, kuchnia, łazienka i mały pokój na parterze i dwa pokoje na piętrze. Niewielki i przytulny. Cudo.

09.01.2011
sylwek

Buduję z żoną taki sam domek jest super tylko mamy problem czy ktoś może udostępnić zdjęcia schodów w salonie
e-mail sylwki@amorki.pl.
Dziękuję bardzo.Pozdrawiam.

18.01.2011
Marcin Wodziński

Witam , odnośnie kosztów ja mój domek zbudowałem sam ,została mi jeszcze podbitka i dzięki temu wydatki jakie poniosłem to kwota 146 351 zł. .Dom budowałem z pustaka keramzytowego,UWAGA ilość pustaków w projekcie jest przesadzona ,zostały mi 4 palety. O, bym zapomniał mam jeszcze jeden komin z uwagi na fakt iż garaż stał się kotłownią, eko groszek. Jeśli macie pytania to podaje adres; mwodzinski@op.pl

28.01.2011
Marcin

Na pewno nie jest on za mały?

11.02.2011
aldona

Jest milutki i malutki - taki w sam raz-Idealny dla mnie

29.03.2011
Marek

Buduję taki domek. Będzie to domek całoroczny ale w użytkowaniu jako weekendowy. Podniosłem w nim ściankę kolankową przez co domek stał się wyższy ale za to powierzchnia pokoi na poddaszu się zwiększyła. Dzieki temu również odpadły lukarny w dachu. Zamiast nich są okna dachowe. I zamiast garderoby na poddaszu też będzie łazienka. Koszt budowy do stanu surowego zamkniętego to 118 000 zł

07.04.2011
Honorata

Panie Marku, my zaczynamy budowe i zastanawiamy się nad podniesieniem ścian by zyskać powierzchnię u góry. Jednak obawiamy się że koszty sa dość duże i domek straci kształt. Proszę o informację czy dużo podnosił Pan ściany i jakie były koszty. Czy mieli Państwo już przyłącza tzn woda, kanalizacja? My musimy wykonać wszystko
Pozdrawiamy wszystkich budowniczych:)
Honorata

18.04.2011
Marek

Pani Honorato proszę o kontakt email. Przeslę pani zdjecia domku i napisze coś więcej.
Pozdrawiam
zalewskimarek@wp.pl

10.05.2011
Ewa

Witam. My z mężem też chcemy wybudować właśnie ten domek, tylko zastanawiamy się jak wygląda w rzeczywistości.
Jeśli ktoś wybudował ten domek na terenie powiatu wrocławskiego lub okolicznego i chciał oraz miał możliwość pokazania budynku w rzeczywistości to proszę o kontakt na mail. swistak87@op.pl

Panie Marku czy ja też mogę dostać więcej informacji na temat domku z perspektywy budowy?

17.05.2011
Asia Syda

W sam raz dla naszej trójki, dodaję do listy ulubionych projektów :), do tego możliwość systemu rekuperacji.

27.06.2011
Marcin F

Zamierzam zbudować ten idealny domek jeszcze w tym roku. Proszę o uwagi z waszych budów ( zdjęcia, koszty, itp.)

161mar@wp.pl

Pozdrawiam

03.07.2011
jurek

Witam! Mam pytanie do wszystkich użytkowników forum.Czy może ktoś wybudował ten domek na Opolszczyźnie, bo mamy zamiar też go wybudować z żoną i bardzo chcielibyśmy zobaczyć w rzeczywistości nie zależnie od stanu prac.Podaje swojego e- mail do kontaktu www.ciziek1978@o2.pl
Pozdrawiam.

11.07.2011
paweł'ek

Witam.Czy ktoś budował sam taki domek i jak to się ma do kosztów i czy jest możliwość zrobić pomieszczenie na c.o?

08.08.2011
Aga

Witam.Ile kosztowałby taki domek ?

20.09.2011
HARASNY STANISŁAW

Fajny ale brak łazienki na poddaszu. Może macie wersje z łazienką?

16.10.2011
Piotr Gryczko

Witam.Czy ktoś budował ten domek w warm-mazurskim?Bardzo proszę o kontakt!!!
pgbartoszyce@wp.pl
503-938-638

31.12.2011
Bogusia

Mieszkamy w naszym ciepłym,przytulnym domku prawie rok i jesteśmy bardzo zadowoleni.Zrezygnowaliśmy z małego pokoju na dole robiąc duży salon,którego ozdobą są drewniane,ażurowe schody i stylowy kominek oraz zadaszyliśmy taras.Pozdrawiamy

21.02.2012
keit26

Proszę o parę fotek tego domku jak można na adres keit26@wp.pl Zamierzamy sprzedać swój dotychczasowy dom Lubczyk i wybudować ten właśnie mniejszy domek. Chcielibyśmy zapoznać się lepiej z projektem i nie popełnić już pierwszego błędu. Dziękuję za odpowiedź. Pozdrawiam Joanna.

07.06.2012
Grzegorz

Czy ktoś wybudował ten domek w okolicach Tarnowa w Małopolsce

28.07.2012
zuki15

Witam bardzo podoba mi się ten projekt, bardzo bym był wdzięczny za udostępnienie zdjęć domku i informacji na temat kosztów budowy to mój adres zuki103@wp.pl z góry dziękuje

27.08.2012
Ulka

Bardzo piekny domek,ale wydaje mi sie troszke malutki,czy mozna go powiekszyc np. do 80,90m2 powiezchni uzytkowej,i czy mozna i gdzie zrobic kotlownie na paliwo stale.Z gory dziekuje za odpowiedz.

07.09.2012
Lipinscy_Domy

Powiększyć można, ale może któryś z gotowych projektów będzie dobry: Pula i Narwik są bardzo podobne. Z kotłownią na paliwo stałe może się jeszcze Pani spodobać Vigo :-)

07.01.2013
Anna

Witam jaki rodzaj stropu występuje w tym domu, zależy mi na stropie żelbetonowym, czy ze zmianą będzie problem??

09.01.2013
Lipinscy_Domy

W projekcie jest ujęty strop żelbetowy - gęstożebrowy typu Porotherm.

24.02.2013
Ewelina Śląsk

Witam,

Planuję budowę tego domu, proszę o jakieś zdjęcia z budowy oraz wnętrza domu. Może znajdzie się osoba, która wybudowała w/w domek i zgodzi się na jego pokazanie :) Mój kontakt: iwilinka1984@tlen.pl

29.03.2013
Dariusz Kanarski

Witam bardzo podoba mi się ten projekt, byłbym bardzo wdzięczny za przesłanie mi zdjęć domu oraz informacji na temat kosztów budowy. Mój adres email to: kanarskidariusz@gmail.com
Z góry dziękuję.

12.04.2013
sylwester

Witam ,byłbym wdzięczny za przesłanie mi zdjęć schodów w środku domu .Z góry dziękuję.
Mój email :turbosylwester1979@onet.pl.
Z góry dziękuję.Pozdrawiam.

25.05.2013
marek

tak budowalem ten domek , niestety rozkład salonu przez schody nie daje mozliwosci postawienja stołu czy telewizora , nie mowiąc juz o sofie naroznikowej . 2 m. dłuzszy to bylby idealny , a w budowie to juz minimalna większe koszty
a tak niestety domek dla krasnoludkow , moze jeszcze gdyby schody dac w ganku , mieszkałem w nim 4 lata , niestety nie praktyczny rozkład do umeblowanja , salon to wielka klatka schodowa z aneksem kuchennym to wszystko , wydłuzyc o 2 m. to byłby naprawde tani fajny w realizacji i praktyczny dom

12.06.2013
justyna

Witam:-)latem zaczynamy budowę tego domku mały,zgrabny,idealny tylko szukam inspiracji na wykończenie wnętrz,czy mogę prosić o pomoc i zdjęcia na e-maila jak już to wygląda w środku z umeblowaniem oraz zdjęcia z budowy domu też?Z góry bardzo dziękuję.mój nick to:justyna_m24@poczta.onet.pl

01.08.2013
kasia

Bardzo mnie interesuje fakt wejścia z wiatrołapu do łazienki. Zastanawiamy się z mężem czy jest to dobre rozwiązanie. Bardzo proszę o informację od użytkowników tego domku jak sprawdza się to w praktyce. Chciałabym poznać wady i zalety w odczuciu osób które korzystają z tego rozwiązania na co dzień ? Bardzo będę wdzięczna za odpowiedź .
Mój email :kswiergiel@wp.pl

09.09.2013
adrian

mam pytanko. jak zostało rozwiazane ogrzewanie w takim domku.

11.09.2013
Lipinscy_Domy

W projekcie przewidziano ogrzewanie piecem gazowym umieszczonym w łazience na parterze.

14.09.2013
Paweł

Też myślę o tym domku, jest dobry, parę malutkich zmian i stanie się idealny:) Rozpoczęcie prac wiosna 2014:)
Metraż jest wystarczający.

09.07.2014
Aga

C.zy ktoś budował ten domek na podkarpaciu bądż też w małopolsce , bo mam go zamiar budować ale chętnie bym go obejrzała. Bardzo zależy mi na tym . Proszę o kontakt na e mail:wgadzala1@wp.pl

26.07.2014
danuta stefańska

mam ochotę go budo.
wać ale z garażem.nie wiem czy to dobr pomysł.prosz o radę.hej

28.07.2014
Lipinscy_Domy

Oslo II to nasza propozycja tego domku z garażem. :)
W panelu po lewej jest opcja 'Zobacz wersje projektu" i tam można go znaleźć.

18.08.2014
danuta stefańska

Wiosną 2015 chcę zacząć budowę,lecz wersję z garażem,proszę o całkowite koszty budowy,wraz z wykończeniem.
e-mail stefanka3201@wp.pl z góry dzięki..

20.10.2014
Dan

Witam
Interesuje mnie realny koszt budowy takiego domku. Czy ktoś z Państwa, którzy budowali ten dom, może mi przesłać informację na mail: daniom@poczta.fm. Będę bardzo wdzięczny.
Pozdrawiam

17.12.2014
sylwek

Buduję z żoną taki sam domek jest super tylko mamy problem czy ktoś może udostępnić zdjęcia schodów w salonie
e-mail sylwki@amorki.pl.
Dziękuję bardzo.Pozdrawiam.

10.09.2015
Konrad Paszkowsdki

Witam

Czy projekt jest dostosowany do budowy sciany 3 warstwowej?
Czy projekt jest przystosowany do prawdziwej dachówki na dachu?
Czy na górze zamiast garderoby można wstawić łazienkę?
Ile takie zmiany by kosztowały?

10.09.2015
Lipinscy_Domy

Można wprowadzić zmiany. Prosimy o kontakt bezpośredni: biuro@lipinscy.pl

31.12.2015
ALi

Widzę w projekcie kominek i zastanawiam się nad ogrzewaniem z kominka przez wymuszone kanały nawiewowe. Domek jako letniskowy z funkcja całorocznego. Czy ktoś tak ogrzewa i ja się to sprawdza?

29.12.2016
kinga1024

Witam, czy domek jest dostosowany do nowych przepisów obowiązujących od 1 stycznia 2017?

30.12.2016
Lipinscy_Domy

Tak. Wszystkie projekty spełniają przepisy na 2017.

Pow. zabudowy 60.43m2
Powierzchnia netto 84.64m2
Kąt nachylenia dachu 45 °
Min. szerokość działki 16.7m x 16.1m
Wys. kalenicy 7.09m
Cena projektu: 3990 zł


Pozostałe wersje

Kaprun

LMW0170.96m2

Powierzchnia parter 45.57 m2

Powierzchnia poddasze 25.39 m2

22.02.2011
Ania

mam dość nietypowa działkę bo w kształcie trójkąta, szukam projektu domu letniego, który by pasował do takiej działki. spodobał mi sie ten projekt, ze względu że jest to mały domek ale funkcjinalny, jednak zastanawiam się czy można do niego dobudować garaż i czy nie będzie to troch dziwnie wyglądać

28.06.2011
Marcin F

Patrz Oslo II

17.02.2012
Ewa

Ten domek letniskowy ma wszystko nawet garderobe. Cudowny na weekendowe wypady za miasto.

07.03.2013
Justyna

Witam, czy firma robi również te okiennice (Są przewidziane w projekcie)? Czy to tylko tak na obrazku? :)

14.03.2013
Lipinscy_Domy

To jest projekt domu, a my oferujemy projekty architektoniczne. Kwestia realizacji domu leży już w gestii inwestora. Natomiast na rynku jest wiele firm oferujących okiennice :-)

21.04.2013
Endrju02

Witam. Czym się różni projekt murowany letniskowy od calorocznego i jaki jest orientacyjny stosunek kosztow budowy?

20.10.2015
Lipinscy_Domy

Projekt całoroczny ma ogrzewanie i charakterystykę energetyczną. Szacunkowe koszty realizacji podane są pod projektami.

08.01.2016
Marcin

Czy projekt przewiduje zostawienie pustej przestrzeni nad salonem i kuchnią (wysoki/katedralny sufit)? Bez pomieszczeń 2.2 i 2.4 na parterze, tylko same schody prowadzące do 2.3?

11.01.2016
Lipinscy_Domy

Projekt nie przewiduje takiego rozwiązania, ale można wprowadzić opisaną zmianę w ramach adaptacji u lokalnego architekta.

27.07.2017
Jolla

Ten jest super ale brak mi w nim kotłowni

16.10.2019

czy na górze da się przerobić żeby były 3 pokoje? żeby z pokoju 2.2 zrobić 2 pokoje i żeby nie było tej garderoby. Chodzi o to żeby to połączyć

18.10.2019
Lipińscy Domy

Pokoje są tak niewielkie, że dzielenie ich, nawet włączając powierzchnię garderoby, spowoduje, że będą zupełnie niefunkcjonalne.

Pow. zabudowy 60.43m2
Powierzchnia netto 84.66m2
Kąt nachylenia dachu 45 °
Min. szerokość działki 16.7m x 16.1m
Wys. kalenicy 7.09m
Cena projektu: 2790 zł

Oslo II

LMP26a71m2

Powierzchnia parter 61.68 m2

Powierzchnia poddasze 25.5 m2

+16.18m² garaż
17.12.2009
aneta kula

To jest mój wspaniały domek w którym mieszkam już dwa lata .Rewelacyjny projekt bardzo funkcjonalny i przytulny.

17.01.2010
Ania

witam serdecznie,ale trafiłam ma Pani takie nazwisko jak moje panieńskie, hm z jakiego Pani jest miasta, ale to tak przy okazji, jestesmy z mężem bardzo zainteresowani projektem OSLO byłabym bardzo wdzięczna gdyby Pani mi przesłała jakies zdjęcia domku, głównie chodzi mi o wnętrza, niestety bardzo mało osób buduje ten domek i nie ma możliwości podglądnięcia, jeśli Pani może to będę wdzieczna a oto mój email maryjka1948@wp.pl pozdrawiam Ania

23.01.2010
Pawel.Kedzierski3@neostrada.pl

może ale nie ma kotłowni na drewno.... i przejscia do garazu, metraz i koszty OK.

17.06.2010
Artur, Baranów

W 2007 roku razem z żoną kupiliśmy katalog domów gotowych, w którym to przypadł mi do gustu projekt Oslo II. Od tamtej pory żaden następny nie spełniał moich oczekiwań. Projekt ten jest bardzo prosty w wykonaniu. Po wprowadzeniu pewnych przeróbek można w nim wygodnie żyć.

15.07.2010
Lipinscy_Domy

Serdecznie zapraszamy naszych Klientów do aktywnego udziału w forum, które zacznie działać już za kilka dni! Prosimy o dzielenie się z nami i innymi użytkownikami swoimi uwagami, doświadczeniami z budowy oraz o zamieszczanie zdjęć!

10.09.2010
ziutka

Mieszkamy w naszym domku od 3 lat , co prawda mozna byloby w nim wniesc niewielkie poprawki ale ogolnie jestesmy zadowoleni.

28.01.2011
Karolina zaremba

Ile ten dom kosztuje ?

01.02.2011
Kinga

hm...bardzo zaciekawił mnie ten projekt. Domek wydaje się funkcjonalny, pomimo tak małych wymiarów...Mały,ciekawy z nutką nowoczesności a do tego tani w budowie... jak na razie tylko ten przypadł mi do gustu i wydaje się, że posiada on same zalety. Dodatkiem jest również garaż jednostanowiskowy.

09.02.2011
adamada

Witam.jestem ciekawy czy w tym projekcie możliwe jest podniesienie dachu nad garażem,aby wykorzystać pomieszczenie nad garażem.Wydaje mi się to możliwe. Mam pytanie czy ktoś buduje taki dom w woj. mazowieckim bo bardzo bym chciał zobaczyć to w realu. Umiejscowienie kominka wydaje mi się niefortunne.

13.02.2011
dada411

domek moich marzeń .. Jest idealny nie za duży i nie za mały, w sam raz dla mojej rodzinki

23.02.2011
Lipinscy_Domy

Koszty szacujemy na 91 100 zł netto stan surowy zamknięty i 193 300 netto stan wykończony.

04.03.2011
Ula Barszcz / Ula

Witam, czy ktoś odpowie mi na pytanie czy w projekcie OSLO II jest jakiś sposób na umieszczenie kotłowni na paliwo stałe na mojej działce nie mam dostępu do gazu, a projekt jest po prostu świetny. Może można "przesunąć" łazienkę kosztem pokoju, a z przodu dać kotłownie.

06.03.2011
asiama

Witam!!
Czy w tym domku pokoje na górze nie sa za małe?Podoba mi sie ten projekt ale właśnie musielibyśmy wprowadzić pare zmian odnośnie ogrzewania(c.o)!I czy rzeczywiście te koszty budowy są realne!?

17.03.2011
adamada

do pracowni Lipińscy - czy mozliwe jest podniesienie dachu nad garażem aby wykorzystać nad nim jego kubaturę.Proszę o odpowiedź.

17.03.2011
Marcin Wodziński

wybudowałem ten domek sam i kosztował mnie 146 351 zł.Brutto.

25.03.2011
natalia

do pracowni: witam czy dałoby się umieścić w tym domu piec na eko groszek?chodzi mi o to czy można by bylo wygospodarować takie pomieszczenie w garażu?bardzo proszę o odpowiedz

01.05.2011
grazia195411@wp,pl

czy istnieje mozliwosc instalacji ogrzewania na paliwo stale?

07.05.2011
anitka

Witam. Czy byłby ktoś tak uprzejmy i przesłał mi na meila ( anitka441@wp.pl) zdjęcia wybudowanego tego domku.
Z góry dziękuję i pozdrawiam.

08.05.2011
slawek

Witam serdecznie.Mam podobną prośbę co poprzednik mój mejl slawekchudy@vp.pl bardzo proszę o zdjęcia.Ponieważ za miesiąc ruszam z budową tego domku i jestem zainteresowany jego wyglądem.
Z góry dziekuję,pozdrawiam

30.06.2011
bjatka

Witam serdecznie.Mam podobną prośbę co poprzednik mój maila: bjatka@op.pl bardzo proszę o zdjęcia

08.09.2011
Konrad

Witam wszystkich.
W tym tygodniu ruszyła budowa. Projekt wybrałem w dużej mierze ze względu na koszty budowy.
Domek będzie w całości podpiwniczony głównie po to żeby wygospodarować miejsce na kotłownię (piec miałowy), ale pozwoli to również stosunkowo niewielkim kosztem zyskać kilka dodatkowych metrów..
Na parterze rezygnujemy z małej sypialni aby powiększyć przestrzeń salonu i zrobić wejście z salonu do łazienki.
Nie wyobrażam sobie wychodzić w zimę z łazienki np. po kąpieli przez wiatrołap.
Dach nad garażem będzie jednospadowy żeby na szczycie zmieściło się okno.
To wszystkie zaplanowane zmiany. reszta jest ok.
Wyzwaniem jest mocno pochylona działka.

12.10.2011
gruby

tez sobie mieszkam w takim domku już od 5 lat taniocha a przy dzisiejszych cenach gdzie ceny materiałów spadły to niewyobrazam sobie kupna dwóch pokoi w bloku za cenę 200 tys złotych za taka kasę to ma się taki domek i jakie niskie koszty eksploatacji.Ja mam ogrzewanie gazowe wygoda a nic nie robię nie muszę latać za węglem drzewem czy innym opalem .Za ogrzewanie ,ciepła woda, plus kuchenka w tym ,za rok2010 zapłaciłem 3567zl.

14.10.2011
Piotr Gryczko

Witam.Bardzo proszę o kontakt bądź telefon (oddzwonie),kogoś kto wybudował,buduje,lub mieszka już w tym domku.
503-938-638.
pgbartoszyce@wp.pl
Może macie zdjęcia?
Podoba mi się ten projekt,ale zanim się zdecyduję chciałbym poradzić się w kilku kwestiach.
Pozdrawiam

04.12.2011
arti

a gdzie jest kotłownia ?

05.12.2011
Lipińscy_Domy

W projekcie przewidziano ogrzewanie gazowe, a piec gazowy (który jest niewielkich rozmiarów) może z powodzeniem wisieć w łazience.
Dla tych, którzy chcieliby jednak osobną kotłownię polecamy nowy projekt Narwik LMP 279, albo Tulon DCP 57

30.01.2012
Konrad

U mnie piwnica już stoi.
Kotłownia to nie zawsze tylko kwestia wyboru. Ja buduję na wsi gdzie nie ma gazu z rury a ogrzewanie olejowe niestety kosztuje dzisiaj majątek. Robiąc ogrzewanie na paliwo stałe warto pomyśleć o kotłowni z miejscem na większą ilość opału, żeby później nie latać w zimę z wiaderkiem po podwórku.
Teraz zamawiam już część materiałów bo ceny idą w górę i na wiosnę może być drożej. Jak tylko pogoda pozwoli to ruszamy z kopyta żeby na jesieni się przeprowadzić. Jak prace będą bardziej zaawansowane to wstawię zdjęcia.

01.02.2012
Szymon

Jakie drewno najlepsze na elewacje?

21.02.2012
keit26

Bardzo, ale to bardzo proszę o fotki na adres keit26@wp.pl. Z góry dziękuję. Pozdrawiam Joanna.

26.03.2012
Konrad, Grudziądz

Prosty i tani w realizacji projekt. Podobnie jak w innych projektach biura ciekawie i rozsądnie wykorzystana przestrzeń. Ładny i funkcjonalny domek dla mojej rodziny.

02.05.2012
Anusia

Dla zainteresowanych zdjęcia z budowy:
http://www.anusia-i-kondzio.mojabudowa.pl/

04.05.2012
Piotr

Do Anusi
Super widok.Ja zaczynam w lipcu.Bardzo proszę o kontakt,nr tel,cokolwiek!!!
Mam DUUUŻOO pytań.
pgbartoszyce@wp.pl
Pozdrawiam

05.05.2012
Piotr

Anusia.Powiedz ile kosztowały fundamenty i więźba dachowa?Ile do tej pory poszło kasy?

09.05.2012
Anusia

Na blogu zamieszczam na bieżąco koszty, które ponosimy.
My mamy wersję z piwnicą, więc na pewno standardowo koszt fundamentów wyjdzie mniejszy niż u nas.
Wszelkie pytania możesz zadawać w komentarzach - zaglądamy tam codziennie i na bieżąco będziemy odpisywać :)

01.08.2012
Celina

A można nieco zmienić kształt dachu? Żeby nie był tak spiczasty?

10.08.2012
Lipinscy_Domy

Można trochę zmniejszyć kąt nachylenia, ale dach dwuspadowy zawsze będzie mniej lub bardziej spiczasty :D

02.09.2012
hanka

Bardzo podoba mi sie ten projekt ale czy mozna zrobic dach po calosci iwykorzystac poddasze nad garazem

07.09.2012
Lipinscy_Domy

Tak, można wprowadzić taką zmianę :-) My oczywiście wydamy zgodę, aby mógł ją wprowadzić lokalny architekt w ramach adaptacji, lub możemy na zamówienie przygotować taką wersję. Wtedy prosimy o kontakt mailowy, aby określić szczegóły i dokonać wyceny.

02.11.2012
NATALIAPIOTR89

DO ANUSI MAM DUZĄ PROŻBĘ PROSZE OODZEW NA ADRES nataliapiotr89@wp.pl WASZ DOMEK JEST REWELACYJNY POZDRAWIAM !!!!!! A SCHODY BOMBA !

30.12.2012
Marek

To bardzo dobra baza na budowę taniego domku. Wprowadziłem bardzo dużo zmian (pokój nad garażem, wymiary stolarki większe, duży taras z tyłu budynku, ściana kolankowa podniesiona-zyskuje poddasze, przy wejściu kolumny masywne betonowe, na górze zamiast garderoby łazienka-mała ale świetna, kominek na ścianę od kuchni i inne). Po trzech latach mieszkania stwierdzam, że to dość wygodny i bardzo ekonomiczny domek (ogrzewanie centralne chodzi bardzo rzadko ponieważ kominkiem można śmiało ogrzać cały dom). lokalizacja:Podkarpacie, 1wsie@interia.pl

11.06.2013
wili

Witam czy można wygospodarowac miejsce na kotłownie na paliwo stałe

11.06.2013
Lipinscy_Domy

Niestety, kotłownię na paliwo stałe można wprowadzić jedynie kosztem garażu, lub pokoju na parterze.

11.06.2013
wili

Kotłownię na paliwo stałe można wprowadzić jedynie kosztem garażu - znaczy czy można by wydłużyc garaż tak aby zmiesciłby się samochód i zrobic wejcsie od tyłu bądz z boku do kotłowni .Czy moglibyscie wprowadzic takie zmiany bo projekt bardzo mi się podoba

12.06.2013
Lipinscy_Domy

Aby kotłownia mogła zmieścić się za garażem, musiałaby wystawać poza obrys domu, a wtedy w grę wchodzi jedynie przekrycie garażu dachem jednospadowym, podobnie, jak w projekcie Tuluza V. Zmiany takie możemy wprowadzić, prosimy tylko o kontakt mailowy, abyśmy mogli podać koszt wprowadzenia takich zmian.

01.01.2014
Adrian

Witam kupiłem ten projekt i szukam wykonawcy. Jestem z okolic Szczecina czy ktoś może mi polecić jakąś firmę budowlaną.
adi198515@wp.pl
785196064

05.01.2014
Joanna

Witam jaka jest powierzchnia domu po podłodze?

08.01.2014
Lipinscy_Domy

Powierzchnia podłóg wynosi 100,82 mkw. Dane powierzchniowe przy rzutach podane w nawiasach oznaczają powierzchnię po podłodze.

08.01.2014
Joanna

Dziękuję

28.01.2014
nela12

super projekt jak do tej pory nasz faworyt,jestem ciekawa ile wyniosłaby budowa mąż sam robi remonty dorywczo ,więc dużo sam by też zrobił ,ale to raczej wykończenie.działkę mamy stoi już jakiś czas więc kusi nas domek :) ten dla naszej rodzinki idealny:)

01.03.2014
djlatara

Witam. Mam pytanie, ile kosztuje postawienie takiego domku od A do Z wstanie zamkniętym ??

14.03.2014
Lipinscy_Domy

Koszt postawienia domu można wycenić bezpośrednio w firmie wykonawczej wypełniając formularz w OFERTACH DODATKOWYCH w zakładce DOMY GOTOWE- budowa domu.

26.07.2014
DANKA S.

Chaę taki budować.proszę o dordztwo...

28.07.2014
Lipinscy_Domy

Możemy doradzić jeśli chodzi o część projektową. Zapraszamy do kontaktu bezpośredniego: biuro@lipinscy.pl

21.09.2014
gruby

Zrobilem sobie kominek koszty ogrzewania bajka taniocha,jakbym mial dzis z 200 tys to bym budowal takie domki i odsprzedawal

08.01.2016
Anita

Witam, Ile kosztowałby stan surowy zamknięty domu Oslo II z garażem?
Pozdrawiam.

11.01.2016
Lipinscy_Domy

Szacunkowa wycena to ok 107 tys. zł netto.

08.06.2017
Monika

Witam, czy jest możliwość przerobienia tego projektu domu pod ogrzewanie paliwem stałym i jakie będą wtedy całkowite koszty domu w stanie deweloperskim?

09.06.2017
Lipinscy_Domy

W obecnej formie nie ma niestety miejsca na kotłownię na paliwo stałe.
Tutaj projekty z odpowiednią kotłownią: /projekty-domow-z-kotlownia-na-paliwo-stale

Pow. zabudowy 80.76m2
Powierzchnia netto 100.82m2
Kąt nachylenia dachu 45 °
Min. szerokość działki 19.3m x 16.1m
Wys. kalenicy 7.24m
Cena projektu: 4090 zł

Narwik

LMP27998.78m2

Powierzchnia parter 61.53 m2

Powierzchnia poddasze 37.25 m2

05.12.2011
Werka

Bardzo tradycyjny, co bardzo mi odpowiada.Jest nieduży, ale właśnie takiego domu szukałam. Bardzo podoba mi się duże przeszklenie w szczycie domu.

09.12.2011
Eryk

Fajna bryła, praktyczny plan pomieszczeń, a do tego ja jest napisany - prosty w budowie, na pewno zastanowię się nad jego budową.

20.12.2011
bob

Szukam właśnie czegoś prostego, nie za dużego, czegoś dokładnie w takim stylu.

01.02.2012
Ala

Prostota tego domku do mnie przemawia. Spokojna bryła, funkcjonalny plan wnętrza.

20.03.2012
Łukasz bartoszyce

a jaki jest przybliżony koszt budowy po klucz

04.04.2012
Monika

Chyba znaleźliśmy funkcjonalny projekt za odpowiednia sumę.. W jakich kosztach mieściłoby się "doprojektowania" garażu?

26.05.2012
Kasia

Ja też cały czas analizuję ten projekt. Jak wcześniej wspomniano , funkcjonalny, nie za duży, zwarta bryła, prosty do wybudowania , ma jeszcze dodatkowy atut, w łatwy sposób można zrobić z niego budynek ciepły. Wystarczy zastosować materiały do izolacji cieplnej o podwyższonych parametrach, dobrze docieplić poddasze wraz z dachem, nie zapominając o stolarce z górnej półki i mamy domek którego przyszła eksploatacja nie zrujnuje nas finansowo.

29.05.2012
Aneta

ładny domek, mam pytanie, czy dałoby się tak zrobić, żeby taras był z tyłu domu anie z boku?

30.05.2012
Lipinscy_Domy

Oczywiście - nie ma problemu, żeby taras był z tyłu. Taką zmianę może wprowadzić na projekt architekt adaptujący projekt, a nawet kierownik budowy w trakcie trwania budowy. To nie jest istotna zmiana.

24.07.2012
ryszard

czy w tym projekcie można wybudować ścianę jednowarstwową,a kotłownię na paliwo stałe.

10.08.2012
Lipinscy_Domy

Można oczywiście zastosować ścianę jednowarstwową, ale odradzamy.
Kotłownię na paliwo stałe można zastosować, pod warunkiem zwiększenia pomieszczenia gospodarczego do wymiarów min. 2x2m, np. kosztem łazienki.

26.11.2012
Puchatek

Czy w tym projekcie możliwa jest zmiana konstrukcji stropu? Chodzi o inne rozwiązanie piętra. Czy możliwa jest otwarta przestrzeń nad salonem i kuchnią z widoczną konstrukcją więźby dachowej , a na piętrze tylko jeden pokój-antresola nad parterową łazienką i pokojem?

28.11.2012
Lipinscy_Domy

Taka zmiana jest możliwa, aczkolwiek musi to być dobrze rozwiązane przez doświadczonego konstruktora. Dojdą prawdopodobnie dodatkowo zbrojone wieńce, a na parterze słupki przy schodach i na ścianie pomiędzy wiatrołapem i kuchnią. Konstruktor podpowiada, że lepiej, aby właśnie ta ściana była nośną.

11.04.2013
Kasia

Czy w tym projekcie można zrobić otwartą przestrzeń na parterze bez dodatkowego pokoju ?

15.04.2013
Lipinscy_Domy

Niestety, nie - pomiędzy dodatkowym pokojem a sypialnią są schody i ściana nośna, na której częściowo wspierają się schody i strop.

16.09.2013
jony

A czy by dało przerobić się kotłownie na paliwo stałe ? (drzewo węgiel ) oraz zrobić osobne wejście z zewnątrz ? I przenieść taras na ścianę na przeciw wejścia?

17.09.2013
Lipinscy_Domy

Kotłownia w tym projekcie jest za mała, aby można było zastosować w niej piec na paliwo stałe, ale można ją powiększyć kosztem części łazienki. Zmianę taką oraz przeniesienie tarasu na drugą stronę salonu może bez problemu wprowadzić lokalny architekt w ramach adaptacji.

13.01.2014
Rafał J.

Witam czy byłaby możliwość zamiany pomieszczenia (1.5-1.6) z pomieszczeniem 1.7

15.01.2014
Lipinscy_Domy

Można wprowadzić taką zmianę. Wówczas komin od pieca najlepiej umieścić przy ścianie obok schodów.

26.01.2014
Michał

Witam, mam ogromną prośbe do kogoś kto wybudował Narwik, prosiłbym o kontakt na wolfek@wp.pl mam pare waznych pytań. A do Państwa Lipińskich mam pytanie jeżeli sa gdzies zrealizowane w pobliżu projekty NARWIK czy mozna zapytać właścicieli o kontakt.

31.01.2014
Lipinscy_Domy

Niestety nie zbieramy danych osobowych poza podstawową obsługą sprzedaży, także nie posiadamy tych kontaktów. Jedyną możliwością skontaktowania się z budującymi są fora budowlane.

03.05.2014
EWA

Czy można zrobić schody ze spocznikiem?

20.05.2014
Lipinscy_Domy

Można wprowadzić schody ze spocznikiem, ale trzeba się liczyć z możliwością pomniejszenia łazienki na poddaszu o ok.15 cm.

14.10.2014
Halina

Czy można zaprojektować nieduży balkon nad drzwiami tarasowymi?

15.10.2014
Lipinscy_Domy

Jak najbardziej można zaprojektować balkon.

29.12.2014
halina

czy ktoś buduje ten domek? Jeśli tak proszę o podzielenie się opinią na temat tego uroczego domku.

15.11.2015
tomano761

Witam... Czy można zmienić część frontową dachu konkretnie nadbudówki na taką jak w projekcie Oslo?

16.11.2015
Lipinscy_Domy

Tak. Można zmienić dach.

Pow. zabudowy 81.27m2
Powierzchnia netto 108.92m2
Kąt nachylenia dachu 45 °
Min. szerokość działki 18.7m x 16.4m
Wys. kalenicy 7.75m
Cena projektu: 3990 zł

Narwik II

LMP279a99.03m2

Powierzchnia parter 84.14 m2

Powierzchnia poddasze 37.44 m2

+17.62m² garaż +4.93m² kotłownia +11.76m² strych
28.07.2013
yeti

Jak na tak niewielki domek sprawia wrażenie, że znajdzie się w nim miejsce na wszystko. Czy jest to odpowiedni projekt na działkę z wjazdem od wschodu?

29.07.2013
Lipinscy_Domy

Na działkę z wjazdem od wschodu będzie idealnie pasował w odbiciu lustrzanym.

23.11.2013
tomek120874

Czy jest możliwość wydłużenia garażu do długości 5,5 metra nie zmniejszając pomieszczenia na C.O ?

26.11.2013
Lipinscy_Domy

Taka zmiana wymagałaby wydłużenia garażu o 60 cm. Jest to możliwe, ale najprawdopodobniej trzeba będzie wyrównać kalenicę dachu nad garażem z kalenicą domu (dom i garaż pod jednym dachem). Konieczne na pewno będzie przesunięcie komina. Jeśli jest Pan zainteresowany wyceną tych zmian w naszym biurze zachęcamy do wysłania zapytania mailem na adres biuro@lipinscy.pl

02.01.2015
florian

Witam

Czy jest możliwość wykonania garażu dla dwóch aut oraz wejścia dodatkowego wejścia do kotłowni?

Pozdrawiam

05.01.2015
Lipinscy_Domy

Jak najbardziej można powiększyć garaż i doprojektować wejście. Prosimy o kontakt: biuro@lipinscy.pl w celu uzyskania szczegółów.

11.01.2015
juls

Witam serdecznie, chciałabym się dowiedzieć, czy istniałaby możliwość budowy takiego domu bez garażu i zmiany pralni na pomieszczenie CO? Dodatkowo, jestem ciekawa, czy udałaby się tutaj zamiana okien na trapezowe nad tarasem oraz wejściem (poddasze) podobnie jak jest to w projekcie Gładki w.e? Mam nadzieję na odpowiedź i pozdrawiam!

13.01.2015
Lipinscy_Domy

Istnieje wersja projektu bez garażu z kotłownią w miejscu łazienki - Narwik LMP279. Można zmienić okna np. w ramach adaptacji.

Pow. zabudowy 112.14m2
Powierzchnia netto 146.44m2
Kąt nachylenia dachu 45 °
Min. szerokość działki 22.8m x 16.5m
Wys. kalenicy 7.75m
Cena projektu: 3490 zł