PROMOCJA
ULUBIONE

Wersje projektu Newcastle

Ostatnio oglądana wersja

Newcastle

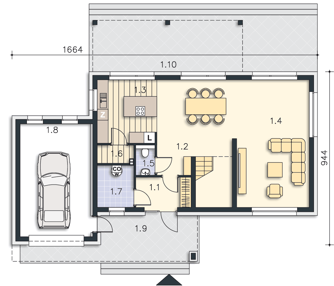
DCP364131.27m2

Powierzchnia parter 109.25 m2

Powierzchnia poddasze 61.2 m2

+34.69m² garaż +4.49m² kotłownia
29.03.2018
Monika

Dzień dobry, jesteśmy zainteresowani projektem ale musimy zrezygnować z garażu i chcielibyśmy zrobić wejście tam gdzie jest kotłownia, a tam gdzie jest obecne wejście zrobić kotłownię.WC z prysznicem umieścić pod schodami.Czy to możliwe?Czy można zainstalować kominek?

30.03.2018
Lipińscy Domy

WC z prysznicem nie zmieści się pod schodami. Trzeba będzie je zlokalizować gdzieś obok wiatrołapu i kotłowni.
Pozostałe zmiany można wprowadzić.
W tym projekcie nanosi je lokalny architekt adaptujący.

22.08.2018
Mariusz

Dzień dobry,

Jaki jest szacunkowy koszt wykonania domu w stane deweloperskim?

28.08.2018
Lipińscy Domy

Informacje podane są w zakładce Kosztorys w kolumnie po lewej stronie.

08.09.2018
Wiktor Michno

Witam, czy jest możliwość zamówienia projektu w technologi drewnianej szkieletowej.
Pozdrawiam
Wiktor

10.09.2018
Lipińscy Domy

Jest możliwość uzyskania projektu i realizacji domu w systemie szkieletowym drewnianym.
Tutaj można uzyskać wycenę: https://lipinscy.pl/projekt/oznaczony/bezplatna-wycena-domu-w-systemie-wolf-haus

09.12.2020
Anka

Jaka jest wysokość ścianki kolankowej ? czy rolety zewnętrzne oraz ewentualna zmiana elewacji musi być uwzględnione w projekcie?

19.03.2021
Michał

Czy projekt podstawowy domu Oznaczony jest zgodny z WT 2021 ? W projektach dla wersji II i III tego projektu wpisaliście Państwo taką informację. Jednak przy wersji podstawowej jej nie widzę.

Pow. zabudowy 141.07m2
Powierzchnia netto 185.51m2
Kąt nachylenia dachu 40 °
Min. szerokość działki 26.5m x 21.4m
Wys. kalenicy 8.33m
Cena projektu: 5570 zł5170 zł


Pozostałe wersje

Ferrara II

DCP363a144.37m2

Powierzchnia parter 97.43 m2

Powierzchnia piętro 74.3 m2

+22.87m² garaż +4.49m² kotłownia
Pow. zabudowy 127.41m2
Powierzchnia netto 200.74m2
Kąt nachylenia dachu 2 °
Min. szerokość działki 23.7m x 20.7m
Wys. kalenicy 7.21m
Cena projektu: 5570 zł5170 zł

Newcastle II

DCP364a131.27m2

Powierzchnia parter 109.25 m2

Powierzchnia poddasze 61.2 m2

+34.69m² garaż +4.49m² kotłownia
06.03.2019
4oxford

czy można wiedzieć co zostało zastosowane na elewacji w tym projekcie?

06.03.2019
Lipińscy Domy

Niestety są to cegły elewacyjne pochodzące z bazy programu komputerowego.
Nie jesteśmy w stanie podać realnego materiału, który wyglądałby tak samo, ale można pokazać wizualizację producentowi i prawdopodobnie będzie on w stanie zaproponować coś podobnego.

Pow. zabudowy 141.07m2
Powierzchnia netto 185.51m2
Kąt nachylenia dachu 40 °
Min. szerokość działki 19.4m x 28.5m
Wys. kalenicy 8.33m
Cena projektu: 5570 zł5170 zł

Newcastle III

DCP364b120.14m2

Powierzchnia parter 81 m2

Powierzchnia poddasze 65.2 m2

+18.48m² garaż +7.58m² kotłownia
Pow. zabudowy 108.33m2
Powierzchnia netto 164.69m2
Kąt nachylenia dachu 40 °
Min. szerokość działki 21.2m x 17.3m
Wys. kalenicy 8.16m
Cena projektu: 5570 zł5170 zł

Newcastle IV

DCP364c124.38m2

Powierzchnia parter 93.14 m2

Powierzchnia poddasze 59.51 m2

+22.4m² garaż +5.87m² kotłownia
06.11.2024
Gosia

Dzień dobry, czy istnieje wersja bez garażu? Lub czy jest możliwość likwidacji?

06.11.2024
Lipińscy Domy
Lipińscy Domy

Dzień dobry. Nie mamy niestety wersji bez garażu, ale można z niego zrezygnować. W ramach adaptacji projektant może go wykreślić. Mamy też projekt w podobnym stylu bez garażu - jest to Baia (https://lipinscy.pl/projekt/baia/)

Pow. zabudowy 125.41m2
Powierzchnia netto 173.97m2
Kąt nachylenia dachu 40 °
Min. szerokość działki 24.3m x 16.9m
Wys. kalenicy 8.16m
Cena projektu: 5570 zł5170 zł