PROMOCJA
ULUBIONE

Wersje projektu Loreto II

Ostatnio oglądana wersja

Loreto II

DCP304a100.52m2

Powierzchnia parter 56.06 m2

Powierzchnia poddasze 44.46 m2

22.02.2016
Dorota

Czy jest możliwa wersja tego domu z kominkiem w salonie?

23.02.2016
Lipinscy_Domy

Tak, można doprojektować kominek w ramach adaptacji.

29.11.2016
Pawel

Czy istnieje możliwość w ramach adaptacji zamiany ław na płyte fundamentowa?

30.11.2016
Lipinscy_Domy

Tak, można wprowadzić zmianę.

25.05.2017
Paweł

Czy w projekcie przewidziane jest w nadprożach miejsce do montażu rolet do zabudowy?
Jaki rodzaj ogrzewania jest użyty w projekcie (ogrzewanie podłogowe w całym domu czy kaloryfery) ?

26.05.2017
Lipinscy_Domy

Nie ma w projekcie miejsca na rolety. Można uwzględnić rolety w ramach adaptacji lub zamawiając okna u producenta.
Ogrzewanie jest grzejnikowe.

11.09.2017
Bartek

Czy ktoś może już wybudował taki dom nawet do stanu surowego, bo chciałbym zobaczyć jak wygląda w realu.

03.01.2018
Motyl

Dzień dobry, o ile zmniejszy się koszt budowy, jeżeli zrezygnuje ze wszystkich okien dachowych, okno w łazience i w sypialni będą na szczycie domu, tak ja w pomieszczeniach naprzeciwko.
Chciałbym również zrezygnować z okien ma ścianie szczytowej w salonie i kuchni. Natomiast okno w pokoju 1.4 nie byłoby oknem balkonowym.
O ile zmniejszy to koszty budowy domu.
Z góry dziękuję za odpowiedź.

04.01.2018
Lipinscy_Domy

Niestety nie jesteśmy w stanie odpowiedzieć na to pytanie - trzeba je zadać firmie, która zajmuje się stolarką okienną.
Możemy przesłać potrzebne rysunki - prosimy o kontakt na biuro@lipinscy.pl

05.01.2018
mlol

Bardzo sympatyczny projekt. Czy byłaby możliwość zmiany fundamentowania na płytę? Nie jestem przekonany do bloczków Isomur, producent nie podaje dokładnych parametrów (np. wsp. przenikania podaje tylko dla jednego korzystniejszego kierunku)

08.01.2018
Lipinscy_Domy

Można wprowadzić zmiany u nas lub u architekta adaptującego - szczegóły w zakładce "Zmiany w projektach" w kolumnie po lewej stronie.

13.01.2019
piotrek

Można zmienić sposób ogrzewania na paliwo stałe?? Jaki czas realizacji ?

21.01.2019
Lipinscy_Domy

Obecnie kotłownia jest dość mała jak na kocioł na paliwo stałe. Można ją powiększyć kosztem łazienki.
Możemy wydać bezpłatną zgodę na taką zmianę u lokalnego architekta adaptującego.

Pow. zabudowy 76.07m2
Powierzchnia netto 116.34m2
Kąt nachylenia dachu 45 °
Min. szerokość działki 17.5m x 18.7m
Wys. kalenicy 8.59m
Cena projektu: 4570 zł


Pozostałe wersje

Loreto

DCP30495.77m2

Powierzchnia parter 69.97 m2

Powierzchnia poddasze 44.46 m2

+18.66m² garaż
03.04.2013
Mariusz

Witam, czy nie dało by się nad garażem zrobić dużego balkonu zamiast spadzistego daszku????

04.04.2013
Lipinscy_Domy

Taras nad garażem można oczywiście wprowadzić, zamiast zadaszenia. Zmianę taką można wprowadzić w ramach adaptacji projektu. Może tego dokonać lokalny architekt.

21.04.2013
Wacław

Czy istnieje wersja bez garażu lecz z oknami od pomieszczeń na tej ścianie?
Pozdrowienia i gratulacje :)
Wacław Bugno

24.04.2013
Lipinscy_Domy

Takiej wersji gotowej nie mamy, ale to dość proste zmiany i może je wprowadzić lokalny architekt w ramach adaptacji. My oczywiście wyrazimy zgodę na takie zmiany.

21.05.2013
ewelina767

Czy istnieje możliwość podpiwniczenia domu oraz powiększenia salonu kosztem podestu 1.9? Jak zrozumiałam jest możliwość zrezygnowania z garażu?

23.05.2013
Lipinscy_Domy

Tak, z garażu można zrezygnować. Można także dom podpiwniczyć i powiększyć salon o zadaszoną część tarasu 1.9.

11.08.2013
paw$

Witam,
czy jest możliwość zastosowania alternatywnego posadowienia w postaci: Żelbetowa płyta fundamentowa na warstwie niewysadzinowej z zagęszczonej pospółki i na warstwie izolacji termicznej z twardego nienasiąkliwego styropianu - podobnie jak niektóre z projektów "EUco15" zamiast płyty fundamentowej z dodatkowymi pustakami "isomur"?
Czy macie Państwo informację w jakich proporcjach cenowych względem siebie będą się kształtowały oba posadowienia?

12.08.2013
Lipinscy_Domy

Tak, możemy na zamówienie wykonać wersję tego projektu na płycie fundamentowej. Kosztowo (realizacja) może wyjść trochę drożej od zwykłych fundamentów, a zależy to w głównej mierze od tego, jak głęboko trzeba będzie wykonać wykop. Najlepiej zrobić badanie gruntowe, które pokaże, na jakiej głębokości są warstwy nośne. Płytę taką trzeba posadowić na podbudowie z mieszanki żwirowej lub kruszywa 0-31.5, a ono jest droższe od pospółki.
Naszą wskazówką w przypadku dostosowania tego projektu do płyty, jest rezygnacja z podcienia i powiększenie salonu o tą część. Łatwiej jest wykonać płytę, gdy nie ma dodatkowych słupów nośnych, bo one musiałyby być osobny fundament, a to może stanowić problem przy odmiennym osiadaniu.
Jeśli będzie Pan zainteresowany taką wersją projektu, prosimy o kontakt bezpośredni, w celu dokonania wyceny takiej zmiany.

23.10.2013
Jakub

Witam, słyszałem o taki programie- mieszkanie dla młodych. Czy wiadomo już czy taki projekt jak ten będzie spełniał jego założenia?

24.10.2013
Lipinscy_Domy

Tak, ten projekt powinien spełniać założenia tego programu, bo powierzchnia użytkowa nie przekracza 100m2. Pisaliśmy o tym w aktualnościach - proszę zerknąć http://news.lipinscy-projekty.pl/domy_dla_mlodych_idealne_na_zyciowy_start.html

23.11.2013
Piter

Witam
Jak zmienią się parametry domu i szacunkowy koszt budowy w przypadku technologii szkieletowej.?

26.11.2013
Lipinscy_Domy

Te informacje otrzyma Pan od współpracujących z nami firm wykonawczych, realizujących domy w technologii szkieletowej. Proszę wypełnić formularz w Ofertach Dodatkowych - Budowa domu i wybrać firmę z Pana rejonu. Link do ofert firm znajduje się u góry formularza.

15.03.2014
Adam

Witam
Czy istnieje możliwość takiej zmiany, żeby garaż i wejście były umiejscowione tak jak w projekcie "Systematyczny w.e" , a wnętrze zostało takie samo, lub niewiele zmienione? Czy jest możliwość zrobienia przejścia z domu do garażu?

29.03.2014
Lipińscy - Domy

Taka zmiana jeśli dobrze zrozumieliśmy intencje nie jest już zmianą projektu ale wymaga w zasadzie opracowania nowej dokumentacji. Proszę o kontakt osobisty a wtedy możemy dokładnie wszystko omówić i przygotować wycenę.

02.04.2014
Przemek

proszę o podanie powierzchni dachu ponieważ takiej nie ma w informacji o projekcie.

jeśli jest możliwość poproszę o podanie orientacyjnego porównania kosztu "klasycznych" fundamentów i płyty fundamentowej zastosowanej w projekcie Loreto. Czy istnieje możliwość osadzenia budynku na klasycznym fundamencie bez uszczerbku dla jego własności energooszczędnych??

Z góry dziękuję za odpowiedź

03.04.2014
Lipinscy_Domy

Powierzchnia dachu wynosi 173,74 mkw.
Największą różnicę w cenie generuje zastosowanie specjalnych bloczków cokołowych, które oprócz własności cieplnych mają świetne parametry izolujące przeciwilgociowe. Zmiana na klasyczne rozwiązanie spowoduje pogorszenie własności cieplnych nawet do 10%.

08.04.2014
Mag

Witam,

czy istnieje możliwość wykonania dachu do max 40 stopni nachylenia?

09.04.2014
Lipinscy_Domy

Można zmienić kąt nachylenia dachu. Zmianę może wprowadzić lokalny projektant w ramach adaptacji.

19.08.2014
Gonia

Czy jest mozliwość dodania drzwi łączących kotłownię i garaż???

19.08.2014
Gonia

Co znaczy że została tu zastosowana energooszczędna technologia???prosze wybaczyć moje pytania ale jestem laikiem. Bardzo podoba mi się ten domek ale chcialabym go postawić jak najniższym kosztem. Proszę o info jak to może wygladać???i jak to wygląda cenowo???Dziękuję

20.08.2014
Lipinscy_Domy

Oznacza to, że koszt ogrzewania jest znacznie niższy niż w domach tradycyjnych. Informacje o kosztach znajdują się w zakładce Kosztorys, w lewym panelu.

28.10.2014
aga

Witam
Czy byłaby możliwość podwyższenia ścianki kolankowej do ok 1,3m i odpowiedniego zmniejszenia kąta pochylenia dachu? oraz powiększenia salonu o zadaszoną część tarasu? O ile wzrosłyby orientacyjne koszty budowy przy takich zmianach?
pozdrawiam i dziękuję z góry za odpowiedź

28.10.2014
kinia

jeszcze jedno - czy można by wykonać garaż na całej długości ściany, tak by zmieścił się w nim jeszcze schowek/pom .gospodarcze? O ile podrożałoby w takim wypadku wykonanie domu?

28.10.2014
Lipinscy_Domy

Zmiany są możliwe. W celu przygotowania wyceny prosimy o kontakt mailowy: biuro@lipinscy.pl

11.03.2015
justa

witam
czy jest możliwość wykonania garażu 2stanowiskowego i strychu nad garażem z wejściem prze górną łązienkę lub przez garaż?

11.03.2015
justa

jak bardzo powyższe zamiany zmieniłyby koszty realizacji inwestycji?

12.03.2015
Lipinscy_Domy

Zmiany są możliwe. W celu przygotowania wyceny prosimy o kontakt mailowy: biuro@lipinscy.pl

16.07.2015
MAgda

Witam, Mam pytanie jakie zmiany wprowadzono w tym projekcie od 2014 roku? które spowodowały zmniejszenie EUco z 33,24 na 14,78?

10.08.2015
Piotrek

Czy ktoś z Państwa budował (buduje) dom wg tego projektu?
Proszę o kontakt zalipski@wp.pl
Pozdrawiam

12.08.2015
Lipinscy_Domy

Zmieniła się metodologia obliczeń charakterystyk energetycznych.

14.08.2015
paulinaburda

Czy ten projekt spełnia wymagania nf40? Czy można w nim zastosować pompę ciepła?

18.08.2015
Lipinscy_Domy

Projekt wymaga dostosowania do dopłat NFOŚiGW. Można zastosować pompę ciepła. Szczegółowe informacje: biuro@lipinscy.pl

30.08.2015
Tomek

Witam


czy ktoś z Was wybudował ten dom? Jeżeli tak ile kosztowało Was postawienie tego domku do stanu deweloperskiego ?

31.10.2015
Patryk

Witam,

Czy dom można powiększyć na długość o 1.5metra, aby za garażem zlokalizować pomieszczenie gospodarcze?
W miejscu gdzie teraz znajduje się kotłownia, wolałbym mieć kuchnię zamknięta. Gdyby powiększyć budynek, byłaby w sam raz. Chcielibyśmy mieć duży salon, bez kuchni otwartej.

03.11.2015
Lipinscy_Domy

Panie Patryku, można wprowadzić zmiany. Szczegóły: biuro@lipinscy.pl

19.01.2016
Piotr

Witam

Bardzo ciekawy projekt. Tylko mam pytanie odnośnie wentylacji mechanicznej/rekuperatora - ile wyniesie EUco bez tych instalacji? Chodzi mi o rząd wielkości.

Dziękuję za odpowiedź i pozdrawiam!

03.03.2016
Ania

Dzien dobry. Mam pytanie czy taki projekt moze byc tez w konstrukcji szkieletowej?

04.03.2016
Lipinscy_Domy

Jak najbardziej. W ofertach dodatkowych są opcje wycen projektów szkieletowych. Firmy wykonawcze dostosowują projekt do swojej technologii.

15.03.2016
Lipinscy_Domy

Pogorszy to wynik o ok 20%.

15.04.2016
Bożena

Dzień dobry, ciekawy projekt domu,
chciałabym się dowiedzieć, czy jest możliwość powiększenia garażu w szerokości o 1,5m i w długości o 4m. Czy wtedy dach może pozostać taki jak w projekcie, czy musiałby być płaski?
Chcielibyśmy salon powiększyć o wielkość podestu 1.9 oraz zastanawiamy się nad zrobieniem kuchni zamkniętej w miejscu pokoju 1.4, i czy można by było miejsce pod schodami wykorzystać jako tzw. spiżarkę?
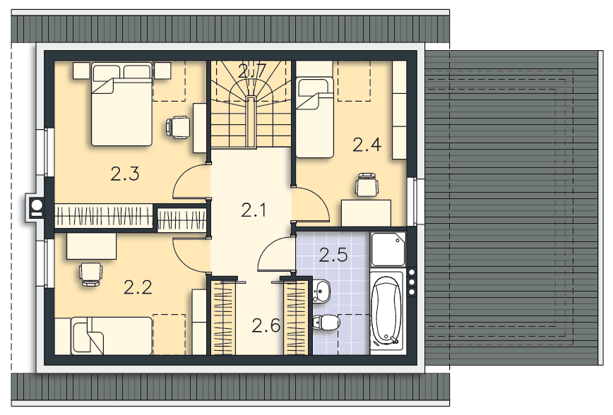
Na poddaszu zrezygnowalibyśmy z garderoby na rzecz pokoju 2.2 i być może łazienki, ale tu jeszcze kwestia do przedyskutowania jest.
Myślimy również nad pompą ciepła z gruntowym pionowym kolektorem i wentylacją mechaniczną z rekuperatorem.
Północna strona wypada na naszej działce w górnym rogu garażu, czy takie usytuowanie domu i zmiany jakie byśmy chcieli wprowadzić, będzie odpowiednie? I przede wszystkim, czy takie zmiany są możliwe?
Pozdrawiam serdecznie.

15.04.2016
Lipinscy_Domy

Pani Bożeno, zmiany są możliwe. Prosimy o przesłanie ich mailowo na biuro@lipinscy.pl
Określimy koszt i termin.

25.07.2016
Paweł

Witam,
Mógłbym prosić o więcej wizualizacji wnętrz projektu Loreto 304, według mnie najciekawszy projekt jaki widziałem. Chętnie zobaczyłbym przestrzennie ten dom w środku.
Pozdrawiam,
Paweł

26.07.2016
Lipinscy_Domy

Niestety nie mamy więcej wizualizacji.
Może ktoś z budujących ma już zdjęcia wnętrz?

15.09.2016
wujek

raczej pogorszy się wynik dużo bardziej. Szacuje że min.3 krotnie. Trzeba zwrócić uwagę na to ze robiąc wentylację naturalną robi się sobie krzywdę bo to oznacza dziurawienie domu a jak się dom dziurawi to nie ma sensu grubo go ocieplać. Wynik potem leci na łeb i szyję. W dzisiejszych czasach tylko nieuki decydują się jaszcze na wentylację grawitacyjną. Dziwię się że ze spokojem Państwo odpowiadają na takie pytania. Głupotę trzeba zwalczać w zarodku a nie pisać ze tylko o 20% się wynik pogorszy bo to bzdura do kwadratu.

16.09.2016
Lipinscy_Domy

Mógłby Pan mieć odwagę podpisywać się imieniem i nazwiskiem pod takim komentarzem.
Obraża on naszych inwestorów, którzy nie chcą mieć rekuperacji.
Komentarz zostanie usunięty.
A obliczenia Pan robi na kolanie? Czy skąd takie szybkie wyniki? 20% a 3 krotnie to duża różnica. I mówimy tutaj o EUco.

16.09.2016
Kamil Janikowski (wujek)

Oczywiście że mogę się pod tym podpisać i nawet w publicznej telewizji bym to powiedział. Wentylacja grawitacja jest dla nieukow i nic na to nie poradzę. Mamy XXIw a niektórzy dalej siedzą w poprzedniej epoce. Potem dziwota że przeciągi sa w domu, że nie ma czym dychac w okresie letnim itp. WG była dobra w zeszłym stuleciu bo niczego lepszego nie było ale jak już jest to trzeba być głupim aby dalej iść w bagno. Z WG nie da się zejść z zapotrzebowaniem poniżej nawet 40kWh/m2.

19.09.2016
Dawid

witam.
prosze mi powiedziec czy samemu sie wybiera material z jakiego ma byc zrobiony? bo w tym projkcie nie jest nic opisane szczegolowo

20.09.2016
Lipinscy_Domy

Panie Dawidzie ma Pan naszą dokumentację? Czy pyta Pan o prezentację na stronie www? Opis technologii jest w zakładce Technologia w panelu po lewej.

05.01.2017
Mario

Jestem laikiem w tych kwestiach więc prosiłbym o informację czy i w jakim stopniu zmienią się współczynniki EUco i EP po wprowadzeniu zmiany w projekcie polegającej na zwężeniu budynku o ok. 20-30cm i wydłużeniu go o ok. 30-50cm

11.01.2017
Lipinscy_Domy

Współczynniki zmienią się z minimalnym stopniu.

21.12.2019
Madgalena

Jaka jest wysokość ścianki kolankowej?

30.12.2019
Lipińscy Domy

Wysokość ścianki kolankowej wynosi 81 cm.

Pow. zabudowy 100.01m2
Powierzchnia netto 130.25m2
Kąt nachylenia dachu 45 °
Min. szerokość działki 20.1m x 18.7m
Wys. kalenicy 8.59m
Cena projektu: 4570 zł